Blank Wdiir Arizona PDF Form

Blank Wdiir Arizona PDF Form

The WDIIR Arizona form is a Wood Destroying Insect Inspection Report mandated by the Arizona Department of Agriculture. This form is essential for documenting inspections related to wood-destroying insects, ensuring that properties are assessed for potential infestations. For accurate completion, it is critical that only a Certified Applicator fills out this form.

Take the first step in safeguarding your property by filling out the form. Click the button below.

The Wood Destroying Insect Inspection Report (WDIIR) form is a crucial document in the real estate transaction process in Arizona, particularly for properties that are being sold or refinanced. This form, administered by the Arizona Department of Agriculture, serves as a comprehensive assessment of a property's susceptibility to wood-destroying insects, such as termites and carpenter ants. It requires a certified applicator to conduct a thorough inspection of accessible areas, documenting any visible evidence of infestation or damage. The form includes sections for identifying the property owner, the inspection company, and the specific structures examined, ensuring that all parties involved have a clear understanding of the property's condition. Moreover, it highlights areas that may have been obstructed during the inspection, such as furniture or wall coverings, which could conceal potential issues. The inspector is tasked with noting not only the presence of insects but also any conditions that could lead to future infestations, like excessive moisture or wood-to-earth contact. By providing a detailed account of findings, including treatment recommendations and warranty information, the WDIIR form plays a vital role in safeguarding property investments and ensuring transparency in real estate transactions.

Document Sample

Arizona Department of Agriculture

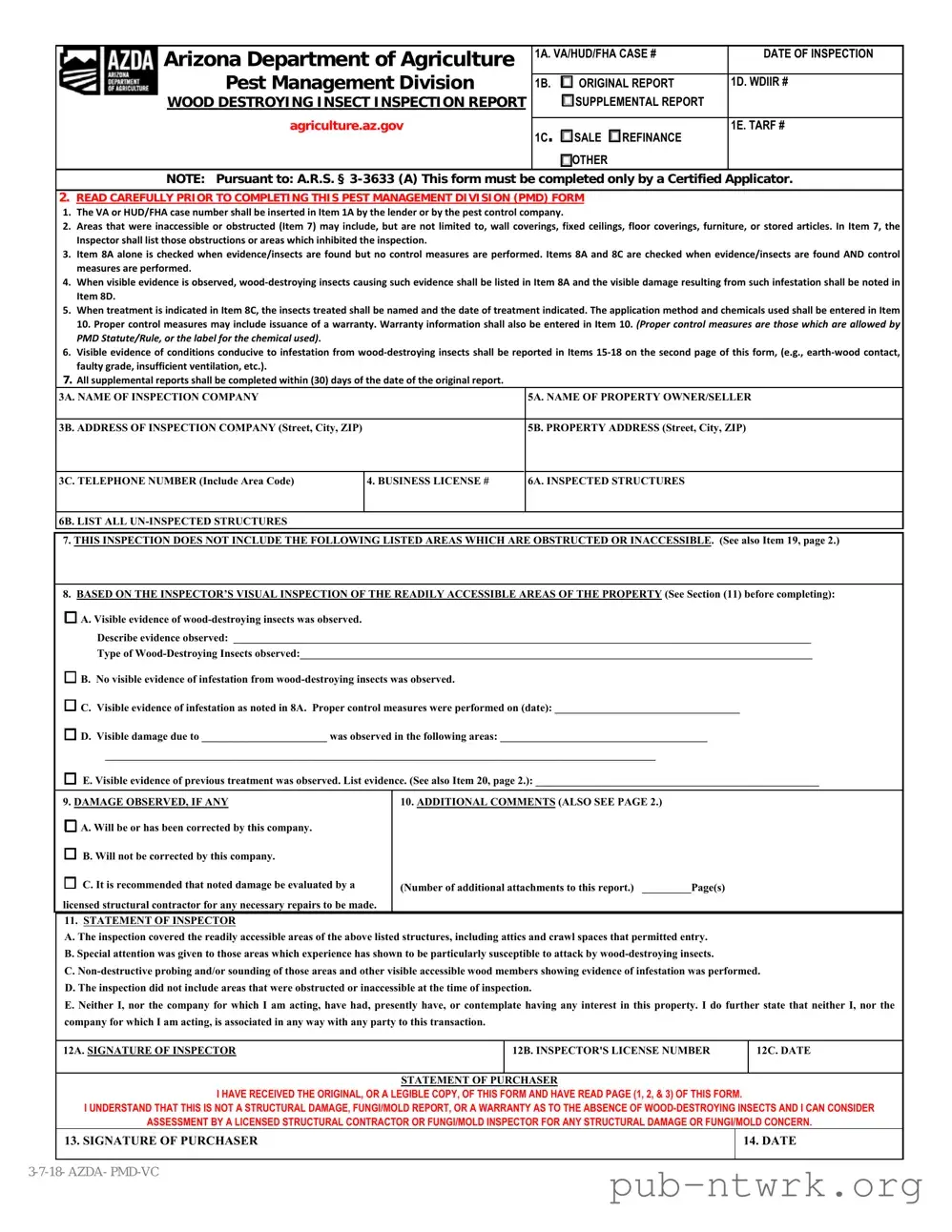
1A. VA/HUD/FHA CASE #

DATE OF INSPECTION

Pest Management Division

1B. ORIGINAL REPORT

1D. WDIIR #

WOOD DESTROYING INSECT INSPECTION REPORT

SUPPLEMENTAL REPORT

 

agriculture.az.gov

1C. □SALE REFINANCE

1E. TARF #

 

 

 

OTHER

 

NOTE: Pursuant to: A.R.S. § 3-3633 (A) This form must be completed only by a Certified Applicator.

2.READ CAREFULLY PRIOR TO COMPLETING THIS PEST MANAGEMENT DIVISION (PMD) FORM

1.The VA or HUD/FHA case number shall be inserted in Item 1A by the lender or by the pest control company.

2.Areas that were inaccessible or obstructed (Item 7) may include, but are not limited to, wall coverings, fixed ceilings, floor coverings, furniture, or stored articles. In Item 7, the Inspector shall list those obstructions or areas which inhibited the inspection.

3.Item 8A alone is checked when evidence/insects are found but no control measures are performed. Items 8A and 8C are checked when evidence/insects are found AND control measures are performed.

4.When visible evidence is observed, wood‐destroying insects causing such evidence shall be listed in Item 8A and the visible damage resulting from such infestation shall be noted in Item 8D.

5.When treatment is indicated in Item 8C, the insects treated shall be named and the date of treatment indicated. The application method and chemicals used shall be entered in Item 10. Proper control measures may include issuance of a warranty. Warranty information shall also be entered in Item 10. (Proper control measures are those which are allowed by PMD Statute/Rule, or the label for the chemical used).

6.Visible evidence of conditions conducive to infestation from wood‐destroying insects shall be reported in Items 15‐18 on the second page of this form, (e.g., earth‐wood contact, faulty grade, insufficient ventilation, etc.).

7.All supplemental reports shall be completed within (30) days of the date of the original report.

3A. NAME OF INSPECTION COMPANY

3B. ADDRESS OF INSPECTION COMPANY (Street, City, ZIP)

5A. NAME OF PROPERTY OWNER/SELLER

5B. PROPERTY ADDRESS (Street, City, ZIP)

3C. TELEPHONE NUMBER (Include Area Code)

4. BUSINESS LICENSE #

6A. INSPECTED STRUCTURES

6B. LIST ALL UN-INSPECTED STRUCTURES

7.THIS INSPECTION DOES NOT INCLUDE THE FOLLOWING LISTED AREAS WHICH ARE OBSTRUCTED OR INACCESSIBLE. (See also Item 19, page 2.)

8.BASED ON THE INSPECTOR’S VISUAL INSPECTION OF THE READILY ACCESSIBLE AREAS OF THE PROPERTY (See Section (11) before completing):

A. Visible evidence of wood-destroying insects was observed.

Describe evidence observed: __________________________________________________________________________________________________________

Type of Wood-Destroying Insects observed:______________________________________________________________________________________________

B. No visible evidence of infestation from wood-destroying insects was observed.

C. Visible evidence of infestation as noted in 8A. Proper control measures were performed on (date): __________________________________

D. Visible damage due to _______________________ was observed in the following areas: ______________________________________

_____________________________________________________________________________________________________

E. Visible evidence of previous treatment was observed. List evidence. (See also Item 20, page 2.): ____________________________________________________

9. DAMAGE OBSERVED, IF ANY

10. ADDITIONAL COMMENTS (ALSO SEE PAGE 2.)

A. Will be or has been corrected by this company.

B. Will not be corrected by this company.

C. It is recommended that noted damage be evaluated by a

(Number of additional attachments to this report.) _________Page(s)

licensed structural contractor for any necessary repairs to be made.

11.STATEMENT OF INSPECTOR

A. The inspection covered the readily accessible areas of the above listed structures, including attics and crawl spaces that permitted entry. B. Special attention was given to those areas which experience has shown to be particularly susceptible to attack by wood-destroying insects.

C. Non-destructive probing and/or sounding of those areas and other visible accessible wood members showing evidence of infestation was performed. D. The inspection did not include areas that were obstructed or inaccessible at the time of inspection.

E. Neither I, nor the company for which I am acting, have had, presently have, or contemplate having any interest in this property. I do further state that neither I, nor the company for which I am acting, is associated in any way with any party to this transaction.

12A. SIGNATURE OF INSPECTOR

12B. INSPECTOR'S LICENSE NUMBER

12C. DATE

STATEMENT OF PURCHASER

I HAVE RECEIVED THE ORIGINAL, OR A LEGIBLE COPY, OF THIS FORM AND HAVE READ PAGE (1, 2, & 3) OF THIS FORM.

I UNDERSTAND THAT THIS IS NOT A STRUCTURAL DAMAGE, FUNGI/MOLD REPORT, OR A WARRANTY AS TO THE ABSENCE OF WOOD-DESTROYING INSECTS AND I CAN CONSIDER

ASSESSMENT BY A LICENSED STRUCTURAL CONTRACTOR OR FUNGI/MOLD INSPECTOR FOR ANY STRUCTURAL DAMAGE OR FUNGI/MOLD CONCERN.

13. SIGNATURE OF PURCHASER

3-7-18- AZDA- PMD-VC

14. DATE

PROPERTY NAME/ADDRESS

 

 

 

 

 

 

 

 

DATE OF INSPECTION

 

 

 

 

 

 

 

Furnished

AT THE TIME OF THE INSPECTION THE PROPERTY WAS:

Vacant

Occupied

Unfurnished

 

 

CONDITIONS CONDUCIVE TO INFESTATION

 

 

 

 

15. WOOD TO EARTH CONTACT (EC)

 

YES

NO

(If YES, check mark and explain conditions conducive)

 

Fence Abutting Structure

Pier Posts

 

 

 

 

 

 

Plants/Trees Contacting Structure

 

 

 

 

Concrete Form Boards

Porch Stairs

Other_____________________________

 

 

 

 

Porch Post

Trellis

 

 

 

 

 

 

 

 

 

 

Comments:

 

 

 

 

 

 

 

 

 

 

 

16. EXCESSIVE CELLULOSE DEBRIS (CD)

YES

NO

(If YES, check mark and explain conditions conducive)

 

Comments:

 

 

 

 

 

 

 

 

 

 

 

17. FAULTY GRADES (FG)

 

YES

NO

(If YES, check mark and explain conditions conducive)

 

Evidence of surface water draining toward house

 

Stucco at or below grade

 

 

 

 

Floor level or planters at or below grade

 

Joists in crawl space less than 24" above grade

 

 

 

 

Wood siding below grade

 

 

Other________________

 

 

 

 

 

Comments:

 

 

 

 

 

 

 

 

 

 

 

18. EXCESSIVE MOISTURE (EM)

 

YES

NO

(If YES, check mark and explain conditions conducive)

 

Standing Water

Water Damage

 

Bath/Shower/Toilet Leaking

Inadequate Ventilation

Sprinklers Hitting Structure

Water Stain

 

Plumbing Leaks

 

Other_________________

Crawl Space/Water Leaking

Improper Condensate Drainage

Attic/Roof Leak

 

 

 

 

Comments:

 

 

 

 

 

 

 

 

 

 

 

 

 

 

 

 

 

 

 

 

19. INACCESSIBLE AREAS (IA)

 

YES

NO

(If YES, check mark and explain)

 

 

 

 

Attic – All

 

Floors

 

 

 

 

Sub/Crawl Space Area -- Clearance

 

Attic – Joists

 

Wall Interiors

 

 

 

Sub Area/Crawl Space No Access

 

Attic – Partial

 

Enclosed Stairwell

 

Areas Obstructed By Furniture Or Stored Articles

Plumbing Traps

 

Dropped Ceilings

 

 

 

 

 

 

Other____________________________________________________________________________________________________________________

Comments:

20.EVIDENCE OF PREVIOUS TREATMENT

BY ANOTHER COMPANY: While evidence of previous treatment does exist, it is impossible for the inspecting company to

ascertain if such treatment was properly performed. Further investigation is left to the Buyer's discretion to determine if such treatment was done properly and if a valid warranty exists against the target pest of such treatment.

BY THE INSPECTING COMPANY: Previous treatment is recorded for this property. At the Buyer's discretion, treatment records can be viewed at the inspecting company's local office with the property owner's permission.

Account Number: __________________________ Date of Initial Treatment: __________________ Target Pest: ______________________________

Warranty Expiration Date: _______________ Other:_______________________________________________________________________________________

Pest Control Inspector’s Additional Comments

3-7-18- AZDA- PMD-VC

PROPERTY NAME/ADDRESS

DATE OF INSPECTION

GRAPH OF STRUCTURE(S)

(Note: Graph Not To Scale)

PURSUANT TO: A.A.C. R3-8-501 (E)(5)(o) THE INSPECTOR MUST COMPLETE THE GRAPH ON PAGE (3) AND CHECK (√) MARKED BELOW FOR ANY

ITEMS WHICH ARE NOTED ON PAGES (1) AND (2)

CODE

SEE GRAPH PAGE (3)

CODE

SEE GRAPH PAGE (3)

CODE

SEE GRAPH PAGE (3)

CODE

SEE GRAPH PAGE (3)

 

SU Subterranean Termites

 

OW Other Wood Destroying Insects (*)

 

OB Obstructions

 

WD Water Damage

 

DR Drywood Termites

 

FG Faulty Grade

 

IA Inaccessible Areas

 

WS Water Stains

 

DA Dampwood Termites

 

EC Wood To Earth Contact

 

IV Inadequate Ventilation

 

RL Roof Leaks

 

BE Wood Destroying Beetles

 

CD Cellulose Debris

 

PL Plumbing Leaks

 

EM Excessive Moisture

 

CA Carpenter Ants

 

PA Plantings Abutting Structure

 

SP Sprinkler Hitting Structure

 

FI Further Inspection Needed

(*)

Other Wood Destroying Insects (list)

 

 

 

 

 

 

 

 

3-7-18- AZDA- PMD-VC

File Specifics

Fact Name Description
Form Purpose The WDIIR Arizona form is used for wood-destroying insect inspections, specifically for properties involved in sale, refinance, or other transactions.
Governing Law This form is governed by Arizona Revised Statutes (A.R.S.) § 3-3633 (A).
Inspection Requirement Only a Certified Applicator is authorized to complete the WDIIR form.
Case Number The VA or HUD/FHA case number must be included by the lender or pest control company in Item 1A.
Obstructions Inspectors must note any areas that are inaccessible or obstructed, such as wall coverings or furniture, in Item 7.
Control Measures Control measures must be indicated in Item 8C if visible evidence of infestation is found and treated.
Supplemental Reports All supplemental reports must be completed within 30 days of the original inspection report.
Conditions for Infestation Conditions conducive to infestation must be reported in Items 15-18, including factors like excessive moisture and faulty grades.
Purchaser's Statement The purchaser must sign a statement acknowledging receipt of the form and understanding its limitations regarding structural damage.
Graph Requirement The inspector is required to complete a graph on page 3 of the form, noting any issues observed during the inspection.

How to Use Wdiir Arizona

Filling out the WDIIR Arizona form requires careful attention to detail. This form is essential for documenting the inspection of a property for wood-destroying insects. Follow these steps to ensure accurate completion.

  1. Begin by entering the VA/HUD/FHA case number in Item 1A. This should be provided by the lender or pest control company.
  2. Check the appropriate box for the type of report in Item 1B, indicating whether it is an original or supplemental report.
  3. Indicate the purpose of the inspection in Item 1C by selecting either sale, refinance, or other.
  4. Fill in the date of inspection in Item 1D and the WDIIR number in Item 1E.
  5. In Item 3A, provide the name of the inspection company.
  6. Complete Item 3B with the address of the inspection company (Street, City, ZIP).
  7. Enter the telephone number of the inspection company in Item 3C.
  8. Input the business license number in Item 4.
  9. In Item 5A, write the name of the property owner/seller.
  10. Fill in the property address in Item 5B (Street, City, ZIP).
  11. List the inspected structures in Item 6A.
  12. In Item 6B, note any un-inspected structures.
  13. In Item 7, specify any obstructed or inaccessible areas that were not inspected.
  14. In Item 8, indicate whether there was visible evidence of wood-destroying insects. If evidence is found, describe it and list the type of insects in Item 8A.
  15. Check Item 8B if no visible evidence was observed.
  16. Complete Item 8C if control measures were performed, noting the date.
  17. In Item 8D, describe any visible damage due to wood-destroying insects.
  18. In Item 9, report any damage observed.
  19. In Item 10, provide any additional comments.
  20. Sign and date the statement of inspector in Items 12A, 12B, and 12C.
  21. Have the purchaser sign and date the statement of purchaser in Items 13 and 14.
  22. Complete Items 15-19 regarding conditions conducive to infestation, checking "YES" or "NO" as applicable and providing explanations.
  23. Document any evidence of previous treatment in Item 20.
  24. Finally, complete the graph on page 3, marking any noted items.

Your Questions, Answered

What is the WDIIR Arizona form?

The WDIIR Arizona form, or Wood Destroying Insect Inspection Report, is a document used primarily during real estate transactions in Arizona. It is required for properties being sold, refinanced, or otherwise transferred. The form provides essential information about the presence of wood-destroying insects, such as termites, and any visible damage they may have caused. It must be completed by a certified pest control applicator.

Who is responsible for completing the WDIIR form?

The form must be filled out by a certified applicator. This ensures that the inspection is conducted by a professional who is trained to identify signs of wood-destroying insects and assess any damage. The lender or pest control company typically inserts the VA or HUD/FHA case number into the form.

What areas are covered in the inspection?

The inspection focuses on readily accessible areas of the property, including attics and crawl spaces. However, any areas that are obstructed or inaccessible will not be included in the report. Common obstructions can include wall coverings, furniture, or stored articles. Inspectors must note any inaccessible areas on the form.

What should I do if wood-destroying insects are found?

If evidence of wood-destroying insects is found, the inspector will indicate this on the form. They will also note any visible damage and recommend control measures. If treatment is performed, the specific insects treated and the methods used will be documented. Homeowners may need to consider additional repairs based on the inspector's recommendations.

What if the inspection reveals conditions conducive to infestation?

The inspector will report any conditions that could lead to future infestations. This includes issues like wood-to-earth contact, excessive moisture, and inadequate ventilation. These factors can create an environment that is favorable for wood-destroying insects. Homeowners should address these conditions promptly to prevent infestations.

Can I rely on the WDIIR form for a warranty against wood-destroying insects?

No, the WDIIR form does not serve as a warranty against the presence of wood-destroying insects. It is merely an inspection report. Homebuyers are encouraged to seek additional assessments from licensed structural contractors or fungi/mold inspectors if they have concerns about structural damage or infestations.

What happens if I receive a supplemental report?

Supplemental reports must be completed within 30 days of the original inspection. These reports can provide updated information regarding any further inspections or treatments that have taken place since the initial report. They are essential for maintaining transparency and ensuring that all parties are informed about the property's condition.

How do I interpret the results of the inspection?

The inspection results will indicate whether visible evidence of wood-destroying insects was found, if any damage was observed, and what control measures were taken. Homeowners should carefully review the findings and consult with the inspector for clarification on any items listed in the report. This understanding is crucial for making informed decisions about the property.

Where can I find more information about the WDIIR form?

For further details, you can visit the Arizona Department of Agriculture's website. They provide resources and guidance on pest management and the requirements for completing the WDIIR form. Additionally, contacting a licensed pest control company can offer insights into the inspection process and any necessary treatments.

Common mistakes

  1. Omitting the VA/HUD/FHA Case Number: Many individuals forget to include the case number in Item 1A. This number is essential for identifying the inspection and should be filled out by the lender or pest control company.

  2. Neglecting Inaccessible Areas: Failing to accurately list areas that were obstructed or inaccessible in Item 7 can lead to misunderstandings about the thoroughness of the inspection. It is important to detail any obstructions such as furniture or wall coverings.

  3. Incorrectly Checking Items 8A and 8C: Some people mistakenly check Item 8A when evidence of wood-destroying insects is found but no control measures are performed. It is crucial to check both Items 8A and 8C if evidence is found and control measures are taken.

  4. Not Listing Visible Damage: When visible evidence of wood-destroying insects is observed, it is vital to note the type of insects in Item 8A and any visible damage in Item 8D. This information is critical for accurate reporting.

  5. Missing Treatment Details: In Item 10, if treatment is indicated, the specific insects treated, the date of treatment, and the application method must be clearly documented. Failing to provide this information can lead to confusion regarding the inspection's findings.

  6. Forgetting Supplemental Reports: Supplemental reports must be completed within 30 days of the original report. Some individuals overlook this requirement, which can result in delays or issues with documentation.

  7. Ignoring Conditions Conducive to Infestation: Items 15-18 require reporting on conditions that may lead to infestations. Neglecting to check these items or provide comments can leave critical information unaddressed.

  8. Not Signing or Dating the Form: Failing to sign and date the form can render it invalid. Both the inspector and the purchaser must ensure their signatures are included to confirm receipt and understanding of the report.

Documents used along the form

The Wood Destroying Insect Inspection Report (WDIIR) is a crucial document for property transactions in Arizona. It provides insights into the presence of wood-destroying insects and the condition of the property. However, it is often accompanied by several other forms and documents that enhance the understanding of the property's status. Here are five commonly used documents that complement the WDIIR:

  • Pest Control Treatment Record: This document outlines any pest control treatments that have been performed on the property. It includes details about the types of pests treated, the methods used, and the dates of treatment. This record is essential for understanding the property's pest management history.
  • Property Disclosure Statement: Sellers typically provide this statement to disclose any known issues with the property, including past pest infestations or damage. It helps buyers make informed decisions by revealing potential risks associated with the property.
  • Structural Inspection Report: A structural inspection report assesses the overall condition of the property, focusing on its structural integrity. This report may identify any damage caused by wood-destroying insects and recommend necessary repairs, ensuring that the buyer is aware of any significant issues before finalizing the purchase.
  • Termite Warranty: If a property has undergone treatment for termites, a warranty may be issued. This document guarantees that the pest control company will address any future infestations within a specified period. It provides peace of mind for buyers, knowing they are covered against potential re-infestation.
  • Inspection Agreement: This agreement outlines the terms and conditions of the inspection conducted by the pest control company. It specifies the scope of the inspection, responsibilities of both parties, and any limitations. Understanding this agreement is crucial for both buyers and sellers to ensure clarity in the inspection process.

Each of these documents plays a vital role in the real estate transaction process, providing essential information that can influence a buyer's decision. By reviewing these forms alongside the WDIIR, individuals can gain a comprehensive understanding of the property's condition and any potential issues that may arise.

Similar forms

The Wood Destroying Insect Inspection Report (WDIIR) is similar to the Termite Inspection Report (TIR), which is commonly used in real estate transactions. Both documents serve to identify the presence of wood-destroying insects, such as termites, and assess any damage they may have caused. The TIR typically includes sections for detailing the findings of the inspection, including visible evidence of infestation and recommendations for treatment. Like the WDIIR, the TIR must be completed by a certified inspector and is often required by lenders during the home buying process to ensure that properties are free from pest-related issues.

Another document akin to the WDIIR is the Pest Control Treatment Record. This record outlines the specifics of pest control measures taken after an inspection. It includes details such as the types of pests treated, the chemicals used, and the date of treatment. While the WDIIR focuses on inspection findings, the Pest Control Treatment Record documents the actions taken to remedy any issues identified. Both forms are crucial for maintaining transparency in pest management and ensuring that property owners are informed about the treatment history of their homes.

The Inspection Report for Structural Damage is also similar to the WDIIR, as it assesses potential damage caused by pests, including wood-destroying insects. This report typically covers a broader scope, examining structural integrity and identifying any visible damage that may require repair. While the WDIIR specifically addresses wood-destroying insects, the Structural Damage Report provides a more comprehensive evaluation of the property’s condition, which can be vital for buyers and sellers during real estate transactions.

Additionally, the Home Inspection Report shares similarities with the WDIIR. This document evaluates the overall condition of a property, including its structural, electrical, and plumbing systems. While the WDIIR is focused solely on pest inspections, the Home Inspection Report may include sections dedicated to pest-related findings, particularly if wood-destroying insects are detected. Both reports aim to inform potential buyers about the condition of the property and any issues that may need addressing before finalizing a sale.

Lastly, the Real Estate Disclosure Statement is comparable to the WDIIR in that it provides essential information to prospective buyers. This document typically includes disclosures about known issues with the property, including past pest infestations or treatments. While the WDIIR provides a snapshot of the current pest situation, the Real Estate Disclosure Statement ensures that buyers are aware of any historical issues that may impact their decision to purchase. Transparency in these documents fosters trust between buyers and sellers, ultimately leading to more informed real estate transactions.

Dos and Don'ts

When filling out the WDIIR Arizona form, it is essential to follow certain guidelines to ensure accuracy and compliance. Here are four things you should and shouldn't do:

  • Do ensure that the VA or HUD/FHA case number is correctly entered in Item 1A by the lender or pest control company.
  • Do list any areas that were inaccessible during the inspection in Item 7. This includes items like wall coverings or furniture.
  • Don't leave Item 8A unchecked if you find evidence of wood-destroying insects. It is crucial to document any findings.
  • Don't forget to complete all supplemental reports within 30 days of the original report date.

By following these guidelines, you can help ensure that the form is filled out correctly and comprehensively.

Misconceptions

  • Misconception 1: The WDIIR form is only necessary for home sales.
  • This form is required not just for sales but also for refinancing and other transactions. It ensures that any wood-destroying insect issues are documented, regardless of the property's status.

  • Misconception 2: Anyone can fill out the WDIIR form.
  • Only a Certified Applicator is authorized to complete this form. This requirement ensures that inspections are conducted by qualified professionals who understand the nuances of pest management.

  • Misconception 3: The inspection covers all areas of the property.
  • Inspectors can only assess readily accessible areas. If certain sections are obstructed or inaccessible, those areas will not be included in the report.

  • Misconception 4: The WDIIR form guarantees that there are no wood-destroying insects present.
  • The form does not serve as a warranty against the presence of pests. It simply documents the inspector's findings based on a visual inspection of accessible areas.

  • Misconception 5: The form includes a structural damage assessment.
  • This report does not evaluate structural damage or issues related to fungi or mold. It focuses solely on wood-destroying insects and conditions conducive to their presence.

  • Misconception 6: All reports are completed immediately after inspection.
  • Supplemental reports must be submitted within 30 days of the original inspection. This timeframe allows for any additional findings or necessary follow-ups to be documented properly.

  • Misconception 7: Previous treatments are always guaranteed to be effective.
  • While previous treatments may be noted in the report, the inspecting company cannot verify their effectiveness. It is up to the buyer to investigate the validity of any existing warranties.

Key takeaways

When filling out and using the WDIIR Arizona form, keep these key points in mind:

  • Certified Applicator Requirement: Only a certified applicator can complete this form, ensuring expertise in pest management.
  • Case Number: The VA or HUD/FHA case number must be entered in Item 1A by either the lender or the pest control company.
  • Obstructions: Clearly list any areas that were inaccessible for inspection in Item 7, such as furniture or fixed coverings.
  • Inspection Findings: If evidence of wood-destroying insects is found, it should be detailed in Item 8A, along with any visible damage in Item 8D.
  • Treatment Details: If treatment is performed, specify the insects treated and the date in Item 8C. Include application methods and chemicals in Item 10.
  • Conditions Conducive to Infestation: Report any visible conditions that could lead to infestations in Items 15-18, like moisture or poor ventilation.
  • Supplemental Reports: Any supplemental reports must be completed within 30 days of the original report.
  • Inspector's Statement: The inspector must affirm that the inspection covered all accessible areas and that they have no vested interest in the property.
  • Purchaser's Acknowledgment: The purchaser must sign to confirm receipt of the form and understanding of its limitations regarding structural damage.
  • Graph Completion: The inspector must complete a graph on page 3, marking any relevant codes for issues noted in the inspection.

By following these guidelines, you can ensure that the WDIIR Arizona form is filled out accurately and effectively. This helps maintain clarity and accountability in pest management practices.