Blank Texas W 3X PDF Form

Blank Texas W 3X PDF Form

The Texas W-3X form is an application used to request an extension of the deadline for plugging an inactive well in Texas. Operators must complete this form to demonstrate compliance with state regulations and provide necessary documentation. To ensure proper processing, it is essential to fill out the form accurately and submit it promptly.

Start the process of filling out the Texas W-3X form by clicking the button below.

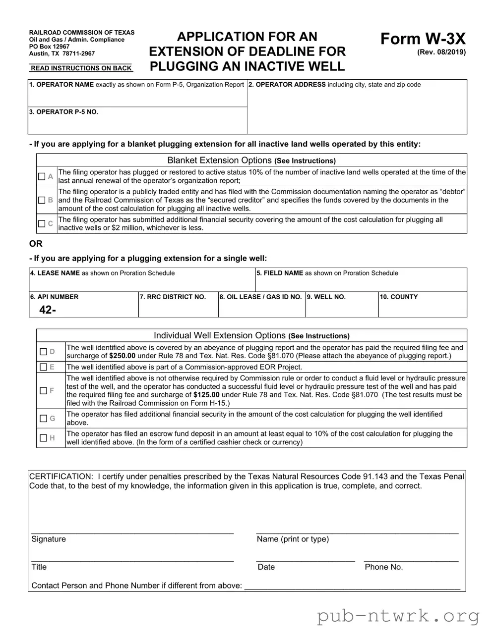
The Texas W-3X form serves as a crucial tool for operators in the oil and gas industry, specifically designed to request an extension of the deadline for plugging inactive wells. This form is essential for maintaining compliance with state regulations while ensuring that operators can manage their resources effectively. It requires detailed information, including the operator's name, address, and P-5 number, along with specifics about the well or wells in question, such as the lease name, field name, and API number. Operators can apply for blanket extensions covering multiple inactive land wells or seek extensions for individual wells. The form outlines various options for eligibility, including the completion of certain plugging activities or financial security requirements. Additionally, it mandates the submission of supporting documentation, depending on the type of extension sought. By providing a clear framework for operators, the W-3X form not only aids in regulatory compliance but also supports the responsible management of natural resources in Texas.

Document Sample

RAILROAD COMMISSION OF TEXAS

Oil and Gas / Admin. Compliance

PO Box 12967

Austin, TX 78711-2967

READ INSTRUCTIONS ON BACK

APPLICATION FOR AN

Form W-3X

EXTENSION OF DEADLINE FOR

(Rev. 08/2019)

PLUGGING AN INACTIVE WELL

 

1.OPERATOR NAME exactly as shown on Form P-5, Organization Report

2.OPERATOR ADDRESS including city, state and zip code

3. OPERATOR P-5 NO.

- If you are applying for a blanket plugging extension for all inactive land wells operated by this entity:

Blanket Extension Options (See Instructions)

AThe filing operator has plugged or restored to active status 10% of the number of inactive land wells operated at the time of the last annual renewal of the operator’s organization report;

 

The filing operator is a publicly traded entity and has filed with the Commission documentation naming the operator as “debtor”

B and the Railroad Commission of Texas as the “secured creditor” and specifies the funds covered by the documents in the

 

amount of the cost calculation for plugging all inactive wells.

 

 

C

The filing operator has submitted additional financial security covering the amount of the cost calculation for plugging all

inactive wells or $2 million, whichever is less.

OR

- If you are applying for a plugging extension for a single well:

4.LEASE NAME as shown on Proration Schedule

5.FIELD NAME as shown on Proration Schedule

6. API NUMBER

42-

7. RRC DISTRICT NO.

8. OIL LEASE / GAS ID NO. 9. WELL NO.

10. COUNTY

Individual Well Extension Options (See Instructions)

DThe well identified above is covered by an abeyance of plugging report and the operator has paid the required filing fee and surcharge of $250.00 under Rule 78 and Tex. Nat. Res. Code §81.070 (Please attach the abeyance of plugging report.)

E The well identified above is part of a Commission-approved EOR Project.

The well identified above is not otherwise required by Commission rule or order to conduct a fluid level or hydraulic pressure

Ftest of the well, and the operator has conducted a successful fluid level or hydraulic pressure test of the well and has paid the required filing fee and surcharge of $125.00 under Rule 78 and Tex. Nat. Res. Code §81.070 (The test results must be filed with the Railroad Commission on Form H-15.)

GThe operator has filed additional financial security in the amount of the cost calculation for plugging the well identified above.

HThe operator has filed an escrow fund deposit in an amount at least equal to 10% of the cost calculation for plugging the well identified above. (In the form of a certified cashier check or currency)

CERTIFICATION: I certify under penalties prescribed by the Texas Natural Resources Code 91.143 and the Texas Penal Code that, to the best of my knowledge, the information given in this application is true, complete, and correct.

_____________________________________________

_____________________________________________

Signature

Name (print or type)

 

_____________________________________________

______________________

_____________________

Title

Date

Phone No.

Contact Person and Phone Number if different from above: ________________________________________________

Reference: Statewide Rule 15 and 78

Instructions:

File Form W-3X as required by Oil & Gas Statewide Rule 15 (16 Tex. Admin. Code §3.15) to apply for an extension to the deadline to plug an inactive well. All items on this form should be typed or clearly printed in blue or black ink.

Blanket Application for Extensions:

If you are filing Form W-3X to request blanket plugging extensions for all wells that you operate:

1)Complete items 1 through 3;

2)Indicate the applicable blanket extension option;

3)Attach any necessary supporting documentation (see below); and

4)Sign and date the Form W-3X.

Under Statewide Rule 15(f)(2)(B), blanket plugging extensions require that you file with the Commission one of the following:

1)for all inactive land wells that an operator has operated for more than 12 months, documentation that the operator has plugged or restored to active operation, as defined by Commission rule, 10% of the number of inactive land wells operated at the time of the last annual renewal of the operator's Organization Report (Form P-5);

2)if the operator is a publicly traded entity, for all inactive land wells, the operator has filed with the Commission a copy of the operator's federal documents filed to comply with Financial Accounting Standards Board Statement No. 143, Accounting for Asset Retirement Obligations, and an original executed Uniform Commercial Code Form 1 Financing Statement, filed with the Secretary of State, that names the operator as the "debtor" and the Railroad Commission of Texas as the "secured creditor" and specifies the funds covered by the documents in the amount of the cost calculation for plugging all inactive wells; or

3)the filing of a blanket bond on Commission Form P-5PB(2), Blanket Performance Bond, a letter of credit on Commission Form P-5LC, Irrevocable Documentary Blanket Letter of Credit, or a cash deposit, in the amount of either the lesser of the cost calculation for plugging all inactive wells or $2 million.

Individual Well Application for Extension:

If you are filing Form W-3X to request a plugging extension for a single well that you operate:

1)Complete items 1 through 10;

2)Indicate the applicable individual well extension option;

3)Attach any necessary supporting documentation (see below); and

4)Sign and date the Form W-3X

Under Statewide Rule 15(f)(2)(B), individual well plugging extensions require that you document one of the following:

1)For each inactive land well identified in the application, the operator has paid the required filling fee and surcharge, and the Commission or its delegate has approved an abeyance of plugging report which includes the following certification under the seal of the certifying professional engineer or professional geoscientist: “I hereby certify, that I am a currently licensed professional engineer or professional geoscientist and based on my personal knowledge of the inactive well identified in this report, the well has a future utility based on both 1) a reasonable expectation of economic value in excess of the cost of plugging the well during the period covered by this report; and 2) a reasonable expectation that the well will ultimately be restored to a beneficial use that will prevent waste of oil or gas resources that otherwise would not be produced if the well is plugged. I further certify that I have reviewed the documentation demonstrating the basis for the affirmation of the well’s future utility attached to this application. An abeyance of plugging report filed under Tex. Nat. Res. Code §89.023(a)(3)(B) is valid for a period of not more than five years.”

2)for each inactive land well identified in the application, the operator has filed a statement that the well is part of a Commission- approved EOR project;

3)for each inactive land well identified in the application that is not otherwise required by Commission rule or order to conduct a fluid level or hydraulic pressure test of the well, the operator has conducted a successful fluid level test or hydraulic pressure test of the well and the operator has paid the required filing fee and surcharge;

4)for each inactive land well identified in the application, the Commission or its delegate has approved a supplemental bond, letter of credit, or cash deposit in an amount at least equal to the cost calculation for plugging an inactive land well for each well specified in the application; or

5)for each time an operator files an application for a plugging extension and for each inactive land well identified in the application, the Commission or its delegate has approved an escrow fund deposit in an amount at least equal to 10% of the total cost calculation for plugging an inactive land well.

Cost Calculation for Plugging an Inactive Well:

The cost calculation pursuant to Statewide Rule 15 is the cost, calculated by the Commission or its delegate, for each foot of well depth plugged based on average actual plugging costs for wells plugged by the Commission for the preceding state fiscal year for the Commission Oil and Gas Division district in which the inactive well is located.

File Specifics

Fact Name Fact Description
Governing Law The Texas W-3X form is governed by Statewide Rule 15 and Rule 78, as well as the Texas Natural Resources Code §81.070.
Purpose This form is used to request an extension of the deadline for plugging an inactive well.
Operator Information It requires the operator's name, address, and P-5 number as shown on Form P-5, Organization Report.
Application Types The form can be used for blanket extensions for all wells or individual extensions for a single well.
Filing Fees A filing fee and surcharge of $250.00 is required for blanket applications, while individual well applications require a fee of $125.00.
Supporting Documentation Applicants must attach necessary documentation, including proof of plugged wells or financial security, depending on the extension type.
Certification Requirement The applicant must certify that the information provided is true and complete, under penalties prescribed by Texas law.
Deadline for Submission The form must be filed with the Railroad Commission of Texas before the existing deadline to plug the well expires.
Cost Calculation The cost calculation for plugging an inactive well is based on the average actual plugging costs for wells plugged in the previous fiscal year.

How to Use Texas W 3X

Filling out the Texas W-3X form is an important step for operators seeking an extension for plugging inactive wells. This process involves providing specific information about the operator and the well in question. Following the steps below will help ensure that the application is completed accurately and submitted correctly.

  1. Enter the OPERATOR NAME exactly as it appears on Form P-5, Organization Report.
  2. Provide the OPERATOR ADDRESS, including city, state, and zip code.
  3. Fill in the OPERATOR P-5 NO. if applying for a blanket plugging extension for all inactive land wells operated by this entity.
  4. For blanket extension options, indicate which option applies:
    • A: The operator has plugged or restored to active status 10% of the number of inactive land wells.
    • B: The operator is publicly traded and has filed documentation naming the operator as “debtor” and the Railroad Commission as the “secured creditor.”
    • C: The operator has submitted additional financial security covering the cost of plugging all inactive wells or $2 million, whichever is less.
  5. For a single well extension, enter the LEASE NAME as shown on the Proration Schedule.
  6. Provide the FIELD NAME as shown on the Proration Schedule.
  7. Fill in the API NUMBER (format: 42-XXXXXXX).
  8. Enter the RRC DISTRICT NO..
  9. Provide the OIL LEASE / GAS ID NO..
  10. Fill in the WELL NO..
  11. Specify the COUNTY.
  12. For individual well extension options, indicate which option applies:
    • D: The well is covered by an abeyance of plugging report and the operator has paid the required fee.
    • E: The well is part of a Commission-approved EOR Project.
    • F: The operator has conducted a successful fluid level or hydraulic pressure test and paid the required fee.
    • G: The operator has filed additional financial security for the plugging cost.
    • H: The operator has filed an escrow fund deposit of at least 10% of the plugging cost.
  13. Sign and date the form in the CERTIFICATION section.
  14. Include the NAME (printed or typed) and TITLE of the person signing the form.
  15. Provide the PHONE NUMBER of the contact person if different from the signer.

After completing the form, it is essential to review all entries for accuracy. Once verified, submit the Texas W-3X form along with any necessary supporting documents to the Railroad Commission of Texas. This ensures compliance with the regulations regarding inactive wells and helps maintain operational integrity.

Your Questions, Answered

What is the Texas W-3X form?

The Texas W-3X form is an application used to request an extension of the deadline for plugging an inactive well. This form is required by the Railroad Commission of Texas and must be filed under specific rules to ensure compliance.

Who needs to file the W-3X form?

Operators of inactive wells in Texas must file the W-3X form if they are seeking an extension for plugging those wells. This applies to both blanket applications for multiple wells and individual applications for single wells.

What information is required on the form?

When filling out the W-3X form, you need to provide:

  • Operator name and address
  • Operator P-5 number
  • Lease name and field name
  • API number and RRC district number
  • Oil lease or gas ID number
  • Well number and county

What are blanket extension options?

Blanket extension options allow operators to apply for extensions for all inactive land wells they operate. To qualify, operators must meet specific criteria, such as plugging a percentage of inactive wells or providing financial security.

What are individual well extension options?

Individual well extension options apply to a single well. Operators can qualify by meeting certain conditions, such as having a successful fluid level test or being part of a Commission-approved EOR project.

What fees are associated with filing the W-3X form?

There are filing fees associated with the W-3X form. For example, a surcharge of $250 is required for an abeyance of plugging report, while a $125 fee is needed for a successful fluid level or hydraulic pressure test.

How long is the abeyance of plugging report valid?

An abeyance of plugging report is valid for a maximum of five years. It must be certified by a licensed professional engineer or geoscientist to confirm the well's future utility.

What happens if I don't file the W-3X form?

If you do not file the W-3X form by the deadline, you may face penalties or be required to plug the inactive well immediately. Compliance with the Railroad Commission's regulations is essential to avoid legal issues.

How is the cost calculation for plugging an inactive well determined?

The cost calculation is based on the average actual plugging costs for wells plugged in the preceding state fiscal year. This calculation is done by the Commission for the district where the inactive well is located.

Where do I submit the W-3X form?

The completed W-3X form should be mailed to the Railroad Commission of Texas at the following address: Oil and Gas / Admin. Compliance, PO Box 12967, Austin, TX 78711-2967.

Common mistakes

  1. Incorrect Operator Name: Make sure to fill in the operator name exactly as it appears on Form P-5. Any variation can lead to processing delays.

  2. Missing Operator Address: Include the complete operator address, including city, state, and zip code. Omitting any part can cause confusion.

  3. Neglecting the P-5 Number: Always provide the correct operator P-5 number. This is crucial for identifying your application.

  4. Choosing the Wrong Extension Option: Carefully select the appropriate blanket or individual well extension option. Each has specific requirements that must be met.

  5. Forgetting Supporting Documentation: Attach all necessary documents. Missing paperwork can result in immediate rejection of the application.

  6. Inaccurate Well Information: Ensure that details like lease name, field name, API number, and well number are correct. Errors can lead to delays or denials.

  7. Improper Signature: The application must be signed and dated by the appropriate person. An unsigned form is invalid and cannot be processed.

Documents used along the form

The Texas W-3X form is a crucial document for operators seeking an extension for plugging inactive wells. Along with this form, several other documents may be required to ensure compliance with regulations set by the Railroad Commission of Texas. Below is a list of other forms and documents commonly used in conjunction with the Texas W-3X form, each serving a specific purpose in the application process.

  • Form P-5: Organization Report - This form provides essential information about the operator, including their name, address, and operational status. It is required for establishing the operator's identity and compliance history.
  • Form H-15: Fluid Level or Hydraulic Pressure Test Report - This report documents the results of fluid level or hydraulic pressure tests conducted on wells. It is necessary when applying for certain extensions to demonstrate the well's condition.
  • Abeyance of Plugging Report - This report certifies that a well is not currently required to be plugged and outlines the future utility of the well. It must be approved by a licensed professional engineer or geoscientist.
  • Form P-5PB(2): Blanket Performance Bond - This document provides financial assurance that the operator can cover the costs of plugging inactive wells. It is often required for blanket extensions.
  • Form P-5LC: Irrevocable Documentary Blanket Letter of Credit - Similar to the performance bond, this letter of credit serves as financial security for the costs associated with plugging wells.
  • Escrow Fund Deposit Documentation - This documentation outlines the establishment of an escrow fund to cover at least 10% of the cost calculation for plugging a well, ensuring funds are available when needed.
  • Financial Documentation for Publicly Traded Entities - Publicly traded operators must provide documentation related to asset retirement obligations, including federal documents and UCC filings that name the Railroad Commission as a secured creditor.
  • Cost Calculation for Plugging - While not a form, this calculation is essential for determining the financial requirements for plugging wells. It is based on the average actual plugging costs for wells in the operator's district.
  • Individual Well Extension Options Documentation - Specific documentation may be required based on the individual circumstances of the well, such as evidence of successful tests or approvals for supplemental bonds.

Understanding these forms and documents is vital for operators to navigate the regulatory landscape effectively. Each document plays a role in ensuring that the operator meets the necessary requirements to extend the deadline for plugging inactive wells, ultimately contributing to the responsible management of oil and gas resources in Texas.

Similar forms

The Texas Form W-3X is similar to the Texas Form P-5, which is the Organization Report for oil and gas operators. Both forms require detailed information about the operator, including their name, address, and identification numbers. The P-5 form establishes the operator's legal status and provides the Railroad Commission with essential data about their operations. Like the W-3X, the P-5 also requires certification from the operator, ensuring that the information provided is accurate and complete. This form serves as a foundational document for operators in Texas, just as the W-3X is crucial for requesting extensions on plugging inactive wells.

Another document similar to the Texas W-3X is the Form P-5PB(2), which is the Blanket Performance Bond. This form is used by operators to provide financial assurance for the plugging of inactive wells. Just like the W-3X, the P-5PB(2) requires operators to demonstrate their financial capacity to cover the costs associated with well plugging. Both forms are part of the regulatory framework that ensures operators are held accountable for their wells. While the W-3X focuses on extensions for inactive wells, the P-5PB(2) secures the financial obligations related to those wells.

The Texas Form H-15 is another document that relates closely to the W-3X. This form is used to report the results of fluid level or hydraulic pressure tests conducted on wells. When operators apply for an extension using the W-3X, they may need to submit test results from Form H-15 as supporting documentation. Both forms emphasize the importance of maintaining well integrity and ensuring that wells are monitored appropriately. The W-3X application process may hinge on the successful completion of tests reported on Form H-15, making them interconnected in the regulatory process.

Similarly, the Texas Form P-5LC, or the Irrevocable Documentary Blanket Letter of Credit, serves as a financial instrument that operators may use to secure obligations related to well plugging. Like the W-3X, this form requires operators to provide proof of financial backing. Both documents are part of the measures in place to ensure that operators can meet their responsibilities for inactive wells. While the W-3X focuses on requesting extensions, the P-5LC is a proactive step to secure those financial commitments.

The Texas Form EOR (Enhanced Oil Recovery) Project Application is another document that shares similarities with the W-3X. Operators may reference this form when applying for extensions on wells that are part of an EOR project. Both forms require documentation and justification for the status of the wells in question. The W-3X may allow extensions for wells involved in approved EOR projects, highlighting the regulatory connection between the two forms. They both aim to ensure that operators are following the necessary guidelines while maximizing resource recovery.

The Texas Abeyance of Plugging Report also relates closely to the W-3X. This report is submitted when an operator seeks to delay the plugging of a well due to specific circumstances. When applying for an extension using the W-3X, operators may need to include an abeyance report as part of their application. Both documents emphasize the importance of maintaining a well's potential utility while adhering to regulatory requirements. The W-3X and the abeyance report work together to provide a comprehensive approach to managing inactive wells.

Lastly, the Texas Form 78 is significant in the context of the W-3X. This form pertains to the filing of fees and surcharges related to well plugging. Operators must pay specific fees when applying for extensions using the W-3X. Both forms require operators to be aware of their financial obligations and ensure timely payments. The Form 78 helps maintain the financial integrity of the regulatory system, while the W-3X allows operators to manage their well plugging timelines effectively.

Dos and Don'ts

When filling out the Texas W-3X form, there are important guidelines to follow. Here’s a list of what you should and shouldn’t do:

  • Do ensure that all information is typed or clearly printed in blue or black ink.
  • Do include the operator name exactly as it appears on Form P-5.
  • Do attach any necessary supporting documentation relevant to your application.
  • Do sign and date the form before submission.
  • Do verify that you have selected the correct extension option for your application.
  • Don't leave any required fields blank; incomplete applications may be rejected.
  • Don't forget to include the correct filing fee and surcharge, as applicable.
  • Don't submit the form without reviewing it for accuracy.
  • Don't confuse blanket extension options with individual well extension options; choose the right one.
  • Don't overlook the certification statement; it must be signed to validate your application.

Misconceptions

Understanding the Texas W-3X form can be challenging, and several misconceptions often arise. Here are eight common misunderstandings along with clarifications:

  • Misconception 1: The W-3X form is only for large operators.
  • This form is applicable to all operators, regardless of size. Both small and large entities can apply for extensions to plug inactive wells.

  • Misconception 2: You can submit the W-3X form without any supporting documents.
  • Supporting documentation is crucial. Depending on whether you are applying for a blanket extension or for a single well, specific documents must be attached to your application.

  • Misconception 3: The W-3X form guarantees an extension.
  • Submitting the form does not guarantee approval. The Railroad Commission will review your application and may deny it if the criteria are not met.

  • Misconception 4: All inactive wells qualify for an extension.
  • Not all inactive wells are eligible. The well must meet specific conditions, such as being part of an approved project or having a successful pressure test.

  • Misconception 5: The filing fees are optional.
  • Filing fees are mandatory. Failure to pay the required fees can result in the rejection of your application.

  • Misconception 6: You can use any form of payment for the filing fees.
  • Only specific payment methods are accepted. Ensure you follow the guidelines regarding acceptable forms of payment to avoid delays.

  • Misconception 7: The W-3X form is the same as the P-5 form.
  • These forms serve different purposes. The W-3X is specifically for requesting extensions on plugging inactive wells, while the P-5 is an organization report for operators.

  • Misconception 8: Once you submit the W-3X form, you don’t need to follow up.
  • It is wise to follow up after submission. Checking the status of your application can help you address any issues that may arise during the review process.

Key takeaways

Filling out the Texas W-3X form correctly is crucial for operators seeking an extension for plugging inactive wells. Here are some key takeaways to keep in mind:

  • Accurate Information: Ensure that the operator's name and address are exactly as shown on the Form P-5. Inaccuracies can lead to delays or denials.
  • Understand Blanket vs. Individual Extensions: Decide whether you are applying for a blanket extension for all inactive wells or an individual extension for a specific well.
  • Document Requirements: For blanket extensions, you may need to provide proof of having plugged 10% of inactive wells or other financial documentation.
  • Filing Fees: Be prepared to pay required fees, such as $250 for an abeyance of plugging report or $125 for a successful fluid level test.
  • Timeliness: Submit the form before the deadline to avoid penalties. Extensions are not granted automatically; they must be applied for.
  • Certification is Key: The form requires a certification statement. Make sure it is signed and dated by an authorized individual.
  • Supporting Documentation: Attach any necessary documents, such as financial security or test results, to support your application.
  • Review Instructions: Carefully read the instructions on the back of the form. Compliance with all rules is essential for a successful application.

By keeping these points in mind, operators can navigate the application process more effectively and ensure compliance with Texas regulations.