Blank Texas Homestead Exemption PDF Form

Blank Texas Homestead Exemption PDF Form

The Texas Homestead Exemption form allows homeowners to claim exemptions on their primary residence, reducing their property tax burden. This application is essential for those who own and occupy their homes, as it helps ensure they receive the benefits available under Texas law. Don’t miss out on potential savings—fill out the form by clicking the button below.

The Texas Homestead Exemption form is a vital tool for homeowners seeking financial relief on their property taxes. This application allows residents to claim exemptions for their primary residence, which can significantly reduce their taxable value. The form, specifically the Harris County Application for Appraisal District Residence Homestead Exemption, requires applicants to provide essential information, including their ownership status, the date they began occupying the property, and details about any other owners. Deadlines are crucial; applicants must submit their completed forms between January 1 and April 30 for most exemptions, while those over 65 or disabled have specific timelines tied to their eligibility dates. Furthermore, the form outlines the types of exemptions available, such as general residence homestead, age 65 or older, and disabled veteran exemptions. It is imperative to include all required documentation, as incomplete applications cannot be processed. Homeowners must also be aware of their duty to notify the chief appraiser if their entitlement to an exemption changes. With the right information and timely submission, eligible homeowners can benefit from significant tax savings, making understanding this form essential for Texas residents.

Document Sample

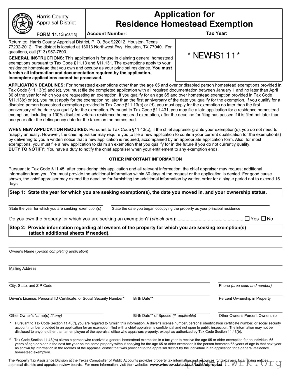
Harris County

 

Application for

Appraisal District

Residence Homestead Exemption

 

 

 

 

 

 

 

FORM 11.13 (03/13)

Account Number:

 

Tax Year:

 

 

 

Return to: Harris County Appraisal District, P. O. Box 922012, Houston, Texas

 

77292-2012. The district is located at 13013 Northwest Fwy, Houston, TX 77040. For

 

questions, call (713) 957-7800.

 

 

* NEWHS1 1 1 *

GENERAL INSTRUCTIONS: This application is for use in claiming general homestead

 

exemptions pursuant to Tax Code §11.13 and §11.131. The exemptions apply to your

 

residence homestead that you own and occupy as your principal residence. You must

 

furnish all information and documentation required by the application.

 

 

Incomplete applications cannot be processed.

 

 

 

 

 

 

APPLICATION DEADLINES: For homestead exemptions other than the age 65 and over or disabled person homestead exemptions provided in Tax Code §11.13(c) and (d), you must file the completed application with all required documentation between January 1 and no later than April 30 of the year for which you are requesting an exemption. If you qualify for an age 65 and over homestead exemption provided in Tax Code §11.13(c) or (d), you must apply for the exemption no later than the first anniversary of the date you qualify for the exemption. If you qualify for a disabled person homestead exemption provided in Tax Code §11.13(c) or (d), you must apply for the exemption no later than the first anniversary of the date you qualify for the exemption. Pursuant to Tax Code §11.431, you may file a late application for a residence homestead exemption, including a 100% disabled veteran residence homestead exemption, after the deadline for filing has passed if it is filed not later than one year after the delinquency date for the taxes on the homestead.

WHEN NEW APPLICATION REQUIRED: Pursuant to Tax Code §11.43(c), if the chief appraiser grants your exemption(s), you do not need to reapply annually. However, the chief appraiser may require you to file a new application to confirm your current qualification for the exemption(s) by delivering to you a written notice that a new application is required, accompanied by an appropriate application form. Also, for most exemptions, you must file a new application to claim an exemption that you qualify for in the future if you do not currently qualify.

DUTY TO NOTIFY: You have a duty to notify the chief appraiser when your entitlement to any exemption ends.

OTHER IMPORTANT INFORMATION

Pursuant to Tax Code §11.45, after considering this application and all relevant information, the chief appraiser may request additional information from you. You must provide the additional information within 30 days of the request or the application is denied. For good cause shown, the chief appraiser may extend the deadline for furnishing the additional information by written order for a single period not to exceed 15 days.

Step 1: State the year for which you are seeking exemption(s), the date you moved in, and your ownership status.

State the year for which you are seeking exemption(s)

State the date you began occupying the property as your principal residence

 

 

Do you own the property for which you are seeking an exemption? (check one):

Yes

No

Step 2: Provide information regarding all owners of the property for which you are seeking exemption(s) (attach additional sheets if needed).

Owner's Name (person completing application)

Mailing Address

City, State, and ZIP Code

 

 

 

Phone (area code and number)

 

 

 

 

 

 

Driver's License, Personal ID Certificate, or Social Security Number*

 

Birth Date**

 

Percent Ownership in Property

 

 

 

 

 

 

Other Owner's Name(s) (if any)

 

Birth Date** of Spouse (if applicable)

 

Other Owner's Percent Ownership

*Pursuant to Tax Code Section 11.43(f), you are required to furnish this information. A driver’s license number, personal identification certificate number, or social security account number provided in an application for an exemption filed with a chief appraiser is confidential and not open to public inspection. The information may not be disclosed to anyone other than an employee of the appraisal office who appraises property, except as authorized by Tax Code Section 11.48(b).

**Tax Code Section 11.43(m) allows a person who receives a general homestead exemption in a tax year to receive the age 65 or older exemption for an individual 65 years of age or older in the next tax year on the same property without applying for the age 65 or older exemption if the person becomes 65 years of age in that next year as shown by information in the records of the appraisal district that was provided to the appraisal district by the individual in an application for a general residence homestead exemption.

The Property Tax Assistance Division at the Texas Comptroller of Public Accounts provides property tax information and resources for taxpayers, local taxing entities, appraisal districts and appraisal review boards. For more information, visit their website: www.window.state.tx.us/taxinfo/proptax

Step 3: Describe the property for which you are seeking exemption(s).

Street Address, City, State, and ZIP Code

 

 

 

 

 

 

 

 

 

 

Legal Description (if known)

 

Appraisal District Account Number (if known)

Number of acres (not to exceed 20) used for residential occupancy of the structure:

 

 

 

 

(Note: the structure and the land and improvements must have identical ownership)

 

acres

For a MANUFACTURED HOME, state the make, model and identification number

 

 

 

 

 

Step 4: Identify exemptions that apply to you and state whether you are transferring a tax ceiling.

Brief descriptions of qualifications for the exemptions listed are provided under each listing; however, to obtain complete information, you should consult the Tax Code. For assistance, you may contact your appraisal district or the Comptroller’s Property Tax Assistance Division. If your appraisal district has not provided with this application a list of taxing units served by the appraisal district with all residential homestead exemptions each taxing unit offers, you may call the appraisal district to determine what homestead exemptions are offered by your taxing units.

GENERAL RESIDENCE HOMESTEAD EXEMPTION (Tax Code §11.13): You may qualify for this exemption if for the current year and, if

filing a late application, for the year for which you are seeking an exemption: (1) you owned this property on January 1; (2) you occupied it as your principal residence on January 1; and (3) you and your spouse do not claim a residence homestead exemption on any other property.

DISABLED PERSON EXEMPTION (Tax Code §11.13(c), (d)): You may qualify for this exemption if you are under a disability for purposes of payment of disability insurance benefits under Federal Old-Age, Survivors, and Disability Insurance. You can’t receive an age 65 or older exemption if you receive this exemption.

AGE 65 OR OLDER EXEMPTION (Tax Code §11.13(c), (d)): You may qualify for this exemption if you are 65 years of age or older. You cannot receive a disability exemption if you receive this exemption.

SURVIVING SPOUSE OF INDIVIDUAL WHO QUALIFIED FOR AGE 65 OR OLDER EXEMPTION UNDER TAX CODE

§11.13(d) (Tax Code §11.13(q)): You may qualify for this exemption if: (1) your deceased spouse died in a year in which he or she qualified for the exemption under Tax Code §11.13(d); (2) you were 55 years of age or older when your deceased spouse died; and (3) the property was your residence homestead when your deceased spouse died and remains your residence homestead. You can’t receive this exemption if you receive an exemption under Tax Code §11.13(d).

Name of Deceased Spouse

Date of Death

100% DISABLED VETERANS EXEMPTION (Tax Code §11.131): You may qualify for this exemption if you are a disabled veteran who

receives from the United States Department of Veterans Affairs or its successor: (1) 100 percent disability compensation due to a service-connected disability; and (2) a rating of 100 percent disabled or individual unemployability. If you qualify for a 100% disabled veteran’s exemption after January 1 of a tax year that begins on or after January 1, 2012, you may receive the exemption for the applicable portion of that tax year immediately on qualification for the exemption.

SURVIVING SPOUSE OF DISABLED VETERAN WHO RECEIVED THE 100% DISABLED VETERAN’S EXEMPTION (Tax Code §11.131): You may qualify for this exemption if you were married to a disabled veteran who qualified for an exemption under Tax Code §11.131 at the time of his or her death and: (1) you have not remarried since the death of the disabled veteran and (2) the property was your residence homestead when the disabled veteran died and remains your residence homestead.

Name of Deceased Spouse

Date of Death

Check if you seek to transfer a school tax limitation from your last home pursuant to Tax Code §11.26(h).

Step 5: Attach required documents.

Include with ALL applications (Note: The chief appraiser may not approve an exemption unless the address on the driver’s license or state-issued personal identification certificate corresponds to the address on the applicant’s vehicle registration receipt or utility bill AND the address indicated on the application form.):

1)a copy of the applicant’s driver’s license or state-issued personal identification certificate; and

2)a copy of the applicant’s vehicle registration receipt; or

a)if the applicant does not own a vehicle, an affidavit to that effect signed by the applicant; and

b)a copy of a utility bill in the applicant’s name for the property for which exemption is sought.

Include with an application for a request for an AGE 65 OR OLDER OR DISABLED exemption:

In addition to the information identified above, an applicant for an age 65 or older or disabled exemption who is not specifically identified on a deed or other instrument recorded in the applicable real property records as an owner of the residence homestead must provide an affidavit or other compelling evidence establishing the applicant’s ownership of an interest in the homestead.

Include with an application for a request for a 100% DISABLED VETERANS exemption:

In addition to the information identified above, an applicant for a 100% disabled veterans exemption or the surviving spouse of a disabled veteran who qualified for the 100% disabled veteran’s exemption must provide documentation from the United States Department of Veterans Affairs or its successor indicating that the veteran received 100 percent disability compensation due to a service-connected disability and had a rating of 100 percent disabled or individual unemployability.

Include with applications for MANUFACTURED HOMES:

For a manufactured home to qualify for a residence homestead, applicant must ALSO include:

1)a copy of the statement of ownership and location for the manufactured home issued by the Texas Department of Housing and Community Affairs showing that the applicant is the owner of the manufactured home;

2)a copy of the purchase contract or payment receipt showing that the applicant is the purchaser of the manufactured home; or

3)a sworn affidavit by the applicant indicating that:

a)the applicant is the owner of the manufactured home;

b)the seller of the manufactured home did not provide the applicant with a purchase contract; and

c)the applicant could not locate the seller after making a good faith effort.

Step 6: (Cooperative Housing Residents) Provide statement regarding your right to occupy the property.

Do you have an exclusive right to occupy this unit because you own stock in a cooperative housing corporation?.....

Yes No

Step 7: Read, sign, and date.

By signing this application, you state that the facts in this application are true and correct, that you do not claim a residence homestead exemption on another residence homestead in Texas, and that you do not claim a residence homestead exemption on a residence homestead outside of Texas.

NOTICE REGARDING PENALTIES FOR MAKING OR FILING AN APPLICATION CONTAINING A FALSE STATEMENT: If you make a false statement on this form, you could be found guilty of a Class A misdemeanor or a state jail felony under Section 37.10, Penal Code.

Your signature on this application constitutes a sworn statement that you have read and understand the Notice Regarding Penalties for Making or Filing an Application Containing a False Statement.

sign here â

Authorized Signature

Date

Printed Name

Affidavits: Complete and have notarized, if applicable (see Step 5, above).

NON-OWNERSHIP OF MOTOR VEHICLE AFFIDAVIT

STATE OF TEXAS

COUNTY OF

Before me, the undersigned authority, personally appeared

 

 

 

 

 

 

 

 

 

 

,

who, being by me duly sworn, deposed as follows:

 

 

 

 

 

 

 

 

 

 

 

“My name is

 

 

 

 

 

 

 

. I am over 18 years of age and I am otherwise fully competent

to make this affidavit. I have personal knowledge of the facts contained herein and all of same are true and correct.

 

 

 

 

I do not own a vehicle.

 

 

 

 

 

 

 

 

 

 

 

 

 

Further, Affiant sayeth not.”

 

 

 

 

 

 

 

 

 

 

 

 

 

 

 

 

 

 

 

 

 

 

 

 

 

 

Signature of Affiant

 

 

 

SUBSCRIBED AND SWORN TO before me this, the

 

 

 

 

 

 

 

 

 

 

 

 

 

 

day of

 

 

,

 

 

 

 

 

 

 

 

 

 

 

 

 

 

 

 

 

 

 

 

 

 

 

 

 

Notary Public in and for the State of Texas

 

 

 

 

 

 

 

 

 

 

 

 

My Commission expires:

 

 

 

 

 

 

 

 

 

 

 

 

 

 

 

 

 

 

 

AGE 65 OR OLDER/DISABLED EXEMPTION AFFIDAVIT

 

 

 

 

STATE OF TEXAS

 

 

 

 

 

 

 

 

 

 

 

 

 

COUNTY OF

 

 

 

 

 

 

 

 

 

 

 

 

 

 

Before me, the undersigned authority, personally appeared

 

 

 

 

 

 

 

 

,

who, being by me duly sworn, deposed as follows:

 

 

 

 

 

 

 

 

 

 

 

“My name is

 

 

 

 

 

 

. I am over 18 years of age and I am otherwise fully competent

to make this affidavit. I have personal knowledge of the facts contained herein and all of same are true and correct.

 

 

 

 

I have a

 

percent ownership in the residence homestead identified in the foregoing exemption application.

 

 

 

 

Further, Affiant sayeth not.”

 

 

 

 

 

 

 

 

 

 

 

 

 

 

 

 

 

 

 

 

Signature of Affiant

 

 

 

SUBSCRIBED AND SWORN TO before me this, the

 

 

 

 

 

 

 

 

 

 

 

 

 

 

day of

 

,

 

 

 

 

 

 

 

 

 

 

 

 

 

 

 

 

 

 

 

 

 

 

 

 

Notary Public in and for the State of Texas

 

 

 

 

 

 

 

 

 

 

 

 

My Commission expires:

 

 

 

 

 

 

 

 

 

 

 

 

 

 

 

 

 

 

 

 

 

 

MANUFACTURED HOME AFFIDAVIT

 

 

 

 

STATE OF TEXAS

 

 

 

 

 

 

 

 

 

 

 

 

 

COUNTY OF

 

 

 

 

 

 

 

 

 

 

 

 

 

 

Before me, the undersigned authority, personally appeared

 

 

 

 

 

 

 

 

,

who, being by me duly sworn, deposed as follows:

 

 

 

 

 

 

 

 

 

 

 

“My name is

 

 

 

 

 

 

. I am over 18 years of age and I am otherwise fully competent

to make this affidavit. I have personal knowledge of the facts contained herein and all of same are true and correct.

I am the owner of the manufactured home identified in the foregoing exemption application. The seller of the manufactured home did not provide me with a purchase contract and I could not locate the seller after making a good faith effort.

Further, Affiant sayeth not.”

Signature of Affiant

SUBSCRIBED AND SWORN TO before me this, the

 

 

 

 

 

day of

 

 

,

 

 

 

 

 

 

 

 

 

Notary Public in and for the State of Texas

 

 

 

 

My Commission expires:

 

 

 

File Specifics

Fact Name Description
Governing Law The Texas Homestead Exemption is governed by Tax Code §11.13 and §11.131.
Application Purpose This application is for claiming general homestead exemptions for your principal residence.
Application Deadline Applications must be filed between January 1 and April 30 for most exemptions.
Late Application A late application may be filed within one year after the tax delinquency date.
Notification Duty Applicants must notify the chief appraiser when they no longer qualify for an exemption.
Reapplication Requirement Reapplication is not needed annually unless requested by the chief appraiser.
Owner Information Applicants must provide information about all owners of the property.
Required Documents Documents such as a driver’s license and vehicle registration must be included with the application.
Exemption Types Exemptions include general residence, age 65 or older, disabled person, and 100% disabled veterans.

How to Use Texas Homestead Exemption

Filling out the Texas Homestead Exemption form is an important step for homeowners seeking tax relief. Once you have completed the form, you will need to submit it along with any required documents to the Harris County Appraisal District. Make sure to keep a copy for your records.

  1. State the year for which you are seeking exemption(s), the date you moved in, and your ownership status. Provide the following information:
    • Year for exemption
    • Date you began occupying the property
    • Ownership status (check Yes or No)
  2. Provide information about all owners of the property. Include:
    • Owner's Name
    • Mailing Address
    • City, State, and ZIP Code
    • Phone number
    • Driver's License, Personal ID Certificate, or Social Security Number
    • Birth Date
    • Percent Ownership in Property
    • Other Owner's Name(s) and Birth Date(s)
  3. Describe the property for which you are seeking exemption(s). Include:
    • Street Address, City, State, and ZIP Code
    • Legal Description (if known)
    • Appraisal District Account Number (if known)
    • Number of acres used for residential occupancy
    • If applicable, make, model, and identification number of a manufactured home
  4. Identify exemptions that apply to you. Mark the relevant exemptions and indicate if you are transferring a tax ceiling.
  5. Attach required documents. Ensure you include:
    • A copy of your driver’s license or state-issued ID
    • A copy of your vehicle registration receipt or an affidavit if you do not own a vehicle
    • A utility bill in your name for the property
  6. For Cooperative Housing Residents, provide a statement regarding your right to occupy the property. Answer Yes or No.
  7. Read, sign, and date the application. Confirm that all facts are true and correct. Be aware of penalties for false statements.

Your Questions, Answered

What is the Texas Homestead Exemption?

The Texas Homestead Exemption reduces the amount of property taxes you owe on your home. To qualify, you must own and occupy the property as your principal residence. This exemption can help lower your taxable value, resulting in savings on your annual property tax bill. There are different types of exemptions, including those for individuals aged 65 and older, disabled persons, and disabled veterans.

How do I apply for the Texas Homestead Exemption?

To apply, you need to complete the Harris County Application for Appraisal District Residence Homestead Exemption form. Gather the necessary documents, such as a copy of your driver’s license and proof of residency, like a utility bill. Make sure to submit your application between January 1 and April 30 for the current tax year. If you miss this deadline, you may still file a late application within a year of the tax delinquency date.

What happens if my application is incomplete?

If your application is incomplete, the Harris County Appraisal District cannot process it. It’s essential to provide all requested information and documentation. If additional information is needed, the chief appraiser will reach out to you. You must respond within 30 days, or your application may be denied. If you need more time, you can request a 15-day extension.

Do I need to reapply every year?

If your exemption is granted, you typically do not need to reapply annually. However, the chief appraiser may require a new application to confirm your eligibility. If your circumstances change or if you no longer meet the qualifications, you have a duty to notify the appraisal district.

What types of exemptions are available?

There are several types of homestead exemptions available in Texas, including:

  1. General Residence Homestead Exemption: For homeowners who occupy their property as their primary residence.
  2. Disabled Person Exemption: For individuals who are disabled and meet specific criteria.
  3. Age 65 or Older Exemption: For homeowners aged 65 and older.
  4. 100% Disabled Veterans Exemption: For veterans who have a service-connected disability rated at 100%.
  5. Surviving Spouse Exemptions: For the surviving spouses of individuals who qualified for age 65 or older or disabled veterans exemptions.

Each exemption has specific requirements, so it's important to check your eligibility and gather the necessary documentation when applying.

Common mistakes

  1. Incomplete Information: One of the most common mistakes is failing to provide all required information. Applicants must ensure that every section of the form is filled out completely. Incomplete applications cannot be processed, which may delay or deny the exemption.

  2. Missing Documentation: Applicants often forget to attach necessary documents. Required documents include a copy of the applicant's driver’s license or state-issued ID, and proof of residency, such as a utility bill. Omitting these can result in rejection of the application.

  3. Incorrect Filing Dates: Many applicants do not pay attention to deadlines. The application must be submitted between January 1 and April 30 for the current tax year. Missing this window can lead to losing the exemption for that year.

  4. Failure to Notify Changes: Once granted, some individuals mistakenly believe they do not need to update the appraisal district about changes. If an applicant's eligibility for the exemption ends, they have a duty to notify the chief appraiser. Failing to do so can lead to penalties or loss of the exemption.

Documents used along the form

The Texas Homestead Exemption form is an essential document for homeowners seeking tax relief on their primary residence. When applying for this exemption, several other forms and documents may also be required or beneficial. Below is a list of commonly used forms that can accompany the Texas Homestead Exemption application.

  • Non-Ownership of Motor Vehicle Affidavit: This affidavit is used by applicants who do not own a vehicle. It verifies that the applicant meets the requirements for the homestead exemption by confirming their non-ownership status.
  • Age 65 or Older/Disabled Exemption Affidavit: This document is necessary for individuals applying for the age 65 or older or disabled exemptions. It provides proof of ownership and eligibility for the exemption, ensuring that all necessary information is accurately represented.
  • Manufactured Home Affidavit: If the property in question is a manufactured home, this affidavit is required. It confirms the applicant's ownership of the home and details the circumstances regarding the absence of a purchase contract, if applicable.
  • Utility Bill: A current utility bill in the applicant's name serves as proof of residency. This document must match the address on the application to ensure compliance with the exemption requirements.
  • Driver’s License or State-Issued ID: A copy of the applicant's driver’s license or state-issued personal identification certificate is required. This document confirms the applicant's identity and residency, as it must match the address on the application.

Gathering these documents can streamline the application process and help ensure that your claim for the Texas Homestead Exemption is processed smoothly. Being well-prepared with the necessary paperwork can make a significant difference in securing the tax benefits you deserve.

Similar forms

The Texas Homestead Exemption form shares similarities with the Application for Federal Housing Assistance. Both documents require applicants to provide detailed personal information, including ownership status and occupancy details. Each application serves to establish eligibility for benefits, with strict deadlines for submission. Just as the homestead exemption offers tax relief for primary residences, the federal housing assistance application aims to provide financial support for housing needs based on income and family circumstances.

The Property Tax Exemption Application is another document comparable to the Texas Homestead Exemption form. Both forms require applicants to demonstrate ownership and residency in the property for which they are seeking relief. They also mandate the submission of supporting documents, such as identification and proof of residence. Each application is designed to ensure that only eligible individuals receive the respective tax benefits, thus protecting public resources.

The Veterans Administration (VA) Disability Compensation Claim form is similar in that it seeks to determine eligibility for benefits based on specific criteria. Like the homestead exemption, the VA claim requires detailed personal information and documentation to support the applicant’s status. Both processes are time-sensitive, requiring applicants to file within certain deadlines to receive the benefits they are entitled to, thereby ensuring timely assistance for those in need.

The Social Security Administration (SSA) Disability Benefits Application also resembles the Texas Homestead Exemption form. Both documents require comprehensive information about the applicant's personal circumstances and residency status. Each application aims to assess eligibility for benefits based on specific criteria, such as age or disability status. Additionally, both processes may necessitate the submission of supporting documentation to substantiate claims.

The Low-Income Home Energy Assistance Program (LIHEAP) application shares commonalities with the Texas Homestead Exemption form. Both forms require applicants to provide personal details and demonstrate residency in the property for which they are seeking assistance. Each application is designed to help individuals in financial need by providing essential benefits, whether through tax exemptions or energy assistance, thus enhancing their quality of life.

The Supplemental Nutrition Assistance Program (SNAP) application is another document that mirrors the Texas Homestead Exemption form. Both applications require individuals to disclose personal information, including household composition and income. Each aims to determine eligibility for government assistance programs, ensuring that those who qualify receive necessary support. Timeliness in submitting these applications is crucial for accessing benefits without delay.

The Medicaid application process is similar to the Texas Homestead Exemption form in that both require detailed personal and financial information. Applicants must demonstrate eligibility based on specific criteria, such as income and residency. Each application serves to provide essential benefits to qualified individuals, ensuring access to necessary services while maintaining strict guidelines to protect program integrity.

The Federal Emergency Management Agency (FEMA) Disaster Assistance Application also resembles the Texas Homestead Exemption form. Both documents require applicants to provide personal information and documentation to support their claims. Each application is designed to assist individuals in times of need, whether through tax relief or disaster recovery assistance, emphasizing the importance of timely submission for receiving benefits.

Lastly, the Texas Department of Family and Protective Services (DFPS) application for financial assistance mirrors the Texas Homestead Exemption form in its requirement for personal and household information. Both applications aim to assess eligibility for benefits based on specific criteria, ensuring that individuals and families in need receive appropriate support. Each process underscores the necessity of providing accurate and complete information to facilitate timely assistance.

Dos and Don'ts

When filling out the Texas Homestead Exemption form, it’s essential to be thorough and accurate. Here are five things you should and shouldn't do:

  • Do ensure you meet the eligibility requirements for the exemption you are applying for.
  • Do provide all required documentation, such as your driver’s license and vehicle registration.
  • Do submit your application before the deadline, which is typically April 30 for most exemptions.
  • Do notify the chief appraiser if your entitlement to an exemption ends.
  • Do keep copies of your application and all supporting documents for your records.
  • Don't leave any sections of the application blank; incomplete applications will be denied.
  • Don't assume you can skip reapplying if your circumstances change; always check for new requirements.
  • Don't ignore requests for additional information from the chief appraiser; respond within the specified time.
  • Don't submit false information; this can lead to serious penalties.
  • Don't forget to sign and date the application before submission.

Misconceptions

  • Misconception 1: You must reapply for the homestead exemption every year.
  • This is not true. If your exemption is granted, you do not need to reapply annually. However, you may need to submit a new application if requested by the chief appraiser.

  • Misconception 2: Only homeowners can apply for a homestead exemption.
  • This is misleading. Renters cannot apply, but cooperative housing residents can qualify if they have exclusive rights to occupy their unit based on ownership of stock in the cooperative.

  • Misconception 3: The deadline for filing is the same for all exemptions.
  • Deadlines vary. For general exemptions, applications must be submitted by April 30. However, different deadlines apply for those aged 65 and older or disabled individuals.

  • Misconception 4: You can submit an incomplete application.
  • This is incorrect. Incomplete applications cannot be processed. All required information and documentation must be provided for the application to be considered.

  • Misconception 5: The homestead exemption applies to any property you own.
  • This is false. The exemption only applies to your principal residence, which you must occupy as your home.

  • Misconception 6: You can receive multiple homestead exemptions on different properties.
  • This is not allowed. You and your spouse cannot claim a homestead exemption on more than one property at the same time.

  • Misconception 7: You do not need to notify the appraisal district if your situation changes.
  • This is a misunderstanding. You are required to inform the chief appraiser if you no longer qualify for the exemption.

Key takeaways

  • Understand the Purpose: The Texas Homestead Exemption form is designed to help homeowners reduce their property taxes by claiming exemptions for their primary residence.
  • Know the Deadlines: Submit your application between January 1 and April 30 for most exemptions. If you qualify for age 65 or disabled exemptions, apply by the first anniversary of your qualification date.
  • Incomplete Applications: Ensure that all required information and documentation are provided. Incomplete applications cannot be processed.
  • Notification Requirement: If your eligibility for an exemption changes, you must notify the chief appraiser promptly.
  • Document Requirements: Include a copy of your driver's license, vehicle registration, or an affidavit if you don’t own a vehicle, along with a utility bill.
  • Exemption Types: Familiarize yourself with the different exemptions available, such as the General Residence Homestead Exemption and the Disabled Veteran's Exemption.
  • New Applications: If you receive a notice from the chief appraiser, you may need to reapply to confirm your eligibility for the exemption.
  • Additional Information Requests: Be prepared to provide any additional information requested by the chief appraiser within 30 days to avoid denial of your application.