Blank Texas Ce 1020 PDF Form

Blank Texas Ce 1020 PDF Form

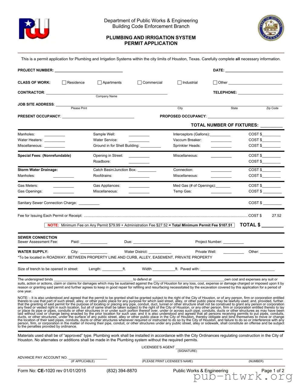
The Texas CE 1020 form is a permit application specifically for Plumbing and Irrigation Systems within Houston city limits. This form requires detailed information about the project, including the type of work, contractor details, and various costs associated with plumbing fixtures. To ensure compliance with local regulations, complete the form carefully and accurately. Ready to get started? Fill out the form by clicking the button below.

The Texas CE 1020 form serves as a crucial application for obtaining permits related to plumbing and irrigation systems within the city limits of Houston, Texas. This form requires applicants to provide detailed information about the project, including the project number, date, class of work, and contractor details. Applicants must specify the job site address, present and proposed occupancy types, and the total number of fixtures involved. The form also outlines various costs associated with different plumbing and irrigation components, such as water heaters, gas meters, and storm water drainage systems. Additionally, it includes a breakdown of fees, including minimum permit fees and costs for specific inspections. Notably, the form emphasizes the responsibility of the permit holder to defend the City of Houston against any claims arising from the permit and mandates compliance with city ordinances governing plumbing work. This comprehensive application ensures that all plumbing and irrigation projects meet regulatory standards while providing a clear structure for fee assessments and project accountability.

Document Sample

Department of Public Works & Engineering

Building Code Enforcement Branch

PLUMBING AND IRRIGATION SYSTEM

PERMIT APPLICATION

This is a permit application for Plumbing and Irrigation Systems within the city limits of Houston, Texas. Carefully complete all necessary information.

PROJECT NUMBER: _________________________________

 

 

DATE: ____________________________

CLASS OF WORK:

Residence

Apartments

Commercial

Industrial

Other __________________________

CONTRACTOR: ___________________________________________________________

 

TELEPHONE: ______________________

Company Name

JOB SITE ADDRESS: ______________________________________________________________________________________________________________

 

Please Print

 

 

 

City

State

 

Zip Code

PRESENT OCCUPANCY: ___________________________________

PROPOSED OCCUPANCY: _____________________________________

 

 

 

 

 

TOTAL NUMBER OF FIXTURES: _________

 

 

 

 

 

 

 

 

Manholes:

__________

Sample Well:

__________

 

Interceptors (Gallons):__________

COST $

_________

Water Heaters: __________

Water Service:

__________

 

Vaccum Breaker:

__________

COST $

_________

Miscellaneous: __________

Ground in for Shell Building: __________

Sprinkler Heads:

__________

COST $

_________

 

 

 

 

 

 

 

 

Special Fees: (Nonrefundable)

Opening in Street:

__________

 

Miscellaneous:

__________

COST $

_________

 

 

Roadbore:

__________

 

 

 

COST $

_________

 

 

 

 

 

 

 

Storm Water Drainage:

Catch Basin/Junction Box: _________

 

Connection:

__________

COST $

_________

Manholes:

__________

Roofdrains:

__________

 

Miscellaneous:

__________

COST $

_________

 

 

 

 

 

 

 

 

Gas Meters:

__________

Gas Appliances:

__________

 

Med Gas (# of Openings):_______

COST $

_________

Gas Openings:

__________

Miscellaneous:

__________

 

Temp Gas:

__________

COST $

_________

 

 

 

 

 

 

 

Sanitary Sewer Connection Charge: __________

 

 

 

 

COST $

_________

 

 

 

 

 

 

 

 

Fee for Issuing Each Permit or Receipt:

 

 

 

 

COST $

27.52

NOTE: Minimum Fee on Any Permit $79.99 + Administration Fee $27.52 = Total Minimum Permit Fee $107.51

TOTAL $ ________

SEWER CONNECTION

 

 

 

 

 

Sewer Assessment Fee:

Paid: _____________

Due: __________________

Project Number: __________

 

 

 

 

WATER SUPPLY:

City: _____________

Water District: ___________

Private Well: __________ Other: ___________

*To be located in ROADWAY, BETWEEN PROPERTY LINE AND CURB, ALLEY, EASEMENT, PRIVATE PROPERTY

 

 

 

Size of trench to be opened in street:

Length: __________ft.

Width ___________ft. Paved with: ____________________________________

The undersigned binds _________________________________________to defend at _____________________________________own cost and expenses any suit or

suits, action or actions, claim or claims for damages which may be sustained against the City of Houston for any loss, cost, expense or damage charged or imposed upon it by reason or granting said permit and further agrees to keep in good repair for refilling and resurfacing necessitated by the excavation covered by this application for a period of one year.

NOTE: - It is also understood and agreed that the permit to be granted shall be granted subject to the right of the City of Houston, or of any person, firm or corporation entitled thereto to use that part of such street, alley, or other public place for any purpose for which said street, alley, or other public place may be lawfully used; and, provided, further. that the granting of said permit for the purpose of locating or placing any pipe, conduit, duct, tunnel or other structure shall not be construed to grant any person or corporation any fixed or vested right in such location, but all of same shall be taken subject to the right of the City of Houston, or any other person, firm or corporation entitled thereto to lay or place its pipe or pipes, conduits or other structures in or under such portion thereof over, under or across such pipe, conduits, ducts or other structures as may have been laid without cost or change being enacted by the prior location for such use; and it is also understood and agreed that all persons receiving permits to put pipes, conduits, ducts, or other structures, under the surface of any public street, alley or other public place in the City of Houston, thereby obligate and bind themselves to move or change the location of their said pipes, conduits, ducts or other structures whenever required or instructed to do so by the City of Houston, and failure to do so or interference with any person, firm, or corporation in the matter of moving their pipe, conduit, or other structures under any public street, alley or sidewalk, shall constitute an offense and be subject to the penalties provided by ordinance.

Materials used shall be of “approved” type. Plumbing work shall be installed in accordance with the City Ordinances regulating construction in the City of Houston. No alternates or additions shall be made in the Plumbing system without the required permits.

LICENSEE’S AGENT ________________________________________________________

(SIGNATURE)

ADVANCE PAY ACCOUNT NO. ____________________

_________________________________________________________________________

(IF APPLICABLE)

(PLEASE PRINT LICENSEE’S NAME)

(NUMBER)

Form No: CE-1020 rev 01/01/2015

(832) 394-8870

Public Works & Engineering

Page 1 of 2

MINIMUM FEES:

(a) Following is a schedule of fees required for permits issued under Sec. 117 of the Building

 

 

 

...........................................................................................................................................................................................................................

$

27.52

 

Minimum Fee (Any Permit)

$

79.99

 

Re-Inspection Fee

$

77.06

FIXTURES:

Plumbing Fixture, first three

$

28.07

 

Each Additional to be installed under same permit

$

9.35

 

Ground in plumbing for Shell Building, 3000 sq.ft. floor area or less

$

38.53

 

Thereafter, per 1000 sq. ft

$

17.61

GAS PERMIT:

Gas Permit and Inspection Fee (1 to 4 openings)

$

37.33

 

Additional Gas Openings (each)

$

6.40

 

Temporary Gas Inspection

$

74.65

MEDICAL GAS PERMIT:

First 10 openings

$

33.01

 

Each Gas Opening

$

5.50

CENTRAL HEATING

 

 

 

GAS APPLIANCES:

Furnace (non duct type)

$

28.07

 

Each additional furnace to be installed in same building under the same permit

$

9.35

 

Floor Furnace (not duct type)

$

38.53

 

Incinerators (gas fired) (complete with 3 burners or more)

$

66.05

 

Infra-red Heaters (first two)

$

28.07

 

Each additional infra-red heater to be installed under same permit

$

9.35

 

Yard lights or barbecue grills

 

 

 

One (1)

$

28.07

 

Each additional to be installed under same permit

$

9.35

PERMANENT

 

 

 

APPLIANCES

Wall Heaters (bathroom heaters exempt)

$

28.07

 

Each additional to be installed under same permit

$

9.35

 

Gas Steam Radiators

$

38.53

 

Each additional to be installed under same permit

$

9.35

 

Commercial Ovens

$

44.03

 

Commercial Dryers

$

38.53

 

Warm Air Circulators, first three

$

38.53

 

Each additional to be installed under same permit

$

9.35

SANITARY SEWER

Sewer Connection

$

44.03

 

Investigation Fee

$273.36 or

MISCELLANEOUS

 

double fee whichever is greater

 

Inspections outside regular working hours

 

 

 

Minimum four (4) hours

$

264.22

 

Each hour exceeding four (4) hours

$

68.80

DISCONNECT

Sanitary Sewer (disconnect and plug main sewer connection)

$

77.06

 

Septic System (disconnect and fill septic tank, grease trap)

$

77.06

STORM SEWER

Tie to curb inlet-storm sewer

$

71.55

 

Manholes

$

71.55

 

Catch basin, outside area drain or junction box (first two)

$

28.07

 

Each additional to be installed under same permit

$

9.35

 

Roof drain or outside downspout connection to drainage system (first two)

$

28.07

 

Each additional roof drain or downspout to be installed under same permit

$

9.35

TANKS

Tanks (not septic tanks) a permit separate from a permit for other plumbing work required

 

 

 

Tanks through 1,000 gallon capacity (including mechanical interceptors)

$

77.06

 

1,001 thru 6,000 gallons

$

93.57

 

6,001 thru 15,000 gallons

$

115.60

 

15,001 thru 30,000 gallons

$

165.13

 

Over 30,000 gallons

$

187.16

IRRIGATION SYSTEM

1 to 200 heads, per head

$

1.60

 

Each additional head

$

1.07

Form No: CE-1020 rev 01/01/2015

(832) 394-8870

Public Works & Engineering

Page 2 of 2

File Specifics

Fact Name Details
Purpose The Texas CE 1020 form is used to apply for permits related to plumbing and irrigation systems within Houston city limits.
Governing Law This form is governed by the City of Houston's plumbing ordinances and regulations.
Minimum Fees The minimum fee for any permit is $107.51, which includes an administration fee.
Contact Information For inquiries, applicants can reach the Public Works & Engineering department at (832) 394-8870.
Occupancy Types Applicants must specify the type of occupancy, including residential, commercial, or industrial.
Project Number A unique project number is required to track the application and associated fees.
Fixture Count The form requires the total number of plumbing fixtures, including specific types like water heaters and gas meters.
Inspection Fees Inspection fees vary based on the type of work and may include charges for after-hours inspections.
Liability Clause Applicants agree to defend the City of Houston against claims related to the permit and maintain the site for one year.
Expiration Date The form was last revised on January 1, 2015, and may be subject to updates by the city.

How to Use Texas Ce 1020

Filling out the Texas CE 1020 form is essential for obtaining a plumbing and irrigation systems permit in Houston. The process requires careful attention to detail to ensure all necessary information is provided accurately. After completing the form, you will submit it to the appropriate city department for review and processing.

  1. Begin by entering the Project Number and Date at the top of the form.
  2. Select the Class of Work by checking the appropriate box: Residence, Apartments, Commercial, Industrial, or Other.
  3. Fill in the Contractor's Name and Telephone Number.
  4. Provide the Job Site Address, including City, State, and Zip Code.
  5. Indicate the Present Occupancy and Proposed Occupancy.
  6. List the Total Number of Fixtures and specify quantities for Manholes, Sample Wells, Interceptors, and Water Heaters, along with associated costs.
  7. Detail the costs for Miscellaneous items, Ground in for Shell Building, and Sprinkler Heads.
  8. Complete the Storm Water Drainage section, including details for Catch Basins, Junction Boxes, and Roof Drains.
  9. Fill out the Gas Meters and Gas Appliances sections, noting the number of openings and costs.
  10. Include the Sanitary Sewer Connection Charge and the Fee for Issuing Each Permit or Receipt.
  11. Provide information for the Sewer Assessment Fee and the Water Supply source.
  12. Specify the size of the trench to be opened in the street, including Length and Width.
  13. Sign the form as the Licensee’s Agent and print the Licensee's name and number if applicable.

Your Questions, Answered

What is the Texas CE 1020 form used for?

The Texas CE 1020 form is a permit application specifically designed for plumbing and irrigation systems within the city limits of Houston, Texas. This form must be filled out completely to ensure compliance with local regulations. It collects essential information about the project, including the class of work, contractor details, job site address, and the proposed and present occupancy types.

What information is required on the form?

Applicants must provide various details when completing the Texas CE 1020 form, including:

  1. Project number and date of application.
  2. Class of work (residential, commercial, industrial, etc.).
  3. Contractor's name and contact information.
  4. Job site address, including city, state, and zip code.
  5. Present and proposed occupancy types.
  6. Total number of fixtures and associated costs.
  7. Water supply details and sewer connection charges.

Completing all sections accurately is crucial for the processing of the permit.

What are the fees associated with the Texas CE 1020 form?

Several fees apply when submitting the Texas CE 1020 form. The minimum fee for any permit is $79.99, along with an administration fee of $27.52, totaling a minimum permit fee of $107.51. Additional costs may arise based on the specific plumbing and irrigation work being performed, including:

  • Inspection fees for gas and plumbing permits.
  • Charges for additional fixtures installed under the same permit.
  • Fees for sewer connections and other miscellaneous services.

It is essential to review the fee schedule included with the form to understand all potential costs.

How long is the permit valid once issued?

The validity period of the permit is not explicitly stated in the form. However, it is generally understood that permits must be acted upon within a reasonable time frame, often within a year. It is advisable to check with the local authorities for specific timelines related to the Texas CE 1020 form and any required inspections or renewals.

What happens if I do not comply with the permit requirements?

Failure to comply with the requirements outlined in the Texas CE 1020 form can lead to several consequences. Non-compliance may result in penalties, including fines or the revocation of the permit. Additionally, any work done without the proper permits may need to be removed or corrected at the applicant's expense. It is crucial to adhere to all local regulations to avoid these issues.

Common mistakes

  1. Incomplete Information: Failing to fill out all required fields can lead to delays. Ensure that every section, including the project number, date, and class of work, is complete.

  2. Incorrect Occupancy Details: Misidentifying the present and proposed occupancy can result in permit rejection. Double-check these entries for accuracy.

  3. Missing Contact Information: Not providing a valid contractor name and telephone number can cause communication issues. Always include complete and accurate contact details.

  4. Cost Calculation Errors: Mistakes in calculating the total costs can lead to underpayment or overpayment. Review all costs thoroughly, including special fees and minimum fees.

  5. Omitting Signature: Forgetting to sign the application can halt the process. Make sure to sign and date the form before submission.

  6. Neglecting Additional Permits: If your project requires extra permits, failing to request them can result in penalties. Check for any additional permits needed for your specific situation.

Documents used along the form

When applying for a plumbing and irrigation system permit in Houston, Texas, the Texas CE 1020 form is essential. However, there are several other forms and documents that may accompany this application to ensure compliance with local regulations and facilitate the permitting process. Below is a list of commonly used forms that may be required or helpful in conjunction with the Texas CE 1020 form.

  • Permit Application for Gas Systems: This document is specifically for obtaining permits related to gas installations. It includes details about the type and number of gas openings, as well as applicable fees.
  • Stormwater Management Plan: This plan outlines how stormwater will be managed on a construction site. It is essential for compliance with environmental regulations and helps prevent flooding and pollution.
  • Site Plan: A detailed drawing that shows the layout of the property, including the location of buildings, utilities, and any proposed changes. This document is crucial for understanding how the project will fit within its surroundings.
  • Construction Drawings: These are detailed plans that provide specifications for the plumbing and irrigation systems. They must comply with city codes and regulations.
  • Environmental Impact Assessment: If the project could significantly affect the environment, this assessment evaluates potential impacts and outlines mitigation strategies.
  • Contractor’s License: A copy of the contractor’s license is often required to ensure that the individual or company performing the work is qualified and legally authorized to do so.
  • Insurance Certificates: Proof of insurance coverage, including liability and workers' compensation, is typically required to protect against potential claims arising from the construction work.
  • Notification of Neighbors: In some cases, notifying adjacent property owners about the planned work is necessary. This document serves as proof that the notification has been completed.
  • Inspection Request Form: This form is used to schedule inspections during various phases of the plumbing and irrigation installation. Inspections ensure compliance with safety and building codes.
  • Fee Payment Receipt: A receipt showing that all applicable fees have been paid is often required as part of the permit application process.

Each of these documents plays a vital role in the overall permitting process, helping to ensure that projects are completed safely, legally, and in accordance with local regulations. It is advisable to review all requirements thoroughly and prepare the necessary paperwork ahead of time to avoid delays in obtaining the required permits.

Similar forms

The Texas CE 1020 form, used for plumbing and irrigation system permit applications, shares similarities with the building permit application form. Both documents are essential for securing the necessary approvals before commencing construction or installation work. They require detailed information about the project, including the type of work, location, and contractor details. Just like the CE 1020, a building permit application often includes a fee structure, ensuring that applicants are aware of the financial obligations tied to their project. Both forms serve to protect public safety by ensuring that work complies with local codes and regulations.

Another document akin to the CE 1020 is the electrical permit application. This form is required when individuals or companies plan to install or modify electrical systems. Similar to the plumbing application, the electrical permit form necessitates specific project details, including the scope of work and estimated costs. Both documents aim to uphold safety standards by requiring inspections and adherence to local codes, ensuring that installations are performed correctly and safely.

The mechanical permit application is also similar to the Texas CE 1020 form. This document is necessary for any work involving heating, ventilation, or air conditioning systems. Like the plumbing permit, it requires comprehensive project information and outlines the associated fees. Both forms are designed to ensure that installations meet safety and efficiency standards, protecting both the property and its occupants.

A fire sprinkler permit application shares commonalities with the CE 1020 form as well. This permit is crucial for the installation of fire suppression systems in buildings. Both forms demand detailed project descriptions, including the number of fixtures and their locations. They also require compliance with local fire codes and regulations, reinforcing the importance of safety in construction and renovation projects.

The excavation permit application is another document that resembles the Texas CE 1020 form. This permit is needed when digging or altering the ground for construction purposes. Like the plumbing permit application, it requires information about the project location, scope of work, and potential impact on public infrastructure. Both forms aim to ensure that excavations are conducted safely and responsibly, minimizing risks to surrounding areas.

The sewer connection permit application is closely related to the CE 1020 form as well. This document is required for connecting a property to the municipal sewer system. It shares similarities in its need for project details, including the type of work being performed and the associated costs. Both forms are vital for maintaining public health and environmental standards, ensuring that sewer connections are completed correctly and in compliance with local regulations.

The water meter installation permit is another document that parallels the CE 1020 form. This permit is necessary when a new water meter is being installed or an existing one is being replaced. Just like the plumbing permit application, it requires specific project information and outlines the associated fees. Both forms help ensure that water supply systems are installed correctly, safeguarding public health and ensuring efficient service delivery.

Lastly, the landscaping permit application has similarities with the Texas CE 1020 form. While it focuses on outdoor projects, it still requires detailed information about the scope of work, including the types of plants and irrigation systems being installed. Both forms emphasize compliance with local regulations and codes, ensuring that landscaping projects do not negatively impact the environment or surrounding properties.

Dos and Don'ts

When filling out the Texas CE 1020 form, it is essential to ensure accuracy and completeness. Here are some important dos and don'ts to guide you through the process:

  • Do read the entire form carefully before starting.
  • Do provide all required information, including project number and job site address.
  • Do check your contact information for accuracy, including the contractor's telephone number.
  • Do specify the class of work clearly, whether it’s residential, commercial, or another category.
  • Do calculate the total costs accurately and ensure all fees are included.
  • Don't leave any sections blank; incomplete forms may delay processing.
  • Don't forget to sign the form; an unsigned application may be rejected.
  • Don't use abbreviations or unclear terms that could lead to confusion.
  • Don't submit the form without double-checking for errors or omissions.

By following these guidelines, you can help ensure a smoother application process. Taking your time to fill out the form accurately will save you from potential issues down the line.

Misconceptions

When dealing with the Texas CE 1020 form, there are several misconceptions that can lead to confusion or errors during the application process. Here are four common misunderstandings:

  • Misconception 1: The CE 1020 form is only for residential projects. Many people believe that this form is exclusively for residential plumbing and irrigation projects. In reality, it is applicable to a variety of settings, including commercial and industrial projects. Anyone planning plumbing work in Houston, regardless of the type of occupancy, needs to use this form.
  • Misconception 2: The permit fee is a flat rate. Some applicants assume that there is a single fee for all permits. However, the cost varies based on the specifics of the project, such as the number of fixtures or the type of work being done. Understanding the fee structure is crucial to avoid unexpected costs.
  • Misconception 3: Once the permit is issued, no further action is required. It’s a common belief that obtaining a permit means the project can proceed without any further oversight. In truth, the permit holder must adhere to specific regulations and may be required to move or adjust installations if directed by the City of Houston. Ignoring these obligations can lead to penalties.
  • Misconception 4: The CE 1020 form can be submitted without complete information. Some applicants think they can submit the form with incomplete information and fill in the details later. This is not the case. The form must be thoroughly completed to be accepted. Incomplete submissions can result in delays or rejections, prolonging the permitting process.

Understanding these misconceptions can help ensure a smoother application process for plumbing and irrigation permits in Houston.

Key takeaways

Filling out the Texas CE 1020 form is an essential step for anyone looking to apply for a plumbing and irrigation system permit within Houston. Here are some key takeaways to consider:

  • Project Number: Always include a project number to help track your application.
  • Date: Fill in the date of application to establish a timeline for processing.
  • Class of Work: Clearly indicate whether the project is for a residence, apartment, commercial, industrial, or other type of occupancy.
  • Contractor Information: Provide accurate contractor details, including name and telephone number, to facilitate communication.
  • Job Site Address: Ensure the job site address is complete and correct to avoid any delays in processing.
  • Occupancy Types: Specify both the present and proposed occupancy types to clarify the purpose of the permit.
  • Total Number of Fixtures: List all fixtures accurately, as this will affect the permit fee and approval process.
  • Cost Breakdown: Include a detailed cost breakdown for all components, as this is crucial for fee assessment.
  • Minimum Fees: Be aware of the minimum fees for permits, which can affect your budget and planning.
  • Signature Requirement: The form must be signed by the licensee’s agent, confirming responsibility for the work.

Completing the Texas CE 1020 form accurately ensures a smoother application process. Each section plays a vital role in the approval of your plumbing and irrigation system permit. Take your time to review the form before submission to avoid unnecessary delays.