Blank Texas Ap 180 PDF Form

Blank Texas Ap 180 PDF Form

The Texas AP-180 form is a request for approval of a reduced tax rate for high-cost gas wells certified by the Texas Railroad Commission. Producers seeking this tax reduction must complete the form and submit it along with required documentation. To get started, fill out the form by clicking the button below.

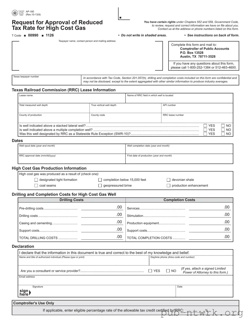
The Texas AP-180 form serves as a critical tool for producers seeking a reduced tax rate for high cost gas wells, as certified by the Texas Railroad Commission (RRC). This form requires detailed information, including taxpayer identification, contact details, and specifics about the well, such as its depth and production history. Producers must indicate whether the well is a stacked lateral or multiple completion well and provide a letter of certification from the RRC when submitting the form. Additionally, the AP-180 outlines the necessary drilling and completion costs associated with high cost gas production, which are essential for determining eligibility for tax reductions. The form also includes a declaration section, where an authorized individual must affirm the accuracy of the information provided. Timeliness is crucial; producers must adhere to specific filing deadlines to avoid penalties and ensure they receive the appropriate tax credits. The AP-180 form is not just a bureaucratic requirement; it plays a significant role in the financial landscape of gas production in Texas, impacting both producers' operations and the state's revenue collection.

Document Sample

AP-180 (Rev.10-13/8)

Request for Approval of Reduced Tax Rate for High Cost Gas

T Code 00990 1126

Taxpayer name, contact person and mailing address

You have certain rights under Chapters 552 and 559, Government Code, to review, request and correct information we have on file about you.

Contact us at the address or phone numbers listed on this form.

• Do not write in shaded areas.

• See instructions on back of form.

Complete this form and mail to:

Comptroller of Public Accounts

P.O. Box 13528

Austin, TX 78711-3528

If you have any questions about this form, please call 1-800-252-1384 or 512-463-4600.

Texas taxpayer number

In accordance with Tax Code, Section 201.057(h), drilling and completion costs included on this form are confidential and

 

 

may not be disclosed, except to the extent aggregated with other similar information to produce industry averages.

 

 

Texas Railroad Commission (RRC) Lease Information

Lease name

Name of RRC field in which well is located

Total measured well depth

True vertical well depth

API number

County of production

County code

RRC lease number

Is well indicated above a stacked lateral well?............................................................................................................................

Is well indicated above a multiple completion well? ....................................................................................................................

Was this well designated by RRC as a Statewide Rule Exception (SWR-10)?...........................................................................

YES YES YES

NO NO NO

Dates

Well spud date (year and month)

Well completion date (year and month)

RRC approval date (mm/dd/yyyy)

First date of production (year and month)

High Cost Gas Production Information

High cost gas was produced as a result of (check one):

designated tight formation

coal seams

completion below 15,000 feet

geopressured brine

devonian shale

production enhancement

Drilling and Completion Costs for High Cost Gas Well

Drilling Costs

Completion Costs

Pre-drilling costs

.00

Services

.00

_______________________

_______________________

Drilling costs

.00

Stimulation

.00

_______________________

_______________________

Casing and cementing

.00

Production equipment

.00

_______________________

_______________________

Support costs

.00

Support costs

.00

_______________________

_______________________

TOTAL DRILLING COSTS

.00

TOTAL COMPLETION COSTS

.00

_______________________

_______________________

Declaration

I declare that the information in this document is true and correct to the best of my knowledge and belief.

Name and title of authorized individual (Please type or print)

Daytime phone (Area code and number)

Are you a consultant or service provider?..............................................................

YES

NO

(If yes, attach a signed Limited

Power of Attorney to this form.)

 

Email address

Signature

Date

Comptroller's Use Only

If applicable, enter eligible percentage rate of the allowable tax credit certified by RRC:

 

%

Form AP-180 (Back)(Rev.10-13/8)

General Information

Who Files: Form AP-180 must be filed by any producer seeking a reduced tax rate for gas on gas wells certified as high cost gas wells by the Texas Railroad Commission (RRC). A Limited Power of Attorney must be included with a completed Form AP-180 whenever a consultant and/or service provider files Form AP-180 on behalf of a taxpayer.

What is Needed: A copy of a letter of certification from the Texas Railroad Commission must accompany each completed Form AP-180.

When to File: To recoup credits for previously paid tax on approved reduced tax rates for high cost gas leases, the information filed on credit-amended reports must meet all of the following criteria:

Four-Year Statute of Limitation: Credit-amended reports must be filed within four years from the due date of a production period.

Ten Percent Penalty: Form AP-180 must be filed at the later of the 180th day after the date of first production or the 45th day after the date of approval by the commission. If Form AP-180 is not filed by the applicable deadline, the tax exemption or tax deduction is reduced by 10 percent for the period beginning on the 180th day after the first day of production and ending on the date on which Form AP-180 is filed with the Comptroller.

One-Year Window Requirement: Credit-amended reports containing approved exempt high cost gas wells which have production periods that are prior to the Comptroller’s signature date must be filed by the first anniversary from the Comptroller’s signature date.

Two-Year Window Requirement: If the application for certification is submitted to the Texas Railroad Commission after Jan. 1, 2004, the total allowable credit for taxes paid for reporting periods before the date the application is filed may not exceed the total tax paid on the gas that otherwise qualified for the exemption or tax reduction and that was produced during the 24 consecutive calendar months immediately preceding the month in which the application for certification was filed with the Texas Railroad Commission.

End Date of Exemption: The end date of an approved exempt high cost gas well is determined by either the earliest of 120 months from the date of first production or when the cumulative value of the tax savings equal to 50 percent of the total drilling and completion costs, whichever situation occurs first.

How to File Reports: An amended report is required to claim a credit for tax previously paid on an approved reduced tax rate for high cost gas leases. On natural gas producer and purchaser tax reports, report approved high cost gas leases as “Type 05” with the actual RRC lease number. Scenarios requiring an amended report are as follows:

If the actual RRC lease number was previously reported as “Type 02”, credit out volumes and values reported and rebook volumes and values as “Type 05”.

If no lease data was previously reported, report volumes and values as “Type 05” with the actual RRC lease number.

If a drilling permit number was previously reported as “Type 02” and the corresponding lease is later approved for the reduced tax rate, credit out volumes and values and rebook as “Type 05” with the actual RRC lease number. Do not report a drilling permit number when initially reporting a “Type 05” lease.

Comptroller’s Website: Detailed Information on approved reduced tax rate for high cost gas leases is available at: http://window.state.tx.us/taxinfo/nat_gas/index.html. Click on the link labeled “CONG WEB Inquiry.”

Drilling Costs to be Included by Category

Predrilling - Damage payments to surface owner and any petroleum engineering or geoscience costs associated with the well location are not to be included. All costs related to surveying, permitting, constructing roads to well sites, including fences and gates, costs to build pad, cellar, concrete pad, rat and mouse holes, conductor hole and pipe, drilling pit and liner and the cost of any water well. Costs of any environmental surveys performed including any monitoring wells drilled at or near the wellsite and the preparation of environmental impact study that may be required and any necessary remediation.

Drilling - Day rates or footage costs including general costs associated with normal rig operations. Include rig mobilization, rig positioning and rig demobiliza- tion charges where applicable. All costs for fuel and power, mud and chemical materials used to drill and condition the hole and/or restore and maintain circulation and chemical materials such as weighting materials, lost circulation materials, crude oil, diesel oil or mineral oil used in the circulating system. Also, if applicable, include the cost for air or gas compression if used for drilling. Cost of drill bits used to drill the well from conductor to total depth including the cost of any diamond drilling bits that are used. Labor, material transportation, services, standby time, tool rentals for setting whipstocks, milling casing windows, setting casing whipstocks, cement plugs for directional drilling, any special bottomhole assemblies or equipment such as Dynadrills, Turbodrills, measurement while drilling assemblies and costs, jet deflecting stabilizers, reamers, hole openers and any other items that affect or influence the directional tendencies of a wellbore. Labor, material and services for mud logging and any drill stem testing during drilling operations. Include test analysis costs where applicable. Open-hole logging costs including wireline formation tests and inclination and directional survey costs. Costs required to cut and recover cores, including sidewall cores and core analysis. Costs of rental tools and equipment including BOP’s, drill pipe, drill, collars and bottomhole assemblies, mud motors, shale shakers, degassers, desanders, desilters and centrifuges.

Casing and Cementing - Cost of casing, float shoes, float collars, and centralizers used in any portion of the casing program including any liners and liner hangers. Cost of cement, additives and pumping charges for the cement and costs for all plugs.

Support Costs - Costs associated with hauling water, casing or rental equipment to the well site. Costs for special equipment testing. Costs for roustabout crews. Costs of direct supervision of drilling operations.

Completion Costs to be Included by Category

Services - Rig used in completion operations. If the drilling rig is used for the completion operations, the costs must be separated. All wireline operations performed in the cased hole, including logging, perforating and setting tools on wireline. Costs of any fluids used in the wellbore (except fluids used during stimulation) during well operations from the time production casing is cemented until the well is turned to sales. Costs related to testing pay intervals that cannot be attributed to any other category. Costs for site restoration and for any remediation associated with the completion operations.

Well Stimulation - All costs associated with stimulating the pay interval. This includes acidizing and hydraulic fracturing charges as well as equipment costs that are specifically related to stimulation operations such as frac tanks. It includes the cost of coil tubing units and operations if used.

Production Equipment - The production tubing string, packers, bridgeplugs, tubing anchors and gravel packing. Any equipment installed on the wellhead including the wellhead itself. All equipment costs associated with gas lift or rod pumping equipment, including both down hole and surface equipment. Also included in this category are plunger lift and cavity displacement pumps and associated equipment. All equipment from the wing valve to the sales meter that is required to produce the well. This includes production, storage and separation equipment, meters, flowlines, chemical pumps and any location costs such as gates, roads and fences associated with the lease equipment. Drilling and Completion Costs does not include any costs incurred after the outlet of a lease separator or that would otherwise be considered a marketing cost for severance tax purposes.

Support Costs - Costs to transport materials and equipment to the well site that are not specifically chargeable to other more specific operations. This category includes hauling casing or tubing to location, but would not include the cost to haul water for a fracture stimulation. Rental equipment used to complete the well. Costs of roustabout crews used during and after drilling operations have ceased. Costs of direct supervision of completion operations.

File Specifics

Fact Name Details
Form Purpose The Texas AP-180 form is used to request a reduced tax rate for gas wells certified as high cost gas wells by the Texas Railroad Commission.
Who Files Any producer seeking a reduced tax rate must file this form. Consultants or service providers must include a Limited Power of Attorney.
Governing Law This form is governed by the Texas Tax Code, specifically Section 201.057(h).
Filing Deadline Form AP-180 must be filed no later than 180 days after the first production date or 45 days after RRC approval.
Confidentiality Drilling and completion costs reported on this form are confidential and cannot be disclosed, except in aggregated form.
Required Documentation A letter of certification from the Texas Railroad Commission must accompany each completed Form AP-180.

How to Use Texas Ap 180

Completing the Texas AP-180 form requires careful attention to detail. This form is essential for producers seeking a reduced tax rate for high-cost gas wells certified by the Texas Railroad Commission (RRC). Ensure that all information is accurate and complete before submission to avoid delays or issues.

  1. Obtain the Form: Download the Texas AP-180 form from the Texas Comptroller's website or request a physical copy.
  2. Fill in Taxpayer Information: Enter your name, contact person, and mailing address in the designated sections. Ensure that all details are accurate.
  3. Provide Texas Taxpayer Number: Enter your Texas taxpayer number as required.
  4. Complete Lease Information: Fill in the lease name, RRC field name, total measured well depth, true vertical well depth, API number, county of production, county code, and RRC lease number.
  5. Indicate Well Type: Answer the questions regarding whether the well is a stacked lateral well, a multiple completion well, or designated as a Statewide Rule Exception (SWR-10) by marking 'YES' or 'NO' as appropriate.
  6. Enter Dates: Provide the well spud date, completion date, RRC approval date, and first date of production in the specified format.
  7. Select High Cost Gas Production Information: Check the box that corresponds to the reason high-cost gas was produced.
  8. Detail Drilling and Completion Costs: Fill in the costs for pre-drilling, drilling, casing and cementing, completion services, stimulation, production equipment, and support costs in the designated sections. Ensure totals are calculated accurately.
  9. Declaration: Type or print the name and title of the authorized individual, daytime phone number, and email address. Indicate if you are a consultant or service provider by marking 'YES' or 'NO'. If applicable, attach a signed Limited Power of Attorney.
  10. Signature and Date: Sign and date the form in the designated area.
  11. Mail the Form: Send the completed form to the Comptroller of Public Accounts at the address provided.

After submitting the AP-180 form, it will be processed by the Texas Comptroller's office. If any additional information or documentation is needed, you may be contacted. Keep a copy of the completed form for your records and monitor for any correspondence regarding your submission.

Your Questions, Answered

What is the Texas AP-180 form used for?

The Texas AP-180 form is a request for approval of a reduced tax rate for gas produced from high cost gas wells. These wells must be certified by the Texas Railroad Commission (RRC) as high cost gas wells. This form allows producers to recoup credits for previously paid taxes on approved reduced tax rates.

Who needs to file the AP-180 form?

Any producer who seeks a reduced tax rate for gas from wells certified as high cost gas wells by the RRC must file the AP-180 form. If a consultant or service provider is filing on behalf of a taxpayer, a Limited Power of Attorney must be attached to the form.

What information is required to complete the AP-180 form?

To complete the AP-180 form, you will need to provide:

  • Your taxpayer name and contact information.
  • Details about the well, including its name, API number, and location.
  • Drilling and completion costs associated with the well.
  • A copy of the letter of certification from the Texas Railroad Commission.

When should the AP-180 form be filed?

The AP-180 form should be filed within specific timeframes to avoid penalties. Generally, it must be filed:

  1. Within four years from the due date of a production period for credit-amended reports.
  2. By the 180th day after the first production date or the 45th day after RRC approval, whichever is later.
  3. By the first anniversary of the Comptroller’s signature date for prior production periods.

What happens if I miss the filing deadline?

If you miss the filing deadline, the tax exemption or deduction may be reduced by 10 percent for the period starting from the 180th day after the first production date until the AP-180 form is filed. Timely submission is crucial to maximize your benefits.

What are the costs that can be included on the AP-180 form?

Costs that can be included on the AP-180 form fall into several categories, such as:

  • Drilling costs, including rig operations, labor, and materials.
  • Completion costs, including services, production equipment, and well stimulation.
  • Support costs associated with hauling materials and equipment to the well site.

However, costs incurred after the outlet of a lease separator or marketing costs are not included.

Where can I find more information about the AP-180 form?

For more detailed information about the AP-180 form and the reduced tax rate for high cost gas leases, you can visit the Texas Comptroller's website at http://window.state.tx.us/taxinfo/nat_gas/index.html . Look for the link labeled "CONG WEB Inquiry" for additional resources.

Common mistakes

  1. Incomplete Information: One common mistake is failing to provide all necessary details. Each section of the AP-180 form requires specific information, such as the taxpayer's name, contact details, and well specifics. Omitting any of these can delay processing or result in outright rejection.

  2. Incorrect Dates: Entering incorrect dates can lead to significant issues. Dates such as the well spud date, completion date, and RRC approval date must be accurate. If any of these dates are wrong, it could affect eligibility for tax credits.

  3. Failure to Attach Required Documents: Not including the necessary documentation, like the letter of certification from the Texas Railroad Commission, is another frequent error. This letter is crucial for validating the high-cost gas well status and must accompany the form.

  4. Ignoring Shaded Areas: Some individuals mistakenly write in shaded areas of the form. These sections are specifically marked to indicate that they should remain blank. Writing in these areas can lead to confusion and complications in processing.

  5. Missing Signatures: Lastly, failing to sign the form can result in rejection. The declaration section must be signed by an authorized individual, affirming that the information provided is accurate and complete. Without this signature, the form is not valid.

Documents used along the form

When filing the Texas AP-180 form, several other documents and forms may also be required or beneficial to ensure a smooth process. Each of these documents serves a specific purpose and helps provide the necessary information to the authorities involved. Below is a list of commonly used forms and documents that accompany the AP-180 form.

  • Limited Power of Attorney: This document is necessary when a consultant or service provider files the AP-180 form on behalf of a taxpayer. It authorizes the consultant to act on the taxpayer's behalf in matters related to the filing.
  • Letter of Certification from the Texas Railroad Commission (RRC): A crucial document that certifies the well as a high-cost gas well. This letter must accompany the AP-180 form to validate the request for a reduced tax rate.
  • Amended Tax Reports: These reports are required to claim credits for taxes previously paid on approved reduced tax rates. They should detail the actual RRC lease number and the type of gas well.
  • Drilling Permit Application: This application must be filed with the RRC before drilling begins. It provides essential information about the proposed well and is often referenced in the AP-180 form.
  • Production Reports: These reports document the production levels of gas from the well. They are important for calculating potential tax credits and must be accurate and up-to-date.
  • Environmental Impact Studies: If required, these studies assess the environmental effects of drilling and production activities. They may be necessary for compliance with state regulations.
  • Cost Breakdown Worksheets: These worksheets itemize the drilling and completion costs associated with the high-cost gas well. They help in justifying the expenses claimed in the AP-180 form.
  • Well Completion Reports: These reports provide details about the completion of the well, including any stimulation techniques used. They are essential for verifying the production methods employed.
  • Taxpayer Identification Documentation: This includes any documents that verify the taxpayer's identity and status, which may be necessary for processing the AP-180 form.
  • Correspondence with the RRC: Any communication or correspondence with the Texas Railroad Commission regarding the well should be documented and may need to be submitted alongside the AP-180 form.

Having these documents prepared and organized can significantly expedite the process of filing the Texas AP-180 form. It is essential to ensure that all required information is accurate and complete to avoid delays or complications in receiving the tax benefits associated with high-cost gas wells.

Similar forms

The Texas AP-180 form is similar to the IRS Form 4506-T, which is used to request a transcript of tax returns. Both forms require accurate identification of the individual or entity submitting the request. In each case, the information provided is used to verify tax-related details. The AP-180 focuses on reduced tax rates for high-cost gas, while Form 4506-T pertains to general tax return information. Both forms are essential for ensuring compliance with tax regulations and facilitating tax-related processes.

Another document similar to the AP-180 is the Texas Franchise Tax Report. This report is filed by businesses operating in Texas to determine their franchise tax liability. Like the AP-180, it requires detailed financial information and is tied to specific criteria set forth by the state. Both documents serve as a means for taxpayers to report relevant information to the state, ensuring proper tax assessment and compliance.

The Texas Application for a Sales and Use Tax Permit bears similarities to the AP-180 as well. This application is necessary for businesses that intend to sell taxable goods or services in Texas. Both forms require the applicant to provide identifying information and details about their operations. The purpose of each document is to facilitate the proper collection of taxes, ensuring that the appropriate rates are applied based on the nature of the business or service provided.

Form 1099-MISC is another document that shares characteristics with the AP-180. This IRS form is used to report various types of income other than wages, salaries, and tips. Both forms require accurate reporting of financial information. While the AP-180 focuses on tax rates for high-cost gas, the 1099-MISC is more general in nature, covering a range of income types. Each form plays a role in ensuring that tax obligations are met.

The Texas Oil and Gas Tax Report is akin to the AP-180 in that it specifically addresses tax obligations related to oil and gas production. This report includes information about production volumes and revenues, similar to how the AP-180 requires details about drilling and completion costs. Both documents are vital for ensuring that producers comply with state tax laws and accurately report their financial activities.

The IRS Form 8832, which allows entities to elect their tax classification, is another comparable document. Both forms require detailed information about the entity involved and its operations. The AP-180 focuses on tax rate reductions for high-cost gas, while Form 8832 pertains to how an entity is taxed. Each form serves to clarify tax responsibilities and ensure compliance with relevant regulations.

The Texas Property Tax Exemption Application is similar to the AP-180 in that it seeks to reduce tax liabilities based on specific criteria. Both forms require the applicant to provide detailed information about the property or service in question. The AP-180 addresses high-cost gas wells, while the property tax exemption application pertains to real estate. Both documents are essential for taxpayers seeking to navigate their tax obligations effectively.

The Texas Environmental Quality Permit Application has similarities to the AP-180 as well. This application is necessary for entities seeking permits related to environmental regulations. Both forms require comprehensive information about operations and compliance with state laws. While the AP-180 focuses on tax rates for gas production, the environmental permit application ensures that operations adhere to environmental standards.

The IRS Form 941, which reports payroll taxes withheld from employees, is another document that shares similarities with the AP-180. Both forms require accurate reporting of financial data related to tax obligations. The AP-180 focuses on gas production, while Form 941 is centered on employment taxes. Each form is crucial for maintaining compliance with tax regulations and ensuring proper reporting to the respective authorities.

Finally, the Texas Employment Tax Report is akin to the AP-180 in that it addresses tax obligations related to employment. This report requires employers to provide information about wages and taxes withheld. Both documents serve to ensure compliance with tax laws and provide necessary information to state authorities for accurate tax assessment.

Dos and Don'ts

When filling out the Texas AP-180 form, it is important to follow specific guidelines to ensure accuracy and compliance. Below is a list of things you should and shouldn't do.

  • Do write clearly and legibly to avoid any confusion.
  • Do ensure all required fields are completed before submission.
  • Do include a copy of the certification letter from the Texas Railroad Commission.
  • Do mail the form to the correct address provided on the form.
  • Don't write in the shaded areas of the form.
  • Don't forget to attach a Limited Power of Attorney if filing on behalf of someone else.

Following these guidelines can help streamline the process and avoid potential delays in approval. Always refer to the instructions on the back of the form for additional information.

Misconceptions

Understanding the Texas AP-180 form can be challenging, and several misconceptions often arise. Here are eight common misunderstandings related to this form:

  • Misconception 1: The AP-180 form is only for new gas wells.
  • This is not true. The form can also be used to recoup credits for previously paid taxes on approved reduced tax rates for existing high-cost gas wells.

  • Misconception 2: Only large producers need to file the AP-180.
  • In reality, any producer seeking a reduced tax rate for high-cost gas wells must file this form, regardless of the size of their operation.

  • Misconception 3: Filing the AP-180 guarantees a tax reduction.
  • Filing the form does not guarantee a tax reduction. The Texas Railroad Commission must certify the well as a high-cost gas well for the reduced rate to apply.

  • Misconception 4: The AP-180 form can be filed at any time.
  • There are specific deadlines for filing the AP-180. If not filed by the applicable deadlines, penalties may apply, which could reduce the potential tax benefits.

  • Misconception 5: A consultant can file the AP-180 without any additional documentation.
  • If a consultant or service provider files the form on behalf of a taxpayer, a Limited Power of Attorney must be included with the submission.

  • Misconception 6: All drilling and completion costs can be included on the AP-180.
  • Not all costs are eligible. Certain costs, such as those incurred after the outlet of a lease separator, cannot be included in the calculations.

  • Misconception 7: The AP-180 form is the only requirement for claiming tax credits.
  • A letter of certification from the Texas Railroad Commission must accompany the AP-180 form to validate the request for a reduced tax rate.

  • Misconception 8: Once the AP-180 is submitted, no further action is needed.
  • After submitting the AP-180, it is essential to monitor for any additional requirements or communications from the Texas Railroad Commission to ensure compliance and maximize potential benefits.

Key takeaways

Key Takeaways for Filling Out the Texas AP-180 Form:

  • Ensure to provide accurate information about your well, including the Texas Railroad Commission (RRC) lease number and well depth.
  • Do not write in shaded areas of the form; follow the instructions carefully to avoid delays.
  • File the form within the specified deadlines to avoid penalties. Late submissions may incur a 10% reduction in tax exemptions.
  • A Limited Power of Attorney is required if a consultant or service provider submits the form on your behalf.
  • Attach a copy of the RRC certification letter when submitting the AP-180 form to ensure your application is processed smoothly.