Blank Texas 3703 PDF Form

Blank Texas 3703 PDF Form

The Texas 3703 form is an essential document used to apply for a plan review of a nursing facility, ensuring compliance with state regulations. This application, overseen by the Texas Department of Aging and Disability Services, gathers vital information about the facility, project details, and associated fees. If you're ready to begin the process, fill out the form by clicking the button below.

The Texas 3703 form is a critical document for nursing facilities seeking plan review services. This form, officially titled the Application for Plan Review for a Nursing Facility, serves several essential purposes. It collects vital information about the facility, including its name, physical address, and contact details for the project manager and owner. Additionally, it requires details about the type of construction or renovation being proposed, whether it involves new construction, relocation, or an addition to an existing building. The form also prompts applicants to disclose the estimated project cost and whether the facility will be equipped with a fire sprinkler system. Furthermore, it gathers information on the facility's capacity, including the number of beds before and after the project. It is important to note that this application is specifically for plan review by the Texas Department of Aging and Disability Services (DADS) and does not replace the need for a separate application for licensure. Finally, the form outlines the associated fees for the review process, ensuring that all financial aspects are clearly communicated to the applicant. By following the instructions carefully, applicants can ensure a smooth submission process and move closer to providing essential services to their communities.

Document Sample

Application for Plan Review

for a Nursing Facility

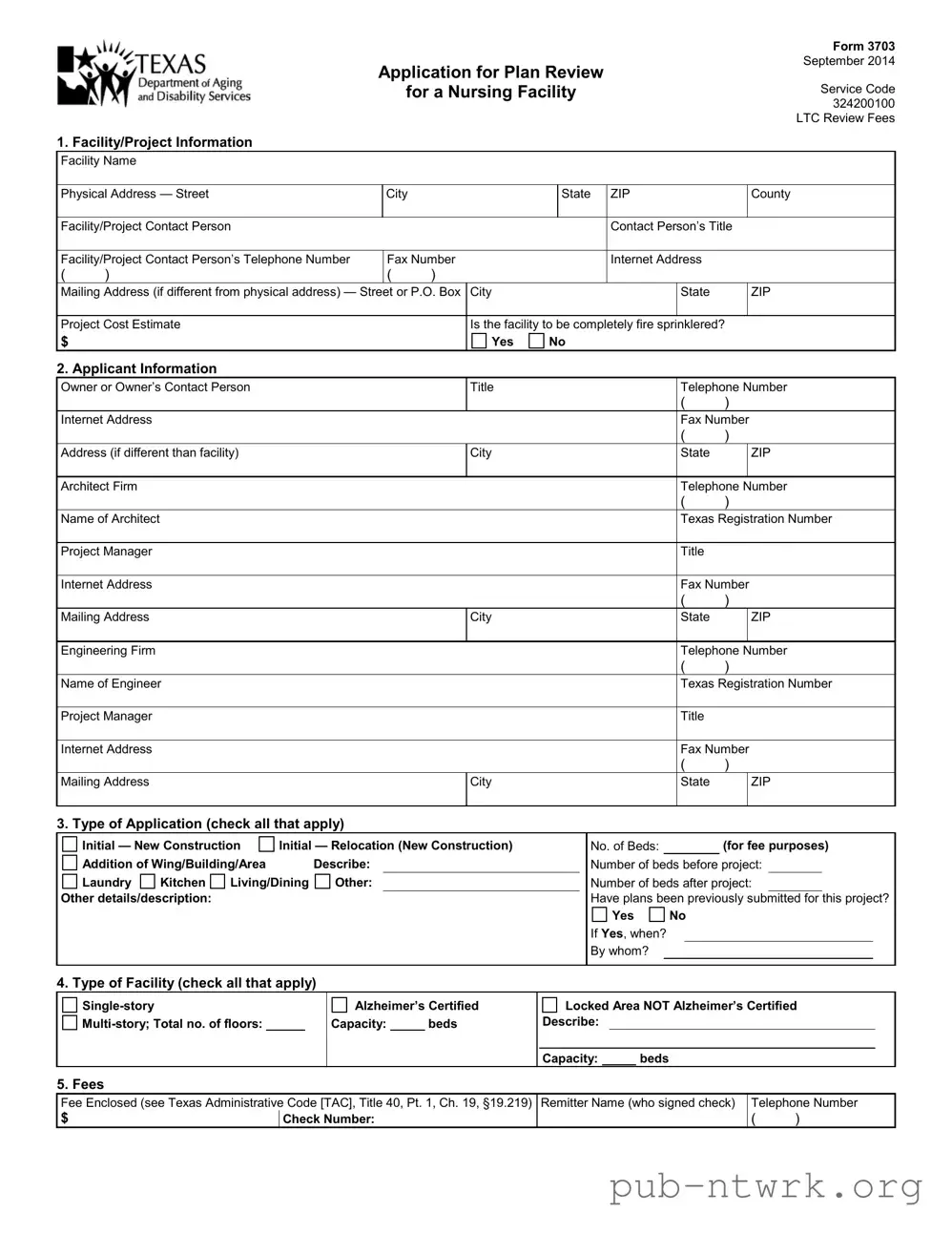
Form 3703

September 2014

Service Code

324200100

LTC Review Fees

1.Facility/Project Information

Facility Name

Physical Address — Street

City

 

 

 

State

ZIP

 

County

 

 

 

 

 

 

 

 

 

Facility/Project Contact Person

 

 

 

 

 

Contact Person’s Title

 

 

 

 

 

 

 

 

 

Facility/Project Contact Person’s Telephone Number

Fax Number

 

 

 

Internet Address

 

 

(

)

(

)

 

 

 

 

 

 

 

Mailing Address (if different from physical address) — Street or P.O. Box

City

 

 

 

State

 

ZIP

 

 

 

 

 

 

Project Cost Estimate

 

 

Is the facility to be completely fire sprinklered?

$

 

 

 

Yes

No

 

 

2. Applicant Information

 

 

 

 

 

 

 

 

 

Owner or Owner’s Contact Person

 

 

Title

 

 

 

Telephone Number

 

 

 

 

 

 

(

)

 

Internet Address

 

 

 

 

 

 

Fax Number

 

 

 

 

 

 

(

)

 

Address (if different than facility)

 

 

City

 

 

 

State

 

ZIP

 

 

 

 

 

 

 

 

 

Architect Firm

 

 

 

 

 

 

Telephone Number

 

 

 

 

 

 

(

)

 

Name of Architect

 

 

 

 

 

 

Texas Registration Number

 

 

 

 

 

 

 

 

 

 

Project Manager

 

 

 

 

 

 

Title

 

 

 

 

 

 

 

 

 

 

Internet Address

 

 

 

 

 

 

Fax Number

 

 

 

 

 

 

(

)

 

Mailing Address

 

 

City

 

 

 

State

 

ZIP

 

 

 

 

 

 

 

 

 

Engineering Firm

 

 

 

 

 

 

Telephone Number

 

 

 

 

 

 

(

)

 

Name of Engineer

 

 

 

 

 

 

Texas Registration Number

 

 

 

 

 

 

 

 

 

 

Project Manager

 

 

 

 

 

 

Title

 

 

 

 

 

 

 

 

 

 

Internet Address

 

 

 

 

 

 

Fax Number

 

 

 

 

 

 

(

)

 

Mailing Address

 

 

City

 

 

 

State

 

ZIP

 

 

 

 

 

 

 

 

 

 

 

3. Type of Application (check all that apply)

Initial — New Construction

Initial — Relocation (New Construction)

Addition of Wing/Building/Area

Describe:

Laundry Kitchen Living/Dining Other:

Other details/description:

No. of Beds:

 

(for fee purposes)

Number of beds before project:

Number of beds after project:

Have plans been previously submitted for this project?

Yes No

If Yes, when?

By whom?

4. Type of Facility (check all that apply)

Single-story

Multi-story; Total no. of floors:

Alzheimer’s Certified

Capacity: beds

Locked Area NOT Alzheimer’s Certified Describe:

Capacity: beds

5. Fees

Fee Enclosed (see Texas Administrative Code [TAC], Title 40, Pt. 1, Ch. 19, §19.219) Remitter Name (who signed check)

$

Check Number:

Telephone Number

()

Instructions for Completing Form 3703

Application for Plan Review for a Nursing Facility

PROCEDURE

Complete this form to apply for optional plan review services for a nursing facility.

Note: This application is for a plan review by the Texas Department of Aging and Disability Services (DADS). A separate application is required for licensure. This plan review does not satisfy the requirements for a plan review by the Texas Department of Licensing and Regulation (TDLR) for accessibility.

Mail attached payment coupon with fee to:

Texas Department of Aging and Disability Services

Regulatory Services

P.O. Box 149055, Mail Code E-411

Austin, TX 78714-9055

Submit application and plans to:

Texas Department of Aging and Disability Services

Phone: 512-438-2371

Long Term Care Regulatory

Fax: 512-438-4623

Architectural Unit

 

Facility Enrollment, Mail Code E-250

 

701 West 51st Street

 

Austin, TX 78751

 

 

 

1.Facility/Project Information

Facility Name — Enter the full name of the facility.

Physical Address — Enter the address of the facility, including the city, state, ZIP code and county where the facility is physically located.

Facility/Project Contact Person — Full name of the person in charge of the building project.

Contact Person’s Title — Provide the facility/project contact person’s title.

Facility/Project Contact Person’s Telephone Number — Provide the telephone number, including area code.

Fax Number — Provide the facility/project contact person’s fax number, including area code.

Internet Address — Provide the Internet address or email address of the facility/project contact person.

Mailing Address — Provide the facility/project contact person’s mailing address, including city, state and ZIP code (if different from the physical address).

Project Cost Estimate — Provide the estimated cost of the project in dollars.

Is the facility to be completely fire sprinklered? — Check Yes or No.

2.Applicant Information

Owner or Owner’s Contact Person — Provide the full name of the owner’s representative.

Title — Provide the title of the owner’s representative.

Telephone Number — Provide the owner’s representative’s telephone number, including area code.

Internet Address — Provide the Internet address or email address of the owner’s representative.

Fax Number — Provide the owner’s representative’s fax number, including area code.

Address — Provide the address for the owner’s representative, including city, state and ZIP code (if different from the facility address).

Architect Firm — Provide the name of the firm or individual who produced the construction documents.

Telephone Number — Provide the architectural firm’s telephone number, including area code.

Name of Architect — Provide the full name of the architect whose seal is affixed to the drawings.

Texas Registration Number — Provide the architect’s registration number with the Texas Board of Architectural Examiners.

Project Manager — Provide the full name of the architectural project manager in charge of the project.

Title — Provide the architectural project manager’s title.

Internet Address — Provide the Internet address or email address of the architect in charge of the project.

Fax Number — Provide the architect’s fax number, including area code.

Mailing Address — Provide the mailing address, including city, state and ZIP code, of the architect in charge of the project.

Engineering Firm — Provide the full name of the firm or individual who produced the construction documents.

Telephone Number — Provide the engineering firm’s telephone number, including area code.

Form 3703 — Instructions

Page 2/09-2014

Name of Engineer — Provide the full name of the engineer whose seal is affixed to the drawings.

Texas Registration Number — Provide the engineer’s Texas registration number with the Texas Board of Professional Engineers.

Project Manager — Provide the full name of the engineering project manager in charge of the project.

Title — Provide the engineering project manager’s title.

Internet Address — Provide the Internet address or email address of the engineer in charge of the project.

Fax Number — Provide the engineer’s fax number, including area code.

Mailing Address — Provide the mailing address, including city, state and ZIP code, of the engineer in charge of the project.

3.Type of Application

Check the appropriate boxes for the type of application being submitted.

“Initial” means new facility or the conversion of an existing building into a licensed facility.

“Initial — Relocation” means relocating an existing licensed facility.

“Addition of Wing/Building/Area” means making an addition to a licensed facility.

Provide a one-sentence description of the addition.

“Laundry” means construction of a new laundry or renovation of or addition to an existing laundry in a licensed facility.

“Kitchen” means construction of a new kitchen or renovation of or addition to an existing kitchen in a licensed facility.

“Living/Dining” means construction of new living or dining space or renovation of or addition to an existing dining or living space in a licensed facility.

Check the box for Other and enter a brief description of other items included in the project.

No. of Beds — Provide the number of proposed beds for this project (for calculation of the plan review fee).

Number of beds before project — Provide the licensed capacity (number of beds) before this project.

Number of beds after project — Provide the proposed licensed capacity (number of beds) after this project.

Have plans been previously submitted for this project? — Check Yes or No.

If Yes, provide the date of last submittal and the remitter’s name.

4.Type of Facility

Check the appropriate boxes for the type of facility being submitted.

“Single-story” means a building with one floor level at grade.

“Multi-story” means a building with two or more floor levels, including basements.

“Alzheimer’s Certified” means a building, unit or wing that is certified to meet the requirements of 40 TAC §19.2208, Standards for Certified Alzheimer’s Facilities.

Capacity — Provide the number of beds in the existing or proposed Alzheimer’s certified facility, unit or wing.

“Locked Area NOT Alzheimer’s Certified” means a building, unit or wing that is locked for the protection of the residents.

Describe the locked area.

Capacity — Provide the number of beds in the existing or proposed locked area.

5.Fees

Compute the fee from 40 TAC §19.219.

Check Number — Provide the check number from the fee check.

Remitter Name — Provide the full name of the person whose signature is on the fee check.

Telephone Number — Provide the remitter’s telephone number, including area code.

§19.219 Plan Review Fees

(a)The Texas Department of Human Services (DHS) charges a fee to review plans for new buildings, additions, conversion of buildings not licensed by DHS, or remodeling of existing licensed facilities.

(b)The fee schedule follows:

(1)Facilities – new construction:

(A)single-story facilities — $20 per bed, $2,000 minimum; and

(B)multiple-story facilities — $24 per bed, $2,500 minimum.

(2)Additions or remodeling of existing licensed facilities — 2% of construction cost with $500 minimum fee and a maximum not to exceed $2,000.

(3)Alzheimer's certification — $550 in addition to the fees specified in paragraphs (1)-(2) of this subsection.

Payment Coupon for Facility Enrollment

Plan Review (324200100)

Facility Name and Address

Print Remitter’s Name (person signing check):

Make check or money order payable to:

Texas Department of Aging and Disability Services

Attach check or money order to this coupon and return to:

Texas Department of Aging and Disability Services

Regulatory Services

P.O. Box 149055, Mail Code E-411

Austin, TX 78714-9055

File Specifics

Fact Name Description
Form Purpose The Texas 3703 form is used to apply for plan review services for nursing facilities, ensuring compliance with state regulations.
Governing Laws This form is governed by the Texas Administrative Code (TAC), Title 40, Pt. 1, Ch. 19, specifically §19.219 regarding plan review fees.
Submission Requirements Applicants must submit the completed form along with plans and payment to the Texas Department of Aging and Disability Services (DADS).
Fee Structure Fees vary based on facility type, with minimum charges set for new constructions and remodels, as outlined in TAC §19.219.

How to Use Texas 3703

Completing the Texas 3703 form is an essential step in the application process for a nursing facility plan review. This document requires accurate information about the facility, the applicant, and the project. Following these steps will ensure that the form is filled out correctly and submitted for review.

  1. Facility/Project Information:
    • Enter the full Facility Name.
    • Provide the Physical Address, including street, city, state, ZIP code, and county.
    • Fill in the Facility/Project Contact Person with their full name.
    • Indicate the Contact Person’s Title.
    • List the Telephone Number of the contact person.
    • Provide the Fax Number.
    • Include the Internet Address or email of the contact person.
    • If different, enter the Mailing Address.
    • Estimate the Project Cost.
    • Check Yes or No for whether the facility will be completely fire sprinklered.
  2. Applicant Information:
    • Provide the Owner or Owner’s Contact Person name.
    • Enter the Title of the owner’s representative.
    • List the Telephone Number of the owner’s representative.
    • Provide the Internet Address or email.
    • Include the Fax Number.
    • Enter the Address of the owner’s representative if different from the facility.
    • Provide the Architect Firm name.
    • List the Telephone Number of the architectural firm.
    • Enter the Name of Architect.
    • Provide the Texas Registration Number of the architect.
    • List the Project Manager name.
    • Enter the Title of the project manager.
    • Provide the Internet Address or email of the project manager.
    • List the Fax Number.
    • Include the Mailing Address of the project manager.
    • Provide the Engineering Firm name.
    • List the Telephone Number of the engineering firm.
    • Enter the Name of Engineer.
    • Provide the Texas Registration Number of the engineer.
    • List the Project Manager name for engineering.
    • Enter the Title of the engineering project manager.
    • Provide the Internet Address or email of the engineering project manager.
    • List the Fax Number.
    • Include the Mailing Address of the engineering project manager.
  3. Type of Application:
    • Check all applicable boxes for the type of application.
    • If applicable, provide a brief description of the addition.
    • Specify the No. of Beds for the project.
    • Enter the Number of beds before project.
    • Enter the Number of beds after project.
    • Indicate if plans have been previously submitted.
    • If yes, provide the date and by whom.
  4. Type of Facility:
    • Check the appropriate boxes for the type of facility.
    • If applicable, provide the Capacity for Alzheimer’s certified facilities.
    • Describe any Locked Area NOT Alzheimer’s Certified.
    • Provide the Capacity for the locked area.
  5. Fees:
    • Compute the fee based on the Texas Administrative Code.
    • Provide the Check Number from the payment.
    • Enter the Remitter Name.
    • List the Telephone Number of the remitter.

Once the form is completed, it should be mailed along with the payment to the Texas Department of Aging and Disability Services. Ensure that all information is accurate to avoid delays in processing. After submission, the department will review the application and plans, following up if additional information is needed.

Your Questions, Answered

  1. What is the Texas 3703 form used for?

    The Texas 3703 form is an application for plan review services for nursing facilities. It is submitted to the Texas Department of Aging and Disability Services (DADS) for review of construction plans related to new facilities, relocations, or additions. This form does not cover licensure applications or accessibility reviews by the Texas Department of Licensing and Regulation (TDLR).

  2. Who needs to fill out the Texas 3703 form?

    The form must be completed by the facility owner or their representative, as well as the architects and engineers involved in the project. It requires detailed information about the facility, the project, and the individuals responsible for the design and construction.

  3. What information is required on the form?

    The form requires several key pieces of information, including:

    • Facility name and physical address
    • Contact details for the facility/project contact person
    • Applicant information, including the owner and design professionals
    • Type of application (new construction, relocation, etc.)
    • Details about the facility type and capacity
    • Fee information
  4. What types of applications can be submitted using this form?

    The Texas 3703 form allows for several types of applications, including:

    • Initial applications for new construction
    • Relocation of existing licensed facilities
    • Additions to existing facilities, such as new wings or areas
  5. Are there fees associated with submitting the Texas 3703 form?

    Yes, there are fees based on the type of project. For new facilities, the fees vary by the number of stories. For example, single-story facilities incur a fee of $20 per bed, while multi-story facilities incur a fee of $24 per bed. Additional fees apply for remodeling and Alzheimer's certification.

  6. How do I submit the Texas 3703 form?

    To submit the form, complete it thoroughly and attach the required payment. Mail the application and plans to the Texas Department of Aging and Disability Services at the specified address. Ensure that you include the payment coupon with your fee.

  7. What happens after I submit the form?

    Once submitted, the Texas Department of Aging and Disability Services will review the plans. They will assess compliance with state regulations and may request additional information if necessary. You will be notified of the outcome of the review.

  8. Can I make changes to my application after submission?

    Yes, if changes are needed after submission, you should contact the Texas Department of Aging and Disability Services as soon as possible. They will provide guidance on how to proceed with modifications to your application.

  9. Where can I find additional resources or assistance?

    For more information or assistance, you can contact the Texas Department of Aging and Disability Services directly. Their phone number is 512-438-2371, and they can provide further guidance on the application process and requirements.

Common mistakes

  1. Incomplete Facility Information: Failing to provide the full name of the facility, including the physical address, city, state, ZIP code, and county can lead to delays. Each section must be filled out completely to avoid confusion.

  2. Missing Contact Details: Omitting the contact person's title, telephone number, or email address can hinder communication. Ensure all contact information is accurate and complete.

  3. Incorrect Project Cost Estimate: Providing an inaccurate or vague project cost estimate may result in incorrect fee assessments. Be specific and provide a realistic estimate to avoid issues later.

  4. Neglecting to Specify Fire Sprinkler Status: Not indicating whether the facility will be completely fire sprinklered can lead to complications in the review process. This detail is crucial for compliance.

  5. Misidentifying the Type of Application: Failing to check the appropriate boxes for the type of application can lead to misunderstandings about the project. Carefully review each option before submission.

  6. Not Providing Previous Submission Information: If plans have been submitted before, neglecting to mention this can cause confusion. Always include the date and name of the person who submitted previous plans.

  7. Errors in Fee Payment Details: Failing to include the check number or remitter’s name can delay processing. Double-check all payment information to ensure it matches the requirements.

Documents used along the form

The Texas 3703 form is a crucial document for those seeking to initiate a plan review for a nursing facility. However, it is often accompanied by several other forms and documents that are equally important in the application process. Below is a list of common documents that may be required alongside the Texas 3703 form.

  • Facility License Application: This document is essential for obtaining the necessary licenses to operate a nursing facility. It includes details about the facility's ownership, management, and compliance with state regulations.
  • Architectural Plans: Detailed architectural drawings must be submitted to demonstrate compliance with building codes and regulations. These plans should include floor layouts, dimensions, and specifications for construction materials.
  • Engineering Plans: Similar to architectural plans, engineering plans focus on the technical aspects of the facility, including plumbing, electrical, and structural systems. These documents ensure that the facility meets safety and operational standards.
  • Fire Safety Plan: This plan outlines the fire safety measures that will be implemented in the facility. It includes information on fire exits, sprinkler systems, and emergency response protocols.
  • Environmental Assessment: An environmental assessment evaluates the potential impact of the facility on the surrounding environment. This document is often required to ensure compliance with environmental regulations.
  • Proof of Insurance: Applicants must provide evidence of liability insurance coverage for the facility. This protects against potential claims arising from accidents or negligence.
  • Financial Disclosure Statement: This statement details the financial status of the facility's ownership. It may include information about funding sources, operating budgets, and financial projections.
  • Staffing Plan: A staffing plan outlines the proposed staffing levels and qualifications for the facility. It ensures that the facility will have adequate personnel to provide care and support to residents.
  • Compliance Documentation: This includes any previous inspection reports or compliance certificates that demonstrate the facility's adherence to state and federal regulations.

Understanding these additional documents is essential for a successful application process. Each plays a vital role in ensuring that the nursing facility meets all necessary standards for operation and care. By preparing these documents alongside the Texas 3703 form, applicants can facilitate a smoother review process and enhance their chances of approval.

Similar forms

The Texas 3703 form is similar to the Application for a Building Permit, which is often required for construction projects. Both documents collect information about the facility or project, including the physical address, contact details, and project specifics. The building permit application typically requires details about the construction plans, zoning compliance, and safety regulations, similar to how the Texas 3703 form addresses facility requirements and regulatory compliance for nursing facilities.

Another comparable document is the Certificate of Occupancy Application. This application is essential for ensuring that a building is safe for use. Like the Texas 3703 form, it includes information about the building's specifications and compliance with local codes. Both documents require verification of the facility's readiness for operation, focusing on safety and health standards.

The Nursing Facility License Application is also similar to the Texas 3703 form. This application is necessary for facilities seeking to operate legally. It requires detailed information about the facility's ownership, management, and operational plans. The focus on compliance with state regulations is a common element in both documents, ensuring that nursing facilities meet required standards for care and safety.

The Health and Safety Inspection Report shares similarities with the Texas 3703 form as well. This report assesses the compliance of a facility with health and safety regulations. Both documents require detailed information about the facility's physical condition and operational practices. They serve to ensure that the facility meets the necessary standards for the safety and well-being of its residents.

The Fire Safety Inspection Report is another document that aligns with the Texas 3703 form. Both documents address fire safety measures, including whether a facility is fully sprinklered. They require detailed information about the facility's fire safety systems and procedures, ensuring compliance with fire codes and regulations.

The Site Plan Review Application is similar in that it focuses on the layout and design of the facility. This application requires detailed site plans and specifications, much like the Texas 3703 form. Both documents aim to ensure that the facility's design complies with local zoning laws and regulations, promoting safe and efficient use of the property.

The Environmental Impact Assessment is another comparable document. It evaluates how a proposed facility may affect the surrounding environment. Like the Texas 3703 form, it collects detailed information about the project and its potential impact. Both documents aim to ensure that new developments consider public health and safety, as well as environmental sustainability.

The Construction Contract Agreement also shares similarities with the Texas 3703 form. This document outlines the terms and conditions of the construction project, including timelines and responsibilities. Both documents require detailed information about the project, including the parties involved and the scope of work, ensuring clarity and compliance throughout the construction process.

The Change of Use Application is another document that resembles the Texas 3703 form. This application is necessary when a facility changes its intended use, such as converting a building into a nursing facility. Both documents require comprehensive information about the facility, including compliance with health and safety standards, ensuring that the new use meets regulatory requirements.

Finally, the Variance Application for Zoning Regulations is similar in that it seeks exceptions to established zoning laws. Both the variance application and the Texas 3703 form require detailed descriptions of the project and justification for the request. They both aim to ensure that any deviations from standard regulations still prioritize safety and community standards.

Dos and Don'ts

When filling out the Texas 3703 form, there are important guidelines to follow. Adhering to these can help ensure a smoother application process.

  • Do provide accurate and complete information for all sections.
  • Do use clear and legible handwriting or type your responses.
  • Do check all boxes that apply to your application type.
  • Do include the correct fee based on the provided fee schedule.
  • Do ensure that all contact information is current and correct.
  • Don't leave any required fields blank; this can delay processing.
  • Don't forget to sign and date the application where indicated.
  • Don't submit the form without verifying that all attachments are included.
  • Don't use abbreviations that could cause confusion.
  • Don't assume previous submissions are still valid; always provide updated information.

Following these dos and don'ts can help streamline your application process and reduce the risk of delays. Take your time to ensure accuracy and completeness.

Misconceptions

Here are ten common misconceptions about the Texas 3703 form, along with clarifications to help you understand its purpose and requirements.

  1. The Texas 3703 form is only for new facilities. This form can also be used for relocations, additions, and remodeling of existing facilities.
  2. Submitting this form guarantees approval for my project. While the form initiates the plan review process, it does not guarantee that your project will be approved.
  3. I don’t need to provide an architect or engineer’s information. It is necessary to include details about both an architect and an engineer when submitting the form.
  4. This form is the same as the licensure application. The Texas 3703 form is specifically for plan review and is separate from the application for licensure.
  5. All facilities must be fully fire sprinklered. The form asks if the facility will be completely fire sprinklered, but this is not a requirement for all projects.
  6. The fee structure is the same for all types of facilities. Fees vary based on whether the facility is single-story or multi-story, as well as the type of project.
  7. Once submitted, I cannot make changes to my application. You can update your application if necessary, but it’s best to communicate any changes to the review team promptly.
  8. Only large facilities need to submit this form. Any nursing facility, regardless of size, must complete the Texas 3703 form if it is undergoing changes that require plan review.
  9. The Texas Department of Aging and Disability Services (DADS) is the only authority involved. The form also requires compliance with regulations from the Texas Department of Licensing and Regulation (TDLR) for accessibility.
  10. I can submit the form without any accompanying documentation. You must include plans and any other required documents along with the form for it to be processed.

Understanding these misconceptions can help ensure that your application process goes smoothly and that you meet all necessary requirements. If you have further questions, consider reaching out to the appropriate authorities for assistance.

Key takeaways

When filling out and using the Texas 3703 form, keep the following key takeaways in mind:

  • Accurate Information is Crucial: Ensure that all facility and project details, including names, addresses, and contact information, are entered correctly to avoid delays in processing.
  • Understand the Fees: Be aware of the fee structure based on the type of facility and project. This includes costs for new constructions, additions, and remodels.
  • Check Application Types: Clearly indicate the type of application you are submitting, whether it’s for new construction, relocation, or an addition. This helps streamline the review process.
  • Submit Required Documents: Along with the form, include any necessary plans and documents as specified. This may include architectural and engineering details.
  • Separate Applications: Remember that this form is specifically for plan reviews. A different application is needed for licensure, and this review does not cover accessibility requirements.