Blank Texas 1560 PDF Form

Blank Texas 1560 PDF Form

The Texas 1560 form is a Certificate of Insurance that confirms the existence of various insurance policies required by the Texas Department of Transportation (TxDOT). This form serves to inform TxDOT that the necessary coverage is in place for contractors and their employees. Proper completion and submission of this form are essential for compliance and to avoid work interruptions.

To fill out the Texas 1560 form, click the button below.

The Texas 1560 form, also known as the Certificate of Insurance, plays a crucial role in ensuring that contractors meet the insurance requirements set by the Texas Department of Transportation (TxDOT). This form is essential for any contractor looking to engage in work that involves state contracts. It outlines various types of insurance coverage, including Workers' Compensation, Commercial General Liability, and Business Automobile policies. Each section of the form requires specific details, such as policy numbers, effective dates, and limits of liability, ensuring that the contractor is adequately protected against potential liabilities. Notably, the form must be completed by an authorized agent and submitted directly to TxDOT, either by fax or mail. Importantly, it serves as a verification tool, confirming that the listed insurance policies are active and in compliance with state regulations. While the form provides a snapshot of the contractor's insurance status, it does not confer any additional rights or obligations beyond what is stated in the underlying policies. Therefore, understanding the nuances of this form is vital for contractors aiming to navigate the complexities of state contracts successfully.

Document Sample

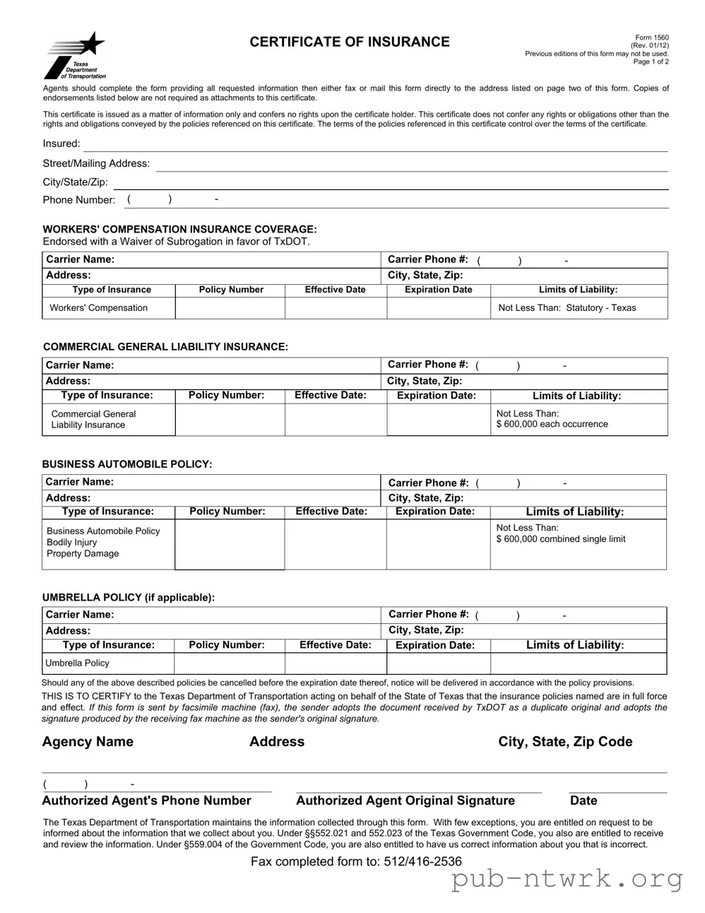
CERTIFICATE OF INSURANCE

Form 1560 (Rev. 01/12)

Previous editions of this form may not be used. Page 1 of 2

Agents should complete the form providing all requested information then either fax or mail this form directly to the address listed on page two of this form. Copies of endorsements listed below are not required as attachments to this certificate.

This certificate is issued as a matter of information only and confers no rights upon the certificate holder. This certificate does not confer any rights or obligations other than the rights and obligations conveyed by the policies referenced on this certificate. The terms of the policies referenced in this certificate control over the terms of the certificate.

Insured:

Street/Mailing Address:

City/State/Zip:

Phone Number: (

)

-

 

 

 

 

 

 

 

 

 

 

 

 

 

 

 

 

WORKERS' COMPENSATION INSURANCE COVERAGE:

 

 

 

 

Endorsed with a Waiver of Subrogation in favor of TxDOT.

 

 

 

 

 

 

 

 

 

 

 

 

 

 

Carrier Name:

 

 

 

 

 

Carrier Phone #: (

)

-

 

 

 

 

 

 

 

 

 

 

 

Address:

 

 

 

 

 

City, State, Zip:

 

 

 

 

 

 

 

 

 

 

 

 

 

Type of Insurance

 

Policy Number

 

Effective Date

Expiration Date

 

Limits of Liability:

 

 

 

 

 

 

 

 

 

Workers' Compensation

 

 

 

 

 

 

Not Less Than: Statutory - Texas

 

 

 

 

 

 

 

 

 

COMMERCIAL GENERAL LIABILITY INSURANCE:

 

 

 

 

 

 

 

 

 

 

 

 

 

 

 

 

Carrier Name:

 

 

 

 

 

Carrier Phone #: (

)

-

 

 

 

 

 

 

 

 

 

 

 

Address:

 

 

 

 

 

City, State, Zip:

 

 

 

 

 

 

 

 

 

 

 

 

 

Type of Insurance:

 

Policy Number:

 

Effective Date:

Expiration Date:

 

Limits of Liability:

 

 

 

 

 

 

 

 

 

Commercial General

 

 

 

 

 

 

Not Less Than:

Liability Insurance

 

 

 

 

 

 

$ 600,000 each occurrence

 

 

 

 

 

 

 

 

 

BUSINESS AUTOMOBILE POLICY:

 

 

 

 

 

 

 

 

 

 

 

 

 

 

 

 

Carrier Name:

 

 

 

 

 

Carrier Phone #: (

)

-

 

Address:

 

 

 

 

 

City, State, Zip:

 

 

 

 

 

 

 

 

 

 

 

 

 

 

Type of Insurance:

 

Policy Number:

 

Effective Date:

Expiration Date:

 

Limits of Liability:

 

Business Automobile Policy

 

 

 

 

 

 

Not Less Than:

 

 

 

 

 

 

 

$ 600,000 combined single limit

 

Bodily Injury

 

 

 

 

 

 

 

 

 

 

 

 

 

 

 

 

Property Damage

 

 

 

 

 

 

 

 

 

 

 

 

 

 

 

 

 

 

UMBRELLA POLICY (if applicable):

 

 

 

 

 

 

 

 

 

 

 

 

 

 

 

 

Carrier Name:

 

 

 

 

 

Carrier Phone #: (

)

-

 

 

 

 

 

 

 

 

 

 

 

Address:

 

 

 

 

 

City, State, Zip:

 

 

 

 

 

 

 

 

 

 

 

 

 

Type of Insurance:

 

Policy Number:

 

Effective Date:

Expiration Date:

 

Limits of Liability:

 

 

 

 

 

 

 

 

 

 

 

Umbrella Policy

 

 

 

 

 

 

 

 

 

 

 

 

 

 

 

 

 

 

 

 

Should any of the above described policies be cancelled before the expiration date thereof, notice will be delivered in accordance with the policy provisions.

THIS IS TO CERTIFY to the Texas Department of Transportation acting on behalf of the State of Texas that the insurance policies named are in full force and effect. If this form is sent by facsimile machine (fax), the sender adopts the document received by TxDOT as a duplicate original and adopts the signature produced by the receiving fax machine as the sender's original signature.

Agency Name

Address

City, State, Zip Code

 

 

 

 

 

 

 

 

(

)

-

 

 

 

 

 

 

 

 

 

Authorized Agent's Phone Number

Authorized Agent Original Signature

 

Date

The Texas Department of Transportation maintains the information collected through this form. With few exceptions, you are entitled on request to be informed about the information that we collect about you. Under §§552.021 and 552.023 of the Texas Government Code, you also are entitled to receive and review the information. Under §559.004 of the Government Code, you are also entitled to have us correct information about you that is incorrect.

Fax completed form to: 512/416-2536

Form 1560 (Rev. 01/12) Page 2 of 2

NOTES TO AGENTS:

Agents must provide all requested information then either fax or mail this form directly to the address listed below.

Pre-printed limits are the minimum required; if higher limits are provided by the policy, enter the higher limit amount and strike-through or cross-out the pre-printed limit.

To avoid work suspension, an updated insurance form must reach the address listed below one business day prior to the expiration date. Insurance must be in force in order to perform any work.

Binder numbers are not acceptable for policy numbers.

The certificate of insurance, once on file with the department, is adequate for subsequent department contracts provided adequate coverage is still in effect. Do not refer to specific projects/contracts on this form.

List the contractor's legal company name, including the DBA (doing business as) name as the insured. If a staff leasing service is providing insurance to the contractor/client company, list the staff leasing service as the insured and show the contractor/client company in parenthesis.

The TxDOT certificate of insurance form is the only acceptable proof of insurance for department contracts.

List the contractor's legal company name, including the DBA (doing business as) name as the insured or list both the contractor and staff leasing service as insured when a staff leasing service is providing insurance.

Over-stamping and/or over-typing entries on the certificate of insurance are not acceptable if such entries change the provisions of the certificate in any manner.

This form may be reproduced.

DO NOT COMPLETE THIS FORM UNLESS THE WORKERS' COMPENSATION POLICY IS ENDORSED WITH A WAIVER OF SUBROGATION IN FAVOR OF TXDOT.

The SIGNATURE of the agent is required.

CERTIFICATE OF INSURANCE REQUIREMENTS:

WORKERS' COMPENSATION INSURANCE:

The contractor is required to have Workers' Compensation Insurance if the contractor has any employees including relatives.

The word STATUTORY, under limits of liability, means that the insurer would pay benefits allowed under the Texas Workers' Compensation Law.

GROUP HEALTH or ACCIDENT INSURANCE is not an acceptable substitute for Workers' Compensation.

COMMERCIAL GENERAL LIABILITY INSURANCE:

MANUFACTURERS' or CONTRACTOR LIABILITY INSURANCE is not an acceptable substitute for Comprehensive General Liability Insurance or Commercial General Liability Insurance.

BUSINESS AUTOMOBILE POLICY:

If coverages are specified separately, they must be at least these amounts:

Bodily Injury

$500,000 each occurrence

 

$100,000 each occurrence

Property Damage

$100,000 for aggregate

PRIVATE AUTOMOBILE LIABILITY INSURANCE is not an acceptable substitute for a Business Automobile Policy.

MAIL ALL CERTIFICATES TO:

Texas Department of Transportation

CST Contract Processing Unit (RA/200 1st Fl.) 125 E. 11th Street

Austin, TX 78701-2483 512/416-2540 (Voice), 512/416-2536 (Fax)

File Specifics

Fact Name Details
Form Title Certificate of Insurance Form 1560
Revision Date Rev. 01/12
Governing Law Texas Workers' Compensation Law
Submission Method Fax or mail to the address listed on page two
Waiver of Subrogation Required in favor of TxDOT for Workers' Compensation Insurance
Minimum Liability Coverage Workers' Compensation: Statutory; Commercial General Liability: $600,000 each occurrence; Business Automobile Policy: $600,000 combined single limit
Certificate Validity Confers no rights beyond those in the referenced insurance policies
Agent Signature Required for the certificate to be valid

How to Use Texas 1560

Filling out the Texas 1560 form requires careful attention to detail to ensure that all necessary information is accurately provided. This form is essential for certifying insurance coverage and must be completed correctly to avoid any issues with compliance. Once the form is filled out, it should be either faxed or mailed to the Texas Department of Transportation at the address provided on the form.

  1. Obtain the Texas 1560 form: Ensure you have the most recent version of the form. The revision date should be noted as 01/12.
  2. Fill in the Insured's Information: Provide the legal company name of the insured, including any DBA (doing business as) names. Include the street/mailing address, city, state, and zip code.
  3. Enter the Phone Number: Include a contact phone number for the insured, formatted as ( ) - .
  4. Workers' Compensation Insurance Coverage: Indicate if the policy is endorsed with a Waiver of Subrogation in favor of TxDOT. Fill in the carrier name, carrier phone number, and address details. Provide the type of insurance, policy number, effective date, expiration date, and limits of liability, ensuring it meets the statutory requirements for Texas.
  5. Commercial General Liability Insurance: Fill in the carrier name, carrier phone number, and address. Provide the type of insurance, policy number, effective date, expiration date, and limits of liability, ensuring it is not less than $600,000 for each occurrence.
  6. Business Automobile Policy: Enter the carrier name, carrier phone number, and address. Fill in the type of insurance, policy number, effective date, expiration date, and limits of liability, ensuring it meets the minimum combined single limit of $600,000.
  7. Umbrella Policy (if applicable): If there is an umbrella policy, provide the carrier name, carrier phone number, and address. Fill in the type of insurance, policy number, effective date, expiration date, and limits of liability.
  8. Signature and Date: The authorized agent must sign the form, indicating their original signature and the date of signing.
  9. Submit the Form: Fax the completed form to 512/416-2536 or mail it to the Texas Department of Transportation at the address provided on the form.

Your Questions, Answered

What is the Texas 1560 Form?

The Texas 1560 Form, also known as the Certificate of Insurance, is a document used to provide proof of insurance coverage for contractors working with the Texas Department of Transportation (TxDOT). It certifies that the necessary insurance policies are in effect and meets the specific requirements set by TxDOT.

Who needs to complete the Texas 1560 Form?

Contractors who have employees and are performing work for TxDOT must complete this form. This includes any business entity that requires proof of Workers' Compensation Insurance, Commercial General Liability Insurance, and Business Automobile Policy, among others. If a staff leasing service is involved, they must also be listed as the insured.

What are the insurance requirements for the Texas 1560 Form?

The form requires the following insurance types:

  • Workers' Compensation Insurance: Must be endorsed with a Waiver of Subrogation in favor of TxDOT.
  • Commercial General Liability Insurance: Minimum coverage of $600,000 for each occurrence.
  • Business Automobile Policy: Minimum coverage of $600,000 combined single limit for bodily injury and property damage.
  • Umbrella Policy: If applicable, details must also be provided.

How should the Texas 1560 Form be submitted?

Agents must complete the form with all required information and then either fax or mail it directly to the address provided on the form. Fax submissions are acceptable, and the sender adopts the document received as a duplicate original.

What happens if the insurance policies are canceled?

If any of the insurance policies listed on the Texas 1560 Form are canceled before their expiration dates, the insurance carrier is obligated to notify TxDOT according to the policy provisions. This ensures that TxDOT is aware of any changes in coverage.

Can the Texas 1560 Form be altered or modified?

No, alterations or modifications to the Texas 1560 Form are not permitted. Over-stamping or over-typing entries that change the provisions of the certificate in any way are unacceptable. Any changes must be made carefully to ensure compliance with the requirements.

What should be done if the insurance coverage expires?

To avoid work suspension, an updated Texas 1560 Form must be submitted to TxDOT at least one business day before the expiration date of the existing coverage. It is critical to ensure that insurance remains in force to continue performing any work for TxDOT.

Common mistakes

  1. Incomplete Information: Failing to fill out all required fields can lead to delays. Ensure every section, including the insured's name and address, is complete.

  2. Incorrect Policy Numbers: Providing wrong or outdated policy numbers can cause confusion. Always double-check that the policy numbers are accurate.

  3. Missing Signature: Forgetting to sign the form can render it invalid. The authorized agent's signature is crucial for the form's acceptance.

  4. Not Including the Waiver of Subrogation: If the Workers' Compensation policy isn’t endorsed with a waiver of subrogation in favor of TxDOT, the form cannot be processed.

  5. Using Binder Numbers: Binder numbers are not acceptable as policy numbers. Always use the actual policy number issued by the insurance carrier.

  6. Over-stamping or Over-typing: Making changes to the form through stamping or typing can alter its provisions. This practice is not acceptable.

  7. Incorrect Limits of Liability: Ensure that the limits of liability meet or exceed the minimum requirements. If higher limits are available, they should be entered correctly.

  8. Not Submitting on Time: Submitting the form after the expiration date can lead to work suspension. Aim to submit it at least one business day before the expiration.

  9. Failing to List the Correct Insured: Make sure to list the contractor's legal company name, including any DBA. Incorrect names can lead to issues with coverage.

Documents used along the form

The Texas 1560 form, also known as the Certificate of Insurance, is essential for contractors working with the Texas Department of Transportation (TxDOT). Along with this form, several other documents may be required to ensure compliance with insurance regulations. Below is a list of commonly used forms and documents that often accompany the Texas 1560 form.

  • Workers' Compensation Insurance Policy: This document provides details about the contractor's workers' compensation coverage, including the policy number, effective dates, and limits of liability. It is crucial for protecting employees in case of work-related injuries.
  • Commercial General Liability Insurance Policy: This policy covers claims of bodily injury or property damage that may occur during the contractor's operations. It specifies the coverage limits and effective dates, ensuring that the contractor is adequately protected.
  • Business Automobile Policy: This document outlines coverage for vehicles used in the contractor's business operations. It includes information on liability limits for bodily injury and property damage, ensuring compliance with TxDOT requirements.
  • Umbrella Policy: If applicable, this policy provides additional liability coverage beyond the limits of the primary insurance policies. It helps protect the contractor from large claims that exceed standard coverage limits.
  • Endorsements: These are additional provisions added to the primary insurance policies. They can modify coverage terms or provide specific protections, such as a waiver of subrogation in favor of TxDOT.
  • Proof of Insurance Letter: This letter, often issued by the insurance carrier, confirms that the contractor holds the necessary insurance policies. It serves as an additional verification for TxDOT.
  • Certificate of Insurance for Subcontractors: If subcontractors are involved, this document verifies that they also maintain the required insurance coverage, protecting all parties involved in the project.

Having the appropriate documentation in place not only fulfills regulatory requirements but also ensures a smoother project execution. It is vital for contractors to keep all insurance forms current and readily accessible to avoid any disruptions in their work with TxDOT.

Similar forms

The Texas 1560 form, known as the Certificate of Insurance, serves as a vital document for proving insurance coverage. It is quite similar to the ACORD 25 form, which is widely recognized in the insurance industry. Like the Texas 1560, the ACORD 25 provides a summary of insurance coverage, including details on various types of policies such as general liability and workers' compensation. Both forms are used to verify that a business has the necessary insurance to operate, particularly when entering into contracts or agreements. The ACORD 25 is often accepted by multiple entities, making it a versatile option for insurance verification across different states.

Another document that shares similarities with the Texas 1560 is the Certificate of Liability Insurance (CLI). This document outlines the liability coverage a business holds and is essential for businesses engaging in contracts with other parties. Much like the Texas 1560, the CLI specifies coverage limits, effective dates, and the types of insurance policies in place. Both documents aim to protect the interests of third parties by confirming that a business is adequately insured to cover potential liabilities that may arise during operations.

The General Liability Insurance Certificate is also comparable to the Texas 1560 form. This certificate specifically focuses on general liability coverage, providing detailed information about the policyholder, coverage limits, and policy terms. Similar to the Texas 1560, it serves to assure clients and partners that the business has the necessary protection against claims for bodily injury or property damage. Both documents are crucial in fostering trust and transparency in business relationships.

The Workers' Compensation Insurance Certificate is another document that mirrors the Texas 1560 form in its purpose and content. This certificate verifies that a business has workers' compensation coverage, which is essential for protecting employees in case of work-related injuries. Like the Texas 1560, this certificate includes information about the insurance provider, policy number, and coverage limits. Both documents are essential for compliance with state laws and regulations regarding employee safety and insurance requirements.

Additionally, the Business Auto Policy Certificate serves a similar function to the Texas 1560 form. This certificate confirms that a business has the necessary automobile insurance coverage for its vehicles. It outlines the types of coverage, limits, and the effective dates of the policy, ensuring that businesses can operate their vehicles legally and safely. Just like the Texas 1560, this document is crucial for businesses that rely on transportation as part of their operations.

The Umbrella Insurance Policy Certificate is another document that parallels the Texas 1560 form. This certificate provides additional liability coverage beyond the limits of existing policies, such as general liability or auto insurance. It acts as a safety net for businesses, ensuring they have sufficient coverage in case of large claims. Both the Texas 1560 and the Umbrella Insurance Policy Certificate serve to enhance the overall protection a business has against unforeseen liabilities.

Lastly, the Certificate of Insurance for Nonprofits is akin to the Texas 1560 form. This document is specifically tailored for nonprofit organizations, confirming their insurance coverage in a way that meets the unique needs of their operations. While it may focus on different types of coverage relevant to nonprofits, it shares the same fundamental purpose as the Texas 1560: to provide proof of insurance and protect the interests of the organization and its stakeholders.

Dos and Don'ts

When filling out the Texas 1560 form, there are important guidelines to follow to ensure that the submission is accurate and compliant. Here are five things you should and shouldn’t do:

  • Do provide all requested information clearly and accurately.
  • Do ensure that the Workers' Compensation policy is endorsed with a Waiver of Subrogation in favor of TxDOT.
  • Do list the contractor's legal company name, including any DBA (doing business as) names.
  • Do fax or mail the completed form to the specified address, ensuring it arrives on time.
  • Do use the TxDOT certificate of insurance form as the only proof of insurance for department contracts.
  • Don't refer to specific projects or contracts on the form.
  • Don't use binder numbers as policy numbers; they are not acceptable.
  • Don't alter pre-printed limits unless you strike through the old limit and write the new one clearly.
  • Don't submit the form without the required signature of the agent.
  • Don't complete the form if the Workers' Compensation policy is not properly endorsed.

Misconceptions

Understanding the Texas 1560 form can be challenging due to various misconceptions. Here are eight common misunderstandings about this form and clarifications for each.

  • The Texas 1560 form is a binding contract. This form is not a contract; it is a certificate of insurance that provides information about the insurance policies in effect. It does not confer any rights or obligations beyond what is stated in the underlying insurance policies.
  • All endorsements must be attached to the form. It is a misconception that copies of endorsements need to be attached. The form itself does not require these attachments to be valid.
  • The form guarantees insurance coverage. The Texas 1560 form does not guarantee that coverage will be in place for future claims. It only certifies that the listed policies are active at the time of issuance.
  • Any insurance policy can be listed on the form. Only specific types of insurance, such as Workers' Compensation, Commercial General Liability, and Business Automobile policies, are acceptable for this form. Other types of insurance do not meet the requirements.
  • Faxing the form is not secure. While faxing may raise concerns about security, the Texas Department of Transportation accepts faxed forms as valid, treating them as original documents.
  • Once submitted, the form does not need to be updated. This is incorrect. If the insurance policy is canceled or expires, an updated form must be submitted to avoid work suspension.
  • Group health insurance can replace Workers' Compensation insurance. This is not true. Group health or accident insurance does not meet the legal requirements for Workers' Compensation coverage in Texas.
  • The form can be altered or modified. Any changes made to the form that alter its provisions are not acceptable. The integrity of the original document must be maintained.

These clarifications can help in accurately understanding the purpose and requirements of the Texas 1560 form. It is essential to follow the guidelines provided to ensure compliance and avoid potential issues.

Key takeaways

When dealing with the Texas 1560 form, there are several important aspects to keep in mind. This form is crucial for ensuring compliance with insurance requirements for contractors working with the Texas Department of Transportation (TxDOT). Here are some key takeaways:

  • Complete All Information: Agents must fill out every section of the form accurately. Missing information can lead to delays or issues with insurance coverage.
  • Submit Promptly: The completed form should be faxed or mailed to the TxDOT address listed on the second page. It's best to do this as soon as possible to avoid any interruptions in work.
  • Understand the Purpose: This certificate serves as a means of providing information only. It does not create any rights for the certificate holder beyond what is stated in the insurance policies themselves.
  • Policy Limits: The form specifies minimum coverage amounts. If your policy offers higher limits, you can enter those amounts but must cross out the pre-printed limits.
  • Timeliness is Key: Ensure that an updated insurance form is submitted at least one business day before the expiration date to prevent work suspension.
  • Correct Insured Names: Always list the contractor's legal company name, including any "doing business as" (DBA) names. If a staff leasing service is involved, list them as the insured and include the contractor’s name in parentheses.
  • No Alterations Allowed: Do not make any changes to the form that could alter its provisions. This includes over-stamping or over-typing any entries.
  • Specific Insurance Requirements: Ensure that Workers' Compensation Insurance includes a Waiver of Subrogation in favor of TxDOT. Other types of insurance, like Group Health or Private Automobile Liability, are not acceptable substitutes for the required coverage.

Following these guidelines will help ensure that the Texas 1560 form is filled out correctly and submitted on time, allowing for smooth compliance with TxDOT requirements.