Blank Responsible Managing Employee Hawaii PDF Form

Blank Responsible Managing Employee Hawaii PDF Form

The Responsible Managing Employee Hawaii form is essential for individuals seeking to obtain a contractor's license in Hawaii. This form outlines the qualifications necessary to serve as a Responsible Managing Employee (RME), including age requirements, reputation standards, supervisory experience, and examination prerequisites. To begin the licensing process, ensure you complete and submit the form by clicking the button below.

The Responsible Managing Employee (RME) form is a crucial document for individuals seeking to obtain a contractor's license in Hawaii. This form outlines the requirements that an applicant must meet, including being at least 18 years old, possessing a good reputation for honesty and integrity, and having four years of supervisory experience within the last decade. To proceed, applicants must pass a relevant examination and be employed by a licensed contracting entity. The application process is structured with specific deadlines; all materials must be submitted to the board by the 20th of the month prior to its scheduled meeting. Once submitted, the board reviews applications, notifies applicants of their status, and, if approved, allows them to register for the examination. Successful candidates must then fulfill additional licensing requirements before receiving their official contractor's license. It's important to note that applicants must also provide a social security number, as mandated by federal and state laws, to verify their identity and comply with licensing regulations. The application must include a non-refundable fee, experience certificates, and a credit report, all of which play a vital role in the evaluation process. Understanding these aspects is essential for anyone looking to navigate the licensing landscape in Hawaii effectively.

Document Sample

File Specifics

Fact Name Details
Age Requirement The applicant must be at least 18 years old.
Reputation Standards A good reputation for honesty, truthfulness, financial integrity, and fair dealing is required.
Supervisory Experience Four years of supervisory experience within the past ten years is necessary.
Examination Requirement Applicants must pass an examination in the appropriate classification.
Employment Requirement The applicant must be employed by a licensed contracting entity.
Application Deadline Applications must be received by the 20th day of the month prior to the scheduled board meeting.
Social Security Number Providing a social security number is mandatory for licensing purposes.
Governing Laws Hawaii Revised Statutes §576D-13(j) and §436B-10(4) govern the licensing process.

How to Use Responsible Managing Employee Hawaii

Completing the Responsible Managing Employee form is a critical step in the licensing process for contractors in Hawaii. Ensure that all required information is accurate and complete to avoid delays. Follow the steps below to fill out the form correctly.

  1. Access the Responsible Managing Employee form online.
  2. Review the requirements for a license, ensuring you meet all criteria:
    • Be at least 18 years old.
    • Have a good reputation for honesty and integrity.
    • Possess 4 years of supervisory experience within the last 10 years.
    • Pass the appropriate examination.
    • Be employed by a licensed contracting entity.
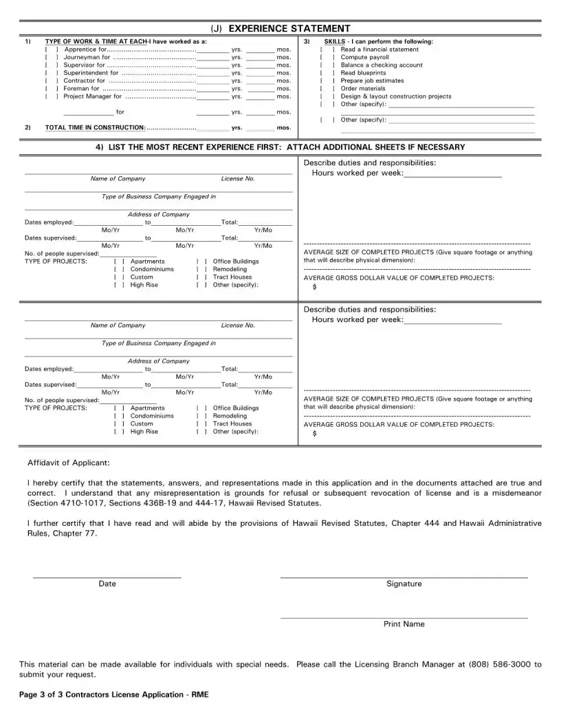
  3. Complete all 3 pages of the application form.
  4. Provide your social security number in the designated section.
  5. Attach a non-refundable application fee of $50. Make checks payable to Commerce and Consumer Affairs.
  6. Submit at least 3 notarized experience certificates supporting your supervisory experience. Ensure that no two certificates are from the same individual.
  7. Include a current credit report from a recognized credit reporting agency, dated within the last 6 months.
  8. If applicable, attach a letter confirming your employment with the licensed entity or submit a separate application for the entity.
  9. Double-check all information for accuracy and completeness.
  10. Mail the completed application, fee, and required documents to the Contractors License Board in Honolulu.

After submitting your application, the board will review it during the next scheduled meeting. Stay prepared for the next steps in the process, including potential examination and further requirements.

Your Questions, Answered

  1. What are the requirements to become a Responsible Managing Employee (RME) in Hawaii?

    To qualify as a Responsible Managing Employee in Hawaii, you must meet several criteria:

    • You must be at least 18 years old.
    • You should have a good reputation for honesty, truthfulness, financial integrity, and fair dealing.
    • You need to have four years of supervisory experience within the last ten years.
    • You must pass an examination in the appropriate classification.
    • You must be employed by a licensed contracting entity.
  2. What is the application process for obtaining an RME license?

    The application process involves several steps:

    1. Submit your application, fee, and all required documents by the 20th of the month.
    2. The Board reviews applications the following month.
    3. You will be notified of the Board's decision—approval, disapproval, or deferral.
    4. If approved, register with a testing agency for the exam and pay the exam fees.
    5. Take the exam the next month.
    6. Upon passing, you will receive notification of the license requirements.
    7. Submit the necessary license requirements to the Board.
    8. The Board will then issue your license.
    9. Finally, maintain your license as required.
  3. What is the deadline for submitting an application?

    Applications, fees, and supporting documents must be received by the Board's Honolulu office by the 20th day of the month prior to the scheduled meeting. The Board meets monthly, except in December.

  4. What documents must accompany the application?

    Your application must include the following:

    • A completed application form.
    • A non-refundable application fee of $50.
    • Experience certificates (at least three, notarized, and from different individuals).
    • A current credit report from a recognized credit agency, issued within the last six months.
    • Entity appointment letter if applicable.
  5. Why is a Social Security number required for the application?

    A Social Security number is necessary for identity verification and compliance with federal and state laws. Failure to provide this information will result in a deficient application that will not be processed.

  6. What happens if my application is denied?

    If your application is denied, you may request a hearing. This must be done in writing within 60 days of receiving the denial notification. The request should be directed to the agency that denied your application.

  7. What are the fees associated with the RME application?

    The initial application fee is $50, which is non-refundable. Additional fees may apply after the Board approves your application and you pass the examination. Be aware that dishonored payments will incur a $25 service charge, and your license will not be valid until all fees are honored.

  8. Are there special requirements for asbestos contractors?

    Yes, RMEs applying to work with asbestos must meet all standard requirements except for the supervisory experience. Instead, they must provide proof of completing a four-day EPA or Board-approved asbestos training course within the two years preceding the application.

  9. Where can I find the Contractors laws and rules?

    Contractors laws and rules can be obtained by submitting a written request to the Contractors License Board at the address provided. Additionally, they are available on the Hawaii Department of Commerce and Consumer Affairs website under the Contractors section.

Common mistakes

  1. Missing Deadline: Many applicants fail to submit their application, fee, and supporting documents by the 20th day of the month prior to the scheduled board meeting. This oversight can lead to delays or disqualification.

  2. Incomplete Application: Some individuals do not complete all three pages of the application. Leaving sections blank can cause processing delays and may result in the application being deemed deficient.

  3. Omitting Social Security Number: Failing to provide a social security number is a common mistake. Without it, the application cannot be processed, as it is required for identity verification and compliance with federal and state laws.

  4. Incorrect Payment: Applicants sometimes submit the wrong application fee or forget to include it altogether. Remember, a $50 non-refundable fee is required for each application, and any dishonored payments can invalidate the license.

  5. Insufficient Experience Certificates: Not providing at least three notarized certificates to support supervisory experience is a frequent error. Certificates must come from different individuals, and applicants need a minimum of four years of experience within the past ten years.

  6. Failure to Verify Employment: Applicants often neglect to submit proof of employment by a licensed contracting entity. This documentation is crucial for the application to be valid.

  7. Ignoring Asbestos Requirements: Those applying for asbestos-related work may overlook specific training requirements. Proof of successful completion of an EPA-approved asbestos training course must be submitted if the applicant lacks the necessary experience.

  8. Not Submitting a Current Credit Report: A current credit report, issued within the last six months, covering at least the previous five years, is required. Failing to include this document can lead to application rejection.

  9. Not Following Up: After submission, applicants often forget to follow up on their application status. It's essential to stay informed about approval, disapproval, or deferral notifications from the board.

Documents used along the form

When applying for a contractor's license in Hawaii, various forms and documents accompany the Responsible Managing Employee (RME) form. Each of these documents plays a critical role in ensuring that the application process runs smoothly and meets all regulatory requirements. Below is a list of commonly used forms and documents.

  • Application Form: This is the primary document where applicants provide personal and professional information required for licensing.
  • Experience Certificates: Applicants must submit at least three notarized certificates verifying their supervisory experience in the construction field.
  • Credit Report: A current credit report, issued within the last six months, is required to assess the applicant's financial integrity.
  • Entity Appointment Form: This document designates the RME as the representative of the contracting entity, confirming their employment.
  • Application Fee Payment: A non-refundable fee of $50 must be submitted with the application. Payment methods include checks made out to the Commerce and Consumer Affairs.
  • Social Security Number Disclosure: Applicants must provide their social security number for identity verification and compliance with federal and state laws.
  • Asbestos Training Certification: For RMEs applying for asbestos-related work, proof of completion of an EPA-approved training course is required.
  • Proof of Licensure (if applicable): Applicants with licensure in another state must submit documentation of their existing license.
  • Contractor's Laws and Rules Request: Applicants can request a copy of relevant laws and rules to ensure compliance during the application process.
  • Hearing Request Form: If an application is denied, applicants may need to submit a request for a hearing within 60 days of the denial notification.

Ensuring that all these documents are correctly filled out and submitted can significantly impact the success of your application. Thorough preparation will help streamline the process and reduce the chances of delays or complications.

Similar forms

The Responsible Managing Employee (RME) form in Hawaii shares similarities with the Contractor License Application form. Both documents require individuals to demonstrate their qualifications and experience in the construction industry. The Contractor License Application also necessitates the submission of personal information, including a social security number, and mandates proof of supervisory experience. Furthermore, applicants must pay a non-refundable fee and may be subject to a review process by a licensing board, ensuring that they meet the necessary standards for licensure.

Another document that parallels the RME form is the Business License Application. This application serves as a means for businesses to register and obtain the necessary permissions to operate legally. Similar to the RME form, it requires applicants to provide personal and business information, including any relevant experience in the field. Both forms emphasize the importance of maintaining a good reputation and adhering to ethical standards within the industry.

The Occupational License Application is also akin to the RME form. This document is used by individuals seeking to work in regulated professions and requires proof of qualifications and experience. Like the RME form, applicants must submit supporting documentation and may face a review process by a licensing authority. Both applications prioritize the need for applicants to demonstrate their capability to perform their duties responsibly and ethically.

The Professional License Application is another document that shares similarities with the RME form. This application is utilized by professionals across various fields, requiring them to provide evidence of their qualifications, experience, and adherence to ethical standards. Both forms involve a thorough review process and necessitate the submission of a social security number for identity verification, highlighting the importance of accountability in professional practice.

The Construction Supervisor License Application also bears resemblance to the RME form. This document is specifically tailored for individuals seeking to become licensed supervisors in the construction industry. Similar to the RME, it requires proof of supervisory experience and may involve an examination process. Both applications underscore the necessity for applicants to possess the requisite skills and knowledge to oversee construction projects effectively.

The Asbestos Abatement Contractor License Application is another document that aligns with the RME form. This application is specifically designed for contractors who handle asbestos-related projects. Like the RME form, it requires proof of training and experience in the field, ensuring that applicants are qualified to manage hazardous materials safely. Both forms emphasize the importance of compliance with safety regulations and the need for ongoing education in specialized areas.

The General Contractor License Application shares similarities with the RME form as well. This application is intended for individuals seeking to become licensed general contractors and requires them to demonstrate their experience in construction management. Both forms mandate the submission of supporting documentation and highlight the importance of ethical conduct and financial integrity in the contracting business.

The Real Estate License Application is another document that reflects the requirements found in the RME form. This application is used by individuals seeking to enter the real estate profession and requires proof of education and experience. Like the RME, it emphasizes the need for applicants to maintain a good reputation and adhere to ethical standards within their industry, ensuring that they can serve clients effectively and responsibly.

The Medical License Application is also similar to the RME form. This application is used by healthcare professionals seeking licensure and requires proof of education, training, and experience. Both forms necessitate the submission of a social security number for identity verification and stress the importance of ethical conduct and professional integrity in their respective fields.

Lastly, the Trade License Application is akin to the RME form. This document is utilized by individuals seeking to obtain a license for specific trades, such as plumbing or electrical work. Similar to the RME, it requires proof of experience and may involve an examination process. Both forms highlight the importance of ensuring that individuals possess the necessary skills and knowledge to perform their trade safely and effectively.

Dos and Don'ts

When filling out the Responsible Managing Employee Hawaii form, it’s important to follow certain guidelines to ensure your application is processed smoothly. Here are seven things to do and avoid:

  • Do complete all three pages of the application.
  • Do provide your social security number to verify your identity.
  • Do submit notarized certificates of supervisory experience.
  • Do ensure your application, fee, and documents arrive by the 20th of the month.
  • Don't submit fax copies; only original documents are accepted.
  • Don't forget to pay the non-refundable application fee of $50.
  • Don't submit experience certificates from the same person; at least three different sources are required.

Misconceptions

  • Misconception 1: The Responsible Managing Employee (RME) can be under 18 years of age.
  • This is incorrect. The RME must be at least 18 years old to qualify for a license.

  • Misconception 2: Any supervisory experience counts toward the four years required.
  • Not all supervisory experience is valid. The experience must be relevant and obtained within the past ten years.

  • Misconception 3: Failing to provide a social security number will not affect the application.
  • This is false. An application will be deemed deficient if the social security number is not provided, preventing further processing.

  • Misconception 4: The application can be submitted at any time without deadlines.
  • In reality, applications must be submitted by the 20th day of the month prior to the board's scheduled meeting.

  • Misconception 5: Fax copies of documents are acceptable for submission.
  • This is not true. The board does not accept fax copies; all documents must be original.

  • Misconception 6: An RME can be employed by any entity, regardless of licensing status.
  • This is misleading. An RME must be employed by a licensed contracting entity to be eligible for a license.

  • Misconception 7: Experience certificates do not need to be notarized.
  • This is incorrect. All experience certificates must be notarized to be valid.

  • Misconception 8: The license is issued immediately after passing the exam.
  • This is a common misunderstanding. After passing the exam, the applicant must still submit additional requirements before the license is issued.

Key takeaways

Key Takeaways for the Responsible Managing Employee Hawaii Form:

  • To qualify as a Responsible Managing Employee (RME), you must be at least 18 years old and have a good reputation for honesty and integrity.
  • Four years of supervisory experience within the last ten years is required, along with passing an exam in the relevant classification.
  • Your application must be submitted by the 20th of the month before the board's scheduled meeting for review.
  • Include your social security number on the application, as it is necessary for identity verification and compliance with federal and state laws.
  • Submit all required documents, including a credit report and notarized experience certificates, as incomplete applications will delay processing.