Blank Ohio Hea 5802 PDF Form

Blank Ohio Hea 5802 PDF Form

The Ohio HEA 5802 form is a crucial document used to summarize lead inspection, risk assessment, and clearance examination activities conducted within the state. This monthly summary must be completed and submitted by the 15th of each month, ensuring that all relevant activities are accurately reported. If you're ready to take action, fill out the form by clicking the button below.

The Ohio HEA 5802 form is an essential tool for tracking lead inspection and risk assessment activities. It is specifically designed for use by licensed lead inspectors, risk assessors, and clearance technicians. Each month, these professionals must complete the form to report their activities from the previous month. This includes inspections, risk assessments, and clearance examinations. If no activities occurred during the month, they simply check a box indicating "no activity." For each property inspected, the form requires detailed information, such as the property address, whether it was built before 1950, and whether any lead hazards were found. Each activity must be recorded on a separate line, ensuring clarity and accuracy. The form also provides options for submitting the summary, including mailing, faxing, or emailing it to the Ohio Department of Health. Timeliness is crucial, as submissions are due by the 15th of each month. Proper completion of the HEA 5802 form helps ensure compliance with state regulations and contributes to the ongoing efforts to prevent lead poisoning in Ohio.

Document Sample

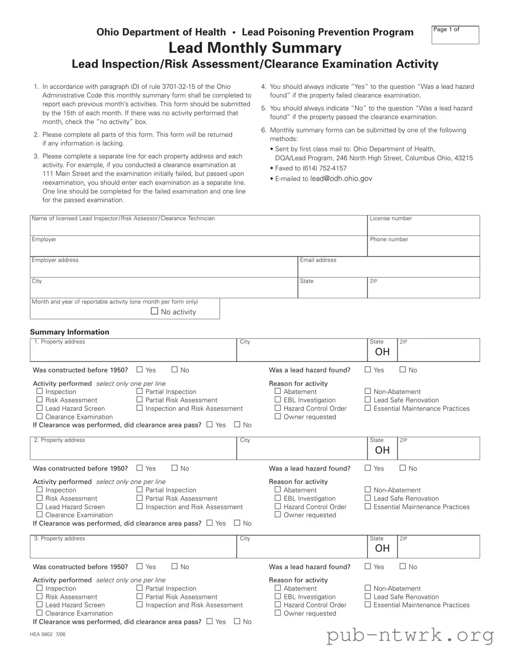
Ohio Department of Health • Lead Poisoning Prevention Program

Lead Monthly Summary

Page 1 of

Lead Inspection/Risk Assessment/Clearance Examination Activity

1.In accordance with paragraph (D) of rule 3701-32-15 of the Ohio Administrative Code this monthly summary form shall be completed to report each previous month’s activities. This form should be submitted by the 15th of each month. If there was no activity performed that month, check the “no activity” box.

2.Please complete all parts of this form. This form will be returned if any information is lacking.

3.Please complete a separate line for each property address and each activity. For example, if you conducted a clearance examination at 111 Main Street and the examination initially failed, but passed upon reexamination, you should enter each examination as a separate line. One line should be completed for the failed examination and one line for the passed examination.

4.You should always indicate “Yes” to the question “Was a lead hazard found” if the property failed clearance examination.

5.You should always indicate “No” to the question “Was a lead hazard found” if the property passed the clearance examination.

6.Monthly summary forms can be submitted by one of the following methods:

Sent by first class mail to: Ohio Department of Health,

DQA/Lead Program, 246 North High Street, Columbus Ohio, 43215

Faxed to (614) 752-4157

E-mailed to [email protected]

Name of licensed Lead Inspector / Risk Assessor / Clearance Technician

 

License number

 

 

 

Employer

 

Phone number

 

 

 

Employer address

Email address

 

 

 

 

City

State

ZIP

 

 

 

Month and year of reportable activity (one month per form only)

 

 

A No activity

Summary Information

1. Property address

City

State

OH

ZIP

Was constructed before 1950?

A Yes

A No

Was a lead hazard found?

A Yes

A No

Activity performed select only one per line

 

Reason for activity

 

 

A Inspection

A Partial Inspection

A Abatement

A Non-Abatement

A Risk Assessment

A Partial Risk Assessment

A EBL Investigation

A Lead Safe Renovation

A Lead Hazard Screen

A Inspection and Risk Assessment

A Hazard Control Order

A Essential Maintenance Practices

A Clearance Examination

 

 

A Owner requested

 

 

If Clearance was performed, did clearance area pass? A Yes A No

2. Property address

City

State

OH

ZIP

Was constructed before 1950?

A Yes

A No

Was a lead hazard found?

A Yes

A No

Activity performed select only one per line

 

Reason for activity

 

 

A Inspection

A Partial Inspection

A Abatement

A Non-Abatement

A Risk Assessment

A Partial Risk Assessment

A EBL Investigation

A Lead Safe Renovation

A Lead Hazard Screen

A Inspection and Risk Assessment

A Hazard Control Order

A Essential Maintenance Practices

A Clearance Examination

 

 

A Owner requested

 

 

If Clearance was performed, did clearance area pass? A Yes A No

3. Property address

City

State

OH

ZIP

Was constructed before 1950?

A Yes

A No

Was a lead hazard found?

A Yes

A No

Activity performed select only one per line

 

Reason for activity

 

 

A Inspection

A Partial Inspection

A Abatement

A Non-Abatement

A Risk Assessment

A Partial Risk Assessment

A EBL Investigation

A Lead Safe Renovation

A Lead Hazard Screen

A Inspection and Risk Assessment

A Hazard Control Order

A Essential Maintenance Practices

A Clearance Examination

 

 

A Owner requested

 

 

If Clearance was performed, did clearance area pass? A Yes A No

HEA 5802 7/06

Lead Monthly Summary

Page _______ of _________

 

4. Property address

City

State

OH

ZIP

Was constructed before 1950?

A Yes

A No

Was a lead hazard found?

A Yes

A No

Activity performed select only one per line

 

Reason for activity

 

 

A Inspection

A Partial Inspection

A Abatement

A Non-Abatement

A Risk Assessment

A Partial Risk Assessment

A EBL Investigation

A Lead Safe Renovation

A Lead Hazard Screen

A Inspection and Risk Assessment

A Hazard Control Order

A Essential Maintenance Practices

A Clearance Examination

 

 

A Owner requested

 

 

If Clearance was performed, did clearance area pass? A Yes A No

5. Property address

City

State

OH

ZIP

Was constructed before 1950?

A Yes

A No

Was a lead hazard found?

A Yes

A No

Activity performed select only one per line

 

Reason for activity

 

 

A Inspection

A Partial Inspection

A Abatement

A Non-Abatement

A Risk Assessment

A Partial Risk Assessment

A EBL Investigation

A Lead Safe Renovation

A Lead Hazard Screen

A Inspection and Risk Assessment

A Hazard Control Order

A Essential Maintenance Practices

A Clearance Examination

 

 

A Owner requested

 

 

If Clearance was performed, did clearance area pass? A Yes A No

6. Property address

City

State

OH

ZIP

Was constructed before 1950?

A Yes

A No

Was a lead hazard found?

A Yes

A No

Activity performed select only one per line

 

Reason for activity

 

 

A Inspection

A Partial Inspection

A Abatement

A Non-Abatement

A Risk Assessment

A Partial Risk Assessment

A EBL Investigation

A Lead Safe Renovation

A Lead Hazard Screen

A Inspection and Risk Assessment

A Hazard Control Order

A Essential Maintenance Practices

A Clearance Examination

 

 

A Owner requested

 

 

If Clearance was performed, did clearance area pass? A Yes A No

7. Property address

City

State

OH

ZIP

Was constructed before 1950?

A Yes

A No

Was a lead hazard found?

A Yes

A No

Activity performed select only one per line

 

Reason for activity

 

 

A Inspection

A Partial Inspection

A Abatement

A Non-Abatement

A Risk Assessment

A Partial Risk Assessment

A EBL Investigation

A Lead Safe Renovation

A Lead Hazard Screen

A Inspection and Risk Assessment

A Hazard Control Order

A Essential Maintenance Practices

A Clearance Examination

 

 

A Owner requested

 

 

If Clearance was performed, did clearance area pass? A Yes A No

8. Property address

City

State

OH

ZIP

Was constructed before 1950?

A Yes

A No

Was a lead hazard found?

A Yes

A No

Activity performed select only one per line

 

Reason for activity

 

 

A Inspection

A Partial Inspection

A Abatement

A Non-Abatement

A Risk Assessment

A Partial Risk Assessment

A EBL Investigation

A Lead Safe Renovation

A Lead Hazard Screen

A Inspection and Risk Assessment

A Hazard Control Order

A Essential Maintenance Practices

A Clearance Examination

 

 

A Owner requested

 

 

If Clearance was performed, did clearance area pass? A Yes A No

9. Property address

City

State

OH

ZIP

Was constructed before 1950?

A Yes

A No

Was a lead hazard found?

A Yes

A No

Activity performed select only one per line

 

Reason for activity

 

 

A Inspection

A Partial Inspection

A Abatement

A Non-Abatement

A Risk Assessment

A Partial Risk Assessment

A EBL Investigation

A Lead Safe Renovation

A Lead Hazard Screen

A Inspection and Risk Assessment

A Hazard Control Order

A Essential Maintenance Practices

A Clearance Examination

 

 

A Owner requested

 

 

If Clearance was performed, did clearance area pass? A Yes A No

HEA 5802 7/06

File Specifics

Fact Name Description
Purpose The HEA 5802 form is used to summarize lead inspection, risk assessment, and clearance examination activities conducted in Ohio. It ensures compliance with lead poisoning prevention regulations.
Submission Deadline Forms must be submitted by the 15th of each month to report activities from the previous month. If no activities occurred, the "no activity" box should be checked.
Governing Law This form is governed by paragraph (D) of rule 3701-32-15 of the Ohio Administrative Code, which outlines the requirements for lead hazard reporting.
Submission Methods The completed form can be sent via first-class mail, faxed, or emailed to the Ohio Department of Health, ensuring multiple options for convenience.

How to Use Ohio Hea 5802

Completing the Ohio HEA 5802 form requires careful attention to detail. Once you have filled it out, you will need to submit it by the 15th of each month to ensure compliance with reporting requirements. If there were no activities performed during the month, simply check the “no activity” box. Make sure to provide accurate information for each property and activity, as incomplete forms will be returned.

  1. Gather all necessary information, including your name, license number, employer details, and contact information.
  2. Indicate the month and year of the reportable activity at the top of the form.
  3. If there was no activity for the month, check the “no activity” box.
  4. For each property, fill out a separate line with the following details:
    • Property address
    • City
    • State (OH)
    • ZIP code
    • Whether the property was constructed before 1950 (Yes or No)
    • Indicate if a lead hazard was found (Yes or No)
    • Select one activity performed from the list provided (e.g., Inspection, Abatement, Risk Assessment, etc.)
    • If a clearance examination was performed, indicate whether it passed (Yes or No)
  5. Repeat step 4 for each property, ensuring each activity is documented on a separate line.
  6. Review the completed form for accuracy and completeness.
  7. Submit the form by one of the following methods:
    • Mail to: Ohio Department of Health, DQA/Lead Program, 246 North High Street, Columbus, Ohio, 43215
    • Fax to: (614) 752-4157
    • Email to: [email protected]

Your Questions, Answered

What is the purpose of the Ohio HEA 5802 form?

The Ohio HEA 5802 form is designed to document and report lead inspection, risk assessment, and clearance examination activities conducted in properties. It serves as a monthly summary that ensures compliance with the Ohio Administrative Code, specifically rule 3701-32-15. This form must be completed for each month’s activities and submitted by the 15th of the following month.

Who is required to submit the HEA 5802 form?

Licensed Lead Inspectors, Risk Assessors, and Clearance Technicians are responsible for submitting the HEA 5802 form. If no activities were performed during the month, the individual must still check the “no activity” box on the form. Accurate reporting is essential to maintain compliance with state regulations.

What information must be included on the form?

The form requires several key pieces of information, including:

  1. Name of the licensed professional.
  2. License number.
  3. Employer details, including name, address, and phone number.
  4. Property address and ZIP code.
  5. Indication of whether the property was constructed before 1950.
  6. Whether a lead hazard was found.
  7. Details of the activity performed, such as inspection or risk assessment.

Each activity must be documented on a separate line for clarity.

How should the HEA 5802 form be submitted?

There are three acceptable methods for submitting the HEA 5802 form:

  • By first-class mail to the Ohio Department of Health, DQA/Lead Program, 246 North High Street, Columbus, Ohio, 43215.
  • By fax to (614) 752-4157.
  • By email to [email protected].

Choose the method that best suits your needs while ensuring timely submission.

What happens if the form is incomplete?

If any information is missing from the HEA 5802 form, it will be returned for completion. To avoid delays, ensure that all sections are filled out accurately and thoroughly before submission.

What should be indicated if a property fails a clearance examination?

If a property fails a clearance examination, the form must reflect that a lead hazard was found by indicating “Yes” to the relevant question. This is crucial for tracking and addressing lead hazards effectively.

Is it necessary to report every activity separately?

Yes, each activity must be reported on a separate line. For example, if a clearance examination initially fails but passes upon reexamination, both results must be documented individually. This detailed reporting helps maintain accurate records and compliance with health regulations.

Common mistakes

  1. Incomplete Information: One of the most common mistakes is not filling out all sections of the form. If any part is missing, the form will be returned, causing delays in processing.

  2. Failing to Separate Activities: Each property and activity must be documented on a separate line. For instance, if a clearance examination failed and then passed, both results should be recorded individually. Overlooking this can lead to confusion and inaccuracies.

  3. Incorrect Responses to Lead Hazard Questions: It's crucial to answer the questions regarding lead hazards accurately. If a property fails the clearance examination, the answer should always be "Yes" to the question about whether a lead hazard was found. Conversely, if it passes, the answer should be "No." Misunderstanding this can lead to serious reporting errors.

  4. Missing Submission Deadline: The form must be submitted by the 15th of each month. Failing to meet this deadline can result in penalties or further complications with reporting.

  5. Improper Submission Method: Ensure that the form is sent through the correct channels, whether by mail, fax, or email. Using an incorrect method could result in the form not being received, leading to potential issues.

Documents used along the form

When dealing with lead inspection and risk assessment in Ohio, several forms and documents accompany the Ohio HEA 5802 form. Each of these documents serves a specific purpose in the process of lead hazard management and compliance with state regulations.

  • Lead Inspection Report: This document provides a detailed account of the lead inspection findings. It includes the locations tested, the levels of lead found, and recommendations for remediation if necessary.
  • Risk Assessment Report: This report evaluates the potential risks associated with lead exposure in a property. It assesses the likelihood of lead hazards and recommends actions to mitigate those risks.
  • Clearance Examination Report: After remediation efforts, this report confirms whether the property meets safety standards for lead hazards. It indicates whether the clearance examination passed or failed.
  • Abatement Plan: This document outlines the specific steps that will be taken to eliminate lead hazards from a property. It includes timelines, methods, and responsible parties for the abatement process.
  • Owner Notification Form: This form is used to inform property owners about the findings of lead inspections or assessments. It ensures that property owners are aware of any lead hazards and the necessary steps to address them.
  • Monthly Summary Report: This report compiles data from multiple inspections or assessments over a month. It summarizes activities and findings, similar to the HEA 5802 form, and is submitted to the Ohio Department of Health.

Understanding these documents is essential for compliance and effective management of lead hazards. Each form plays a critical role in ensuring safety and health in properties, especially those built before 1950, where lead exposure risks are more prevalent.

Similar forms

The Ohio Hea 5802 form shares similarities with the EPA Form 3510-1, which is used for reporting lead-based paint activities. Both forms require detailed documentation of inspections and assessments related to lead hazards. The EPA form also emphasizes the importance of reporting activities performed in a specific timeframe and mandates that all relevant information be included to ensure compliance. Just like the Hea 5802, the EPA form allows for a summary of multiple properties and activities, ensuring that all necessary data is captured for regulatory review and public health protection.

Another document comparable to the Ohio Hea 5802 is the HUD Lead-Based Paint Disclosure form. This form is utilized during real estate transactions to inform buyers and tenants about potential lead hazards in properties built before 1978. Similar to the Hea 5802, the HUD form requires property owners to disclose any known lead hazards and to provide documentation of any inspections or remediation efforts. Both forms aim to enhance transparency and protect public health by ensuring that individuals are informed about lead risks associated with older properties.

The Lead Hazard Control Grant Application is also similar to the Ohio Hea 5802 form. This application is used by entities seeking funding to address lead hazards in residential properties. Like the Hea 5802, it requires detailed information about the properties involved, including inspection results and the types of lead-related activities planned. Both documents focus on the importance of systematic reporting and accountability in lead hazard management, reflecting a commitment to improving public health outcomes.

Lastly, the Lead Risk Assessment Report aligns closely with the Ohio Hea 5802 form. This report documents the findings of a risk assessment conducted to identify lead hazards in a property. Both documents emphasize the necessity of thorough documentation of activities and findings, ensuring that stakeholders are aware of any lead hazards present. The risk assessment report serves as a critical tool for informing remediation efforts, just as the Hea 5802 provides a monthly summary of ongoing lead hazard management activities.

Dos and Don'ts

When filling out the Ohio HEA 5802 form, it’s essential to follow specific guidelines to ensure accuracy and compliance. Here are five important do's and don'ts to keep in mind:

  • Do complete all parts of the form. Incomplete forms will be returned, delaying your reporting.
  • Do submit the form by the 15th of each month. Timely submission is crucial for maintaining compliance with the reporting requirements.
  • Do indicate “Yes” if a lead hazard was found during the clearance examination. Accurate reporting is vital for public health safety.
  • Do use a separate line for each property and activity. This helps in tracking inspections and results more effectively.
  • Do check the “no activity” box if no inspections were conducted. This ensures that your report reflects accurate activity levels.
  • Don't leave any sections blank. Any missing information could result in your form being rejected.
  • Don't combine multiple properties or activities on one line. Each entry must be distinct to avoid confusion.
  • Don't indicate “No” for lead hazards found if the property failed clearance. This misrepresentation can have serious implications.
  • Don't forget to include your contact information. Providing your details is essential for follow-up and verification.
  • Don't submit the form late. Adhering to the deadline is critical for compliance with state regulations.

Misconceptions

Understanding the Ohio HEA 5802 form is crucial for compliance with lead poisoning prevention regulations. However, several misconceptions exist regarding this form. Here are seven common misconceptions, along with clarifications for each.

  • The HEA 5802 form is optional. Many believe that submitting this form is optional. In reality, it is mandatory for reporting lead inspection and risk assessment activities conducted in the previous month.
  • Only properties built before 1950 need to be reported. Some think that only older properties require reporting. However, any property undergoing lead-related activities must be documented, regardless of its construction date.
  • Forms can be submitted at any time. There is a misconception that submission deadlines are flexible. The form must be submitted by the 15th of each month for the previous month's activities.
  • All activities can be combined on one line. It is often assumed that multiple activities for the same property can be reported on a single line. Each activity must be listed separately to ensure accurate reporting.
  • Checking "no activity" means no submission is required. Some individuals think that if no activities occurred, they do not need to submit the form. In fact, they must still submit the form with the "no activity" box checked.
  • Lead hazards do not need to be reported if the clearance examination passes. It is a common belief that only failed examinations require reporting. However, if a lead hazard is found during any examination, it must be reported, regardless of the outcome of subsequent tests.
  • The form can be submitted only by mail. There is a notion that mailing is the only submission method. The form can also be faxed or emailed, providing flexibility in how it is submitted.

By addressing these misconceptions, individuals involved in lead inspections and risk assessments can ensure compliance with Ohio's lead poisoning prevention regulations.

Key takeaways

When filling out the Ohio HEA 5802 form, it’s important to keep a few key points in mind to ensure accuracy and compliance. Here are the main takeaways:

  • Submit on Time: The form must be submitted by the 15th of each month to report activities from the previous month.
  • No Activity Reporting: If no activities occurred during the month, simply check the "no activity" box.
  • Separate Lines for Each Activity: Use a separate line for each property address and activity. For instance, if a clearance examination failed and then passed, each result should have its own line.
  • Indicate Lead Hazards Accurately: Always answer “Yes” if a lead hazard was found during a failed clearance examination and “No” if it passed.
  • Multiple Submission Methods: You can submit the form via first-class mail, fax, or email, providing flexibility in how you send it.
  • Complete All Sections: Ensure all parts of the form are filled out. Incomplete forms will be returned for additional information.
  • Property Age Matters: Clearly indicate if the property was constructed before 1950, as this is relevant for lead hazard assessments.