Blank Ohio Epa 4309 PDF Form

Blank Ohio Epa 4309 PDF Form

The Ohio EPA 4309 form serves as a crucial supplement to the Permit-to-Install/Plan Approval Application for sanitary sewers. This form collects essential information about the proposed sewer project, including its design, specifications, and environmental considerations. Completing this form accurately is vital for ensuring compliance with state regulations and facilitating the approval process.

Ready to get started? Fill out the Ohio EPA 4309 form by clicking the button below.

The Ohio EPA 4309 form is a crucial document for those involved in the planning and installation of sanitary sewer systems in the state. This form serves as a supplement to Form A – B1 and is specifically designed for permit-to-install and plan approval applications. It requires detailed information about the project, including the location and size of the area to be served, as well as the types of sewers being proposed. Applicants must provide specifications for the pipes, expected design flows, and details about the receiving wastewater treatment facility. Furthermore, the form addresses critical design considerations, such as manhole design, stream protection, and the installation and testing procedures for the sewer systems. Each section of the form is designed to ensure compliance with environmental standards, thereby safeguarding public health and the environment. By meticulously completing the Ohio EPA 4309 form, applicants can facilitate a smoother approval process and contribute to the effective management of wastewater in their communities.

Document Sample

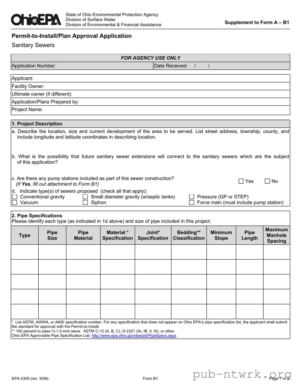
State of Ohio Environmental Protection Agency

 

Division of Surface Water

Supplement to Form A – B1

Division of Environmental & Financial Assistance

 

 

 

Permit-to-Install/Plan Approval Application

Sanitary Sewers

FOR AGENCY USE ONLY

Application Number:

Date Received: /

/

 

 

Applicant:

Facility Owner:

Ultimate owner (if different):

Application/Plans Prepared by:

Project Name:

1. Project Description

a. Describe the location, size and current development of the area to be served. List street address, township, county, and include longitude and latitude coordinates in describing location.

b. What is the possibility that future sanitary sewer extensions will connect to the sanitary sewers which are the subject of this application?

c. Are there any pump stations included as part of this sewer construction? (If Yes, fill out attachment to Form B1)

d. Indicate type(s) of sewers proposed (check all that apply):

Conventional gravity

Small diameter gravity (w/septic tanks)

Vacuum

Siphon

Yes

No

Pressure (GP or STEP)

Force main (must include pump station)

2. Pipe Specifications

Please identify each type (as indicated in 1d above) and size of pipe included in this project.

Type

Pipe

Pipe

Material *

Joint*

Bedding**

Minimum

Size

Material

Specification

Specification

Classification

Slope

 

Pipe

Length

Maximum

Manhole

Spacing

*List ASTM, AWWA, or ANSI specification number. For any specification that does not appear on Ohio EPA’s pipe specification list, the applicant shall submit the standard for approval with the Permit-to-Install.

** 100 percent to pass ¾-1.0 inch sieve. ASTM C-12 (A, B, C), D-2321 (IA, IB, II, III), or other. Ohio EPA Approvable Pipe Specification List: http://www.epa.ohio.gov/dsw/pti/PipeSpecs.aspx

EPA 4309 (rev. 9/09)

Form B1

Page 1 of 4

3. Design Flow in Proposed Sewer

Identify flows expected at start-up (for example, currently existing flows plus design flow for this project) and the flows expected at design (for example, start-up flows plus flows from future phases of development) at terminus of proposed sewer.

 

Average Daily Flow

 

Peak Hourly Flow

Start-Up Flows (based on immediate area served)

 

MGD

 

 

MGD

Design Flows (based on planned area served)

 

MGD

 

 

MGD

 

 

 

Hydraulic Capacity of Sewer

 

MGD

 

 

MGD

 

 

 

 

 

 

 

 

 

Assumptions used to calculate above flows: (check all that apply)

 

Start-Up

 

 

Design

 

Residential Population at:

 

gal/home*

 

homes

 

 

 

homes

 

 

 

 

 

 

 

 

 

 

 

 

Residential Population at:

 

gal/cap/day

 

people

 

 

 

people

 

 

 

 

 

 

 

 

 

 

 

 

Non-Residential Flows (for example commercial, industrial, etc.):

 

MGD

 

 

 

MGD

 

 

 

 

 

 

 

 

 

 

Computer Flow Modeling Results (attach explanation and data)

 

 

 

 

 

 

 

*120 gallon/bedroom in accordance w/ OAC 3745-42-05 unless additional information is submitted

4. Receiving Wastewater Treatment Facility

a. What treatment facility will be receiving flow from these sewers?

Present treatment facility average daily flow

 

MGD (based on

/20

(month/year) ADF)*

 

 

 

 

 

Proposed treatment facility average daily flow (based on present average daily flow plus all connections currently under construction or being designed)

Design average daily flow of the treatment facility

MGD (based on

b.Does the treatment facility have adequate capacity to treat anticipated flows from existing sewers plus the proposed sewers based on the sewer's design capacity?

If No, on a separate sheet, please describe the steps being taken to ensure that the treatment facility has adequate capacity. Include specific work items and schedules as appropriate.

MGD design year)

Yes No

c. Is there intent to expand the treatment facility to treat additional flows?

Yes

No

*Note: Flow data to be no older than one calendar year from date of PTI submission

5. Sewer Design

a. Are the sewers deep enough to serve all adjacent basements?

(refer to GLUMRB, Recommended Standards for Wastewater Facilities, 2004, Section 33.2)

If No, please explain how the basements will be served:

b. Are sewers at a sufficient depth to prevent freezing? (GLUMRB Section 33.2)

If No, please explain how freezing will be prevented:

c. Where small sewers join larger ones, have the inverts of the larger sewers been lowered sufficiently to maintain the same energy gradient? (GLUMRB Section 33.6)

d. Have provisions been made to protect sewers against displacement by erosion and impact at velocities over 15 fps? (GLUMRB Section 33.45)

e. Are sewers with slopes greater than 20 percent secured with concrete anchors (or equal), spaced as required? (GLUMRB Section 33.46)

f. Are there any overflows or bypasses upstream of the point of connection that may be impacted by the flows from the new sewer?

g. Are there any sanitary overflows or bypasses or combined sewer overflows downstream of the point of connection?

* (If Yes to f. or g., on a separate sheet provide a description of the exact location of any overflows or bypasses)

Yes No

Yes No

Yes No

Yes No

Yes No

Yes* No

Yes* No

N/A

N/A

N/A

h. Is the force main designed to withstand water hammer pressures and associated cyclic reversal of stresses that are expected with the cycling of wastewater pump stations?

(GLUMRB Section 49.4)

If No, please explain:

Yes

No

N/A

EPA 4309 (rev. 9/09)

Form B1

Page 2 of 4

(GLUMRB Section 38.2)
(GLUMRB Section 38.1)
(GLUMRB Section 34.2)
(GLUMRB Section 34.6)

6. Stream Protection

a. Are there any stream crossings? (If Yes, fill out the stream evaluation addendum)

 

Yes*

No

 

If Yes,

 

 

 

 

 

1.

How many crossings are made? (GLUMRB Section 36.14)

Number of crossings:

 

 

 

 

 

 

 

 

 

 

2.

Are the crossings perpendicular to the stream? (GLUMRB Section 36.14)

 

 

Yes

No

 

3.

Are crossings to be made at previously disturbed areas?

 

 

Yes

No

 

4.

Is the streambed substrate composed primarily of solid rock, sand and gravel, or silt?

Rock

Sand/gravel

Silt

5.

In areas of steep slope or unstable soils, are the sewers located on more level, terraced areas?

Yes

No

N/A

6.

Are the sewers at a sufficient depth to protect the sewer line? (GLUMRB Section 36.11)

 

Yes

No

N/A

b. Do any sewers run parallel to any streams?

 

 

Yes*

No

 

If Yes,

 

 

 

 

 

1.

Is there any woody vegetation along the stream banks?

 

 

Yes

No

 

2.

Are the sewers and construction easements located outside of the vegetated areas?

 

Yes

No

N/A

3.

In areas of steep slope or unstable soils, are the sewers located on more level, terraced areas?

Yes

No

N/A

*If the response to either a. or b. is Yes, please provide the specific measures in the detail plans and specifications that will be used to ensure that damage to the stream corridor is minimized to the greatest extent possible and that the stream corridor is restored to original condition.

7. Manhole Design

a. Manhole type (precast cast-in-place, etc.):

b. Material specification (ASTM):

c. Joint specification (ASTM):

d. Are watertight frames and covers used wherever manhole tops may be flooded by street runoff or high water?

If No, explain*:

e. Are manholes provided at the upstream end of each line? (GLUMRB Section 34.1)

If No, explain*:

Yes

Yes

No

No

N/A

f. Are manholes provided at all changes in size, grade, and alignment? (GLUMRB Section 34.1)

If No, explain*:

Yes

No

g. Are manholes provided at all sewer intersections? (GLUMRB Section 34.1)

If No, explain*:

Yes

No

h. Are drop manholes provided where the entrance sewer invert is 24 inches or more above the manhole invert?

If No, explain*:

i. Are inlet/outlet pipes connected with gasketed flexible watertight connections? (GLUMRB Section 34.6)

If No, explain*:

* Attach any additional sheets necessary for explanations.

Yes

Yes

No

No

N/A

8. Protection of Water Supplies

a. Are there any physical connections between the sewer and a public or private potable water supply system (including all appurtenances)?

b. Are any existing public waterworks units (for example public supply wells, water treatment facilities, storage facilities) within 200 feet of the proposed sewer or any private wells within

50 feet of the proposed sewer?

Yes

Yes

No

No

If Yes, specify the plan sheets on which the sources are shown:

 

 

 

If Yes, will sewers be encased or constructed of watertight pipe?

Encased

Watertight

 

c. Are the sewers at least 10 feet horizontally separated from water lines? (GLUMRB Section 38.31)

Yes

If No, please specify the plan sheets where these conditions are not met & describe the measures taken to ensure protection of the water system:

No

d. When crossing water mains, are the sewers at least 18 inches below water lines?

Yes

If No, please specify the plan sheets on which these conditions are not met and describe the measures taken to ensure protection of the water system:

No

EPA 4309 (rev. 9/09)

Form B1

Page 3 of 4

9. Installation and Testing

a. Installation Inspector:

Name:Firm:

Street Address:

City:State:

b. What type of sewer leakage test will be used? (GLUMRB 33.9)

Page numbers in specifications for testing requirements of gravity and pressure sewers:

c. Is flexible pipe deflection testing specified? (GLUMRB 33.85)

Page numbers in specifications for testing requirements of flexible pipe:

d. What type of manhole testing will be used? (GLUMRB Section 34.7)

Page numbers in specifications for testing requirements of manholes:

Phone: ( )

-

 

Zip:

 

 

 

 

 

 

 

 

 

Hydrostatic

Air

 

 

 

 

Yes

No

N/A

 

 

 

 

 

 

 

 

 

 

 

 

 

 

 

 

 

 

 

 

10. Sewer Use Ordinance

A statement that "Roof drains, foundation drains, and other clean water connections to the sanitary sewer system are prohibited" must be shown on the plans. Copies of the ordinances or regulations providing for the enforcement of this requirement must be on file with Ohio EPA.

a. An ordinance/regulation to this effect was adopted on:

/ /

(date).

 

 

 

 

 

 

 

 

 

 

b. Enforcement of this ordinance/regulation is the responsibility of:

 

 

 

 

Name:

 

 

 

 

 

 

 

 

 

 

 

 

Title:

 

 

 

 

 

 

 

 

 

 

c. It is the opinion of the engineer submitting these plans that adequate enforcement

 

 

 

of this ordinance/regulation is being properly carried out.

 

Yes

No

Unknown

11. Authorities

a. Plans for the proposed installation of a county, village, or municipal sewer that is tributary to a sewage treatment plant with another political entity must be accompanied by written consent of both entities.

Is a written inter-municipal agreement attached? If No, state what form of consent is provided:

Yes

No

N/A

12. Submittals:

This application must include the following unless otherwise directed by Ohio EPA:

Four copies of the detail plans including profile and plan views of all sewers (shown on the same sheet), existing (as applicable) and proposed pump station facilities, incorporating all of the details outlined in Section 20.1, 20.2 and 20.3 of Recommended Standards for Wastewater Facilities.

Two copies of complete technical specifications.

Two copies of the Application including Form A, pertinent B & C form(s), and antidegradation addendum (if applicable)

13. The foregoing data is a true statement of facts pertaining to this proposed sanitary sewer installation.

Date:

/

/

Signed:

 

P.E.

 

 

 

 

 

 

Plans prepared by:

EPA 4309 (rev. 9/09)

Form B1

Page 4 of 4

File Specifics

Fact Name Details
Form Purpose The Ohio EPA 4309 form serves as a supplement to the Permit-to-Install/Plan Approval application specifically for sanitary sewers.
Governing Laws This form is governed by the Ohio Administrative Code (OAC) 3745-42-05 and other relevant environmental regulations.
Project Description Applicants must provide detailed descriptions of the project location, including coordinates, potential future sewer extensions, and any included pump stations.
Pipe Specifications Applicants are required to identify types and sizes of pipes, including material specifications and classifications, ensuring compliance with Ohio EPA standards.
Design Flow Requirements The form requires identification of expected flows during start-up and design phases, including average daily and peak hourly flows.
Stream Protection Measures Applicants must address any stream crossings and provide details on measures taken to minimize damage to the stream corridor.
Manhole Design Standards Specific requirements for manhole types, materials, and watertight features must be adhered to, ensuring proper construction and maintenance.
Installation and Testing Protocols Details regarding the installation inspector and the types of tests for sewer leakage and manhole integrity must be included in the application.

How to Use Ohio Epa 4309

Completing the Ohio EPA 4309 form is essential for the application process regarding sanitary sewer installations. This form requires detailed information about the project, including specifications, design flows, and treatment facilities. It is crucial to ensure that all sections are filled out accurately to facilitate a smooth review process.

  1. Gather necessary information: Collect all relevant details regarding the project, including location, pipe specifications, design flows, and treatment facilities.
  2. Fill out the applicant information: Provide the applicant's name, facility owner, ultimate owner (if different), and the name of the project.
  3. Describe the project: In Section 1, detail the location, size, and current development of the area to be served, including the street address, township, county, and longitude and latitude coordinates.
  4. Assess future connections: Indicate the possibility of future sanitary sewer extensions connecting to the proposed sewers.
  5. Include pump stations: If applicable, note whether any pump stations are part of the construction and complete the required attachment.
  6. Specify sewer types: Check all types of sewers proposed in Section 1d.
  7. Detail pipe specifications: In Section 2, identify each type of pipe, its size, material, and specifications, ensuring compliance with Ohio EPA standards.
  8. Calculate design flow: In Section 3, provide expected flows at start-up and design, including assumptions used to calculate these flows.
  9. Identify treatment facility: In Section 4, specify the wastewater treatment facility that will receive the flow and confirm its capacity to handle the anticipated flows.
  10. Evaluate sewer design: Answer questions regarding the depth of sewers, protection against freezing, and other design considerations in Section 5.
  11. Assess stream protection: In Section 6, indicate if there are stream crossings or if any sewers run parallel to streams, providing details as necessary.
  12. Describe manhole design: In Section 7, provide information about manhole types, specifications, and any necessary watertight features.
  13. Address water supply protection: In Section 8, confirm the distance of sewers from public or private water supply systems and specify any protective measures.
  14. Outline installation and testing: In Section 9, provide the name of the installation inspector and detail the types of tests that will be conducted.
  15. Include sewer use ordinance: In Section 10, confirm that the required statement about clean water connections is included in the plans and provide enforcement details.
  16. Confirm inter-municipal agreements: In Section 11, indicate whether a written agreement is attached if applicable.
  17. Prepare submittals: Ensure that all required documents, including copies of plans and technical specifications, are included with the application.
  18. Sign and date the form: In Section 13, confirm that the information provided is accurate and sign the form.

Your Questions, Answered

What is the purpose of the Ohio EPA 4309 form?

The Ohio EPA 4309 form is a supplement to the Permit-to-Install/Plan Approval Application specifically for sanitary sewers. It serves as a detailed application that provides the Ohio Environmental Protection Agency with essential information about proposed sewer installations, including project descriptions, design flows, pipe specifications, and environmental considerations.

What information is required in the project description section?

The project description section requires details about the location, size, and current development of the area to be served. Applicants must include the street address, township, county, and geographic coordinates (longitude and latitude). Additionally, it asks about the potential for future sewer extensions and whether any pump stations are part of the construction.

How do I determine the design flow for the proposed sewer?

To determine the design flow, applicants must identify the expected flows at start-up and at design. This includes calculating average daily flows and peak hourly flows based on current and projected residential and non-residential populations. The form provides specific guidelines for calculating these flows, including assumptions about residential population and non-residential contributions.

What are the requirements for pipe specifications?

Applicants must identify the types and sizes of pipes included in the project, along with their materials and specifications. Each pipe must meet specific ASTM, AWWA, or ANSI standards, and any non-listed specifications must be submitted for approval. The form includes a table to fill out these details, ensuring compliance with Ohio EPA standards.

What should I include regarding the receiving wastewater treatment facility?

When addressing the receiving wastewater treatment facility, applicants must provide information about its current and proposed average daily flows. It's crucial to confirm whether the facility has adequate capacity to treat the anticipated flows from the new sewers. If the facility does not have sufficient capacity, the applicant must describe the steps being taken to remedy this situation.

What considerations are there for stream protection?

Stream protection is an important aspect of the application. If there are stream crossings or if sewers run parallel to streams, the applicant must indicate how many crossings are made and whether they are perpendicular to the stream. Additionally, the form asks for measures that will minimize damage to the stream corridor and ensure its restoration after construction.

What is the significance of manhole design in the application?

Manhole design is crucial for the functionality and maintenance of the sewer system. The application requires details about the type and material specifications of manholes, as well as whether watertight frames and covers are used in flood-prone areas. Proper manhole placement and design help prevent issues such as infiltration and ensure effective wastewater management.

How does the application address the protection of water supplies?

The application includes questions about any physical connections between the sewer and potable water supply systems. It requires information about the proximity of public waterworks to the proposed sewer and the measures taken to ensure horizontal and vertical separations. This is critical for preventing contamination and protecting public health.

What are the submission requirements for the Ohio EPA 4309 form?

To complete the application, several documents must be submitted, including four copies of detailed plans, two copies of technical specifications, and the completed application form. It's essential to ensure that all required documents are included to avoid delays in processing the application.

Common mistakes

  1. Incomplete Project Description: Failing to provide a comprehensive description of the project location, size, and current development can lead to significant delays. It's essential to include the street address, township, county, and precise longitude and latitude coordinates.

  2. Neglecting Future Extensions: Not addressing the possibility of future sanitary sewer extensions connecting to the proposed sewers can result in inadequate planning. This information is crucial for ensuring the system's long-term functionality.

  3. Missing Pump Station Details: If pump stations are part of the sewer construction, failing to fill out the required attachment can lead to incomplete applications. Ensure that all relevant details are provided to avoid complications.

  4. Incorrect Pipe Specifications: Providing inaccurate information about pipe types, sizes, and materials can cause issues during installation. It's important to refer to the Ohio EPA’s pipe specification list and include all necessary ASTM, AWWA, or ANSI specification numbers.

  5. Ignoring Treatment Facility Capacity: Not confirming whether the receiving wastewater treatment facility can handle the anticipated flows can lead to operational challenges. If the facility lacks capacity, steps must be detailed to address this issue.

  6. Overlooking Stream Protection Measures: Failing to identify stream crossings and their impact can have serious environmental consequences. If there are stream crossings, it's vital to fill out the stream evaluation addendum and provide specific measures to minimize damage.

Documents used along the form

The Ohio EPA 4309 form is a crucial document for those looking to apply for a permit related to sanitary sewer installations. Alongside this form, several other documents are commonly required to ensure compliance with environmental regulations and to facilitate the approval process. Below is a list of these documents, each described briefly for clarity.

  • Form A – Application for Permit-to-Install: This is the primary application form required by the Ohio EPA for obtaining a permit to install new sewer systems or modify existing ones. It collects essential information about the project and its purpose.
  • Form B1 – Supplement to Form A: This form provides additional details specific to the sewer installation, including technical specifications, design flows, and manhole designs. It supports the main application by offering a deeper insight into the project.
  • Technical Specifications: These documents outline the materials and methods that will be used in the sewer construction. They ensure that the project meets industry standards and safety regulations.
  • Site Plans: Detailed drawings that show the proposed layout of the sewer system, including the locations of pipes, manholes, and any associated structures. These plans help visualize the project and its impact on the surrounding area.
  • Hydraulic Calculations: This document includes calculations that demonstrate the expected flow rates and hydraulic capacity of the proposed sewer system. It is critical for ensuring that the system will function as intended.
  • Environmental Impact Assessment (EIA): An evaluation of the potential environmental effects of the proposed sewer installation. This assessment helps identify any risks and outlines measures to mitigate negative impacts.
  • Inter-Municipal Agreement: If the sewer project involves multiple municipalities, this agreement outlines the responsibilities and consent of each entity involved. It is essential for collaborative projects.
  • Construction Schedule: A timeline detailing the phases of construction, including start and completion dates. This helps in project management and ensures that all parties are aware of the expected timeline.
  • Sewer Use Ordinance: A document that outlines regulations regarding the use of the sewer system. It typically includes prohibitions on certain types of connections, such as roof drains and foundation drains.

These documents collectively support the application process for the Ohio EPA 4309 form. They provide the necessary information to assess the feasibility and compliance of the proposed sewer installation, ensuring that environmental standards are met and public health is safeguarded.

Similar forms

The Ohio EPA 4309 form shares similarities with the EPA Form 7500-1, which is used for hazardous waste manifesting. Both forms require detailed information about the project, including descriptions of the materials involved and the locations where the work will occur. Just as the Ohio EPA 4309 form asks for specific technical details about sewer installations, the EPA Form 7500-1 requires precise data about the hazardous waste being transported, including its type, quantity, and the parties involved in the process. Both documents serve to ensure compliance with environmental regulations and protect public health.

Another document akin to the Ohio EPA 4309 form is the National Pollutant Discharge Elimination System (NPDES) permit application. This application is necessary for any entity discharging pollutants into waters of the United States. Similar to the Ohio EPA 4309, the NPDES application requires comprehensive information about the project, including the nature of the discharge, the location, and the expected impact on the environment. Both forms are designed to assess potential environmental risks and ensure that appropriate measures are in place to mitigate them.

The Clean Water Act Section 404 permit application is also comparable to the Ohio EPA 4309 form. This application is required for any project that involves the discharge of dredged or fill material into waters, including wetlands. Like the Ohio EPA 4309, it necessitates detailed project descriptions, including the location and the potential impacts on water quality. Both documents emphasize the importance of protecting water resources and ensuring that projects comply with environmental standards.

In addition, the Ohio EPA’s General Permit for Stormwater Discharges Associated with Construction Activities (GP-1) has similarities with the Ohio EPA 4309 form. Both documents require project developers to provide information about their plans, including site details and potential environmental impacts. The GP-1 focuses on stormwater management, while the Ohio EPA 4309 is concerned with sewer installations. However, both serve the purpose of ensuring that construction activities do not adversely affect the environment.

The Ohio EPA 401 Water Quality Certification application is another document that parallels the Ohio EPA 4309 form. This certification is necessary for projects that may impact water quality and is often required for federal permits. Similar to the Ohio EPA 4309, the 401 application requires detailed information about the project, including potential impacts on water quality and proposed mitigation measures. Both forms aim to protect water resources and ensure compliance with environmental laws.

The Ohio EPA’s Air Quality Permit-to-Install application also shares commonalities with the Ohio EPA 4309 form. This application is necessary for facilities that emit air pollutants and requires detailed technical information about the emissions and control measures. Both forms demand thorough project descriptions and technical specifications to assess compliance with environmental standards and protect public health.

Furthermore, the Ohio EPA’s Solid Waste Facility Permit application is similar to the Ohio EPA 4309 form. This application is required for the construction and operation of solid waste facilities and requires detailed information about the facility design, waste types, and environmental impact. Both documents serve to ensure that projects comply with environmental regulations and protect public health and safety.

The Stormwater Pollution Prevention Plan (SWPPP) is another document that aligns with the Ohio EPA 4309 form. The SWPPP is required for construction activities that disturb soil and aims to prevent stormwater pollution. Similar to the Ohio EPA 4309, it requires detailed information about the project, including site conditions and erosion control measures. Both documents emphasize the importance of protecting water quality during construction activities.

Lastly, the Ohio EPA’s Drinking Water Permit application is comparable to the Ohio EPA 4309 form. This application is necessary for public water systems and requires detailed information about the water source, treatment processes, and distribution system. Like the Ohio EPA 4309, it aims to ensure that projects comply with health and safety standards and protect public health by providing safe drinking water.

Dos and Don'ts

Do's and Don'ts for Filling Out the Ohio EPA 4309 Form

  • Do provide accurate location details, including street address, township, and coordinates.
  • Do check all applicable sewer types in section 1d.
  • Do ensure that pipe specifications meet Ohio EPA standards.
  • Do clearly state the expected design flows in section 3.
  • Don't leave any sections blank; complete all required fields.
  • Don't submit outdated flow data; ensure it is current within one year.
  • Don't ignore the need for an inter-municipal agreement if applicable.
  • Don't forget to include necessary attachments, such as technical specifications and plans.

Misconceptions

Understanding the Ohio EPA 4309 form is essential for anyone involved in sanitary sewer projects. However, several misconceptions can lead to confusion. Here are eight common misconceptions about the form, along with clarifications.

  • Misconception 1: The form is only for new sewer installations.
  • This form can also be used for modifications or expansions of existing sewer systems. It addresses various aspects of sewer planning and installation, regardless of whether they are new or existing.

  • Misconception 2: Only engineers need to fill out the form.
  • While engineers often prepare the application, anyone involved in the project, including facility owners and applicants, should understand the requirements and details outlined in the form.

  • Misconception 3: The form is only concerned with technical specifications.
  • In addition to technical details, the form also addresses environmental impacts, capacity considerations, and compliance with local regulations, making it a comprehensive document.

  • Misconception 4: Submitting the form guarantees approval.
  • Submission of the form does not guarantee approval. The Ohio EPA reviews each application carefully and may request additional information or modifications before granting approval.

  • Misconception 5: There are no deadlines for submitting the form.
  • Timely submission is crucial. Projects often have specific timelines, and delays in submitting the form can lead to project setbacks or complications.

  • Misconception 6: The form does not require public input.
  • Public input may be necessary, especially for larger projects that could impact the community. This ensures that local concerns are addressed during the planning process.

  • Misconception 7: Once submitted, the form cannot be amended.
  • Amendments can be made if necessary. If project details change after submission, it is important to update the Ohio EPA with the new information to ensure compliance.

  • Misconception 8: The form is the only requirement for sewer projects.
  • Other permits and approvals may be required depending on the project's scope and location. It is essential to check for additional requirements that may apply.

Key takeaways

  • The Ohio EPA 4309 form is crucial for applications related to the installation and approval of sanitary sewers. It serves as a supplement to the primary application and requires detailed project information.

  • Applicants must provide comprehensive project descriptions, including the location, size, and current development status of the area served. Specific coordinates, such as longitude and latitude, are necessary for accurate identification.

  • Understanding the design flow is essential. The form requires applicants to estimate both start-up and design flows, considering future development and existing conditions. This data is vital for assessing the sewer's hydraulic capacity.

  • Receiving wastewater treatment facilities must have adequate capacity. If the anticipated flows exceed the treatment facility's capabilities, applicants must outline steps to ensure capacity is sufficient.

  • Stream protection measures are critical. The form inquires about any stream crossings and requires explanations if certain conditions, such as the depth of sewers or the presence of vegetation, are not met.

  • Finally, applicants must ensure that a sewer use ordinance is in place. This ordinance should prohibit clean water connections to the sanitary sewer system and must be enforced adequately.