Blank New York Acp9 PDF Form

Blank New York Acp9 PDF Form

The New York ACP9 form serves as an Asbestos Variance Application required by the Department of Environmental Protection for projects that necessitate deviations from standard asbestos regulations. This form must be completed and submitted at least two weeks before the commencement of any related work. To ensure compliance and facilitate the approval process, it is essential to fill out the form accurately and thoroughly.

Begin your application by clicking the button below.

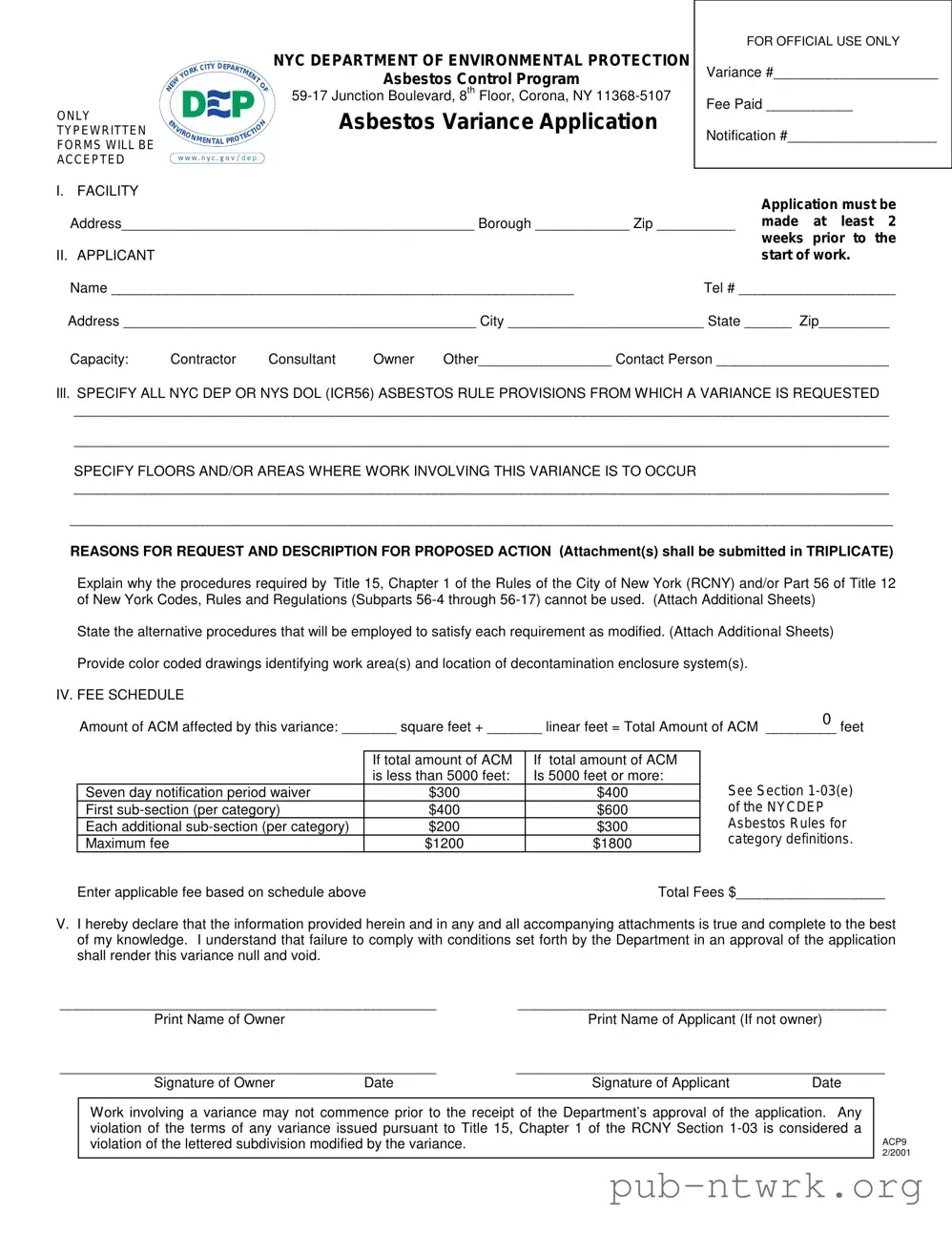
The New York ACP9 form is a crucial document for individuals and organizations seeking a variance from specific asbestos regulations enforced by the New York City Department of Environmental Protection (DEP). This form is designed for those who need to deviate from the standard procedures outlined in Title 15, Chapter 1 of the Rules of the City of New York and Part 56 of Title 12 of the New York Codes, Rules, and Regulations. It requires applicants to provide detailed information about the facility where the work will take place, including the address and the specific areas affected by the proposed action. The applicant must also identify their role—whether as a contractor, consultant, or owner—and include a contact person for further communication. To ensure compliance, the form mandates a clear explanation of why standard procedures cannot be used and outlines alternative methods that will be implemented. Additionally, applicants must include color-coded drawings that identify the work areas and the locations of decontamination systems. The ACP9 form also includes a fee schedule based on the amount of asbestos-containing material (ACM) involved, with a maximum fee cap, ensuring that the financial aspect is transparent. Importantly, work cannot commence until the DEP has approved the application, underscoring the significance of adhering to regulatory requirements in asbestos management.

Document Sample

ONLY TYPEWRITTEN FORMS WILL BE ACCEPTED

 

 

 

Y D

EPA

 

 

NYC DEPARTMENT OF ENVIRONMENTAL PROTECTION

 

 

K

CIT

 

 

 

 

 

 

RT

 

 

 

R

 

 

M

E

Asbestos Control Program

 

O

 

 

 

 

 

W

 

 

 

 

O

 

Y

 

 

 

 

N

 

 

E

 

 

 

 

T

 

N

 

 

 

 

F

59-17 Junction Boulevard, 8th Floor, Corona, NY 11368-5107

 

 

 

 

 

 

I

 

 

 

 

 

 

 

T

N

Asbestos Variance Application

N

 

 

 

 

 

 

 

 

 

 

E

 

 

 

 

 

 

 

 

 

 

 

V

R

 

 

 

 

 

 

IO

 

 

 

 

 

 

 

 

C

 

 

 

 

O

N

 

 

 

E

 

 

 

 

 

 

M

 

T

 

 

 

 

 

 

 

 

O

 

 

 

 

 

 

 

 

 

 

ENTAL PR

 

 

 

 

 

 

w w w . n y c . g o v / d e p

FOR OFFICIAL USE ONLY

Variance #_____________________

Fee Paid ___________

Notification #___________________

I. FACILITY

 

 

Application must be

Address_____________________________________________ Borough ____________ Zip __________

made

at least

2

 

 

weeks

prior to

the

II. APPLICANT

 

start of work.

 

Name ___________________________________________________________

Tel # ____________________

Address _____________________________________________ City _________________________ State ______ Zip_________

Capacity: ¸Contractor ¸Consultant ¸Owner ¸Other_________________ Contact Person ______________________

Ill. SPECIFY ALL NYC DEP OR NYS DOL (ICR56) ASBESTOS RULE PROVISIONS FROM WHICH A VARIANCE IS REQUESTED

________________________________________________________________________________________________________

________________________________________________________________________________________________________

SPECIFY FLOORS AND/OR AREAS WHERE WORK INVOLVING THIS VARIANCE IS TO OCCUR

________________________________________________________________________________________________________

_________________________________________________________________________________________________________

REASONS FOR REQUEST AND DESCRIPTION FOR PROPOSED ACTION (ATTACHMENT(S) SHALL BE SUBMITTED IN TRIPLICATE)

Explain why the procedures required by Title 15, Chapter 1 of the Rules of the City of New York (RCNY) and/or Part 56 of Title 12 of New York Codes, Rules and Regulations (Subparts 56-4 through 56-17) cannot be used. (Attach ADDITIONAL Sheets)

State the alternative procedures that will be employed to satisfy each requirement as modified. (Attach ADDITIONAL Sheets)

Provide color coded drawings identifying work area(s) and location of decontamination enclosure system(s).

IV. FEE SCHEDULE

 

 

 

 

0

Amount of ACM affected by this variance: _______ square feet + _______ linear feet = Total Amount of ACM _________ feet

 

 

 

 

 

 

 

If total amount of ACM

If total amount of ACM

 

 

 

is less than 5000 feet:

Is 5000 feet or more:

See Section 1-03(e)

Seven day notification period waiver

 

$300

$400

First sub-section (per category)

 

$400

$600

of the NYCDEP

Each additional sub-section (per category)

 

$200

$300

Asbestos Rules for

 

 

 

 

category definitions.

Maximum fee

 

$1200

$1800

 

 

Enter applicable fee based on schedule above

 

Total Fees $___________________

V.I hereby declare that the information provided herein and in any and all accompanying attachments is true and complete to the best of my knowledge. I understand that failure to comply with conditions set forth by the Department in an approval of the application shall render this variance null and void.

________________________________________________

_______________________________________________

Print Name of Owner

 

Print Name of Applicant (If not owner)

________________________________________________

_______________________________________________

Signature of Owner

Date

Signature of Applicant

Date

Work involving a variance may not commence prior to the receipt of the Department’s approval of the application. Any violation of the terms of any variance issued pursuant to Title 15, Chapter 1 of the RCNY Section 1-03 is considered a violation of the lettered subdivision modified by the variance.

ACP9 2/2001

Click here if you wish to obtain a voter registration form. Government services are not conditioned on being registered to vote. A voter registration form can also be obtained at http://nyc. gov/html/misc/html/register. html, or by calling (212) 868-3692.

File Specifics

Fact Name Description
Form Purpose The ACP9 form is used to apply for an asbestos variance in New York City.
Submission Requirement Applications must be submitted at least two weeks before the start of work.
Governing Laws This form is governed by Title 15, Chapter 1 of the Rules of the City of New York and Part 56 of Title 12 of New York Codes, Rules and Regulations.
Fee Structure Fees vary based on the amount of asbestos-containing material (ACM) affected and other factors.
Official Use Sections for official use include Variance #, Fee Paid, and Notification #.
Attachments Required Applicants must attach additional sheets explaining alternative procedures and provide color-coded drawings of work areas.
Declaration Applicants must declare the truthfulness of the information provided and understand the consequences of non-compliance.
Work Commencement Work cannot begin until the Department approves the variance application.
Maximum Fees The maximum fee for the application can reach up to $1,200 or $1,800 depending on the ACM involved.

How to Use New York Acp9

Completing the New York ACP9 form is an essential step in the process of applying for an asbestos variance. This application must be submitted at least two weeks before the intended start of work. The information provided will be used to assess your request and ensure compliance with safety regulations. Below are the steps to fill out the form accurately.

  1. Obtain the Form: Ensure you have the latest version of the ACP9 form, which can be downloaded from the NYC Department of Environmental Protection website.
  2. Type Your Information: Fill out the form using a typewriter or a computer, as only typewritten forms will be accepted.
  3. Section I - Facility: Enter the address of the facility where the work will take place, along with the borough and zip code.
  4. Section II - Applicant: Provide your name, telephone number, and address. Indicate your capacity (e.g., Contractor, Consultant, Owner) and include the contact person's name.
  5. Section III - Asbestos Rule Provisions: Specify the NYC DEP or NYS DOL asbestos rule provisions from which you are requesting a variance. Clearly describe the floors and/or areas where the work will occur.
  6. Reasons for Request: Explain why the standard procedures cannot be used. Attach additional sheets if necessary. Describe the alternative procedures you will implement to meet the requirements.
  7. Color-Coded Drawings: Attach drawings that identify the work areas and the locations of decontamination enclosure systems.
  8. Section IV - Fee Schedule: Calculate the total amount of asbestos-containing material (ACM) affected. Based on the total, determine the applicable fees and fill in the total fees section.
  9. Section V - Declaration: Both the owner and applicant must print their names, sign, and date the form, confirming that all information is accurate and complete.
  10. Submission: Submit the completed form along with any required attachments to the address provided on the form.

After submitting the ACP9 form, you will await the Department's approval. Remember, work cannot commence until you receive this approval. Compliance with the conditions set forth in the approval is crucial to avoid any violations.

Your Questions, Answered

What is the New York ACP9 form?

The New York ACP9 form is an Asbestos Variance Application used to request permission to deviate from specific asbestos regulations set by the NYC Department of Environmental Protection (DEP). This form is essential for any work involving asbestos that requires a variance from the standard procedures outlined in Title 15, Chapter 1 of the Rules of the City of New York and Part 56 of Title 12 of New York Codes, Rules, and Regulations.

Who needs to fill out the ACP9 form?

Any contractor, consultant, owner, or other responsible party planning to conduct work involving asbestos in New York City must complete the ACP9 form. This includes those seeking to modify or request exceptions to existing asbestos control regulations. The application must be submitted at least two weeks before the planned start of work.

What information is required on the ACP9 form?

The ACP9 form requires several key pieces of information, including:

  • Facility address and borough.
  • Applicant's name, contact information, and capacity (e.g., contractor, owner).
  • Specific asbestos regulations from which a variance is being requested.
  • Details about the work area and reasons for the variance request.
  • A fee calculation based on the amount of asbestos-containing material (ACM) affected.

Additionally, applicants must provide color-coded drawings of the work areas and decontamination systems.

What are the fees associated with the ACP9 form?

The fees for submitting the ACP9 form depend on the total amount of ACM affected:

  1. If the total amount of ACM is less than 5,000 square feet, the fee is $300.
  2. If the total amount of ACM is 5,000 square feet or more, the fee is $400.
  3. Additional fees apply for each category and sub-section of the NYCDEP asbestos rules, with a maximum fee of $1,200 for smaller projects and $1,800 for larger projects.

It is crucial to accurately calculate and submit the correct fees along with the application.

What happens after submitting the ACP9 form?

Once the ACP9 form is submitted, the applicant must wait for approval from the NYC DEP before commencing any work involving asbestos. The application will be reviewed, and if approved, the applicant will receive a variance. It is important to adhere to all conditions set forth in the approval, as failure to comply may render the variance null and void.

Common mistakes

  1. Not using a typewritten format. The form explicitly states that only typewritten submissions will be accepted.

  2. Failing to submit the application at least two weeks before the start of work. Timeliness is crucial for approval.

  3. Omitting required information in the facility section. Ensure all fields, such as address and borough, are completed.

  4. Neglecting to specify all NYC DEP or NYS DOL asbestos rule provisions from which a variance is requested. This section is critical for the review process.

  5. Not providing detailed reasons for the variance request. Explain why standard procedures cannot be used.

  6. Forgetting to attach necessary documents in triplicate. Attachments are essential for a complete application.

  7. Incorrectly calculating the total amount of Asbestos Containing Material (ACM) affected. Ensure the math is accurate.

  8. Not signing the application. Both the owner and applicant must provide their signatures and dates.

  9. Beginning work before receiving approval from the Department. This can lead to serious violations.

Documents used along the form

The New York ACP9 form is a crucial document for individuals or entities seeking a variance in asbestos control procedures. Along with this form, several other documents may be necessary to ensure compliance with local regulations. Below is a list of these documents, each briefly described.

  • Asbestos Notification Form: This form is required to notify the NYC Department of Environmental Protection about any asbestos-related work being planned. It must be submitted prior to the commencement of work to ensure proper oversight.
  • Asbestos Management Plan: A comprehensive plan outlining how asbestos will be managed during a project. It includes details about the identification, handling, and disposal of asbestos materials to ensure safety and compliance.
  • Site Safety Plan: This document details the safety protocols and procedures that will be followed on-site. It addresses potential hazards and outlines measures to protect workers and the public during asbestos-related activities.
  • Air Monitoring Plan: This plan specifies how air quality will be monitored during asbestos removal or disturbance. It includes methods for sampling and analyzing air to ensure that asbestos levels remain within safe limits.
  • Waste Disposal Plan: A document outlining how asbestos waste will be handled and disposed of. It ensures that all waste is managed according to local, state, and federal regulations to prevent environmental contamination.
  • Training Records: Documentation showing that all personnel involved in asbestos work have received the necessary training. This ensures compliance with safety regulations and helps maintain a safe work environment.
  • Insurance Certificates: Proof of insurance coverage for asbestos-related work. This protects both the contractor and the property owner from potential liabilities associated with asbestos exposure and removal.

These documents collectively support the ACP9 form and facilitate a smoother approval process. Ensuring all necessary paperwork is completed accurately can help mitigate delays and enhance safety during asbestos-related projects.

Similar forms

The New York ACP9 form is similar to the New York City Department of Environmental Protection (DEP) Asbestos Notification Form. Both documents serve to inform the DEP about asbestos-related activities. The Asbestos Notification Form requires details about the work being done, including the location and type of asbestos involved. Like the ACP9, it emphasizes the importance of notifying the DEP prior to commencing work, ensuring that safety protocols are followed and that the environment is protected from potential hazards.

Another document that shares similarities with the ACP9 is the New York State Department of Labor (DOL) Asbestos Notification Form. This form is required for any asbestos-related work that falls under state regulations. It collects similar information about the worksite, the contractor, and the type of asbestos involved. Both forms prioritize safety and regulatory compliance, ensuring that the appropriate authorities are aware of the planned activities and can monitor them effectively.

The EPA Asbestos Demolition Notification Form is also comparable to the ACP9. This federal form must be submitted when demolishing structures that contain asbestos. Like the ACP9, it requires the identification of asbestos materials and the submission of plans for their safe removal. Both documents aim to protect public health and the environment by ensuring that asbestos is handled properly during demolition or renovation projects.

The New York City Building Permit Application is another document that resembles the ACP9. When applying for a building permit, contractors must disclose any asbestos-related work. This requirement aligns with the ACP9’s focus on notifying authorities about asbestos activities. Both forms facilitate compliance with regulations designed to safeguard public health and safety during construction or renovation projects.

The New York City Air Pollution Control Permit Application shares similarities with the ACP9 as well. This permit is necessary for any activity that may release pollutants into the air, including asbestos. The ACP9 requires applicants to specify the asbestos work being performed, while the Air Pollution Control Permit Application demands information about emissions and control measures. Both documents aim to regulate activities that could impact air quality and public health.

The New York State Environmental Quality Review (SEQR) Application is another relevant document. When a project may have environmental impacts, including those related to asbestos, a SEQR review is necessary. Similar to the ACP9, the SEQR Application requires detailed information about the project and its potential effects on the environment. Both forms help ensure that environmental considerations are taken into account before work begins.

The Hazardous Waste Manifest is also akin to the ACP9. This document is used to track the disposal of hazardous waste, including asbestos. When asbestos is removed, it must be properly documented to ensure safe handling and disposal. Like the ACP9, the Hazardous Waste Manifest emphasizes compliance with regulations designed to protect public health and the environment.

The New York City Department of Health and Mental Hygiene Asbestos Management Plan is another similar document. This plan outlines how asbestos will be managed in buildings and is required for compliance with health regulations. The ACP9, while focused on variances, also addresses how asbestos will be handled during work. Both documents aim to ensure that asbestos is managed safely to protect occupants and workers.

The Asbestos Abatement Project Plan is comparable to the ACP9 as well. This plan details the procedures and safety measures that will be implemented during asbestos removal. Similar to the ACP9, it requires a thorough understanding of the work to be performed and the potential risks involved. Both documents are essential for ensuring that asbestos is handled properly and safely during abatement activities.

Lastly, the New York City Department of Buildings (DOB) Work Permit Application is similar to the ACP9 in that it requires information about construction activities, including any asbestos-related work. The DOB application ensures that all necessary permits are obtained before work begins, mirroring the ACP9's requirement for prior approval from the DEP. Both forms are integral to maintaining safety and regulatory compliance in construction and renovation projects.

Dos and Don'ts

When filling out the New York ACP9 form, it is essential to follow specific guidelines to ensure the application is processed smoothly. Below is a list of things to do and not to do.

  • Use a typewriter or a computer to fill out the form. Handwritten forms will not be accepted.
  • Submit the application at least 2 weeks prior to the start of work to allow for processing time.
  • Provide complete and accurate information in all sections of the form, including contact details and facility information.
  • Attach all required documentation in triplicate, including any color-coded drawings and additional sheets as needed.
  • Double-check the fee schedule and ensure the correct fee is calculated based on the amount of ACM affected.
  • Do not leave any sections blank; incomplete forms may be rejected.
  • Avoid using abbreviations or jargon that may confuse the reviewers.
  • Do not submit the application without the necessary signatures from both the owner and the applicant.
  • Do not commence any work until you have received official approval from the Department.

Misconceptions

Understanding the New York ACP9 form can be tricky, and there are several misconceptions that can lead to confusion. Here’s a clear look at some of the most common misunderstandings:

  1. Only contractors can apply for a variance. Many believe that only contractors have the authority to submit the ACP9 form. In reality, owners, consultants, and others can also apply.
  2. Applications can be submitted at any time. Some think they can submit the application whenever they want. However, it must be submitted at least two weeks prior to the start of work.
  3. All forms must be handwritten. A common myth is that the forms need to be filled out by hand. In fact, only typewritten forms will be accepted.
  4. Once submitted, the application is guaranteed to be approved. There’s a misconception that submitting the form ensures approval. Approval is not guaranteed; the Department will review and decide based on the information provided.
  5. Fees are fixed and cannot change. Some people think that the fees for the variance are set in stone. The fees can vary based on the amount of asbestos involved and other factors.
  6. Work can start immediately after application submission. Many assume that they can begin work as soon as they submit the ACP9 form. This is incorrect; work cannot commence until the Department approves the application.
  7. Only one copy of attachments is needed. Some believe that only a single copy of any attachments is necessary. In fact, attachments must be submitted in triplicate.
  8. The variance applies to all asbestos regulations. There’s a misconception that a variance covers all asbestos-related regulations. However, it only applies to specific provisions from which a variance is requested.
  9. Providing false information has no consequences. Some think that inaccuracies on the form won't matter. In truth, providing false information can render the variance null and void.

By clearing up these misconceptions, you can navigate the ACP9 form process more effectively. Always ensure you have the correct information before proceeding with your application.

Key takeaways

Filling out the New York ACP9 form is a crucial step for those seeking an asbestos variance. Here are some key takeaways to keep in mind:

  • Typewritten Forms Only: Ensure that the form is completed using a typewriter or a computer. Handwritten submissions will not be accepted.
  • Advance Notice Required: Submit your application at least two weeks before the planned start of any work. This timeline is essential for processing your request.
  • Complete All Sections: Fill in all required information accurately, including the facility address, applicant details, and specific provisions from which you are requesting a variance.
  • Attach Supporting Documents: Provide detailed explanations and any necessary attachments in triplicate. This includes color-coded drawings of work areas and alternative procedures to be used.
  • Understand the Fee Structure: Be aware of the fee schedule based on the amount of asbestos-containing material (ACM) affected. Fees vary significantly depending on the total square footage and linear footage of ACM.

By following these guidelines, you can navigate the ACP9 form process more effectively and ensure compliance with the necessary regulations.