Blank Michigan Sworn PDF Form

Blank Michigan Sworn PDF Form

The Michigan Sworn Form is a legal document used by contractors and subcontractors to provide a sworn statement regarding payments owed to subcontractors, suppliers, and laborers for construction work. This form ensures that all parties involved in a construction project are aware of any outstanding financial obligations, helping to prevent potential claims against the property. To fill out the Michigan Sworn Form, click the button below.

The Michigan Sworn form serves a critical role in the construction industry, ensuring transparency and accountability among contractors, subcontractors, and property owners. This document is essentially a sworn statement where the contractor or subcontractor declares their status and details regarding payments owed to laborers, suppliers, and subcontractors involved in a specific project. It requires the contractor to list each party they have contracted with, along with the amounts due for work completed but not yet paid. The form also emphasizes the importance of accurately reporting any claims against the property, as it aims to protect the owner from potential construction liens. Furthermore, it includes warnings about the consequences of providing false information, underscoring the seriousness of the declaration. By requiring notarization, the form adds an extra layer of credibility, ensuring that the statements made are both reliable and legally binding. This process ultimately fosters trust and protects the rights of all parties involved in construction projects throughout Michigan.

Document Sample

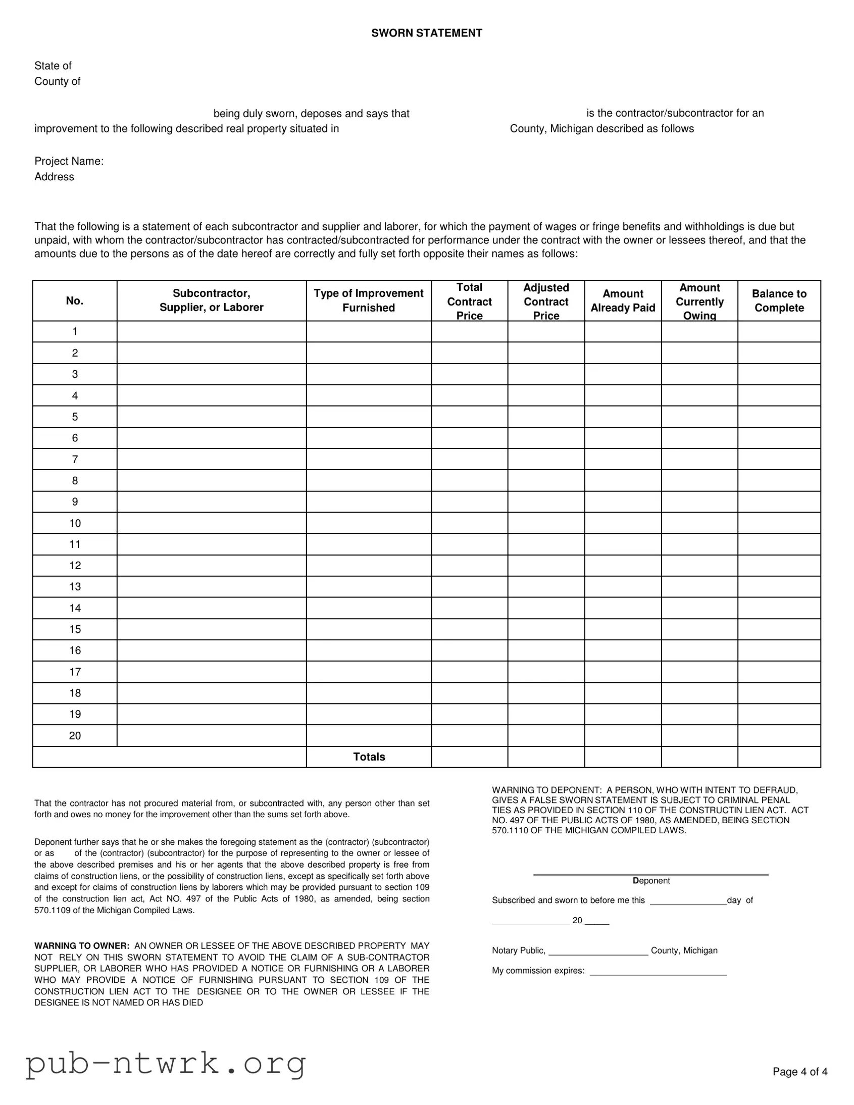
SWORN STATEMENT

 

State of

 

County of

 

being duly sworn, deposes and says that

is the contractor/subcontractor for an

improvement to the following described real property situated in

County, Michigan described as follows

Project Name:

 

Address

 

That the following is a statement of each subcontractor and supplier and laborer, for which the payment of wages or fringe benefits and withholdings is due but unpaid, with whom the contractor/subcontractor has contracted/subcontracted for performance under the contract with the owner or lessees thereof, and that the amounts due to the persons as of the date hereof are correctly and fully set forth opposite their names as follows:

 

Subcontractor,

Type of Improvement

Total

Adjusted

Amount

Amount

Balance to

No.

Contract

Contract

Currently

Supplier, or Laborer

Furnished

Already Paid

Complete

 

Price

Price

Owing

 

 

 

 

 

1

 

 

 

 

 

 

 

 

 

 

 

 

 

 

 

2

 

 

 

 

 

 

 

 

 

 

 

 

 

 

 

3

 

 

 

 

 

 

 

 

 

 

 

 

 

 

 

4

 

 

 

 

 

 

 

 

 

 

 

 

 

 

 

5

 

 

 

 

 

 

 

 

 

 

 

 

 

 

 

6

 

 

 

 

 

 

 

 

 

 

 

 

 

 

 

7

 

 

 

 

 

 

 

 

 

 

 

 

 

 

 

8

 

 

 

 

 

 

 

 

 

 

 

 

 

 

 

9

 

 

 

 

 

 

 

 

 

 

 

 

 

 

 

10

 

 

 

 

 

 

 

 

 

 

 

 

 

 

 

11

 

 

 

 

 

 

 

 

 

 

 

 

 

 

 

12

 

 

 

 

 

 

 

 

 

 

 

 

 

 

 

13

 

 

 

 

 

 

 

 

 

 

 

 

 

 

 

14

 

 

 

 

 

 

 

 

 

 

 

 

 

 

 

15

 

 

 

 

 

 

 

 

 

 

 

 

 

 

 

16

 

 

 

 

 

 

 

 

 

 

 

 

 

 

 

17

 

 

 

 

 

 

 

 

 

 

 

 

 

 

 

18

 

 

 

 

 

 

 

 

 

 

 

 

 

 

 

19

 

 

 

 

 

 

 

 

 

 

 

 

 

 

 

20

 

 

 

 

 

 

 

 

 

 

 

 

 

 

 

 

 

Totals

 

 

 

 

 

 

 

 

 

 

 

 

 

That the contractor has not procured material from, or subcontracted with, any person other than set forth and owes no money for the improvement other than the sums set forth above.

Deponent further says that he or she makes the foregoing statement as the (contractor) (subcontractor)

or as of the (contractor) (subcontractor) for the purpose of representing to the owner or lessee of the above described premises and his or her agents that the above described property is free from claims of construction liens, or the possibility of construction liens, except as specifically set forth above and except for claims of construction liens by laborers which may be provided pursuant to section 109 of the construction lien act, Act NO. 497 of the Public Acts of 1980, as amended, being section 570.1109 of the Michigan Compiled Laws.

WARNING TO OWNER: AN OWNER OR LESSEE OF THE ABOVE DESCRIBED PROPERTY MAY NOT RELY ON THIS SWORN STATEMENT TO AVOID THE CLAIM OF A SUB-CONTRACTOR SUPPLIER, OR LABORER WHO HAS PROVIDED A NOTICE OR FURNISHING OR A LABORER WHO MAY PROVIDE A NOTICE OF FURNISHING PURSUANT TO SECTION 109 OF THE CONSTRUCTION LIEN ACT TO THE DESIGNEE OR TO THE OWNER OR LESSEE IF THE DESIGNEE IS NOT NAMED OR HAS DIED

WARNING TO DEPONENT: A PERSON, WHO WITH INTENT TO DEFRAUD, GIVES A FALSE SWORN STATEMENT IS SUBJECT TO CRIMINAL PENAL TIES AS PROVIDED IN SECTION 110 OF THE CONSTRUCTIN LIEN ACT. ACT NO. 497 OF THE PUBLIC ACTS OF 1980, AS AMENDED, BEING SECTION 570.1110 OF THE MICHIGAN COMPILED LAWS.

 

 

 

Deponent

Subscribed and sworn to before me this

 

day of

 

20 _____

 

 

Notary Public,

 

County, Michigan

My commission expires:

 

 

 

Page 4 of 4

File Specifics

Fact Name Description
Purpose The Michigan Sworn Statement serves to document the contractor's or subcontractor's payment status to laborers and suppliers for construction projects.
Governing Law This form is governed by the Michigan Construction Lien Act, Act No. 497 of the Public Acts of 1980, specifically section 570.1109 and section 570.1110 of the Michigan Compiled Laws.
Parties Involved The form involves the contractor or subcontractor, the owner or lessee of the property, and any subcontractors or suppliers owed payment.
Information Required Contractors must provide details about each subcontractor, supplier, and laborer, including amounts owed and work performed.
Legal Consequences Submitting a false sworn statement can lead to criminal penalties under section 570.1110 of the Michigan Compiled Laws.
Owner's Warning Owners or lessees cannot rely solely on this sworn statement to avoid claims from subcontractors or laborers who have provided proper notice.
Notary Requirement The statement must be subscribed and sworn to before a notary public, adding a layer of authenticity.
Project Identification The form requires specific identification of the project, including the project name and address.
Payment Status Contractors must indicate the total adjusted amount, amount already paid, and balance owing for each listed entity.
Liens Notification The statement aims to assure the owner that the property is free from construction liens, except as noted in the form.

How to Use Michigan Sworn

Filling out the Michigan Sworn form is an important step for contractors and subcontractors in ensuring compliance with construction lien laws. After completing the form, it should be submitted to the relevant parties involved in the project. This helps in confirming that all payments due to subcontractors, suppliers, and laborers are accurately reported.

  1. Begin by entering the State and County at the top of the form.
  2. Fill in your name in the space provided for the deponent.
  3. Indicate whether you are the contractor or subcontractor for the improvement.
  4. Provide a description of the real property, including the Project Name and Address.
  5. List each subcontractor, supplier, or laborer in the designated spaces.
  6. For each entry, fill in the Type of Improvement, Total Contract Price, Adjusted Amount Already Paid, and Amount Currently Owing.
  7. Calculate and enter the Totals for all entries at the bottom of the list.
  8. Confirm that you have not procured materials or contracted with anyone else not listed on the form.
  9. Indicate whether you are making the statement as the contractor or subcontractor.
  10. Review the warnings regarding the responsibilities of the owner and the penalties for false statements.
  11. Sign the form in the space provided for the deponent.
  12. Have the form notarized by a notary public, who will fill in their information and commission expiration date.

Your Questions, Answered

  1. What is the Michigan Sworn Form?

    The Michigan Sworn Form is a legal document used in construction projects to declare the status of payments to subcontractors, suppliers, and laborers. It ensures that all parties involved in a construction project are aware of any outstanding payments and helps protect property owners from potential construction liens.

  2. Who needs to fill out the Michigan Sworn Form?

    The form must be completed by contractors or subcontractors who are working on a construction project in Michigan. It is important for them to accurately report any unpaid wages or benefits owed to subcontractors, suppliers, and laborers involved in the project.

  3. What information is required on the form?

    The Michigan Sworn Form requires the following information:

    • Project name and address
    • Name of each subcontractor, supplier, or laborer
    • Type of improvement
    • Total contract price
    • Adjusted amount due
    • Amount already paid
    • Balance currently owing
  4. What is the purpose of the sworn statement?

    The sworn statement serves to assure the property owner or lessee that the property is free from claims of construction liens, except for those specifically mentioned in the document. It protects the owner from potential financial liabilities related to unpaid subcontractors or laborers.

  5. What are the consequences of providing false information?

    Providing false information on the Michigan Sworn Form can lead to criminal penalties. If someone intentionally gives a false sworn statement, they may face legal repercussions as outlined in the Michigan Construction Lien Act.

  6. Can an owner rely solely on this sworn statement?

    No, an owner or lessee cannot solely rely on the sworn statement to avoid claims from subcontractors, suppliers, or laborers. If a notice of furnishing has been provided, it is crucial for the owner to verify that the designee is named and alive to ensure protection against claims.

  7. How does the sworn form protect property owners?

    The sworn form helps protect property owners by providing a clear record of payments made to subcontractors and laborers. This transparency minimizes the risk of unexpected claims or liens against the property, ensuring that the owner is informed of any financial obligations related to the project.

  8. Is notarization required for the Michigan Sworn Form?

    Yes, the Michigan Sworn Form must be notarized. The contractor or subcontractor must sign the form in front of a notary public, who will then verify the identity of the signer and affix their seal to the document.

  9. What should be done if there are changes in the payment status?

    If there are changes in the payment status, such as additional payments or new subcontractors, the contractor or subcontractor must update the sworn statement accordingly. It is essential to keep the document current to maintain transparency and protect against potential claims.

  10. Where can I obtain the Michigan Sworn Form?

    The Michigan Sworn Form can typically be obtained from legal document providers, construction industry associations, or through legal counsel. It is important to ensure that the most current version of the form is used to comply with state regulations.

Common mistakes

  1. Failing to include the correct project name and address. This can lead to confusion and potential disputes over the work done.

  2. Not listing all subcontractors, suppliers, and laborers. Omitting any parties involved in the project can create legal liabilities.

  3. Incorrectly calculating the total adjusted amount. Ensure that all figures are accurate to avoid discrepancies.

  4. Using inconsistent terminology throughout the form. Consistency helps in maintaining clarity and understanding.

  5. Neglecting to sign the form in the designated area. A missing signature can invalidate the sworn statement.

  6. Failing to have the form witnessed by a notary public. This step is crucial for the document’s legal validity.

  7. Not updating the form with the current date. An outdated form may not reflect the present circumstances accurately.

  8. Leaving out the balance owing for each subcontractor or laborer. This information is vital for transparency and accountability.

  9. Providing incomplete information about claims of construction liens. Full disclosure is necessary to protect all parties involved.

  10. Ignoring the warnings included in the form. These are there to inform about the potential consequences of inaccuracies.

Documents used along the form

When working with the Michigan Sworn Statement, several other forms and documents may also be required to ensure compliance and proper documentation in construction projects. Each of these documents serves a specific purpose and contributes to the overall transparency and accountability of the contracting process.

  • Notice of Furnishing: This document is provided by subcontractors or suppliers to inform the property owner and general contractor that they are supplying materials or services for a construction project. It establishes the sender's right to file a lien if they are not paid for their work.
  • Construction Lien Claim: If a subcontractor, supplier, or laborer has not been paid, they may file a construction lien claim against the property. This document serves as a legal claim to secure payment and can lead to a court process if necessary.
  • Affidavit of Payment: This affidavit is often submitted by the contractor to confirm that all subcontractors, suppliers, and laborers have been paid for their work. It provides assurance to the property owner that there are no outstanding claims against the property.
  • General Contract: The general contract outlines the agreement between the property owner and the contractor. It includes details about the scope of work, payment terms, and responsibilities of both parties, serving as the foundation for the project.

Understanding these documents can help streamline the construction process and protect all parties involved. Proper use of the Michigan Sworn Statement and its associated forms fosters a clear communication pathway, ensuring that everyone is on the same page regarding payments and obligations.

Similar forms

The Michigan Sworn form shares similarities with a lien waiver. A lien waiver is a document that a contractor or subcontractor provides to confirm they have received payment for work completed. Both documents serve to protect property owners from potential claims by subcontractors or suppliers. However, while the Michigan Sworn form outlines unpaid amounts and claims, a lien waiver typically indicates that all payments have been made, thus releasing any future claims against the property for the work performed.

Another document akin to the Michigan Sworn form is the affidavit of payment. This affidavit is a sworn statement by a contractor affirming that all subcontractors and suppliers have been paid for their services. Like the Michigan Sworn form, it aims to assure the property owner that there are no outstanding claims. However, the affidavit of payment focuses primarily on confirming payments made, whereas the Michigan Sworn form details both paid and unpaid amounts, highlighting any potential liabilities.

The contractor's final release is also similar to the Michigan Sworn form. This document is issued by a contractor at the end of a project, confirming that all subcontractors and suppliers have been paid. It protects the owner from future claims. The key difference lies in timing; the contractor's final release is typically provided after project completion, while the Michigan Sworn form can be used during the project to disclose current payment statuses.

A sworn statement of account is another related document. This statement provides a detailed account of all transactions between a contractor and the property owner. It includes amounts due, payments made, and any outstanding balances. Similar to the Michigan Sworn form, it is a sworn document that serves to clarify financial obligations. However, the sworn statement of account is often more comprehensive in its financial breakdown, while the Michigan Sworn form is focused on specific unpaid claims.

The notice of furnishing is also comparable to the Michigan Sworn form. This document is filed by subcontractors or suppliers to inform property owners of their involvement in a project and to assert their right to payment. Both documents aim to protect the rights of those providing labor or materials. However, the notice of furnishing is proactive in establishing a claim, while the Michigan Sworn form is more reactive, detailing existing claims and unpaid amounts.

Lastly, the construction lien is another document that bears resemblance to the Michigan Sworn form. A construction lien is a legal claim against a property for unpaid work or materials. Both documents are designed to safeguard the rights of contractors and subcontractors. However, the construction lien is a legal remedy that can be enforced in court, while the Michigan Sworn form serves more as a declaration of payment status and obligations, preventing liens from being placed on the property if all parties are paid appropriately.

Dos and Don'ts

When filling out the Michigan Sworn form, it’s essential to follow specific guidelines to ensure accuracy and compliance. Here’s a list of things you should and shouldn’t do:

  • Do double-check all information before submission.
  • Do ensure that all subcontractors, suppliers, and laborers are accurately listed.
  • Do provide clear and complete descriptions of the work performed.
  • Do sign the document in the presence of a notary public.
  • Don’t leave any sections blank; fill out every required field.
  • Don’t provide false information, as this can lead to serious penalties.

By following these guidelines, you can help ensure that your form is filled out correctly and meets all necessary legal requirements.

Misconceptions

  • Misconception 1: The Michigan Sworn form guarantees that no liens will be placed on the property.

    While the form provides a statement regarding the absence of claims, it does not eliminate the possibility of liens. It only indicates that the contractor believes there are no outstanding claims, except those specifically mentioned.

  • Misconception 2: The form is only necessary for large construction projects.

    This form is important for any construction project, regardless of size. It protects both contractors and property owners by ensuring that all parties are aware of any outstanding payments owed to subcontractors or suppliers.

  • Misconception 3: Only contractors need to fill out the Sworn form.

    In fact, subcontractors and suppliers also have responsibilities under this form. They must accurately report any amounts due for work performed or materials supplied.

  • Misconception 4: The Sworn form is a one-time requirement.

    Depending on the project and its duration, multiple sworn statements may be needed. This ensures ongoing transparency about payments throughout the construction process.

  • Misconception 5: Completing the form is a simple process that requires no oversight.

    It’s essential to review all information carefully before submitting the form. Errors or omissions can lead to legal issues or payment disputes down the line.

  • Misconception 6: The form protects the owner from all potential claims.

    The form does not shield the owner from claims by laborers who may provide notice under the Construction Lien Act. Owners must remain vigilant and ensure all parties are paid appropriately to avoid potential claims.

Key takeaways

Here are key takeaways about filling out and using the Michigan Sworn form:

  • The form is used to declare the status of payments to subcontractors, suppliers, and laborers.
  • Accurate information must be provided about all parties involved in the project.
  • Each subcontractor or supplier's name and the amount owed should be clearly listed.
  • The contractor must confirm that no additional payments are due beyond what is stated in the form.
  • The form serves to assure the property owner that there are no outstanding claims for construction liens, except as noted.
  • Warnings are included to inform both the owner and the deponent about potential legal consequences for providing false information.
  • It must be signed and sworn before a notary public to be valid.
  • Keep a copy of the completed form for your records, as it may be important for future reference.