Blank Michigan Exemption PDF Form

Blank Michigan Exemption PDF Form

The Michigan Exemption form, officially known as Form 5076, is a document used to claim a personal property tax exemption for small businesses in Michigan. This exemption applies to eligible personal property with a true cash value of less than $80,000. To ensure you take advantage of this benefit, fill out the form completely and submit it to your local unit by the deadline.

Start the process by clicking the button below to fill out the form.

The Michigan Exemption form, officially known as Form 5076, plays a crucial role for small businesses seeking relief from personal property taxes. This form is specifically designed for businesses whose total personal property value does not exceed $80,000, as defined under Michigan law. To qualify for the exemption, businesses must file this form with the local city or township where their personal property is located, not with the Michigan Department of Treasury. The deadline for submission is February 22, 2022, and late filings can be made directly with the March Board of Review, provided that certain conditions are met. Completing the form accurately is essential; any omissions or errors could lead to denial of the exemption. Businesses must provide detailed information, including their name, address, and the nature of their operations, along with contact details for record-keeping purposes. The form also requires a certification that the claimed property meets specific criteria, such as being classified as industrial or commercial personal property. Understanding the nuances of this exemption process can significantly benefit small businesses, allowing them to allocate resources more effectively and support their growth in a competitive market.

Document Sample

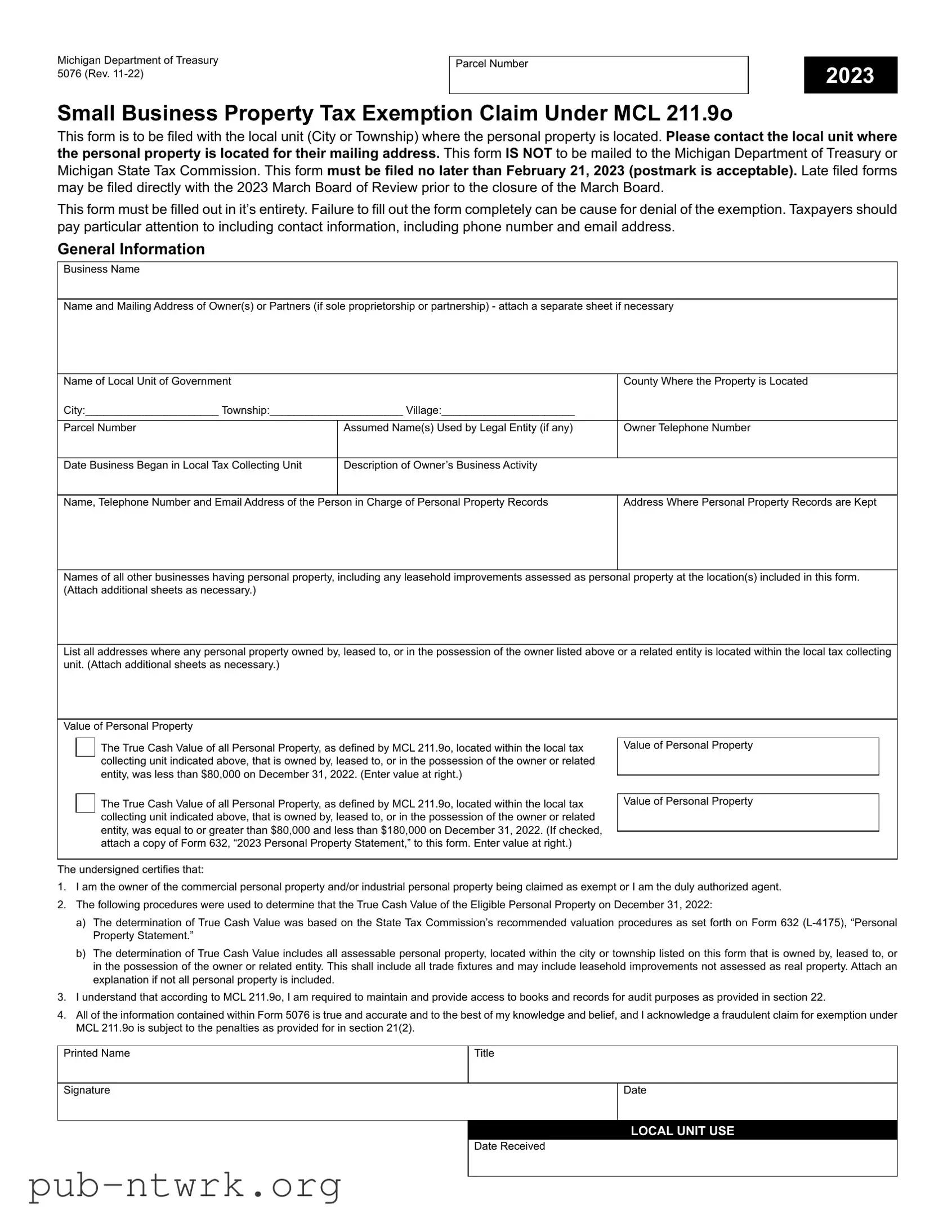
Michigan Department of Treasury 5076 (Rev. 11-22)

Parcel Number

2023

Small Business Property Tax Exemption Claim Under MCL 211.9o

This form is to be filed with the local unit (City or Township) where the personal property is located. Please contact the local unit where the personal property is located for their mailing address. This form IS NOT to be mailed to the Michigan Department of Treasury or

Michigan State Tax Commission. This form must be filed no later than February 21, 2023 (postmark is acceptable). Late filed forms may be filed directly with the 2023 March Board of Review prior to the closure of the March Board.

This form must be filled out in it’s entirety. Failure to fill out the form completely can be cause for denial of the exemption. Taxpayers should pay particular attention to including contact information, including phone number and email address.

General Information

Business Name

Name and Mailing Address of Owner(s) or Partners (if sole proprietorship or partnership) - attach a separate sheet if necessary

Name of Local Unit of Government

 

County Where the Property is Located

City:______________________ Township:______________________ Village:______________________

 

 

 

 

Parcel Number

Assumed Name(s) Used by Legal Entity (if any)

Owner Telephone Number

Date Business Began in Local Tax Collecting Unit

Description of Owner’s Business Activity

Name, Telephone Number and Email Address of the Person in Charge of Personal Property Records

Address Where Personal Property Records are Kept

Names of all other businesses having personal property, including any leasehold improvements assessed as personal property at the location(s) included in this form. (Attach additional sheets as necessary.)

List all addresses where any personal property owned by, leased to, or in the possession of the owner listed above or a related entity is located within the local tax collecting unit. (Attach additional sheets as necessary.)

Value of Personal Property

The True Cash Value of all Personal Property, as defined by MCL 211.9o, located within the local tax collecting unit indicated above, that is owned by, leased to, or in the possession of the owner or related entity, was less than $80,000 on December 31, 2022. (Enter value at right.)

Value of Personal Property

The True Cash Value of all Personal Property, as defined by MCL 211.9o, located within the local tax

Value of Personal Property

collecting unit indicated above, that is owned by, leased to, or in the possession of the owner or related

 

entity, was equal to or greater than $80,000 and less than $180,000 on December 31, 2022. (If checked,

 

 

attach a copy of Form 632, “2023 Personal Property Statement,” to this form. Enter value at right.)

 

The undersigned certifies that:

1.I am the owner of the commercial personal property and/or industrial personal property being claimed as exempt or I am the duly authorized agent.

2.The following procedures were used to determine that the True Cash Value of the Eligible Personal Property on December 31, 2022:

a)The determination of True Cash Value was based on the State Tax Commission’s recommended valuation procedures as set forth on Form 632 (L-4175), “Personal Property Statement.”

b)The determination of True Cash Value includes all assessable personal property, located within the city or township listed on this form that is owned by, leased to, or in the possession of the owner or related entity. This shall include all trade fixtures and may include leasehold improvements not assessed as real property. Attach an explanation if not all personal property is included.

3.I understand that according to MCL 211.9o, I am required to maintain and provide access to books and records for audit purposes as provided in section 22.

4.All of the information contained within Form 5076 is true and accurate and to the best of my knowledge and belief, and I acknowledge a fraudulent claim for exemption under MCL 211.9o is subject to the penalties as provided for in section 21(2).

Printed Name

Title

Signature

Date

LOCAL UNIT USE

Date Received

5076, Page 2

Instructions for Small Business Property Tax Exemption Claim Under

MCL 211.9o (Form 5076)

MCL 211.9o provides for a personal property tax exemption for “eligible personal property.” This is commonly referred to as the

Small Business Taxpayer Exemption. MCL 211.9o defines “eligible personal property” as meeting all of the following criteria:

The personal property must be classified as industrial personal property or commercial personal property as defined in MCL 211.34c or would be classified as industrial personal property or commercial personal property if not exempt and

The combined true cash value of all industrial personal property and commercial personal property owned by, leased by or in the possession of the owner or a related entity claiming the exemption is less than $180,000 in the local tax collecting unit and

The property is not leased to or used by a person that previously owned the property or a person that, directly or indirectly controls, is controlled by, or under common control with the person that previously owned the property.

Personal Property Valued Less than $80,000

In order to claim an exemption for personal property valued less than $80,000, this form must be filed with the local unit (City or Township) where the personal property is located no later than February 21, 2023 (postmark is acceptable). This form IS NOT to be mailed to the Michigan Department of Treasury or the Michigan State Tax Commission. Please contact the local unit where the personal property is located for their mailing address. Late filed forms may be filed directly with the local unit March Board of Review prior to the closure of the March Board of Review. Taxpayers must contact the local unit directly to determine the March Board of Review dates.

Taxpayers must appear in person or have a representative appear on their behalf in order to late file with the March Board of Review.

Once the exemption is granted for personal property valued at less than $80,000, the taxpayer will continue to receive the exemption until they no longer qualify for the exemption. Once they no longer qualify, the taxpayer is required to file a rescission form and a personal property statement no later than February 20th of the year that the property is no longer eligible. Failure to file the rescission form will result in significant penalty and interest as prescribed in MCL 211.9o.

This form will exempt property owned only by the entity filing the form. If personal property is leased to or used by an entity other than the property’s owner, the owner of that personal property must file the form for that property, not the lessee or the user. The owner may file the form and claim the exemption only if the True Cash Value of all of the commercial or industrial personal property located within the local tax collecting unit that is owned by, leased to, or in the possession of the owner or a related entity was less than $80,000 on December 31, 2022.

This form must be filled out in it’s entirety. Failure to fill out the form completely can be cause for denial of the exemption. Taxpayers should pay particular attention to including contact information, including phone number and email address.

Once an exemption is granted for personal property valued at less than $80,000, taxpayers are not required to file a “Personal Property Statement” (Form 632) in the year they are claiming the exemption.

Personal Property Valued Greater than or Equal to $80,000 but Less than $180,000

In order to claim an exemption for personal property valued at $80,000 or more but less than $180,000, this form along Form 632 Personal Property Statement must be filed ANNUALLY with the local unit (City or Township) where the personal property is located no later than February 20 of each year (postmark is acceptable). If February 20 is a Saturday, Sunday, or legal holiday, this form and accompanying personal property statement must be filed the next day that is not a Saturday, Sunday, or legal holiday of that year. This form IS NOT to be mailed to the Michigan Department of Treasury or the Michigan State Tax Commission. Please contact the local unit where the personal property is located for their mailing address. Late filed forms may be filed directly with the local unit March Board of Review prior to the closure of the March Board of Review. Taxpayers must contact the local unit directly to determine the March Board of Review dates.

NOTICE: Questions regarding this form should be directed to the assessor of the city or township where the personal property is located. This form is issued under the authority of Public Act 206 of 1893. Additional detailed information on the Small Business Taxpayer Personal Property Exemption can be found on the State Tax Commission website at www.michigan.gov/ statetaxcommission.

File Specifics

Fact Name Details
Form Title Michigan Department of Treasury 5076 (Rev. 07-21)
Purpose This form is used to claim the Small Business Property Tax Exemption under MCL 211.9o.
Filing Deadline The form must be filed by February 22, 2022, with the local unit of government.
Governing Law The exemption is governed by MCL 211.9o and Public Act 206 of 1893.
Eligibility Criteria Property must have a True Cash Value of less than $80,000 and meet specific classification requirements.
Late Filing Late forms can be submitted to the March Board of Review before its closure.
Penalties for Fraud Filing a fraudulent claim may result in penalties as outlined in section 21(2) of MCL 211.9o.

How to Use Michigan Exemption

Completing the Michigan Exemption form is a critical step for small business owners seeking tax relief on personal property. After filling out the form, it must be submitted to the appropriate local unit, such as a city or township. Ensure that you meet the submission deadline and provide accurate information to avoid any issues with your exemption claim.

  1. Begin by entering the Business Name at the top of the form.
  2. Provide the Name and Mailing Address of the owner(s) or partners. If necessary, attach a separate sheet for additional names.
  3. Indicate the Name of Local Unit of Government where the personal property is located.
  4. Fill in the County where the property is located.
  5. Specify the City, Township, or Village associated with the property.
  6. Enter the Parcel Number for the property.
  7. If applicable, list any Assumed Name(s) used by the legal entity.
  8. Provide the Owner Telephone Number for contact purposes.
  9. State the Date Business Began in the local tax collecting unit.
  10. Describe the Owner’s Business Activity in detail.
  11. Include the Name, Telephone Number, and Email Address of the person in charge of personal property records.
  12. Indicate the Address Where Personal Property Records are Kept.
  13. List the names of all other businesses that have personal property at the same location, including any leasehold improvements.
  14. Document all addresses where any personal property owned, leased, or in possession of the owner or related entity is located within the local tax collecting unit.
  15. Certify that you are the owner or authorized agent of the commercial personal property being claimed as exempt.
  16. Confirm that the True Cash Value of all personal property is less than $80,000 as of December 31, 2021.
  17. Detail the procedures used to determine the True Cash Value, referencing the State Tax Commission’s valuation procedures.
  18. Understand and acknowledge the requirement to maintain and provide access to books and records for audit purposes.
  19. Ensure that all information provided is true and accurate, acknowledging the penalties for fraudulent claims.
  20. Sign and date the form at the bottom.

After completing the form, review it for accuracy and completeness. Submit it to the local unit where the property is located before the deadline. Keep a copy for your records, as it may be needed for future reference or audits.

Your Questions, Answered

  1. What is the Michigan Exemption form?

    The Michigan Exemption form, officially known as Form 5076, is used to claim a personal property tax exemption for small businesses. This form must be filed with the local unit of government where the personal property is located.

  2. Who should file this form?

    This form should be filed by owners of commercial or industrial personal property that qualifies for the Small Business Taxpayer Exemption. If the property is leased or used by another entity, the owner must file the form, not the lessee.

  3. What are the eligibility criteria for the exemption?

    To qualify for the exemption, the following criteria must be met:

    • The property must be classified as industrial or commercial personal property.
    • The combined true cash value of all eligible personal property must be less than $80,000.
    • The property cannot be leased to or used by a person who previously owned it or is under common control with that person.
  4. When is the form due?

    The form must be filed no later than February 22, 2022. A postmark is acceptable. Late forms may be submitted directly to the March Board of Review before it closes.

  5. What happens if the form is not completed correctly?

    Failure to fill out the form completely can lead to denial of the exemption. It is crucial to provide accurate information, especially contact details like phone number and email address.

  6. Can I file this form and a Personal Property Statement in the same year?

    No, taxpayers who file Form 5076 are not required to submit a Personal Property Statement (Form 632) for the year in which they are claiming the exemption.

  7. What should I do if I no longer qualify for the exemption?

    If you no longer qualify for the exemption, you must file a rescission form and a personal property statement by February 20 of the year you become ineligible. Failure to do so may result in penalties and interest on additional taxes owed.

  8. Where do I send the completed form?

    The completed form must be sent to the local unit of government where the personal property is located. Do not mail it to the Michigan Department of Treasury or the Michigan State Tax Commission.

  9. Where can I find more information about the exemption?

    Additional information regarding the Small Business Taxpayer Personal Property Exemption can be found on the State Tax Commission's website at www.michigan.gov/statetaxcommission.

Common mistakes

  1. Incomplete Information: One of the most common mistakes is not filling out the form completely. Every section must be addressed. Missing information can lead to a denial of the exemption.

  2. Incorrect Submission: Many people mistakenly mail the form to the Michigan Department of Treasury or the Michigan State Tax Commission. Instead, it should be submitted directly to the local unit (City or Township) where the personal property is located.

  3. Missing Contact Details: Failing to include accurate contact information, such as a phone number and email address, is another frequent error. This information is crucial for communication regarding the exemption status.

  4. Ignoring Deadlines: Some individuals overlook the deadline for filing the exemption form. It must be submitted no later than February 22, 2022. Late submissions can still be filed but require additional steps with the March Board of Review.

Documents used along the form

The Michigan Exemption form is a crucial document for small businesses seeking tax relief on personal property. Alongside this form, several other documents are often required to ensure compliance and facilitate the exemption process. Below is a list of these documents, each accompanied by a brief description.

  • Personal Property Statement (Form 632): This form provides a detailed account of all personal property owned or leased by a business. While not required in the year an exemption is claimed, it is essential for reporting purposes in other years.
  • Rescission Form: If a business no longer qualifies for the exemption, this form must be filed to officially withdraw the exemption. Failure to do so may result in penalties and interest on unpaid taxes.
  • March Board of Review Application: This document is necessary for businesses that file their exemption late. It allows them to present their case for exemption directly to the local board.
  • Assessment Roll: This document lists all properties assessed for tax purposes within a local unit. It helps businesses verify their property status and understand local tax assessments.
  • Lease Agreements: If personal property is leased, these agreements must be provided to show ownership and control of the property in question, which is crucial for claiming the exemption.
  • Proof of Business Ownership: This may include articles of incorporation or partnership agreements. It verifies the legal status of the business claiming the exemption.
  • Financial Statements: Recent financial documents may be required to demonstrate the total value of personal property and ensure it falls below the $80,000 threshold.
  • Contact Information Sheet: A separate document may be needed to provide complete contact details for the business owner or the person in charge of personal property records.
  • Supporting Documentation for Personal Property: Additional records may be necessary to substantiate claims about the value and nature of the personal property being exempted.
  • Affidavit of Eligibility: This sworn statement confirms that the property meets the criteria for exemption, providing an extra layer of verification for the local unit.

These documents play a significant role in the exemption process, ensuring that businesses comply with state regulations and effectively manage their tax obligations. Proper preparation and submission of these forms can lead to significant financial benefits for small businesses in Michigan.

Similar forms

The Michigan Personal Property Statement (Form 632) serves as a critical document for reporting personal property owned by businesses. Similar to the Michigan Exemption form, it requires detailed information about the property, including its value and location. However, while the Exemption form is specifically for claiming tax exemptions for properties valued under $80,000, the Personal Property Statement is generally used to report all personal property for tax assessment purposes. This form must be filed annually, ensuring that local governments have accurate records for taxation.

The Michigan Property Transfer Affidavit (Form 2766) is another document that shares similarities with the Michigan Exemption form in that it involves property ownership. This affidavit is used when real property changes hands, requiring the new owner to report the transfer to the local assessor. Like the Exemption form, it necessitates accurate and complete information to avoid penalties. Both forms aim to maintain transparency in property ownership and taxation, although their specific purposes differ significantly.

The Michigan Homestead Property Tax Credit Claim (Form 4988) is designed to provide tax relief to homeowners. While the Exemption form focuses on personal property for small businesses, the Homestead form allows qualifying homeowners to claim credits based on their property taxes and income. Both forms require the applicant to provide personal and property information, and each is subject to deadlines for filing. However, the Homestead form is targeted at residential property, contrasting with the commercial focus of the Exemption form.

The Michigan Agricultural Property Tax Exemption form is tailored for agricultural property owners seeking exemptions based on specific criteria. Similar to the Michigan Exemption form, this document requires detailed information about the property and its use. Both forms are filed with local units of government and must be completed accurately to avoid denial. The Agricultural Exemption form, however, is specifically aimed at properties used for farming, while the Exemption form is focused on small business personal property.

The Michigan Nonprofit Property Tax Exemption application is relevant for organizations seeking exemptions based on their nonprofit status. Like the Michigan Exemption form, this application requires comprehensive information about the organization and the property in question. Both forms must be submitted to the local unit of government, and each has specific eligibility criteria. However, the Nonprofit Exemption is focused on properties used for charitable purposes, whereas the Exemption form pertains to small business properties under a specific value threshold.

The Michigan Disabled Veterans Property Tax Exemption form is designed for veterans with disabilities who seek property tax relief. Similar to the Michigan Exemption form, it requires the applicant to provide personal and property details. Both forms are aimed at reducing tax burdens for specific groups, although the Disabled Veterans Exemption is specifically tailored to honorably discharged veterans meeting certain disability criteria. Each form must be filed with local authorities and is subject to verification processes.

Lastly, the Michigan Local Taxpayer Advocate Request for Assistance form allows taxpayers to seek help with property tax issues. This form is similar to the Michigan Exemption form in that it requires the taxpayer to provide detailed information about their situation. Both forms aim to facilitate communication between taxpayers and local government entities. However, the Request for Assistance form is focused on resolving disputes or concerns, while the Exemption form is specifically for claiming tax exemptions related to personal property.

Dos and Don'ts

When filling out the Michigan Exemption form, keep the following guidelines in mind:

  • Do ensure that you complete the form in its entirety. Incomplete forms may be denied.
  • Do provide accurate contact information, including your phone number and email address.
  • Do file the form with the local unit (City or Township) where the personal property is located.
  • Do submit the form by the deadline of February 22, 2022, or ensure it is postmarked by that date.
  • Don't mail the form to the Michigan Department of Treasury or the Michigan State Tax Commission.
  • Don't forget to attach any additional sheets if you need more space for information.
  • Don't neglect to include all relevant personal property details, including any leasehold improvements.
  • Don't assume that filing the exemption means you are exempt indefinitely; monitor your eligibility each year.

Misconceptions

There are several misconceptions surrounding the Michigan Exemption form that can lead to confusion for business owners. Here are six common misunderstandings:

  • It must be mailed to the Michigan Department of Treasury. Many people think they need to send this form to the state. In reality, it should be filed directly with the local unit (City or Township) where the property is located.
  • Late forms cannot be submitted. Some believe that if they miss the February 22 deadline, they cannot file at all. However, late forms can still be filed directly with the March Board of Review before it closes.
  • Only large businesses can qualify. There is a misconception that only large businesses can benefit from this exemption. In fact, any small business with a total true cash value of less than $80,000 in personal property can qualify.
  • Filling out the form partially is acceptable. Some think they can submit a partially completed form. This is incorrect; the form must be filled out in its entirety to avoid denial of the exemption.
  • Filing this form means you don’t need to file anything else. While taxpayers who file Form 5076 do not need to file a Personal Property Statement in that year, they must still comply with other requirements, such as filing a rescission form if they no longer qualify.
  • Only the property owner can file the form. Some believe that only the owner can submit the form. However, a duly authorized agent can also file it on behalf of the owner.

Understanding these points can help ensure that small business owners navigate the exemption process smoothly and avoid unnecessary complications.

Key takeaways

Filing the Michigan Exemption form can be a straightforward process if you keep the following key points in mind:

  • Deadline Awareness: Ensure you file the form by February 22, 2022. A postmark is acceptable.
  • Local Submission: Submit the form to the local unit (City or Township) where your personal property is located. Do not mail it to the Michigan Department of Treasury.
  • Complete Information: Fill out the form in its entirety. Incomplete submissions may lead to denial of the exemption.
  • Contact Details: Include accurate contact information, such as your phone number and email address, to facilitate communication.
  • True Cash Value: Confirm that the True Cash Value of your personal property is less than $80,000 as of December 31, 2021.
  • Record Maintenance: Keep records accessible for audit purposes, as required by law.
  • Exemption Continuity: Once granted, the exemption continues until you no longer qualify. File a rescission form if your eligibility changes.
  • Personal Property Statement: If you file Form 5076, you are not required to file a Personal Property Statement (Form 632) for that year.

By following these guidelines, you can navigate the exemption process more effectively and ensure compliance with the necessary regulations.