Blank Michigan Dch 0654 PDF Form

Blank Michigan Dch 0654 PDF Form

The Michigan DCH 0654 form serves as a notification for lead abatement activities in the state of Michigan. Any firm planning to conduct such activities must submit this form at least three business days before starting the work, as mandated by the Michigan Lead Abatement Act. Ensuring timely and complete submission of this form is crucial for compliance and safety.

To fill out the form, please click the button below.

The Michigan DCH 0654 form plays a crucial role in ensuring compliance with state regulations regarding lead abatement activities. Any firm engaged in lead-based paint abatement must notify the Michigan Department of Community Health at least three business days before starting work. This requirement stems from the Michigan Lead Abatement Act of 1998. The form captures essential details such as the notification date, start and end dates, and any necessary revisions. It also requires information about the contractor, including their certification numbers, contact details, and the scope of work planned. The form distinguishes between different types of lead assessments, occupancy statuses, and building types, ensuring that all relevant aspects of the project are documented. Incomplete submissions will not be approved, highlighting the importance of thoroughness in the notification process. Compliance with these guidelines not only safeguards public health but also streamlines the management of lead abatement projects across Michigan.

Document Sample

MAIL OR FAX TO:
MDCH - Healthy Homes Section
P.O. Box 30195
Lansing, MI 48909
Attn: Compliance Officer
FAX: 517-335-8800

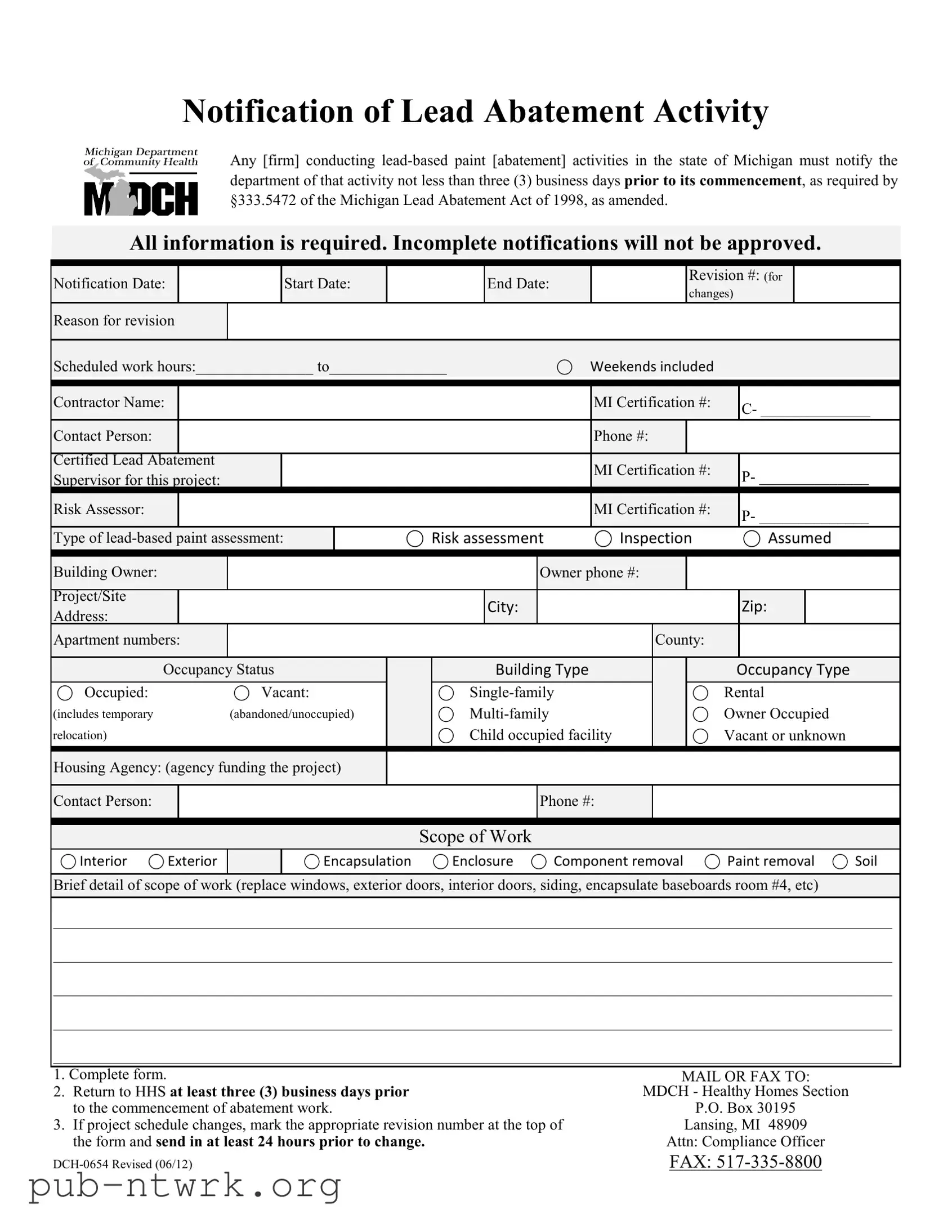
Notification of Lead Abatement Activity

Any [firm] conducting lead-based paint [abatement] activities in the state of Michigan must notify the department of that activity not less than three (3) business days prior to its commencement, as required by §333.5472 of the Michigan Lead Abatement Act of 1998, as amended.

All information is required. Incomplete notifications will not be approved.

 

 

 

 

 

 

 

 

 

 

 

 

 

 

 

 

 

Notification Date:

 

 

Start Date:

 

 

End Date:

 

 

 

Revision #: (for

 

 

 

 

 

 

 

 

 

changes)

 

 

 

 

 

 

 

 

 

 

 

 

 

 

 

 

 

 

Reason for revision

 

 

 

 

 

 

 

 

 

 

 

 

 

 

 

 

 

 

 

 

 

 

 

 

 

 

 

 

 

 

 

Scheduled work hours:_______________ to_______________

Weekends included

 

 

 

 

 

 

 

 

 

 

 

 

 

 

 

 

 

 

 

 

 

 

 

 

 

 

 

 

 

 

 

 

 

Contractor Name:

 

 

 

 

 

 

 

 

 

MI Certification #:

C- ______________

 

 

 

 

 

 

 

 

 

 

 

 

 

 

Contact Person:

 

 

 

 

 

 

 

 

 

Phone #:

 

 

 

 

 

 

 

 

 

 

 

 

 

 

 

 

 

 

 

 

 

 

Certified Lead Abatement

 

 

 

 

 

 

 

 

MI Certification #:

 

 

 

Supervisor for this project:

 

 

 

 

 

 

 

 

P- ______________

 

 

 

 

 

 

 

 

 

 

 

 

 

 

 

 

 

 

 

 

 

 

 

 

 

 

 

Risk Assessor:

 

 

 

 

 

 

 

 

 

MI Certification #:

P- ______________

 

 

 

 

 

 

 

 

 

 

 

 

 

 

Type of lead-based paint assessment:

 

Risk assessment

 

Inspection

 

Assumed

 

 

 

 

 

 

 

 

 

 

 

 

 

 

 

Building Owner:

 

 

 

 

 

 

Owner phone #:

 

 

 

 

 

 

 

 

 

 

 

 

 

 

 

 

 

 

 

 

 

 

Project/Site

 

 

 

 

 

 

City:

 

 

 

 

 

 

Zip:

 

Address:

 

 

 

 

 

 

 

 

 

 

 

 

 

 

 

 

 

 

 

 

 

 

 

 

 

 

 

 

 

Apartment numbers:

 

 

 

 

 

 

 

 

 

County:

 

 

 

 

 

 

 

 

 

 

 

 

 

 

 

 

 

 

 

Occupancy Status

 

 

Building Type

 

 

 

 

Occupancy Type

Occupied:

Vacant:

 

Single-family

 

 

 

 

Rental

(includes temporary

(abandoned/unoccupied)

 

Multi-family

 

 

 

 

Owner Occupied

relocation)

 

 

 

 

Child occupied facility

 

 

Vacant or unknown

 

 

 

 

 

 

 

 

 

 

 

 

 

 

 

 

 

Housing Agency: (agency funding the project)

Contact Person:

Phone #:

Scope of Work

Interior Exterior

Encapsulation Enclosure Component removal Paint removal Soil

Brief detail of scope of work (replace windows, exterior doors, interior doors, siding, encapsulate baseboards room #4, etc)

___________________________________________________________________________________________________________

___________________________________________________________________________________________________________

___________________________________________________________________________________________________________

___________________________________________________________________________________________________________

___________________________________________________________________________________________________________

1. Complete form.

2. Return to HHS at least three (3) business days prior to the commencement of abatement work.

3. If project schedule changes, mark the appropriate revision number at the top of the form and send in at least 24 hours prior to change.

DCH-0654 Revised (06/12)

File Specifics

Fact Name Description
Purpose of the Form The Michigan DCH 0654 form is used to notify the state’s Healthy Homes Section about lead abatement activities. This notification must occur at least three business days before the work begins.
Governing Law This form is governed by §333.5472 of the Michigan Lead Abatement Act of 1998, which mandates notification requirements for lead-based paint activities.
Submission Requirements All information on the form is required. Incomplete notifications will not be approved, emphasizing the importance of thoroughness when filling it out.
Revision Process If changes to the project schedule occur, the contractor must indicate the revision number on the form and submit it at least 24 hours prior to the change.

How to Use Michigan Dch 0654

Filling out the Michigan DCH 0654 form requires attention to detail and a clear understanding of the information needed. Once the form is completed, it must be submitted to the Healthy Homes Section of the Michigan Department of Community Health at least three business days before starting any lead abatement activities. If any changes occur in the project schedule, a revision must be submitted promptly.

  1. Begin by entering the Notification Date at the top of the form.
  2. Fill in the Start Date and End Date for the lead abatement activities.
  3. If applicable, note the Revision # for any changes to the project.
  4. Indicate the Scheduled Work Hours by specifying the start and end times.
  5. Check the box if Weekends are included in the work schedule.
  6. Provide the Contractor Name and their Michigan Certification Number (C- ______________).
  7. Enter the Contact Person and their Phone #.
  8. Fill in the Certified Lead Abatement Supervisor name and their certification number (P- ______________).
  9. List the Risk Assessor and their certification number (P- ______________).
  10. Select the Type of Lead-Based Paint Assessment by checking the appropriate box: Risk assessment, Inspection, or Assumed.
  11. Provide the Building Owner name and their phone number.
  12. Fill in the Project/Site City, Zip, and Address.
  13. If applicable, enter Apt. Numbers and the County.
  14. Indicate the Occupancy Status by checking the appropriate box: Occupied, Vacant, or Child occupied facility.
  15. Specify the Building Type by checking the corresponding box: Single-family, Multi-family, or Rental.
  16. Identify the Housing Agency funding the project and provide a Contact Person and their Phone #.
  17. Outline the Scope of Work by checking the relevant boxes: Interior, Exterior, Encapsulation, Enclosure, Component removal, Paint removal, or Soil.
  18. Provide a brief detail of the scope of work in the designated area.

After completing all sections, review the form for accuracy and completeness. Once confirmed, submit the form to the Healthy Homes Section via mail or fax, ensuring it arrives at least three business days before the planned start date of the abatement work.

Your Questions, Answered

What is the purpose of the Michigan DCH 0654 form?

The Michigan DCH 0654 form serves as a notification tool for any firm conducting lead-based paint abatement activities within the state. It is a requirement under the Michigan Lead Abatement Act of 1998. By submitting this form, contractors inform the Michigan Department of Community Health (MDCH) about their planned lead abatement activities, ensuring compliance with state regulations. This notification must occur at least three business days before the commencement of any work.

Who needs to submit the DCH 0654 form?

Any firm or contractor that plans to conduct lead-based paint abatement activities in Michigan is required to submit the DCH 0654 form. This includes various types of projects, such as risk assessments, inspections, and actual abatement work. It is essential for all involved parties to understand their responsibilities under the law to ensure public safety and compliance with regulatory standards.

What information is required on the form?

The DCH 0654 form requires several key pieces of information to be considered complete. This includes:

  1. Notification Date
  2. Start and End Dates of the project
  3. Contractor Name and MI Certification Number
  4. Contact Person and their Phone Number
  5. Details about the project site, including city, zip code, and occupancy status
  6. Scope of work, specifying tasks such as interior or exterior work and any specific actions like component removal or encapsulation

Incomplete forms will not be approved, so it is crucial to ensure that all required information is accurately provided.

What should I do if my project schedule changes?

If there are any changes to the project schedule after the DCH 0654 form has been submitted, it is important to mark the appropriate revision number at the top of the form. The revised form should be sent to the Healthy Homes Section at least 24 hours prior to the change. This ensures that the MDCH is kept informed and can maintain accurate records regarding lead abatement activities in the state.

Common mistakes

  1. Failing to Submit on Time: One common mistake is not sending the form to the Healthy Homes Section at least three business days before starting lead abatement activities. This could lead to delays or penalties.

  2. Incomplete Information: Leaving sections blank or providing incomplete information can result in the notification being rejected. Ensure all required fields are filled out accurately.

  3. Incorrect Dates: Entering the wrong notification, start, or end dates can create confusion. Double-check these dates to ensure they align with your project timeline.

  4. Not Updating Revisions: If there are changes to the project schedule, failing to mark the revision number and resubmit the form can lead to compliance issues. Always update the form with any changes.

  5. Missing Contact Information: Not providing a complete contact person or phone number can hinder communication. Ensure that the contact details are correct and up-to-date.

  6. Neglecting to Specify Scope of Work: Failing to detail the scope of work can result in misunderstandings. Clearly outline what the lead abatement will involve, such as types of removal or encapsulation.

Documents used along the form

The Michigan DCH 0654 form is essential for notifying the state about lead abatement activities. When preparing this notification, other forms and documents may also be required to ensure compliance with state regulations. Below is a list of commonly used documents that may accompany the DCH 0654 form.

  • Lead Abatement Work Plan: This document outlines the specific procedures and methods that will be used during the lead abatement process. It includes details about the work site, the type of lead hazards present, and the measures taken to protect workers and occupants.
  • Lead Hazard Risk Assessment Report: Conducted by a certified risk assessor, this report evaluates the presence of lead-based paint and other lead hazards in the property. It provides recommendations for remediation and is often required before beginning abatement work.
  • Contractor Certification: This document verifies that the contractor performing the lead abatement has the necessary certifications and training to carry out the work safely and effectively. It ensures that the contractor complies with state regulations.
  • Occupant Notification Letter: This letter informs tenants or occupants about the lead abatement activities that will take place. It includes details on the timeline, potential hazards, and safety measures, ensuring that residents are aware of the work being done.
  • Post-Abatement Clearance Report: After the abatement work is completed, this report confirms that the area has been tested and is free of lead hazards. It is critical for ensuring that the site is safe for re-occupancy and is often required by law.

These documents play a crucial role in the lead abatement process, ensuring that all activities are conducted safely and in compliance with Michigan regulations. Proper preparation and submission of these forms help protect public health and maintain legal compliance.

Similar forms

The Michigan DCH-0654 form is similar to the EPA Form 8500-1, which is used for notifying the Environmental Protection Agency about lead-based paint activities. Like the DCH-0654, the EPA form requires contractors to provide detailed information about the project, including the location, type of work, and contact information. Both forms emphasize the importance of notifying the relevant authorities before commencing work to ensure compliance with federal and state regulations. The EPA form also mandates that notifications be submitted a certain number of days in advance, mirroring the three-business-day requirement of the DCH-0654.

Another document akin to the DCH-0654 is the Lead-Based Paint Hazard Disclosure form. This form is typically used when selling or leasing properties built before 1978. It requires sellers and landlords to disclose any known lead-based paint hazards to potential buyers or tenants. Both documents aim to protect public health by ensuring that individuals are informed about lead risks. They both require specific information about the property and the lead-related activities conducted, thereby promoting transparency and safety.

The Notice of Intent to Perform Lead Abatement, often required in various states, is also similar to the DCH-0654 form. This document serves as a formal notification to local health departments about upcoming lead abatement projects. It contains similar elements, such as project timelines, contractor details, and the scope of work. Both documents aim to keep local authorities informed and ensure that lead abatement activities are conducted safely and in accordance with regulations.

The Lead Inspection Report is another document that shares similarities with the DCH-0654 form. While the DCH-0654 focuses on notifying authorities about upcoming abatement activities, the Lead Inspection Report provides detailed findings from inspections conducted to identify lead hazards. Both documents are critical in the lead management process, and they work together to ensure that necessary precautions are taken before any work begins. They both contribute to a comprehensive understanding of lead-related risks in properties.

Lastly, the Michigan Lead Abatement Contractor License Application is comparable to the DCH-0654 form. This application is necessary for firms wishing to obtain a license to conduct lead abatement work in Michigan. It requires extensive information about the contractor's qualifications, similar to how the DCH-0654 requires information about the contractor and the project. Both documents are essential in ensuring that only qualified individuals conduct lead-related activities, thereby protecting public health and safety.

Dos and Don'ts

When filling out the Michigan DCH 0654 form, follow these guidelines to ensure a smooth process.

  • Do complete all sections of the form accurately.
  • Do submit the form at least three business days before starting any lead abatement work.
  • Do include your contractor name and certification number.
  • Do provide a detailed scope of work, specifying tasks clearly.
  • Do update the form if there are any changes to the project schedule.
  • Don't leave any sections blank; incomplete forms will be rejected.
  • Don't forget to include the reason for any revisions if applicable.
  • Don't submit the form via email; use mail or fax as specified.
  • Don't assume that verbal notifications are sufficient; written notification is required.

Misconceptions

Understanding the Michigan DCH 0654 form is crucial for anyone involved in lead abatement activities. Unfortunately, several misconceptions can lead to confusion. Here are eight common myths about this important form:

  • It’s optional to notify the department. Many believe that notifying the department is not necessary. In reality, any firm conducting lead-based paint activities must notify the Michigan Department of Community Health at least three business days before starting work.
  • Incomplete forms are still accepted. Some think that submitting an incomplete form will suffice. However, all information is required, and incomplete notifications will not be approved.
  • Only large firms need to file this form. There is a misconception that only large companies are required to submit the DCH 0654 form. In truth, any firm, regardless of size, must comply with this requirement.
  • Changes to the project don’t need to be reported. Many assume that once the form is submitted, they don’t need to update it. If there are changes to the project schedule, the form must be revised and resubmitted at least 24 hours before the change.
  • The form can be submitted after the work begins. Some people mistakenly believe they can submit the form after starting work. This is incorrect; notification must occur at least three business days prior to commencement.
  • Only lead abatement contractors need to fill out the form. It’s a common belief that only lead abatement contractors are responsible for this form. However, any firm conducting lead-based paint activities must complete it.
  • There’s no need to specify the scope of work. Some individuals think that a brief notification is enough. In fact, detailing the scope of work is essential for compliance and proper oversight.
  • Faxing the form is not a valid submission method. Many are unaware that faxing is an acceptable way to submit the form. The Michigan Department of Community Health allows both mail and fax submissions.

By debunking these misconceptions, individuals and firms can ensure they remain compliant with Michigan’s lead abatement regulations and contribute to safer environments.

Key takeaways

Here are key takeaways for filling out and using the Michigan DCH 0654 form:

  • Notification Requirement: Notify the Michigan Department of Community Health (MDCH) at least three business days before starting any lead abatement activities.
  • Complete Information: Ensure that all sections of the form are filled out completely. Incomplete forms will not be approved.
  • Revision Process: If there are changes to the project schedule, indicate the revision number on the form and submit it at least 24 hours before the change.
  • Contact Information: Provide accurate contact details for the contractor and project supervisor to facilitate communication.
  • Scope of Work: Clearly outline the details of the work being done, including specific tasks like window replacement or paint removal.
  • Occupancy Status: Specify whether the building is occupied, vacant, or child-occupied, as this impacts the abatement process.
  • Fax and Mail Options: You can either fax the completed form to the MDCH or mail it to the designated address in Lansing, Michigan.
  • Certification Numbers: Include the Michigan certification numbers for all involved personnel, including the contractor and risk assessor.