Blank Michigan 632 PDF Form

Blank Michigan 632 PDF Form

The Michigan 632 form is a Personal Property Statement used by businesses to report tangible personal property located in Michigan as of December 31. This form is essential for ensuring accurate assessment and taxation of personal property, and it must be filed by February 1 each year. For guidance on completing the form, please fill it out by clicking the button below.

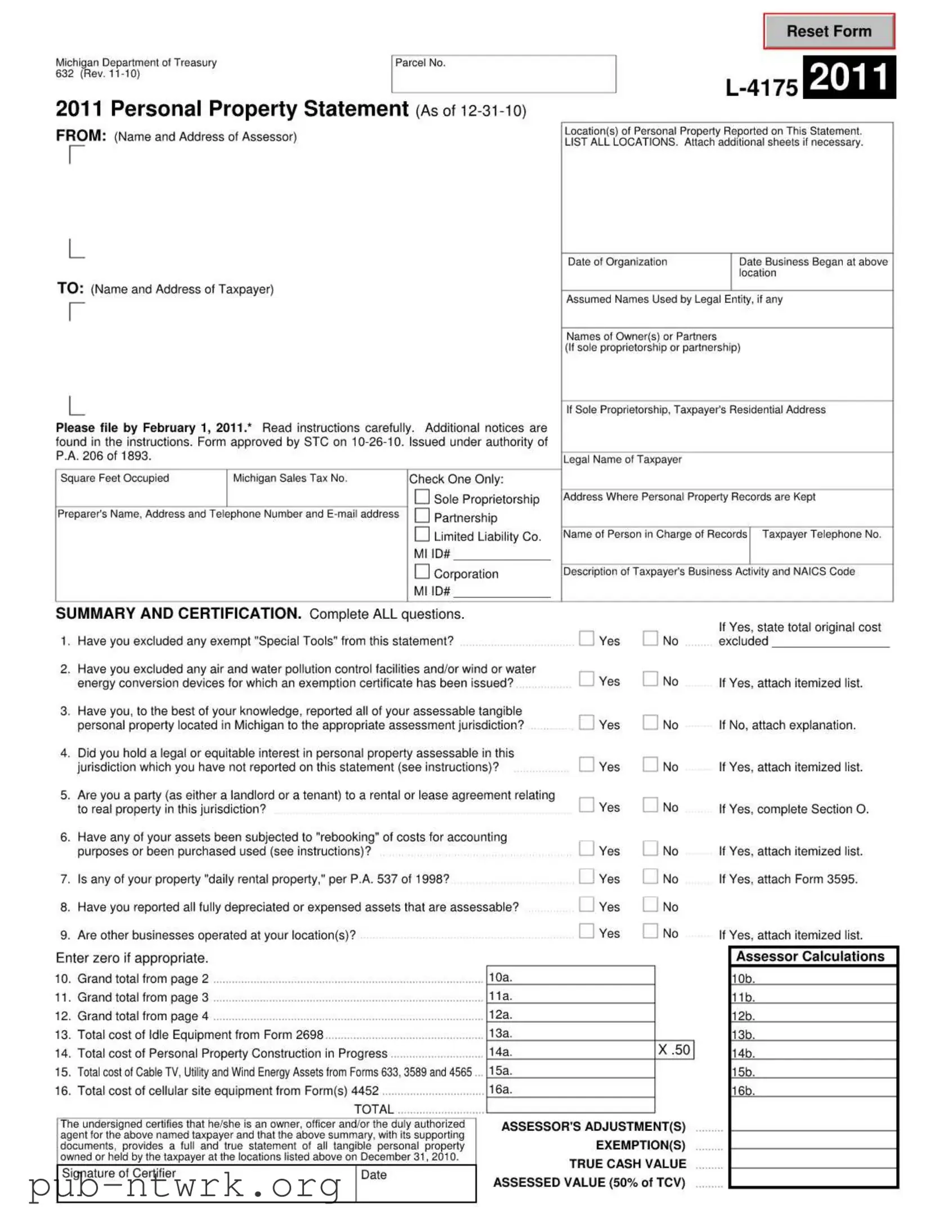
The Michigan 632 form is a crucial document for taxpayers in the state who own personal property. This form serves as a Personal Property Statement, which must be filed annually by businesses to report their assessable tangible personal property. It includes essential information such as the taxpayer's name and address, the location of the reported property, and details about the business activity. Taxpayers must specify their business structure—whether a sole proprietorship, partnership, limited liability company, or corporation. The form also requires a summary and certification section, where taxpayers confirm they have accurately reported all their assessable property and any exemptions that may apply, such as special tools or pollution control facilities. Additionally, the form includes sections for listing various types of personal property, including leased items and equipment not owned by the taxpayer. Completing this form accurately is vital, as it impacts the assessment of property taxes and compliance with state regulations.

Document Sample

File Specifics

Fact Name Description
Purpose of Form The Michigan 632 form is used to report personal property owned by businesses as of December 31 of the previous year.
Filing Deadline This form must be filed by February 1 of the year following the assessment date to avoid penalties.
Governing Law The form is issued under the authority of Public Act 206 of 1893, which governs property tax assessments in Michigan.
Types of Entities Businesses can report their personal property using this form, including sole proprietorships, partnerships, corporations, and limited liability companies.
Exemptions The form allows for the exclusion of certain exempt properties, such as special tools and air and water pollution control facilities.

How to Use Michigan 632

Completing the Michigan 632 form requires careful attention to detail. This form is essential for reporting personal property and must be filed by February 1, 2011. Ensure all information is accurate and complete to avoid complications with your tax obligations.

  1. Begin by filling in the Name and Address of Assessor at the top of the form.
  2. Provide the Parcel Number and the Location(s) of Personal Property reported on this statement. List all locations and attach additional sheets if necessary.
  3. Enter the Date of Organization and the Date Business Began at the specified location.
  4. Fill in the Name and Address of Taxpayer.
  5. Indicate any Assumed Names Used by your legal entity, if applicable.
  6. List the Names of Owner(s) or Partners if your business is a sole proprietorship or partnership.
  7. Check the appropriate box to indicate your business structure: Sole Proprietorship, Partnership, Limited Liability Co., or Corporation.
  8. If applicable, provide the Taxpayer's Residential Address for sole proprietorships.
  9. Complete the Legal Name of Taxpayer and the Address Where Personal Property Records are Kept.
  10. Enter the Name of Person in Charge of Records and their Telephone Number.
  11. Describe the Taxpayer’s Business Activity and include the NAICS Code.
  12. Answer all questions in the Summary and Certification section, including whether you have excluded any exempt property.
  13. For questions requiring attachments, ensure you include the necessary itemized lists or explanations.
  14. Complete the Grand Total sections from pages 2, 3, and 4, and include the total cost of idle equipment and personal property construction in progress.
  15. Certify the form by signing in the Signature of Certifier section.
  16. Submit the completed form by the deadline.

Your Questions, Answered

What is the Michigan 632 Form?

The Michigan 632 Form, also known as the Personal Property Statement, is a document that businesses in Michigan must file to report their tangible personal property. This includes items such as machinery, equipment, and furniture owned by the business as of December 31 of the previous year. The form helps local assessors determine the taxable value of the property for local taxation purposes.

Who needs to file the Michigan 632 Form?

Any business entity operating in Michigan that owns tangible personal property must file this form. This includes sole proprietorships, partnerships, limited liability companies, and corporations. If a business has any assessable personal property, it is required to complete and submit the form to the appropriate local assessor.

When is the Michigan 632 Form due?

The form must be filed by February 1 of each year. It is important for businesses to adhere to this deadline to avoid penalties or issues with their tax assessments. If a business fails to file on time, it may be subject to additional scrutiny or penalties from the local tax authority.

What information is required on the form?

The Michigan 632 Form requires detailed information about the business, including:

  • The legal name and address of the taxpayer
  • The location(s) of the personal property
  • The description of the business activity
  • A list of all tangible personal property owned
  • Any exempt property that should not be included in the statement

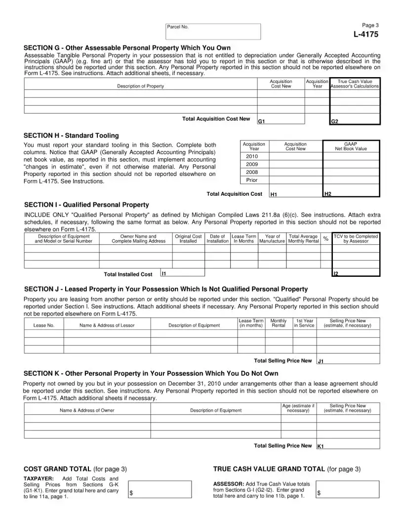
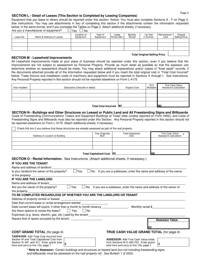
Additional sections of the form may require information about leased property, qualified personal property, and any other relevant assets.

What happens if I do not file the Michigan 632 Form?

If a business does not file the Michigan 632 Form, it may face penalties, including fines and the potential for a higher assessed value of its property. Local assessors may estimate the value of the business's property, which could result in increased taxes. It is crucial for businesses to ensure timely and accurate filing to avoid these consequences.

Can I amend the Michigan 632 Form after filing?

Yes, businesses can amend the Michigan 632 Form if they discover errors or omissions after filing. It is advisable to contact the local assessor’s office to understand the process for making amendments. Timely corrections can help prevent issues during the assessment process.

What is considered "Qualified Personal Property"?

"Qualified Personal Property" is defined by Michigan Compiled Laws and refers to specific types of property that may be eligible for certain tax exemptions or considerations. This typically includes property that meets certain criteria related to its use or function within the business. It is essential to review the instructions provided with the form to determine what qualifies.

Where can I find additional information or assistance with the Michigan 632 Form?

Additional information about the Michigan 632 Form can be found on the Michigan Department of Treasury's website. Local assessor offices are also valuable resources for assistance. They can provide guidance on completing the form, understanding exemptions, and addressing any specific questions related to personal property taxation.

Common mistakes

  1. Incomplete Information: Many individuals fail to provide all required details, such as the location(s) of personal property or the names of owners or partners. Ensure that every section is filled out completely.

  2. Missing Signature: The form must be signed by the certifier. Omitting this signature can result in the form being rejected.

  3. Incorrect Filing Date: The deadline for filing is crucial. Submitting the form after February 1, 2011, can lead to penalties or additional fees.

  4. Failure to Report All Assets: Some taxpayers overlook fully depreciated or expensed assets. All assessable tangible personal property must be reported, regardless of its depreciation status.

  5. Ignoring Special Exemptions: Not excluding exempt items, such as "Special Tools" or pollution control facilities, can lead to inaccurate reporting and potential tax liabilities.

  6. Neglecting Move-Ins: Taxpayers sometimes forget to report "move-ins" of used property. This includes any assessable personal property that was not previously assessed in the jurisdiction.

  7. Inaccurate or Missing NAICS Code: The North American Industry Classification System (NAICS) code is essential for identifying the nature of the business. Providing an incorrect or missing code can complicate the assessment process.

Documents used along the form

The Michigan 632 form is essential for reporting personal property for tax purposes. Along with this form, several other documents may be required to ensure compliance with Michigan tax regulations. Below is a list of commonly used forms that complement the Michigan 632 form.

  • Form 3966: This form is used to report any "move-ins" of used personal property that were not assessed in the previous year. It captures details about property acquired from outside the jurisdiction or items that were previously exempt.
  • Form 2698: This form is utilized to report the cost of idle equipment. Taxpayers must detail any equipment that is not currently in use but still owned as of the reporting date.
  • Form 633: This document is necessary for reporting costs associated with cable TV, utility, and wind energy assets. It helps assessors determine the value of these specific types of personal property.
  • Form 3589: This form is used to report the costs of personal property construction in progress. It is crucial for taxpayers who have ongoing projects that will contribute to their taxable property base.
  • Form 4452: This form captures the cost of cellular site equipment. Taxpayers must report any equipment related to cellular services that may be subject to taxation.
  • Form 3595: This form is required for reporting fully depreciated or expensed assets that are still assessable. It ensures that all relevant assets are accounted for in the property tax assessment process.

Utilizing these forms alongside the Michigan 632 form can help ensure a comprehensive and accurate reporting of personal property for tax purposes. Timely submission of all relevant documents is crucial to avoid penalties and ensure compliance with state regulations.

Similar forms

The Michigan 632 form bears similarities to the IRS Form 4562, which is used for the depreciation and amortization of assets. Both documents require taxpayers to report their tangible personal property, ensuring that all assessable assets are accounted for. Just like the Michigan 632, Form 4562 demands detailed information about the property, including acquisition costs and the date the assets were placed in service. This comprehensive reporting helps both state and federal authorities accurately assess the value of assets for tax purposes, ensuring compliance with tax regulations.

Another document akin to the Michigan 632 form is the Personal Property Tax Return used in various states. These returns typically require businesses to declare their personal property to local tax authorities. Similar to the Michigan 632, the Personal Property Tax Return includes sections for listing various types of property, such as machinery, equipment, and furniture. The goal of both forms is to provide a clear picture of a business's assets, ensuring that all taxable property is reported accurately and timely to avoid penalties.

The Schedule C form, which is part of the IRS tax return for sole proprietors, also shares similarities with the Michigan 632 form. Schedule C requires individuals to report income and expenses related to their business, including the cost of goods sold and other operational expenses. Like the Michigan 632, it necessitates a detailed account of business assets, providing a comprehensive overview of the financial standing of the business. Both forms play a crucial role in determining the tax obligations of the business owner, making accurate reporting essential.

Lastly, the Michigan Corporate Income Tax (CIT) form can be compared to the Michigan 632 form. While the CIT form focuses on the income earned by corporations, it also requires the reporting of property owned by the corporation, similar to the personal property statement. Both documents aim to ensure that businesses are accurately reporting their assets and income, which is essential for proper tax assessment. The connection between these forms highlights the importance of transparency in financial reporting for tax compliance.

Dos and Don'ts

When filling out the Michigan 632 form, it is crucial to follow specific guidelines to ensure accuracy and compliance. Here are six things you should and shouldn't do:

  • Do read the instructions carefully before starting the form.
  • Do provide all required information, including your name, address, and business details.
  • Do report all assessable tangible personal property accurately.
  • Do attach any necessary additional sheets if you need more space.
  • Don't forget to include fully depreciated or expensed assets.
  • Don't omit any exempt "Special Tools" or other exempt property from your report.

By adhering to these guidelines, you can help ensure that your submission is complete and correct, reducing the risk of issues later on.

Misconceptions

Understanding the Michigan 632 form can be challenging. Here are five common misconceptions that may lead to confusion:

  • The form is only for large businesses. Many believe that only large corporations need to file the Michigan 632 form. In reality, any business that owns tangible personal property in Michigan must complete this form, regardless of size.
  • All personal property must be reported every year. Some think they need to report every single item annually. However, only assessable tangible personal property must be reported, and certain exemptions apply, such as fully depreciated assets.
  • Filing late will result in immediate penalties. There is a concern that missing the February 1 deadline will lead to severe penalties. While timely filing is important, there are often options for late filings, including potential penalty waivers under specific circumstances.
  • The form is the same every year. Many assume that the Michigan 632 form does not change. It is important to check for updates or revisions each year, as instructions and requirements may evolve.
  • Only the owner needs to sign the form. Some believe that only the business owner can certify the form. However, an authorized agent can also sign, provided they have the necessary authority to do so.

By addressing these misconceptions, businesses can navigate the filing process with greater confidence and accuracy. Understanding the requirements can lead to smoother compliance and less stress during tax season.

Key takeaways

The Michigan 632 form is crucial for reporting personal property for tax purposes. Here are some key takeaways to keep in mind when filling it out:

  • Deadline Awareness: Submit the form by February 1, 2011, to avoid penalties.
  • Accurate Reporting: Ensure all assessable tangible personal property is reported, including fully depreciated assets.
  • Exemptions: Identify and exclude any exempt items, such as special tools or pollution control facilities.
  • Move-Ins: Report any used property that was not assessed in the previous year using Form 3966.
  • Location Details: List all locations where personal property is held; additional sheets can be attached if necessary.
  • Certification: The form must be certified by an owner, officer, or authorized agent of the taxpayer.
  • Detailed Descriptions: Provide thorough descriptions of business activities and personal property to ensure accurate assessment.
  • Lease Information: Report leased property separately and ensure it is categorized correctly.
  • Consult Instructions: Read the instructions carefully for guidance on how to allocate personal property into the appropriate sections.

By following these takeaways, taxpayers can ensure compliance and accuracy in their reporting on the Michigan 632 form.