Blank Michigan 2766 PDF Form

Blank Michigan 2766 PDF Form

The Michigan 2766 form, also known as the Property Transfer Affidavit, is a mandatory document required by the Michigan Department of Treasury. It must be filed whenever real estate or certain types of personal property are transferred, even if a deed is not recorded. New owners are required to submit this affidavit to the local assessor within 45 days of the property transfer.

Fill out the Michigan 2766 form by clicking the button below.

The Michigan 2766 form, also known as the Property Transfer Affidavit, plays a crucial role in the real estate transaction process within the state. Issued by the Michigan Department of Treasury, this form is mandatory and must be filed whenever there is a transfer of real estate or certain types of personal property. New owners are required to submit this affidavit to the local assessor within 45 days of the transfer, even if a deed is not being recorded. The form collects essential information, including the property’s street address, the date of transfer, and the names of both the seller and buyer. It also requests details regarding the purchase price and the property identification number, which can be found on tax bills and assessment notices. While some sections are optional, providing additional information may help streamline the process and reduce further correspondence. Exemptions are available for specific transfers, such as those between family members or related parties. It is important to note that the information submitted is not confidential, and accurate completion of the form is essential to avoid penalties. Understanding the requirements and implications of the Michigan 2766 form is vital for anyone involved in property transactions in Michigan.

Document Sample

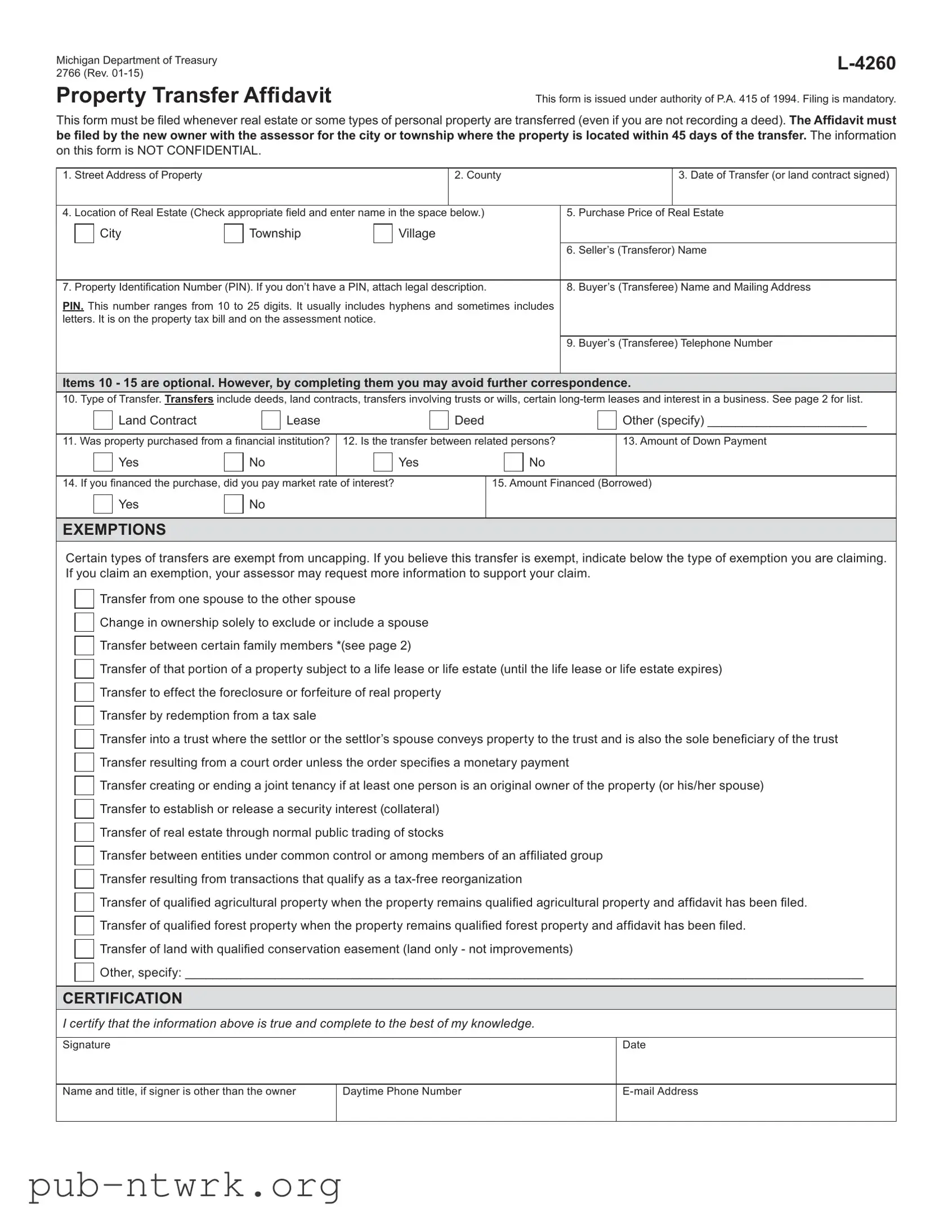
Michigan Department of Treasury

L-4260

2766 (Rev. 01-15)

 

Property Transfer Afidavit

This form is issued under authority of P.A. 415 of 1994. Filing is mandatory.

This form must be iled whenever real estate or some types of personal property are transferred (even if you are not recording a deed). The Afidavit must be iled by the new owner with the assessor for the city or township where the property is located within 45 days of the transfer. The information

on this form is NOT CONFIDENTIAL.

1.

Street Address of Property

 

 

 

 

2. County

 

 

3. Date of Transfer (or land contract signed)

 

 

 

 

 

 

 

 

 

 

 

4.

Location of Real Estate (Check appropriate ield and enter name in the space

below.)

5.

Purchase Price of Real Estate

 

 

City

 

Township

 

Village

 

 

 

 

 

 

 

 

 

 

 

 

 

 

 

 

 

 

6.

Seller’s (Transferor) Name

 

 

 

 

 

 

 

 

 

 

 

7.

Property Identiication Number (PIN). If you don’t have a PIN, attach legal description.

8.

Buyer’s (Transferee) Name and Mailing Address

PIN. This number ranges from 10 to 25 digits. It usually includes hyphens and sometimes includes

 

 

 

letters. It is on the property tax bill and on the assessment notice.

 

 

 

 

 

 

 

 

 

 

 

 

 

 

 

 

 

 

 

 

 

 

 

 

9.

Buyer’s (Transferee) Telephone Number

 

 

 

 

 

 

 

 

 

 

 

Items 10 - 15 are optional. However, by completing them you may avoid further correspondence.

10.Type of Transfer. TRANSFERS include deeds, land contracts, transfers involving trusts or wills, certain long-term leases and interest in a business. See page 2 for list.

 

 

Land Contract

 

 

 

Lease

 

 

 

 

Deed

 

Other (specify) _______________________

 

 

 

 

 

 

 

 

 

 

 

 

 

 

 

 

11. Was property purchased from a inancial institution?

12. Is the transfer between related persons?

 

13. Amount of Down Payment

 

 

Yes

 

No

 

 

Yes

 

 

 

 

No

 

 

 

 

 

 

 

 

 

 

 

 

 

 

 

 

 

 

 

 

 

 

 

 

 

 

 

 

 

 

 

 

 

 

 

 

14. If you inanced the purchase, did you pay market rate

of interest?

 

 

15. Amount Financed (Borrowed)

 

 

Yes

 

No

 

 

 

 

 

 

 

 

 

 

 

 

 

 

 

 

 

 

 

 

 

 

 

 

 

 

 

 

 

 

 

 

 

 

 

 

 

 

 

 

 

 

 

 

 

 

 

 

 

 

 

 

 

 

 

 

 

EXEMPTIONS

Certain types of transfers are exempt from uncapping. If you believe this transfer is exempt, indicate below the type of exemption you are claiming. If you claim an exemption, your assessor may request more information to support your claim.

Transfer from one spouse to the other spouse

Change in ownership solely to exclude or include a spouse

Transfer between certain family members *(see page 2)

Transfer of that portion of a property subject to a life lease or life estate (until the life lease or life estate expires)

Transfer to effect the foreclosure or forfeiture of real property

Transfer by redemption from a tax sale

Transfer into a trust where the settlor or the settlor’s spouse conveys property to the trust and is also the sole beneiciary of the trust Transfer resulting from a court order unless the order speciies a monetary payment

Transfer creating or ending a joint tenancy if at least one person is an original owner of the property (or his/her spouse)

Transfer to establish or release a security interest (collateral)

Transfer of real estate through normal public trading of stocks

Transfer between entities under common control or among members of an afiliated group Transfer resulting from transactions that qualify as a tax-free reorganization

Transfer of qualiied agricultural property when the property remains qualiied agricultural property and afidavit has been iled. Transfer of qualiied forest property when the property remains qualiied forest property and afidavit has been iled.

Transfer of land with qualiied conservation easement (land only - not improvements)

Other, specify: __________________________________________________________________________________________________

CERTIFICATION

I certify that the information above is true and complete to the best of my knowledge.

Signature

Date

Name and title, if signer is other than the owner

Daytime Phone Number

E-mail Address

2766, Page 2

Instructions:

This form must be iled when there is a transfer of real property or one of the following types of personal property:

Buildings on leased land.

Leasehold improvements, as deined in MCL Section 211.8(h).

Leasehold estates, as deined in MCL Section 211.8(i) and (j).

Transfer of ownership means the conveyance of title to or a present interest in property, including the beneicial use of the property. For complete descriptions of qualifying transfers, please refer to MCL Section 211.27a(6)(a-j).

Excerpts from Michigan Compiled Laws (MCL), Chapter 211

*Section 211.27a(7)(t): Beginning December 31, 2014, a transfer of residential real property if the transferee is the transferor’s or the transferor’s spouse’s mother, father, brother, sister, son, daughter, adopted son, adopted daughter, grandson, or granddaughter and the residential real property is not used for any commercial purpose following the conveyance. Upon request by the department of treasury or the assessor, the transferee shall furnish proof within 30 days that the transferee meets the requirements of this subparagraph. If a transferee fails to comply with a request by the department of treasury or assessor under this subparagraph, that transferee is subject to a ine of $200.00.

Section 211.27a(10): “... the buyer, grantee, or other transferee of the property shall notify the appropriate assessing ofice in the local unit of government in which the property is located of the transfer of ownership of the property within 45 days of the transfer of ownership, on a form prescribed by the state tax commission that states the parties to the transfer, the date of the transfer, the actual consideration for the transfer, and the property’s parcel identiication number or legal description.”

Section 211.27(5): “Except as otherwise provided in subsection (6), the purchase price paid in a transfer of property

is not the presumptive true cash value of the property transferred. In determining the true cash value of transferred property, an assessing oficer shall assess that property using the same valuation method used to value all other property of that same classiication in the assessing jurisdiction.”

Penalties:

Section 211.27b(1): “If the buyer, grantee, or other transferee in the immediately preceding transfer of ownership of property does not notify the appropriate assessing ofice as required by section 27a(10), the property’s taxable value shall be adjusted under section 27a(3) and all of the following shall be levied:

(a)Any additional taxes that would have been levied if the transfer of ownership had been recorded as required under this act from the date of transfer.

(b)Interest and penalty from the date the tax would have been originally levied.

(c)For property classiied under section 34c as either industrial real property or commercial real property, a penalty in the following amount:

(i)Except as otherwise provided in subparagraph (ii), if the sale price of the property transferred is $100,000,000.00 or less, $20.00 per day for each separate failure beginning after the 45 days have elapsed, up to a maximum of $1,000.00.

(ii)If the sale price of the property transferred is more than $100,000,000.00, $20,000.00 after the 45 days have elapsed.

(d)For real property other than real property classiied under section 34c as industrial real property or commercial real property, a penalty of $5.00 per day for each separate failure beginning after the 45 days have elapsed, up to a maximum of $200.00.

File Specifics

Fact Name Details
Form Purpose The Michigan 2766 form is used to report the transfer of real estate or certain types of personal property. Filing this affidavit is mandatory whenever such transfers occur.
Filing Deadline New owners must file the form with the local assessor within 45 days of the property transfer date.
Governing Law This form is issued under the authority of Public Act 415 of 1994, which mandates its use for property transfers.
Confidentiality The information provided on the Michigan 2766 form is not confidential and may be accessible to the public.

How to Use Michigan 2766

Filling out the Michigan 2766 form is an essential step when transferring real estate or certain types of personal property. After completing this form, it must be submitted to the assessor of the city or township where the property is located within 45 days of the transfer. This ensures compliance with state regulations and helps avoid potential penalties.

  1. Provide the street address of the property: Enter the full street address where the property is located.
  2. Indicate the county: Write the name of the county where the property is situated.
  3. Specify the date of transfer: Fill in the date when the transfer occurred or when the land contract was signed.
  4. Identify the location of the real estate: Check the appropriate box for City, Township, or Village and enter the name in the space provided.
  5. Enter the purchase price: Write down the total purchase price of the real estate.
  6. List the seller’s name: Provide the full name of the person or entity transferring the property.
  7. Include the Property Identification Number (PIN): If you do not have a PIN, attach a legal description of the property.
  8. Fill in the buyer’s name and mailing address: Enter the full name and mailing address of the new owner.
  9. Provide the buyer’s telephone number: Include a contact number for the buyer.
  10. Type of transfer: Indicate the type of transfer (e.g., Land Contract, Lease, Deed, etc.).
  11. Answer optional questions: If applicable, respond to questions regarding the purchase from a financial institution, related persons, down payment amount, market rate interest, and amount financed.
  12. Claim any exemptions: If applicable, indicate the type of exemption you believe applies to this transfer.
  13. Certification: Sign and date the form, providing your name and title if you are not the owner. Include your daytime phone number and email address.

Your Questions, Answered

What is the Michigan 2766 form?

The Michigan 2766 form, also known as the Property Transfer Affidavit, is a document that must be filed whenever there is a transfer of real estate or certain types of personal property in Michigan. This form is required by law and must be submitted to the local assessor within 45 days of the transfer, even if no deed is being recorded.

Who is responsible for filing the form?

The new owner, referred to as the transferee, is responsible for filing the Michigan 2766 form. This must be done with the assessor for the city or township where the property is located. Timely submission is crucial to avoid penalties.

What information is required on the form?

The form requires several key pieces of information, including:

  1. Street address of the property
  2. County
  3. Date of transfer
  4. Purchase price of the real estate
  5. Names of the seller and buyer
  6. Property Identification Number (PIN)
  7. Contact information for the buyer

Additional optional information may help avoid further correspondence with the assessor.

What happens if I do not file the form?

If the form is not filed within the required 45 days, there can be significant penalties. The property’s taxable value may be adjusted, and the owner could face additional taxes, interest, and penalties. These can accumulate quickly, leading to financial strain.

Are there exemptions for certain transfers?

Yes, some transfers are exempt from uncapping property taxes. Examples include transfers between spouses, certain family members, or transfers resulting from court orders. If you believe your transfer qualifies for an exemption, you must indicate this on the form, and be prepared to provide additional documentation if requested.

What if I am unsure about the property's PIN?

If you do not have the Property Identification Number (PIN), you can attach a legal description of the property to the form. The PIN is typically found on the property tax bill or assessment notice, and it usually consists of 10 to 25 digits.

Can I complete the form online?

While the Michigan Department of Treasury may provide online resources, the form itself must be printed, completed, and submitted to the local assessor’s office. Always check the official website for the most current procedures.

What should I do if I need assistance with the form?

If you need help completing the Michigan 2766 form, consider reaching out to the local assessor’s office. They can provide guidance on filling out the form correctly. Additionally, consulting with a real estate attorney or a professional familiar with property transactions can be beneficial.

Is the information on the form confidential?

No, the information provided on the Michigan 2766 form is not confidential. It is a public record, which means that it can be accessed by others. Ensure that you provide accurate information, as it will be used for property tax assessments.

Common mistakes

  1. Incomplete Information: Many individuals fail to fill out all required fields on the form, such as the property address or the buyer's name. Omitting essential information can delay processing.

  2. Incorrect Property Identification Number (PIN): Providing an incorrect PIN can lead to complications. It is crucial to double-check this number, as it is vital for identifying the property.

  3. Missing Signature: Some people forget to sign the affidavit. A missing signature invalidates the form, requiring resubmission.

  4. Failure to Meet Deadline: The form must be submitted within 45 days of the transfer. Missing this deadline can result in penalties.

  5. Incorrect Purchase Price: Listing an inaccurate purchase price can lead to issues with property assessments. Ensure the amount reflects the actual transaction.

  6. Not Specifying the Type of Transfer: Many individuals neglect to indicate the type of transfer, such as whether it is a deed or land contract. This information is necessary for proper classification.

  7. Ignoring Optional Items: While items 10-15 are optional, completing them can prevent further correspondence with the assessor's office. Many people skip these fields, missing an opportunity for clarity.

  8. Inaccurate Exemption Claims: Claiming an exemption without proper justification or documentation can lead to complications. If claiming an exemption, be prepared to provide additional information if requested.

Documents used along the form

The Michigan 2766 form, or Property Transfer Affidavit, is essential for reporting the transfer of real estate and certain personal property in Michigan. When completing this form, several other documents may also be necessary to ensure compliance with state regulations. Below is a list of commonly used forms and documents that accompany the Michigan 2766 form.

  • Deed: A legal document that formally transfers ownership of real property from one party to another. It includes details about the property and the parties involved.
  • Land Contract: A written agreement between a buyer and seller where the buyer makes payments to the seller for the property over time, with the seller retaining legal title until the contract is fulfilled.
  • Property Tax Bill: An official statement that outlines the property taxes owed on the property. It includes the Property Identification Number (PIN) that is crucial for identification purposes.
  • Legal Description of Property: A detailed description that identifies the exact location and boundaries of the property. This is important if the PIN is not available.
  • Affidavit of Identity: A document used to verify the identity of the parties involved in the property transfer, particularly if there are discrepancies in names or ownership records.
  • Certification of Exemptions: A form that claims an exemption from uncapping property taxes due to specific circumstances, such as transfers between family members or certain trust arrangements.
  • Notice of Transfer: A notification sent to the local assessing office to inform them of the property transfer, required within 45 days of the transaction.
  • Loan Documents: Any paperwork related to financing the property purchase, including mortgage agreements and disclosures regarding interest rates and terms.
  • Title Insurance Policy: A policy that protects the buyer and lender from potential disputes over property ownership and claims against the property.

Completing the Michigan 2766 form along with the necessary supporting documents is crucial to ensure a smooth property transfer process. Timely filing can help avoid penalties and complications in property ownership. Always consult with a professional if you have questions about the requirements or need assistance with the process.

Similar forms

The Michigan Property Transfer Affidavit (Form 2766) is similar to the IRS Form 709, which is used for reporting gifts. Both forms require detailed information about the parties involved and the nature of the transaction. Just as the 2766 form must be filed within a certain timeframe following a property transfer, the IRS Form 709 has specific deadlines for reporting gifts made during the tax year. Both forms serve to document the transfer of ownership, ensuring that relevant authorities are informed for tax assessment purposes.

Another similar document is the Quit Claim Deed. This legal instrument is used to transfer an interest in real property without guaranteeing that the title is clear. Like the Michigan 2766 form, a Quit Claim Deed must be filed with the appropriate local government office to ensure the transfer is officially recognized. Both documents require the names of the parties involved and a description of the property, thereby creating a public record of the transaction.

The Warranty Deed is also comparable to the Michigan 2766 form. A Warranty Deed provides a guarantee that the grantor holds clear title to the property and has the right to sell it. Similar to the 2766, this document must be recorded with the local government. Both forms aim to protect the interests of the parties involved in the transfer, ensuring that the new owner has legal rights to the property.

The Affidavit of Identity is another related document. This affidavit is often used to confirm the identity of the parties in a property transaction. While the Michigan 2766 form focuses on the details of the property transfer itself, the Affidavit of Identity serves to validate the individuals involved. Both documents contribute to the integrity of the property transfer process by providing necessary information to local authorities.

The Real Estate Transfer Tax Form is similar in that it is required when real estate is sold or transferred. This form, like the Michigan 2766, must be filed with the local tax authority and includes details about the transaction. Both documents are essential for tax assessment and ensure that the appropriate taxes are collected based on the transfer of ownership.

The Declaration of Value is another document that aligns with the Michigan 2766 form. This declaration is often filed alongside a deed to provide information about the sale price and other relevant details. Both forms aim to inform local authorities about the specifics of the property transfer, ensuring accurate assessment for tax purposes.

The Title Insurance Policy also shares similarities with the Michigan 2766 form. While the 2766 is concerned with the transfer of ownership, a Title Insurance Policy protects the buyer against potential issues related to the title. Both documents play a crucial role in real estate transactions, ensuring that the new owner is aware of their rights and any potential liabilities.

The Bill of Sale is akin to the Michigan 2766 form in that it documents the transfer of ownership for personal property. While the 2766 is specific to real estate, the Bill of Sale serves a similar purpose for personal items. Both documents require details about the parties involved and the item being transferred, thus creating a record of the transaction.

Finally, the Deed of Trust is comparable to the Michigan 2766 form in that it involves the transfer of property interests. A Deed of Trust is used in real estate transactions to secure a loan, while the 2766 form documents the transfer of property ownership. Both forms require detailed information about the parties and the property, ensuring that all relevant details are recorded for future reference.

Dos and Don'ts

When filling out the Michigan 2766 form, attention to detail is crucial. This form is a Property Transfer Affidavit, and it must be completed accurately to ensure compliance with state regulations. Here are seven essential do's and don'ts to keep in mind:

  • Do fill out the form within 45 days of the property transfer to avoid penalties.
  • Don't omit any required information, such as the street address or the buyer's name.
  • Do double-check the Purchase Price of the real estate to ensure it reflects the actual transaction.
  • Don't use abbreviations or unclear terms; clarity is key for all entries.
  • Do include the Property Identification Number (PIN) if available; if not, attach a legal description of the property.
  • Don't forget to sign and date the form; an unsigned form will be considered incomplete.
  • Do provide a daytime phone number and email address for any follow-up questions from the assessor's office.

By following these guidelines, you can help ensure that your filing is smooth and compliant with Michigan's property transfer regulations.

Misconceptions

Understanding the Michigan 2766 form can be challenging due to common misconceptions. Here are seven myths and the truths behind them:

  • Filing the form is optional. Many believe that submitting the Michigan 2766 form is a choice. In reality, it is mandatory whenever real estate or certain personal property is transferred.
  • The form is only needed when recording a deed. Some think this form is only required for deed recordings. However, it must be filed even if a deed is not being recorded.
  • The information on the form is confidential. It is a common belief that the details provided are private. In fact, the information on the Michigan 2766 form is not confidential and can be accessed by the public.
  • You have unlimited time to file the form. Many assume they can take their time. In truth, the form must be filed within 45 days of the property transfer.
  • Only the buyer needs to fill out the form. Some people think only the new owner is responsible. However, the seller also plays a role in ensuring the form is completed correctly.
  • Exemptions do not need to be documented. There is a misconception that claiming an exemption is straightforward. In reality, if you claim an exemption, the assessor may ask for additional information to support your claim.
  • All transfers are treated the same. Some believe that every transfer is assessed similarly. This is not true; certain transfers may qualify for exemptions that prevent uncapping of property taxes.

Being aware of these misconceptions can help ensure compliance with Michigan's property transfer regulations.

Key takeaways

Here are some key takeaways about filling out and using the Michigan 2766 form:

  • Mandatory Filing: The Michigan 2766 form must be filed whenever real estate or certain types of personal property are transferred.
  • Deadline: The new owner must submit the form to the local assessor within 45 days of the property transfer.
  • Public Information: The details provided on this form are not confidential and can be accessed by the public.
  • Required Information: Essential details include the street address, county, date of transfer, purchase price, and names of the buyer and seller.
  • Property Identification Number: If you do not have a PIN, include a legal description of the property.
  • Optional Sections: Items 10-15 are optional but completing them may reduce follow-up correspondence.
  • Exemptions: Certain transfers may be exempt from uncapping. If applicable, indicate the type of exemption on the form.
  • Certification: The form must be signed and dated, certifying that the information provided is true and complete.