Blank Michigan 2368 PDF Form

Blank Michigan 2368 PDF Form

The Michigan Department of Treasury 2368 form is an affidavit used to claim a Principal Residence Exemption (PRE) for property taxes. By filing this form with the local assessor, homeowners can potentially reduce their local school operating taxes on their primary residence. It is essential to complete this form accurately and submit it by May 1st to ensure the exemption is applied to the upcoming tax bill.

If you're ready to claim your exemption, fill out the form by clicking the button below.

The Michigan 2368 form, also known as the Principal Residence Exemption (PRE) Affidavit, is an important document for homeowners seeking tax relief on their primary residence. Issued by the Michigan Department of Treasury, this form allows eligible homeowners to claim an exemption from a portion of their local school operating taxes. To successfully complete the form, individuals must provide specific information about the property, including its tax identification number, address, and ownership details. It is crucial to file the form with the local assessor by May 1 of the year in which the exemption is claimed, as late submissions may not be accepted. Additionally, if a homeowner has previously claimed a PRE, filing the 2368 form will invalidate that claim, necessitating the submission of a Request to Rescind Principal Residence Exemption (Form 2602) for any prior exemptions. The form requires signatures from both the owner and co-owner, affirming that the information provided is accurate under penalty of perjury. Understanding the nuances of this form can help homeowners navigate the tax exemption process effectively, ensuring they receive the benefits to which they are entitled.

Document Sample

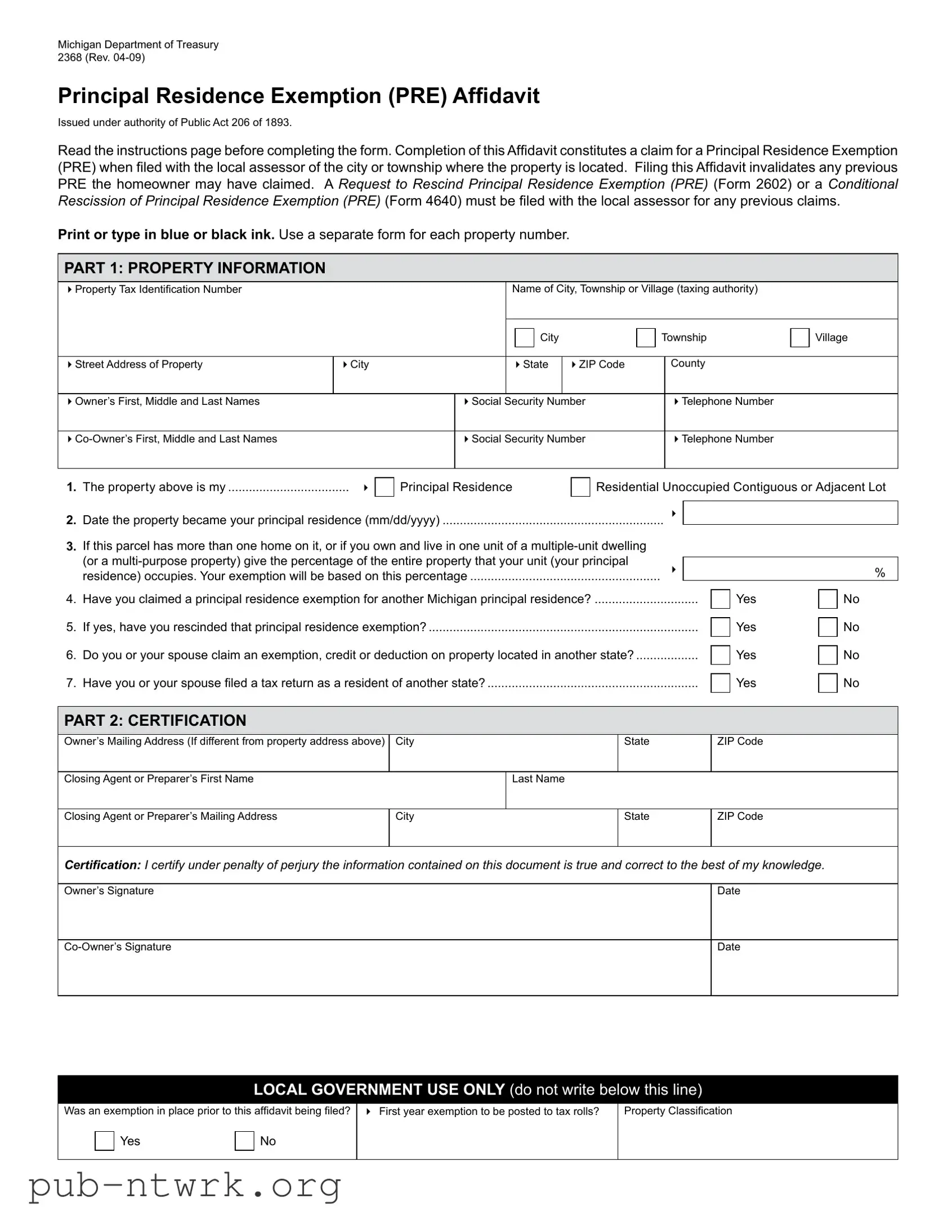
Michigan Department of Treasury 2368 (Rev. 04-09)

Principal Residence Exemption (PRE) Afidavit

Issued under authority of Public Act 206 of 1893.

Read the instructions page before completing the form. Completion of this Afidavit constitutes a claim for a Principal Residence Exemption (PRE) when iled with the local assessor of the city or township where the property is located. Filing this Afidavit invalidates any previous PRE the homeowner may have claimed. A Request to Rescind Principal Residence Exemption (PRE) (Form 2602) or a Conditional Rescission of Principal Residence Exemption (PRE) (Form 4640) must be iled with the local assessor for any previous claims.

Print or type in blue or black ink. Use a separate form for each property number.

PART 1: PROPERTY INFORMATION

4Property Tax Identiication Number

 

 

Name of City, Township or Village (taxing authority)

 

 

 

 

 

 

 

 

 

 

 

 

 

 

 

 

 

 

 

City

 

 

Township

 

Village

 

 

 

 

 

 

 

 

 

 

 

 

 

 

 

 

 

 

 

 

4Street Address of Property

4City

 

4State

4ZIP Code

 

 

County

 

 

 

 

 

 

 

 

 

 

 

 

 

 

4Owner’s First, Middle and Last Names

 

4Social Security Number

 

 

4Telephone Number

 

 

 

 

 

 

 

 

 

 

4Co-Owner’s First, Middle and Last Names

 

4Social Security Number

 

 

4Telephone Number

 

 

 

 

 

 

 

 

 

 

 

 

 

 

1. The property above is my

4

Principal Residence

Residential Unoccupied Contiguous or Adjacent Lot

 

 

4

2.

Date the property became your principal residence (mm/dd/yyyy)

 

3.

If this parcel has more than one home on it, or if you own and live in one unit of a multiple-unit dwelling

 

 

(or a multi-purpose property) give the percentage of the entire property that your unit (your principal

 

 

 

4

 

residence) occupies. Your exemption will be based on this percentage

 

4.Have you claimed a principal residence exemption for another Michigan principal residence? ..............................

5.If yes, have you rescinded that principal residence exemption? ..............................................................................

6.Do you or your spouse claim an exemption, credit or deduction on property located in another state? ..................

7.Have you or your spouse iled a tax return as a resident of another state? .............................................................

%

Yes

No

Yes

No

Yes

No

Yes

No

PART 2: CERTIFICATION

Owner’s Mailing Address (If different from property address above)

City

 

State

ZIP Code

 

 

 

 

 

Closing Agent or Preparer’s First Name

 

Last Name

 

 

 

 

 

 

 

Closing Agent or Preparer’s Mailing Address

City

 

State

ZIP Code

 

 

 

 

 

Certiication: I certify under penalty of perjury the information contained on this document is true and correct to the best of my knowledge.

Owner’s Signature

Co-Owner’s Signature

Date

Date

LOCAL GOVERNMENT USE ONLY (do not write below this line)

Was an exemption in place prior to this afidavit being iled?

Yes

No

4First year exemption to be posted to tax rolls?

Property Classiication

2368, Page 2

Instructions for Form 2368

Principal Residence Exemption (PRE) Afidavit

If you own and occupy your principal residence, it may be exempt from a portion of your local school operating taxes. To claim an

exemption, complete this Afidavit and ile it with your township or city by May 1 of the year of the claim. Your local assessor will adjust

your taxes on your next property tax bill. Note that this is an exemption from part of the taxes and does not affect your assessment.

Principal residence means the dwelling that you occupy as your permanent home and any unoccupied adjacent or contiguous properties that are classiied residential.

Owning means you hold the legal title to the principal residence or that you are currently buying it on a notarized or recorded land contract. Renters should not ile this form.

Occupying means this is your principal residence, the place you intend to return to whenever you go away. It may be the address that appears on your driver's license or voter registration card. Vacation homes and income property that you do not occupy as your principal residence may not be claimed. You may have only one principal residence at a time, however, you can ile a Conditional Rescission of Principal Residence Exemption (PRE) (Form 4640) on unsold property that is your previous principal residence under the

following conditions: it is for sale, is not occupied, is not leased, and is not used for any business or commercial purpose.

RESCINdING YOUR ExEMPTION

If you claim an exemption and then stop using it as a principal residence, you must notify your township or city assessor within 90 days of

the change or you may be penalized. This can be done using the Request to Rescind Principal Residence Exemption (PRE) (Form 2602) or iling Form 4640, as noted above.

INTEREST ANd PENALTY

If it is determined that you claimed property that is not your principal residence, you may be subject to the additional tax plus penalty

and interest as determined under the General Property Tax Act.

PART 1: PROPERTY INFORMATION

Submit a separate afidavit for each property tax identiication number being claimed.

It is imporatant that your property tax identiication number is entered accurately. This ensures that your property is identiied properly and that your township or city can accurately adjust your property taxes. You can ind this number on your tax bill and on your property tax assessment notice. If you cannot ind this number, call your township or city assessor.

NOTE: Do not include information for a co-owner who does not occupy the property as a principal residence.

The request for the Social Security number is authorized under Section 42 USC 405 (c) (2) (C) (i). It is used by the Department of

Treasury to verify tax exemption claims and to deter fraudulent ilings. Any use of the number by closing agents or local units of government is illegal and subject to penalty.

Line 3: If you own and live in a multi-unit or multi-purpose property (e.g., a duplex or apartment building, or a storefront with an upstairs lat), you can claim an exemption only for the portion that you use as your principal residence. Calculate your portion by dividing the loor area of your principal residence by the loor area of the entire building.

If the parcel of property you are claiming has more than one home on it, you must determine the percentage that you own and occupy

as your principal residence. A second residence on the same property (e.g., a mobile home or second house) is not part of your principal residence, even if it is not rented to another person. Your local assessor can tell you the assessed value of each residence to help you

determine the percentage that is your principal residence.

If you rent part of your home to another person, you may have to prorate your exemption. If your home is a single-family dwelling and the renters enter through a common door or your living area to get to their rooms, you may claim a 100 percent exemption if less than 50 percent of your home is rented to others who use it as a residence. However, if part of the home was converted to an apartment with a separate entrance, you must calculate the percentage that is your principal residence by dividing the loor area of your principal residence by the loor area of the entire building.

PART 2: CERTIFICATION

Sign and date the form. Enter your mailing address if it is different from the address under Part 1.

MAILING INFORMATION

Mail your completed form to the township or city assessor where the property is located. This address may be on your most recent tax

bill or assessment notice. Do NoT send this form directly to the Department of Treasury.

If you have any questions, visit our Web site at www.michigan.gov/PRE or call (517) 373-1950.

File Specifics

Fact Name Description
Form Purpose This form is used to claim a Principal Residence Exemption (PRE) for property taxes in Michigan.
Governing Law The form is issued under the authority of Public Act 206 of 1893.
Filing Deadline To qualify for the exemption, the form must be filed with the local assessor by May 1 of the year of the claim.
Impact of Filing Filing this affidavit invalidates any previous PRE claims made by the homeowner.

How to Use Michigan 2368

Completing the Michigan 2368 form is essential for homeowners seeking a Principal Residence Exemption. This exemption can reduce local school operating taxes. After filling out the form, submit it to your local assessor by May 1 to ensure your taxes are adjusted on your next property tax bill.

  1. Obtain the Michigan 2368 form from the Michigan Department of Treasury website or your local assessor's office.
  2. Print or type in blue or black ink. Ensure clarity and legibility throughout the form.
  3. In Part 1, fill in the property information:
    • Enter the Property Tax Identification Number.
    • Specify the Name of the City, Township, or Village.
    • Provide the Street Address of the Property.
    • Fill in the City, State, and ZIP Code.
    • Indicate the County.
    • List the Owner’s First, Middle, and Last Names.
    • Provide the Owner's Social Security Number.
    • Include the Owner's Telephone Number.
    • List the Co-Owner’s First, Middle, and Last Names.
    • Provide the Co-Owner's Social Security Number.
    • Include the Co-Owner's Telephone Number.
    • Mark whether the property is your Principal Residence, Residential Unoccupied, or Contiguous or Adjacent Lot.
    • Enter the date the property became your principal residence (mm/dd/yyyy).
    • If applicable, indicate the percentage of the property that your unit occupies.
    • Answer the questions regarding previous exemptions and claims.
  4. In Part 2, fill in the Certification section:
    • Provide the Owner’s Mailing Address if it differs from the property address.
    • Enter the Closing Agent or Preparer’s First and Last Name.
    • Include the Closing Agent or Preparer’s Mailing Address.
    • Sign and date the form for both the Owner and Co-Owner.
  5. Mail the completed form to the local assessor where the property is located. Do not send it directly to the Department of Treasury.

Your Questions, Answered

What is the Michigan 2368 form?

The Michigan 2368 form, also known as the Principal Residence Exemption (PRE) Affidavit, is a document used by homeowners in Michigan to claim an exemption from a portion of local school operating taxes. This exemption is applicable when the property is occupied as the homeowner's principal residence. The form must be filed with the local assessor of the city or township where the property is located.

Who is eligible to file the Michigan 2368 form?

Eligibility to file the Michigan 2368 form is limited to homeowners who occupy their property as their principal residence. This means the dwelling must be the homeowner's permanent home. The form cannot be filed by renters or individuals who do not occupy the property. Additionally, the homeowner must hold legal title to the property or be in the process of purchasing it through a land contract.

How does filing the Michigan 2368 form affect property taxes?

Filing the Michigan 2368 form can reduce the amount of local school operating taxes that a homeowner must pay. The exemption applies only to a portion of the taxes and does not affect the overall assessment of the property. Once the form is filed, the local assessor will adjust the homeowner's property tax bill accordingly.

What happens if I previously claimed a Principal Residence Exemption?

If a homeowner has previously claimed a Principal Residence Exemption, filing the Michigan 2368 form will invalidate that previous claim. Homeowners must also file a Request to Rescind Principal Residence Exemption (Form 2602) or a Conditional Rescission of Principal Residence Exemption (Form 4640) with the local assessor for any prior claims.

What information is required on the Michigan 2368 form?

The Michigan 2368 form requires various pieces of information, including:

  • Property Tax Identification Number
  • Name of the city, township, or village
  • Street address of the property
  • Owner's and co-owner's names and Social Security numbers
  • Telephone numbers
  • Certification of information accuracy

Each property must be submitted on a separate form, and it is crucial to ensure that all information is accurate to avoid delays or issues with the exemption.

Can I claim an exemption if I own multiple homes?

Homeowners may only claim one principal residence exemption at a time. If a homeowner owns multiple homes, they must determine which property is their principal residence. If they occupy a unit in a multi-unit dwelling, they can claim an exemption only for the portion of the property that they occupy. The percentage of the property that qualifies for the exemption must be calculated based on the floor area of the principal residence compared to the total floor area of the entire property.

What should I do if I stop using my property as a principal residence?

If a homeowner stops using the property as their principal residence, they must notify their local assessor within 90 days of the change. This can be done by filing a Request to Rescind Principal Residence Exemption (Form 2602) or a Conditional Rescission of Principal Residence Exemption (Form 4640). Failure to notify the assessor may result in penalties, including additional taxes, interest, and penalties under the General Property Tax Act.

Where should I send the completed Michigan 2368 form?

The completed Michigan 2368 form should be mailed to the local township or city assessor where the property is located. This address can typically be found on the most recent tax bill or property assessment notice. It is important not to send the form directly to the Department of Treasury.

Common mistakes

  1. Not reading the instructions carefully before starting. It's essential to understand all requirements to avoid mistakes.

  2. Failing to use the correct ink color. The form should be filled out using blue or black ink only.

  3. Using a single form for multiple properties. Each property requires a separate form with its unique property tax identification number.

  4. Incorrectly entering the property tax identification number. This number is crucial for identifying your property accurately.

  5. Not providing the full names of owners and co-owners. Ensure that all names are complete, including first, middle, and last names.

  6. Omitting the Social Security numbers for both owners. This information is necessary for verification purposes.

  7. Neglecting to sign and date the form. Both owners must sign and date the affidavit for it to be valid.

  8. Failing to indicate if the property has multiple homes on it. If applicable, you need to provide the percentage of the property that you occupy.

  9. Not submitting the form by the May 1 deadline. Late submissions may not be processed for the current tax year.

  10. Sending the form directly to the Department of Treasury. Always mail it to your local township or city assessor.

Documents used along the form

The Michigan 2368 form is essential for homeowners seeking a Principal Residence Exemption (PRE) in Michigan. Alongside this form, several other documents are commonly used to ensure a smooth application process and to manage any changes in exemption status. Below is a list of these important forms and their purposes.

  • Form 2602: Request to Rescind Principal Residence Exemption - This form is used when a homeowner wishes to cancel their existing Principal Residence Exemption. It must be filed with the local assessor to officially rescind the exemption.
  • Form 4640: Conditional Rescission of Principal Residence Exemption - Homeowners can use this form if they are selling their previous principal residence. It allows them to maintain an exemption on the unsold property under specific conditions.
  • Form 573: Property Transfer Affidavit - This document notifies the local assessor of any transfer of property ownership. It is crucial for updating property records and ensuring accurate tax assessments.
  • Form 5107: Michigan Homestead Property Tax Credit Claim - Homeowners may use this form to apply for a property tax credit based on their income and property taxes paid, which can supplement the benefits of the PRE.
  • Form 1040: U.S. Individual Income Tax Return - Filing this federal tax form may be necessary for homeowners claiming tax credits or deductions related to their principal residence, especially when considering state tax exemptions.
  • Form 448: Michigan Individual Income Tax Return - This state tax form is essential for reporting income and claiming any deductions or credits that may affect the homeowner's eligibility for property tax exemptions.
  • Form 141: Michigan Property Tax Exemption Claim - This form is used to claim various property tax exemptions beyond the PRE, including those for disabled veterans or nonprofit organizations.

Understanding these forms and their functions is crucial for homeowners in Michigan. Properly managing these documents can help ensure that property tax exemptions are claimed correctly and maintained over time.

Similar forms

The Michigan 2368 form, used for claiming a Principal Residence Exemption, shares similarities with the IRS Form 1040. Both documents serve as official claims for tax benefits, requiring detailed personal and property information. Just as the 1040 requires taxpayers to report income and deductions to determine their tax liability, the Michigan 2368 requires homeowners to provide information about their residency status to qualify for a reduction in property taxes. Each form necessitates accurate data entry, as errors can lead to penalties or denial of the claimed benefits.

Another document that resembles the Michigan 2368 is the Request to Rescind Principal Residence Exemption (Form 2602). This form is specifically designed for homeowners who wish to revoke their previously claimed exemption. Similar to the Michigan 2368, it requires personal and property details, ensuring that the local assessor can accurately process the request. Both forms are critical in maintaining accurate property tax records and ensuring compliance with state laws regarding residency exemptions.

The Conditional Rescission of Principal Residence Exemption (Form 4640) also bears a resemblance to the Michigan 2368 form. This document allows homeowners to temporarily rescind their exemption while still maintaining a claim on a previous principal residence that is for sale. Like the Michigan 2368, it requires homeowners to certify their information under penalty of perjury, emphasizing the importance of honesty and accuracy in tax-related filings. Both forms aim to provide clarity and structure to the exemption process, ensuring that property owners adhere to the rules set forth by the state.

Lastly, the Michigan Property Transfer Affidavit (Form 2766) is another document that parallels the Michigan 2368. This form is used when property ownership changes hands, requiring new owners to report the sale to the local assessor. Similar to the Michigan 2368, it collects essential information about the property and its owners. Both forms play a vital role in the property tax system, ensuring that the local government has up-to-date information on property ownership and residency status, which ultimately affects tax assessments and exemptions.

Dos and Don'ts

When filling out the Michigan 2368 form, there are important do's and don'ts to keep in mind to ensure a smooth process.

  • Do read the instructions carefully before starting the form.
  • Do use blue or black ink when filling out the form.
  • Do submit a separate form for each property you are claiming.
  • Do sign and date the form before submitting it.
  • Do mail the completed form to your local township or city assessor.
  • Don't leave any required fields blank; complete all sections thoroughly.
  • Don't include information for co-owners who do not live on the property.
  • Don't send the form directly to the Department of Treasury.
  • Don't claim the exemption if the property is not your principal residence.
  • Don't forget to notify your assessor if your principal residence status changes.

Misconceptions

Understanding the Michigan 2368 form, also known as the Principal Residence Exemption (PRE) Affidavit, is crucial for homeowners seeking tax relief. However, several misconceptions can lead to confusion. Here are five common misconceptions about this form:

  • Misconception 1: You can claim multiple principal residences.
  • Many believe they can claim the exemption for more than one property. In reality, you may only have one principal residence at a time. If you have sold a previous home, you can file a Conditional Rescission for that property, but it cannot be counted as a principal residence.

  • Misconception 2: Renters can file this form.
  • Some individuals think that renters can apply for the PRE. This is not the case. Only homeowners who occupy their property as their principal residence are eligible to file this affidavit.

  • Misconception 3: Filing this form guarantees a tax exemption.
  • Filing the Michigan 2368 form does not automatically guarantee an exemption. The local assessor must review and approve the application. If the property does not meet the criteria for a principal residence, the exemption will be denied.

  • Misconception 4: You can ignore changes in residency.
  • Some homeowners think they can continue to claim the exemption even after moving. However, if you stop using the property as your principal residence, you must notify the local assessor within 90 days to avoid penalties.

  • Misconception 5: The form is only for tax year claims.
  • People often assume that the Michigan 2368 form is only relevant for the current tax year. In fact, it can also be used to claim exemptions for past years, provided you meet the eligibility requirements and file it in a timely manner.

Key takeaways

Here are key takeaways about filling out and using the Michigan 2368 form:

  • Understand the Purpose: The Michigan 2368 form is used to claim a Principal Residence Exemption (PRE) for your primary home, which may reduce your local school operating taxes.
  • File by Deadline: Submit the completed form to your local assessor by May 1 of the year you want the exemption to take effect.
  • One Form per Property: Use a separate form for each property you are claiming as your principal residence.
  • Accurate Information is Crucial: Ensure that the property tax identification number and all personal details are entered correctly to avoid processing issues.
  • Rescinding Previous Exemptions: Filing the 2368 form invalidates any previous PRE claims. If you need to rescind a prior exemption, you must use Form 2602 or Form 4640.
  • Sign and Date: Both the owner and co-owner must sign and date the form. This certification confirms that the information provided is accurate.
  • Mailing Instructions: Send the completed form to your local township or city assessor. Do not send it directly to the Department of Treasury.