Blank Mhd 1023 Texas PDF Form

Blank Mhd 1023 Texas PDF Form

The Mhd 1023 Texas form is an application used to obtain a Statement of Ownership and Location for manufactured homes. This form is essential for both new and used homes, ensuring proper documentation and ownership transfer. To start the process, fill out the form by clicking the button below.

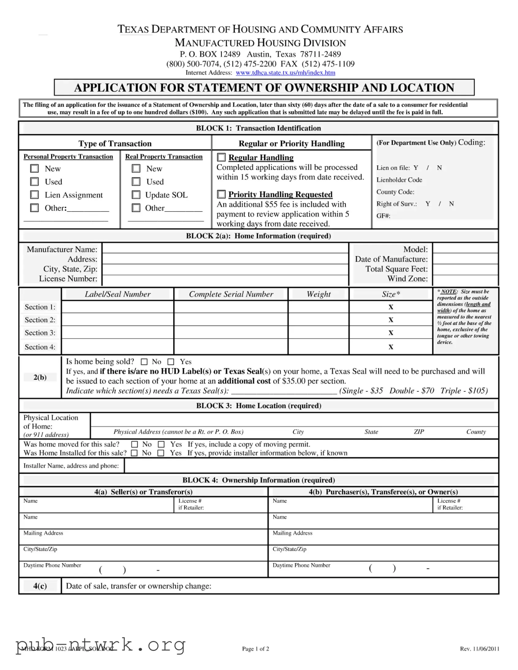
The Mhd 1023 Texas form serves as a crucial document for individuals and entities involved in the sale, transfer, or ownership change of manufactured homes within the state. This application, submitted to the Texas Department of Housing and Community Affairs, facilitates the issuance of a Statement of Ownership and Location (SOL), which is essential for establishing legal ownership and ensuring compliance with state regulations. Timeliness is key; applications filed later than sixty days after a sale may incur a fee of up to $100, potentially delaying the processing of the application until the fee is paid. The form is divided into several blocks, each requiring specific information such as transaction identification, home details, ownership information, and lien status. Applicants must indicate whether the home will be treated as personal or real property, a decision that can significantly affect future transactions. Additionally, the form allows for the designation of a home as non-residential or salvage, providing clarity on its intended use. Accurate completion of the Mhd 1023 is vital, as it not only impacts ownership rights but also ensures that all necessary legal requirements are met for the successful transfer of manufactured homes in Texas.

Document Sample

File Specifics

Fact Name Description
Issuing Authority The form is issued by the Texas Department of Housing and Community Affairs, specifically the Manufactured Housing Division.
Application Purpose This form is used to apply for a Statement of Ownership and Location for manufactured homes.
Filing Deadline Applications must be filed within 60 days of the sale to avoid a late fee.
Late Fee A late application may incur a fee of up to $100, which must be paid before processing.
Processing Time Regular handling applications are processed within 15 working days of receipt.
Priority Handling For an additional fee of $55, applications can be reviewed within 5 working days.
Home Information Block 2 requires essential details about the home, including model, date of manufacture, and dimensions.
Texas Seal Requirement If the home lacks HUD labels or Texas seals, a Texas Seal must be purchased at $35 per section.
Ownership Information Block 4 collects information about the seller and purchaser, including contact details and license numbers.
Governing Law This form is governed by the Texas Manufactured Housing Standards Act, specifically §1201.213.

How to Use Mhd 1023 Texas

Filling out the MHD 1023 Texas form requires careful attention to detail to ensure that all necessary information is provided. After completing the form, it will need to be submitted to the Texas Department of Housing and Community Affairs for processing. The following steps outline the process for accurately completing the form.

  1. Obtain the form: Download or print the MHD 1023 Texas form from the Texas Department of Housing and Community Affairs website.
  2. Block 1 - Transaction Identification: Indicate the type of transaction (personal property or real property) and provide the manufacturer name, address, city, state, zip, and license number.
  3. Block 2(a) - Home Information: Fill in the model, date of manufacture, total square feet, wind zone, label/seal number, complete serial number, and weight. Also, indicate whether the home is being sold.
  4. Block 2(b): If the home is being sold and lacks HUD labels or Texas seals, specify which sections need a Texas seal and calculate the associated fees.
  5. Block 3 - Home Location: Provide the physical address of the home, ensuring it is not a P.O. Box. Indicate if the home was moved or installed for this sale.
  6. Block 4 - Ownership Information: Enter the names and mailing addresses of the seller(s) and purchaser(s), along with their daytime phone numbers and license numbers if applicable.
  7. Block 5 - Right of Survivorship: Check the appropriate box if joint owners desire the right of survivorship.
  8. Block 6 - Personal/Real Property Election: Choose whether to treat the home as personal property or real property and provide the necessary supporting details.
  9. Block 7 - Non-Residential or Salvage Designation: Indicate if the home is designated for business use or as salvage.
  10. Block 8 - Liens: State whether there are any liens on the home and provide the required lien information if applicable.
  11. Block 9 - Special Mailing Instructions: If a copy of the Statement of Ownership and Location needs to be mailed to someone other than the owner or lienholder, provide their name and address.
  12. Block 10 - Signatures Required: Collect signatures from all sellers, purchasers, and authorized representatives. Notarization is optional but recommended.

Your Questions, Answered

What is the purpose of the Mhd 1023 Texas form?

The Mhd 1023 form is used to apply for a Statement of Ownership and Location for manufactured homes in Texas. This document is essential for establishing ownership and ensuring that the home is properly registered with the Texas Department of Housing and Community Affairs. It is particularly important for transactions involving the sale or transfer of ownership, as it helps clarify the legal status of the home.

What happens if I submit my application late?

If the application is submitted later than sixty (60) days after the sale date, a late fee of up to one hundred dollars ($100) may be imposed. Additionally, the processing of your application will be delayed until this fee is paid in full. To avoid these complications, it is advisable to submit the application promptly after the transaction.

What information is required on the form?

Several key pieces of information are required on the Mhd 1023 form, including:

  1. Transaction identification details, such as whether it is a personal property or real property transaction.
  2. Home information, including model, date of manufacture, and total square footage.
  3. Physical location of the home, which must be a valid address and not a P.O. Box.
  4. Ownership information for both sellers and purchasers, including names, addresses, and contact numbers.

Completing all required sections accurately is crucial for the timely processing of your application.

Can I designate my home for non-residential use?

Yes, the Mhd 1023 form allows you to designate your home for non-residential use. You can indicate if the home will be used for business purposes or if it is a salvage home. A salvage designation means the home is scrapped or dismantled, and it can only be sold to a licensed retailer. This designation is important for regulatory compliance and ensures that the home is handled appropriately.

Common mistakes

  1. Incorrect Transaction Type: Selecting the wrong type of transaction (personal or real property) can lead to processing delays or rejection of the application.

  2. Missing Required Information: Failing to fill out all required fields, such as home information or ownership details, can result in an incomplete application.

  3. Incorrect Home Size Reporting: Not measuring the home accurately or reporting dimensions incorrectly can lead to issues with compliance and processing.

  4. Ignoring Late Fees: Submitting the application more than sixty days after the sale without acknowledging the potential $100 late fee may cause surprises later.

  5. Not Providing Moving Permits: If the home was moved for the sale, failing to include a copy of the moving permit can delay the application.

  6. Inaccurate Owner Information: Providing incorrect or incomplete seller or purchaser information can lead to ownership disputes and delays.

  7. Overlooking Right of Survivorship: Not checking the appropriate box for right of survivorship can complicate ownership transfer in the event of an owner’s death.

  8. Not Indicating Liens: Failing to disclose existing liens on the home can result in legal complications and processing issues.

  9. Skipping Special Mailing Instructions: If a copy of the Statement of Ownership and Location is to be sent to someone other than the owner, neglecting to provide that address can cause delays.

  10. Missing Signatures: Failing to obtain all required signatures from sellers, purchasers, or authorized representatives can render the application invalid.

Documents used along the form

The Mhd 1023 Texas form is essential for establishing ownership and location of manufactured homes in Texas. Alongside this form, several other documents may be required or beneficial in the process. Below is a list of common forms and documents used in conjunction with the Mhd 1023.

  • Moving Permit: This document is necessary if the manufactured home has been moved for sale. It provides legal authorization for the transportation of the home.
  • Affidavit of Fact for Right of Survivorship: If joint owners wish to ensure that ownership passes to the surviving owner upon death, this affidavit must be completed and submitted.
  • Texas Seal Application: If the home lacks HUD labels or Texas seals, this application is required to obtain the necessary seals for each section of the home.
  • Installer Information Form: This form captures details about the installer if the home is being installed for the sale. It may include the installer’s name, address, and phone number.
  • Legal Description of Property: When treating the home as real property, a legal description, such as a deed or title policy, must be attached to validate the claim.
  • Loan Documentation: If financing is involved, documents related to the loan may be necessary to demonstrate the financial arrangement between parties.
  • Special Mailing Instructions Form: This form is used if a copy of the Statement of Ownership and Location needs to be sent to someone other than the owner or lienholder.
  • Lien Information Form: If there are any liens on the home, this form captures details about the lienholders and the nature of the liens.

These documents play a crucial role in ensuring that the process of ownership transfer and location establishment is smooth and legally compliant. Properly preparing and submitting these forms can help avoid delays and complications in the ownership process.

Similar forms

The Mhd 1023 Texas form is similar to the Title Application for a Vehicle. Both documents serve as applications for ownership and registration, ensuring that the new owner is officially recognized. Just like the Mhd 1023, the vehicle title application requires information about the previous owner, the new owner, and details about the vehicle itself. Timely submission is crucial in both cases, as delays can result in additional fees or complications in ownership transfer.

Another document that shares similarities with the Mhd 1023 is the Real Estate Transfer Declaration. This form is used when real property changes hands, requiring details about the property, the seller, and the buyer. Both forms necessitate accurate information to prevent future disputes. Additionally, both documents may include sections for designating the type of ownership and any liens associated with the property or vehicle.

The Bill of Sale for Personal Property also parallels the Mhd 1023. A bill of sale is a legal document that records the transfer of ownership from one party to another. Like the Mhd 1023, it includes essential details about the item being sold, such as its description and the parties involved. Both documents aim to establish clear ownership and protect the rights of both the seller and the buyer.

Similarly, the Affidavit of Heirship serves a comparable purpose in the context of transferring ownership after someone’s death. This document is used to establish the heirs of a deceased person’s property, including manufactured homes. Like the Mhd 1023, it requires the identification of the property and the involved parties. Both documents aim to clarify ownership and facilitate the legal transfer of property rights.

The Application for a Certificate of Title for a Boat is another document akin to the Mhd 1023. This application is necessary for registering a boat, requiring information about the previous and new owners, as well as specifics about the boat itself. Timeliness is essential in both cases to avoid penalties, and both forms help establish legal ownership and protect against future disputes.

Moreover, the Manufactured Home Affidavit of Fact is similar in that it documents ownership and any liens on a manufactured home. This affidavit must be filed with the appropriate authorities to ensure proper ownership records. Like the Mhd 1023, it requires detailed information about the home and the owners, emphasizing the importance of accurate and timely submissions.

The Lease Agreement for a Manufactured Home Lot also shares characteristics with the Mhd 1023. While it primarily focuses on the rental terms for the land where the home is situated, it often includes clauses about ownership of the home itself. Both documents highlight the relationship between the property and the owners, ensuring that all parties understand their rights and responsibilities.

Finally, the Notice of Lien is another document that parallels the Mhd 1023. This notice is used to inform the public of a lien placed on a property, including manufactured homes. Just like the Mhd 1023, it requires accurate information about the property and the lienholder. Both documents play a crucial role in maintaining clear records of ownership and any financial claims against the property.

Dos and Don'ts

When filling out the MHD 1023 Texas form, it's important to follow certain guidelines to ensure accuracy and compliance. Here are four key do's and don'ts:

  • Do double-check all information for accuracy before submission.
  • Do ensure that all required fields are completed, including ownership and home location details.
  • Don't submit the application late, as this may incur additional fees and delays.
  • Don't use a P.O. Box for the physical address; it must be a valid street address.

Misconceptions

  • Misconception 1: The Mhd 1023 form is only for new manufactured homes.
  • This form is applicable to both new and used manufactured homes. It is designed for any transaction involving ownership transfer, regardless of the home's age.

  • Misconception 2: There is no fee for late applications.
  • If the application is submitted more than 60 days after the sale, a fee of up to $100 may apply. Delays in processing may occur until this fee is paid.

  • Misconception 3: You can use a P.O. Box for the home’s physical address.
  • The physical location must be a valid street address. P.O. Boxes are not acceptable for this form.

  • Misconception 4: All sections of the home must have a Texas Seal.
  • A Texas Seal is required only if the home is being sold and does not have HUD Labels or existing Texas Seals. The cost for seals varies by the number of sections.

  • Misconception 5: Right of survivorship is automatic for joint owners.
  • Misconception 6: The form does not require notarization.
  • While notarization is optional, it is recommended for the signatures of sellers and purchasers to ensure authenticity and legal standing.

  • Misconception 7: The application can be submitted without supporting documents.
  • Supporting documents, such as proof of ownership and any necessary permits, must accompany the application for it to be processed.

  • Misconception 8: The Mhd 1023 form is only for personal property transactions.
  • This form can also be used for real property transactions. The applicant must indicate their preference on the form.

Key takeaways

Here are some important points to consider when filling out and using the MHD 1023 Texas form:

  • Timely Submission: Submit the application within 60 days of the sale to avoid a late fee of up to $100.
  • Transaction Type: Clearly identify whether the transaction is for personal or real property, as this affects processing.
  • Home Information: Provide accurate details about the home, including model, date of manufacture, and dimensions.
  • Ownership Details: Include complete information for both sellers and buyers, ensuring all contact details are correct.
  • Right of Survivorship: If applicable, indicate whether joint owners desire the right of survivorship by checking the appropriate box.
  • Liens: Disclose any existing liens on the home. If there are none, mark "No" to simplify the process.
  • Signatures Required: Ensure all necessary signatures are obtained. Notarization is optional but can add an extra layer of verification.

Following these guidelines will help streamline the application process and ensure compliance with Texas regulations.