Blank Massachusetts Sample PDF Form

Blank Massachusetts Sample PDF Form

The Massachusetts Sample Form is a contract template designed for home improvement projects. It meets the basic requirements set by the state's Home Improvement Contractor Law. Homeowners should review this form carefully and consider seeking legal advice before signing.

If you're ready to start your home improvement project, fill out the form by clicking the button below.

The Massachusetts Sample Form for Home Improvement Contracts serves as a crucial tool for homeowners and contractors alike, ensuring that both parties understand their rights and obligations under the state's Home Improvement Contractor Law. This form encompasses essential elements, including detailed homeowner and contractor information, a clear description of the work to be performed, and the total contract price along with a payment schedule. It emphasizes the importance of obtaining necessary permits, outlines the contractor's responsibilities, and specifies the rights of homeowners, including the ability to cancel the contract within three business days. Homeowners are advised to verify the contractor's registration and insurance coverage, as well as to read the provided consumer guide before entering into any agreements. The form also addresses warranty provisions and the option for arbitration in case of disputes, further protecting the interests of homeowners. Overall, this sample contract aims to promote transparency and accountability in home improvement projects across Massachusetts.

Document Sample

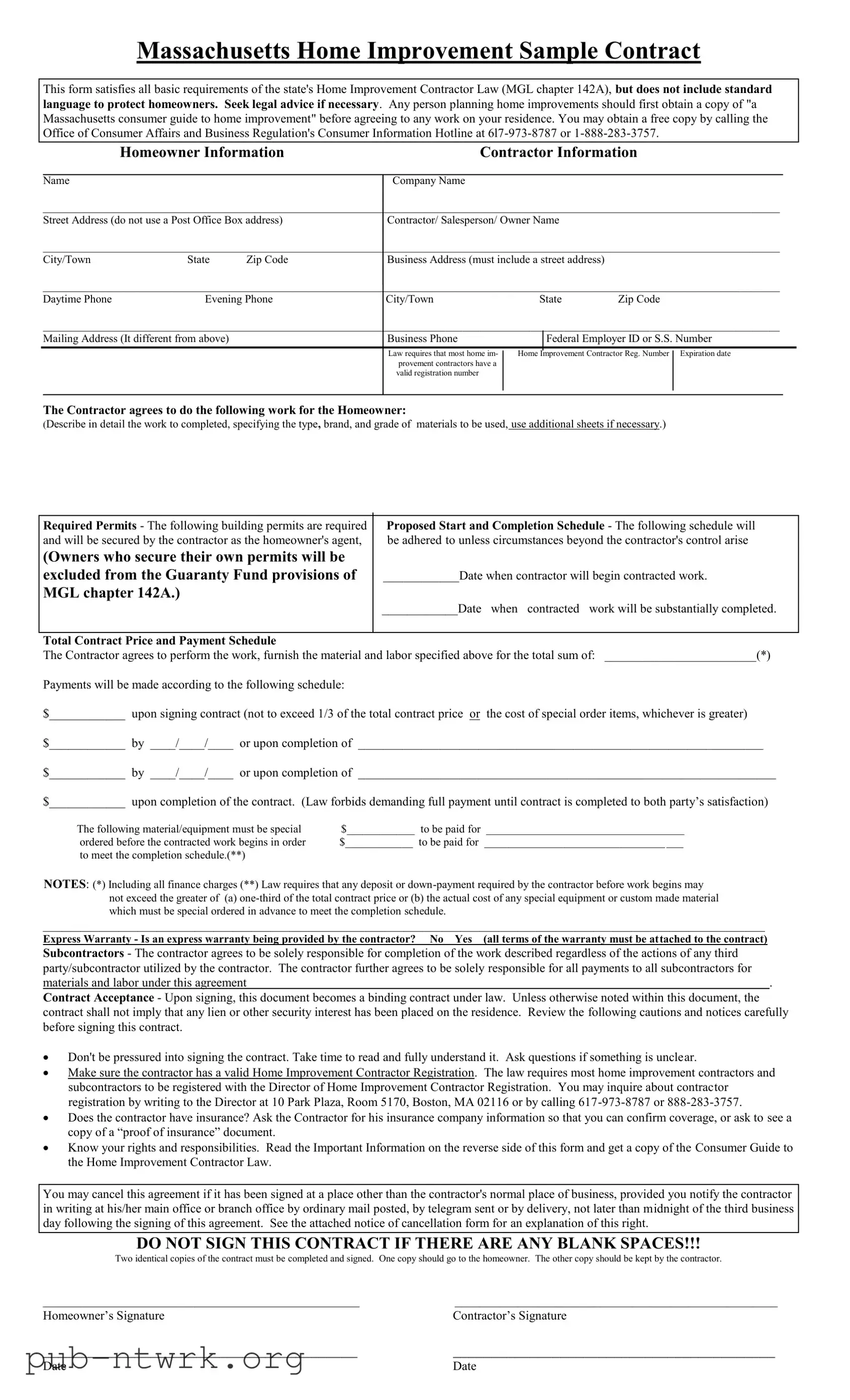
Massachusetts Home Improvement Sample Contract

This form satisfies all basic requirements of the state's Home Improvement Contractor Law (MGL chapter 142A), but does not include standard language to protect homeowners. Seek legal advice if necessary. Any person planning home improvements should first obtain a copy of "a Massachusetts consumer guide to home improvement" before agreeing to any work on your residence. You may obtain a free copy by calling the Office of Consumer Affairs and Business Regulation's Consumer Information Hotline at 6l7-973-8787 or 1-888-283-3757.

Homeowner Information

Contractor Information

Name

Company Name

__________________________________________________________________________________________________________________________________

Street Address (do not use a Post Office Box address)Contractor/ Salesperson/ Owner Name

__________________________________________________________________________________________________________________________________

City/TownState Zip CodeBusiness Address (must include a street address)

__________________________________________________________________________________________________________________________________

Daytime PhoneEvening PhoneCity/TownState Zip Code

__________________________________________________________________________________________________________________________________

Mailing Address (It different from above)

Business Phone

 

 

 

Federal Employer ID or S.S. Number

 

 

 

 

 

 

 

 

 

Law requires that most home im-

 

Home

 

Improvement Contractor Reg. Number

 

Expiration date

 

 

 

 

 

provement contractors have a

 

 

 

 

 

 

 

valid registration number

 

 

 

 

 

 

 

 

 

 

 

 

 

 

The Contractor agrees to do the following work for the Homeowner:

(Describe in detail the work to completed, specifying the type, brand, and grade of materials to be used, use additional sheets if necessary.)

Required Permits - The following building permits are required and will be secured by the contractor as the homeowner's agent,

(Owners who secure their own permits will be excluded from the Guaranty Fund provisions of MGL chapter 142A.)

Proposed Start and Completion Schedule - The following schedule will be adhered to unless circumstances beyond the contractor's control arise

____________Date when contractor will begin contracted work.

____________Date when contracted work will be substantially completed.

Total Contract Price and Payment Schedule

The Contractor agrees to perform the work, furnish the material and labor specified above for the total sum of: ________________________(*)

Payments will be made according to the following schedule:

$____________ upon signing contract (not to exceed 1/3 of the total contract price or the cost of special order items, whichever is greater)

$____________ by ____/____/____ or upon completion of ________________________________________________________________

$____________ by ____/____/____ or upon completion of __________________________________________________________________

$____________ upon completion of the contract. (Law forbids demanding full payment until contract is completed to both party’s satisfaction)

The following material/equipment must be special

$____________ to be paid for ___________________________________

ordered before the contracted work begins in order

$____________ to be paid for ___________________________________

to meet the completion schedule.(**)

 

NOTES: (*) Including all finance charges (**) Law requires that any deposit or down-payment required by the contractor before work begins may not exceed the greater of (a) one-third of the total contract price or (b) the actual cost of any special equipment or custom made material which must be special ordered in advance to meet the completion schedule.

__________________________________________________________________________________________________________________

Express Warranty - Is an express warranty being provided by the contractor? No Yes (all terms of the warranty must be attached to the contract)

Subcontractors - The contractor agrees to be solely responsible for completion of the work described regardless of the actions of any third party/subcontractor utilized by the contractor. The contractor further agrees to be solely responsible for all payments to all subcontractors for

materials and labor under this agreement. Contract Acceptance - Upon signing, this document becomes a binding contract under law. Unless otherwise noted within this document, the contract shall not imply that any lien or other security interest has been placed on the residence. Review the following cautions and notices carefully before signing this contract.

Don't be pressured into signing the contract. Take time to read and fully understand it. Ask questions if something is unclear.

Make sure the contractor has a valid Home Improvement Contractor Registration. The law requires most home improvement contractors and subcontractors to be registered with the Director of Home Improvement Contractor Registration. You may inquire about contractor registration by writing to the Director at 10 Park Plaza, Room 5170, Boston, MA 02116 or by calling 617-973-8787 or 888-283-3757.

Does the contractor have insurance? Ask the Contractor for his insurance company information so that you can confirm coverage, or ask to see a copy of a “proof of insurance” document.

Know your rights and responsibilities. Read the Important Information on the reverse side of this form and get a copy of the Consumer Guide to the Home Improvement Contractor Law.

You may cancel this agreement if it has been signed at a place other than the contractor's normal place of business, provided you notify the contractor in writing at his/her main office or branch office by ordinary mail posted, by telegram sent or by delivery, not later than midnight of the third business day following the signing of this agreement. See the attached notice of cancellation form for an explanation of this right.

DO NOT SIGN THIS CONTRACT IF THERE ARE ANY BLANK SPACES!!!

Two identical copies of the contract must be completed and signed. One copy should go to the homeowner. The other copy should be kept by the contractor.

__________________________________________________

___________________________________________________

Homeowner’s Signature

Contractor’s Signature

_________________________________________

__________________________________________

Date

Date

Contractor Arbitration

The Home Improvement Contractor Law provides homeowners with the right to initiate an arbitration action (as an alternative to court action) if they have a dispute with a contractor. The same right is not automatically afforded to a contractor, however. The contractor would have to resolve any dispute he/she has with a homeowner in court unless both parties agree to the optional clause provided below. This clause would give the contractor the same right to arbitration as is afforded to the homeowner by the Home Improvement Contractor Law.

The contractor and the homeowner hereby mutually agree in advance that in the event the contractor has a dispute concerning this contract, the contractor may submit the dispute to a private arbitration firm which has been approved by the Secretary of the Executive Office of Consumer Affairs and Business Regulation and the consumer shall be required to submit to such arbitration as provided In Massachusetts General Laws, chapter 142A.

______________________________________

_______________________________________

Homeowner's Signature

Contractor's Signature

NOTICE: The signatures of the parties above apply only to the agreement of the parties to alternative dispute resolution initiated by the contractor. The homeowner may initiate alternative dispute resolution even where this section is not separately signed by the parties.

Homeowner's Rights

A homeowner's rights under the Home Improvement Contractor Law (MGL chapter 142A) and other consumer protection laws (i.e. MGL chapter 93A) may not be waived in any way, even by agreement. However, homeowners may be excluded from certain rights if the contractor they choose is not properly registered as prescribed by law. Homeowners who secure their own building permits are automatically excluded from all Guaranty Fund provisions of the Home Improvement Contractor Law. The contractor is responsible for completing the work as described, in a timely and workmanlike manner. Homeowners may be entitled to other specific legal rights if the contractor guarantees or provides an express warranty for workmanship or materials. In addition to guarantees or warranties provided by the contractor, all goods sold in Massachusetts carry an implied warranty of merchantability and fitness for a particular purpose. An

enumeration of other matters on which the homeowner and contractor lawfully agree may be added to the terms of the contract as long as they do not restrict a homeowner’s basic consumer rights. If you have questions about your

consumer/homeowner rights, contact the Consumer Information Hotline (listed below).

Execution of Contract

The contract must be executed in duplicate and should not be signed until a copy of all exhibits and referenced documents have been attached. Parties are also advised not to sign the document until all blank sections have been filled in or marked as void, deleted, or not applicable. One original signed copy of the contract with attachments is to be given to the owner and the other kept by the contractor. Any modification to the original contract must be in writing and agreed to by both parties. Contracted work may not begin until both parties have received a fully executed copy of the contract, and the three day recission period has expired.

Accelerated Payments

A contractor may not demand payments in advance of the dates specified on the payment schedule in cases where the homeowner deems him/herself to be financially insecure. However, in instances where a contractor deems him/herself to be financially insecure, the contractor may require that the balance of funds not yet due be placed in a joint escrow account as a prerequisite to continuing the contracted work. Withdrawal of funds from said account would require the signatures of both parties.

Additional Information

If you need additional information about the Home Improvement Contractor Law or other consumer rights, or if you wish to obtain a free copy of "A Massachusetts Consumer Guide to Home Improvement," contact:

Consumer Information Hotline

Office of Consumer Affairs and Business Regulation 501 Boylston St, Suite 5100, Boston, MA 02116 (617) 973-8787 or 1-(888) 2833757

If you want to verify the registration of a contractor or if you have questions or need additional information specifically about the contractor registration component of the Home Improvement Contractor Law, contact:

Director of Home Improvement Contractor Registration Office of Consumer Affairs and Business Regulation

1000 Washington St, Room 710, Boston, MA 02118

617-973-8787, 888-283-3757 or visit the HIC website at http://www.mass.gov/ocabr/

Go online to view the status of a Home Improvement Contractor’s Registration:

http://db.state.ma.us/homeimprovement/licenseelist.asp

For assistance with informal mediation of disputes or to register formal complaints against a business, call:

Consumer Complaint Section

Office of the Attorney General

(617)727-8400

AND/OR

Better Business Bureau

(508) 652-4800, (508) 755-2548, (413) 734-3114

NOTICE OF CANCELLATION

YOU MAY CANCEL THIS TRANSACTION, WITHOUT PENALTY OR OBLIGATION, WITHIN THREE BUSINESS DAYS FROM THE ABOVE DATE.

IF YOU CANCEL, ANY PROPERTY TRADED IN, ANY PAYMENTS MADE BY YOU UNDER THE CONTRACT OR SALE, AND ANY NEGOTIABLE INSTRUMENTS EXECUTED BY YOU WILL BE RETURNED WITHIN TEN BUSINESS DAYS FOLLOWING RECEIPT BY THE SELLER OF YOU CANCELLATION NOTICE, AND ANY SECURITY INTEREST ARISING OUT OF THE TRANSACTION WILL BE CANCELLED.

IF YOU CANCEL, YOU MUST MAKE AVAILABLE TO THE SELLER AT YOUR RESIDENCE, IN SUBSTANTIALLY AS GOOD CONDITION AS WHEN RECEIVED, ANY GOODS DELIVERED TO YOU UNDER THIS CONTRACT OR SALE; OR YOU MAY, IF YOU WISH, COMPLY WITH THE INSTRUCTIONS OF THE SELLER REGARDING THE RETURN SHIPMENT OF THE GOODS AT THE SELLER'S EXPENSE AND RISK.

IF YOU DO MAKE THE GOODS AVAILABLE TO THE SELLER AND THE SELLER DOES NOT PICK THEM UP WITHIN TWENTY DAYS OF THE DATE OF CANCELLATION, YOU MAY RETAIN OR DESPOSE OF THE GOODS WITHOUT ANY FURTHER OBLIGATION. IF YOU FAIL TO MAKE THE GOODS AVAILABLE TO THE SELLER, OR IF YOU AGREE TO RETURN THE GOODS TO THE SELLER AND FAIL TO DO SO, THEN YOU REMAIN LIABLE FOR PERFORMANCE OF ALL OBLIGATIONS UNDER THE CONTRACT.

TO CANCEL THIS TRANSACTION, MAIL OR DELIVER A SIGNED AND DATED COPY OF THIS CANCELLATION NOTICE OR ANY OTHER WRITTEN NOTICE, OR SEND A TELEGRAM TO [Name of Seller], AT [Address of Seller's Place

of Business] NOT LATER THAN MIDNIGHT OF

 

(date).

 

I HEREBY CANCEL THIS TRANSACTION.

 

Date:

 

Buyer's Signature:

 

 

File Specifics

Fact Name Description
Governing Law This form adheres to the Massachusetts Home Improvement Contractor Law, specifically MGL chapter 142A.
Consumer Guide Homeowners are advised to obtain a copy of "A Massachusetts Consumer Guide to Home Improvement" before proceeding with any work.
Contract Execution The contract must be signed in duplicate, with one copy for the homeowner and another for the contractor.
Payment Schedule Payments must be made according to a specified schedule, with restrictions on demanding full payment before completion.
Right to Cancel Homeowners have the right to cancel the contract within three business days without penalty.
Subcontractor Responsibility The contractor is solely responsible for the work and payments to any subcontractors involved in the project.

How to Use Massachusetts Sample

Filling out the Massachusetts Sample form is an important step in your home improvement project. This form lays out the details of the agreement between you and your contractor, ensuring that both parties understand their responsibilities. It’s essential to fill it out completely and accurately to avoid any misunderstandings later.

  1. Start with the Homeowner Information section. Fill in your name, street address (avoid using a P.O. Box), city or town, state, and zip code.
  2. Next, provide your daytime and evening phone numbers. If your mailing address is different, include that information as well.
  3. Move on to the Contractor Information section. Fill in the contractor's company name, contractor/salesperson/owner name, and business address, ensuring it includes a street address.
  4. Enter the contractor's daytime and evening phone numbers, along with their federal employer ID or Social Security number.
  5. Check if the contractor has a valid Home Improvement Contractor Registration number and note the expiration date.
  6. In the section titled Work Description, describe in detail the work to be completed. Specify the type, brand, and grade of materials to be used. Use additional sheets if necessary.
  7. List any required permits that the contractor will secure as your agent. If you plan to secure your own permits, note that you will be excluded from certain provisions.
  8. Fill in the proposed start and completion dates for the work.
  9. In the Total Contract Price and Payment Schedule section, state the total contract price and outline the payment schedule. Be sure to follow the legal guidelines regarding deposits and payment timing.
  10. Indicate whether an express warranty is being provided by the contractor. If yes, attach all terms of the warranty to the contract.
  11. Review the Subcontractors section. The contractor must agree to be responsible for all work and payments related to subcontractors.
  12. Read the Contract Acceptance section carefully. Ensure that you understand your rights and responsibilities before signing.
  13. Both the homeowner and contractor must sign and date the contract. Make sure there are no blank spaces in the document.
  14. Finally, make two identical copies of the signed contract. One copy goes to the homeowner, and the other is kept by the contractor.

Your Questions, Answered

What is the Massachusetts Home Improvement Sample Contract?

The Massachusetts Home Improvement Sample Contract is a standardized form that meets the basic requirements of the state's Home Improvement Contractor Law (MGL chapter 142A). It outlines the responsibilities of both the homeowner and the contractor, including details about the work to be performed, payment schedules, and required permits. However, it does not include specific language aimed at protecting homeowners, so seeking legal advice is recommended.

How can I obtain a copy of the Massachusetts consumer guide to home improvement?

You can obtain a free copy of "A Massachusetts Consumer Guide to Home Improvement" by calling the Office of Consumer Affairs and Business Regulation's Consumer Information Hotline at 617-973-8787 or 1-888-283-3757. This guide provides valuable information for homeowners planning improvements on their residences.

What should I do if I want to cancel the contract?

If you wish to cancel the contract, you have the right to do so without penalty within three business days from the signing date. To cancel, you must notify the contractor in writing, either by mail or in person. Ensure your cancellation notice includes your signature and the date. If you have received any goods under the contract, you must make them available for pickup or follow the seller's instructions for their return.

What are the payment terms outlined in the contract?

The contract specifies a total contract price and a payment schedule. Typically, payments are structured as follows:

  1. A deposit upon signing the contract, not exceeding one-third of the total price or the cost of special order items.
  2. Subsequent payments based on milestones or completion dates.
  3. The final payment upon completion of the work.

It is important to note that the law prohibits contractors from demanding full payment until the work is completed to both parties' satisfaction.

What rights do homeowners have under the Home Improvement Contractor Law?

Homeowners have several rights under the Home Improvement Contractor Law, including the right to:

  • Cancel the contract within three business days.
  • Receive a warranty for workmanship or materials if provided by the contractor.
  • Be informed about the contractor’s registration status.
  • Initiate arbitration for disputes with the contractor.

It is crucial for homeowners to understand these rights to protect themselves during home improvement projects.

What should I verify before signing the contract?

Before signing the contract, ensure that:

  • The contractor has a valid Home Improvement Contractor Registration.
  • You have a copy of all exhibits and referenced documents.
  • All blank spaces in the contract are filled in or marked as void.
  • You understand the payment schedule and terms of the contract.

Taking these steps can help prevent misunderstandings and protect your rights as a homeowner.

Common mistakes

  1. Leaving blank spaces in the contract can lead to confusion or disputes later on. Ensure every section is filled out completely or marked as not applicable.

  2. Failing to verify the contractor's registration can jeopardize your rights as a homeowner. Always check that the contractor is registered with the appropriate authorities.

  3. Not obtaining a copy of the "Massachusetts Consumer Guide to Home Improvement" can leave you uninformed about your rights. This guide provides essential information for homeowners.

  4. Ignoring the need for detailed descriptions of the work to be completed can lead to misunderstandings. Specify the type, brand, and grade of materials to avoid issues later.

  5. Not understanding the payment schedule can create financial strain. Make sure you know when payments are due and what they entail.

  6. Overlooking the importance of the express warranty can leave you unprotected. If the contractor offers a warranty, ensure all terms are attached to the contract.

  7. Failing to ask for proof of insurance can expose you to risks. Always confirm that the contractor has adequate insurance coverage.

  8. Not reviewing the cancellation policy can lead to unexpected obligations. Be aware of your rights to cancel the contract within three business days.

  9. Neglecting to keep a copy of the signed contract can cause problems if disputes arise. Both parties should retain their own signed copy for reference.

Documents used along the form

When engaging in home improvement projects in Massachusetts, several important forms and documents accompany the Massachusetts Home Improvement Sample Contract. Each of these documents plays a crucial role in ensuring that both homeowners and contractors understand their rights and responsibilities. Below is a list of commonly used forms that you should be aware of.

  • Consumer Guide to Home Improvement: This guide provides essential information about homeowners' rights and responsibilities under Massachusetts law. It is recommended to read this before entering into any contracts.
  • Notice of Cancellation: This document informs homeowners of their right to cancel a contract within three business days. It outlines the process for cancellation and the return of any payments made.
  • Proof of Insurance: Homeowners should request this document from contractors to verify that they have adequate insurance coverage for the work being performed. It protects against potential liabilities.
  • Building Permit Application: Depending on the scope of the work, a permit may be necessary. This application must be submitted to the local building authority to ensure compliance with zoning and safety regulations.
  • Payment Schedule Agreement: This document details the agreed-upon payment milestones throughout the project. It helps prevent disputes over payments and ensures transparency.
  • Subcontractor Agreement: If the contractor intends to hire subcontractors, this agreement outlines the responsibilities and expectations for those third parties involved in the project.
  • Warranty Documentation: If a contractor provides a warranty for their work, this document should be attached to the contract. It specifies the terms and duration of the warranty.
  • Arbitration Agreement: This optional clause allows both parties to agree to resolve disputes through arbitration instead of going to court. It can expedite conflict resolution and is beneficial for both homeowners and contractors.

Understanding these documents is essential for a successful home improvement project. Homeowners should ensure they have all necessary forms completed and reviewed before signing any contracts. This preparation can help avoid misunderstandings and protect your rights throughout the process.

Similar forms

The Massachusetts Home Improvement Sample Contract shares similarities with the Residential Construction Contract, which is commonly used in many states. Both documents outline the responsibilities of the contractor and the homeowner, detailing the scope of work, payment schedules, and timelines. Like the Massachusetts form, the Residential Construction Contract emphasizes the importance of permits and warranties, ensuring that homeowners are protected and informed about their rights. This contract also requires the contractor to be licensed and insured, mirroring the requirements found in Massachusetts law.

Another comparable document is the Home Renovation Agreement, often utilized for larger renovation projects. This agreement typically includes detailed descriptions of the work to be completed, similar to the Massachusetts form. It also specifies payment terms and conditions for changes in the project scope. Both documents aim to protect the homeowner by ensuring that contractors are accountable for their work and that homeowners understand their rights regarding cancellations and disputes.

The Contractor-Homeowner Agreement is yet another document that resembles the Massachusetts Sample form. This agreement serves to clarify the relationship between the contractor and the homeowner, detailing the expectations and obligations of both parties. Just like the Massachusetts form, it includes sections on payment schedules, project timelines, and the requirement for permits. This agreement often features a clause about warranties, ensuring that homeowners have recourse if the work does not meet agreed-upon standards.

Similar to the Massachusetts Sample form is the Remodeling Contract, which is specifically tailored for home improvement projects. This contract outlines the specific renovations to be performed, the materials to be used, and the overall costs involved. Like the Massachusetts form, it emphasizes the importance of permits and includes provisions for warranties. Homeowners can expect protections regarding payment schedules and rights to cancel, ensuring a clear understanding of the project from start to finish.

The Home Improvement Agreement is another document that shares characteristics with the Massachusetts Sample form. This agreement typically includes sections that define the work scope, payment terms, and timelines. It also addresses the contractor's responsibility for obtaining necessary permits, much like the Massachusetts form. Homeowners are encouraged to understand their rights and obligations under this agreement, ensuring transparency throughout the home improvement process.

Lastly, the Construction Services Agreement is a document that is often used in various construction projects. This agreement outlines the services to be provided, including timelines and payment schedules, similar to the Massachusetts Sample form. It highlights the need for proper licensing and insurance for contractors, ensuring that homeowners are protected. Both documents aim to establish clear communication and expectations between the contractor and the homeowner, promoting a successful project outcome.

Dos and Don'ts

When filling out the Massachusetts Sample form, it is important to follow certain guidelines to ensure accuracy and compliance with state laws. Here are four things to do and avoid:

  • Do take your time to read the entire contract carefully. Understanding the terms is crucial.
  • Do ensure all required fields are filled out completely. Leaving blanks can invalidate the contract.
  • Do verify that the contractor has a valid Home Improvement Contractor Registration. This is a legal requirement.
  • Do ask for proof of insurance from the contractor. Confirming coverage protects your interests.
  • Don't feel pressured to sign the contract immediately. Take the time you need.
  • Don't sign if there are any blank spaces in the contract. All sections must be completed.
  • Don't ignore the cancellation policy. Understand your rights to cancel within three business days.
  • Don't forget to keep a copy of the signed contract for your records. Both parties should retain a copy.

Misconceptions

Understanding the Massachusetts Home Improvement Sample Contract is essential for homeowners planning renovations. However, several misconceptions often arise regarding this document. Here are six common myths and the truths behind them:

  • Misconception 1: The sample form is legally binding without any modifications.
  • This is not true. While the form meets basic legal requirements, it must be tailored to fit specific agreements between the homeowner and the contractor. Always ensure all details are filled out correctly before signing.

  • Misconception 2: Homeowners can sign the contract without understanding its terms.
  • In reality, homeowners should take the time to read and comprehend every part of the contract. Rushing into a signature can lead to misunderstandings and potential disputes later.

  • Misconception 3: All contractors are automatically registered under Massachusetts law.
  • This is false. Homeowners must verify that their contractor holds a valid Home Improvement Contractor Registration. It's crucial to confirm this before any work begins.

  • Misconception 4: Homeowners can cancel the contract without any conditions.
  • While homeowners do have the right to cancel within three business days, certain conditions apply. They must return any goods received in good condition or follow the seller's return instructions.

  • Misconception 5: The contract guarantees the lowest price for home improvements.
  • This is misleading. The contract outlines the agreed-upon price, but it does not guarantee that it is the lowest available. Homeowners should shop around and compare quotes before settling on a contractor.

  • Misconception 6: Signing the contract means the homeowner has waived all rights under consumer protection laws.
  • This is incorrect. Homeowners retain their rights under the Home Improvement Contractor Law, even after signing the contract. These rights cannot be waived, ensuring protection against unfair practices.

Key takeaways

  • The Massachusetts Sample Form is designed to comply with the state's Home Improvement Contractor Law, ensuring that both homeowners and contractors understand their rights and responsibilities.

  • Homeowners should obtain a copy of "A Massachusetts Consumer Guide to Home Improvement" before agreeing to any work. This guide can be requested for free from the Office of Consumer Affairs.

  • It is crucial to provide accurate homeowner and contractor information, including names, addresses, and contact numbers. This ensures proper communication and documentation throughout the project.

  • Homeowners must ensure that the contractor has a valid Home Improvement Contractor Registration. This registration confirms that the contractor is authorized to perform work in Massachusetts.

  • Before signing the contract, homeowners should carefully read all terms and ask questions about anything unclear. Rushing into a decision can lead to misunderstandings or unfavorable terms.

  • Any deposits or down-payments required should not exceed one-third of the total contract price or the actual cost of special ordered materials. This protects homeowners from excessive upfront costs.

  • The contract must be executed in duplicate, with one signed copy for the homeowner and another for the contractor. This ensures that both parties have a record of the agreement.

  • Homeowners have the right to cancel the contract within three business days if it was signed outside the contractor's normal place of business. Written notice must be provided to the contractor to exercise this right.

  • In case of disputes, homeowners have the right to initiate arbitration, providing an alternative to court action. Contractors can also agree to arbitration if both parties consent.