Blank Maryland Sheet PDF Form

Blank Maryland Sheet PDF Form

The Maryland Sheet form is a crucial document used for recording various land transactions in the state of Maryland. It serves as an intake sheet for the Clerk’s Office, the State Department of Assessments and Taxation, and the County Finance Office, ensuring that all necessary information is collected for proper record-keeping. If you're ready to complete this form, click the button below to get started!

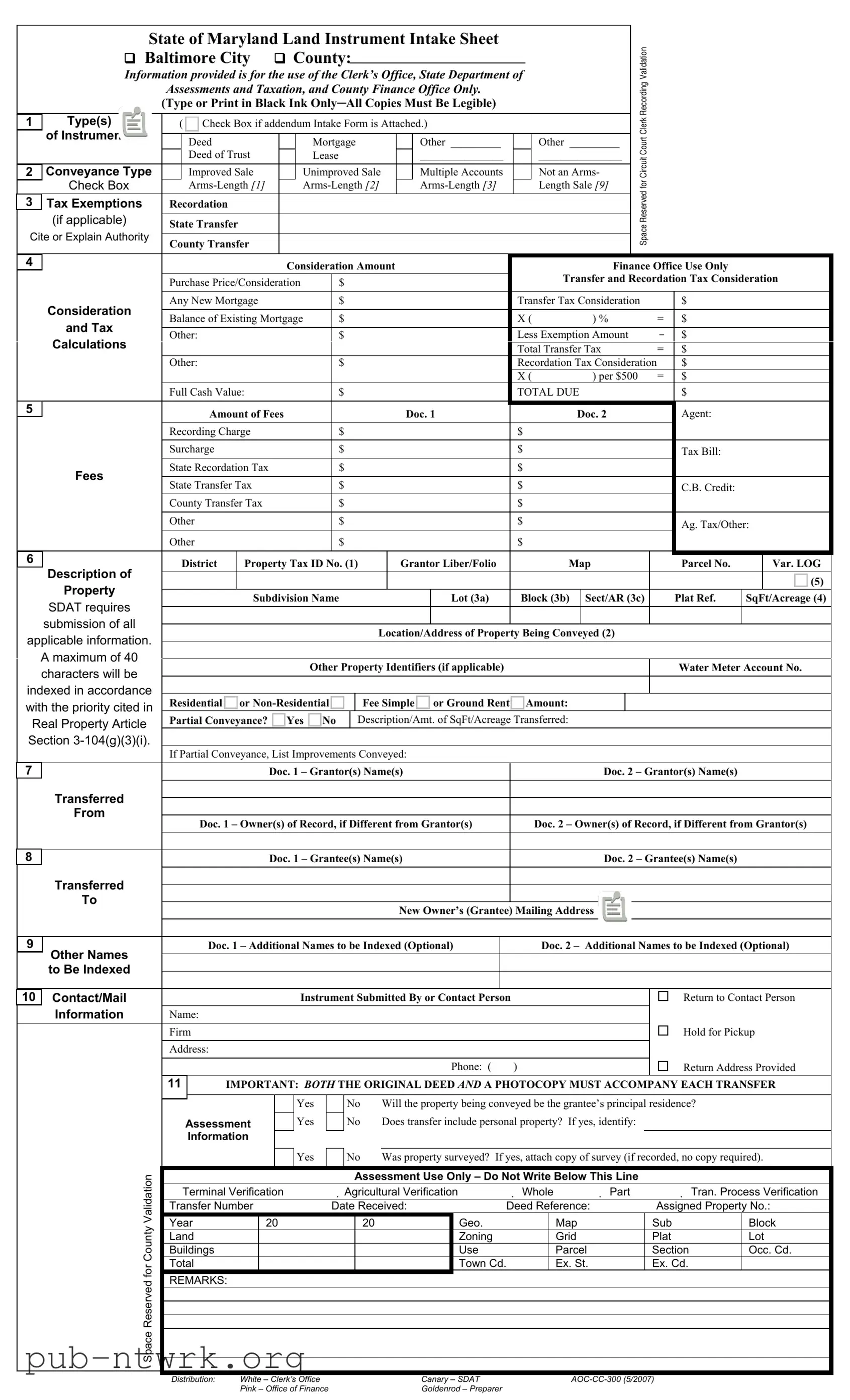
The Maryland Sheet form is a crucial document used in the recording of various land transactions within the state. It serves multiple purposes, primarily assisting the Clerk’s Office, the State Department of Assessments and Taxation, and the County Finance Office in processing and validating land instruments. The form requires users to provide detailed information about the type of instrument being recorded, such as deeds, mortgages, and leases. Furthermore, it categorizes transactions based on conveyance types, including improved and unimproved sales, while also addressing arms-length sales and tax exemptions. The form mandates the inclusion of financial details, such as consideration amounts and transfer taxes, ensuring that all calculations are transparent and accurate. Property descriptions, including tax identification numbers and addresses, are also essential components of the form. Additionally, the Maryland Sheet includes sections for grantor and grantee information, ensuring that all parties involved in the transaction are properly documented. This comprehensive form is designed to facilitate smooth and efficient processing of land transactions, ultimately supporting property ownership and management within Maryland.

Document Sample

 

 

 

State of Maryland Land Instrument Intake Sheet

 

 

 

 

 

 

 

 

Validation

 

 

 

 

 

 

Baltimore City

 

County:

 

 

 

 

 

 

 

 

 

 

 

 

 

 

 

 

 

 

 

Information provided is for the use of the Clerk’s Office, State Department of

 

 

 

 

 

 

 

 

 

 

 

Assessments and Taxation, and County Finance Office Only.

 

 

 

 

 

 

 

 

Recording

 

 

 

 

 

 

 

 

 

 

 

 

 

 

 

 

 

 

 

 

 

 

 

 

(Type or Print in Black Ink Only─All Copies Must Be Legible)

 

 

 

 

 

 

 

 

 

 

 

 

 

 

 

 

 

 

 

 

 

 

 

 

 

 

 

 

 

 

 

 

 

 

 

 

 

 

Clerk

 

 

 

1

Type(s)

( Check Box if addendum Intake Form is Attached.)

 

 

 

 

 

 

 

 

 

 

 

 

 

 

of Instruments

 

 

 

 

 

 

 

 

 

 

 

 

 

 

 

 

 

 

 

 

 

 

 

 

 

 

 

 

 

 

 

Deed

 

 

 

Mortgage

 

Other _________

 

 

 

Other _________

 

Court

 

 

 

 

 

 

 

 

 

 

 

 

 

 

 

 

 

 

 

 

 

 

 

 

 

 

 

 

 

 

 

 

 

 

 

 

 

 

 

 

 

 

Deed of Trust

 

 

Lease

 

 

 

 

 

_______________

 

 

 

_______________

 

 

Circuit

 

 

 

 

 

 

 

 

 

 

 

 

 

 

 

 

 

 

 

 

 

 

 

 

 

 

 

 

 

 

 

2

Conveyance Type

 

Improved Sale

 

 

Unimproved Sale

 

Multiple Accounts

 

 

 

Not an Arms-

 

 

 

 

 

 

 

Check Box

 

Arms-Length [1]

 

 

Arms-Length [2]

 

Arms-Length [3]

 

 

 

Length Sale [9]

 

for

 

 

 

 

 

 

 

 

 

 

 

 

 

 

 

 

 

 

 

 

 

 

 

 

 

 

 

 

 

 

 

Reserved

 

 

 

3

Tax Exemptions

Recordation

 

 

 

 

 

 

 

 

 

 

 

 

 

 

 

 

 

 

 

 

 

 

 

 

 

 

 

 

 

 

 

 

 

 

 

 

 

 

 

 

 

 

 

 

 

 

 

 

 

 

 

 

 

(if applicable)

State Transfer

 

 

 

 

 

 

 

 

 

 

 

 

 

 

 

 

 

 

 

 

 

Space

 

 

 

 

 

Cite or Explain Authority

 

 

 

 

 

 

 

 

 

 

 

 

 

 

 

 

 

 

 

 

 

 

 

 

 

 

 

 

 

County Transfer

 

 

 

 

 

 

 

 

 

 

 

 

 

 

 

 

 

 

 

 

 

 

 

 

 

 

 

 

 

 

 

 

 

 

 

 

 

 

 

 

 

 

 

 

 

 

 

 

 

 

 

 

 

 

 

 

 

 

 

 

 

 

 

 

 

 

 

 

 

 

 

 

 

 

 

 

 

 

 

 

 

 

 

 

4

 

 

 

 

 

 

Consideration Amount

 

 

 

 

 

 

 

 

 

Finance Office Use Only

 

 

 

 

 

 

 

 

 

 

 

 

 

 

 

 

 

 

 

 

 

 

 

 

 

Transfer and Recordation Tax Consideration

 

 

 

 

Purchase Price/Consideration

 

$

 

 

 

 

 

 

 

 

 

 

 

 

 

 

 

 

 

 

 

 

 

 

 

 

 

 

 

 

 

 

 

 

 

 

 

 

 

 

 

 

 

 

 

 

 

 

 

 

 

 

 

 

 

 

 

 

 

 

 

 

 

 

 

 

 

Consideration

Any New Mortgage

 

 

 

 

$

 

 

 

 

 

 

 

 

Transfer Tax Consideration

$

 

 

 

 

 

 

 

 

 

 

 

 

 

 

 

 

 

 

 

 

 

 

 

 

 

 

 

 

 

 

 

 

 

 

 

 

 

Balance of Existing Mortgage

 

$

 

 

 

 

 

 

 

 

X (

) %

 

 

=

$

 

 

 

 

 

and Tax

 

 

 

 

 

 

 

 

 

 

 

 

 

 

 

 

 

 

 

 

 

 

 

 

 

 

 

 

 

 

 

 

 

 

 

 

 

 

 

 

 

 

 

 

 

 

 

 

Other:

 

 

 

 

 

$

 

 

 

 

 

 

 

 

Less Exemption Amount

 

$

 

 

 

 

 

Calculations

 

 

 

 

 

 

 

 

 

 

 

 

 

 

 

 

 

 

 

 

 

 

 

 

 

 

 

 

 

 

 

 

 

 

 

 

Total Transfer Tax

=

$

 

 

 

 

 

 

Other:

 

 

 

 

 

$

 

 

 

 

 

 

 

 

Recordation Tax Consideration

$

 

 

 

 

 

 

 

 

 

 

 

 

 

 

 

 

 

 

 

 

 

 

 

X (

 

) per $500

=

$

 

 

 

 

 

 

Full Cash Value:

 

 

 

 

$

 

 

 

 

 

 

 

 

TOTAL DUE

 

 

$

 

 

 

 

 

 

 

 

 

 

 

 

 

 

 

 

 

 

 

 

 

 

 

 

 

 

 

 

 

5

 

 

Amount of Fees

 

 

 

 

 

Doc. 1

 

 

 

 

Doc. 2

 

 

Agent:

 

 

 

 

 

 

 

 

 

 

 

 

 

 

 

 

 

 

 

 

 

 

 

 

Recording Charge

 

 

 

 

$

 

 

 

 

 

 

 

 

$

 

 

 

 

 

 

 

 

 

 

 

 

 

 

 

 

 

 

 

 

 

 

 

 

 

 

 

 

 

 

 

 

 

 

 

 

 

 

 

 

 

 

 

 

 

 

 

Surcharge

 

 

 

 

 

$

 

 

 

 

 

 

 

 

$

 

 

 

 

 

 

 

 

Tax Bill:

 

 

 

 

 

Fees

State Recordation Tax

 

 

 

 

$

 

 

 

 

 

 

 

 

$

 

 

 

 

 

 

 

 

 

 

 

 

 

 

 

 

 

 

 

 

 

 

 

 

 

 

 

 

 

 

 

 

 

 

 

 

 

 

 

 

 

 

 

 

 

 

State Transfer Tax

 

 

 

 

$

 

 

 

 

 

 

 

 

$

 

 

 

 

 

 

 

 

C.B. Credit:

 

 

 

 

 

 

 

 

 

 

 

 

 

 

 

 

 

 

 

 

 

 

 

 

 

 

 

 

 

 

 

 

County Transfer Tax

 

 

 

 

$

 

 

 

 

 

 

 

 

$

 

 

 

 

 

 

 

 

 

 

 

 

 

 

 

 

 

 

 

 

 

 

 

 

 

 

 

 

 

 

 

 

 

 

 

 

 

 

 

 

 

 

 

 

 

 

 

Other

 

 

 

 

 

$

 

 

 

 

 

 

 

 

$

 

 

 

 

 

 

 

 

Ag. Tax/Other:

 

 

 

 

 

 

 

 

 

 

 

 

 

 

 

 

 

 

 

 

 

 

 

 

 

 

 

 

 

 

 

 

 

 

Other

 

 

 

 

 

$

 

 

 

 

 

 

 

 

$

 

 

 

 

 

 

 

 

 

 

 

 

 

 

 

 

 

 

 

 

 

 

 

 

 

 

 

 

 

 

 

 

 

 

 

 

 

 

6

Description of

 

District

 

Property Tax ID No. (1)

 

Grantor Liber/Folio

 

 

 

Map

 

 

Parcel No.

 

Var. LOG

 

 

 

 

 

 

 

 

 

 

 

 

 

 

 

 

 

 

 

 

 

 

 

 

 

 

 

 

 

 

 

 

 

 

 

 

 

 

 

 

 

 

 

 

 

 

 

 

 

 

 

 

 

 

 

 

 

 

 

 

 

 

 

(5)

 

 

 

Property

 

 

 

 

 

 

 

 

 

 

 

 

 

 

 

 

 

 

 

 

 

 

 

 

 

 

 

 

 

 

 

 

 

 

Subdivision Name

 

 

Lot (3a)

 

Block (3b)

 

Sect/AR (3c)

 

Plat Ref.

SqFt/Acreage (4)

 

 

 

SDAT requires

 

 

 

 

 

 

 

 

 

 

 

 

 

 

 

 

 

 

 

 

 

 

 

 

 

 

 

 

 

 

 

 

 

 

 

 

 

 

 

 

 

 

 

submission of all

 

 

 

 

 

 

 

 

 

 

 

 

 

 

 

 

 

 

 

 

 

 

 

 

 

 

 

 

 

 

 

 

 

 

 

 

 

 

 

 

 

 

Location/Address of Property Being Conveyed (2)

 

 

 

 

 

 

 

applicable information.

 

 

 

 

 

 

 

 

 

 

 

 

 

 

 

 

 

 

 

 

 

 

 

 

 

 

 

 

 

 

 

 

 

 

 

 

 

 

 

 

 

 

 

 

 

 

 

 

 

A maximum of 40

 

 

 

 

 

 

 

 

 

 

 

 

 

 

 

 

 

 

 

 

 

 

 

 

 

 

 

 

 

 

 

 

 

 

 

 

 

 

Other Property Identifiers (if applicable)

 

 

 

 

 

 

 

 

 

 

Water Meter Account No.

 

 

 

characters will be

 

 

 

 

 

 

 

 

 

 

 

 

 

 

 

 

 

 

 

 

 

 

 

 

 

 

 

 

 

 

 

 

 

 

 

 

 

 

 

 

 

 

 

 

 

 

 

 

 

 

indexed in accordance

 

 

 

 

 

 

 

 

 

 

 

 

 

 

 

 

 

 

 

 

 

 

 

 

 

 

 

 

 

 

 

with the priority cited in

Residential

or Non-Residential

 

 

Fee Simple or Ground Rent

 

 

Amount:

 

 

 

 

 

 

 

 

 

 

 

Real Property Article

Partial Conveyance?

 

Yes No

 

 

Description/Amt. of SqFt/Acreage Transferred:

 

 

 

 

 

 

 

 

 

 

 

Section 3-104(g)(3)(i).

 

 

 

 

 

 

 

 

 

 

 

 

 

 

 

 

 

 

 

 

 

 

 

 

 

 

 

 

 

 

 

 

 

If Partial Conveyance, List Improvements Conveyed:

 

 

 

 

 

 

 

 

 

 

 

 

 

 

 

 

 

 

 

 

 

 

 

 

 

 

 

 

 

 

 

 

7

 

 

 

 

 

Doc. 1 – Grantor(s) Name(s)

 

 

 

 

 

Doc. 2 – Grantor(s) Name(s)

 

 

 

 

 

Transferred

 

 

 

 

 

 

 

 

 

 

 

 

 

 

 

 

 

 

 

 

 

 

 

 

 

 

 

 

 

 

 

 

 

 

 

 

 

 

 

 

 

 

 

 

 

 

 

 

 

 

 

 

 

 

 

 

 

 

 

 

 

 

 

 

From

 

 

 

 

 

 

 

 

 

 

 

 

 

 

 

 

 

 

 

 

 

 

 

 

 

 

 

 

 

 

 

 

 

Doc. 1 – Owner(s) of Record, if Different from Grantor(s)

 

 

 

Doc. 2 – Owner(s) of Record, if Different from Grantor(s)

 

 

 

 

 

 

 

 

 

 

 

 

 

 

 

 

 

 

 

 

 

 

 

 

 

 

 

8

 

 

 

 

 

Doc. 1 – Grantee(s) Name(s)

 

 

 

 

 

Doc. 2 – Grantee(s) Name(s)

 

 

 

 

 

Transferred

 

 

 

 

 

 

 

 

 

 

 

 

 

 

 

 

 

 

 

 

 

 

 

 

 

 

 

 

 

 

 

 

 

 

 

 

 

 

 

 

 

 

 

 

 

 

 

 

 

 

 

 

 

 

 

 

 

 

 

 

 

 

 

 

 

 

 

 

 

 

 

 

 

 

 

 

 

 

 

 

 

 

 

 

 

 

 

 

 

 

 

 

 

 

 

 

To

 

 

 

 

 

 

 

 

 

 

 

 

 

 

 

 

 

 

 

 

 

 

 

 

 

 

 

 

 

 

 

 

 

 

 

 

 

 

 

 

 

 

 

 

New Owner’s (Grantee) Mailing Address

 

 

 

 

 

 

 

 

 

 

 

 

 

 

 

 

 

 

 

 

 

 

 

 

 

 

 

 

 

 

 

 

 

 

 

 

 

 

 

9

Other Names

 

Doc. 1 – Additional Names to be Indexed (Optional)

 

 

 

 

Doc. 2 – Additional Names to be Indexed (Optional)

 

 

 

 

 

 

 

 

 

 

 

 

 

 

 

 

 

 

 

 

 

 

 

 

 

 

 

 

 

 

 

 

 

 

 

 

 

 

 

 

 

 

 

 

 

 

 

 

 

 

 

 

 

 

 

 

 

 

 

 

 

 

 

 

 

 

 

to Be Indexed

 

 

 

 

 

 

 

 

 

 

 

 

 

 

 

 

 

 

 

 

 

 

 

 

 

 

 

 

 

 

 

 

 

 

 

 

 

 

 

 

 

 

 

 

 

 

 

 

 

 

 

 

 

 

 

 

 

 

 

 

 

 

 

 

 

 

 

 

 

 

 

 

 

 

 

 

 

 

 

 

 

 

 

 

 

10

Contact/Mail

 

 

 

 

 

 

Instrument Submitted By or Contact Person

 

 

 

 

 

 

 

 

 

 

Return to Contact Person

 

 

 

Information

Name:

 

 

 

 

 

 

 

 

 

 

 

 

 

 

 

 

 

 

 

 

 

 

 

 

 

 

 

 

 

 

Firm

 

 

 

 

 

 

 

 

 

 

 

 

 

 

 

 

 

 

 

 

 

 

 

Hold for Pickup

 

 

 

 

 

 

 

 

 

 

 

 

 

 

 

 

 

 

 

 

 

 

 

 

 

 

 

 

 

 

 

 

 

 

 

Address:

 

 

 

 

 

 

 

 

 

 

 

 

 

 

 

 

 

 

 

 

 

 

 

 

 

 

 

 

 

 

 

 

 

 

 

 

 

 

 

 

 

 

 

 

 

 

 

 

 

 

 

 

 

 

 

 

 

 

 

 

 

 

 

 

 

 

 

 

 

 

 

 

 

 

Phone: (

)

 

 

 

 

 

 

 

 

 

Return Address Provided

11IMPORTANT: BOTH THE ORIGINAL DEED AND A PHOTOCOPY MUST ACCOMPANY EACH TRANSFER

 

 

 

 

 

 

 

 

Yes

 

No

Will the property being conveyed be the grantee’s principal residence?

 

 

 

 

 

 

 

 

 

 

 

 

Assessment

 

 

Yes

 

No

Does transfer include personal property? If yes, identify:

 

 

 

 

 

 

 

 

 

 

 

 

 

 

 

 

 

Information

 

 

 

 

 

 

 

 

 

 

 

 

 

 

 

 

 

 

 

 

 

 

 

 

 

 

 

 

 

 

 

 

 

 

 

 

 

 

 

 

Yes

 

No

Was property surveyed?

If yes, attach copy of survey (if recorded, no copy required).

 

Validation

 

 

 

 

 

 

 

 

 

 

 

 

 

 

 

 

 

 

 

 

 

 

 

 

Assessment Use Only – Do Not Write Below This Line

 

 

 

 

 

Terminal Verification

 

Agricultural Verification

Whole

Part

 

Tran. Process Verification

 

 

 

 

 

 

 

 

Transfer Number

 

 

 

Date Received:

Deed Reference:

Assigned Property No.:

 

County

 

Year

20

 

 

20

 

Geo.

 

 

Map

Sub

 

Block

 

 

Land

 

 

 

 

 

 

 

Zoning

 

 

Grid

Plat

 

Lot

 

 

 

 

 

 

 

 

 

 

 

 

 

 

 

 

Buildings

 

 

 

 

 

 

 

Use

 

 

Parcel

Section

 

Occ. Cd.

 

for

 

Total

 

 

 

 

 

 

 

Town Cd.

 

Ex. St.

Ex. Cd.

 

 

 

 

REMARKS:

 

 

 

 

 

 

 

 

 

 

 

 

 

 

 

Space Reserved

 

 

 

 

 

 

 

 

 

 

 

 

 

 

 

 

 

 

 

 

 

 

 

 

 

 

 

 

 

 

 

 

 

 

 

 

 

 

 

 

 

 

 

 

 

 

 

 

 

 

 

 

 

 

 

 

 

 

 

 

 

 

 

 

 

 

 

 

 

 

 

 

 

 

 

 

 

 

 

 

 

 

 

 

 

 

 

 

 

 

 

 

 

 

 

 

 

 

 

 

 

 

 

 

 

 

 

 

 

 

 

 

 

 

 

 

 

 

 

 

 

 

 

 

 

 

 

 

 

 

Distribution:

White – Clerk’s Office

Canary – SDAT

AOC-CC-300 (5/2007)

 

Pink – Office of Finance

Goldenrod – Preparer

 

File Specifics

Fact Name Details
Form Purpose The Maryland Land Instrument Intake Sheet is used for recording various types of property transactions in Baltimore City and other counties.
Governing Laws This form is governed by the Maryland Real Property Article and local regulations specific to Baltimore City.
Legibility Requirement All entries on the form must be typed or printed in black ink to ensure legibility for all copies.
Types of Instruments Common instruments include deeds, mortgages, leases, and court documents, among others.
Conveyance Types Conveyance types are categorized as improved sale, unimproved sale, or arms-length sale.
Transfer Tax Calculation The transfer tax is calculated based on the purchase price or consideration amount, with specific rates applied.
Property Identification Property details such as Tax ID number, subdivision name, and acreage must be provided for accurate indexing.
Submission Requirements Both the original deed and a photocopy must accompany each transfer submission to the Clerk’s Office.

How to Use Maryland Sheet

Filling out the Maryland Sheet form is an important step in the property transfer process. This form collects necessary information for the Clerk’s Office, the State Department of Assessments and Taxation, and the County Finance Office. To ensure everything is completed correctly, follow these steps carefully.

  1. Gather Required Information: Collect all necessary documents, including the original deed and a photocopy.
  2. Fill in Clerk Information: In the first section, type or print in black ink. Indicate the type of instrument you are submitting (e.g., Deed, Mortgage, etc.) by checking the appropriate box.
  3. Specify Conveyance Type: Indicate whether the sale is improved or unimproved, and check the box for arms-length sale if applicable.
  4. Provide Tax Exemptions: If applicable, provide the necessary information regarding tax exemptions and recordation.
  5. State Consideration Amount: Fill in the purchase price and any mortgage amounts. Calculate the transfer and recordation tax based on the provided rates.
  6. Detail Amount of Fees: List the fees for recording charges, state recordation tax, and county transfer tax.
  7. Describe the Property: Include the property tax ID number, subdivision name, and address of the property being conveyed.
  8. Enter Grantor(s) and Grantee(s) Names: Provide the names of all grantors and grantees involved in the transaction, including any additional names to be indexed.
  9. Contact Information: Fill in the contact information for the person submitting the form, including their name, address, and phone number.
  10. Check Important Questions: Answer the questions regarding the principal residence, inclusion of personal property, and whether a survey was conducted.

After completing the form, review all entries for accuracy. Ensure that both the original deed and a photocopy accompany the form. Once everything is in order, submit the Maryland Sheet form to the appropriate office for processing.

Your Questions, Answered

What is the purpose of the Maryland Sheet form?

The Maryland Sheet form, also known as the Land Instrument Intake Sheet, is used primarily for recording land transactions within the state. It collects essential information for the Clerk’s Office, the State Department of Assessments and Taxation, and the County Finance Office. The form ensures that all necessary details are captured for processing deeds, mortgages, and other related instruments.

Who needs to fill out the Maryland Sheet form?

Individuals or entities involved in real estate transactions, such as buyers, sellers, or their representatives, must complete this form. It is required when recording deeds, mortgages, or other instruments related to property transfer. The form must be filled out accurately to facilitate the recording process.

What information is required on the Maryland Sheet form?

The form requires various details, including:

  1. Type of instrument (e.g., deed, mortgage)
  2. Conveyance type (improved or unimproved sale)
  3. Consideration amount, including purchase price and any existing mortgages
  4. Description of the property, including tax ID number and address
  5. Names of grantors and grantees
  6. Contact information for the person submitting the form

Providing accurate and complete information is crucial for the successful recording of the transaction.

What are the fees associated with the Maryland Sheet form?

Fees vary based on the type of transaction and the amount of consideration. Common fees include:

  • Recording charges
  • State recordation tax
  • County transfer tax
  • Additional surcharges or fees related to specific transactions

It is essential to calculate the total fees accurately to avoid delays in processing.

Can the Maryland Sheet form be submitted electronically?

Currently, the Maryland Sheet form must be submitted in person or via mail. Electronic submissions are not typically accepted. However, local jurisdictions may have specific rules, so it is advisable to check with the relevant Clerk’s Office for any updates on submission methods.

What happens if the Maryland Sheet form is incomplete or incorrect?

If the form is incomplete or contains errors, the recording process may be delayed. The Clerk’s Office may return the form for corrections, which could lead to additional fees or complications in the transaction. Therefore, careful attention to detail is critical when filling out the form.

Is it necessary to attach additional documents to the Maryland Sheet form?

Yes, in many cases, additional documents must accompany the Maryland Sheet form. For instance, both the original deed and a photocopy are required for each transfer. If the property has been surveyed, a copy of the survey should be attached as well. These documents provide essential context and verification for the transaction.

Where can I obtain the Maryland Sheet form?

The Maryland Sheet form can typically be obtained from the local Clerk’s Office or downloaded from the official Maryland government website. It is advisable to use the most current version of the form to ensure compliance with any recent changes in regulations or requirements.

Common mistakes

  1. Failing to use black ink when filling out the form. All entries must be legible, and using other colors can lead to processing delays.

  2. Not checking the appropriate type of instrument. Ensure that the correct box is checked to indicate whether it is a deed, mortgage, or another type of instrument.

  3. Omitting the consideration amount. This amount is crucial for calculating transfer taxes. Ensure it is clearly stated.

  4. Neglecting to provide property identifiers. Include the Tax ID number, map parcel number, and other identifiers to avoid complications.

  5. Not including both the original deed and a photocopy. The form requires that both documents accompany the submission to be processed.

  6. Failing to indicate if the property will be the grantee's principal residence. This information is important for assessment purposes and should not be overlooked.

Documents used along the form

The Maryland Sheet form is a critical document used in real estate transactions within the state of Maryland. It serves as a comprehensive intake sheet for recording various land instruments. Alongside this form, several other documents and forms are often required to ensure a smooth transaction process. Below is a list of commonly used forms and documents that complement the Maryland Sheet form.

  • Deed: This legal document conveys ownership of real property from one party to another. It outlines the rights and interests being transferred and is essential for establishing clear title.
  • Mortgage: A mortgage is a loan agreement in which a property is used as collateral. It details the terms of the loan, including repayment schedules and interest rates, and is recorded to secure the lender's interest in the property.
  • Deed of Trust: Similar to a mortgage, a deed of trust involves three parties: the borrower, the lender, and a trustee. It secures the loan with the property and allows the trustee to sell the property if the borrower defaults.
  • Lease Agreement: This document outlines the terms under which one party agrees to rent property from another. It specifies the duration, payment terms, and responsibilities of both the landlord and tenant.
  • Property Tax Identification (Tax ID) Form: This form provides the unique identification number assigned to a property for tax purposes. It is necessary for assessing property taxes and ensuring compliance with local tax regulations.
  • Transfer Tax Declaration: This form is used to declare the amount of transfer tax due on the sale of property. It helps local governments collect the appropriate taxes during real estate transactions.
  • Affidavit of Consideration: This sworn statement provides details about the sale price and other considerations involved in the transaction. It helps verify that the transfer tax is calculated correctly.
  • Survey Plat: A survey plat is a detailed map of a property that shows its boundaries, dimensions, and any improvements. It is often required to clarify property lines and ensure accurate descriptions in the deed.
  • Title Search Report: This document provides a history of the property’s ownership and any liens or encumbrances. It is crucial for ensuring that the seller has the right to sell the property and that the buyer receives clear title.
  • Settlement Statement: Also known as a HUD-1, this statement outlines all financial transactions involved in the closing of a real estate deal, including fees, taxes, and the final amounts due from both the buyer and seller.

Understanding these documents is essential for anyone involved in real estate transactions in Maryland. Each form plays a specific role in ensuring that the transfer of property is legally sound and properly recorded, ultimately protecting the rights of all parties involved.

Similar forms

The Maryland Sheet form shares similarities with the Deed of Trust form. Both documents serve to formalize agreements related to real estate transactions. A Deed of Trust involves three parties: the borrower, the lender, and a trustee, who holds the title until the loan is paid off. Just like the Maryland Sheet, the Deed of Trust requires detailed information about the property, the parties involved, and any financial considerations. This ensures that all necessary parties are informed and that the transaction is properly recorded.

Another document that resembles the Maryland Sheet is the Mortgage form. A mortgage is a legal agreement in which a borrower pledges property as security for a loan. Similar to the Maryland Sheet, the Mortgage form includes essential details such as the property description, the amount borrowed, and the terms of repayment. Both documents aim to protect the interests of the lender while providing a clear record of the transaction for all parties involved.

The Lease Agreement is also comparable to the Maryland Sheet form. While the Maryland Sheet is primarily used for property transfers, a Lease Agreement outlines the terms under which one party rents property from another. Both documents require information about the property and the parties involved, ensuring that the rights and responsibilities of each party are clearly stated. This helps prevent disputes and provides a formal record of the arrangement.

Additionally, the Quitclaim Deed shares characteristics with the Maryland Sheet form. A Quitclaim Deed transfers any interest the grantor has in a property without guaranteeing that the title is clear. Like the Maryland Sheet, it requires specific details about the property and the parties involved. Both documents serve as essential tools in real estate transactions, allowing for the transfer of ownership while documenting important information.

Lastly, the Property Transfer Tax form is similar to the Maryland Sheet. This form is used to report the transfer of property and calculate any applicable taxes. Much like the Maryland Sheet, it includes information about the property, the buyer, and the seller, along with financial details. Both documents help ensure compliance with state regulations and provide a clear record of the transaction for tax purposes.

Dos and Don'ts

When filling out the Maryland Sheet form, attention to detail is crucial. Here’s a guide to ensure you complete the form correctly.

  • Do use black ink and print clearly. All copies must be legible to avoid processing delays.
  • Do check the appropriate boxes for the type of instruments and conveyance type. This helps categorize your submission accurately.
  • Do provide complete and accurate consideration amounts. This includes the purchase price and any mortgages involved.
  • Do include all required information about the property, such as the Tax ID number and address. Missing details can lead to complications.
  • Don't leave any sections blank. Every part of the form must be filled out to ensure compliance with state requirements.
  • Don't forget to attach both the original deed and a photocopy. This is mandatory for processing the transfer.

Misconceptions

Understanding the Maryland Sheet form is essential for anyone involved in property transactions in Maryland. However, there are several misconceptions that can lead to confusion. Here are eight common misconceptions about the Maryland Sheet form:

  • Only real estate professionals need to use the form. Many people believe that only real estate agents or lawyers need to fill out the Maryland Sheet form. In reality, anyone involved in a property transaction, including buyers and sellers, may need to complete this form.
  • The form is only for sales of improved properties. Some individuals think that the Maryland Sheet is only applicable for improved properties. However, it is also used for unimproved sales, and understanding this can help in various transaction scenarios.
  • All copies of the form must be submitted in color. There is a misconception that the form must be submitted in color. In fact, it must be filled out in black ink only, and all copies should be legible, regardless of color.
  • Tax exemptions are not applicable for all transactions. Some people assume that tax exemptions are only available for specific types of transactions. In reality, if you qualify, you can apply for tax exemptions regardless of the transaction type.
  • Only the buyer's information is required. It is a common misunderstanding that only the buyer's information needs to be provided. The form requires information from both the grantor (seller) and grantee (buyer), ensuring that all parties are accurately represented.
  • Filling out the form is optional. Many believe that completing the Maryland Sheet form is optional. However, it is a necessary document for recording property transactions and must be submitted to the appropriate offices.
  • There is no need to include personal property in the form. Some individuals think that personal property does not need to be mentioned. If the transfer includes personal property, it must be identified on the form to avoid any legal complications.
  • The form can be submitted without a photocopy of the original deed. A significant misconception is that the form can be submitted without the original deed and a photocopy. Both documents are required for the transfer to be processed correctly.

By understanding these misconceptions, individuals can better navigate the process of property transactions in Maryland and ensure that all necessary paperwork is completed accurately.

Key takeaways

When filling out and using the Maryland Sheet form, it is essential to follow specific guidelines to ensure accuracy and compliance. Here are key takeaways:

  • Legibility is crucial. Use black ink and ensure all copies are clear and readable.
  • Identify the type of instrument. Check the appropriate box for deeds, mortgages, or other instruments.
  • Specify the conveyance type. Indicate whether the sale is improved, unimproved, or involves multiple accounts.
  • Understand tax exemptions. If applicable, provide details regarding transfer and recordation tax exemptions.
  • Calculate consideration amounts accurately. Include purchase price, existing mortgages, and any exemptions.
  • Provide property details. Include tax ID numbers, location, and other identifiers for the property being conveyed.
  • List grantor and grantee names. Ensure all names are accurate, including any additional names to be indexed.
  • Include contact information. Provide details for the person submitting the form and return address.
  • Submit required documents. Both the original deed and a photocopy must accompany the transfer.

By adhering to these guidelines, you can facilitate a smoother process when using the Maryland Sheet form.