Blank Indiana State 104 PDF Form

Blank Indiana State 104 PDF Form

The Indiana State Form 104 is a crucial document used for reporting tangible personal property for tax purposes in the state of Indiana. Taxpayers must file this form with the Township Assessor by May 15 each year, unless an extension has been granted. Understanding the requirements and potential penalties associated with this form is essential for ensuring compliance and avoiding unnecessary fees.

If you're ready to get started on filling out the Indiana State 104 form, click the button below!

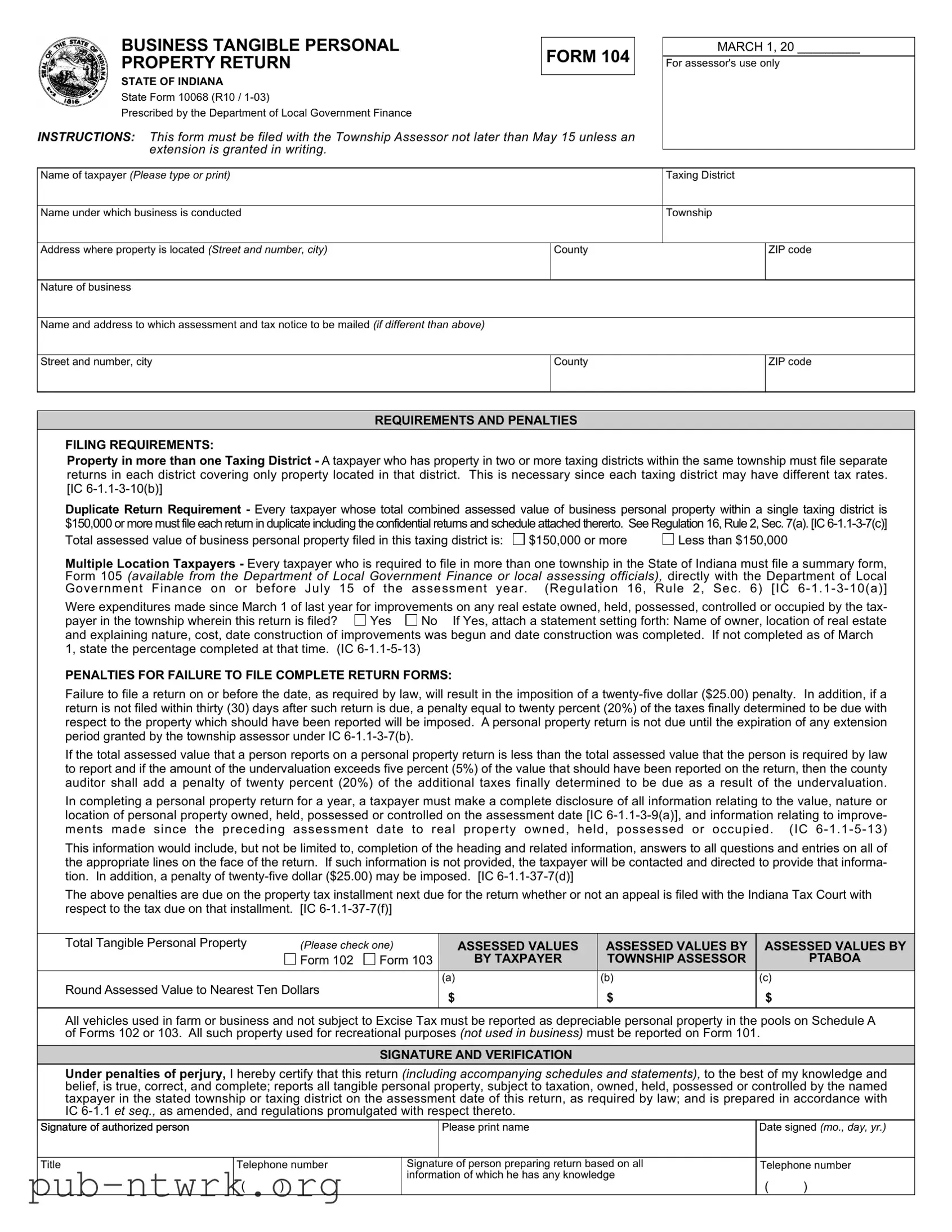
The Indiana State 104 form is an essential document for businesses operating within the state, specifically designed for the reporting of tangible personal property. This form must be submitted to the Township Assessor by May 15 each year, unless an extension is granted in writing. It captures critical information about the taxpayer, including the name of the business, the location of the property, and the nature of the business activities. Taxpayers must be diligent, as those with property in multiple taxing districts are required to file separate returns for each district, ensuring compliance with varying tax rates. Additionally, businesses with a total assessed value of $150,000 or more must submit their returns in duplicate. The form also inquires about any improvements made to real estate owned by the taxpayer since the previous assessment date, which can affect the overall valuation. Failure to file or provide complete information can lead to penalties, emphasizing the importance of accuracy in the reporting process. Overall, the Indiana State 104 form serves as a critical tool for local government finance, ensuring that businesses fulfill their tax obligations while also providing a clear framework for assessment and compliance.

Document Sample

BUSINESS TANGIBLE PERSONAL

FORM 104

PROPERTY RETURN

 

 

 

STATE OF INDIANA

State Form 10068 (R10 / 1-03)

Prescribed by the Department of Local Government Finance

INSTRUCTIONS: This form must be filed with the Township Assessor not later than May 15 unless an extension is granted in writing.

MARCH 1, 20 _________

For assessor's use only

Name of taxpayer (Please type or print)

 

Taxing District

 

 

 

 

Name under which business is conducted

 

Township

 

 

 

 

Address where property is located (Street and number, city)

County

 

ZIP code

 

 

 

 

Nature of business

 

 

 

 

 

 

 

Name and address to which assessment and tax notice to be mailed (if different than above)

 

 

 

 

 

 

 

Street and number, city

County

 

ZIP code

 

 

 

 

REQUIREMENTS AND PENALTIES

FILING REQUIREMENTS:

Property in more than one Taxing District - A taxpayer who has property in two or more taxing districts within the same township must file separate returns in each district covering only property located in that district. This is necessary since each taxing district may have different tax rates. [IC 6-1.1-3-10(b)]

Duplicate Return Requirement - Every taxpayer whose total combined assessed value of business personal property within a single taxing district is $150,000 or more must file each return in duplicate including the confidential returns and schedule attached thererto. See Regulation 16, Rule 2, Sec. 7(a). [IC 6-1.1-3-7(c)]

Total assessed value of business personal property filed in this taxing district is:

$150,000 or more

Less than $150,000

Multiple Location Taxpayers - Every taxpayer who is required to file in more than one township in the State of Indiana must file a summary form, Form 105 (available from the Department of Local Government Finance or local assessing officials), directly with the Department of Local Government Finance on or before July 15 of the assessment year. (Regulation 16, Rule 2, Sec. 6) [IC 6-1.1-3-10(a)]

Were expenditures made since March 1 of last year for improvements on any real estate owned, held, possessed, controlled or occupied by the tax- payer in the township wherein this return is filed? Yes No If Yes, attach a statement setting forth: Name of owner, location of real estate and explaining nature, cost, date construction of improvements was begun and date construction was completed. If not completed as of March 1, state the percentage completed at that time. (IC 6-1.1-5-13)

PENALTIES FOR FAILURE TO FILE COMPLETE RETURN FORMS:

Failure to file a return on or before the date, as required by law, will result in the imposition of a twenty-five dollar ($25.00) penalty. In addition, if a return is not filed within thirty (30) days after such return is due, a penalty equal to twenty percent (20%) of the taxes finally determined to be due with respect to the property which should have been reported will be imposed. A personal property return is not due until the expiration of any extension period granted by the township assessor under IC 6-1.1-3-7(b).

If the total assessed value that a person reports on a personal property return is less than the total assessed value that the person is required by law to report and if the amount of the undervaluation exceeds five percent (5%) of the value that should have been reported on the return, then the county auditor shall add a penalty of twenty percent (20%) of the additional taxes finally determined to be due as a result of the undervaluation.

In completing a personal property return for a year, a taxpayer must make a complete disclosure of all information relating to the value, nature or location of personal property owned, held, possessed or controlled on the assessment date [IC 6-1.1-3-9(a)], and information relating to improve- ments made since the preceding assessment date to real property owned, held, possessed or occupied. (IC 6-1.1-5-13)

This information would include, but not be limited to, completion of the heading and related information, answers to all questions and entries on all of the appropriate lines on the face of the return. If such information is not provided, the taxpayer will be contacted and directed to provide that informa- tion. In addition, a penalty of twenty-five dollar ($25.00) may be imposed. [IC 6-1.1-37-7(d)]

The above penalties are due on the property tax installment next due for the return whether or not an appeal is filed with the Indiana Tax Court with respect to the tax due on that installment. [IC 6-1.1-37-7(f)]

Total Tangible Personal Property

(Please check one)

 

ASSESSED VALUES

ASSESSED VALUES BY

ASSESSED VALUES BY

 

Form 102

Form 103

 

BY TAXPAYER

TOWNSHIP ASSESSOR

PTABOA

 

 

 

(a)

 

(b)

(c)

Round Assessed Value to Nearest Ten Dollars

 

$

 

$

$

 

 

 

 

 

 

 

 

 

 

 

All vehicles used in farm or business and not subject to Excise Tax must be reported as depreciable personal property in the pools on Schedule A of Forms 102 or 103. All such property used for recreational purposes (not used in business) must be reported on Form 101.

SIGNATURE AND VERIFICATION

Under penalties of perjury, I hereby certify that this return (including accompanying schedules and statements), to the best of my knowledge and belief, is true, correct, and complete; reports all tangible personal property, subject to taxation, owned, held, possessed or controlled by the named taxpayer in the stated township or taxing district on the assessment date of this return, as required by law; and is prepared in accordance with IC 6-1.1 et seq., as amended, and regulations promulgated with respect thereto.

Signature of authorized person

 

 

 

Please print name

Date signed (mo., day, yr.)

 

 

 

 

 

Title

Telephone number

Signature of person preparing return based on all

Telephone number

 

(

)

information of which he has any knowledge

 

 

 

 

 

(

)

File Specifics

Fact Name Details
Form Purpose The Indiana State 104 form is used for reporting business tangible personal property for tax purposes.
Filing Deadline This form must be filed with the Township Assessor by May 15, unless an extension is granted in writing.
Multiple Districts If a taxpayer has property in more than one taxing district, separate returns must be filed for each district.
Duplicate Filing Requirement Taxpayers with assessed values of $150,000 or more must file the return in duplicate.
Summary Form Requirement Taxpayers filing in multiple townships must submit a summary form (Form 105) by July 15.
Improvement Reporting Expenditures for improvements made since March 1 of the previous year must be reported.
Penalties for Late Filing A $25 penalty applies for late filing, with additional penalties for significant undervaluation.
Disclosure Requirement Complete disclosure of all personal property and improvements is mandatory on the return.
Governing Laws The form is governed by Indiana Code IC 6-1.1-3-10, IC 6-1.1-3-7, and IC 6-1.1-5-13.
Signature Requirement The form must be signed by an authorized person, certifying the accuracy of the information provided.

How to Use Indiana State 104

Filling out the Indiana State 104 form is a crucial step for business owners to report tangible personal property. It is essential to complete this form accurately and submit it by the deadline to avoid penalties. Here are the steps to follow:

  1. Obtain the Indiana State 104 form, which can be found online or requested from local assessing officials.
  2. Fill in the date of assessment at the top of the form, marking March 1 of the assessment year.
  3. Provide the name of the taxpayer. Ensure that you type or print clearly.
  4. Indicate the taxing district where the property is located.
  5. Enter the name under which the business is conducted.
  6. Complete the address where the property is located, including the street number, city, county, and ZIP code.
  7. If the mailing address for assessment and tax notices is different, fill in that information as well.
  8. Answer the question regarding whether any expenditures were made for improvements on real estate owned since the last assessment date. If yes, attach a detailed statement.
  9. Report the total assessed value of the business personal property. Check the appropriate box indicating whether it is $150,000 or more, or less than that amount.
  10. If applicable, complete the section for multiple location taxpayers and prepare to file Form 105 by July 15.
  11. Report the assessed values as required, rounding to the nearest ten dollars.
  12. Sign and date the form, certifying the accuracy of the information provided.
  13. If someone else prepared the return, ensure they also sign and provide their contact information.

After completing the form, review it for accuracy and ensure all necessary attachments are included. Submit the form to the Township Assessor by May 15, unless an extension has been granted in writing. Timely submission will help avoid penalties and ensure compliance with state regulations.

Your Questions, Answered

What is the Indiana State 104 form?

The Indiana State 104 form, also known as the Business Tangible Personal Property Form 104, is used by businesses to report their tangible personal property for tax purposes. This form must be filed with the local Township Assessor by May 15 each year, unless an extension is granted. It helps ensure that businesses accurately report their property values, which are then used to determine property taxes.

Who needs to file the Indiana State 104 form?

Any business that owns tangible personal property in Indiana is required to file this form. If a business has property in more than one taxing district, separate returns must be filed for each district. Additionally, if the total assessed value of the business personal property is $150,000 or more within a single taxing district, the taxpayer must file the return in duplicate.

What are the penalties for not filing the form on time?

Failing to file the Indiana State 104 form by the deadline can lead to penalties. A late filing incurs a $25 penalty. If the return is not filed within 30 days after the due date, an additional penalty of 20% of the taxes owed may apply. Moreover, if the reported value is significantly lower than what should have been reported, a 20% penalty on the additional taxes due may also be imposed.

What information do I need to provide on the form?

The Indiana State 104 form requires detailed information, including:

  1. Name and address of the taxpayer.
  2. Taxing district and township information.
  3. Description of the nature of the business.
  4. Details about any improvements made to real estate owned by the business since the last assessment date.
  5. Total assessed value of business personal property.

Completing the form accurately is crucial, as incomplete information may lead to penalties.

What should I do if I have property in multiple taxing districts?

If your business operates in multiple taxing districts, you need to file separate Indiana State 104 forms for each district. Each return should only cover the property located in that specific district. Additionally, you must submit a summary form, known as Form 105, to the Department of Local Government Finance by July 15 of the assessment year.

How can I ensure my filing is accurate?

To ensure accuracy when filing the Indiana State 104 form, consider the following tips:

  • Review all property records and ensure you have a complete list of all tangible personal property.
  • Check for any recent improvements made to your property and include those details.
  • Consult with a tax professional if you have questions about the valuation or filing process.
  • Double-check all entries on the form before submission to avoid penalties for incomplete information.

Taking these steps can help you file correctly and avoid unnecessary penalties.

Common mistakes

  1. Failing to submit the form by the May 15 deadline. Extensions must be requested in writing.

  2. Not filing separate returns for property located in multiple taxing districts within the same township. Each district may have different tax rates.

  3. Forgetting to file in duplicate if the total assessed value is $150,000 or more. This includes all confidential returns and schedules.

  4. Neglecting to file a summary form, Form 105, if required to file in more than one township. This must be submitted by July 15.

  5. Not providing detailed information about improvements made to real estate since the last assessment. This includes the nature, cost, and completion dates.

  6. Overlooking the penalties for late filing. A $25.00 penalty applies for late submissions, with additional penalties for undervaluation.

  7. Failing to report all personal property owned or controlled on the assessment date. Incomplete disclosures can lead to penalties.

  8. Not rounding assessed values to the nearest ten dollars, which is a requirement on the form.

  9. Neglecting to include the signature and verification from an authorized person. This is essential for the return to be considered valid.

  10. Forgetting to provide the contact information for both the taxpayer and the person preparing the return. This information is crucial for follow-up.

Documents used along the form

The Indiana State 104 form is an important document for businesses reporting their tangible personal property. However, several other forms and documents are often used in conjunction with it. Understanding these can help ensure compliance and avoid penalties. Below is a list of related forms and documents that may be necessary.

  • Form 105: This summary form is required for taxpayers with property in more than one township. It must be submitted to the Department of Local Government Finance by July 15 of the assessment year.
  • Form 102: This form is used for reporting depreciable personal property. It includes details about vehicles and equipment used in business operations.
  • Form 103: Similar to Form 102, this form is also for reporting depreciable personal property but may include different categories or pools of assets.
  • Form 101: This form is used to report recreational vehicles that are not used for business. It is important to distinguish these from business property.
  • Confidential Returns: These are necessary for taxpayers with a total assessed value of $150,000 or more. They must file returns in duplicate, including any attached schedules.
  • Statement of Improvements: If any improvements were made to real estate owned by the taxpayer, a detailed statement must be attached to the 104 form. This includes the nature, cost, and completion status of the improvements.
  • Extension Request: If additional time is needed to file the 104 form, a written request for an extension must be submitted to the township assessor.
  • Tax Notices: These are sent to the address specified on the 104 form. They inform the taxpayer of any taxes owed based on the reported property.
  • County Auditor’s Assessment: This document may be issued if there are discrepancies in the reported values, including penalties for undervaluation.

Filing the Indiana State 104 form correctly, along with the necessary accompanying documents, is crucial for avoiding penalties and ensuring proper assessment of business property. Stay informed and organized to meet all requirements.

Similar forms

The Indiana State Form 102 is similar to the State Form 104 in that both are used for reporting personal property for tax purposes. Form 102 is specifically designed for taxpayers who are reporting their tangible personal property for business purposes. Like the 104, it requires detailed information about the taxpayer, the nature of the business, and the property being reported. Both forms also emphasize the importance of filing by specific deadlines to avoid penalties, reinforcing the need for accuracy and completeness in the information provided.

Another document that shares similarities with the Indiana State 104 form is Form 103. This form is used for reporting personal property for businesses that have a higher assessed value. Just like the 104, Form 103 requires the taxpayer to disclose the nature of their business and the specific property they own. Both forms also have guidelines for filing in multiple taxing districts and outline penalties for failure to comply with the filing requirements. This ensures that taxpayers understand their obligations regardless of the form they are using.

Form 101 is another related document. This form is utilized for reporting personal property that is not used in a business context, such as recreational vehicles. While the 101 form differs in purpose, it shares the same filing deadline and requirement for accurate reporting as the 104 form. Both forms aim to ensure that all tangible personal property is accounted for in the tax assessment process, highlighting the importance of compliance for all property owners.

Lastly, Form 105 serves as a summary form for taxpayers who own property in multiple townships. This form is similar to the 104 in that it requires taxpayers to consolidate their information from various districts. Both forms emphasize the importance of timely filing and the potential penalties for non-compliance. By requiring a summary of all property across different locations, Form 105 complements the detailed reporting required by Form 104, ensuring that all personal property is accurately assessed for tax purposes.

Dos and Don'ts

When filling out the Indiana State 104 form, there are specific actions you should take and others you should avoid. Here’s a helpful list to guide you through the process:

  • Do file the form by May 15, unless you have received a written extension.
  • Do ensure that you complete the heading with accurate information about your business and property location.
  • Do file separate returns for property located in different taxing districts within the same township.
  • Do attach a statement detailing any improvements made to real estate since the previous assessment date if applicable.
  • Do report all vehicles used in your business or farm operations as depreciable personal property.
  • Don't submit a return without including all required information, as incomplete returns may incur penalties.
  • Don't forget to file in duplicate if your total assessed value of business personal property is $150,000 or more.
  • Don't assume that an extension automatically waives penalties; you still need to file within the granted period.
  • Don't neglect to verify the accuracy of your reported values, as undervaluation can lead to additional penalties.

Following these guidelines can help ensure a smooth filing process and avoid unnecessary penalties. Being thorough and timely is key to successfully managing your property return obligations in Indiana.

Misconceptions

When dealing with the Indiana State 104 form, it is easy to fall victim to certain misconceptions. Understanding these can help ensure compliance and avoid penalties. Here are four common misconceptions:

  • Misconception 1: The Indiana State 104 form is only for large businesses.
  • This is not true. Any business that possesses tangible personal property in Indiana must file this form, regardless of its size. Small businesses with minimal assets still have reporting obligations.

  • Misconception 2: Filing the form late incurs only a minor penalty.
  • In reality, failing to file on time can lead to significant penalties. A $25 penalty is imposed for late filings, and if the return is not filed within 30 days, an additional penalty of 20% of the taxes owed can apply.

  • Misconception 3: You can file a single return for multiple taxing districts.
  • This is incorrect. Taxpayers with property in more than one taxing district must file separate returns for each district. Each district may have different tax rates, making it essential to report accurately.

  • Misconception 4: The form does not require detailed information about property improvements.
  • On the contrary, if there have been any improvements made to real estate since the last assessment date, this information must be disclosed. Failure to do so can result in penalties and complications during the assessment process.

Key takeaways

Filling out the Indiana State 104 form is an important task for business owners. Understanding the requirements and deadlines associated with this form can help avoid penalties and ensure compliance with state regulations. Here are some key takeaways:

  • Filing Deadline: The form must be submitted to the Township Assessor by May 15, unless a written extension is granted.
  • Separate Returns: If a taxpayer owns property in multiple taxing districts, separate returns must be filed for each district, reflecting only the property located there.
  • Duplicate Filing Requirement: Taxpayers with a total assessed value of $150,000 or more in a single taxing district must file returns in duplicate, including all attached schedules.
  • Multiple Location Taxpayers: Those required to file in more than one township must submit a summary form, Form 105, to the Department of Local Government Finance by July 15.
  • Improvements Disclosure: If improvements were made to real estate since the last assessment date, a statement detailing the nature, cost, and completion status must be attached to the return.
  • Penalties for Late Filing: Failing to file on time incurs a $25 penalty. If not filed within 30 days, an additional 20% penalty on the taxes due will apply.
  • Complete Disclosure Required: Taxpayers must fully disclose all relevant information about their personal property. Incomplete forms may result in penalties and follow-up inquiries from the assessor's office.
  • Verification of Information: The authorized person must certify the accuracy of the return under penalties of perjury, ensuring that all reported information is true and complete.

By adhering to these guidelines, business owners can navigate the complexities of the Indiana State 104 form with greater ease and confidence.