Blank Indiana 43709 PDF Form

Blank Indiana 43709 PDF Form

The Indiana 43709 form is a vital document used to declare mortgage or contract indebtedness for deductions from assessed property valuation. Homeowners and contract buyers in Indiana must file this form with their county auditor to potentially lower their property taxes. Ensure you complete the form accurately to take advantage of the benefits it offers by clicking the button below.

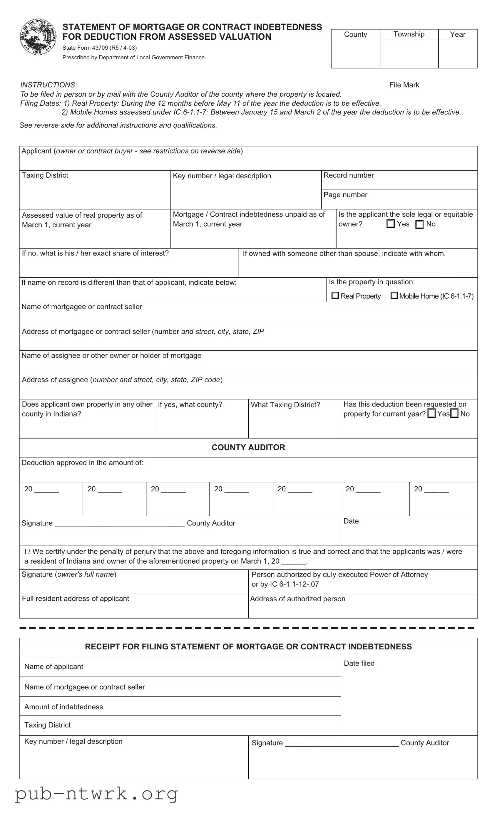
The Indiana 43709 form, officially known as the Statement of Mortgage or Contract Indebtedness for Deduction from Assessed Valuation, plays a crucial role for property owners in Indiana looking to reduce their property tax burden. This form must be filed with the County Auditor, either in person or by mail, within specific timeframes depending on the type of property. For real property, the filing must occur within the twelve months leading up to May 11 of the year when the deduction takes effect. Mobile home owners have a narrower window, with filings due between January 15 and March 2. The form requires detailed information, including the assessed value of the property, the amount of mortgage or contract indebtedness, and ownership details. It also asks whether the applicant is the sole owner or shares ownership with others. Importantly, the deduction available through this form can equal $3,000, half of the property's assessed value, or the remaining mortgage balance, whichever is the least. Applicants should be aware that any false statements made during the application process can lead to serious legal consequences. Thus, understanding the requirements and deadlines is essential for anyone looking to take advantage of this tax deduction opportunity.

Document Sample

File Mark

STATEMENT OF MORTGAGE OR CONTRACT INDEBTEDNESS FOR DEDUCTION FROM ASSESSED VALUATION

State Form 43709 (R5 / 4-03)

Prescribed by Department of Local Government Finance

County

Township

Year

INSTRUCTIONS:

To be filed in person or by mail with the County Auditor of the county where the property is located.

Filing Dates: 1) Real Property: During the 12 months before May 11 of the year the deduction is to be effective.

2)Mobile Homes assessed under IC 6-1.1-7: Between January 15 and March 2 of the year the deduction is to be effective. See reverse side for additional instructions and qualifications.

Applicant (owner or contract buyer - see restrictions on reverse side)

Taxing District

Key number / legal description

Record number

 

 

 

 

 

 

 

 

 

 

 

 

 

 

Page number

 

 

 

 

 

 

 

 

 

 

Assessed value of real property as of

Mortgage / Contract indebtedness unpaid as of

Is the applicant the sole legal or equitable

March 1, current year

March 1, current year

 

owner?

 

Yes

 

No

 

 

 

 

 

 

 

 

 

 

 

If no, what is his / her exact share of interest?

If owned with someone other than spouse, indicate with whom.

If name on record is different than that of applicant, indicate below:

Is the property in question:

 

 

 

Real Property

 

Mobile Home (IC 6-1.1-7)

 

 

 

 

 

 

 

 

 

 

Name of mortgagee or contract seller

 

 

 

 

 

Address of mortgagee or contract seller (number and street, city, state, ZIP

Name of assignee or other owner or holder of mortgage

Address of assignee (number and street, city, state, ZIP code)

Does applicant own property in any other county in Indiana?

If yes, what county?

What Taxing District?

Has this deduction been requested on property for current year? Yes No

COUNTY AUDITOR

Deduction approved in the amount of:

20 ______

20 ______

20 ______

20 ______

20 ______

20 ______

20 ______

Signature ________________________________ County Auditor

Date

I / We certify under the penalty of perjury that the above and foregoing information is true and correct and that the applicants was / were a resident of Indiana and owner of the aforementioned property on March 1, 20 ______.

Signature (owner's full name)

Person authorized by duly executed Power of Attorney

 

or by IC 6-1.1-12-.07

 

 

Full resident address of applicant

Address of authorized person

 

 

RECEIPT FOR FILING STATEMENT OF MORTGAGE OR CONTRACT INDEBTEDNESS

Name of applicant

Date filed

 

Name of mortgagee or contract seller

Amount of indebtedness

Taxing District

Key number / legal description

Signature ____________________________ County Auditor

 

 

Instructions and Qualifications

Applicants must be residents of the State of Indiana.

Applications must be filed during the periods specified. Once the application is in effect, no other filing is necessary unless there is a change in the status of the property of applicant that would affect the deduction.

This application may be filed in person or by mail. If mailed, the mailing must be postmarked before the last day for filing.

Any person who willfully makes a false statement of the facts in applying for this deduction is guilty of the crime of perjury and on the conviction thereof will be punished in the manner provided by law.

The deduction equals $3,000, one-half of the assessed value of the property, or the balance of the mortgage or contract indebtedness as of the assessment date, which ever is least.

Authority for signing a deduction application may be delegated only by an executed power of attorney or by IC 6-1.1-12-.07.

Signature of only one spouse is required for filing, when owner is a husband and wife as tenants by the entireties.

An Indiana resident who was a member of the United States Armed Forces and who was away from the county of his residence as a result of military service during the time of filing must file a claim for deduction during the twelve months before May 11 of the year next succeeding the year of discharge.

A contract buyer must submit a recorded copy or recorded memorandum of the contract, which contains a legal description with the first statement filed for this deduction.

File Specifics

Fact Name Fact Details
Form Purpose The Indiana 43709 form is used to declare mortgage or contract indebtedness for deduction from assessed property valuation.
Filing Authority This form is prescribed by the Department of Local Government Finance in Indiana.
Filing Method Applicants can file the form in person or by mail with the County Auditor where the property is located.
Filing Period for Real Property Real property filings must occur during the 12 months before May 11 of the year the deduction is effective.
Filing Period for Mobile Homes Mobile homes must be filed between January 15 and March 2 of the year the deduction is effective.
Eligibility Requirements Applicants must be residents of Indiana and must own the property as of March 1 of the current year.
Deduction Amount The deduction can be $3,000, half of the assessed property value, or the remaining mortgage balance, whichever is least.
Legal References The form is governed by Indiana Code IC 6-1.1-7 and IC 6-1.1-12-7.

How to Use Indiana 43709

Filling out the Indiana 43709 form requires careful attention to detail. Make sure you have all necessary information at hand. This includes your property details, mortgage information, and personal identification. Follow these steps to complete the form accurately.

  1. Obtain the Indiana 43709 form from the appropriate source.
  2. Enter your name as the applicant (owner or contract buyer) at the top of the form.
  3. Fill in the Taxing District, Key number, and legal description of your property.
  4. Provide the Record number and Page number associated with your property.
  5. Input the Assessed value of the real property as of March 1 of the current year.
  6. State the Mortgage or Contract indebtedness unpaid as of March 1 of the current year.
  7. Indicate whether you are the sole legal or equitable owner by checking "Yes" or "No." If "No," specify your exact share of interest and with whom you co-own the property.
  8. If your name on record differs from the applicant's name, provide the correct name below.
  9. Specify whether the property is Real Property or a Mobile Home.
  10. Enter the Name and Address of the mortgagee or contract seller.
  11. Provide the Name and Address of the assignee or other owner or holder of the mortgage.
  12. Answer whether you own property in any other county in Indiana. If yes, specify the county and Taxing District.
  13. Indicate whether this deduction has been requested on the property for the current year by checking "Yes" or "No."
  14. Leave the section for the County Auditor's use blank for now.
  15. Sign the form to certify that the information provided is true and correct. Include the date.
  16. If applicable, have the person authorized by Power of Attorney sign and provide their full resident address.
  17. Make a copy of the completed form for your records.
  18. Submit the form in person or by mail to the County Auditor of the county where the property is located, ensuring it is postmarked before the filing deadline.

Your Questions, Answered

What is the Indiana 43709 form?

The Indiana 43709 form, also known as the Statement of Mortgage or Contract Indebtedness for Deduction from Assessed Valuation, is used by property owners in Indiana to apply for a deduction on their property taxes. This deduction can help reduce the assessed value of the property, potentially lowering the tax burden.

Who is eligible to file the Indiana 43709 form?

Eligibility to file the Indiana 43709 form is limited to residents of Indiana who own property or are contract buyers. The applicant must be the sole legal or equitable owner of the property, or if not, they must indicate their share of interest. Additionally, the property must be located in Indiana.

When should the Indiana 43709 form be filed?

Filing dates vary based on the type of property:

  1. For real property, the form must be filed during the 12 months preceding May 11 of the year in which the deduction is to take effect.
  2. For mobile homes assessed under IC 6-1.1-7, the form should be filed between January 15 and March 2 of the year the deduction is sought.

What information is required to complete the form?

Applicants need to provide several pieces of information, including:

  • Name and address of the applicant.
  • Details about the property, including its assessed value and legal description.
  • Information about the mortgage or contract indebtedness.
  • Confirmation of ownership status and any co-owners.

What happens after the form is submitted?

Once the Indiana 43709 form is submitted, the county auditor will review it. If approved, the deduction will be applied to the property taxes. If there are changes in the property status or ownership, a new application may need to be filed. No further filings are necessary unless such changes occur.

Is there a penalty for providing false information on the form?

Yes, providing false information on the Indiana 43709 form is considered perjury. If convicted, individuals can face legal consequences as outlined by Indiana law. It is crucial to ensure that all information provided is accurate and truthful.

What is the amount of the deduction?

The deduction amount is the lesser of three values: $3,000, one-half of the assessed value of the property, or the balance of the mortgage or contract indebtedness as of the assessment date. This deduction can significantly reduce the taxable value of the property.

Can someone else file the form on behalf of the applicant?

Yes, someone else can file the Indiana 43709 form on behalf of the applicant, but this requires an executed power of attorney or compliance with IC 6-1.1-12-.07. In cases where the property is owned by a husband and wife, only one spouse's signature is needed for filing.

Common mistakes

  1. Missing Filing Dates: Applicants often overlook the specific filing dates for real property and mobile homes. It is crucial to file within the designated time frames to ensure the deduction is effective.

  2. Incorrect Property Type Selection: Some individuals mistakenly select the wrong property type. Ensure you accurately indicate whether the property is real estate or a mobile home.

  3. Incomplete Ownership Information: Failing to provide complete details about ownership can lead to delays. If there are multiple owners, specify each person’s share clearly.

  4. Not Indicating Different Names: If the name on the property record differs from the applicant’s name, this must be indicated. Omitting this information can cause confusion.

  5. Neglecting Other Properties: Applicants sometimes forget to mention ownership of property in other counties. This information is essential for the county auditor.

  6. Overlooking Prior Deductions: If a deduction has already been requested for the current year, it must be noted. Failing to do so can lead to complications.

  7. Incorrect Assessed Values: Providing inaccurate assessed values for the property or mortgage can result in denial of the deduction. Double-check these figures for accuracy.

  8. Signature Issues: The application must be signed by the appropriate parties. Ensure that the signatures match the names on the application and are dated correctly.

  9. Ignoring Power of Attorney Requirements: If someone other than the owner is filing, a power of attorney must be executed. Not providing this can invalidate the application.

  10. Failure to Certify Information: The certification statement must be completed accurately. Missing or incorrect information in this section can lead to serious legal implications.

Documents used along the form

When dealing with property deductions in Indiana, several forms and documents are often required alongside the Indiana 43709 form. Understanding these documents can help streamline the process and ensure compliance with local regulations. Below is a list of commonly used forms and their brief descriptions.

  • Indiana Property Tax Deduction Application: This form is used to apply for various property tax deductions available to homeowners, including the standard homestead deduction.
  • Power of Attorney Form: This document allows one person to authorize another to act on their behalf in legal matters, including signing the Indiana 43709 form if the applicant cannot do so personally.
  • Recorded Contract or Memorandum: A copy of the contract that outlines the terms of the property sale must be submitted if the applicant is a contract buyer. It includes a legal description of the property.
  • County Auditor’s Receipt: After filing the Indiana 43709 form, applicants receive this receipt, which serves as proof that their application has been submitted to the County Auditor.
  • Property Ownership Documents: These may include deeds or titles that prove the applicant's ownership of the property, necessary for verifying eligibility for deductions.
  • Military Service Verification: For applicants who are veterans or active military members, this document confirms their service and may impact their eligibility for certain deductions.
  • Tax Bill or Assessment Notice: This document shows the assessed value of the property and is often required to substantiate claims for deductions.
  • Income Verification Documents: In some cases, proof of income may be needed to qualify for specific deductions, especially for low-income applicants.

By gathering these documents and forms, applicants can better navigate the process of applying for property tax deductions in Indiana. Ensuring that all necessary paperwork is completed accurately can lead to a smoother experience and help avoid delays in processing.

Similar forms

The Indiana 43709 form, known as the Statement of Mortgage or Contract Indebtedness for Deduction from Assessed Valuation, shares similarities with the IRS Form 4506-T, which is used to request a transcript of tax returns. Both forms require detailed information about the applicant and the property or financial situation. While the Indiana form focuses on property taxes and deductions, the IRS form centers around tax records. Each form must be completed accurately to ensure the correct processing of the request, and both can be submitted via mail or in person, emphasizing the importance of timely filing.

Another document akin to the Indiana 43709 is the HUD-1 Settlement Statement. This form is used during real estate transactions to itemize all charges and credits to the buyer and seller. Similar to the Indiana form, the HUD-1 requires thorough documentation of financial obligations related to property. Both documents serve to clarify financial responsibilities, ensuring that all parties understand their debts and rights. The HUD-1 is particularly crucial during the closing process, while the Indiana 43709 focuses on tax deductions related to mortgage indebtedness.

The Indiana 43709 form also resembles the Property Tax Exemption Application. This application is used by property owners to claim exemptions that can reduce their property tax burden. Both documents require detailed information about ownership and property status. They aim to provide financial relief to eligible applicants, emphasizing the importance of accurate information. Filing deadlines are critical for both forms, ensuring that applicants do not miss out on potential savings.

Similar to the Indiana 43709, the Affidavit of Property Value is another important document in property transactions. This affidavit is used to disclose the sale price of a property to the county assessor. Both forms require the applicant to provide specific details about the property and any financial obligations. They serve as essential tools for local governments to assess property values accurately, ensuring fair taxation. Completing these forms correctly is vital to avoid complications in property assessments.

The Indiana 43709 also bears a resemblance to the Indiana Homestead Exemption Application. This application allows homeowners to claim a deduction on their property taxes based on their primary residence. Both forms require applicants to prove their ownership and residency status. They aim to alleviate the financial burden on homeowners, making property ownership more accessible. Timely submission is crucial for both applications to ensure that the deductions are applied in the correct tax year.

Another document that parallels the Indiana 43709 is the Indiana Application for Property Tax Deduction for Disabled Veterans. This application is specifically designed for veterans seeking tax relief due to their service-related disabilities. Like the Indiana 43709, it requires detailed personal information and documentation to support the claim. Both forms highlight the importance of recognizing and assisting those who have served in the military, providing financial support to eligible individuals.

The Indiana 43709 form is also similar to the Indiana Tax Abatement Application, which is used to request a temporary reduction in property taxes for new businesses or improvements. Both documents require detailed financial information and justification for the request. They aim to stimulate economic growth by providing financial incentives to property owners. Timely and accurate submission is essential for both applications to ensure that the benefits are realized within the intended timeframe.

Another comparable document is the Indiana Certificate of Exemption from Sales Tax. This certificate allows qualifying organizations to make tax-exempt purchases. Like the Indiana 43709, it requires specific information about the applicant and the purpose of the exemption. Both forms are designed to reduce financial burdens for eligible entities, ensuring compliance with state regulations. Accurate completion is crucial to avoid any potential issues with tax authorities.

The Indiana 43709 form is also similar to the Indiana Business Personal Property Tax Return. This return is filed by businesses to report personal property owned as of March 1 each year. Both documents require detailed financial information and deadlines for submission. They are essential for local governments to assess property values accurately and ensure fair taxation. Proper filing is critical to avoid penalties or loss of deductions.

Lastly, the Indiana Real Estate Sales Disclosure form is another document that aligns with the Indiana 43709. This form is used during the sale of real estate to disclose pertinent information about the property to potential buyers. Both documents focus on transparency in property transactions, requiring detailed descriptions and disclosures. They aim to protect both buyers and sellers by ensuring that all relevant information is shared before a transaction is completed.

Dos and Don'ts

When filling out the Indiana 43709 form, it's important to follow specific guidelines to ensure your application is processed correctly. Here’s a list of things you should and shouldn’t do:

  • Do file your application in person or by mail with the County Auditor.
  • Do ensure you are a resident of Indiana before applying.
  • Do submit your application during the specified filing periods.
  • Do include accurate information about your property and mortgage.
  • Do sign the application, ensuring all signatures are correct.
  • Do provide a recorded copy of the contract if you are a contract buyer.
  • Do indicate if you own property in other counties in Indiana.
  • Do check the mailing date if you choose to file by mail.
  • Do maintain a copy of your application for your records.
  • Do consult the instructions on the reverse side for additional qualifications.
  • Don't wait until the last minute to file your application.
  • Don't provide false information, as this can lead to legal consequences.
  • Don't forget to include your exact share of interest if you co-own the property.
  • Don't submit an incomplete application; all sections must be filled out.
  • Don't ignore the requirement for a power of attorney if applicable.
  • Don't file if you are not the sole legal or equitable owner without proper documentation.
  • Don't assume that previous filings are still valid; check for changes in property status.
  • Don't neglect to sign the form if you are a husband and wife applying together.
  • Don't forget to verify the address of the mortgagee or contract seller.
  • Don't overlook the importance of the filing date for timely processing.

Misconceptions

Here are four common misconceptions about the Indiana 43709 form, which is used for claiming a deduction from assessed property valuation:

  • Misconception 1: The form can be filed at any time during the year.
  • In reality, there are specific filing periods for the Indiana 43709 form. For real property, it must be filed during the 12 months before May 11 of the year the deduction is to take effect. For mobile homes, the filing window is between January 15 and March 2 of the effective year.

  • Misconception 2: Only homeowners can apply for the deduction.
  • This is not true. Both homeowners and contract buyers are eligible to apply for the deduction. However, contract buyers must provide a recorded copy or memorandum of their contract, including a legal description of the property.

  • Misconception 3: Once filed, the application for deduction remains in effect indefinitely.
  • Actually, the deduction remains effective only until there is a change in the property status or the applicant's circumstances. If any changes occur, a new application must be filed.

  • Misconception 4: Only one spouse needs to sign the application if both spouses own the property.
  • While it is true that only one spouse's signature is required when the property is owned as tenants by the entireties, this does not apply to all ownership situations. If the property is owned jointly with someone other than a spouse, both parties may need to be involved in the application process.

Key takeaways

When filling out and using the Indiana 43709 form, there are several important points to keep in mind:

  • Filing Requirements: Applicants must file the form either in person or by mail with the County Auditor of the county where the property is located. Ensure that the form is submitted during the specified filing periods.
  • Eligibility: Only residents of Indiana can apply for this deduction. The applicant must be the owner or contract buyer of the property.
  • Deduction Amount: The deduction equals $3,000, one-half of the assessed value of the property, or the balance of the mortgage or contract indebtedness, whichever is the least.
  • Signature Requirements: If the property is owned by a husband and wife as tenants by the entireties, only one spouse's signature is required for filing.
  • Documentation: A contract buyer must submit a recorded copy or recorded memorandum of the contract, which includes a legal description, with the first statement filed for this deduction.

Understanding these key aspects can help streamline the process of applying for the deduction and ensure compliance with Indiana's regulations.