Blank Illinois Final Waiver Of Lien PDF Form

Blank Illinois Final Waiver Of Lien PDF Form

The Illinois Final Waiver of Lien form is a crucial document that allows contractors and subcontractors to formally relinquish their right to file a lien against a property once they have been paid for their work. By signing this form, the undersigned acknowledges receipt of payment and affirms that no further claims will be made regarding the labor or materials provided. If you need to complete this important form, click the button below to get started.

The Illinois Final Waiver of Lien form serves as a crucial document in the construction and contracting industry, ensuring that all parties involved are protected from potential disputes regarding payments and claims. This form is primarily utilized by contractors and subcontractors to officially waive their rights to file a mechanics' lien against a property once they have received payment for their work. It includes essential details such as the name of the contractor, the property location, and the scope of work performed. Importantly, the form stipulates the total contract amount, any payments received prior to the final payment, and a declaration that no further claims exist against the property. Additionally, it highlights the inclusion of "extras," which can encompass change orders that may not have been explicitly outlined in the original contract. By signing this document, the undersigned acknowledges receipt of payment and releases any claims to the property, thus providing a level of security for both the contractor and the property owner. The form also requires notarization, adding an extra layer of legitimacy to the waiver. Understanding the nuances of this form is vital for anyone involved in construction projects in Illinois, as it plays a key role in maintaining clear communication and accountability among all parties.

Document Sample

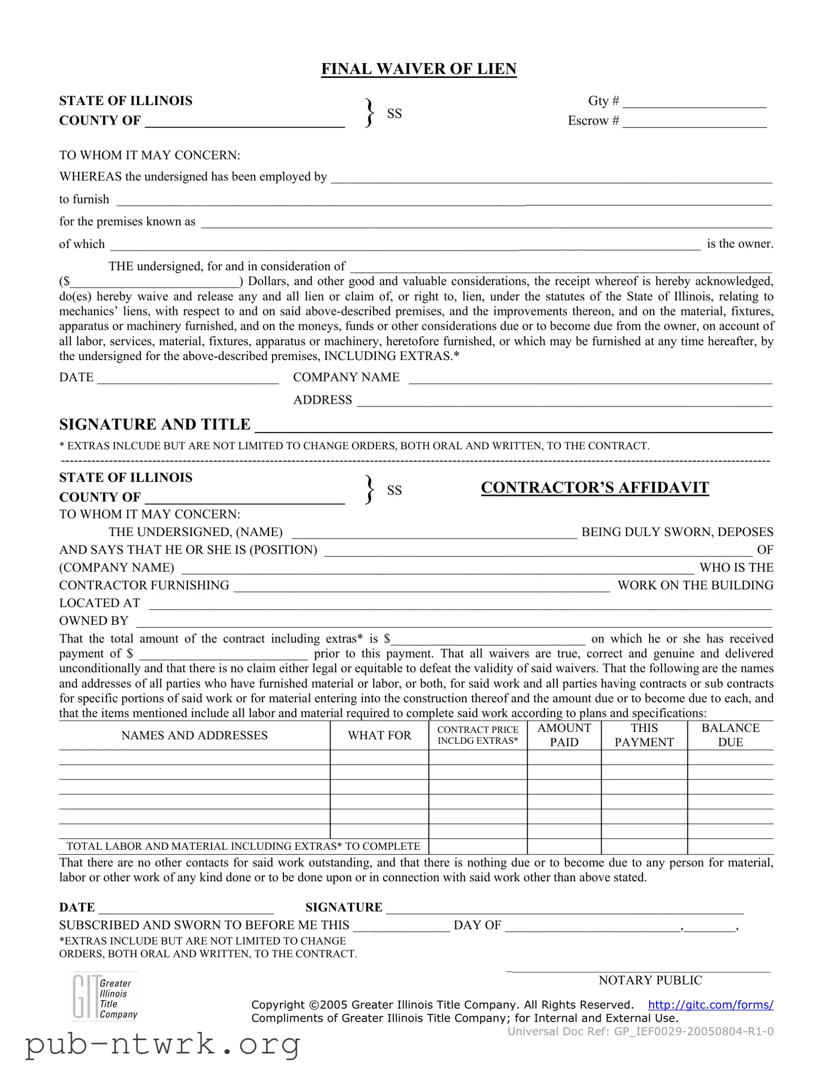
FINAL WAIVER OF LIEN

STATE OF ILLINOIS

} SS

Gty # _____________________

COUNTY OF _____________________________

Escrow # _____________________

TO WHOM IT MAY CONCERN:

WHEREAS the undersigned has been employed by ____________________________________________________________________

to furnish _____________________________________________________________________________________________________

for the premises known as ________________________________________________________________________________________

of which ___________________________________________________________________________________________ is the owner.

THE undersigned, for and in consideration of _________________________________________________________________

($__________________________) Dollars, and other good and valuable considerations, the receipt whereof is hereby acknowledged,

do(es) hereby waive and release any and all lien or claim of, or right to, lien, under the statutes of the State of Illinois, relating to mechanics’ liens, with respect to and on said above-described premises, and the improvements thereon, and on the material, fixtures, apparatus or machinery furnished, and on the moneys, funds or other considerations due or to become due from the owner, on account of all labor, services, material, fixtures, apparatus or machinery, heretofore furnished, or which may be furnished at any time hereafter, by the undersigned for the above-described premises, INCLUDING EXTRAS.*

DATE ____________________________ COMPANY NAME ________________________________________________________

ADDRESS ________________________________________________________________

SIGNATURE AND TITLE _______________________________________________________________

* EXTRAS INLCUDE BUT ARE NOT LIMITED TO CHANGE ORDERS, BOTH ORAL AND WRITTEN, TO THE CONTRACT.

-------------------------------------------------------------------------------------------------------------------------------------------------------------------

STATE OF ILLINOIS

} SS

CONTRACTOR’S AFFIDAVIT

COUNTY OF _____________________________

TO WHOM IT MAY CONCERN:

 

 

THE UNDERSIGNED, (NAME) ____________________________________________ BEING DULY SWORN, DEPOSES

AND SAYS THAT HE OR SHE IS (POSITION) __________________________________________________________________ OF

(COMPANY NAME) _______________________________________________________________________________ WHO IS THE

CONTRACTOR FURNISHING __________________________________________________________ WORK ON THE BUILDING

LOCATED AT ________________________________________________________________________________________________

OWNED BY __________________________________________________________________________________________________

That the total amount of the contract including extras* is $______________________________ on which he or she has received

payment of $ __________________________ prior to this payment. That all waivers are true, correct and genuine and delivered

unconditionally and that there is no claim either legal or equitable to defeat the validity of said waivers. That the following are the names and addresses of all parties who have furnished material or labor, or both, for said work and all parties having contracts or sub contracts for specific portions of said work or for material entering into the construction thereof and the amount due or to become due to each, and that the items mentioned include all labor and material required to complete said work according to plans and specifications:

NAMES AND ADDRESSES

WHAT FOR

CONTRACT PRICE INCLDG EXTRAS*

AMOUNT

PAID

THIS

PAYMENT

BALANCE

DUE

TOTAL LABOR AND MATERIAL INCLUDING EXTRAS* TO COMPLETE

That there are no other contacts for said work outstanding, and that there is nothing due or to become due to any person for material, labor or other work of any kind done or to be done upon or in connection with said work other than above stated.

DATE ___________________________ SIGNATURE _______________________________________________________

SUBSCRIBED AND SWORN TO BEFORE ME THIS _______________ DAY OF ___________________________,________,

*EXTRAS INCLUDE BUT ARE NOT LIMITED TO CHANGE

ORDERS, BOTH ORAL AND WRITTEN, TO THE CONTRACT.

________________________________________________

NOTARY PUBLIC

Copyright ©2005 Greater Illinois Title Company. All Rights Reserved. http://gitc.com/forms/

Compliments of Greater Illinois Title Company; for Internal and External Use.

Universal Doc Ref: GP_IEF0029-20050804-R1-0

File Specifics

Fact Title Fact Description
Purpose The Illinois Final Waiver of Lien form is used to waive and release any claims or liens against a property after payment has been received for work performed or materials supplied.
Governing Law This form is governed by the Illinois Mechanics Lien Act, which outlines the rights and responsibilities of contractors and subcontractors regarding liens on property.
Parties Involved The form requires the signatures of the contractor or subcontractor and may also involve a notary public for verification purposes.
Consideration The waiver is executed in exchange for a specified amount of money or other valuable considerations, which must be acknowledged in the form.
Extras Definition Extras, as defined in the form, include change orders that may be both oral and written, which can affect the total contract amount.

How to Use Illinois Final Waiver Of Lien

Filling out the Illinois Final Waiver of Lien form is an important step in ensuring that all parties are clear about payments made and any claims on the property. After completing the form, you will be able to provide proof of payment and release any lien rights you may have had on the property. This helps maintain transparency in your business dealings.

  1. Begin by entering the County where the work was performed.
  2. Fill in the Escrow Number if applicable.
  3. In the first blank line, write the name of the company or individual you have been employed by.
  4. In the second blank line, describe the services or materials you provided.
  5. In the next blank, write the address of the premises where the work was done.
  6. In the following blank, enter the name of the property owner.
  7. Next, state the amount paid for your services in the designated space.
  8. Write the date you are completing the form.
  9. Fill in your company name in the appropriate section.
  10. Provide your address in the next line.
  11. Sign the form and include your title below your signature.
  12. In the contractor’s affidavit section, fill in your name and position.
  13. Write your company name in the next blank line.
  14. Describe the work performed and the location of the building.
  15. Enter the total contract amount including any extras.
  16. State the amount you have received prior to this payment.
  17. List the names and addresses of all parties involved in the work.
  18. Complete the section regarding the amounts paid and any balance due.
  19. Confirm that there are no other outstanding contracts related to this work.
  20. Finally, sign and date the affidavit, and have it notarized.

Your Questions, Answered

  1. What is the Illinois Final Waiver of Lien form?

    The Illinois Final Waiver of Lien form is a legal document used in construction and contracting. It serves as a formal declaration that a contractor or subcontractor has been paid in full for their services and materials provided on a specific project. By signing this waiver, the contractor relinquishes any future claims or liens against the property related to that project.

  2. When should I use the Final Waiver of Lien form?

    This form should be used at the end of a construction project when all payments have been made. It is essential for contractors and subcontractors to provide this waiver to the property owner or general contractor to confirm that they have received full payment. Using this form helps protect the property owner from potential future lien claims related to unpaid work.

  3. What information is required to complete the form?

    To complete the Illinois Final Waiver of Lien form, you will need to provide the following information:

    • The name and address of the contractor or subcontractor.
    • The name of the property owner.
    • A description of the work or materials provided.
    • The total contract amount, including any extras.
    • The amount received prior to signing the waiver.
    • The date of the waiver.
  4. What are "extras" in the context of this form?

    “Extras” refer to any additional work or materials that were not included in the original contract. This can include change orders that were agreed upon either orally or in writing. It is important to note that these extras must be accounted for in the total amount of the contract when completing the waiver.

  5. Is the Final Waiver of Lien form legally binding?

    Yes, once signed and notarized, the Illinois Final Waiver of Lien form is legally binding. It effectively releases the contractor's right to file a lien against the property for the work completed. This means that if the waiver is properly executed, the contractor cannot later claim they are owed money for the work specified in the waiver.

  6. What happens if I don't use the Final Waiver of Lien form?

    If you do not use the Final Waiver of Lien form, you risk leaving the door open for potential lien claims. Contractors or subcontractors may assert claims against the property for unpaid work, even after the project is completed. This can lead to legal disputes and complications for property owners, so it's advisable to ensure all parties involved sign the waiver upon final payment.

Common mistakes

  1. Incomplete Information: Failing to provide all required details, such as the owner's name or the specific premises, can render the waiver invalid.

  2. Incorrect Payment Amount: Entering an incorrect dollar amount for the consideration can lead to disputes and may invalidate the waiver.

  3. Missing Signatures: Not signing the form or omitting the title of the signer can cause issues. All required signatures must be present.

  4. Neglecting Extras: Failing to acknowledge extras, such as change orders, can result in incomplete waivers. All relevant costs must be included.

  5. Not Notarizing: The affidavit must be notarized. Skipping this step can lead to questions about the authenticity of the document.

  6. Incorrect Contractor Information: Providing inaccurate information about the contractor or their position can create confusion and may lead to legal challenges.

Documents used along the form

The Illinois Final Waiver of Lien form is often accompanied by several other important documents that facilitate the completion of construction projects and ensure proper financial transactions. Below is a list of these documents, each with a brief description of its purpose.

  • Contractor’s Affidavit: This document is a sworn statement from the contractor confirming the total contract amount, payments received, and that all waivers are valid. It also lists all parties involved in the project who have provided labor or materials.
  • Preliminary Notice: A notice that informs property owners and general contractors that a subcontractor or supplier has been hired. It helps protect the rights of those who may file a lien if not paid.
  • Mechanics Lien: A legal claim against a property for unpaid work or materials. It can be filed by contractors, subcontractors, and suppliers to secure payment for services rendered.
  • Release of Lien: This document is used to formally release a lien that has been placed on a property once payment has been received. It ensures that the property can be sold or refinanced without issues.
  • Change Order: A document that outlines changes to the original construction contract, including adjustments to the scope of work and costs. This may include both written and oral agreements.
  • Payment Application: A request submitted by a contractor to the property owner or general contractor for payment for work completed. This document typically includes details of the work performed and the amount due.
  • Final Invoice: The last bill issued by a contractor or supplier, detailing all charges for completed work and materials. It serves as a request for final payment before the project is officially closed.
  • Certificate of Insurance: A document that provides proof of insurance coverage for the contractor or subcontractor. It protects property owners by ensuring that workers are insured against accidents or damages that may occur during the project.

These documents collectively help ensure transparency, protect the rights of those involved in construction projects, and facilitate smooth financial transactions. Properly managing these forms can prevent disputes and promote successful project completion.

Similar forms

The Illinois Final Waiver of Lien form shares similarities with the Contractor’s Affidavit, which is another important document in the construction industry. Like the waiver, the affidavit serves to affirm that all payments have been made for the work completed. It requires the contractor to declare the total amount of the contract, including any extras, and disclose the payments received thus far. This transparency helps to protect the property owner from potential claims from subcontractors or suppliers who may not have been paid, ensuring that everyone involved in the project has been compensated appropriately.

Another document that resembles the Illinois Final Waiver of Lien is the Partial Waiver of Lien. While the final waiver releases all claims against a property, a partial waiver only covers a specific portion of the work completed. This is particularly useful when payments are made in stages. By signing a partial waiver, the contractor acknowledges receipt of payment for the work done up to that point, while still retaining the right to claim for any remaining work. This document helps maintain clarity and accountability throughout the construction process.

The Release of Lien is also akin to the Illinois Final Waiver of Lien. This document functions similarly by formally relinquishing any lien rights that a contractor or subcontractor may have against a property. It is often used after payment has been received, ensuring that the property owner is protected from future claims related to unpaid work. Both documents aim to provide peace of mind to property owners, confirming that no further financial obligations exist concerning the work performed.

Lastly, the Notice of Intent to Lien is another related document. While it does not waive any rights, it serves as a precursor to filing a lien. This notice informs the property owner that a contractor or supplier intends to file a lien if payment is not received. It is a critical step in the lien process, alerting property owners to potential claims before they escalate. Understanding the role of this notice can help property owners take proactive measures to resolve payment disputes before they lead to formal lien filings.

Dos and Don'ts

When filling out the Illinois Final Waiver of Lien form, it’s important to get it right. Here’s a list of things to do and avoid:

  • Do provide accurate company information, including the name and address.
  • Do clearly state the total amount of the contract, including any extras.
  • Do sign and date the form to validate it.
  • Do ensure all parties involved in the project are listed correctly.
  • Don't leave any sections blank; complete all required fields.
  • Don't forget to include any change orders or extras that apply to the contract.

Completing this form accurately is essential to protect your rights and interests. Take the time to review your entries before submission.

Misconceptions

Misconceptions about the Illinois Final Waiver of Lien form can lead to confusion for contractors and property owners. Here are seven common misunderstandings:

  • It is a guarantee of payment. Many believe that signing the waiver guarantees they will receive payment. However, it only acknowledges that a payment has been made for work completed.
  • It releases all claims forever. Some think that once the waiver is signed, they cannot make any future claims. In reality, it only waives claims related to the specific work and payment referenced in the document.
  • It is not necessary if a contract exists. There is a misconception that if a contract is in place, a waiver is unnecessary. However, waivers are important to protect against future lien claims.
  • It applies to all subcontractors automatically. People often assume that signing one waiver covers all subcontractors. Each subcontractor must provide their own waiver to ensure protection against liens.
  • It can be signed without full payment. Some believe they can sign the waiver even if they haven't received full payment. The waiver should only be signed after confirming that all payments have been made.
  • It is the same as a preliminary notice. There is confusion between a waiver and a preliminary notice. A preliminary notice is a notification of work being done, while a waiver is a release of lien rights after payment.
  • It is a standard form with no need for customization. Many think the waiver is a one-size-fits-all document. In fact, it may need to be tailored to reflect specific details about the project and payment.

Key takeaways

When filling out and using the Illinois Final Waiver of Lien form, keep these key takeaways in mind:

  • Understand the Purpose: This form is used to waive any lien rights on a property after payment has been received. It protects the property owner from future claims related to unpaid work.
  • Complete All Sections: Ensure that every section of the form is filled out accurately. This includes details about the contractor, the owner, and the work performed.
  • Payment Amount: Clearly state the amount received for the work. This is crucial for validating the waiver.
  • Extras Included: Be aware that extras, such as change orders, should be included in the waiver. This ensures that all aspects of the work are covered.
  • Affidavit Requirement: The contractor must sign an affidavit confirming the accuracy of the information provided. This adds a layer of protection for all parties involved.
  • Notarization: The form must be notarized to be legally binding. This step is essential for the waiver to be recognized by courts and title companies.

Following these guidelines can help ensure that the waiver is effective and protects your interests in the transaction.