Blank Illinois Apc 430 PDF Form

Blank Illinois Apc 430 PDF Form

The Illinois APC 430 form is a notification required for demolition and renovation activities that may involve asbestos. This form ensures compliance with environmental regulations and helps protect public health. To complete your notification, fill out the form by clicking the button below.

The Illinois APC 430 form serves as a crucial tool for managing asbestos during demolition and renovation projects. This form is required by the Illinois Environmental Protection Agency and must be completed accurately to ensure compliance with federal regulations regarding asbestos handling. It covers essential information, including the type of notification—whether original, revised, or canceled—and the specific operation being conducted, such as renovation or demolition. Key details about the facility, including its address, size, and age, must be provided, along with information about the presence of asbestos. The form also requires the scheduling of demolition and asbestos removal dates, as well as the identification of contractors involved in the process. Furthermore, it outlines the procedures for detecting asbestos and managing unexpected findings. Completing this form not only aids in regulatory compliance but also helps protect the health and safety of workers and the surrounding community. A filing fee is necessary for the initial notification, and failure to include this payment may result in improper filing. Overall, the Illinois APC 430 form is an essential document that facilitates safe and responsible asbestos management in construction and renovation projects.

Document Sample

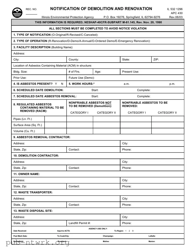
REC. NO. NOTIFICATION OF DEMOLITION AND RENOVATION

IL 532 1296 APC 430

Illinois Environmental Protection Agency

P.O. Box 19276, Springfield, IL 62794-9276

Rev.06/03

THIS INFORMATION IS REQUIRED; NESHAP-40CFR-SUBPART M-61.145, Rev. Nov. 20, 1990

ALL SECTIONS MUST BE COMPLETED TO AVOID NOTICE VIOLATION

1.TYPE OF NOTIFICATION (O-Original/R-Revised/C-Canceled):

2.TYPE OF OPERATION (R-Renovation/D-Demo/A-Annual/O-Ordered Demo/E-Emergency Renovation):

3.FACILITY DESCRIPTION (Building Name):

Address:

City:

 

County:

 

 

State:

 

ZIP:

 

 

 

 

 

 

 

Location of Asbestos Containing Material (ACM) in structure:

 

 

 

 

 

 

 

 

 

 

 

 

Bldg. Size:

 

# of Flrs.

 

Age:

Present Use:

 

 

 

 

 

 

 

 

 

 

Prior Use:

 

Future Use (Demo):

 

 

 

 

 

 

 

 

 

 

4. IS ASBESTOS PRESENT?

Y N

5. WORK HOURS:*

a.m.

 

p.m.

 

 

 

 

 

6. SCHEDULED DATE DEMOLITION:

 

Start:

Complete:

 

 

 

 

7. SCHEDULED DATE ASBESTOS REMOVAL:

Start:

Complete:

 

 

 

 

 

8. REGULATED ASBESTOS

 

NONFRIABLE ASBESTOS NOT

NONFRIABLE ASBESTOS TO BE

 

TO BE REMOVED (Demolition):

REMOVED:

 

 

CONTAINING MATERIAL TO BE

 

 

 

 

 

 

 

 

REMOVED (RACM):

 

CATEGORY I

 

CATEGORY II

CATEGORY I

 

CATEGORY II

 

 

 

 

 

 

 

 

 

 

 

 

 

 

Pipes (Ln. Ft.)

 

 

 

 

 

 

 

 

 

 

 

 

 

 

 

 

 

Surface Area (Sq. Ft.)

 

 

 

 

 

 

 

 

 

 

 

 

 

 

 

 

 

Volume (Cu. Ft.)

 

 

 

 

 

 

 

 

 

 

 

 

 

 

 

 

9. ASBESTOS REMOVAL CONTRACTOR:

 

 

 

 

 

 

 

 

 

 

 

 

 

Address:

 

 

 

 

City:

 

 

 

 

 

 

 

 

 

 

State, Zip:

 

Contact:

 

 

Phone:

 

 

 

 

 

 

 

 

 

10. DEMOLITION CONTRACTOR:

 

 

 

 

 

 

 

 

 

 

 

 

 

 

Address:

 

 

 

 

City:

 

 

 

 

 

 

 

 

 

 

State, Zip:

 

Contact:

 

 

Phone:

 

 

 

 

 

 

 

 

 

 

11. OWNER NAME:

 

 

 

 

 

 

 

 

 

 

 

 

 

 

 

Address:

 

 

 

 

City:

 

 

 

 

 

 

 

 

 

 

State, Zip:

 

Contact:

 

 

Phone:

 

 

 

 

 

 

 

 

 

 

12. WASTE TRANSPORTER:

 

 

 

 

 

 

 

 

 

 

 

 

 

 

 

Address:

 

 

 

 

City:

 

 

 

 

 

 

 

 

 

 

State, Zip:

 

Contact:

 

 

Phone:

 

 

 

 

 

 

 

 

 

 

13. WASTE DISPOSAL SITE:

 

 

 

 

 

 

 

 

 

 

 

 

 

 

 

Address:

 

 

 

 

City:

 

 

 

 

 

 

 

 

State, Zip:

 

Landfill Permit #:

Phone:

 

 

 

 

 

 

 

 

 

 

 

 

 

 

-AGENCY USE ONLY-

 

 

 

Date Received:

Input to ACTS:

 

To Region 1 2 3

 

 

 

 

 

 

 

 

Post Mark Date:

To Cook/City:

 

Champaign:

 

LaSalle:

 

 

 

 

 

 

 

Springfield:

Rockford:

 

 

Moline:

 

Marion:

 

 

 

 

 

 

 

 

 

14.PROCEDURE, INCLUDING ANALYTICAL METHOD, USED TO DETECT THE PRESENCE OF ASBESTOS.

ILLINOIS LICENSE NUMBER OF INSPECTOR: NAME OF ANALYTICAL TESTING LABORATORY:

15.DESCRIPTION OF PLANNED DEMOLITION OR RENOVATION WORK:

METHODS TO BE EMPLOYED INCLUDING DEMOLITION OR RENOVATION TECHNIQUES.

16.DESCRIPTION OF WORK PRACTICES AND ENGINEERING CONTROLS TO BE USED TO PREVENT EMISSIONS AT THE DEMOLITION OR RENOVATION SITE:

17. IS DEMOLITION ORDERED BY A GOVERNMENTAL AGENCY?

Y N (If Yes, a signed copy of Order must be attached.)

 

 

Governmental representative ordering the activity:

 

 

 

 

Title:

Date of Order:

Ordered Demolition Date:

18.FOR EMERGENCY RENOVATIONS: Date and Hour of Emergency:

Description of the Sudden, Unexpected Event (e.g. structure in danger of eminent collapse):

19.DESCRIPTION OF PROCEDURES TO BE FOLLOWED IN THE EVENT THAT UNEXPECTED ASBESTOS IS FOUND OR PREVIOUSLY NONFRIABLE ASBESTOS MATERIAL BECOMES CRUMBLED, PULVERIZED, OR REDUCED TO POWDER.

20.I CERTIFY THAT AT LEAST ONE REPRESENTATIVE, TRAINED IN THE PROVISIONS OF 40 CFR PART 61, SUBPART M, SHALL BE ON-SITE DURING DEMOLITION OR RENOVATION, HAVING IN HIS OR HER POSSESSION, FOR INSPECTION, EVIDENCE THAT THE REQUISITE TRAINING HAS BEEN ACCOMPLISHED.

I CERTIFY THE ABOVE INFORMATION IS CORRECT.

Signature of Owner/Operator Date

(Original Signature Only, Photocopy Not Valid)

A FILING FEE OF $150 MUST BE PAID WITH EACH INITIAL 10-WORKING DAY NOTIFICATION REQUIRED BY THE ASBESTOS NESHAP. MAKE CHECKS PAYABLE TO ILLINOIS EPA AND MAKE NOTATION THAT IT IS FOR THE 10-WORKING DAY NOTIFICATION FEE. CASH AND CREDIT CARDS ARE NOT ACCEPTABLE. IF THE FEE IS NOT SUBMITTED WITH THE NOTIFICATION, THE NOTIFICATION WILL BE DEEMED IMPROPERLY FILED.

*Not required under NESHAPS.

Mail this form to: IL Environmental Protection Agency, Attn: Asbestos Unit, P.O. Box 19276, Springfield, IL 62794-9276

File Specifics

Fact Name Details
Governing Law The Illinois APC 430 form is governed by the National Emission Standards for Hazardous Air Pollutants (NESHAP), specifically 40 CFR Subpart M, Section 61.145.
Purpose This form serves to notify the Illinois Environmental Protection Agency (EPA) of planned demolition or renovation activities that may involve asbestos.
Required Sections All sections of the form must be completed to avoid potential violations and ensure compliance with state regulations.
Notification Types The form allows for three types of notifications: Original (O), Revised (R), and Canceled (C).
Asbestos Presence It is crucial to indicate whether asbestos is present in the structure. This affects the demolition and renovation process significantly.
Filing Fee A filing fee of $150 must accompany the initial notification. If the fee is not submitted, the notification will be considered improperly filed.
Submission Address The completed form must be mailed to the Illinois Environmental Protection Agency, specifically to the Asbestos Unit at the designated P.O. Box in Springfield.

How to Use Illinois Apc 430

Completing the Illinois APC 430 form is essential for notifying the appropriate authorities about demolition or renovation activities involving asbestos. Follow the steps below to ensure that all necessary information is accurately filled out and submitted.

  1. Type of Notification: Indicate whether this is an Original (O), Revised (R), or Canceled (C) notification.
  2. Type of Operation: Choose the operation type: Renovation (R), Demolition (D), Annual (A), Ordered Demolition (O), or Emergency Renovation (E).
  3. Facility Description: Provide the building name, address, city, county, state, ZIP code, location of asbestos-containing material, building size, number of floors, age, present use, prior use, and future use (for demolition).
  4. Is Asbestos Present? Answer Yes (Y) or No (N).
  5. Work Hours: Specify the work hours by indicating a.m. or p.m.
  6. Scheduled Date of Demolition: Enter the start and completion dates.
  7. Scheduled Date of Asbestos Removal: Enter the start and completion dates.
  8. Regulated Asbestos: Provide details on non-friable and friable asbestos to be removed, including categories, pipe lengths, surface areas, and volumes.
  9. Asbestos Removal Contractor: Fill in the contractor’s name, address, city, state, ZIP code, contact person, and phone number.
  10. Demolition Contractor: Provide the contractor’s name, address, city, state, ZIP code, contact person, and phone number.
  11. Owner Name: Include the owner's name, address, city, state, ZIP code, contact person, and phone number.
  12. Waste Transporter: Fill in the transporter’s name, address, city, state, ZIP code, contact person, and phone number.
  13. Waste Disposal Site: Provide the site’s address, city, state, ZIP code, landfill permit number, and phone number.
  14. Procedure for Asbestos Detection: Describe the method used to detect asbestos and include the Illinois license number of the inspector and the name of the analytical testing laboratory.
  15. Description of Planned Work: Outline the planned demolition or renovation work and the methods to be employed.
  16. Description of Work Practices: Explain the practices and engineering controls to prevent emissions during the project.
  17. Ordered Demolition: Indicate whether demolition is ordered by a governmental agency (Yes or No). If Yes, attach a signed copy of the order and provide the representative's name, title, date of the order, and ordered demolition date.
  18. Emergency Renovations: If applicable, provide the date and hour of the emergency and describe the unexpected event.
  19. Description of Procedures: Outline the procedures to follow if unexpected asbestos is found or if non-friable asbestos becomes damaged.
  20. Certification: Sign and date the form, certifying that a trained representative will be on-site during demolition or renovation.

Once you have completed the form, ensure that the filing fee of $150 is included. Make checks payable to the Illinois EPA, noting that it is for the 10-working day notification fee. Send the completed form and payment to the Illinois Environmental Protection Agency, Attn: Asbestos Unit, P.O. Box 19276, Springfield, IL 62794-9276.

Your Questions, Answered

What is the Illinois APC 430 form used for?

The Illinois APC 430 form is a notification document required for demolition and renovation activities that may involve asbestos. It helps ensure compliance with federal regulations regarding asbestos management. By filling out this form, property owners and contractors inform the Illinois Environmental Protection Agency (IEPA) about their plans, including the presence of asbestos, scheduled dates for work, and details about contractors involved. This information is crucial for protecting public health and the environment during construction activities.

Who needs to submit the APC 430 form?

Anyone planning to demolish or renovate a building that may contain asbestos must submit the APC 430 form. This includes property owners, contractors, and any entities involved in the renovation or demolition process. If asbestos is present in the building, it is especially important to notify the IEPA, as there are specific regulations that must be followed to ensure safe handling and disposal of asbestos-containing materials.

What information is required on the form?

The APC 430 form requires a variety of information, including:

  1. Type of notification (original, revised, or canceled).
  2. Type of operation (renovation, demolition, annual, etc.).
  3. Facility description, including the building name, address, and present and future use.
  4. Details about asbestos presence and removal schedules.
  5. Information about contractors and waste disposal sites.

Completing all sections accurately is essential to avoid violations and ensure compliance with regulations.

Is there a fee associated with filing the APC 430 form?

Yes, there is a filing fee of $150 that must accompany each initial notification. This fee is required by the Asbestos NESHAP regulations. When submitting the form, make sure to include a check made out to the Illinois EPA, noting that it is for the 10-working day notification fee. Be aware that cash and credit cards are not accepted. If the fee is not included, the notification will be considered improperly filed, which could lead to delays or penalties.

Common mistakes

  1. Incomplete Sections: Failing to fill out all sections of the APC 430 form can lead to delays and potential violations. Each section is mandatory, and missing information may result in the form being deemed improperly filed.

  2. Incorrect Type of Notification: Selecting the wrong type of notification (O for Original, R for Revised, C for Canceled) can cause confusion and miscommunication. Ensure the correct option is marked based on the situation.

  3. Misidentifying Asbestos Presence: Indicating whether asbestos is present requires careful consideration. A simple "yes" or "no" answer can have significant implications for safety and compliance.

  4. Omitting Contractor Information: Failing to provide accurate details for the asbestos removal contractor and demolition contractor can lead to issues in coordination and accountability. Ensure all contact information is complete and correct.

  5. Neglecting the Filing Fee: Not including the required $150 filing fee with the notification will result in the form being improperly filed. This fee must be paid by check, and cash or credit cards are not accepted.

Documents used along the form

The Illinois APC 430 form is a critical document for notifying authorities about demolition and renovation activities, particularly regarding asbestos management. Along with this form, several other documents are commonly used to ensure compliance with state and federal regulations. Below is a list of these documents, each serving a specific purpose in the process.

  • Asbestos Inspection Report: This document details the findings of an asbestos inspection conducted prior to any renovation or demolition. It identifies the presence, location, and condition of asbestos-containing materials (ACMs) in the building.
  • Asbestos Management Plan: This plan outlines how asbestos will be managed during renovation or demolition. It includes procedures for handling, removal, and disposal of ACMs to minimize exposure risks.
  • Demolition Permit: Required by local authorities, this permit grants permission to demolish a structure. It ensures that the demolition complies with local laws and safety regulations.
  • Waste Transporter Notification: This document provides information about the company responsible for transporting asbestos waste. It ensures that the transporter is licensed and follows the necessary regulations.
  • Landfill Permit: If asbestos waste is to be disposed of in a landfill, this permit confirms that the landfill is authorized to accept asbestos materials, adhering to environmental regulations.
  • Emergency Response Plan: This plan outlines procedures to follow in case unexpected asbestos is discovered during renovation or demolition. It ensures that workers can respond quickly and safely to potential hazards.
  • Contractor Certifications: These documents verify that the contractors involved in the demolition or renovation are trained and certified in asbestos handling and removal, ensuring compliance with safety standards.

Utilizing these documents alongside the Illinois APC 430 form helps ensure that all necessary precautions are taken during renovation or demolition projects. This proactive approach protects the health of workers and the surrounding community while maintaining compliance with legal requirements.

Similar forms

The Illinois APC 430 form is similar to the EPA Notification of Intent to Demolish or Renovate form. Both documents are essential for compliance with federal regulations regarding asbestos management. They require detailed information about the facility, including its location, the presence of asbestos, and the scheduled dates for demolition or renovation. Each form mandates that the contractor provides a thorough description of work practices and engineering controls to prevent asbestos emissions, ensuring that safety protocols are followed during the project.

Another comparable document is the Asbestos Abatement Project Notification form. This form serves a similar purpose by notifying regulatory agencies about planned asbestos removal activities. Like the APC 430, it collects information on the type of operation, the presence of asbestos, and the contractors involved. It also emphasizes the importance of having trained personnel on-site during the abatement process, aligning with the requirements set forth in the Illinois APC 430 form.

The Demolition Permit Application is yet another document that shares similarities with the Illinois APC 430 form. This application is often required by local jurisdictions before demolition work can commence. Both documents necessitate the disclosure of the facility's details and the nature of the work to be performed. Additionally, they may require information about waste disposal methods and the handling of hazardous materials, ensuring that all safety and regulatory measures are adhered to during demolition activities.

The Notification of Asbestos-Containing Materials form also bears resemblance to the Illinois APC 430 form. This document is used to inform relevant authorities about the presence of asbestos in a building prior to any renovation or demolition. It requires similar information regarding the location and quantity of asbestos, as well as the planned methods for removal or containment. Both forms aim to protect public health by ensuring that all necessary precautions are taken when dealing with asbestos.

The State-Specific Asbestos Notification form is another document that aligns closely with the Illinois APC 430. Each state may have its own version of an asbestos notification form, but they typically require the same essential information, such as facility details, contractor information, and the presence of asbestos. These forms help ensure that state regulations are met and that appropriate measures are taken to manage asbestos safely during renovation or demolition projects.

Finally, the Hazardous Waste Manifest is similar in that it documents the transportation of hazardous materials, including asbestos waste. While the Illinois APC 430 focuses on the notification of demolition and renovation activities, the Hazardous Waste Manifest tracks the movement of asbestos-containing materials to disposal sites. Both documents emphasize the importance of proper handling and disposal practices to protect public health and the environment, ensuring that all relevant regulations are followed throughout the process.

Dos and Don'ts

When filling out the Illinois APC 430 form, it is crucial to follow specific guidelines to ensure accuracy and compliance. Below is a list of things to do and avoid during this process.

  • Do ensure that all sections of the form are completed. Incomplete forms may lead to violations.
  • Do use clear and legible handwriting or type the information to avoid misinterpretation.
  • Do double-check the scheduled dates for demolition and asbestos removal to ensure they are accurate.
  • Do attach any required documentation, such as a signed copy of an order if demolition is mandated by a governmental agency.
  • Do include the correct fee of $150 with your submission, as failure to do so may result in improper filing.
  • Don't leave any sections blank. Every part of the form must be filled out to avoid delays.
  • Don't submit a photocopy of the signature; only the original signature is valid.
  • Don't forget to provide contact information for all parties involved, including the owner and contractors.
  • Don't use cash or credit cards for the filing fee; checks must be made out to the Illinois EPA.

By adhering to these guidelines, individuals can help ensure that their submission is processed smoothly and efficiently.

Misconceptions

Understanding the Illinois APC 430 form is crucial for anyone involved in demolition or renovation projects that may involve asbestos. However, several misconceptions exist regarding this form. Here are eight common misunderstandings:

  • All notifications are the same. Many believe that all notifications for demolition or renovation are identical. In reality, the APC 430 form has specific sections tailored to the type of operation, whether it is a renovation, demolition, or emergency situation.
  • Asbestos presence is optional to report. Some individuals think they can omit information about asbestos. However, the form explicitly requires a declaration of whether asbestos is present, as this affects safety and regulatory compliance.
  • Filing fees can be paid later. A common misconception is that the filing fee can be submitted after the notification. In fact, the fee must accompany the notification; otherwise, it is considered improperly filed.
  • Only the owner needs to sign. Some assume that only the property owner needs to sign the form. However, the signature of the operator is also required, ensuring accountability from all parties involved.
  • Emergency renovations do not require notification. Many believe that in emergencies, notifications are unnecessary. This is incorrect; even emergency renovations require the completion of the APC 430 form to ensure compliance with regulations.
  • All asbestos must be removed before demolition. There is a misconception that all asbestos must be removed prior to any demolition. The form allows for non-friable asbestos to remain under certain conditions, provided it is properly documented.
  • The form can be submitted via email. Some people think they can submit the APC 430 form electronically. However, the form must be mailed to the Illinois Environmental Protection Agency, as electronic submissions are not accepted.
  • Only one copy of the form is needed. It is often assumed that a single copy of the form is sufficient. In reality, multiple copies may be required for different agencies or stakeholders involved in the project.

Addressing these misconceptions can help ensure compliance with environmental regulations and promote safety during renovation and demolition activities.

Key takeaways

Filling out the Illinois APC 430 form is an important step for anyone involved in demolition or renovation projects that may involve asbestos. Here are some key takeaways to keep in mind:

  • Complete All Sections: Ensure every section of the form is filled out. Incomplete forms may lead to a notice of violation.
  • Type of Notification: Indicate whether the notification is original, revised, or canceled. This helps keep records accurate.
  • Facility Details: Provide a thorough description of the facility, including its address, size, and current and past uses.
  • Asbestos Presence: Clearly indicate whether asbestos is present in the building. This is crucial for safety and regulatory compliance.
  • Work Hours: Specify the hours during which the work will take place. This information is essential for scheduling inspections and notifications.
  • Scheduled Dates: Fill in the start and completion dates for both demolition and asbestos removal. This allows for proper planning and coordination.
  • Contractor Information: Include the contact details for all contractors involved, including asbestos removal and demolition contractors.
  • Waste Management: Provide information about the waste transporter and disposal site. This ensures proper handling of hazardous materials.
  • Emergency Procedures: Outline procedures for unexpected asbestos discovery or if non-friable asbestos becomes damaged during the project.

Following these guidelines will help ensure that the APC 430 form is completed accurately and in compliance with Illinois regulations. Proper preparation can facilitate a smoother process and contribute to a safer working environment.