Blank Georgia Notification PDF Form

Blank Georgia Notification PDF Form

The Georgia Project Notification Form is a crucial document for anyone involved in asbestos renovation, encapsulation, or demolition projects. This form ensures compliance with state regulations by providing necessary details about the project, including the type of notice, site information, and contractor details. For a smooth process, it's essential to fill out the form completely, so don't hesitate to start by clicking the button below.

The Georgia Project Notification Form serves as a critical tool for managing asbestos-related activities, ensuring compliance with state regulations during renovation, encapsulation, or demolition projects. This form requires detailed information, including the type of notice being submitted—whether it is an original or a revision—and the nature of the project, such as renovation or demolition. Site-specific details are essential, encompassing the project name, address, and characteristics of the building involved, like its size and age. Additionally, the form mandates the identification of contractors responsible for asbestos removal or demolition, along with their licensing information. It also inquires about the presence of asbestos-containing materials (ACM), necessitating an inspection by an accredited professional. Furthermore, it outlines work schedules, including start and end dates for abatement or demolition activities, while emphasizing the importance of advance notification. The form includes sections for calculating fees based on the amount and type of ACM, ensuring that all financial obligations are met. Lastly, it requires certification from the responsible parties, affirming that trained individuals will oversee the project, thereby reinforcing safety and regulatory compliance throughout the process.

Document Sample

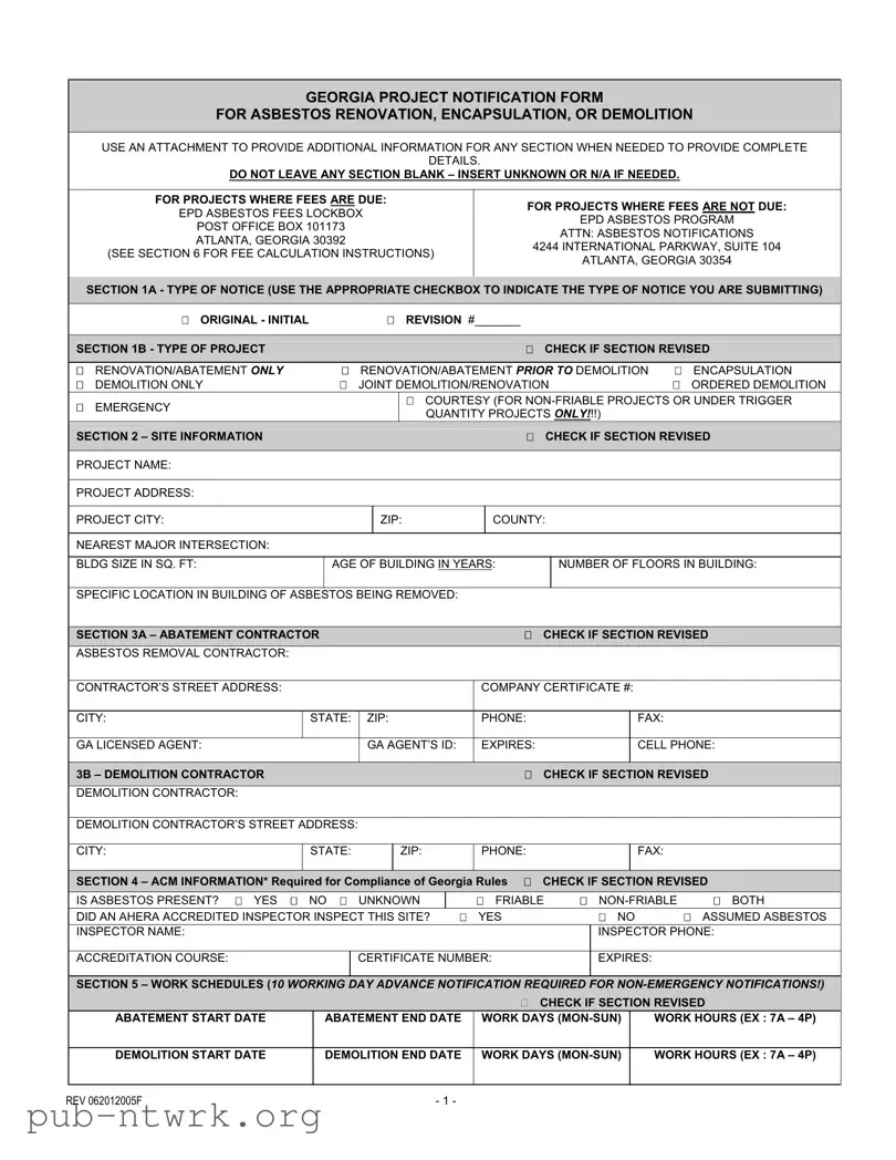
GEORGIA PROJECT NOTIFICATION FORM

FOR ASBESTOS RENOVATION, ENCAPSULATION, OR DEMOLITION

USE AN ATTACHMENT TO PROVIDE ADDITIONAL INFORMATION FOR ANY SECTION WHEN NEEDED TO PROVIDE COMPLETE

DETAILS.

DO NOT LEAVE ANY SECTION BLANK – INSERT UNKNOWN OR N/A IF NEEDED.

FOR PROJECTS WHERE FEES ARE DUE:

EPD ASBESTOS FEES LOCKBOX

POST OFFICE BOX 101173

ATLANTA, GEORGIA 30392

(SEE SECTION 6 FOR FEE CALCULATION INSTRUCTIONS)

FOR PROJECTS WHERE FEES ARE NOT DUE:

EPD ASBESTOS PROGRAM

ATTN: ASBESTOS NOTIFICATIONS

4244 INTERNATIONAL PARKWAY, SUITE 104

ATLANTA, GEORGIA 30354

SECTION 1A - TYPE OF NOTICE (USE THE APPROPRIATE CHECKBOX TO INDICATE THE TYPE OF NOTICE YOU ARE SUBMITTING)

 

 

ORIGINAL - INITIAL

 

 

REVISION #_______

 

 

 

 

 

 

 

 

 

 

 

 

 

 

 

 

 

SECTION 1B - TYPE OF PROJECT

 

 

 

 

 

 

฀ CHECK IF SECTION REVISED

 

 

 

 

 

 

 

 

 

 

 

 

 

 

 

RENOVATION/ABATEMENT ONLY

RENOVATION/ABATEMENT PRIOR TO DEMOLITION

ENCAPSULATION

 

DEMOLITION ONLY

JOINT DEMOLITION/RENOVATION

 

 

ORDERED DEMOLITION

 

EMERGENCY

 

 

 

 

 

 

COURTESY (FOR NON-FRIABLE PROJECTS OR UNDER TRIGGER

 

 

 

 

 

 

 

QUANTITY PROJECTS ONLY!!!)

 

 

 

 

 

 

 

 

 

 

 

 

 

 

SECTION 2 – SITE INFORMATION

 

 

 

 

 

 

฀ CHECK IF SECTION REVISED

 

 

 

 

 

 

 

 

 

 

 

 

 

 

 

 

PROJECT NAME:

 

 

 

 

 

 

 

 

 

 

 

 

 

 

 

 

 

 

 

 

 

 

 

 

 

 

 

 

 

PROJECT ADDRESS:

 

 

 

 

 

 

 

 

 

 

 

 

 

 

 

 

 

 

 

 

 

 

 

 

 

 

 

 

PROJECT CITY:

 

 

 

 

ZIP:

 

 

COUNTY:

 

 

 

 

 

 

 

 

 

 

 

 

 

 

 

 

 

 

 

NEAREST MAJOR INTERSECTION:

 

 

 

 

 

 

 

 

 

 

 

 

 

 

 

 

 

 

 

 

 

BLDG SIZE IN SQ. FT:

 

 

AGE OF BUILDING IN YEARS:

NUMBER OF FLOORS IN BUILDING:

 

 

 

 

 

 

 

 

 

 

 

 

SPECIFIC LOCATION IN BUILDING OF ASBESTOS BEING REMOVED:

 

 

 

 

 

 

 

 

 

 

 

 

 

 

 

 

 

 

SECTION 3A – ABATEMENT CONTRACTOR

 

 

 

 

 

 

฀ CHECK IF SECTION REVISED

 

 

 

 

 

 

 

 

 

 

 

 

 

 

 

ASBESTOS REMOVAL CONTRACTOR:

 

 

 

 

 

 

 

 

 

 

 

 

 

 

 

 

 

 

 

 

 

 

 

 

CONTRACTOR’S STREET ADDRESS:

 

 

 

 

 

COMPANY CERTIFICATE #:

 

 

 

 

 

 

 

 

 

 

 

 

 

 

CITY:

 

STATE:

ZIP:

 

PHONE:

 

FAX:

 

 

 

 

 

 

 

 

 

 

 

GA LICENSED AGENT:

 

GA AGENT’S ID:

EXPIRES:

 

CELL PHONE:

 

 

 

 

 

 

 

 

 

 

 

3B – DEMOLITION CONTRACTOR

 

 

 

 

 

 

฀ CHECK IF SECTION REVISED

 

 

 

 

 

 

 

 

 

 

 

 

 

 

DEMOLITION CONTRACTOR:

 

 

 

 

 

 

 

 

 

 

 

DEMOLITION CONTRACTOR’S STREET ADDRESS:

CITY:

STATE:

ZIP:

PHONE:

FAX:

SECTION 4 – ACM INFORMATION* Required for Compliance of Georgia Rules

฀ CHECK IF SECTION REVISED

IS ASBESTOS PRESENT? YES

NO UNKNOWN

 

FRIABLE

NON-FRIABLE

BOTH

DID AN AHERA ACCREDITED INSPECTOR INSPECT THIS SITE?

YES

 

 

NO

 

ASSUMED ASBESTOS

INSPECTOR NAME:

 

 

 

 

 

 

INSPECTOR PHONE:

 

 

 

 

 

 

 

 

ACCREDITATION COURSE:

 

CERTIFICATE NUMBER:

 

 

EXPIRES:

 

 

 

 

 

SECTION 5 – WORK SCHEDULES (10 WORKING DAY ADVANCE NOTIFICATION REQUIRED FOR NON-EMERGENCY NOTIFICATIONS!)

 

 

 

 

 

฀ CHECK IF SECTION REVISED

ABATEMENT START DATE

ABATEMENT END DATE

WORK DAYS (MON-SUN)

WORK HOURS (EX : 7A – 4P)

DEMOLITION START DATE

DEMOLITION END DATE

WORK DAYS (MON-SUN)

WORK HOURS (EX : 7A – 4P)

REV 062012005F

- 1 -

SECTION 6 – ACM AMOUNTS, TYPE CODES, AND FEE CALCULATION

฀ CHECK IF SECTION REVISED

FIRST, LOCATE THE MATERIAL TO BE REMOVED IN COLUMN A. COLUMN B SHOWS THE USUAL NESHAP CATEGORY FOR THE

MATERIAL. COLUMN C SHOWS THE CATEGORY THE MATERIAL WILL LIKELY BECOME DURING ABATEMENT, AND THAT IS THE CODE THAT SHOULD BE USED FOR COMPLETING THIS FORM. NOW, ENTER THE SQ. FT AND/OR L.F. AMOUNTS OF ACM TO BE ABATED DURING THIS PROJECT UNDER THE CORRECT HEADING ACCORDING TO TYPE IN COLUMN D, E, AND/OR F. THEN, LOCATE THE CORRESPONDING TYPE CODE(S) FOR THE MATERIAL(S) IN COLUMN G AND ENTER THE CODES IN THE SPACES PROVIDED BEFORE PROCEEDING TO THE FEE CALCULATION SECTION.

 

Column A

 

 

 

Column B

 

Column C

 

SF OR LF AMOUNT TO BE ABATED

 

Column

 

 

 

 

 

 

 

DURING PROJECT

 

 

 

G

 

 

 

 

 

 

 

 

 

 

 

 

 

 

 

 

 

 

 

 

 

 

 

 

USUAL NESHAP CATEGORY

 

WILL

 

 

 

 

 

 

 

 

 

 

 

 

 

 

 

 

 

 

 

 

 

 

 

LIKELY

 

Column D

 

 

Column E

 

Column F

 

ACM

 

ACM TYPE

 

Category

 

Category

 

 

 

 

BECOME

 

 

 

 

 

TYPE

 

 

 

RACM

 

 

Category I

 

 

Category 2

 

RACM

 

 

 

 

 

 

1

2

 

 

 

 

 

WHEN

 

 

 

 

 

 

 

 

CODE

 

 

 

 

 

 

 

 

 

 

 

 

 

ABATED

 

 

 

 

 

 

 

 

 

 

 

ASBESTOS ASPHALT SHINGLES

 

 

 

 

 

 

 

 

 

1 OR RACM

 

 

 

 

 

 

 

 

 

AAS

 

ASBESTOS CEMENT (TRANSITE) PANELS

 

 

 

 

 

 

 

 

 

2 OR RACM

 

 

 

 

 

 

 

 

 

ACP

 

ASBESTOS CEMENT (TRANSITE) ROOFING

 

 

 

 

 

 

 

 

RACM

 

 

 

 

 

 

 

 

ACR

 

ASBESTOS CEMENT (TRANSITE) SIDING SHINGLES

 

 

 

 

 

 

 

 

 

RACM

 

 

 

 

 

 

 

 

 

ACS

 

ASBESTOS FLASHING

 

 

 

 

 

 

 

1

 

 

 

 

 

 

 

 

 

AF

 

ASBESTOS GASKET

 

 

 

 

 

 

 

 

 

1 OR RACM

 

 

 

 

 

 

 

 

 

AG

 

BOILER INSULATION

 

 

 

 

 

 

 

 

 

RACM

 

 

 

 

 

 

 

 

 

BI

 

BUILT-UP ROOFING

 

 

 

 

 

 

 

 

 

 

1 OR RACM

 

 

 

 

 

 

 

 

BUR

 

COVE (BASEBOARD) MOLDING MASTIC

 

 

 

 

 

 

 

 

1

 

 

 

 

 

 

 

 

 

CM

 

CEILING PLASTER

 

 

 

 

 

 

 

 

 

 

RACM

 

 

 

 

 

 

 

 

 

CP

 

CEILING TILE

 

 

 

 

 

 

 

 

 

RACM

 

 

 

 

 

 

 

 

 

CT

 

DUCT SEAM MASTIC

 

 

 

 

 

 

 

 

 

 

1

 

 

 

 

 

 

 

 

DSM

 

DUCT VIBRATION DAMPENERS

 

 

 

 

 

 

 

 

1 OR RACM

 

 

 

 

 

 

 

 

DVD

 

EXTERIOR (OUTSIDE) DUCT INSULATION

 

 

 

 

 

 

 

 

 

RACM

 

 

 

 

 

 

 

 

 

EDI

 

FELT DUCT TAPE

 

 

 

 

 

 

 

 

 

RACM

 

 

 

 

 

 

 

 

 

FDT

 

FLOOR MASTIC

 

 

 

 

 

 

 

 

 

 

1

 

 

 

 

 

 

 

 

 

FM

 

FIREPROOFING

 

 

 

 

 

 

 

 

 

RACM

 

 

 

 

 

 

 

 

 

FP

 

FIREPROOFING AND OVERSPRAY

 

 

 

 

 

 

 

 

 

 

RACM

 

 

 

 

 

 

 

 

 

FPO

 

FLOOR TILE

 

 

 

 

 

 

 

 

 

1 OR RACM

 

 

 

 

 

 

 

 

 

FT

 

FLOOR TILE AND MASTIC

 

 

 

 

 

 

 

 

 

 

1 OR RACM

 

 

 

 

 

 

 

 

 

FTM

 

INTERIOR (INSIDE) DUCT INSULATION

 

 

 

 

 

 

 

 

RACM

 

 

 

 

 

 

 

 

 

IDI

 

JOINT COMPOUND ONLY

 

 

 

 

 

 

 

 

 

 

RACM

 

 

 

 

 

 

 

 

 

JC

 

LIGHT WEIGHT CONCRETE

 

 

 

 

 

 

 

 

RACM

 

 

 

 

 

 

 

 

LWC

 

OTHER: FLOOR LEVELING COMPOUND, CAULKING,

 

 

 

 

 

 

 

 

 

2 OR RACM

 

 

 

 

 

 

 

 

OTR

 

ETC.

 

 

 

 

 

 

 

 

 

 

 

 

 

 

 

 

 

 

 

 

 

 

 

 

 

 

 

 

 

 

 

 

 

 

 

 

 

 

 

 

 

 

 

 

PIPE INSULATION STRAIGHT RUNS

 

 

 

 

 

 

 

 

RACM

 

 

 

 

 

 

 

 

 

PI

 

PIPE INSULATION ELBOWS AND FITTINGS

 

 

 

 

 

 

 

 

 

 

RACM

 

 

 

 

 

 

 

 

 

PIE

 

RESILIENT FLOOR COVERINGS (SHEET FLOORING;

 

 

 

 

 

 

 

1 OR RACM

 

 

 

 

 

 

 

 

 

RFC

 

LINOLEUM)

 

 

 

 

 

 

 

 

 

 

 

 

 

 

 

 

 

 

 

 

 

 

 

 

 

 

 

 

 

 

 

 

 

 

 

 

 

 

 

 

 

ROOF MASTICS AND COATINGS

 

 

 

 

 

 

 

 

 

1

 

 

 

 

 

 

 

 

RMC

 

ROOFING SILVER COATING

 

 

 

 

 

 

 

 

 

1 OR RACM

 

 

 

 

 

 

 

 

RSC

 

TEXTURED CEILING

 

 

 

 

 

 

 

 

 

 

RACM

 

 

 

 

 

 

 

 

 

TC

 

TEXTURED CEILING PLASTER

 

 

 

 

 

 

 

 

 

RACM

 

 

 

 

 

 

 

 

 

TCP

 

TANK INSULATION

 

 

 

 

 

 

 

 

 

 

RACM

 

 

 

 

 

 

 

 

 

TI

 

WALL BOARD AND JOINT COMPOUND

 

 

 

 

 

 

 

 

 

RACM

 

 

 

 

 

 

 

 

WBJC

 

WINDOW GLAZING

 

 

 

 

 

 

 

 

 

1 OR RACM

 

 

 

 

 

 

 

 

 

WG

 

WALL PLASTER

 

 

 

 

 

 

 

 

 

RACM

 

 

 

 

 

 

 

 

 

WP

 

Row G: Enter the ACM Type Codes from Col. G for each Category Below.

 

 

 

 

 

 

Category 1

 

 

Category 2

 

RACM

 

 

 

 

Category 1: ____________________________________________________________________________

 

Total

 

 

Total

 

Total

 

 

 

 

Category 2: ____________________________________________________________________________

 

 

 

 

 

 

 

 

 

 

 

RACM: ________________________________________________________________________________

________

 

________

 

________

 

 

 

 

 

 

 

 

 

 

CALCULATING FEES

 

 

 

 

 

 

 

 

 

 

 

 

 

Row H. IS THIS A RESIDENTIAL PROJECT

YES

 

 

(USE TOTAL FROM COLUMN F (RACM) TO COMPLETE THIS SECTION)

 

 

 

 

 

 

 

 

 

 

RESIDENTIAL FEE SCHEDULE: $0.10 PER LF/SF

 

 

RESIDENTIAL PROJECT

 

 

 

TOTAL FEES DUE AND PAYABLE NOW

 

OF FRIABLE ACM WITH MINIMUM FEE: $25 -

 

 

COLUMN F (RACM) TOTAL

 

X $0.10

 

H (B) $_____________________

 

 

 

 

MAXIMUM FEE: $50 PER RESIDENCE/ DWELLING

 

 

H (A). ___________SF/LF

 

EQUALS

(NOT TO BE LESS THAN $25 OR MORE THAN $50 PER

 

UNIT.

 

 

 

 

 

 

 

 

 

 

 

 

 

 

 

UNIT)

 

 

 

 

 

Row I. IS THIS A NON-RESIDENTIAL PROJECT

฀ YES

(USE TOTAL FROM COLUMN F (RACM) TO COMPLETE THIS SECTION)

 

 

 

 

 

 

 

 

 

 

 

 

 

 

 

 

 

 

 

 

 

 

 

 

NON-RESIDENTIAL FEE SCHEDULE: $0.10 PER

LF/SF OF FRIABLE ACM WITH MINIMUM FEE: $25 -

MAXIMUM FEE: $1,000 PER FACILITY.

NON-RESIDENTIAL PROJECT COLUMN F (RACM) TOTAL

I (A). ___________SF/LF

X$0.10

EQUALS

TOTAL FEES DUE AND PAYABLE NOW

I (B) $_____________________

(NOT TO BE LESS THAN $25 OR MORE THAN $1,000)

 

CHECK NUMBER ____________ FOR THE AMOUNT SHOWN IN THE TOTAL FEES DUE ABOVE.

 

 

REV 062012005F

- 2 -

SECTION 7 - WASTE TRANSPORTER, DISPOSAL SITE, AND BUILDING OWNER INFORMATION

฀ CHECK IF SECTION REVISED

WASTE TRANSPORTERTRANSPORTER CONTACT PERSON: NAME

TRANSPORTER’S MAILING ADDRESS:

CITY:

STATE:

ZIP:

PHONE:

FAX:

 

 

 

 

 

All Detached Non-Friable and Friable ACM Must Go To an ACM Permitted Landfill.

DISPOSAL SITE

 

 

 

 

DI SPOSAL SI TE COUNTY:

 

NAME:

 

 

 

 

 

 

 

 

 

 

DISPOSAL SITE ADDRESS:

 

 

 

 

 

 

 

 

 

 

 

 

 

 

 

 

 

 

 

 

CITY:

STATE:

 

ZIP:

 

 

PHONE:

 

FAX:

 

 

 

 

 

 

 

PROJECT OWNER

 

 

 

OWNER’S REPRESENTATIVE:

 

NAME:

 

 

 

 

 

 

 

 

 

 

OWNER’S STREET ADDRESS:

 

 

 

 

 

 

 

 

 

 

 

 

 

 

 

 

 

 

 

 

 

OWNER’S MAILING ADDRESS (IF DIFFERENT):

 

 

 

 

 

 

 

 

 

 

 

 

 

 

 

 

 

 

 

CITY:

STATE:

 

ZIP:

 

 

PHONE:

 

FAX:

 

 

 

 

 

SECTION 8 - WORK METHODS: METHOD OF DEMOLITION AND/OR RENOVATION ACTIVITY (DESCRIPTION OF WORK PRACTICES,

ENGINEERING CONTROLS, AND CLEARANCE METHODS)

 

฀ CHECK IF SECTION REVISED

 

 

 

 

 

 

 

 

 

 

 

 

 

 

 

 

SECTION 9 - ADDITIONAL PROJECT INFORMATION

 

฀ CHECK IF SECTION REVISED

 

WILL ASBESTOS REMAIN IN THE PROJECT AREA?

NO

 

YES

UNKNOWN

 

EXPLAIN ‘YES’ OR ‘UNKNOWN’:

 

 

 

 

 

 

 

 

 

 

 

 

 

 

 

 

IF NO ASBESTOS IS PRESENT, WAS THIS PROJECT PREVIOUSLY ABATED?

NO

YES

UNKNOWN

PRIOR ABATEMENT COMPANY:

 

 

 

 

 

 

 

YEAR ABATED:

 

 

 

 

 

 

 

 

 

 

 

 

PRIOR COMPANY CONTACT PERSON:

 

 

 

 

 

 

 

PHONE:

 

 

 

 

 

 

 

 

 

 

 

 

 

CERTIFICATION OF INFORMATION AND ACKNOWLEDGEMENT

฀ CHECK IF SECTION REVISED

I, THE UNDERSIGNED, CERTIFY THAT AN INDIVIDUAL TRAINED IN THE PROVISIONS OF FEDERAL REGULATIONS (NESHAP/40 CFR PART 61 SUBPART M) WILL BE

ON THE PROJECT SITE DURING DEMOLITION AND/OR RENOVATION ACTIVITIES DESCRIBED IN THE NOTIFICATION. EVIDENCE THAT THIS PERSON AND ALL OTHER PROJECT PERSONNEL HAVE ACCOMPLISHED APPROPRIATE TRAINING AND TRAINING CERTIFICATES WILL BE AVAILABLE FOR INSPECTION DURING NORMAL BUSINESS HOURS AND ANYTIME REGULATED ACTIVITIES ARE BEING CONDUCTED ON SITE.

I FURTHERMORE UNDERSTAND THAT I AM RESPONSIBLE FOR THE ACCURACY AND COMPLETENESS OF THE INFORMATION SUBMITTED WITH THIS

NOTIFICATION AND I SHALL PROMPTLY SUBMIT REVISIONS, SUPPORTING DOCUMENTS, AND PROJECT FEES.

PRINTED NAME:

SIGNATURE:

PHONE:

DATE:

REPRESENTING: OWNER

ABATEMENT CONTRACTOR DEMOLITION CONTRACTOR OTHER _________________

COMPANY NAME IF “OTHER” CHECKED:

ADDRESS IF “OTHER” CHECKED:

REFER TO THE DETAILED INSTRUCTIONS WHEN IN DOUBT ABOUT PROPER COMPLETION OF ANY SECTION.

NEVER LEAVE BLANK SPACES – INSERT ‘N/A’ OR ‘UNKNOWN’ FOR ANY BLANK WHERE YOU DO NOT HAVE THE INFORMATION REQUESTED.

PRINT RESPONSES NEATLY AND LEGIBLY.

ALWAYS KEEP A COPY OF THIS FORM FOR YOUR RECORDS, AND PROVIDE COPIES TO ALL OTHER INVOLVED PARTIES.

EPD NO LONGER ACCEPTS ‘FAX ONLY DOCUMENTS’. SUBMIT THE ENTIRE FORM VIA MAIL.

NEVER SUBMIT PROJECTS WHERE FEES ARE DUE WITHOUT ATTACHING THE REQUIRED FEE CHECK OR MONEY ORDER.

NOTIFICATIONS WITH FEES MUST BE MAILED TO THE EPD ASBESTOS FEES POST OFFICE ADDRESS. NOTIFICATIONS WITHOUT FEES SHOULD BE MAILED DIRECTLY TO THE EPD OFFICE ADDRESS.

(ADDRESSES ARE ON THE FIRST PAGE.)

DO NOT SUBMIT ‘TWO-SIDED’ PHOTO COPIES.

If a Project Notification is submitted by someone other than the asbestos abatement or demolition contractor - such as the Consultant or Owner,

A REVISED NOTIFICATION MUST BE SUBMITTED BY THE CONTRACTOR TO WHOM THE PROJECT IS AWARDED BEFORE WORK BEGINS. THE CONTRACTOR MUST SIGN THE CERTIFICATION OF THE REVISED NOTIFICATION FORM.

IT IS YOUR RESPONSIBILITY TO SUBMIT THIS FORM ACCURATELY AND COMPLETLY AND INCLUDE BY ALL

APPLICABLE FEES.

REV 062012005F

- 3 -

SUMMARY INSTRUCTIONS FOR COMPLETING THE GEORGIA EPD

PROJECT NOTIFICATION FOR ASBESTOS RENOVATION, ENCAPSULATION, OR DEMOLITION PROJECTS

Complete the following Sections and provide the information requested according to the type of project being performed.

To Be Completed For Demolition Work (No fees due for Demolition Projects.)

Section 1AVType of Notice

Section 1BVType of Project

Section 2 - Site Information

Section 3B - Demolition Contractor

Section 4 - ACM Information Asbestos Inspection Required for Compliance of Georgia Rules.

Section 5 - Work Schedules for Demolition

Section 6 - ACM Amounts & Type Codes

All ACM which already is or will become friable must be removed before demolition; only non-friable ACM may be remaining during the demolition and it must ALL be collected, packaged, labeled, transported and disposed as ACM Waste).

If all ACMs have been removed from the project site, Page 2 is not required.

Section 7 - Waste Transporter and Disposal Site of Demolition Waste, and Building Owner (All Required) Section 8 - Work Methods

Section 9 - Additional Project Information

Certification of Information and Acknowledgement (No fees due for Demolition Projects.)

To Be Completed For Asbestos Removal and Encapsulation Projects (Fees due for Abatement Projects.)

Section 1A - Type of Notice

Section 1B - Type of Project

Section 2 - Site information

Section 3A - Abatement Contractor

Section 4 - ACM Information Asbestos Inspection Required for Compliance of Georgia Rules.

Section 5 - Work Schedules for Abatement and Encapsulation Projects.

Section 6 - ACM Amounts, Type Codes, and Fee Calculation

Section 7 - Waste Transporter, Disposal Site, and Building Owner Information

Section 8 - Work Methods

Certification of Information and Acknowledgment

To Be Completed for A Revision To A Prior Notification

Section 1A Type of Notice

Section(s) All Sections, In Which the Prior Information Has Changed or Needs To Be Updated.

Check the Revision Box In Each of The Revised Sections and Update the Information.

Certification of Information and Acknowledgment

DETAILED INSTRUCTIONS ARE AVAILABLE FOR FILLING OUT EACH OF THESE SECTIONS.

REV 062012005F

- 4 -

File Specifics

Fact Name Description
Purpose The Georgia Notification Form is used to inform the Environmental Protection Division (EPD) about asbestos-related renovation, encapsulation, or demolition projects.
Required Sections All sections of the form must be completed. If information is not available, use "N/A" or "unknown" instead of leaving sections blank.
Submission Addresses For projects with fees, send to the EPD Asbestos Fees Lockbox. For projects without fees, send to the EPD office directly.
Fee Calculation Fees are calculated based on the type of project and the amount of asbestos being removed. Specific fee schedules are provided in the form.
Governing Law This form is governed by Georgia state regulations regarding asbestos management and the federal NESHAP standards.

How to Use Georgia Notification

Filling out the Georgia Notification form is a critical step in ensuring compliance with state regulations regarding asbestos projects. This form requires detailed information about the project, including the type of work being performed, site information, and contractor details. After completing the form, it will need to be submitted to the appropriate department, along with any applicable fees.

  1. Determine the type of notice: In Section 1A, check the box for either "Original - Initial" or "Revision" and provide the revision number if applicable.
  2. Select the type of project: In Section 1B, check the appropriate box that describes your project, such as "Renovation/Abatement Only" or "Demolition Only."
  3. Provide site information: Fill out Section 2 with the project name, address, city, zip code, county, nearest major intersection, building size, age of the building, number of floors, and specific location of asbestos being removed.
  4. Enter contractor details: In Section 3A for the abatement contractor and Section 3B for the demolition contractor, provide the name, address, contact information, and any required license numbers.
  5. Indicate ACM information: In Section 4, answer whether asbestos is present and provide details about the inspector who performed the assessment, including their name and contact information.
  6. Outline work schedules: In Section 5, indicate the start and end dates for abatement and demolition, along with workdays and hours.
  7. Detail ACM amounts and fee calculation: In Section 6, list the amounts of asbestos-containing materials (ACM) to be abated and calculate the fees based on the provided fee schedule.
  8. Provide waste transporter and disposal site information: In Section 7, include details about the waste transporter, disposal site, and project owner information.
  9. Describe work methods: In Section 8, provide a brief description of the methods to be used during demolition or renovation activities.
  10. Complete additional project information: In Section 9, answer questions about the presence of asbestos and any prior abatement activities.
  11. Certify the information: Sign and date the certification section, indicating your responsibility for the accuracy of the information provided.

After completing these steps, review the form for accuracy and clarity. Ensure that all required sections are filled out, and submit the form to the appropriate address based on whether fees are due. Keeping a copy for your records is also recommended.

Your Questions, Answered

What is the Georgia Notification Form for Asbestos Projects?

The Georgia Notification Form is a required document for any renovation, encapsulation, or demolition project that involves asbestos. This form helps ensure that all necessary information is submitted to the Georgia Environmental Protection Division (EPD) before work begins. It includes details about the project type, site information, contractors involved, and the presence of asbestos. Completing this form accurately is crucial for compliance with state regulations.

How do I submit the Georgia Notification Form?

Submission depends on whether fees are due for your project. If fees are applicable, send the completed form along with the payment to the EPD Asbestos Fees Lockbox at:

  1. EPD Asbestos Fees Lockbox
  2. Post Office Box 101173
  3. Atlanta, Georgia 30392

If no fees are due, mail the form to:

  1. EPD Asbestos Program
  2. Attn: Asbestos Notifications
  3. 4244 International Parkway, Suite 104
  4. Atlanta, Georgia 30354

Always keep a copy of the form for your records and ensure that no sections are left blank. If any information is unknown, indicate that clearly by marking it as 'N/A' or 'Unknown.'

What should I include in the form regarding asbestos presence?

In Section 4 of the form, you must indicate whether asbestos is present at the project site. You should check one of the following options:

  • Yes
  • No
  • Unknown

If asbestos is present, specify whether it is friable or non-friable. Additionally, confirm if an AHERA-accredited inspector has inspected the site. This information is vital for compliance with Georgia's asbestos regulations and ensures that appropriate safety measures are taken during the project.

What happens if I need to revise my notification?

If any information changes after you submit the original notification, you must submit a revision. To do this, check the revision box in Section 1A and provide the revision number. Update any sections where information has changed and re-sign the certification section. If additional fees are required due to the revision, include that payment with the revised notification. Always ensure that the revised notification is submitted before work begins to maintain compliance.

Common mistakes

  1. Leaving Sections Blank: One of the most common mistakes is leaving any section blank. If information is not available, it is important to write "N/A" or "UNKNOWN" instead.

  2. Incorrectly Identifying the Project Type: People often fail to select the correct checkbox for the type of project they are conducting. This can lead to confusion and delays.

  3. Not Providing Complete Site Information: Failing to include all required details about the project site, such as the project name, address, and county, can result in processing issues.

  4. Inaccurate Contractor Information: Many submitters do not double-check the accuracy of the contractor's information. This includes the name, address, and license number.

  5. Miscalculating Fees: It is common for individuals to miscalculate the fees due. This can happen if the square footage or linear footage amounts are entered incorrectly.

  6. Failing to Sign the Form: Some individuals forget to sign the certification section of the notification form, which is crucial for validating the submission.

  7. Not Keeping Copies: After submitting the form, many do not retain a copy for their records. Keeping a copy is essential for future reference and verification.

Documents used along the form

When dealing with asbestos-related projects in Georgia, it is crucial to have the appropriate documentation. Along with the Georgia Notification Form, several other forms and documents may be required to ensure compliance with state regulations. Below is a list of commonly used forms that should accompany the notification process.

  • Asbestos Inspection Report: This document provides the results of an inspection conducted by an accredited inspector. It identifies the presence and condition of asbestos-containing materials (ACM) at the project site.
  • Asbestos Management Plan: A comprehensive plan outlining how asbestos will be managed during renovation or demolition. It includes procedures for handling, removal, and disposal of ACM.
  • Contractor License Verification: Proof that the asbestos abatement or demolition contractor holds a valid license in Georgia. This ensures that the contractor is qualified to perform the work safely and legally.
  • Waste Transporter Permit: Documentation proving that the waste transporter is permitted to handle and dispose of asbestos waste. This is essential for compliance with environmental regulations.
  • Disposal Site Agreement: An agreement or contract with a licensed disposal site where asbestos waste will be taken. This ensures that the waste is disposed of correctly and legally.
  • Emergency Notification Letter: If the project is classified as an emergency, this letter explains the situation and justifies the need for expedited work. It must be submitted within 24 hours of the emergency declaration.
  • Revised Notification Form: If any details change after the initial notification, a revised form must be submitted. This ensures that all parties are informed of the latest project information.

Completing and submitting these documents accurately is vital for compliance and safety. Ensure that all forms are filled out completely and submitted to the appropriate authorities in a timely manner. This will help avoid potential delays and penalties during your asbestos project.

Similar forms

The Georgia Notification form for asbestos projects shares similarities with the Environmental Protection Agency (EPA) Asbestos Notification Form. Both documents serve the purpose of notifying relevant authorities about asbestos-related activities. They require detailed information about the project, including the type of work being performed, site details, and contractor information. Additionally, both forms emphasize the importance of compliance with federal regulations regarding asbestos management and disposal, ensuring that all necessary precautions are taken to protect public health.

Another comparable document is the National Emission Standards for Hazardous Air Pollutants (NESHAP) Notification. This notification is required for any demolition or renovation activities that may disturb asbestos. Like the Georgia form, the NESHAP Notification mandates that project details, including the presence of asbestos and the contractor's information, be reported. Both forms aim to ensure that asbestos is handled safely and in accordance with environmental regulations, minimizing the risk of exposure to hazardous materials.

The Occupational Safety and Health Administration (OSHA) Asbestos Notification also resembles the Georgia form. OSHA requires employers to notify workers and relevant authorities when conducting asbestos-related work. This notification includes similar information regarding project scope, contractor details, and safety measures. Both forms focus on worker safety and regulatory compliance, aiming to protect those involved in asbestos removal or disturbance activities.

The State of Georgia’s Demolition Notification Form is another document that parallels the Georgia Notification form. This form is specifically used for demolition projects, requiring details about the structure being demolished and any hazardous materials present. Both forms emphasize the need for advance notification to ensure proper safety protocols are followed during demolition, particularly when asbestos is involved.

The Asbestos Abatement Project Notification from other states, such as California, shares many characteristics with the Georgia form. These notifications require similar information about the project, including site details, contractor information, and the type of asbestos present. Each state’s form is designed to ensure compliance with local regulations and to protect public health during asbestos removal or renovation activities.

The Federal Asbestos Hazard Emergency Response Act (AHERA) Notification is another similar document. This notification is required for schools and public buildings undergoing renovations or demolitions that may disturb asbestos. Like the Georgia form, it requires detailed project information and compliance with safety regulations. Both documents serve to protect students, staff, and the public from potential asbestos exposure during construction activities.

The Asbestos Waste Disposal Notification is comparable as well. This document is necessary when disposing of asbestos-containing materials and requires information about the disposal site and transporters. Both the Georgia Notification form and the Waste Disposal Notification emphasize the importance of proper disposal methods to prevent environmental contamination and ensure public safety.

The Building Permit Application for renovation or demolition projects also shares similarities with the Georgia Notification form. This application typically requires information about the presence of asbestos and the planned methods for handling it. Both documents aim to ensure that all safety measures are in place before construction begins, protecting workers and the surrounding community from asbestos exposure.

The Hazardous Materials Business Plan (HMBP) is another relevant document. Businesses that handle hazardous materials, including asbestos, must submit an HMBP that outlines their safety procedures and emergency response plans. Similar to the Georgia Notification form, the HMBP requires detailed information about the materials being handled and the measures taken to ensure safe management.

Lastly, the Asbestos Management Plan is akin to the Georgia Notification form. This plan is required for buildings containing asbestos and outlines how the material will be managed and maintained. Both documents focus on safety and compliance, detailing procedures for handling asbestos to minimize risks to occupants and workers.

Dos and Don'ts

When filling out the Georgia Notification form for asbestos renovation, encapsulation, or demolition, it’s essential to follow specific guidelines to ensure accuracy and compliance. Here are four key dos and don’ts:

  • Do provide complete information in every section. If you do not have certain details, use "unknown" or "N/A" instead of leaving sections blank.
  • Do print your responses clearly and legibly. This helps prevent misunderstandings and ensures that your submission is processed smoothly.
  • Don't submit the form without including the required fees if applicable. Always attach a check or money order when fees are due.
  • Don't send two-sided photocopies of the form. Always submit single-sided documents to avoid any issues with processing.

Misconceptions

  • Misconception 1: The Georgia Notification Form is optional for all asbestos projects.
  • In reality, submitting the Georgia Notification Form is mandatory for any renovation, encapsulation, or demolition project involving asbestos. This ensures compliance with state regulations and helps protect public health.

  • Misconception 2: Only large projects require notification.
  • Many people believe that only extensive renovations or demolitions need to be reported. However, even small projects involving friable asbestos—less than 10 square feet or 10 linear feet—must be documented through a courtesy notification.

  • Misconception 3: Once the form is submitted, no further action is needed.
  • Submitting the form is just the beginning. If any project details change, such as work schedules or contractors, a revised notification must be submitted. Keeping the EPD informed ensures compliance and avoids potential penalties.

  • Misconception 4: Fees are always required when submitting the notification.
  • While many projects do require fees, not all do. For instance, demolition projects typically do not incur fees. It's important to understand the specific requirements for your project type to avoid unnecessary costs.

  • Misconception 5: The form can be submitted by anyone involved in the project.
  • While it's true that various parties may assist with the notification, the actual submission must come from the asbestos abatement or demolition contractor. This ensures that the responsible party is directly accountable for the information provided.

Key takeaways

When filling out the Georgia Notification Form for asbestos renovation, encapsulation, or demolition, consider the following key takeaways:

  • Complete All Sections: Ensure that no section is left blank. If information is unavailable, indicate 'N/A' or 'UNKNOWN' as appropriate.
  • Project Type: Clearly specify the type of project in Section 1A. Select either 'Original' or 'Revision' and indicate the nature of the project in Section 1B.
  • Site Information: Provide detailed site information in Section 2, including project name, address, and building specifics.
  • Contractor Information: List the asbestos removal contractor and demolition contractor details in Sections 3A and 3B, respectively. Ensure all contact information is accurate.
  • ACM Presence: In Section 4, confirm whether asbestos is present on-site. An inspection by an AHERA-accredited inspector is necessary for compliance.
  • Work Schedule: Notify at least 10 working days in advance for non-emergency projects. Fill out Section 5 with the abatement and demolition schedules.
  • Fee Calculation: Section 6 requires entering the amount of asbestos-containing material (ACM) to be abated and calculating the associated fees. Ensure accuracy to avoid delays.
  • Submission Guidelines: Send completed forms to the appropriate EPD address based on whether fees are due. Do not submit two-sided copies or fax-only documents.

Following these guidelines will help ensure a smooth and compliant submission process for your asbestos-related project in Georgia.