Blank Florida Energy PDF Form

Blank Florida Energy PDF Form

The Florida Energy Form is a crucial document that ensures compliance with Section 402 of the Florida Building Code, specifically focusing on energy conservation for residential buildings. This form is applicable to single- and multiple-family residences that are three stories or less, as well as renovations and new heating and cooling systems. To meet energy efficiency standards, building projects must adhere to the requirements outlined in the form, ensuring that all components are properly installed and certified.

Ready to ensure your project complies with Florida's energy standards? Fill out the form by clicking the button below.

The Florida Energy form plays a crucial role in ensuring that residential buildings comply with the state’s energy conservation standards. This form is essential for both new constructions and renovations, covering single-family homes and multi-family residences with three stories or fewer. It outlines the requirements set forth in Section 402 of the Florida Building Code, which emphasizes energy efficiency. To demonstrate compliance, builders must adhere to specific criteria found in Table 402A, which includes various energy performance metrics for components like windows, walls, and HVAC systems. Additionally, Table 402B summarizes mandatory requirements that must be met. Notably, there are limitations on certain features, such as the amount of glass allowed relative to the conditioned floor area. The form also requires detailed information about the building's design and materials, ensuring that all installed values meet or exceed the established efficiency standards. This process not only helps in meeting regulatory obligations but also promotes sustainable building practices across Florida.

Document Sample

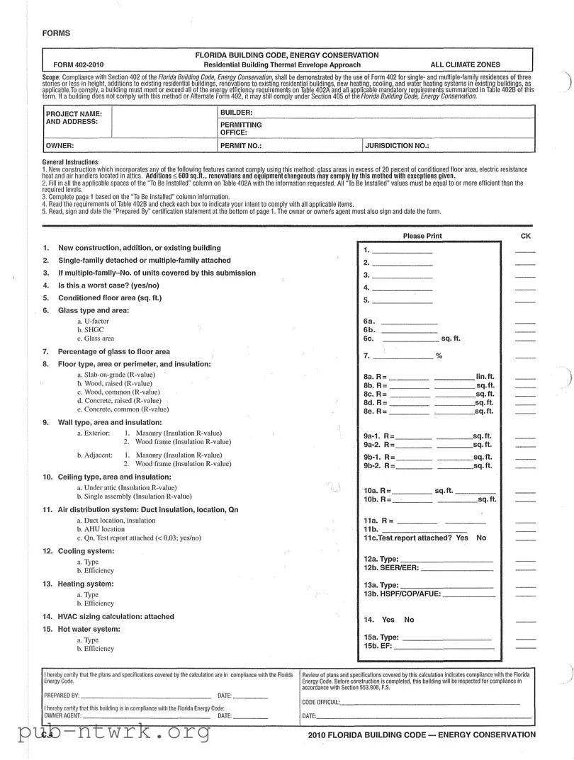
FORMS

Scope: Compliance with Section 402 of the Florida Building Code, Energy Conservation, shall be demonstrated by the use of Form 402 for single- and multiple-family residences of three stones or less in height, additions to existing residential buildings, renovations to existing residential buildings, new heatingbcoolingJ and water heating systems in existing buildings, as applicable.To comply, a building must meet or exceed all of the energy efficiency requirements on Table 402A and all applica le manoatory requirements summarized in Table 402B of this form. If a building does not comply with this method or Alternate Form 402, it may still comply under Section 405 of the Florida Building Code, Energy Conservation.

General Instructions:

constrLJcti.<m which incorporates any of the following features cannot comply using this method: glass areas in excess of 20 pen:::ent of conditioned floor area, electric resistance located in attics. Additions:::; 600 sq .ft., renovations and equipment change outs may comply by this method with exceptions given.

applicable spaces of the "To Be Installed" column on Table 402A with the information requested. All "To Be Installed" values must be equal to or more efficient than the

"To Be Installed" column information.

402B and check each box to indicate your intent to comply with all applicable items.

"Prepared By" certification statement at the bottom of page 1. The owner or owner's agent must also sign and date the form.

1.New construction, addition, or existing building

2.Single-family detached or multiple-family attached

3.If multiple-family-No. of units covered by this submission

4.Is this a worst case? (yes/no)

5.Conditioned floor area (sq. ft.)

6.Glass type and area:

Please Print

CK

1.

2.

3.

4.

5.

U-factor

b.SHGC

7.Percentage of glass to floor area

8.Floor type, area or perimeter, and insulation:

6a.

6b.

6c.

sq. ft.

7.

%

Slab-on-grade (R-value) b. Wood, raised (R-value)

Wood, common (R-value)

d.Concrete, raised (R-value)

common (R-value)

9.Wall type, area and insulation:

l. Masonry (Insulation R-value) Wood frame (Insulation R-value)

b. Adjacent: 1. Masonry (Insulation R-value) Wood frame (Insulation R-value)

10. Ceiling type, area and insulation:

Under attic (Insulation R-value)

Single assembly (Insulation R-value)

11.Air distribution system: Duct insulation, location, Qn

Duct location, insulation b. AHU location

Qn, Test report attached(< 0.03; yes/no)

12. Cooling system:

Type

b.Efficiency

13.Heating system:

Type

b. Efficiency

Sa. R:::

lin. ft.

8b. R:::

sq. ft.

ac. R=

sq. ft.

8d. R:::::

sq. ft.

ae. A=

sq. ft.

9a-i. A=

sq. ft.

9a-2.

R=

sq. ft.

9b-1.

R::::

sq. ft.

9b-2.

R::::

sq. ft.

10a. R=

sq. ft.

 

10b. R-

 

sq. ft.

11a. R:::: ____

 

 

11b. ----------------

 

11 c.Test report attached? Yes

No

14.

HVAC sizing calculation: attached

14. Yes No

 

 

15.

Hot water system:

 

 

 

15a.

 

 

15b.

plans and specifications covered by the calculation are in compliance with the Florida Review of plans and specifications covered by this calculation indicates compliance with the Florida Energy Code. Before construction is completed, this building will be inspected for compliance in accordance with Section 553.908, F.S.

DATE: ____

CODE OFFICIAL:___________________.

rnrtiht エィセエエィゥッ@building is in compliance with the Florida Energy Code:

DATE: ____

C.4

2010 FLORIDA BUILDING CODE- ENERGY CONSERVATION

FORMS

TABLE402A

BUILDING COMPONENT

Windows (see Note 2):

Skvliahts

セイウZ@Exterior door U-Factor Floors: Slab-on-grade

Over unconditioned spaces (see Note 3) Walls- Ext. and Adj. (see Note 3):

Frame

Mass (see Note 3) Interior of wall: Exterior of wall:

Ceilings (see Notes 3 & 4)

Reflectance

Air distribution system (see Note 4)

Ductwork & air handling unit:

Unconditioned space

Conditioned space

Duct A-value

Air leakage On

Air conditionina svstems (see Note 5) Heating system

Heat pump (see Note 5)Cooling: Heating:

Gas furnace Oil furnace

Electric resistance: Not allowed (see Note 5)

Water heating system (storage type)

Electric (see Note

Gas fired (see Note 7):

Other (describe):

PERFORMANCE CRITERIA'

U-Factor < 0.65 SHGC=0.30 %of CFA <::: 20% U-Factor < 0.75 U-Factor < 0.65 No requirement R-13

R-13

R-7.8

R-6

R=30

0.25

Not allowed

A-value<: 6

On セPNPS@

SEER= 13.0

SEER 13.0

HSPF = 7.7

AFUE78%

AFUE78%

40 gal: EF = 0.92

50 gal: EF = 0.90

40 gal: EF = 0.59

50 gal: EF 0.58

INSTALLED VALUES:

U-Factor=

SHGC=

%of CFA=

U-Factor=

R-Value =

A-Value

A-Value=

A-Value-

A-Value=

Test report

Attached?

Reflectance =

Yes/No

 

Location:

Test report

 

 

Attached?

 

Yes/No

R-Value

 

On=

 

SEER=

 

SEER=

 

HSPF=

 

AFUE=

 

AFUE=

 

Gallons

 

EF=

 

Gallons=

 

EF=

 

(1)Each component present in the As Proposed home must meet or exceed each of the applicable performance criteria in order to comply with this code using this method; otherwise Section 405 compliance must be used.

(2)Windows and doors qualifying as glazed fenestration areas must comply with both the maximum U-Factor and the maximum SHGC (solar Heat Gain Coefficient) criteria and have a maximum total window area equal to or less than 20% of the conditioned floor area (CFA); otherwise Section 405 must be used for compliance. Exception: Additions of 600 square feet (56 m2) or less may have a maximum glass to CFA of 50 percent.

(3)A-values are for insulation material only as applied in accordance with manufacturers' installation instructions. For mass walls, the "interior of wall" requirement must be met except if at least 50% of the R-6 insulation required for the "exterior of wall" is installed exterior of, or integral to, the wall.

(4)Ducts & AHU installed substantially leak free per Section 403.2.2.1. Test by Class 1 BERS rater required.

Exception: Ducts installed onto an existing air distribution system as part of an addition or renovation; duct must be R-6 installed per Sec. 503.2.7.2.

(5) For all conventional units with capacities greater than 30,000 Btu/hr. For other types of equipment, see Tables 503.2.3(1-8).

Exception: The prohibition on electric resistance heat does not apply to additions, renovations and new heating systems installed in existing buildings.

(6)For other electric storage volumes, minimum EF = 0.97-(0.00132 x volume).

(7)For other natural gas storage volumes, minimum EF =0.67-(0.0019 x volume).

TABLE 4028 MANDATORY REQUIREMENTS

 

 

COMPONENTS

SECTION

REQUIREMENTS

I

CHECK

 

 

To be caulked, gasketed, キ・。エィ・イウエイゥーセ・、@or otherwise sealed. Recessed lighting !C-rated as meeting ASTM E

 

 

Air leakage

402.4

283. Windows and doors= 0.30 cfm/sq.ft. Testing or visual inspection required. Fireplaces: gasketed doors &

 

 

 

 

outdoor combustion air.

 

 

Ceilings/knee walls

405.2.1

R-19 space permitting.

 

 

Programmable thermostat

403.1.1

Where forced-air furnace is primary system, programmable thermostat is required.

 

 

Air distribution system

403.2

Ducts in attics or on roofs insulated to R-8; other ducts R-6. Ducts tested to a. = 0.03 by a Class 1 BERS rater.

 

 

 

 

Heat trap required for vertical pipe risers. Comply with efficiencies in Table 403.4.3.2. Provide switch or clearly

 

 

Water heaters

403.4

marked circuit breaker (electric) or shutoff (gas). Circulating system pipes insulated to= R-2 +accessible manual

 

 

 

 

OFF switch.

 

 

 

 

Spas and heated pools must have vapor-retardant covers or a liquid cover or other means proven to reduce heat

 

 

Swimming pool &spas

403.9

loss except if 70% of heat from site-recovered energy. Off/timer switch required. Gas heaters minimum thermal

 

 

 

 

efficiency- 78% (82% after 4/16/13). Heat pump pool heaters minimum COP- 4.0.

 

 

 

 

Sizing calculation performed &attached. Minimum efficiencies per Tables 503.2.3. Equipment efficiency verification

 

 

Cooling/heating equipment

403.6

required. Special occasion cooling or heating capacity requires separate system or variable capacity system.

 

 

 

 

Electric heat >10kW must be divided into two or more stages.

 

 

Lighting equipment

404.1

At least 50% of permanently installed lighting fixtures shall be high-efficacy lamps.

 

 

2010 FLORIDA BUILDING CODE- ENERGY CONSERVATION

C.5

File Specifics

Fact Name Details
Governing Law Florida Building Code, Energy Conservation, Section 402
Scope of Form Applicable to single- and multiple-family residences of three stories or less, including additions and renovations.
Compliance Requirement A building must meet or exceed energy efficiency requirements outlined in Table 402A and mandatory requirements in Table 402B.
Exceptions Construction with glass areas exceeding 20% of conditioned floor area or electric resistance heating in attics cannot use this compliance method.
Owner's Certification The form requires a signature from the owner or owner's agent, along with a date.
To Be Installed Values All values in the "To Be Installed" column must be equal to or more efficient than specified requirements.
Inspection Requirement Buildings will be inspected for compliance before construction is completed, per Section 553.908, F.S.
Mandatory Requirements Includes sealing, insulation, duct testing, and efficiency standards for heating and cooling systems.

How to Use Florida Energy

Completing the Florida Energy form is an essential step in ensuring that your building project meets the energy efficiency standards set by the Florida Building Code. By following the steps outlined below, you can accurately fill out the form, ensuring compliance with the necessary requirements.

  1. Begin by identifying the type of construction: Is it new construction, an addition, or an existing building?
  2. Specify whether the building is a single-family detached or multiple-family attached structure.
  3. If it’s a multiple-family building, indicate the number of units covered by this submission.
  4. Answer the question regarding whether this is a worst-case scenario by selecting "yes" or "no."
  5. Provide the conditioned floor area in square feet.
  6. List the glass type and area, including U-factor and SHGC (Solar Heat Gain Coefficient).
  7. Calculate and provide the percentage of glass to floor area.
  8. Detail the floor type, area or perimeter, and insulation values.
  9. Describe the wall type, area, and insulation values for both the exterior and adjacent walls.
  10. Document the ceiling type, area, and insulation values.
  11. Provide details about the air distribution system, including duct insulation and location.
  12. Specify the cooling system type and its efficiency.
  13. Indicate the heating system type and its efficiency.
  14. Attach any necessary HVAC sizing calculations.
  15. Describe the hot water system and ensure that plans and specifications comply with the Florida Energy Code.
  16. Complete the "Prepared By" certification statement at the bottom of the form.
  17. Have the owner or owner's agent sign and date the form.

After filling out the form, you should review it for accuracy before submission. Ensuring all sections are complete and correct will help facilitate the approval process for your building project.

Your Questions, Answered

What is the Florida Energy Form?

The Florida Energy Form, specifically Form 402, is used to demonstrate compliance with the energy efficiency requirements set forth in Section 402 of the Florida Building Code. This form applies to single-family and multiple-family residences that are three stories or less in height, as well as to additions and renovations to existing buildings. It helps ensure that new heating, cooling, and water heating systems meet the necessary energy conservation standards.

Who needs to fill out the Florida Energy Form?

Any owner or agent of a residential building that is undergoing new construction, an addition, or renovation must complete the Florida Energy Form. This includes both single-family detached homes and multiple-family attached units. The form must be filled out accurately to demonstrate compliance with energy efficiency requirements.

What information is required on the form?

The form requires various details, including:

  1. Type of construction (new, addition, or existing building)
  2. Type of residence (single-family or multiple-family)
  3. Conditioned floor area in square feet
  4. Details about glass type and area
  5. Insulation values for floors, walls, and ceilings
  6. Information about heating and cooling systems

Additionally, the form must be signed by the owner or their agent, confirming the information provided is accurate.

What are the performance criteria for compliance?

To comply with the Florida Energy Code using Form 402, each component of the building must meet or exceed specific performance criteria. For example:

  • The U-Factor for windows must be less than 0.65.
  • The Solar Heat Gain Coefficient (SHGC) should be 0.30 or less.
  • Glass areas should not exceed 20% of the conditioned floor area.

If these criteria are not met, the building may need to comply under Section 405 of the Florida Building Code.

What happens if the building does not meet the requirements?

If a building does not comply with the criteria outlined in Form 402, it may still achieve compliance under Section 405 of the Florida Building Code. This alternative section provides different methods and standards for demonstrating energy efficiency.

Are there exceptions to the requirements?

Yes, there are exceptions. For instance, additions of 600 square feet or less may have a maximum glass area of up to 50% of the conditioned floor area. Additionally, certain types of existing systems may not need to meet all the criteria if they are being renovated or replaced.

What is the role of the inspector?

Before construction is completed, a building inspector will review the submitted Florida Energy Form to ensure compliance with the Florida Energy Code. The inspector will verify that all necessary details and documentation are provided and that the building meets energy efficiency standards.

How can I ensure compliance with the Florida Energy Form?

To ensure compliance, it is crucial to gather all required information accurately and completely. Consulting with professionals who are familiar with the Florida Building Code can also be beneficial. Additionally, using the checklist provided in the form can help confirm that all mandatory requirements are met before submission.

Common mistakes

  1. Incomplete Information: Many individuals fail to provide all required details in the "To Be Installed" column. This can lead to non-compliance, as every value must be equal to or more efficient than the specified requirements.

  2. Incorrect Signatures: It's crucial that the form is signed and dated by the owner or their agent. Omitting this step can render the submission invalid.

  3. Misunderstanding Compliance Options: Some people mistakenly believe that if their building doesn't comply with Form 402, they cannot meet the requirements under Section 405 of the Florida Building Code. Understanding alternative compliance options is essential.

  4. Ignoring Energy Efficiency Tables: Failing to reference Table 402A and Table 402B can lead to critical oversights. These tables outline necessary energy efficiency requirements that must be met.

  5. Improper Glass Area Calculations: A common error is exceeding the maximum glass area limit of 20% of the conditioned floor area. This can lead to significant compliance issues.

  6. Neglecting to Attach Required Documentation: Submitting the form without necessary attachments, such as test reports or HVAC sizing calculations, can result in delays or rejections. Always check for completeness before submission.

Documents used along the form

The Florida Energy form is essential for demonstrating compliance with energy conservation standards in residential buildings. However, several other documents often accompany this form to ensure that all aspects of energy efficiency and building regulations are met. Below is a list of common forms and documents that may be used in conjunction with the Florida Energy form.

  • Building Permit Application: This document is required to obtain permission from local authorities before beginning construction. It outlines the proposed work and ensures it complies with zoning and building codes.
  • HVAC Load Calculation: This calculation determines the heating and cooling needs of a building. It helps ensure that the installed HVAC system is appropriately sized for energy efficiency and occupant comfort.
  • Plans and Specifications: Detailed drawings and descriptions of the construction project. These documents illustrate how the building will be constructed and include specifications for materials and systems to be used.
  • Energy Compliance Report: This report provides a detailed analysis of how the building meets energy efficiency standards. It often includes calculations and documentation supporting compliance with the Florida Energy Code.
  • Inspection Reports: After construction, these reports verify that the building has been built according to the approved plans and complies with all applicable codes, including energy efficiency standards.
  • Certificate of Occupancy: This document is issued by local authorities after a final inspection. It confirms that the building is safe for occupancy and complies with all building codes, including energy conservation requirements.

These documents work together to ensure that residential buildings in Florida not only meet legal requirements but also promote energy efficiency and sustainability. Proper documentation can help streamline the construction process and avoid potential issues with compliance.

Similar forms

The Florida Energy form shares similarities with the International Energy Conservation Code (IECC). Both documents aim to ensure energy efficiency in building construction. The IECC outlines performance criteria and mandatory requirements that buildings must meet, similar to the Florida Energy form's Tables 402A and 402B. Each document provides guidelines for various building components, including insulation, windows, and HVAC systems, to promote energy conservation and reduce overall energy consumption.

Another comparable document is the ASHRAE Standard 90.1. This standard sets minimum energy efficiency requirements for buildings, much like the Florida Energy form. ASHRAE 90.1 includes specifications for building envelope, lighting, and HVAC systems. The focus on energy performance and efficiency in both documents helps ensure that buildings are designed and constructed to minimize energy use, which benefits both the environment and the occupants.

The California Title 24 Energy Standards also resemble the Florida Energy form in their objectives. Title 24 establishes energy efficiency standards for residential and non-residential buildings in California. Similar to Florida's requirements, Title 24 emphasizes the importance of energy-efficient building components, including insulation, windows, and heating and cooling systems. Both documents reflect a commitment to reducing energy consumption and promoting sustainable building practices.

The Energy Star Certification program is another document that aligns closely with the Florida Energy form. Energy Star sets energy performance criteria for appliances and buildings, encouraging energy-efficient designs. Like the Florida Energy form, Energy Star evaluates various components of a building, including insulation and HVAC systems, to ensure they meet specific efficiency standards. This certification helps consumers identify energy-efficient products and buildings, promoting energy conservation.

The National Green Building Standard (NGBS) shares similarities with the Florida Energy form as well. NGBS provides guidelines for sustainable building practices, including energy efficiency measures. It covers various aspects of construction, from site development to materials and systems, much like the Florida Energy form's focus on energy conservation in residential buildings. Both documents aim to foster environmentally responsible building practices that contribute to reduced energy consumption.

The LEED (Leadership in Energy and Environmental Design) certification system is also comparable to the Florida Energy form. LEED provides a framework for assessing the sustainability of buildings, including energy efficiency. Similar to the Florida Energy form, LEED evaluates building components and systems to ensure compliance with energy-saving measures. Both documents emphasize the importance of energy-efficient design in achieving overall sustainability goals.

Finally, the Florida Building Code itself serves as a broader framework that includes the Florida Energy form. The Building Code establishes minimum construction standards for safety and performance, while the Energy form specifically targets energy conservation measures. Both documents work together to ensure that buildings are not only safe and structurally sound but also energy-efficient, promoting a holistic approach to building design and construction.

Dos and Don'ts

When filling out the Florida Energy form, attention to detail is essential. Here are ten important dos and don'ts to guide you through the process:

  • Do ensure that all information is accurate and complete.
  • Do refer to Table 402A for energy efficiency requirements.
  • Do have the owner or owner's agent sign and date the form.
  • Do check all applicable boxes in Table 402B to indicate compliance.
  • Do include the "Prepared By" certification statement at the bottom of page 1.
  • Don't exceed the glass area limit of 20% of the conditioned floor area.
  • Don't use electric resistance heating in attics.
  • Don't forget to attach required test reports, especially for duct insulation.
  • Don't leave any sections of the form blank; all fields must be filled.
  • Don't overlook the performance criteria for each building component.

By following these guidelines, you can ensure that your submission meets the necessary requirements and helps facilitate a smoother approval process. Compliance is key, and attention to detail will serve you well.

Misconceptions

Understanding the Florida Energy Form can be challenging. Here are eight common misconceptions that often arise:

  • Misconception 1: The Florida Energy Form only applies to new constructions.
  • This is incorrect. The form is also applicable to additions, renovations, and new heating or cooling systems in existing buildings.

  • Misconception 2: Compliance can be achieved without meeting all performance criteria.
  • In fact, each component must meet or exceed the specified performance criteria to comply using this method. Otherwise, a different compliance method must be used.

  • Misconception 3: Only single-family homes need to use the Florida Energy Form.
  • Multiple-family residences with three stories or fewer are also required to use this form for compliance.

  • Misconception 4: Electric resistance heating is allowed in any building.
  • This is not true. Electric resistance heating is generally not permitted, except in certain circumstances involving additions or renovations.

  • Misconception 5: There are no exceptions for glass area limits in additions.
  • Actually, additions of 600 square feet or less may have a maximum glass area of 50% of the conditioned floor area.

  • Misconception 6: The form does not require any certification.
  • On the contrary, the form must be signed and dated by the owner or the owner's agent, certifying compliance with the Florida Energy Code.

  • Misconception 7: All insulation types are treated the same under the form.
  • This is misleading. Different insulation types have specific R-value requirements that must be met for compliance.

  • Misconception 8: Ductwork does not need to be tested for air leakage.
  • In fact, ducts must be tested to ensure they meet the required air leakage criteria, ensuring energy efficiency.

Key takeaways

Filling out and using the Florida Energy form is essential for ensuring compliance with energy conservation standards. Here are key takeaways to consider:

  • Purpose of the Form: The Florida Energy form demonstrates compliance with Section 402 of the Florida Building Code, specifically for energy conservation in residential buildings.
  • Applicability: This form applies to single- and multiple-family residences of three stories or less, as well as additions and renovations to existing buildings.
  • Energy Efficiency Requirements: A building must meet or exceed all energy efficiency requirements outlined in Table 402A and the mandatory requirements summarized in Table 402B.
  • Exceptions: Certain construction features, such as glass areas exceeding 20% of the conditioned floor area, cannot comply using this method.
  • Completion of the Form: All "To Be Installed" values must be equal to or more efficient than the corresponding information in the form.
  • Owner's Certification: The form must be signed and dated by the owner or their agent, along with a certification statement.
  • Inspection Requirement: Before construction is completed, the building will undergo an inspection to ensure compliance with the Florida Energy Code.
  • Alternative Compliance: If the building does not comply with this method, it may still meet standards under Section 405 of the Florida Building Code.