Blank Dte 100 Ohio PDF Form

Blank Dte 100 Ohio PDF Form

The DTE 100 Ohio form is a document known as the Real Property Conveyance Fee Statement of Value and Receipt. This form is essential for reporting the transfer of real property in Ohio, ensuring that the information is accurate for tax assessment purposes. To fill out the form, please click the button below.

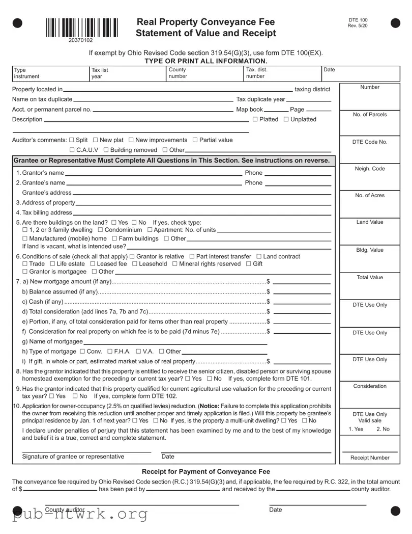
The DTE 100 Ohio form is an essential document for anyone involved in the transfer of real property in Ohio. This form serves as the Real Property Conveyance Fee Statement of Value and Receipt, ensuring that all necessary information regarding the transaction is accurately recorded. It includes details about the grantor and grantee, property location, and any buildings present on the land. Additionally, the form requires information about the sale conditions, such as whether the transaction involves a gift, trade, or mortgage. Importantly, it also addresses potential tax exemptions, like homestead exemptions for seniors or disabled individuals, and agricultural use valuation. Completing this form correctly is crucial, as it impacts property tax assessments and compliance with Ohio law. Failure to provide accurate information may result in legal penalties, emphasizing the importance of diligence in its completion.

Document Sample

Real Property Conveyance Fee Statement of Value and Receipt

DTE 100 Rev. 5/20

20370102

If exempt by Ohio Revised Code section 319.54(G)(3), use form DTE 100(EX).

TYPE OR PRINT ALL INFORMATION.

Type

Tax list

County

Tax. dist.

Date

instrument

year

number

number

 

 

 

 

 

 

Property located in

 

 

 

 

 

 

 

 

 

taxing district

Name on tax duplicate

 

 

Tax duplicate year

 

 

 

Acct. or permanent parcel no.

 

Map book

 

 

 

Page

 

Description

 

 

Platted

Unplatted

Auditor’s comments: Split New plat New improvements Partial value

C.A.U.V Building removed Other

Grantee or Representative Must Complete All Questions in This Section. See instructions on reverse.

1. Grantor’s name

 

 

 

Phone

 

2. Grantee’s name

 

 

 

 

 

 

Phone

Grantee’s address

 

 

 

 

 

 

 

3. Address of property

 

 

 

 

 

4. Tax billing address

 

 

 

 

 

5. Are there buildings on the land? Yes No

If yes, check type:

1, 2 or 3 family dwelling Condominium

Apartment: No. of units

 

 

Manufactured (mobile) home Farm buildings Other If land is vacant, what is intended use?

6. Conditions of sale (check all that apply) Grantor is relative Part interest transfer Land contract Trade Life estate Leased fee Leasehold Mineral rights reserved Gift

Grantor is mortgagee Other

7. a) New mortgage amount (if any)

$

b) Balance assumed (if any)

$

c) Cash (if any)

$

d) Total consideration (add lines 7a, 7b and 7c)

$

e) Portion, if any, of total consideration paid for items other than real property

$

f) Consideration for real property on which fee is to be paid (7d minus 7e)

$

g) Name of mortgagee

 

 

 

h) Type of mortgage Conv. F.H.A. V.A. Other

 

 

 

i) If gift, in whole or part, estimated market value of real property..........................................$

8. Has the grantor indicated that this property is entitled to receive the senior citizen, disabled person or surviving spouse homestead exemption for the preceding or current tax year? Yes No If yes, complete form DTE 101.

9. Has the grantor indicated that this property qualified for current agricultural use valuation for the preceding or current

tax year? Yes No If yes, complete form DTE 102.

10.Application for owner-occupancy (2.5% on qualified levies) reduction. (Notice: Failure to complete this application prohibits the owner from receiving this reduction until another proper and timely application is filed.) Will this property be grantee’s

principal residence by Jan. 1 of next year? Yes No If yes, is the property a multi-unit dwelling? Yes No

I declare under penalties of perjury that this statement has been examined by me and to the best of my knowledge and belief it is a true, correct and complete statement.

Number

No. of Parcels

DTE Code No.

Neigh. Code

No. of Acres

Land Value

Bldg. Value

Total Value

DTE Use Only

DTE Use Only

DTE Use Only

Consideration

DTE Use Only

Valid sale

1. Yes

2. No

Signature of grantee or representative

Date

Receipt Number

Receipt for Payment of Conveyance Fee

The conveyance fee required by Ohio Revised Code section (R.C.) 319.54(G)(3) and, if applicable, the fee required by R.C. 322, in the total amount

of $

 

 

has been paid by

 

and received by the

 

county auditor.

 

 

 

 

 

 

 

 

 

 

 

 

 

 

 

 

County auditor

 

 

Date

 

 

DTE 100

Instructions to Grantee or Representative for Completing Rev. 5/20

Real Property Conveyance Fee Statement of Value

Complete lines 1 through 10 in box.

Page 2

WARNING: All questions must be completed to the best of your knowledge to comply with Ohio Revised Code (R.C.) section 319.202.

Persons willfully failing to comply or falsifying information are guilty of a misdemeanor of the first degree (R.C. section 319.99(B)). It is important that the information on this form be accurate as it will be used to determine whether all real property, including this property, is uniformly assessed for real property tax purposes.

Note: The county auditor has discretionary power under R.C. section 319.202(A) to request additional information in any form of documentation deemed necessary to verify the accuracy of the information provided by the grantee on the front of the form.

Line 1 List grantor’s name as shown in the deed or other instrument conveying this real property.

Line 2 List grantee’s name as shown in the deed or other instrument conveying this real property and the grantee’s mailing address.

Line 3 List address of property conveyed by street number and name.

Line 4 List complete name and address to which tax bills are to be sent. CAUTION: Each property owner is responsible for paying the property taxes on time even if no tax bill is received.

Line 5 If there are no buildings on the land conveyed, check “no.” If there are buildings, check “yes” and the appropriate box that describes the type of buildings. If other, describe briefly the type of buildings, such as “office building.”

Line 6 Show any special condition of sale that would affect the consideration. If any of the special conditions noted are involved, check the appropriate box. Briefly describe other conditions in the space provided.

Line 7 a) Enter amount of new mortgage on this property (if any).

b)Enter amount of the balance assumed on an existing mortgage (if any).

c)Enter cash paid for this property (if any).

d)Add lines 7a, 7b and 7c.

e)If any portion of the consideration reported on line 7d was paid for items other than real property, enter the portion of the consideration paid for those items.

f)Deduct line 7e from line 7d and enter the difference on this line.

g)List mortgagee or mortgagees (the party who advances the funds for a mortgage loan).

h)Check type of mortgage.

i)In the case of a gift, in whole or part, enter the estimated price that the real estate would bring in the open market.

Line 8 If the grantor has indicated that the property to be conveyed will receive the senior citizen, disabled person or surviving spouse homestead exemption for a proceeding or current tax year under R.C. section 323.152(A), grantor must complete DTE 101 or submit a statement that complies with the provisions of R.C. section 319.202(A)(2), and the grantee must submit such form to the county auditor along with this statement.

Line 9 If the grantor has indicated that the property to be conveyed qualified for current agricultural use valuation for the preceding or

current tax year under R.C. section 5713.30, the grantor must complete DTE 102 or a statement that complies with R.C. section 319.202(B)(2), and the grantee must submit such form to the county auditor along with this statement.

Line 10 Complete line 10 (application for owner-occupancy reduction on qualified levies) only if the parcel is used for residential purposes. To receive the owner-occupancy homestead tax reduction on qualified levies for next year, you must own and occupy your home

as your principal place of residence (domicile) on Jan. 1 of that year. A homeowner and spouse may receive this reduction on

only one home in Ohio. Failure to complete this application prohibits the owner from receiving this reduction until another proper and timely application is filed.

The real property conveyance fee is payable on the amount of money reported on either item 7f or 7i.

File Specifics

Fact Name Details
Form Title Real Property Conveyance Fee Statement of Value and Receipt
Form Number DTE 100
Revision Date Rev. 5/20
Governing Law Ohio Revised Code section 319.54(G)(3)
Exemption Form If exempt, use form DTE 100(EX)
Completion Requirement All questions must be completed accurately
Tax Responsibility Property owners must pay taxes on time, even without a bill
Homestead Exemption Complete form DTE 101 if applicable
Agricultural Use Valuation Complete form DTE 102 if applicable
Owner-Occupancy Reduction Must occupy the home by Jan. 1 to qualify

How to Use Dte 100 Ohio

Filling out the DTE 100 form is a crucial step in the property transfer process in Ohio. This form collects essential information regarding the conveyance of real property. After completing the form, it will need to be submitted to the county auditor along with any applicable fees. Ensure that all information is accurate, as it will impact property tax assessments.

  1. Identify the Property: Enter the tax list year, county, tax district number, and the property’s location details, including the name on the tax duplicate, tax duplicate year, and permanent parcel number.
  2. Describe the Property: Indicate whether the property is platted or unplatted, and provide any relevant auditor’s comments, such as if the property has been split or has new improvements.
  3. Complete Grantee Information: Fill in the grantor's name and phone number, followed by the grantee's name, phone number, and address.
  4. Property Address: Specify the complete address of the property being conveyed.
  5. Tax Billing Address: Provide the address where tax bills should be sent.
  6. Building Status: Indicate if there are buildings on the land. If yes, specify the type of buildings present.
  7. Conditions of Sale: Check all applicable conditions that apply to the sale, such as if the grantor is a relative or if it involves a gift.
  8. Financial Details: Fill in the amounts for any new mortgage, balance assumed, cash paid, and total consideration. Also, indicate if any portion of the consideration was for items other than real property.
  9. Exemptions: Answer whether the grantor has indicated eligibility for homestead exemptions or current agricultural use valuation. If yes, additional forms may be required.
  10. Owner-Occupancy Application: Complete this section only if the property will be the grantee’s principal residence by January 1 of the following year.
  11. Declaration: The grantee or representative must sign and date the form, affirming the accuracy of the information provided.

Once the DTE 100 form is completed, it should be submitted to the county auditor along with the required conveyance fee. Make sure to keep a copy for your records. This process is essential for ensuring that property taxes are assessed correctly and that any exemptions are applied appropriately.

Your Questions, Answered

What is the purpose of the DTE 100 Ohio form?

The DTE 100 Ohio form, also known as the Real Property Conveyance Fee Statement of Value and Receipt, is used to report the transfer of real property in Ohio. This form is essential for the county auditor to assess property taxes accurately. It collects information about the property, the parties involved in the transaction, and any special conditions of the sale. Completing this form ensures compliance with Ohio law and helps maintain uniform assessment of real property for tax purposes.

Who is responsible for completing the DTE 100 form?

The grantee or their representative is responsible for completing the DTE 100 form. They must provide accurate information about the property being transferred, including details about the grantor and any existing mortgages. It is crucial that all questions are answered thoroughly to comply with Ohio Revised Code section 319.202. Failure to provide complete and accurate information may result in penalties.

What information is required on the DTE 100 form?

The DTE 100 form requires various pieces of information, including:

  1. Names and contact information of the grantor and grantee.
  2. Address of the property being conveyed.
  3. Details about any buildings on the land.
  4. Conditions of the sale, such as if the grantor is a relative or if it is a gift.
  5. Financial details, including mortgage amounts, cash paid, and total consideration.
  6. Indications of any exemptions or reductions that may apply to the property.

Completing each section accurately is essential for the proper processing of the property transfer.

What happens if the DTE 100 form is not completed correctly?

If the DTE 100 form is not completed correctly, it may lead to several issues. The county auditor has the authority to request additional information to verify the details provided. Incomplete or inaccurate information can result in delays in processing the property transfer. Furthermore, individuals who willfully fail to comply or provide false information may face legal penalties, including misdemeanor charges. It is important to ensure that all information is accurate and complete to avoid these consequences.

Common mistakes

  1. Incomplete Information: One of the most common mistakes is failing to fill out all required fields. Each section, from the grantor's name to the property address, must be completed. Missing information can delay processing and may lead to penalties.

  2. Incorrect Property Description: Providing an inaccurate description of the property can cause confusion. Make sure to specify whether the property is platted or unplatted and check all applicable boxes regarding the type of buildings present. This ensures the property is assessed correctly.

  3. Misreporting Financial Details: Many people make errors when reporting the financial aspects of the transaction. Ensure that the amounts entered for the new mortgage, cash paid, and total consideration are accurate. Double-check calculations to avoid discrepancies.

  4. Neglecting Additional Forms: If applicable, failing to complete related forms such as DTE 101 or DTE 102 can lead to complications. If the property qualifies for exemptions or special valuations, these forms must accompany the DTE 100 to avoid delays in tax benefits.

Documents used along the form

The DTE 100 Ohio form is essential for documenting the transfer of real property and calculating the associated conveyance fees. However, it is often accompanied by other important forms that provide additional information or fulfill specific requirements related to the property transfer. Below is a brief overview of four commonly used forms that complement the DTE 100.

  • DTE 101: This form is used to apply for the homestead exemption for senior citizens, disabled persons, or surviving spouses. It helps reduce property taxes for eligible individuals by allowing them to claim exemptions based on their status.
  • DTE 102: This form is necessary for property owners who wish to apply for current agricultural use valuation. It enables eligible properties to be assessed at a lower value based on their agricultural use, rather than their market value, thereby reducing property taxes.
  • Property Deed: The property deed is a legal document that transfers ownership from the seller (grantor) to the buyer (grantee). It contains essential details such as the names of the parties involved, a description of the property, and any conditions of the sale.
  • Affidavit of Property Value: This affidavit provides a sworn statement regarding the value of the property being transferred. It may be required by the county auditor to ensure accurate assessment for tax purposes and to verify the sale price reported on the DTE 100 form.

Understanding these accompanying forms is crucial for anyone involved in real estate transactions in Ohio. They not only streamline the process but also ensure compliance with state regulations, ultimately protecting the interests of both buyers and sellers.

Similar forms

The DTE 100 form in Ohio is closely related to the DTE 100(EX) form, which serves a specific purpose for those who qualify for exemptions under Ohio Revised Code section 319.54(G)(3). While the DTE 100 is used for standard property transactions, the DTE 100(EX) allows individuals to report their exempt status. This distinction is crucial for ensuring that the appropriate conveyance fees are applied, or waived entirely, depending on the circumstances. By using the DTE 100(EX), individuals can navigate the complexities of property transfers while taking advantage of available exemptions.

Another similar document is the DTE 101, which is the Homestead Exemption Application. This form is essential for homeowners who want to apply for tax relief based on age, disability, or survivor status. While the DTE 100 focuses on the conveyance of property, the DTE 101 is concerned with the ongoing tax benefits that homeowners may qualify for. Both forms require accurate information about the property and the owner, but they serve different stages in the property ownership process.

The DTE 102 form is also relevant, as it pertains to the Current Agricultural Use Valuation (CAUV). This form allows property owners to apply for a valuation that reflects agricultural use, which can significantly reduce property taxes. Like the DTE 100, the DTE 102 requires detailed information about the property, but its focus is on maintaining agricultural status rather than on the transfer of ownership. Together, these forms create a comprehensive system for managing property taxes in Ohio.

Additionally, the DTE 100A form is similar in that it is used for the Conveyance Fee Statement for Transfers of Real Property. This document is specifically for transactions that involve a transfer of property without consideration, such as gifts or inheritances. While the DTE 100 captures a broader range of transactions, the DTE 100A zeroes in on those instances where no money changes hands, ensuring that the right fees and exemptions are applied appropriately.

The DTE 100B form, known as the Real Property Transfer Tax Affidavit, is another document that shares similarities with the DTE 100. This affidavit is required for certain property transfers and serves to confirm the details of the transaction. While both forms collect information about the property and the parties involved, the DTE 100B focuses more on the legal aspects of the transfer, ensuring compliance with state tax laws.

Lastly, the Ohio Department of Taxation provides the Form IT-1040, which is the Individual Income Tax Return. While this form is primarily for income tax purposes, it can be linked to property transactions when individuals report income derived from real estate sales or rentals. The connection lies in the financial implications of property ownership and transactions, making it essential for property owners to be aware of how their transactions may affect their overall tax situation.

Dos and Don'ts

When filling out the DTE 100 Ohio form, consider the following guidelines:

  • Do type or print all information clearly.
  • Do complete all sections to the best of your knowledge.
  • Do list the grantor's and grantee's names exactly as they appear in the deed.
  • Do provide the correct address of the property being conveyed.
  • Do check the appropriate boxes regarding the presence of buildings on the property.
  • Do disclose any special conditions of the sale that may apply.
  • Do ensure the total consideration is accurately calculated.
  • Don't leave any questions unanswered; all must be filled out.
  • Don't falsify information; doing so can lead to penalties.
  • Don't forget to sign and date the form before submission.

Misconceptions

Here are four common misconceptions about the DTE 100 Ohio form:

  • Misconception 1: The DTE 100 form is only for property sales.
  • This form is not limited to sales. It is also used for various transactions such as gifts, trades, and transfers of partial interests. Any change in ownership requires this form.

  • Misconception 2: Completing the DTE 100 form is optional if the property is exempt.
  • Even if a property qualifies for an exemption under Ohio law, the DTE 100 form must still be completed. In such cases, the DTE 100(EX) form should be used.

  • Misconception 3: Only the seller needs to fill out the form.
  • Both the grantor and grantee must complete relevant sections of the form. The grantee, or their representative, is responsible for providing accurate information.

  • Misconception 4: The DTE 100 form is only for residential properties.
  • This form applies to all types of real property, including commercial and agricultural properties. Any transfer of real estate requires the DTE 100 form.

Key takeaways

Here are some key takeaways about filling out and using the DTE 100 Ohio form:

  • The DTE 100 form is essential for reporting the sale of real property in Ohio.
  • Ensure all information is typed or printed clearly to avoid processing delays.
  • Complete all sections of the form, as incomplete submissions may lead to penalties.
  • Specify whether the property is platted or unplatted to provide clarity on its status.
  • Indicate if there are buildings on the property and check the appropriate type.
  • List any special conditions of sale that may affect the transaction.
  • Calculate the total consideration accurately, including cash, mortgages, and any other relevant payments.
  • Complete additional forms (DTE 101 or DTE 102) if applicable for exemptions or special valuations.
  • Submit the DTE 100 form along with any required fees to the county auditor.
  • Remember that timely and accurate submissions are crucial for maintaining proper property tax assessments.