Blank Colorado Dr 2424 PDF Form

Blank Colorado Dr 2424 PDF Form

The Colorado DR 2424 form is a crucial document for individuals seeking to obtain a Rebuilt from Salvage title for their vehicles. This form certifies that a previously salvaged vehicle has been repaired and is now roadworthy, allowing it to be legally driven on Colorado roads. Completing this form is an essential step in ensuring compliance with state regulations, so be sure to fill it out accurately by clicking the button below.

The Colorado DR 2424 form serves a crucial role in the process of obtaining a Rebuilt from Salvage title for vehicles that have been repaired after being branded as salvage. This form, issued by the Colorado Department of Revenue's Division of Motor Vehicles, outlines the necessary information required to certify that a salvaged vehicle is now roadworthy. It includes sections for detailing the vehicle's make, year, model, and Vehicle Identification Number (VIN), as well as the date of purchase and the seller's information. Applicants must also list the parts used and repairs made to restore the vehicle, providing transparency about the work performed. Additionally, the form requires a declaration of whether the repairs were completed by the applicant or a certified professional, ensuring accountability in the restoration process. An inspector certified by the Peace Officer Standards and Training (P.O.S.T.) must verify the vehicle's condition, confirming that it has been appropriately restored and stamped with “REBUILT FROM SALVAGE.” By completing this form, applicants affirm, under penalty of perjury, the accuracy of their statements, thereby facilitating a clear and regulated path for salvaged vehicles to regain their rightful status on Colorado roads.

Document Sample

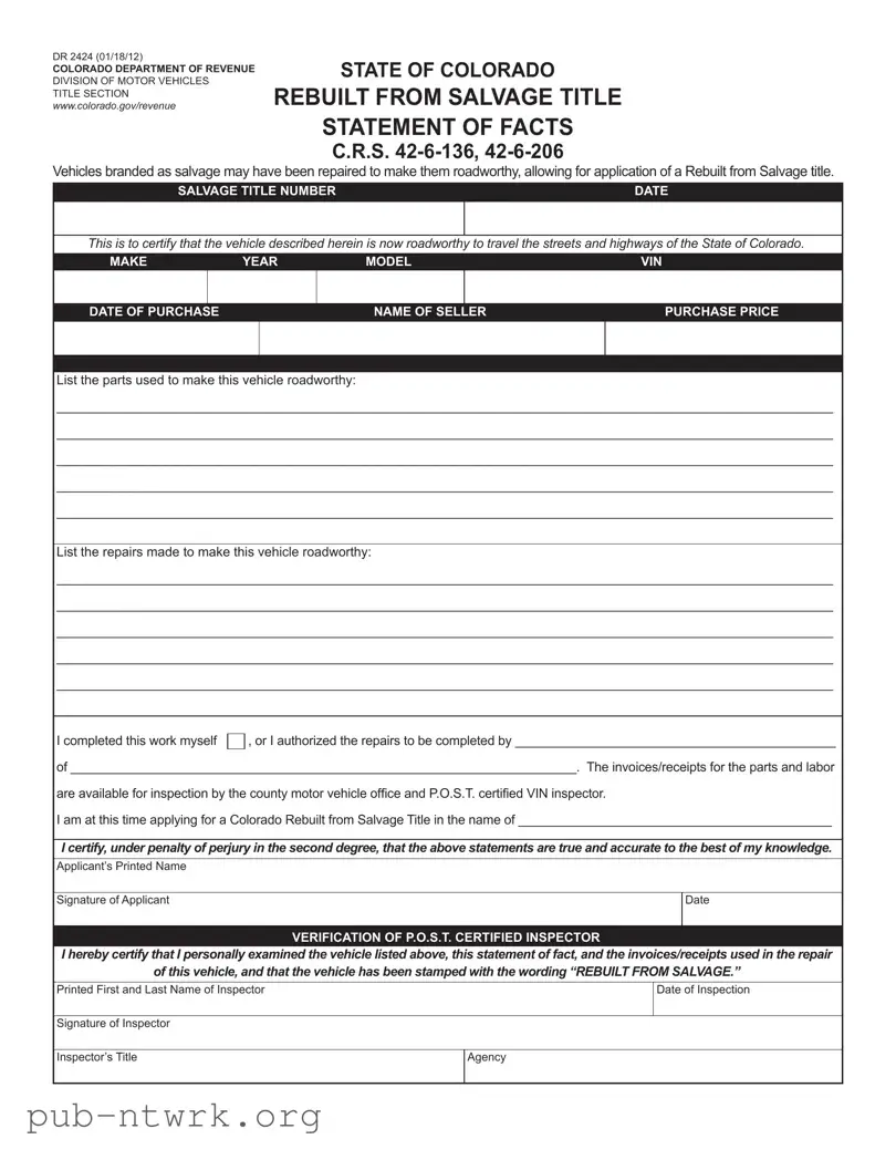
DR 2424 (01/18/12)

COLORADO DEPARTMENT OF REVENUE

DIVISION OF MOTOR VEHICLES TITLE SECTION www.colorado.gov/revenue

STATE OF COLORADO

REBUILT FROM SALVAGE TITLE

STATEMENT OF FACTS

C.R.S. 42-6-136, 42-6-206

Vehicles branded as salvage may have been repaired to make them roadworthy, allowing for application of a Rebuilt from Salvage title.

SALVAGE TITLE NUMBER

DATE

This is to certify that the vehicle described herein is now roadworthy to travel the streets and highways of the State of Colorado.

MAKE

YEAR

MODEL

VIN

DATE OF PURCHASE

NAME OF SELLER

PURCHASE PRICE

List the parts used to make this vehicle roadworthy:

__________________________________________________________________________________________________________

__________________________________________________________________________________________________________

__________________________________________________________________________________________________________

__________________________________________________________________________________________________________

__________________________________________________________________________________________________________

List the repairs made to make this vehicle roadworthy:

__________________________________________________________________________________________________________

__________________________________________________________________________________________________________

__________________________________________________________________________________________________________

__________________________________________________________________________________________________________

__________________________________________________________________________________________________________

I completed this work myself

, or I authorized the repairs to be completed by _____________________________________________

of _______________________________________________________________________. The invoices/receipts for the parts and labor

are available for inspection by the county motor vehicle ofice and P.O.S.T. certiied VIN inspector.

I am at this time applying for a Colorado Rebuilt from Salvage Title in the name of ____________________________________________

I certify, under penalty of perjury in the second degree, that the above statements are true and accurate to the best of my knowledge.

Applicant’s Printed Name

Signature of Applicant

Date

VERIFICATION OF P.O.S.T. CERTIFIED INSPECTOR

I hereby certify that I personally examined the vehicle listed above, this statement of fact, and the invoices/receipts used in the repair

of this vehicle, and that the vehicle has been stamped with the wording “REBUILT FROM SALVAGE.”

Printed First and Last Name of Inspector

Date of Inspection

Signature of Inspector

Inspector’s Title

Agency

File Specifics

Fact Name Description
Form Purpose The DR 2424 form is used to apply for a Rebuilt from Salvage title in Colorado, certifying that a salvaged vehicle has been repaired and is now roadworthy.
Governing Laws The form is governed by Colorado Revised Statutes (C.R.S.) 42-6-136 and 42-6-206, which outline the requirements for salvage and rebuilt titles.
Vehicle Information Applicants must provide specific details about the vehicle, including make, year, model, VIN, and purchase date.
Seller Details The form requires the name of the seller and the purchase price of the vehicle to ensure transparency in the transaction.
Parts and Repairs Applicants must list the parts used and the repairs made to restore the vehicle's roadworthiness, demonstrating compliance with safety standards.
Inspection Requirement A P.O.S.T. certified inspector must examine the vehicle and certify that it has been properly repaired and is safe for use on public roads.
Certification Statement The applicant certifies the truthfulness of the information provided under penalty of perjury, emphasizing the importance of accuracy in the application process.
Inspection Documentation Invoices and receipts for parts and labor must be available for inspection by the county motor vehicle office and the certified inspector, ensuring accountability.

How to Use Colorado Dr 2424

Filling out the Colorado DR 2424 form is an essential step for individuals seeking a Rebuilt from Salvage title for their vehicle. The following steps outline the process for completing the form accurately.

  1. Obtain the Colorado DR 2424 form from the Colorado Department of Revenue website or a local motor vehicle office.
  2. Fill in the Salvage Title Number and Date at the top of the form.
  3. Provide the Make, Year, Model, and VIN of the vehicle.
  4. Enter the Date of Purchase, Name of Seller, and Purchase Price.
  5. List all parts used to make the vehicle roadworthy in the designated section.
  6. Detail the repairs made to the vehicle in the appropriate section.
  7. Indicate whether you completed the work yourself or authorized someone else to complete it. If applicable, provide the name of the individual or business and their address.
  8. Confirm that invoices and receipts for parts and labor are available for inspection.
  9. Fill in the name of the individual applying for the Colorado Rebuilt from Salvage Title.
  10. Sign and date the form, certifying the accuracy of the statements provided.
  11. If applicable, have a P.O.S.T. certified inspector examine the vehicle and complete the verification section, including their printed name, date of inspection, signature, title, and agency.

Your Questions, Answered

What is the purpose of the Colorado DR 2424 form?

The Colorado DR 2424 form is used to apply for a Rebuilt from Salvage title for a vehicle that was previously branded as salvage. When a vehicle is deemed salvage, it means it has been damaged to the extent that it is not roadworthy. This form certifies that the necessary repairs have been made, allowing the vehicle to be legally driven on Colorado roads again.

What information do I need to provide on the DR 2424 form?

When filling out the DR 2424 form, you will need to provide several key details, including:

  1. The salvage title number and the date it was issued.
  2. Details about the vehicle, such as its make, year, model, and VIN (Vehicle Identification Number).
  3. The date of purchase, the name of the seller, and the purchase price.
  4. A list of parts used to repair the vehicle and a description of the repairs made.
  5. Information about who completed the repairs, either yourself or a certified repair professional.

Additionally, you must indicate that you have the necessary invoices or receipts available for inspection.

Who can complete the repairs and sign the form?

You have two options when it comes to repairs. You can either complete the work yourself or hire a certified professional to do it. If you choose to have someone else perform the repairs, you must provide their name and the name of their agency on the form. The inspector who verifies the repairs must also be P.O.S.T. certified, ensuring that the inspection meets state requirements.

What happens after I submit the DR 2424 form?

After you submit the completed DR 2424 form along with any required documentation, the county motor vehicle office will review your application. If everything is in order, they will issue a Rebuilt from Salvage title for your vehicle. This title indicates that the vehicle has been repaired and is now roadworthy. Keep in mind that the process may take some time, so it’s a good idea to follow up with the office if you do not receive any updates.

Common mistakes

  1. Failing to provide the correct salvage title number. This number is crucial for identifying the vehicle's history.

  2. Not including the VIN (Vehicle Identification Number). The VIN is essential for verifying the vehicle's identity and history.

  3. Omitting the date of purchase. This date helps establish the timeline of ownership and repairs.

  4. Neglecting to list all parts used in the repairs. A complete list is necessary to demonstrate the work done on the vehicle.

  5. Not detailing the repairs made. Providing a comprehensive account of repairs is vital for the approval process.

  6. Indicating that the work was done by someone else without providing their name and contact information. This information is needed for verification purposes.

  7. Failing to include invoices or receipts for parts and labor. These documents are necessary for inspection by the county motor vehicle office.

  8. Not signing the application. The applicant's signature confirms that the information provided is accurate.

  9. Submitting the form without a certified inspector's verification. This step is essential for the application to be processed.

Documents used along the form

When dealing with the Colorado DR 2424 form, which is used to apply for a Rebuilt from Salvage title, there are several other documents that are often required or recommended. These documents help to provide additional information and support for the application process. Below is a list of commonly used forms and documents that you might encounter.

  • Salvage Title: This document is issued when a vehicle is declared a total loss by an insurance company. It serves as proof that the vehicle has been previously damaged and is essential for the application of a Rebuilt from Salvage title.
  • VIN Inspection Form: This form is completed by a certified inspector to verify the vehicle's identification number (VIN) and confirm that the vehicle has been repaired. It is crucial for ensuring that the vehicle meets state requirements for roadworthiness.
  • Proof of Ownership: This may include a bill of sale or previous title documents. This evidence is necessary to show that the applicant is the rightful owner of the vehicle and has the legal right to apply for a title.
  • Repair Receipts: These documents provide a detailed account of the parts and labor used in the vehicle's repairs. They are important for demonstrating that the vehicle has been properly restored and is safe for use on public roads.

Understanding these accompanying documents can help streamline the process of obtaining a Rebuilt from Salvage title in Colorado. Being prepared with the necessary paperwork ensures that the application is completed smoothly and efficiently.

Similar forms

The Colorado DR 2424 form is similar to the Application for Title and Registration (Form DR 2395). Both documents are essential for obtaining a title for a vehicle, but while the DR 2395 is used for standard vehicle registration, the DR 2424 specifically addresses vehicles that have been rebuilt from salvage. The DR 2395 requires details about the vehicle, ownership history, and any liens, whereas the DR 2424 focuses on the repairs made to restore the vehicle to roadworthy condition.

Another related document is the Colorado Bill of Sale (Form DR 2173). This form serves as proof of the transaction between the buyer and seller of a vehicle. While the Bill of Sale documents the sale, the DR 2424 provides a statement of facts about the vehicle's condition after repairs. Both documents require signatures from the involved parties, ensuring a clear record of ownership transfer and the vehicle's status.

The Affidavit of Ownership (Form DR 2408) is also comparable. This document is used when the owner cannot provide a title for a vehicle, often applicable in cases of lost or stolen titles. Similar to the DR 2424, it requires the applicant to certify the truthfulness of their statements. However, the DR 2408 focuses on establishing ownership rather than detailing the repairs made to the vehicle.

The Colorado VIN Inspection Form (Form DR 2698) shares similarities with the DR 2424 in that both require verification of the vehicle's identification number. The VIN Inspection Form is specifically used to confirm the VIN for registration purposes, while the DR 2424 includes a verification process by a certified inspector to ensure the vehicle is roadworthy after repairs. Both documents help maintain the integrity of vehicle records in Colorado.

Additionally, the Statement of Facts (Form DR 2425) is relevant. This form is used to provide additional information regarding a vehicle's title history or status. While the DR 2425 can be utilized for various situations, the DR 2424 specifically addresses the process of obtaining a Rebuilt from Salvage title. Both forms require factual statements and may involve inspections, but they serve different purposes in the title application process.

The Colorado Rebuilt Title Application (Form DR 2426) is another similar document. This form is specifically designed for vehicles that have undergone substantial repairs and are eligible for a rebuilt title. It requires information about the repairs and the vehicle’s history, much like the DR 2424. However, the DR 2426 may have different requirements based on the extent of the damage and repairs made to the vehicle.

The Application for a Duplicate Title (Form DR 2530) also bears resemblance. This document is used when a vehicle owner needs a replacement title due to loss or damage. While the DR 2424 focuses on vehicles that have been rebuilt, both forms require the applicant to provide personal information and details about the vehicle. They also serve to ensure that accurate records are maintained within the state’s motor vehicle department.

The Colorado Odometer Disclosure Statement (Form DR 2489) is relevant as well. This document is used to disclose the odometer reading at the time of sale or transfer. While the DR 2424 does not specifically address odometer readings, both forms are crucial in the process of title transfer and vehicle registration. Accurate odometer information is essential for maintaining transparency in vehicle history.

Finally, the Colorado Title Transfer Form (Form DR 2394) is another document that shares similarities with the DR 2424. This form is used when transferring ownership of a vehicle, requiring details about the seller, buyer, and vehicle. While the DR 2424 is focused on vehicles that have been repaired and are now roadworthy, both forms are integral to the title process and ensure that ownership records are accurately updated in the state’s database.

Dos and Don'ts

When filling out the Colorado DR 2424 form, it's important to ensure accuracy and compliance with the requirements. Here are some key dos and don'ts to keep in mind:

  • Do double-check all vehicle information, including the make, model, and VIN, to ensure it matches official documents.
  • Do provide a complete list of parts used in the repairs. Be thorough and specific.
  • Do include detailed descriptions of the repairs made to the vehicle. This helps clarify the work done.
  • Do sign and date the form to confirm that all information is accurate to the best of your knowledge.
  • Don't leave any sections blank. If a section does not apply, indicate that clearly.
  • Don't forget to keep copies of all invoices and receipts related to the repairs. These may be requested later.
  • Don't submit the form without ensuring that it has been reviewed for any errors or omissions.

Misconceptions

Misconceptions about the Colorado DR 2424 form can lead to confusion and delays in the title application process. Below are five common misconceptions, along with clarifications for each.

  • It is only for vehicles that are completely rebuilt. Many believe that the DR 2424 form is only applicable to vehicles that have undergone extensive rebuilding. In reality, this form can be used for any vehicle that has been repaired and is now roadworthy, even if the repairs were minor.
  • Only professional mechanics can fill out the form. Some think that only certified mechanics can complete the DR 2424. However, the form allows individuals to certify their own work, provided they have made the necessary repairs or authorized someone else to do so.
  • All repairs must be documented with receipts. While it is highly recommended to keep receipts for parts and labor, the form does not strictly require that all repairs be documented. The applicant should be prepared to provide details about the repairs, but the absence of receipts does not automatically disqualify the application.
  • The form guarantees approval of the rebuilt title. Some individuals assume that submitting the DR 2424 guarantees that their application for a Rebuilt from Salvage title will be approved. Approval is contingent on the vehicle passing inspection by a P.O.S.T. certified inspector, as well as meeting all other requirements.
  • The form is only needed for cars. Another misconception is that the DR 2424 is applicable only to passenger vehicles. In fact, this form can be used for various types of vehicles, including trucks and motorcycles, as long as they are branded as salvage and have been made roadworthy.

Key takeaways

Here are key takeaways about filling out and using the Colorado DR 2424 form:

  • The form is used to apply for a Rebuilt from Salvage title in Colorado.
  • Ensure the vehicle is roadworthy before completing the form.
  • Provide accurate details about the vehicle, including make, year, model, and VIN.
  • List all parts used to make the vehicle roadworthy in the designated section.
  • Detail the repairs made to the vehicle, including any professional work done.
  • State whether the applicant completed the repairs themselves or authorized a repair shop.
  • Keep invoices and receipts for parts and labor, as they must be available for inspection.
  • The applicant must certify that all information provided is true and accurate under penalty of perjury.
  • A P.O.S.T. certified inspector must verify the vehicle and the repairs made.
  • Submit the completed form to the county motor vehicle office to finalize the title application.