Blank Chicago Title Waiver Format PDF Form

Blank Chicago Title Waiver Format PDF Form

The Chicago Title Waiver Format form is a legal document used in Illinois to waive any lien rights related to construction work on a specific property. It serves as a formal declaration that a contractor or supplier relinquishes any claims they might have for payment due to labor or materials provided. Understanding this form is essential for anyone involved in real estate or construction contracts in Illinois.

Fill out the form by clicking the button below.

The Chicago Title Waiver Format form plays a crucial role in the construction and real estate industries in Illinois by providing a clear and efficient method for contractors and subcontractors to waive their lien rights. This form serves as a formal declaration where the undersigned affirms their completion of work on a specified property, thereby releasing any claims on the property that could arise from unpaid labor or materials. Within the document, details such as the names of all involved parties, the nature of work performed, and the amounts owed are meticulously documented. It includes the total contract price and any payments received prior to the completion of the form, promoting transparency and accountability among all parties involved. Additionally, the form must be notarized, ensuring that the information provided is legitimate and binding. Importantly, it emphasizes that the waiver includes not only the base contract but also any extras, such as change orders, ensuring comprehensive coverage and safeguarding the owner's rights. By utilizing this standardized format, all stakeholders can navigate their contractual obligations with clarity and security, minimizing potential disputes and fostering trust in business transactions.

Document Sample

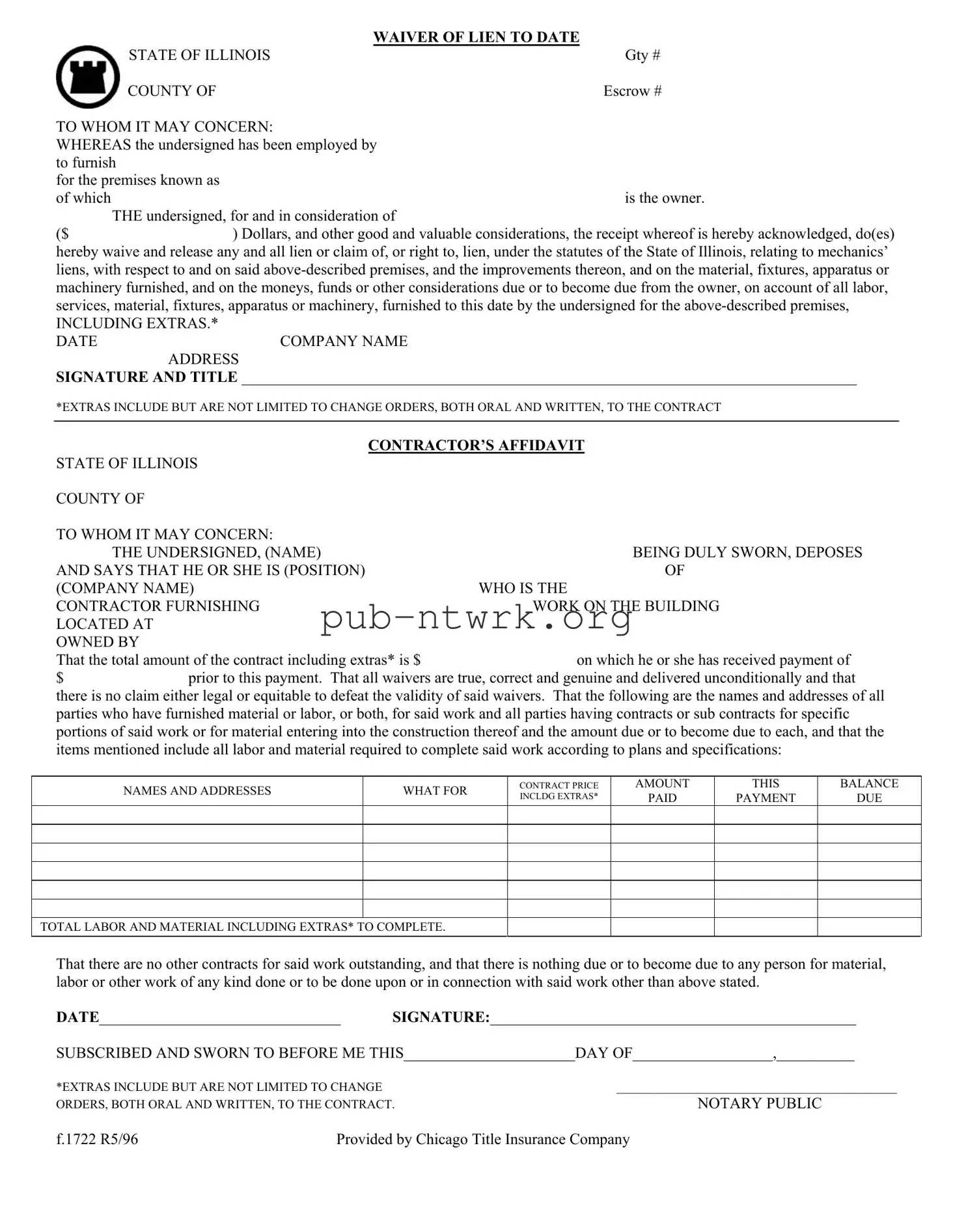
WAIVER OF LIEN TO DATE
S STATE OF ILLINOIS Gty #
COUNTY OF Escrow #
TO WHOM IT MAY CONCERN:
WHEREAS the undersigned has been employed by
to furnish
for the premises known as
of which is the owner.
THE undersigned, for and in consideration of
($ ) Dollars, and other good and valuable considerations, the receipt whereof is hereby acknowledged, do(es)
hereby waive and release any and all lien or claim of, or right to, lien, under the statutes of the State of Illinois, relating to mechanics’
liens, with respect to and on said above-described premises, and the improvements thereon, and on the material, fixtures, apparatus or
machinery furnished, and on the moneys, funds or other considerations due or to become due from the owner, on account of all labor,
services, material, fixtures, apparatus or machinery, furnished to this date by the undersigned for the above-described premises,
INCLUDING EXTRAS.*
DATE COMPANY NAME
ADDRESS
SIGNATURE AND TITLE _______________________________________________________________________________
*EXTRAS INCLUDE BUT ARE NOT LIMITED TO CHANGE ORDERS, BOTH ORAL AND WRITTEN, TO THE CONTRACT
CONTRACTOR’S AFFIDAVIT
STATE OF ILLINOIS
COUNTY OF
TO WHOM IT MAY CONCERN:
THE UNDERSIGNED, (NAME) BEING DULY SWORN, DEPOSES
AND SAYS THAT HE OR SHE IS (POSITION) OF
(COMPANY NAME) WHO IS THE
CONTRACTOR FURNISHING WORK ON THE BUILDING
LOCATED AT
OWNED BY
That the total amount of the contract including extras* is $ on which he or she has received payment of
$ prior to this payment. That all waivers are true, correct and genuine and delivered unconditionally and that
there is no claim either legal or equitable to defeat the validity of said waivers. That the following are the names and addresses of all
parties who have furnished material or labor, or both, for said work and all parties having contracts or sub contracts for specific
portions of said work or for material entering into the construction thereof and the amount due or to become due to each, and that the
items mentioned include all labor and material required to complete said work according to plans and specifications:
NAMES AND ADDRESSES WHAT FOR
CONTRACT PRICE
INCLDG EXTRAS*
AMOUNT
PAID
THIS
PAYMENT
BALANCE
DUE
TOTAL LABOR AND MATERIAL INCLUDING EXTRAS* TO COMPLETE.
That there are no other contracts for said work outstanding, and that there is nothing due or to become due to any person for material,
labor or other work of any kind done or to be done upon or in connection with said work other than above stated.
DATE_______________________________ SIGNATURE:_______________________________________________
SUBSCRIBED AND SWORN TO BEFORE ME THIS______________________DAY OF__________________,__________
*EXTRAS INCLUDE BUT ARE NOT LIMITED TO CHANGE _____________________________________________
ORDERS, BOTH ORAL AND WRITTEN, TO THE CONTRACT. NOTARY PUBLIC
f.1722 R5/96 Provided by Chicago Title Insurance Company

File Specifics

Fact Name Description
Purpose The Chicago Title Waiver Format form is designed to waive mechanics' liens, allowing contractors or suppliers to relinquish any claims against a property for unpaid work or materials.
Governing Law This form operates under the statutes of the State of Illinois, specifically those pertaining to mechanics’ liens.
Parties Involved Typically, the form involves the contractor or supplier who provides services or materials and the property owner for whom the work is done.
Consideration It requires a specified amount of money as consideration, acknowledging that the contractor has been compensated for their services.
Extras Definition The term "extras" refers to additional work or materials that go beyond the original contract, including change orders, both oral and written.
Affidavit Requirement An affidavit is included, where the contractor verifies the truthfulness of the waivers and confirms no further claims are due to any parties involved.
Notarization The form must be notarized, adding a level of authenticity and ensuring that the information provided is accurate and binding.

How to Use Chicago Title Waiver Format

Follow these steps to complete the Chicago Title Waiver Format form. Ensure that all information is accurate. After filling out the form, you will need to have it signed and notarized for it to be valid.

  1. Enter the Company Name at the top of the form.
  2. Fill in the Waiver of Lien To Date section with the current date.
  3. Provide the State and County information, as well as the Escrow Number.
  4. Clearly indicate the name of the owner of the premises.
  5. For consideration, write the agreed amount in dollars.
  6. Describe the premises that the waiver applies to, including the address.
  7. Sign and date the form in the designated signature and title section.
  8. For the Contractor’s Affidavit section, write your name and position.
  9. Fill in the name of the company that is the contractor.
  10. State the total amount of the contract, including any extras.
  11. Indicate the total payment received prior to this transaction.
  12. List all parties that provided labor or materials along with their respective addresses and amounts due.
  13. Complete the balance due section for total labor and materials.
  14. Indicate that there are no outstanding contracts and nothing else is due.
  15. Sign and date the affidavit section.
  16. Arrange for the notary public to complete their section with the date and their signature.

Your Questions, Answered

What is the purpose of the Chicago Title Waiver Format form?

The Chicago Title Waiver Format form is used to waive and release any lien or claim against a property in Illinois. It helps ensure that the contractor or subcontractor cannot place a lien on the property for unpaid work or materials after receiving payment. This protects property owners, making it clear that all obligations have been settled.

When should the form be used?

This form should be used during the payment process when a contractor, subcontractor, or supplier completes work or provides materials for a property. It should be signed and submitted before or at the time of receiving payment, confirming that previous debts associated with the work have been cleared.

Who needs to sign the form?

The form must be signed by the contractor or subcontractor providing the services or materials. Their title and company name should be included to ensure it is clear who is waiving their right to claim a lien.

What information needs to be included in the form?

The following details are essential for completing the form:

  • Company name of the contractor or subcontractor
  • Property address
  • Payment amount for which the waiver is being issued
  • A description of the work performed or materials provided
  • Any extras or changes to the original contract
  • Signature and title of the person signing the form
  • Date of the waiver
  • The notarization date

What are "extras" as mentioned in the form?

Extras refer to any additional work or materials that were not part of the original contract. This may include changes that were agreed upon, whether these changes were communicated verbally or in writing. It’s important to note these extras when calculating the total contract amount.

Is it possible to revoke this waiver after it’s signed?

No, once the waiver is signed and submitted, it cannot be revoked. The signing of the waiver confirms that the contractor or subcontractor has received payment and is relinquishing their right to claim a lien for that work.

What happens if the waiver is not provided?

If the waiver is not provided, the contractor or subcontractor may still retain the right to file a lien against the property for unpaid work. This can create complications for property owners when attempting to sell or refinance their property since any lien needs to be resolved before these transactions can proceed.

How can I ensure the waiver is legally binding?

For the waiver to be legally binding, it must be signed by the appropriate party and notarized. The signing should occur in the presence of a notary public to add an extra layer of verification and validity to the document.

Common mistakes

  1. Incomplete Company Information: It is essential to enter the correct company name at the beginning of the form. If omitted or incorrect, it could cause delays or complications in validating the waiver.

  2. Incorrect Owner Details: Failing to provide the correct details of the property owner can lead to disputes. Always ensure that the owner’s name matches the legal documents.

  3. Missing Signatures: The waiver must be signed by the appropriate individuals. Ignoring this step could render the waiver invalid, making it crucial to verify that all necessary parties have signed.

  4. Failure to Include Payment Details: Not specifying the total contract amount or the payments received may create ambiguity. It's vital to accurately fill in all financial figures to avoid misunderstandings later.

  5. Neglecting to List All Parties: Omitting any subcontractors or suppliers who provided materials or labor can lead to legal issues. Complete transparency about all parties involved is necessary to ensure compliance with local laws.

Documents used along the form

The Chicago Title Waiver Form is a key document in the realm of real estate transactions, particularly in construction and renovation projects. However, it often exists in tandem with a variety of other forms that are equally important. Whether you're a contractor, property owner, or involved in real estate, understanding these additional forms can simplify your process and protect your interests.

  • Contractor’s Affidavit: This affidavit declares the contractor's responsibility and confirms the total value of the contract, including any additional expenses, while affirming that all payments received have been accounted for. It's a crucial document for substantiating claims made in the waiver.
  • Notice of Intent to Lien: Provided before filing a lien against a property, this document serves as a warning to the property owner about potential legal action if payment is not received. It creates a formal record of the claim to ensure better accountability.
  • Mechanics’ Lien: This legal document asserts a contractor’s or supplier's right to seek payment for unpaid services or materials supplied. If payment issues arise, this lien can be placed against the property, potentially impacting its marketability.
  • Change Order: Issued when changes to the original construction contract are required, change orders document alterations in scope, duration, or cost. They ensure that all parties are in agreement regarding the modifications, protecting contractors and owners alike.
  • Release of Lien: This form is used to formally retract a previously filed lien once payment has been made. It releases the property from the claim and clarifies that there are no outstanding dues related to the work performed.
  • Affidavit of Completion: Crafted to confirm that a construction project is officially completed, this affidavit provides evidence that all contracted work has been finished according to the agreed terms, which can also facilitate final payments.
  • Payment Application: A document submitted by contractors to request payment for completed stages of the project. This application reveals how much work has been done and outlines payment amounts based on contract terms.
  • Addendum: An addendum is an additional document that modifies the original contract terms. This attachment is crucial for ensuring that all parties are aware of any updates or changes that have been agreed upon after the initial signing.

When navigating real estate transactions, particularly those involving construction, familiarity with these forms can be invaluable. They not only facilitate smoother operations, but they also safeguard the interests of everyone involved, from property owners to contractors. Being prepared ensures you can better handle any potential issues that may arise.

Similar forms

The Chicago Title Waiver Format form shares similarities with the General Release of Lien document. Like the waiver, the release serves to extinguish any lien claims against a property. Both documents are created to ensure that contractors, subcontractors, and suppliers confirm they have been paid for work completed. This helps protect property owners from potential disputes or claims that may arise after payments have been made. Essentially, they both provide reassurance regarding the financial obligations tied to renovations or new construction.

Another closely related document is the Lien Waiver Affidavit. This affidavit not only confirms that payment has been made to the contractor but also affirms that all parties involved in the project, including subcontractors and suppliers, have been paid their due amounts. Like the Chicago Title Waiver Format form, it aims to mitigate legal risks for property owners by eliminating claims against the property once payment is rendered. It highlights transparency in financial transactions related to construction work.

The Subcontractor Lien Waiver is another document similar in nature. This waiver specifically pertains to subcontractors who have performed work on a property. Similar to the Chicago Title Waiver, it indicates that a subcontractor accepts payment in exchange for waiving their right to file a lien against the property in the future. This ensures that property owners have a clear title, free from unexpected lien claims, which enhances the peace of mind during and after construction projects.

The Conditional Waiver and Release on Progress Payment is yet another document that bears resemblance. It serves as a temporary waiver that is contingent upon a specified payment being made. Just like the Chicago Title Waiver, it functions to protect the improvement of the property by confirming that contingent lien rights are waived. This document is particularly useful in ongoing projects where multiple payments are structured, allowing contractors to keep working without potential claims hampering progress.

The Final Waiver and Release on Payment is also similar to the Chicago Title Waiver Format form. This document signifies that full and final payment has been received and any claim to file a lien has been relinquished. It reassures property owners that all parties involved in the construction have been compensated, thus minimizing complications regarding unpaid work or materials. Like the Chicago Title Waiver, it supports clean title transfers without lingering claims against the property.

The Contractor’s Final Affidavit has similarities as well. This document is often utilized towards the end of a project to affirm that all contractors, subcontractors, and suppliers have been paid in full. It aligns with the purpose of the Chicago Title Waiver by ensuring that there are no pending claims or outstanding issues concerning payments. This is crucial in closing out construction contracts and providing necessary documentation to property owners.

The Affidavit of Payment is yet another document linked in function to the Chicago Title Waiver. It serves to confirm that payment obligations have been met and releases the property from liens. Much like the waiver, it builds confidence for property owners that they are clear from claims by previous contractors or subcontractors after payments are finalized. This process protects the integrity of the property title during transactions.

The Notice of Completion form shares similar goals with the Chicago Title Waiver. It serves as an official statement that construction work has been completed, which in turn helps in beginning the lien waiver process. The completion notice enables property owners to establish a point in time where any claims for payment must be made, thus aligning closely with the mechanics of the Chicago Title Waiver in protecting against future lien claims.

Lastly, the Contractor’s Statement of Account closely mirrors the Chicago Title Waiver Format form in its function. This document provides a detailed account of all payments made and due to contractors and any material suppliers. It reassures property owners that all financial obligations related to the project have been addressed. This also enhances clarity and accountability in construction financing, similar to how the Chicago Title Waiver seeks to protect the interests of property owners during the construction process.

Dos and Don'ts

When filling out the Chicago Title Waiver Format form, attention to detail is crucial. Here are six important practices to adopt and avoid.

  • Do ensure that all information is accurate and matches official documents. This includes the company name, contractor's name, and property address.
  • Don't leave any sections blank. Each part of the form serves a purpose and should be filled out completely.
  • Do double-check financial figures. Confirm the total amount of the contract, payments received, and balances due to avoid discrepancies.
  • Don't use abbreviations or shorthand. Clarity is key; every party involved must understand the details clearly.
  • Do have the necessary parties sign the form. Obtain signatures from all required individuals to validate the waiver.
  • Don't forget to notarize the document. Ensure the signature is witnessed by a notary public for legal authenticity.

By following these guidelines, you can help ensure that the waiver form is completed correctly, reducing the likelihood of any issues arising later.

Misconceptions

Here are seven common misconceptions about the Chicago Title Waiver Format form. Understanding these can help clarify its purpose and functionality.

  • It is only for contractors. Many believe this form is exclusively for contractors, but it also applies to subcontractors and material suppliers who wish to release lien rights.
  • It's a guarantee of payment. Some think that signing this waiver ensures they will be paid. It simply indicates they are waiving their lien rights as of the specified date.
  • All extras are automatically waived. People often assume that all additional costs are included in the waiver. However, it must be specified that the waiver covers any extras, including change orders.
  • The form is only valid in certain counties. There’s a belief that the Chicago Title Waiver is restricted to specific areas. In reality, it’s recognized throughout the entire state of Illinois, provided it meets local regulations.
  • Signature is the only requirement. Some think signing the waiver is the only step. However, notarization is usually required for added validation.
  • It eliminates all claims from other parties. There’s a misconception that signing this waiver wipes out claims from all other contractors or suppliers involved. The waiver only affects the rights of the signer, not other parties.
  • Once signed, it can’t be revoked. Many believe that a waiver is permanent. While it’s true that it releases lien rights, it can be challenged if it’s proven that the terms were not met or there was fraud.

Clearing up these misconceptions can save time and prevent misunderstandings when dealing with liens and payments in construction-related work.

Key takeaways

Filling out the Chicago Title Waiver Format form correctly is crucial for anyone involved in construction or property management. Here are some key takeaways:

  • The form serves as a formal waiver of lien, which protects the property owner from potential claims by contractors and suppliers.
  • It must include the company name, date, and specific details about the project and the premises involved.
  • The payment amount being acknowledged must be clearly stated. It should reflect the consideration received to waive the lien.
  • Both the signature and title of the undersigned are required for validation. Ensure these are included.
  • Be aware that "extras" refers to changes or additions to the original contract, including oral agreements.
  • Complete the Contractor's Affidavit section to provide transparency regarding payments made and any outstanding balances on the project.
  • The form needs to be notarized to ensure its legitimacy. Without notarization, it may not hold up in legal situations.
  • Lastly, keep copies of the completed form alongside any related documentation. This will assist in managing future claims or disputes.

Common PDF Forms