Blank California Id 1060 PDF Form

Blank California Id 1060 PDF Form

The California ID 1060 form is an application for a contractor's license bond, essential for individuals and businesses operating in the construction industry. This form gathers vital information about the applicant, including their business structure and financial status, to assess creditworthiness and ensure compliance with state regulations. For contractors seeking to secure their bond, filling out the ID 1060 form is a crucial step; click the button below to get started.

The California ID 1060 form is an essential document for contractors seeking to obtain a license bond in the state of California. This form serves as an application for a bond, which is a type of credit relationship rather than an insurance policy. It requires detailed information about the applicant, including their business structure—whether they are an individual, corporation, LLC, partnership, or a qualifying individual under a Responsible Managing Employee (RME) or Responsible Managing Officer (RMO). The form asks for the business address, contact details, and specific personal information about the owners or partners involved. Additionally, it inquires about the applicant's financial history, including any past claims against bonds, unpaid judgments, or bankruptcies. It is crucial for applicants to understand that they, along with any indemnitors, are jointly responsible for the obligations covered by the bond. The form also emphasizes the importance of providing accurate and complete information to facilitate the underwriting process. For roofing and swimming pool contractors, separate underwriting requirements apply, necessitating the use of an alternative application. Completing the California ID 1060 form accurately is vital for securing the necessary bond and ensuring compliance with state regulations.

Document Sample

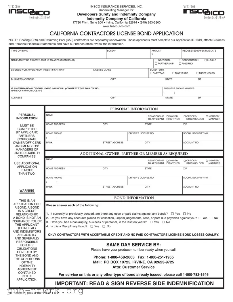
INSCO INSURANCE SERVICES, INC.

Underwriting Manager for:

Developers Surety and Indemnity Company

Indemnity Company of California

17780 Fitch, Suite 200 • Irvine, California 92614 • (949) 263-3300

www.InscoDico.com

CALIFORNIA CONTRACTORS LICENSE BOND APPLICATION

NOTE: Roofing (C39) and Swimming Pool (C53) contractors are separately underwritten. Those applicants must complete our Application ID-1049, attach Business and Personal Financial Statements and have our branch office review the information.

TYPE OF BOND

BOND #

AMOUNT

$

REQUESTED EFFECTIVE DATE

NAME (MUST BE EXACTLY AS IT IS TO APPEAR ON BOND)

n INDIVIDUAL

n CORPORATION

n LLC/LLP

n PARTNERSHIP

n RME/RMO

 

LICENSE # OR APPLICATION INDENTIFICATION #

LICENSE CLASS

BOND TERM

 

 

n ONE YEAR

n TWO YEARS

n THREE YEARS

BUSINESS ADDRESS

CITY

STATE

ZIP

IF RME/RMO (BOND OF QUALIFYING INDIVIDUAL) COMPLETE THE FOLLOWING:

 

BUSINESS PHONE NUMBER

 

 

 

NAME OF FIRM ON LICENSE

 

(

)

 

 

 

 

 

 

 

 

 

ADDRESS

CITY

STATE

ZIP

PERSONAL

INFORMATION

MUST BE

COMPLETED

BY APPLICANT,

PARTNERS,

CORPORATE

OWNER/OFFICERS

AND MEMBERS/ MANAGERS OF LIMITED LIABILITY COMPANIES.

USE ADDITIONAL

APPLICATION

IF MORE

THAN TWO.

WARNING

THIS IS AN

APPLICATION FOR A BOND. A BOND IS A CREDIT RELATIONSHIP.

A BOND IS NOT AN INSURANCE POLICY. THE APPLICANT (PRINCIPAL)

AND INDEMNITORS

ARE JOINTLY

AND SEVERALLY

RESPONSIBLE

FOR THE

OBLIGATIONS

COVERED BY

THE BOND AND

THE CONDITIONS

OF THE

INDEMNITY

AGREEMENT

CONTAINED

IN THIS

APPLICATION.

PERSONAL INFORMATION

NAME

 

 

 

RELATIONSHIP

n OWNER

n OFFICER/

n MEMBER/

 

 

 

 

 

 

 

 

TO APPLICANT

n PARTNER

STOCKHOLDER

MANAGER

 

 

 

 

 

 

 

HOME ADDRESS

CITY

STATE

 

ZIP

 

 

 

 

 

 

 

HOME PHONE

 

DRIVER’S LICENSE NO.

 

SOCIAL SECURITY NO.

(

)

 

 

 

 

 

 

 

 

 

 

 

 

 

 

BANK

 

STREET ADDRESS

CITY

 

ACCOUNT NO.

 

 

 

 

 

 

 

 

 

 

 

 

 

 

 

 

 

ADDITIONAL OWNER, PARTNER OR MEMBER AS REQUIRED

NAME

 

 

 

RELATIONSHIP

n OWNER

n OFFICER/

n MEMBER/

 

 

 

 

 

 

 

 

TO APPLICANT

n PARTNER

STOCKHOLDER

MANAGER

 

 

 

 

 

 

 

HOME ADDRESS

CITY

STATE

 

ZIP

 

 

 

 

 

 

 

HOME PHONE

 

DRIVER’S LICENSE NO.

 

SOCIAL SECURITY NO.

(

)

 

 

 

 

 

 

 

 

 

 

 

 

 

 

BANK

 

STREET ADDRESS

CITY

 

ACCOUNT NO.

 

 

 

 

 

 

 

 

 

 

 

 

 

 

 

 

 

 

BOND INFORMATION

 

 

Please answer each of the following:

1.

If currently or previously bonded, are there any open or paid claims against any bonds? n Yes n No

2.

Do you have any accounts placed for collection, unpaid judgements, liens, or past due payables against you? n Yes n No

3.

Have you had a bankruptcy, business or personal, in the last ten years? n Yes n No

4.

Is this a Disciplinary Bond? n Yes n No

ONLY CONTRACTORS WITH ACCEPTABLE CREDIT AND NO PAID CONTRACTORS LICENSE BOND LOSSES QUALIFY.

SAME DAY SERVICE BY:

Please have your producer number ready when you call.

Phone: 1-800-458-2663 Fax: 1-800-251-1955

Mail: PO BOX 19725, IRVINE, CA 92623-9725

Attn: Customer Service

For service on this or any other type of bond already issued, please call 1-800-782-1546

IMPORTANT: READ & SIGN REVERSE SIDE INDEMNIFICATION

ID-1060 (CA) (Rev. 3/10) • PAGE 1 of 2

INDEMNITY AGREEMENT — READ CAREFULLY

Principal and each of the other undersigned (collectively “Indemnitors”) affirm that the statements in the foregoing application are true and are made to induce Developers Surety and Indemnity Company and/or Indemnity Company of California (hereinafter “Surety”) to issue the bond or bonds described therein (collectively “Bond”), including any extensions, renewals, modifications or substitutions of or additions to the Bond. Each Indemnitor further affirms that he, she or it understands that a Bond is a credit relationship, and authorizes Surety or its authorized agent, Insco Insurance Services, Inc., to gather the information it considers necessary and appropriate to evaluate creditworthiness.

AS CONSIDERATION for issuing the Bond, Indemnitors hereby jointly and severally agree, for themselves, their personal representatives, successors and assigns:

1.To fully reimburse Surety and indemnify it against all liability, loss, claims, demands, attorney’s fees, costs and expenses of every kind and nature which Surety incurs or for which it may become liable as a consequence of issuing the Bond (collectively “Loss”), regardless of whether the Surety has actually received a claim or paid any amount.

2.To pay Surety the initial, fully earned, premium and all subsequent renewals, extensions, or modifications until there is no further liability under the Bond.

3.Surety may, at its sole discretion, deny, pay, compromise, defend or appeal any claim or suit against the Bond. An itemized statement of or sworn voucher from the Surety attesting to the Loss shall be prima facie evidence of the Loss.

4.If Surety establishes a reserve account, the Indemnitors shall immediately upon demand provide Surety with acceptable collateral equal to the reserve set and any future reserve increases, whether or not Surety has yet made a payment or incurred a Loss. Surety may retain the collateral until all actual and potential claims against the bond are exonerated and all loss is fully reimbursed.

5.All money and other proceeds of the obligations covered by the Bond (“Obligation”) are received by Principal in trust for the benefit of Surety for the sole purpose of performing the Obligation until the Surety’s liability is completely exonerated.

6.To secure Indemnitors’ duties and obligations to Surety, Indemnitors, upon Surety’s declaration of principals default, assign to Surety all rights and title to and interest in all amounts due under the Obligation and under all other bonded and unbonded contracts; all agreements, notes, accounts or accounts receivable in which Indemnitors have any interest; and all subcontracts under the Obligation.

7.Each Indemnitor irrevocably appoints Surety or its designee as his, her or its attorney-in-fact with the right and power, but not the obligation, to exercise all of the rights assigned to Surety under this Agreement and to make, execute and deliver any and all additional contracts, instruments, assignments, documents or papers (including, but not limited to, the endorsement of checks or other instruments payable to Principal or any Indemnitor representing payment of Obligation monies) deemed necessary and proper by Surety in order to give full effect to the intent and meaning of the assignments or rights contained herein. It is expressly agreed that this power-of-attorney is coupled with the interest of Surety in receiving the indemnification from Indemnitors. Indemnitors hereby ratify all acts by Surety or its designee as attorney-in-fact.

8.Until full satisfactory performance of the Obligation and exoneration of the Bond, Surety may freely access, examine and copy Indemnitors’ books, records, credit reports and accounts (“Records”). Indemnitors authorize third parties in possession of these Records to furnish to Surety any information requested in connection with any transaction.

9.Indemnitors agree that the place of performance of the obligations created by this Agreement or issuance of the Bond is Orange County, California.

10.Each Indemnitor agrees he, she or it is bound to every obligation in this Agreement regardless of (a) whether the principal fails to sign a Bond; (b) the existence, release, return, exchange or viability of or failure to obtain collateral or security securing Indemnitors’ duties and obligations under this Agreement; (c) the identity of any other Indemnitor; (d) whether or not any other Indemnitor is bound; or (e) the failure of any other person or entity to sign this Agreement.

11.Indemnitors expressly waive notice of any claim or demand against the Bond or information provided to the Surety. Surety shall have the right to decline issuance of any or all bonds and may cancel, withdraw or procure its release from the Bond or any bond at any time, without incurring liability to Indemnitors.

12.As used in this Agreement, the plural and singular shall include each other as circumstances require. If any portion of this Agreement is unenforceable that portion shall be considered deleted with the remainder continuing in full force and effect.

13.A facsimile, photocopy, electronic or optical reproduction shall be admissible in a court of law with the same force and effect as the original.

14.This Agreement is a continuing obligation of the Principal and Indemnitors and may not be terminated.

15.As consideration for Surety’s execution of the Bond applied for, each Indemnitor jointly and severally agrees to be bound by all of the terms of this Agreement as though each were the sole applicant and each admits to being financially interested in the performance of the Obligation.

Signed this

 

day of

 

,

 

.

IMPORTANT

If a Sole Proprietorship, applicant must sign. Applicant and spouse must sign personal indemnity below.

If a Partnership, two authorized partners must sign on behalf of the firm. The two authorized partners and their spouses must sign personal indemnity below. If a Corporation, two corporate officers must sign below on behalf of firm. Owners of the corporation and their spouses must sign personal indemnity below.

If a Limited Liability Company, two managers/members must sign on behalf of the company. The two authorized managers/members and their spouses must sign personal indemnity below.

 

(Company Name)

 

(Indemnitor)

By:

 

 

 

(Name/Title)

 

(Signature)

 

 

 

 

 

(Signature)

 

(Spouse’s Signature)

By:

 

 

 

 

 

(Indemnitor)

 

(Name/Title)

 

 

 

 

 

 

(Signature)

 

(Signature)

 

 

 

 

 

 

 

(Spouse’s Signature)

AGENCY

CONTACT PERSON

PHONE

PRODUCER CODE

r AGENCY BILL r DIRECT BILL

ID-1060 (CA) (Rev. 3/10) • PAGE 2 of 2

File Specifics

Fact Name Details
Purpose of Form The California ID 1060 form is used for applying for a contractor's license bond.
Governing Law This form is governed by California Business and Professions Code, Section 7071.5.
Bond Types It includes options for various types of bonds, such as individual, corporation, LLC, partnership, and RME/RMO.
Application Review Roofing and swimming pool contractors must complete a separate application (ID-1049) for review.
Indemnification Agreement The form includes an indemnity agreement, emphasizing that a bond is a credit relationship, not insurance.
Personal Information Requirement Applicants must provide personal information for all owners, partners, and corporate officers.
Claims Disclosure Applicants must disclose any open or paid claims against previous bonds.
Bankruptcy History Disclosure of any bankruptcies within the last ten years is required on the form.
Service Contact For assistance, applicants can contact Insco Insurance Services at 1-800-458-2663.
Signature Requirements Depending on the business structure, specific signatures from owners or partners are required for validity.

How to Use California Id 1060

Filling out the California ID 1060 form is an important step in securing a contractor's license bond. Once you complete the form, you'll submit it to the appropriate agency for processing. This form requires personal and business information, so it's essential to gather all necessary details before you begin.

  1. Gather Required Information: Collect your business details, personal information, and any relevant financial information that may be required.
  2. Type of Bond: Indicate the type of bond you are applying for and provide the bond number and amount requested.
  3. Effective Date: Specify the effective date for the bond.
  4. Name: Write the name exactly as it should appear on the bond. Choose the appropriate entity type (individual, corporation, LLC/LLP, partnership, or RME/RMO).
  5. License Information: Enter your license number or application identification number and select the license class.
  6. Bond Term: Select the desired bond term (one year, two years, or three years).
  7. Business Address: Fill in your business address, including city, state, and ZIP code.
  8. Contact Information: Provide your business phone number and the name of the firm on the license.
  9. Personal Information: Complete the personal information section for yourself and any partners or corporate officers. Include home addresses, phone numbers, driver's license numbers, and social security numbers.
  10. Bank Information: Enter the street address of your bank and your account number.
  11. Bond Information: Answer the questions regarding any claims against previous bonds, unpaid judgments, bankruptcies, or whether this is a disciplinary bond.
  12. Indemnification Agreement: Read and sign the indemnification agreement on the reverse side of the form.
  13. Signature: Ensure the appropriate individuals sign the form, as required by your business structure (sole proprietorship, partnership, corporation, or LLC).
  14. Submit the Form: Send the completed form to the designated agency via mail, fax, or email as instructed.

Your Questions, Answered

  1. What is the California ID 1060 form?

    The California ID 1060 form is an application for a contractor's license bond. This form is specifically designed for contractors seeking to obtain a bond, which is a credit relationship, not an insurance policy. It includes personal information, business details, and indemnification agreements that are essential for the bond issuance process.

  2. Who needs to fill out the California ID 1060 form?

    Any contractor applying for a license bond in California must complete the California ID 1060 form. This includes individuals, corporations, LLCs, partnerships, and qualifying individuals under a contractor’s license. However, roofing and swimming pool contractors must use a different form, the Application ID-1049.

  3. What information is required on the form?

    The form requires various details, including:

    • Type of bond and requested amount
    • Effective date of the bond
    • Business and personal information of the applicant and any partners or members
    • Bond information regarding any past claims, unpaid judgments, or bankruptcies
  4. What does the indemnification agreement entail?

    The indemnification agreement outlines the responsibilities of the applicant and indemnitors. It states that they are jointly and severally responsible for any liabilities or losses incurred by the surety as a result of issuing the bond. This includes the obligation to reimburse the surety for claims, attorney’s fees, and other costs.

  5. Are there any specific requirements for applicants?

    Yes, applicants must have acceptable credit and no prior paid contractor license bond losses to qualify for the bond. Additionally, personal information must be provided for all owners, partners, or members associated with the business.

  6. What happens if there are claims against previous bonds?

    If there are open or paid claims against any previous bonds, this must be disclosed on the application. Such claims may impact the approval of the bond application, as they indicate potential risks associated with the applicant.

  7. How is the bond term structured?

    The bond term can be selected for one, two, or three years. The applicant must indicate their preferred term on the form, which will affect the duration of the bond’s validity and the associated premiums.

  8. What should I do if I have questions about the form?

    If you have questions or need assistance, you can contact the customer service department at Insco Insurance Services. They can be reached by phone, fax, or mail. It is advisable to have your producer number ready when calling for quicker assistance.

  9. Is the California ID 1060 form a legally binding document?

    Yes, by signing the California ID 1060 form, the applicant and indemnitors agree to the terms outlined in the indemnification agreement. This includes their obligations and responsibilities related to the bond, making it a legally binding document once executed.

Common mistakes

  1. Incorrect Name Format: Ensure the name is exactly as it should appear on the bond. Any variations can lead to delays.

  2. Missing Signature: All required parties must sign the application. A missing signature can result in rejection.

  3. Inaccurate Personal Information: Double-check personal details like Social Security numbers and driver’s license numbers. Errors can complicate processing.

  4. Omitting Financial History: Failing to disclose any bankruptcies or claims can lead to issues. Full transparency is crucial.

  5. Not Specifying Bond Amount: Clearly state the requested bond amount. Leaving this blank can cause delays in processing.

  6. Ignoring the Effective Date: Make sure to include the effective date for the bond. This information is essential for timely coverage.

  7. Neglecting to Provide Contact Information: Include accurate business phone numbers. This ensures the surety can reach you if needed.

  8. Incorrectly Identifying the Type of Bond: Choose the correct type of bond. Misidentifying it can lead to processing errors.

  9. Failure to Review the Application: Always review the completed application before submission. Small mistakes can lead to big problems.

  10. Not Including Additional Owners: If there are more than two owners or partners, use an additional application. Omitting this can result in incomplete information.

Documents used along the form

When applying for a contractor's license bond in California, the California ID 1060 form is essential. However, there are several other documents that often accompany this form to ensure a smooth application process. Each of these documents plays a crucial role in providing the necessary information for underwriting and approval. Below is a list of commonly used forms and documents that you may encounter.

  • Application ID-1049: This form is specifically for roofing (C39) and swimming pool (C53) contractors. It requires additional financial statements and must be reviewed by the branch office.
  • Business and Personal Financial Statements: These documents provide a detailed overview of the applicant's financial health, including assets, liabilities, income, and expenses.
  • Contractor's License: A copy of the contractor's license is necessary to verify that the applicant is legally authorized to operate in California.
  • Proof of Insurance: Contractors must show proof of liability insurance to protect against potential claims related to their work.
  • Credit Report: A recent credit report helps assess the financial responsibility of the applicant and is often required by surety companies.
  • Personal Identification: A valid driver’s license or state ID is needed to confirm the identity of the applicant and any partners involved.
  • Indemnity Agreement: This agreement outlines the responsibilities of the indemnitors and their obligations to reimburse the surety for any claims made against the bond.
  • Bank Reference Letter: A letter from the applicant's bank may be requested to verify the financial stability and banking history of the applicant.
  • Business License: A current business license is often required to demonstrate that the contractor is operating legally within their jurisdiction.

Gathering these documents can seem overwhelming, but each one serves a specific purpose in the application process. Ensuring that all forms are completed accurately and submitted together can significantly enhance the chances of a successful bond application. Being well-prepared can lead to a smoother experience and quicker approval times.

Similar forms

The California Contractor's License Bond Application (ID-1049) is closely related to the California ID 1060 form. Both documents serve as applications for bonds necessary for contractors to operate legally in California. The ID-1049 specifically targets roofing and swimming pool contractors, requiring additional financial statements and a review process. This ensures that the specific needs of these specialized contractors are met while maintaining the same fundamental purpose of securing a bond for business operations.

The Surety Bond Application is another document that shares similarities with the California ID 1060 form. This application is used by various businesses seeking a surety bond to guarantee their contractual obligations. Like the ID 1060, it requires personal information from the applicant and indemnitors, emphasizing the credit relationship involved. Both documents aim to protect the interests of the surety company while ensuring compliance with state regulations.

The Indemnity Agreement is also akin to the California ID 1060 form. This agreement outlines the responsibilities of the indemnitors in relation to the bond issued. Both documents highlight the importance of indemnification, where the indemnitors agree to cover any losses incurred by the surety. This shared focus on liability and financial responsibility makes the indemnity agreement a crucial counterpart to the bond application process.

The Personal Guarantee form is another document that complements the California ID 1060. This form is often required by lenders or sureties to ensure that individuals are personally liable for the obligations of their business. Similar to the ID 1060, it seeks to establish a personal commitment from the indemnitors, reinforcing the bond's security by holding individuals accountable for the business's financial obligations.

The Contractor's License Renewal Application is also relevant in this context. While primarily focused on renewing a contractor's license, it often requires proof of bonding similar to what is needed in the ID 1060. Both documents work together to ensure that contractors remain compliant with state regulations and maintain their ability to operate legally, emphasizing the ongoing nature of bonding requirements in the contracting industry.

Lastly, the Business License Application shares common ground with the California ID 1060 form. This application is essential for any business looking to operate legally within a municipality. Like the ID 1060, it often requires proof of bonding, ensuring that businesses meet local requirements. Both documents are integral to establishing a contractor's legitimacy and financial responsibility in their respective fields.

Dos and Don'ts

When filling out the California ID 1060 form, it’s important to follow some best practices to ensure your application is processed smoothly. Here are six things to do and avoid:

  • Do read the instructions carefully before starting.
  • Do provide accurate and complete information for all sections.
  • Do double-check your entries for any errors or omissions.
  • Do include any necessary attachments, such as financial statements if required.
  • Don't leave any mandatory fields blank; incomplete forms can delay processing.
  • Don't rush through the application; take your time to ensure everything is correct.

By following these guidelines, you can help facilitate a smoother application process for your bond request.

Misconceptions

Misconceptions about the California ID 1060 form can lead to confusion and mistakes. Here are six common misconceptions explained:

  • A bond is the same as insurance. Many people think that a bond functions like an insurance policy. In reality, a bond is a credit relationship. It does not provide the same protections as insurance.
  • Only large businesses need to fill out the form. This is not true. Any contractor, regardless of size, who wants to obtain a bond must complete the ID 1060 form.
  • Personal information is optional. Some believe that providing personal information is not necessary. However, the form requires detailed personal information from all owners and partners to assess creditworthiness.
  • Having past claims automatically disqualifies you. While past claims may raise concerns, they do not automatically disqualify an applicant. Each case is reviewed individually.
  • The form is only for new applicants. This misconception is incorrect. The ID 1060 form can also be used for renewals or modifications of existing bonds.
  • Once submitted, the form cannot be changed. Applicants can update or correct information after submission. It’s important to notify the surety of any changes as soon as possible.

Understanding these points can help streamline the application process and avoid unnecessary delays. Always ensure that all information is accurate and complete to facilitate approval.

Key takeaways

Filling out the California ID 1060 form requires attention to detail and understanding of the bond application process. Here are some key takeaways to keep in mind:

  • Personal Information is Crucial: Ensure that all personal information, including names, addresses, and Social Security numbers, is accurate and complete. This information is vital for processing your application.
  • Bond Type Matters: Specify the type of bond you are applying for. Different types, such as individual, corporation, or LLC, have distinct requirements.
  • Understand Your Responsibilities: The bond is a credit relationship. As the applicant, you and any indemnitors are responsible for any liabilities that arise from the bond.
  • Review Financial History: Be prepared to answer questions about your financial history, including any past claims, bankruptcies, or liens. This information can impact your eligibility.
  • Signatures are Required: Ensure that all required parties sign the application. This includes spouses for sole proprietorships and partnerships, as well as corporate officers for corporations.

By keeping these points in mind, you can navigate the California ID 1060 form more effectively and ensure a smoother application process.