Blank California 597 W PDF Form

Blank California 597 W PDF Form

The California 597 W form, known as the Withholding Exemption Certificate and Nonresident Waiver Request for Real Estate Sales, is essential for sellers who may be exempt from nonresident withholding requirements when selling property in California. This form helps determine whether the seller qualifies for withholding exemptions based on various criteria, such as the sale price and residency status. If you believe you qualify, take the first step by filling out the form through the button below.

When navigating the complexities of real estate transactions in California, understanding the California 597 W form is essential for sellers, especially nonresidents. This form serves as a Withholding Exemption Certificate and a Nonresident Waiver Request, crucial for ensuring compliance with state tax regulations. It requires sellers to provide personal details, such as their name, social security number, and property address, while also evaluating specific criteria that may exempt them from withholding requirements. Key questions on the form address the sale price of the property, residency status, and whether the property qualifies as a principal residence under federal law. If a seller meets certain conditions, they may be exempt from the standard withholding rate of 3 1/3% on the total sale price. However, if they do not qualify for an exemption, the form also offers a pathway to request a reduced withholding amount, making it imperative for sellers to accurately complete all sections. In an environment where tax obligations can significantly impact financial outcomes, timely and correct submission of the 597 W form can help alleviate unexpected burdens down the line.

Document Sample

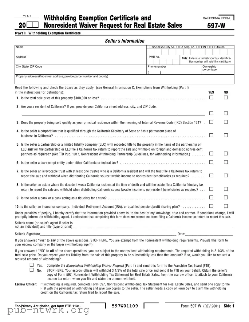
YEAR

20

Withholding Exemption Certificate and

 

 

CALIFORNIA FORM

 

Nonresident Waiver Request for Real Estate Sales

597-W

Part I Withholding Exemption Certificate

Seller’s Information

Name

 

￿ Social security no. ￿ CA corp. no. ￿ FEIN ￿ SOS file no.

 

 

 

 

 

 

 

 

 

 

 

 

 

 

 

 

 

 

 

 

 

Address

 

PMB no.

 

 

Note:

Failure to furnish your tax identifica-

 

 

 

 

 

 

 

 

 

 

 

 

 

tion number will void this certificate.

 

 

 

 

 

 

 

 

 

 

 

 

 

 

 

 

 

 

 

 

City, State, ZIP Code

Phone number

 

 

 

 

 

 

 

Ownership

 

 

 

(

)

 

 

 

 

 

 

 

 

 

 

percentage

 

 

 

 

 

 

 

 

 

 

 

 

 

 

 

 

 

 

Property address (if no street address, provide parcel number and county)

 

 

 

 

 

 

 

 

 

 

 

 

 

 

 

 

 

 

 

 

 

 

 

 

 

 

 

 

 

 

 

 

 

 

 

 

Read the following and check the boxes as they apply (see General Information C, Exemptions from Withholding (Part I)

 

 

 

 

 

 

 

 

in the instructions for definitions):

 

 

 

 

 

 

 

 

 

 

 

 

 

 

 

 

YES

NO

1. Is the total sale price of this property $100,000 or less?

.

. . .

 

. . . .

.

. .

. .

. .

. .

. .

. .

. . . . .

. . . .

. .

. .

￿

￿

2.Are you a resident of California? If yes, provide your California street address, city, and ZIP Code.

 

__________________________________________________________________________________________________________

￿

￿

3.

Does the property being sold qualify as your principal residence within the meaning of Internal Revenue Code (IRC) Section 121? .

￿

￿

4.

Is the seller a corporation that is qualified through the California Secretary of State or has a permanent place of

 

 

business in California? . . . . . . . . . . . . . . . . . . . . . . . . . . . . . . . . . . . . . . . . . . . . . . . . . . . . . . . . . . . . . . . . . . . . . . . . . . . . . . . . . . . . . . . .

5. Is the seller a partnership or a limited liability company (LLC) with recorded title to the property in the name of the partnership or LLC and will the partnership or LLC file a California tax return to report the sale and withhold on foreign and domestic nonresident partners as required? (Get FTB Pub. 1017, Nonresident Withholding Partnership Guidelines, for withholding information.) . . . . . . . .

6. Is the seller a tax-exempt entity under either California or federal law? . . . . . . . . . . . . . . . . . . . . . . . . . . . . . . . . . . . . . . . . . . . . . . . . . .

7. Is the seller an irrevocable trust with at least one trustee who is a California resident and will the trust file a California tax return to

￿ ￿

￿ ￿

￿ ￿

report the sale and withhold when distributing California source taxable income to nonresident beneficiaries as required?

￿

￿

8.Is the seller an estate where the decedent was a California resident at the time of death and will the estate file a California fiduciary tax

return to report the sale and withhold when distributing California source taxable income to nonresident beneficiaries as required? . . .

9. Is the seller a bank or a bank acting as a fiduciary for a trust? . . . . . . . . . . . . . . . . . . . . . . . . . . . . . . . . . . . . . . . . . . . . . . . . . . . . . . . . .

10. Is the seller an insurance company, Individual Retirement Account (IRA), or qualified pension/profit sharing plan? . . . . . . . . . . . . . .

￿ ￿

￿ ￿

￿ ￿

Under penalties of perjury, I hereby certify that the information provided above is, to the best of my knowledge, true and correct. If conditions change, I will promptly inform the withholding agent. I understand that completing this form does not exempt me from filing a California income tax return to report this sale.

Seller’s name (or seller’s agent if seller is

not an individual) and title (type or print) ____________________________________________________________________________________________

Seller’s Signature_____________________________________________________________________________ Date:___________________________

If you answered “Yes” to any of the above questions, STOP HERE. You are exempt from the nonresident withholding requirements. Provide this form to your escrow company or the buyer (withholding agent).

If you answered “NO” to all of the above questions, you are subject to the nonresident withholding requirements. The required withholding is 3 1/3% of the total sale price. Do you expect your tax liability from the sale of this property to be substantially less than that amount? If so, would you like to request a reduced amount of withholding?

￿

￿

Yes. Complete the Nonresident Withholding Waiver Request (Part II) and send this form to the Franchise Tax Board (FTB).

No. STOP HERE. Your escrow officer will withhold 3 1/3% of the total sale price and send it to FTB on your behalf. Obtain the seller’s copy of Form 597, Nonresident Withholding Tax Statement for Real Estate Sales, from the escrow officer to attach to your California income tax return when you file and claim the amount withheld.

Escrow Officer: If withholding is required, complete Form 597, Nonresident Withholding Tax Statement for Real Estate Sales, and send one copy to the FTB with the payment of withholding and give two copies to the seller. The seller needs a copy of Form 597 to claim the withholding credit on the California tax return filed to report the sale.

For Privacy Act Notice, get form FTB 1131.

597W01109

Form 597-W (REV 2001) Side 1

Part II Nonresident Withholding Waiver Request (please print or type)

Seller’s Information

Name of seller (see instructions if more than one)

 

 

 

 

Seller’s Entity Type

Seller’s social security number (SSN)

 

 

 

 

 

 

 

 

 

 

 

￿ Individual(s)

 

 

-

 

-

 

 

 

Mailing address

 

 

PMB no.

 

 

 

 

 

 

 

 

 

 

 

 

 

 

 

 

 

 

￿ Corporation

￿ California corporation no. ￿ FEIN

 

 

 

 

 

 

 

 

 

 

 

 

 

 

 

 

 

 

 

 

 

 

 

 

 

 

 

 

 

 

 

 

￿ S Corporation

 

 

 

 

 

 

 

 

 

 

 

 

 

 

 

 

 

 

 

 

 

 

 

 

 

 

 

 

 

 

 

City, state, and ZIP Code (province, country, and postal zone)

 

 

 

 

 

Seller’s spouse’s SSN (if applicable)

 

 

 

 

 

 

 

 

 

 

 

 

 

 

 

 

 

 

￿ Estate

 

 

 

-

 

-

 

 

 

 

 

 

 

 

 

 

 

 

 

 

 

 

 

 

 

 

 

 

 

 

 

 

 

 

 

 

 

 

￿ Trust

 

 

 

 

 

 

 

 

 

 

Phone number

 

 

Ownership

 

 

 

 

 

 

 

 

 

 

 

 

 

 

 

 

 

Seller’s email address

(

)

 

 

percentage

 

 

 

 

 

 

 

 

 

 

 

 

 

 

 

 

 

 

 

 

 

 

 

 

 

 

 

 

 

 

 

 

 

 

 

 

 

 

 

 

Property Information

 

 

 

 

 

 

 

 

 

 

 

 

Property Address (if no street address, provide parcel number and county):

 

 

 

 

 

 

 

 

 

 

 

 

 

 

 

 

 

 

 

 

 

 

 

 

 

 

 

 

 

 

 

 

 

Seller acquired property by (check one):

 

 

 

 

Date seller acquired property:

 

 

 

 

 

 

 

 

 

 

￿ Purchase

￿ Inheritance

￿ Foreclosure/Repossession

 

 

 

 

 

 

 

 

 

 

 

 

 

 

 

 

 

 

￿ Gift

 

￿ 1031 Exchange

call (888) 792-4900 U.S. toll-free

 

 

 

 

 

 

 

 

 

 

 

 

 

 

 

 

 

 

 

 

Seller’s adjusted basis:

 

 

 

 

 

 

 

 

 

 

 

 

 

 

 

or (916) 845-4900

 

 

 

 

 

 

 

 

 

 

 

 

 

 

 

 

 

 

 

 

 

 

 

 

 

 

 

 

 

 

 

 

 

 

￿ Other____________________

 

 

 

 

 

 

Purchase price

$

____________________________

 

 

 

 

 

 

 

 

 

 

Add: improvements

 

____________________________

 

 

 

 

 

 

 

 

 

 

 

 

 

 

 

 

 

 

Use of property at time of sale:

Length of time used for this purpose:

 

 

 

 

 

 

 

Less: depreciation

 

____________________________

 

 

 

 

￿ Rental / Commercial

 

 

 

 

 

 

 

 

 

 

 

 

 

 

 

 

 

Adjusted basis

$

____________________________

 

 

 

 

￿ Secondary / Vacation home

Years ________ Months _________

 

 

 

 

 

 

 

 

 

 

 

 

 

 

 

 

 

 

 

 

 

 

 

 

 

￿ Vacant land

 

 

 

 

 

Provide all required documentation listed in the instructions. Attach any other

￿ Other (attach explanation)

 

 

 

 

documents necessary to verify the adjusted basis.

 

 

 

 

 

 

 

 

 

 

 

 

 

 

 

 

 

 

 

 

 

 

 

 

 

 

Escrow Information

 

 

 

 

 

 

 

 

 

 

 

 

Name and address of Escrow Company:

 

 

 

 

 

Escrow Company email address

 

 

 

 

 

 

 

 

 

 

 

 

 

 

 

 

 

 

 

 

 

 

 

 

 

 

 

 

 

 

 

 

 

 

 

 

 

 

Name of Escrow Officer:

 

 

 

 

Escrow number:

 

 

 

 

 

 

 

 

 

 

 

 

 

 

 

 

 

 

 

 

 

 

 

 

 

 

 

Escrow Company or Officer

 

 

FAX number:

 

 

 

 

 

 

 

 

telephone number:

 

 

 

 

 

 

 

 

 

 

 

 

 

 

 

 

 

 

 

(

)

 

 

 

(

 

)

 

 

 

 

 

 

 

 

 

 

 

 

Contract price (total sale price):

 

Estimated close of escrow date:

 

 

 

 

 

 

 

 

 

 

 

 

 

 

 

 

 

 

 

 

 

 

 

 

Buyer’s Information

Name of buyer (see instructions if more than one)

Buyer’s social security number (SSN)

Address (number and street, PO box or rural route)

PMB no. (if applicable)

￿California corporation no. ￿ FEIN

City, state, and ZIP Code (province, country, and postal zone)

Buyer’s spouse’s SSN (if applicable)

State in detail your reason for requesting a withholding waiver or reduced withholding. If there is more than one nonresident seller, attach a separate sheet listing additional nonresident seller’s information. See instructions for examples of situations for which a waiver or reduced withholding is allowed and for the required information and documentation.

Attach additional sheets if needed. The FTB cannot make a determination on your request unless you provide all required information and documentation. See instructions.

Under penalties of perjury, I hereby certify that the information provided above is, to the best of my knowledge, true and correct. If conditions change, I will promptly inform the withholding agent. I understand that completing this form does not exempt me from filing a California income tax return to report this sale.

Seller’s name (or seller’s agent if seller is

not an individual) and title (type or print) ____________________________________________________________________________________________

Seller’s Signature ____________________________________________________________________________________ Date: _____________________

Side 2 Form 597-W (REV 2001)

597W01209

File Specifics

Fact Name Description
Purpose of Form The California 597 W form serves as a Withholding Exemption Certificate and Nonresident Waiver Request for Real Estate Sales, helping sellers determine if they are exempt from withholding requirements on property sales.
Governing Law This form is governed by California Revenue and Taxation Code Section 18662, which outlines the state's nonresident withholding obligations for real estate transactions.
Exemption Criteria Sellers may qualify for exemption from withholding if certain conditions are met, such as the sale price being $100,000 or less, or if the property is the seller's principal residence under IRC Section 121.
Withholding Rate If the seller does not meet the exemption criteria, a withholding rate of 3 1/3% of the total sale price is required, which the escrow officer will remit to the Franchise Tax Board.
Submission Process Upon completion, sellers should provide the form to their escrow company or the buyer. If withholding is necessary, the escrow officer will complete and submit the appropriate withholding tax statement.

How to Use California 597 W

Filling out the California 597 W form is an important step for sellers involved in real estate transactions, especially for those who may be subject to withholding requirements. This form helps clarify your tax situation and can determine if you are exempt from certain withholding obligations. Below are the steps to complete this form accurately.

  1. Gather Your Information: Collect all necessary personal and property information, including your name, social security number, address, and details about the property being sold.
  2. Complete Seller’s Information: Fill in your name, social security number, California corporation number (if applicable), FEIN, and address in the designated fields.
  3. Provide Ownership Percentage: Indicate your ownership percentage of the property being sold.
  4. Property Address: Enter the property address or provide the parcel number and county if no street address exists.
  5. Answer Exemption Questions: Carefully read each question regarding exemptions from withholding and check "YES" or "NO" as appropriate. Make sure to provide your California street address if you are a resident.
  6. Certification: Sign and date the form, certifying that the information you provided is accurate to the best of your knowledge.
  7. Determine Next Steps: If you answered "YES" to any exemption questions, provide the form to your escrow company or buyer. If all answers are "NO," proceed to Part II to request a withholding waiver if applicable.
  8. Complete Part II (if necessary): If you wish to request a reduced withholding amount, fill out the Nonresident Withholding Waiver Request section, including detailed reasons for your request.
  9. Submit the Form: Send the completed form to your escrow company or the Franchise Tax Board as directed.

Following these steps will help ensure that your California 597 W form is filled out correctly, allowing you to move forward with your real estate transaction smoothly. Be sure to keep a copy for your records and consult with a tax professional if you have any questions or concerns about your specific situation.

Your Questions, Answered

What is the purpose of the California 597 W form?

The California 597 W form serves two main purposes. First, it acts as a Withholding Exemption Certificate for sellers of real estate. This means that if certain conditions are met, sellers may not have to withhold taxes on the sale. Second, it includes a Nonresident Waiver Request, allowing sellers to request a reduced withholding amount if they believe their tax liability will be lower than the standard withholding rate of 3 1/3% of the sale price. Completing this form accurately is essential to ensure compliance with California tax laws.

Who needs to fill out the California 597 W form?

Sellers of real estate in California who are nonresidents should fill out the California 597 W form. This includes individuals, corporations, partnerships, and trusts that are selling property. If the sale price is $100,000 or less, or if the seller meets specific criteria, they may be exempt from withholding. It is crucial for sellers to evaluate their situation and complete the form accordingly to avoid unnecessary tax withholding.

What information is required to complete the form?

To complete the California 597 W form, sellers must provide several pieces of information, including:

  • The seller's name and tax identification number (such as Social Security Number or FEIN).
  • The address of the property being sold.
  • Details about the seller's residency status in California.
  • Information regarding the sale price of the property.
  • Any applicable exemptions or qualifications that apply to the seller.

It is important to ensure that all information is accurate and complete to avoid delays in processing.

What happens after submitting the California 597 W form?

After submitting the California 597 W form, the escrow company or buyer, known as the withholding agent, will review the information provided. If the seller qualifies for an exemption, no withholding will occur. If the seller does not qualify, the withholding agent will deduct 3 1/3% of the total sale price and send it to the Franchise Tax Board (FTB). Additionally, sellers should obtain a copy of Form 597, which they will need when filing their California income tax return.

Common mistakes

  1. Not providing a tax identification number. Failing to include your social security number, California corporation number, or FEIN can void the certificate.

  2. Incorrectly answering the residency question. If you are a California resident, you must provide your California address.

  3. Omitting property details. Ensure you provide the full property address or, if unavailable, the parcel number and county.

  4. Misunderstanding the exemptions. Not checking the appropriate boxes for exemptions can lead to unnecessary withholding.

  5. Failing to sign the form. An unsigned form is invalid and cannot be processed.

  6. Not keeping copies. Failing to retain a copy of the completed form for your records can complicate future tax filings.

  7. Neglecting to inform the withholding agent of any changes. If your circumstances change, promptly notifying the withholding agent is essential.

  8. Providing incomplete information. Missing details about the seller's entity type or ownership percentage can delay processing.

  9. Ignoring the need for documentation. Not attaching necessary documents to verify adjusted basis or other claims can result in rejection.

  10. Miscalculating the withholding amount. If you believe your tax liability will be less than the standard withholding, you must complete the waiver request.

Documents used along the form

When dealing with the California 597 W form, several other documents may be necessary to ensure compliance with state tax laws. Each of these forms serves a specific purpose in the transaction process. Below is a list of commonly used forms along with brief descriptions of their functions.

  • California Form 597: This is the Nonresident Withholding Tax Statement for Real Estate Sales. It provides details about the withholding amount and is essential for the seller to claim a credit on their California income tax return.
  • California Form 593: This form is used for reporting the sale of real property by a nonresident. It provides information about the buyer, seller, and the transaction, ensuring proper withholding is calculated.
  • California Form 593-C: This form is the Real Estate Withholding Certificate. It allows sellers to certify their exemption from withholding, which is crucial for those who qualify under specific conditions.
  • California Form 1040NR: This is the U.S. Nonresident Alien Income Tax Return. Nonresident sellers must file this form to report their income from the sale and claim any withholding credits.
  • Form W-9: This form is used by individuals to provide their taxpayer identification number to others. In real estate transactions, it helps verify the seller's identity for tax purposes.
  • Form 1099-S: This form reports the sale of real estate to the IRS. It is important for both buyers and sellers to ensure accurate reporting of the transaction.
  • California Form FTB 1131: This is the Privacy Notice. It informs individuals about how their personal information will be used and protected during the transaction process.
  • Escrow Instructions: These are detailed guidelines provided to the escrow company regarding the handling of the transaction, including the distribution of funds and documentation needed.
  • Title Report: This document provides information about the ownership of the property and any liens or encumbrances. It is essential for ensuring clear title during the sale.
  • Purchase Agreement: This is the contract between the buyer and seller detailing the terms of the sale. It outlines the obligations of both parties and is a foundational document in any real estate transaction.

These forms and documents work together to facilitate the sale of real estate while ensuring compliance with California tax laws. It is crucial for sellers to be aware of these requirements to avoid any complications during the transaction process.

Similar forms

The California Form 593 is a Withholding Exemption Certificate similar to the 597 W form. It serves as a declaration for sellers to claim exemptions from withholding requirements when selling real estate in California. Like the 597 W, it requires detailed seller information, including social security numbers and property addresses. Both forms also assess eligibility based on specific criteria, such as the sale price and the residency status of the seller. The 593 form is particularly useful for sellers who qualify for exemptions under California tax law, providing a streamlined process to avoid unnecessary withholding.

The California Form 588 is another document that shares similarities with the 597 W form. This form is used for nonresidents who receive income from California sources, allowing them to claim a reduced withholding rate. Both forms require sellers to provide personal and property information and assess various exemptions. The 588 form is particularly relevant for individuals receiving income from sources such as rental properties or business operations in California, ensuring that withholding aligns with actual tax liabilities.

The IRS Form W-8BEN is a crucial document for foreign individuals claiming benefits under an income tax treaty. Similar to the California 597 W, it allows sellers to certify their foreign status and claim exemptions from certain U.S. tax withholding. Both forms require identification details and an assessment of eligibility for exemptions. The W-8BEN is essential for nonresident aliens to avoid excessive withholding on income generated from U.S. sources, making it a vital tool for international transactions.

The IRS Form 1040NR is the U.S. Nonresident Alien Income Tax Return. While it serves a different purpose than the 597 W, both documents address the tax obligations of nonresidents. The 1040NR allows nonresidents to report their U.S. income and claim any tax withheld. Both forms require detailed financial information and eligibility assessments, ensuring that nonresidents comply with U.S. tax laws while minimizing their tax burden.

The California Form 100 is a corporate income tax return that parallels the 597 W form in terms of compliance for business entities. Corporations conducting business in California must file this form to report income and calculate taxes owed. Similar to the 597 W, it assesses the entity's residency and operational status within California. Both forms aim to ensure proper tax reporting and compliance with state regulations, albeit for different types of taxpayers.

The California Form 540 is the state's resident income tax return. While it is designed for residents, it shares similarities with the 597 W in that both forms require detailed income reporting and tax calculations. The 540 form assesses eligibility for various credits and deductions, similar to how the 597 W evaluates exemptions from withholding. Both forms are crucial for ensuring taxpayers meet their obligations while optimizing their tax situations.

The California Form 1099 is used to report various types of income, including real estate transactions. While it differs in function from the 597 W, both documents are integral to tax compliance. The 1099 form provides a record of income received, which can affect withholding requirements and tax liabilities. Both forms aim to ensure transparency and accuracy in reporting income to the tax authorities.

Lastly, the California Form 592 is a Partnership and LLC Withholding Tax Statement. It is similar to the 597 W in that it addresses withholding obligations for nonresidents involved in partnerships or LLCs. This form requires detailed information about the entity and its members, similar to the seller information required on the 597 W. Both forms help ensure that withholding is applied correctly based on the specific circumstances of the transaction, thereby promoting compliance with tax laws.

Dos and Don'ts

When filling out the California 597 W form, it’s important to follow some basic guidelines. Here’s a list of things you should and shouldn’t do:

  • Do provide accurate information about your identity and property.
  • Do check all boxes that apply to your situation.
  • Do sign and date the form to certify the information is correct.
  • Do keep a copy of the completed form for your records.
  • Do submit the form to your escrow company or buyer promptly.
  • Don’t leave any required fields blank.
  • Don’t provide false information, as this can lead to penalties.
  • Don’t ignore the instructions provided with the form.
  • Don’t forget to inform the withholding agent if any conditions change.
  • Don’t assume that filling out the form exempts you from filing a California income tax return.

Misconceptions

Understanding the California 597 W form is crucial for anyone involved in real estate transactions in the state. However, several misconceptions can lead to confusion. Here are six common misunderstandings:

  • It is only for California residents. Many believe that the 597 W form applies solely to California residents. In reality, it is also relevant for nonresidents selling property in California.
  • Filling out the form guarantees exemption from withholding. Some think that simply completing the form automatically exempts them from withholding requirements. This is not true. Exemption only occurs if specific conditions are met.
  • All sellers must complete the form. There is a misconception that every seller is required to fill out the 597 W form. In fact, only those who meet certain criteria regarding the sale price or residency status need to complete it.
  • It applies to all types of property sales. Not every property sale requires the 597 W form. It is specifically for real estate transactions and does not apply to other types of asset sales.
  • The withholding rate is always 3 1/3%. Some individuals assume that the withholding rate is fixed. However, if sellers expect their tax liability to be lower, they can request a reduced withholding amount.
  • Once the form is submitted, no further action is needed. Many believe that submitting the form is the end of the process. In reality, sellers must still file a California income tax return to report the sale, regardless of whether they filled out the 597 W form.

Being aware of these misconceptions can help sellers navigate the complexities of real estate transactions more effectively.

Key takeaways

When filling out and using the California 597 W form, consider the following key takeaways:

  • Purpose of the Form: The California 597 W form serves as a Withholding Exemption Certificate and Nonresident Waiver Request for Real Estate Sales. It is essential for sellers to determine their withholding requirements.
  • Eligibility Criteria: Sellers must answer a series of questions regarding their residency status and the nature of the property to establish if they qualify for withholding exemptions.
  • Required Information: Accurate completion of the form requires personal information, including the seller's name, social security number, and property details. Incomplete forms may lead to delays or denial of exemptions.
  • Submission Process: If a seller qualifies for an exemption, they must provide the completed form to their escrow company or the buyer. If not exempt, the seller should expect a withholding of 3 1/3% of the total sale price.
  • Documentation: Sellers requesting a reduced withholding amount must complete Part II of the form and provide necessary documentation to support their request. This includes details about the property and the seller’s financial situation.