Blank Broker Price Opinion PDF Form

Blank Broker Price Opinion PDF Form

A Broker Price Opinion (BPO) is a document used to estimate the value of a property, primarily in the real estate market. This form is often prepared by a qualified real estate broker and considers various factors such as market conditions, comparable sales, and property condition. Understanding how to accurately fill out the BPO form is essential for making informed real estate decisions, so be sure to click the button below to complete the form.

The Broker Price Opinion (BPO) form plays a vital role in the real estate market, offering insights into the value of a property. It combines essential information like the property's address, loan number, and the firm representing it. The BPO evaluates current market conditions, including employment trends and the supply of comparable listings in the neighborhood. It also reviews the subject property's marketability, pricing strategies, and financing options. A detailed comparison is made with similar properties that have closed recently, highlighting adjustments made for various features to establish fair market value. Moreover, the BPO considers the broader competitive landscape by analyzing ongoing listings and estimating the necessary repairs to make the property market-ready. It concludes with a clear suggestion for the property's value, which is crucial for effective negotiations and sales strategies. Overall, the BPO form is not just a tool but a comprehensive guide in assessing residential properties, aiding both buyers and sellers alike in making informed decisions.

Document Sample

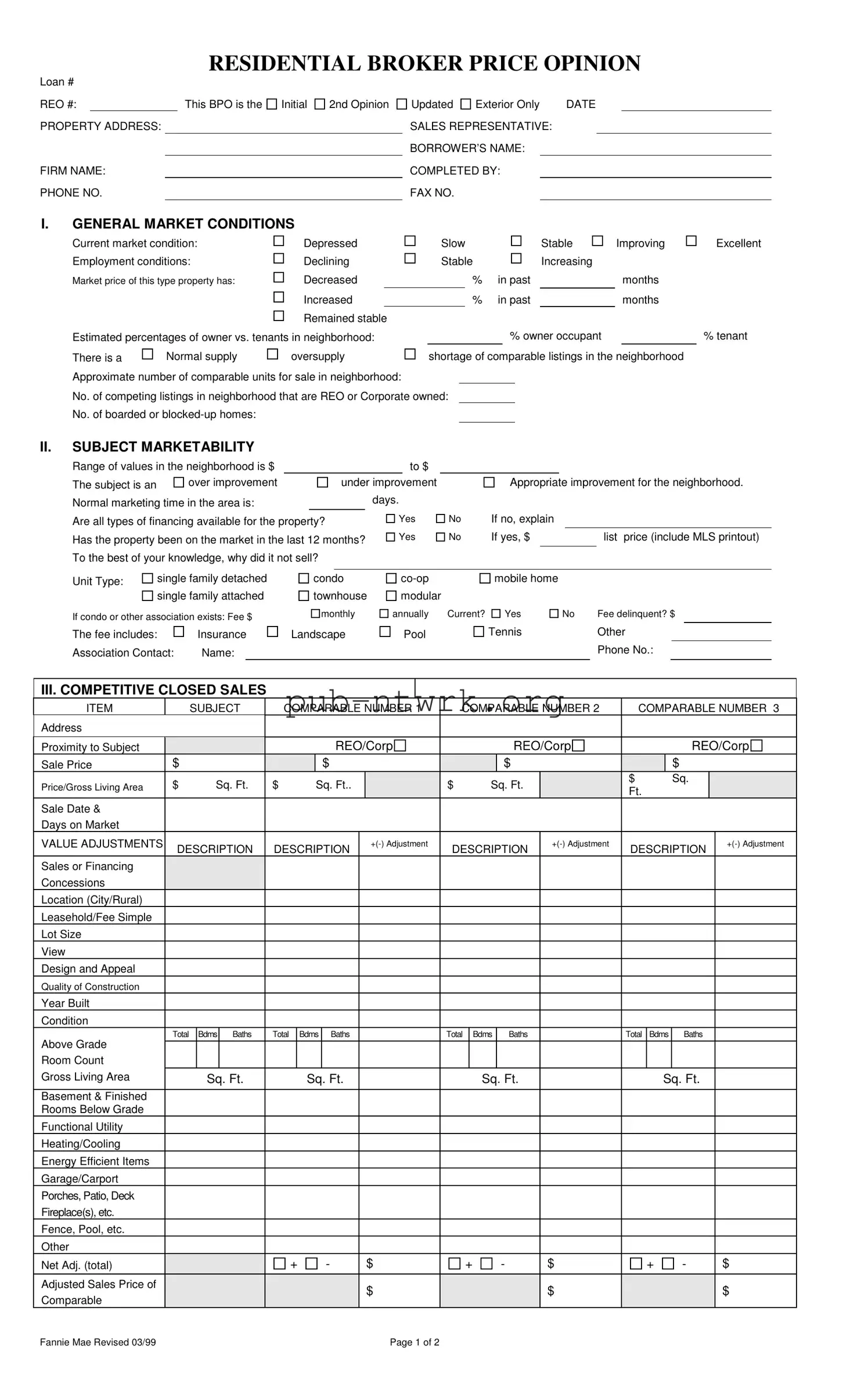
RESIDENTIAL BROKER PRICE OPINION
Loan #
REO #: This BPO is the Initial 2nd Opinion Updated Exterior Only DATE
PROPERTY ADDRESS: SALES REPRESENTATIVE:
BORROWER’S NAME:
FIRM NAME: COMPLETED BY:
PHONE NO. FAX NO.
I.
GENERAL MARKET CONDITIONS
Current market condition:
Depressed
Slow
Stable
Excellent
Employment conditions:
Declining
Stable
Increasing
Market price of this type property has:
Decreased
% in past
months
% in past
months
Remained stable
Estimated percentages of owner vs. tenants in neighborhood:
% owner occupant
% tenant
There is a
Normal supply
oversupply
shortage of comparable listings in the neighborhood
Approximate number of comparable units for sale in neighborho
od:
No. of competing listings in neighborhood that are REO or Corporate owned:
No. of boarded or blocked-up homes:
II.
SUBJECT MARKETABILITY
Range of values in the neighborhood
is $
to $
The subject is an
over improvement
under improvement Appropriate improvement for the neighborhood.
Normal marketing time in the area is:
days.
Are all types of financing available for the property?
Yes No
If no, explain
Has the property been on the market in the last 12 months?
Yes No
If yes, $ list price (include MLS printout)
To the best of your knowledge, why did it not sell?
Unit Type:
single family detached condo co-op mobile home
single family attached townhouse modular
If condo or other association exists: Fee $
monthly annually Current? Yes No Fee delinquent? $
The fee includes:
Landscape
Pool
Tennis Other
Association Contact: Name:
Phone No.:
III. COMPETITIVE CLOSED SALES
ITEM
SUBJECT
COMPARABLE NUMBER 1
COMPARABLE NUMBER 2
COMPARABLE NUMBER 3
Address
Pro
ximity to Subject
REO/Corp
REO/Corp
REO/Corp
Sale Price
$
$
$
$
Price/Gross Living Area
$ Sq. Ft. $ Sq. Ft.. $ Sq. Ft.
$ Sq.
Ft.
Sale Date &
Days on Market
VALUE ADJUSTMENTS
DESCRIPTION
DESCRIPTION
+(-) Adjustment
DESCRIPTION
+(-) Adjustment
DESCRIPTION
+(-) Adjustment
Sales or Financing
Concessions
Location (City/Rural)
Leasehold/Fee Simple
Lot Size
View
Design and Appeal
Quality of Construction
Year Built
Condition
Above Grade
Room Count
Gross Living Area
Total Bdms
Baths Total Bdms
Baths
Total Bdms
Baths
Total
Bdms
Baths
Sq. Ft.
Sq. Ft.
Sq. Ft.
Sq. Ft.
Basement & Finished
Rooms Below Grade
Functional Utility
Heating/Cooling
Energy Efficient Items
Garage/Carport
Porches, Patio, Deck
Fir
eplace(s), etc.
Fence, Pool, etc.
Other
Net Adj. (total)
+ -
$
+ -
$
+ -
$
Adjusted Sales Price of
Comparable
$
$
$
Fannie Mae Revised 03/99 Page 1 of 2
REO# Loan #
IV. MARKETING STRATEGY Occupancy Status: Occupied Vacant Unknown
As-is Minimal Lender Required Repairs Repaired Most Likely Buyer: Owner occupant Investor
V. REPAIRS
Itemize ALL repairs needed to bring property from its present “as is” condition to average marketable condition for the neighborhood.
Check those repairs you recommend that we perform for most successful marketing of the property.
$
$
$
$
$
$
$
$
$
$
GRAND TOTAL FOR ALL REPAIRS $
VI. COMPETITIVE LISTINGS
ITEM SUBJECT COMPARABLE NUMBER 1 COMPARABLE NUMBER. 2 COMPARABLE NUMBER. 3
Address
Proximity to Subject
REO/Corp
REO/Corp
REO/Corp
List Price
$
$
$
$
Price/Gross Living Area
$ Sq.Ft. $ Sq.Ft. $ Sq.Ft. $ Sq.Ft.
Data and/or
Verification Sources
VALUE ADJUSTMENTS DESCRIPTION DESCRIPTION
+ (-)Adjustment
DESCRIPTION
+(-)Adjustment
DESCRIPTION
+(-)Adjustment
Sales or Financing
Concessions
Days on Market and
Date on Market
Location (City/Rural)
Leasehold/Fee
Simple
Lot Size
View
Design and Appeal
Quality of Construction
Year Built
Condition
Above Grade
Room Count
Gross Living Area
Total Bdms Baths Total Bdms Baths
Total Bdms Baths
Total Bdms Baths
Sq. Ft.
Sq. Ft.
Sq. Ft.
Sq. Ft.
Basement & Finished
Rooms Below Grade
Functional Utility
Heating/Cooling
Energy Efficient Items
Garage/Carport
Porches, Patio, Deck
Fireplace(s), etc.
Fence, Pool, etc.
Other
Net Adj. (total)
+ -
$
+ - -
$
+ -
$
Adjusted Sales Price
of Comparable
$
$
$
VI. THE MARKET VALUE (The value must fall within the indicated value of the Competitive Closed Sales).
Market Value
Suggested List Price
AS IS
REPAIRED
30 Quick Sale Value
Last Sale of Subject, Price
Date
COMMENTS
(Include specific positives/negatives, special concerns, encroachments, easements, water rights, environmental concerns, flood zones, etc.
Attach addendum if additional space is needed.)
Signature:
Date:
Fannie Mae Revised 03/99 Page 2 of 2 CMS Publishing Company 1 800 235-1600 [0399]

File Specifics

Fact Name Description
Purpose of BPO A Broker Price Opinion (BPO) is used to estimate the value of a property for various purposes, including real estate transactions, financing, and investment analysis.
Common Sections The BPO form typically includes sections on general market conditions, subject marketability, competitive closed sales, and repairs needed for the property.
State-Specific Forms Some states require specific versions of the BPO form, governed by local real estate regulations. It is important for brokers to comply with these state laws.
Market Value Indication The BPO must indicate a suggested market value falling within the range of comparable properties' sale prices. This helps assess the property's fair market value.

How to Use Broker Price Opinion

Filling out the Broker Price Opinion (BPO) form is a straightforward process that helps provide a real estate estimate based on various criteria. Once the form is completed, it will be ready for submission, which can help all parties make informed decisions about property values.

  1. Gather Necessary Information: Collect details about the property, including the address, loan number, and REO number, if applicable.
  2. Market Conditions: Assess the overall market conditions by evaluating aspects such as current market status, employment conditions, and the percentage of homeowners versus tenants in the neighborhood.
  3. Subject Marketability: Fill out the range of values for the neighborhood and any improvements needed to the subject property. Note marketing time, and financing availability as necessary.
  4. Competitive Closed Sales: Research and document information on at least three comparable properties, including sale price, living area, proximity to the subject property, and any adjustments in value.
  5. Marketing Strategy: Determine the property's marketing strategy, whether selling as-is or with repairs.
  6. Repairs Needed: List all necessary repairs to enhance the property’s marketable condition and total the costs. Specify the occupancy status of the property.
  7. Competitive Listings: Compare the subject property with similar listings on the market, documenting their details and adjusting sales prices.
  8. Market Value Estimation: Establish a suggested market value and listing price based on competitive closed sales and adjust for the property's condition.
  9. Comments Section: Provide additional notes regarding the property, including any concerns or unique factors that may impact value.
  10. Signature and Date: Finally, ensure the form is signed and dated before submission.

Your Questions, Answered

What is a Broker Price Opinion (BPO)?

A Broker Price Opinion, or BPO, is an estimate of the potential selling price of a property. Real estate agents or brokers typically prepare this opinion based on their experience and knowledge of the local market. Unlike an appraisal, which is a more formal assessment, a BPO aims to provide a quicker and less expensive evaluation of a property’s worth, often needed by banks or lenders before a sale or foreclosure process.

When is a BPO necessary?

BPOs are often needed in various situations. Lenders frequently request them when evaluating properties for loans or foreclosure. They are also useful for real estate investors looking to purchase properties at a discounted price. Additionally, sellers may seek a BPO to understand their property’s market value before listing it for sale. Overall, a BPO helps inform decisions about buying, selling, or financing a property.

How does a broker determine a property's value in a BPO?

To determine a property's value, brokers analyze several factors. They first consider current market conditions, such as whether the market is improving or depressed. Next, they evaluate recent sales of comparable properties, which helps establish a baseline for pricing. The condition of the property itself, any necessary repairs, and unique features all impact the valuation as well. The broker will compile all this information into the BPO form for submission.

What factors influence the accuracy of a BPO?

Several factors can affect how accurate a BPO is. Market conditions play a significant role; if the area has volatile prices, the estimate might be less reliable. The broker’s experience and familiarity with the neighborhood also influence the BPO's reliability. Furthermore, adequate and current data on comparable properties is crucial. If this information is outdated or sparse, the resulting opinion may not reflect the true market value.

Can a BPO replace an appraisal?

No, a BPO should not be viewed as a replacement for an appraisal. While both provide insights into a property's value, they serve different purposes. An appraisal is a legally recognized document that requires specific qualifications and standards in assessment. A BPO, on the other hand, is less formal and based more on the broker's judgment. In most cases, lenders will require an appraisal for loan approval, especially for larger amounts.

What should a property owner do if they disagree with a BPO?

If a property owner disagrees with the opinion provided in a BPO, they have several options. First, they should discuss their concerns directly with the broker who performed the evaluation. It may be helpful to provide additional information on the property that the broker may not have considered. If an amicable resolution cannot be achieved, the owner could consider obtaining a formal appraisal, which may provide a more authoritative opinion on the property's value.

Common mistakes

  1. Incomplete Information: Failing to fill in all necessary fields can lead to significant inaccuracies. Missing sections such as the property address or loan number leaves the form open to errors and misinterpretations.

  2. Ignoring Market Conditions: Not accurately reflecting current market conditions can result in misleading evaluations. It’s crucial to assess employment trends and the overall listing supply in the neighborhood.

  3. Overlooking Comparable Sales: Using outdated or irrelevant comparable sales can skew the price opinion. Take the time to select comparable properties that closely match the subject property in terms of features and location.

  4. Neglecting Necessary Repairs: Failing to itemize all necessary repairs can mislead lenders and buyers regarding the property’s condition. List every repair needed to represent the property accurately and ensure proper valuation.

  5. Inaccurate Valuation Adjustments: Making incorrect adjustments to the value of comparable properties can lead to false conclusions. Be methodical and precise when calculating adjustments for factors like condition, location, and square footage.

Documents used along the form

The Broker Price Opinion (BPO) form provides a comprehensive analysis of a property's value based on market conditions and comparable sales. Alongside this document, several other forms may also be utilized to further inform buyers, sellers, and lenders about the property and its potential transactions. Below is a list of documents frequently paired with the BPO.

  • Comparative Market Analysis (CMA): This document compares the subject property with similar properties in the area that have recently sold. It helps estimate the property’s market value by analyzing competitive listings.
  • Property Condition Report: This report details the overall condition of the property, highlighting any repairs needed or issues present. It provides a clearer picture for potential buyers regarding the property's state.
  • Appraisal Report: Conducted by a licensed appraiser, this report offers an objective, third-party valuation of the property. It considers various factors, including location, comparable sales, and property condition.
  • Listing Agreement: This legal document establishes a partnership between the property owner and a real estate agent. It outlines the terms of the agreement, including the listing price and duration of the listing.
  • Sales Contract: This is a formal agreement between a buyer and seller outlining the terms of a sale. It includes details such as sale price, contingencies, and closing dates.
  • Disclosure Statement: Property owners may provide this document to disclose known issues, defects, or other pertinent information about the property. It is vital for protecting both buyers and sellers.
  • Title Report: This document gives details about the property’s legal ownership. It ensures that there are no liens, easements, or other claims on the property that could affect future ownership.
  • Repair Estimate: This estimate outlines the costs associated with necessary repairs on the property. It aids in determining the potential investment required to bring the property to marketable condition.

Each document serves a unique purpose, contributing to a clearer understanding of the property’s value, condition, and any associated risks. Together, they create a comprehensive view that assists all parties in making informed decisions.

Similar forms

A Comparative Market Analysis (CMA) is similar to a Broker Price Opinion (BPO) as it evaluates properties in a specific area to determine a fair market price. Both documents analyze active and recently sold properties to help assess the value of a property. While a BPO is often requested by lenders or banks to help determine the price for foreclosures or short sales, a CMA is typically prepared for homeowners who are looking to sell their homes. Both documents provide insights into local market conditions and aim to assist in pricing strategies.

An Appraisal Report shares similarities with a BPO, as it also provides an estimate of a property’s value based on various factors, including condition, location, and comparable sales. Appraisers follow specific methodologies to arrive at a value, often involving in-depth inspections. Whereas a BPO can be performed by real estate agents without formal training, appraisals must be conducted by licensed appraisers. This means an appraisal often carries more weight in financial transactions than a BPO does.

A Property Evaluation Report is another document akin to a BPO. This report focuses on the physical aspects and condition of a property while including a market analysis. Both documents help determine a property's value but may differ in the depth of assessment regarding the building's state. Property evaluations are often used in conjunction with BPOs for a more comprehensive understanding of market conditions and property worth.

The Listing Agreement is similar to a Broker Price Opinion as it establishes the price at which a property will be marketed for sale. Both documents involve similar market research to determine pricing strategies, considering recent sales and local market demands. While the BPO provides an estimate of a property's value, the Listing Agreement formally states the price the homeowner is willing to accept, which can be influenced by the findings in the BPO.

A Sales Contract also parallels the BPO by outlining the agreed sale price of a property. Once a buyer and seller agree to terms, a Sales Contract will reflect the property’s market value as determined by various analyses, including BPO results. Whereas a BPO provides an estimate before a sale, the Sales Contract is a binding legal document that records the agreed price and the conditions of the sale.

A Market Analysis Report, while often used interchangeably with a CMA, is a more detailed version of the analysis. It investigates various economic indicators and trends in the area. Both the BPO and Market Analysis Report are tools for determining a property’s value based on current market conditions, but the latter may delve deeper into long-term trends and forecasts.

A Rent Survey Report serves a similar purpose to a BPO when evaluating investment properties. It provides insight into the potential rental income one could expect from a property. Such reports focus primarily on rental listings and their performance in the market, whereas BPOs concentrate on sale prices. However, both are useful tools for investors considering buying, selling, or renting properties.

An Investment Property Analysis is akin to a BPO in that it assesses the value of a property based on projected income potential alongside market value. While both help in establishing a price, the Investment Property Analysis emphasizes the financial aspects, such as cash flow and return on investment. Investors use these analyses to determine if a property aligns with their financial goals.

A Feasibility Study is another report that can be compared to BPOs. It evaluates the viability of a property for development or investment based on various factors like location, zoning, and market demand. While BPOs focus on determining a property’s current market value, a Feasibility Study assesses the potential for future value and development opportunities in light of market conditions.

Dos and Don'ts

When filling out the Broker Price Opinion form, certain best practices can help ensure accuracy and clarity. Here are four things you should do, and four things you should avoid.

  • Do: Use accurate and current data.
  • Do: Clearly indicate the property address and relevant loan numbers.
  • Do: Provide detailed descriptions of repairs needed for marketability.
  • Do: Be honest about market conditions and property status.
  • Don't: Include vague or unclear language.
  • Don't: Overstate the value or marketability of the property.
  • Don't: Neglect to provide comparisons with similar properties.
  • Don't: Forget to check for accuracy before submitting the form.

Misconceptions

Understanding the Broker Price Opinion (BPO) form can be challenging due to various misconceptions. Here are six common misunderstandings related to this important real estate document:

  • BPOs are appraisals. Many people think that a BPO is the same as an appraisal. However, a BPO is generally a less formal estimate of a property's value. It is often used for quick evaluations, while an appraisal is a detailed analysis performed by a licensed appraiser.
  • Only banks can perform BPOs. Although banks frequently order BPOs for their properties, anyone with real estate expertise can prepare one. Real estate brokers and agents often carry out BPOs to help clients understand market conditions.
  • BPOs reflect the exact sale price. A common misconception is that the value derived from a BPO is the final sale price. In reality, BPOs provide a range of potential values. The actual sale price can be influenced by various factors, such as market fluctuations and negotiations between buyers and sellers.
  • A BPO can guarantee a property’s marketability. Some believe that receiving a BPO automatically means a property will sell quickly. However, while a BPO assesses current market conditions, many other factors contribute to a property's marketability, including its condition and buyer interest.
  • BPOs are only for distressed properties. While BPOs are often used for properties in foreclosure or short sales, they are not limited to such cases. They can be applied to any type of residential property, helping sellers and buyers to gauge market conditions.
  • The accuracy of BPOs is always reliable. Although BPOs can provide valuable insights, their accuracy is not guaranteed. Factors such as the qualifications of the broker or agent and the data they use can affect the result. It’s essential to consider a BPO as one tool in a broader assessment of property value.

By addressing these misconceptions, individuals can better appreciate the purpose and limitations of the Broker Price Opinion form in real estate transactions.

Key takeaways

Completing and using the Broker Price Opinion (BPO) form effectively can impact property valuation and sales strategies. Here are four key takeaways about this process:

  • Accuracy is Essential: Ensure all information is filled out accurately. This includes property details, market conditions, and comparable sales data. Inaccurate data can lead to incorrect valuations.
  • Market Analysis: Analyze general market conditions and local trends thoroughly. Note employment conditions and the supply of comparable properties in the area. This context informs potential buyers and sellers.
  • Comparables Matter: Use competitive closed sales to establish a fair market value. Detailed adjustments for location, condition, and features will help create a reliable adjusted sales price.
  • Repair Insights: Identify necessary repairs to boost the property's market appeal. Providing a detailed list of repairs and costs will help clarify the financial implications for potential investors or buyers.

Common PDF Forms