Blank Arizona Jt 1 Uc 001 PDF Form

Blank Arizona Jt 1 Uc 001 PDF Form

The Arizona Joint Tax Application (JT-1/UC-001) is a crucial form for businesses operating within the state. This application is used to apply for various tax licenses, including Transaction Privilege Tax and Unemployment Tax, ensuring compliance with Arizona's tax regulations. Understanding how to properly fill out this form can help streamline your business operations and avoid potential penalties.

Ready to get started? Fill out the form by clicking the button below!

The Arizona Joint Tax Application, known as the JT-1/UC-001 form, serves as a crucial tool for businesses operating within the state. This form streamlines the process of obtaining necessary licenses and permits related to various tax obligations, including Transaction Privilege Tax (TPT), Withholding Tax, and Unemployment Tax. Each section of the form is designed to capture essential information about the business, such as ownership structure, legal business name, and contact details. It also requires applicants to provide details regarding their anticipated business activities, which helps determine the appropriate tax classifications and rates. For those acquiring existing businesses, the form includes specific sections to address previous ownership and tax liabilities. Additionally, the JT-1/UC-001 form emphasizes the importance of accuracy and completeness, as any missing information may result in delays in processing. Understanding the requirements and instructions outlined in this form is vital for compliance and successful business operations in Arizona.

Document Sample

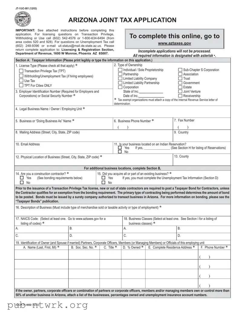
JT-1/UC-001 (12/03)

ARIZONA JOINT TAX APPLICATION

IMPORTANT: See attached instructions before completing this

 

 

 

 

application. For licensing questions on Transaction Privilege,

To complete this online, go to

 

Withholding or Use call (602) 542-4576 or 1-800-634-6494 (from

 

area codes 520 and 928). For questions on Unemployment Tax call

www.aztaxes.gov

 

(602) 248-9396 or e-mail [email protected]. Please

 

 

 

return complete application to: Licensing & Registration Section,

 

 

Incomplete applications will not be processed.

Department of Revenue, 1600 W Monroe, Phoenix AZ 85007.

All required information is designated with asterisk *.

 

Section A: Taxpayer Information (Please print legibly or type the information on this application.)

1. License Type (Please check all that apply) *

Transaction Privilege Tax (TPT)

Withholding/Unemployment Tax (if hiring employees)

Use Tax

TPT For Cities ONLY

3.Employer Identification Number (Required for Employers and Corporations) or Social Security Number *

2. Type of Ownership

Individual / Sole Proprietorship

Partnership

Limited Liability Company

Limited Liability Partnership

Corporation

State of Inc.

Date of Inc.

Sub-Chapter S Corporation

Association

Trust

Government

Estate

Joint Venture

Receivership

*Tax exempt organizations must attach a copy of the Internal Revenue Service letter of determination.

4.

Legal Business Name / Owner / Employing Unit *

 

 

 

 

 

 

 

 

 

 

5.

Business or “Doing Business As” Name *

6. Business Phone Number *

7.

Fax Number

 

 

(

)

 

(

)

8.

Mailing Address (Street, City, State, ZIP code)

 

 

9.

Country

 

 

 

 

 

 

 

10. Email Address

11. Is your business located on an Indian Reservation?

￿

Yes

If yes,

 

(See Section H for listing of Reservations)

￿

No

 

 

 

12. Physical Location of Business (Street, City, State, ZIP code) *

13. County

For additional business locations, complete Section B,

14. Are you a construction contractor? *

￿

Yes

(See bonding requirements below)

￿

No

 

15. Did you acquire all or part of an existing business? *

￿

Yes

If yes, you must complete the Unemployment Tax Information (Section D)

￿

No

 

Prior to the issuance of a Transaction Privilege Tax license, new or out of state contractors are required to post a Taxpayer Bond for Contractors, unless the Contractor qualifies for an exemption from the bonding requirement. The primary type of contracting being performed determines the amount of bond to be posted. Bonds must be issued by a surety company authorized to transact business in Arizona. For more information on bonding, please see the “Taxpayer Bonds” publication.

16. Description of Business (Must include type of merchandise sold or taxable activity or type of employment) *

17. NAICS Code: (Select at least one. Go to www.aztaxes.gov for a

18. Business Classes (Select at least one. See Section I for a listing of

 

listing of codes) *

 

business classes) *

A.

 

B.

A.

 

B.

 

 

 

 

 

 

C.

 

D.

C.

 

D.

 

 

 

 

 

 

19. Identification of Owner (and Spouse if married) Partners, Corporate Officers, Members (or Managing Members) or Officials of this employing unit

A. Name (Last, First, MI) *

B. Soc. Sec. No. *

C. Title *

D. % Owned *

E. Complete Residence Address *

F. Phone Number *

( )

( )

( )

( )

If the owner, partners, corporate officers or combination of partners or corporate officers, members and/or managing members own or control more than 50% of another business in Arizona, attach a list of the businesses, percentages owned and unemployment insurance account numbers.

ADOR 74-4002 (12/03)

File Specifics

Fact Name Fact Details
Form Purpose The JT-1/UC-001 form is used for applying for various tax licenses in Arizona, including Transaction Privilege Tax (TPT) and Unemployment Tax.
Required Information Applicants must provide essential details, such as legal business name, ownership type, and Federal Employer Identification Number (EIN) or Social Security Number.
Submission Guidelines Completed applications must be returned to the Licensing & Registration Section of the Arizona Department of Revenue. Incomplete applications will not be processed.
Contact Information For questions regarding the form, applicants can contact the Department of Revenue at (602) 542-4576 or visit their website.
Governing Law The form is governed by Arizona Revised Statutes (ARS) Title 23, Chapter 4, which relates to unemployment insurance and taxation.
Tax Exemptions Tax-exempt organizations must attach a copy of their IRS letter of determination when submitting the application.

How to Use Arizona Jt 1 Uc 001

Filling out the Arizona Jt 1 Uc 001 form is a crucial step for businesses seeking to comply with state tax regulations. Properly completing this form ensures that your business is registered for the necessary taxes, which can help avoid penalties and facilitate smooth operations. Below are the steps to guide you through the process of filling out this form.

  1. Begin by clearly printing or typing your information on the form.
  2. In Section A, select the type of license you are applying for by checking all applicable boxes.
  3. Provide your Employer Identification Number (EIN) or Social Security Number (SSN) as required.
  4. Indicate your type of ownership by checking the appropriate box.
  5. Enter the legal business name or owner name as it appears on official documents.
  6. Fill in the "Doing Business As" (DBA) name if different from the legal name.
  7. Provide your business phone number and fax number.
  8. Enter your mailing address, including street, city, state, and ZIP code.
  9. Specify your country and email address.
  10. Indicate whether your business is located on an Indian Reservation.
  11. Provide the physical location of your business, including county.
  12. Answer whether you are a construction contractor and if you acquired an existing business.
  13. In Section A, describe your business activities and include the NAICS code relevant to your business.
  14. Continue to Section B and provide the date your business started in Arizona and the date sales began.
  15. Indicate your anticipated annual income for the first year of business.
  16. Choose your TPT filing method and indicate if your business sells tobacco products or new motor vehicles.
  17. Complete the additional location information if applicable.
  18. In Section C, answer questions related to withholding information and provide details about your employees.
  19. Fill out Section D if you acquired an existing business, including previous owners' information.
  20. Sign and date the application in Section E, ensuring it is completed by individuals legally responsible for the business.
  21. Return the completed application to the address provided, ensuring all required information is included.

Your Questions, Answered

What is the Arizona JT-1 UC-001 form used for?

The Arizona JT-1 UC-001 form is a Joint Tax Application used for various tax registrations in Arizona. Businesses use this form to apply for licenses related to Transaction Privilege Tax (TPT), Withholding Tax, Unemployment Tax, and Use Tax. It is essential for both new businesses and those changing ownership or structure.

How do I complete the JT-1 UC-001 form?

To complete the form, you must fill out several sections with accurate information. This includes details about your business, such as its legal name, ownership type, and contact information. You will also need to indicate the type of taxes you are applying for and provide your Employer Identification Number (EIN) or Social Security Number (SSN) if applicable. Be sure to follow the attached instructions carefully to avoid any errors.

What happens if I submit an incomplete application?

If you submit an incomplete application, it will not be processed. The Arizona Department of Revenue requires all necessary information to be filled out completely. Missing details may result in delays or the need to resubmit the application, so it’s crucial to double-check everything before submission.

Where do I send the completed JT-1 UC-001 form?

Once you have completed the JT-1 UC-001 form, you should return it to the Licensing & Registration Section of the Arizona Department of Revenue. The mailing address is: 1600 W Monroe, Phoenix, AZ 85007. Ensure that you include any required fees and additional documents as specified in the instructions.

What if my business is located on an Indian Reservation?

If your business is located on an Indian Reservation, you must indicate this on the form. There are specific codes for different reservations listed in Section H of the application. It’s important to select the correct code to ensure compliance with any additional regulations that may apply.

Are there any fees associated with the JT-1 UC-001 form?

Yes, there are fees associated with the application. A state fee of $12.00 is required for each location you are licensing. Additionally, some cities may have their own fees, which can vary. Be sure to check the list of city fees included in the form and include any applicable amounts with your submission.

Can I apply for multiple tax types on the same form?

Yes, the JT-1 UC-001 form allows you to apply for multiple tax types in one application. You can check all applicable boxes for Transaction Privilege Tax, Withholding Tax, Unemployment Tax, and Use Tax. Just ensure that you provide all required information for each tax type you are applying for.

Common mistakes

  1. Inaccurate or Incomplete Information: Many applicants fail to provide all the required information or fill it out incorrectly. This includes missing asterisks indicating mandatory fields. An incomplete application will be returned, delaying the process.

  2. Illegible Handwriting: If the form is filled out by hand, poor handwriting can lead to misunderstandings. Use clear, legible writing or type the information to ensure accuracy.

  3. Incorrect Tax Identification Number: Providing the wrong Employer Identification Number (EIN) or Social Security Number can cause significant issues. Double-check these numbers before submission.

  4. Failure to Attach Required Documentation: Applicants often forget to include necessary documents, such as the IRS letter for tax-exempt organizations. Missing attachments can result in application rejection.

  5. Not Following Submission Instructions: Ignoring the submission guidelines can lead to delays. Ensure that the application is sent to the correct address and in the proper format as outlined in the instructions.

Documents used along the form

The Arizona JT-1 UC 001 form is essential for businesses seeking to register for various tax obligations in the state. However, several additional forms and documents are often required to ensure compliance with Arizona tax regulations. Below is a list of commonly used documents that complement the JT-1 UC 001 form.

  • Transaction Privilege Tax (TPT) License Application: This application is necessary for businesses engaged in activities taxable under Arizona's Transaction Privilege Tax statutes. Each business location must be licensed separately, allowing for individual reporting of taxes.
  • Withholding Tax Registration Form: Employers paying wages to employees must file this form to obtain a state withholding tax number. It ensures compliance with Arizona's withholding tax requirements and helps in the accurate reporting of employee wages.
  • Unemployment Tax Registration Form: This form is required for businesses that need to register for unemployment insurance. It provides the necessary information for the Arizona Department of Economic Security to manage unemployment tax obligations.
  • IRS Exclusion Letter: If a business qualifies for an exclusion from federal unemployment taxes, a copy of the IRS letter granting this exemption must be attached to the JT-1 UC 001 form. This documentation is crucial for verifying eligibility.
  • Taxpayer Bond for Contractors: New or out-of-state contractors must submit a taxpayer bond unless exempted. This bond is a financial guarantee that the contractor will meet tax obligations related to their business activities in Arizona.
  • Business Location Update Form: If a business is adding or updating locations, this form is necessary to inform the Arizona Department of Revenue. It ensures that all business locations are properly registered and compliant with local tax regulations.

Completing the JT-1 UC 001 form alongside these additional documents helps businesses navigate the complexities of tax registration in Arizona. Ensuring that all required forms are submitted accurately can prevent delays and potential penalties, facilitating a smoother operational start for new businesses.

Similar forms

The Arizona JT-1/UC-001 form is similar to the IRS Form SS-4, which is used to apply for an Employer Identification Number (EIN). Both documents require detailed information about the business, including its legal structure and ownership. Just as the JT-1/UC-001 collects taxpayer information and business descriptions, Form SS-4 gathers similar data to establish the identity of the business for federal tax purposes. Both forms are essential for businesses that plan to hire employees or engage in activities subject to taxation, ensuring compliance with state and federal regulations.

Another document that shares similarities with the Arizona JT-1/UC-001 is the Arizona Transaction Privilege Tax (TPT) Application. Like the JT-1/UC-001, this application is crucial for businesses that intend to operate in Arizona and engage in taxable transactions. Both forms require information about the type of business, ownership details, and the nature of the goods or services provided. The TPT Application specifically focuses on the tax obligations of businesses in Arizona, while the JT-1/UC-001 encompasses a broader range of tax registrations, including unemployment and withholding taxes.

The California Form DE 1 is also comparable to the JT-1/UC-001. This form is used for registering a new employer with the state of California for unemployment insurance purposes. Both documents ask for similar information regarding the business structure and ownership. They serve the purpose of ensuring that businesses comply with state tax laws related to employment. In both cases, accurate completion is vital for the proper assessment of tax obligations and benefits.

Similarly, the IRS Form 940, which is used for reporting annual Federal Unemployment Tax Act (FUTA) taxes, aligns with the Arizona JT-1/UC-001 in terms of its focus on unemployment tax. While the JT-1/UC-001 is an application to register for unemployment tax, Form 940 is a reporting form that employers use to summarize their unemployment tax liability for the year. Both documents underscore the importance of unemployment tax compliance for businesses that employ workers.

The Arizona Form 5000, which is a Business License Application, shares characteristics with the JT-1/UC-001. Both forms require detailed information about the business and its operations. They are essential for businesses to legally operate within Arizona. The 5000 form focuses on licensing, while the JT-1/UC-001 is more comprehensive, addressing multiple tax registrations. However, both are integral to ensuring that businesses meet state requirements.

Lastly, the Arizona Form 106, which is used for the Arizona Corporate Income Tax Return, is another document that is similar to the JT-1/UC-001. While the JT-1/UC-001 is an application for various tax registrations, Form 106 is a return that reports income and calculates tax liabilities for corporations. Both forms require detailed financial information and emphasize the importance of compliance with Arizona tax laws. They reflect the state's efforts to maintain accurate records of business activities and tax obligations.

Dos and Don'ts

When filling out the Arizona JT 1 UC 001 form, there are several key practices to keep in mind. Here’s a helpful list of things you should and shouldn’t do:

  • Do read the instructions carefully before starting the application.
  • Do print legibly or type your information to avoid any misunderstandings.
  • Do provide all required information, especially those marked with an asterisk (*).
  • Do ensure that your business name matches the legal name registered with the state.
  • Do include your federal employer identification number (EIN) or social security number (SSN) as required.
  • Don't leave any sections blank; incomplete applications will be returned.
  • Don't use a P.O. Box for your physical location; provide a street address instead.
  • Don't forget to sign the application; it must be signed by someone legally responsible for the business.
  • Don't submit the application without double-checking for accuracy and completeness.
  • Don't wait until the last minute to file; processing times can vary, and delays may occur.

Following these guidelines can help ensure a smoother application process and get your business up and running without unnecessary hiccups.

Misconceptions

Understanding the Arizona Joint Tax Application (JT-1/UC-001) is crucial for business owners, yet several misconceptions persist. Here are four common misunderstandings:

  • Misconception 1: The form is only for new businesses.
  • Many believe that the JT-1/UC-001 form is exclusively for new business registrations. In reality, it is also used for changing ownership or updating existing business information. If you're acquiring a business or altering your business structure, this form is essential.

  • Misconception 2: Only corporations need to provide a Federal Employer Identification Number (EIN).
  • Some individuals think that only corporations are required to submit an EIN. However, all employers, including sole proprietors and partnerships, must provide either an EIN or a Social Security Number when completing the application.

  • Misconception 3: The application can be submitted without all sections completed.
  • It’s a common belief that incomplete applications will still be processed. In fact, the Arizona Department of Revenue will not process applications that are missing required information. This includes essential details marked with an asterisk.

  • Misconception 4: There are no penalties for late submissions.
  • Some assume that there are no consequences for submitting the application late. However, delays can lead to penalties, including fines for failing to obtain the necessary licenses before conducting business activities. Timely submission is critical to avoid these issues.

Key takeaways

Filling out the Arizona JT-1 UC-001 form can seem daunting, but understanding its key components can make the process smoother. Here are some essential takeaways:

  • Read Instructions Carefully: Before starting, review the attached instructions thoroughly to avoid mistakes.
  • Print Legibly: Ensure that all information is printed clearly or typed to prevent any processing delays.
  • Required Information: Pay attention to fields marked with an asterisk (*); these are mandatory and must be completed.
  • Contact Information: Provide accurate contact details, including phone numbers and email addresses, for effective communication.
  • Ownership Type: Select the correct type of ownership for your business, as this affects your tax obligations.
  • Tax Identification Number: If applicable, include your Employer Identification Number (EIN) or Social Security Number (SSN) to avoid penalties.
  • Business Description: Clearly describe your business activities. This helps determine your tax rate and compliance requirements.
  • City Licensing Fees: Be aware of any city-specific fees that may apply to your business location, as these can vary.
  • Signature Requirement: Ensure that the application is signed by individuals legally responsible for the business to validate the submission.
  • Submit Timely: Return the completed form promptly to the Licensing & Registration Section to avoid delays in processing.

Understanding these points can simplify the application process and help ensure compliance with Arizona tax regulations. Proper preparation is key to a successful submission.