Blank 810025 Iowa PDF Form

Blank 810025 Iowa PDF Form

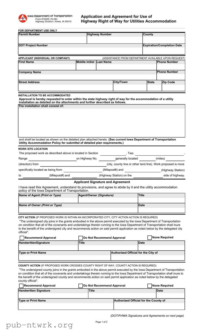
The 810025 Iowa form is a specific legal document used within the state of Iowa for various administrative purposes. This form serves to collect necessary information for regulatory compliance and is essential for individuals and entities operating in Iowa. To ensure proper completion and submission, please fill out the form by clicking the button below.

The 810025 Iowa form is a crucial document used in various administrative and legal processes within the state of Iowa. This form serves multiple purposes, including tax reporting, compliance verification, and other regulatory requirements. Individuals and businesses may be required to fill out this form to ensure adherence to state laws and regulations. The form includes sections that collect essential information about the filer, including identification details, financial data, and specific declarations relevant to the purpose of the submission. Completing the 810025 form accurately is vital, as errors or omissions can lead to delays, penalties, or other complications. It is advisable to review the instructions carefully and ensure that all required fields are completed before submission. Understanding the implications of this form is essential for both compliance and maintaining good standing with state authorities.

Document Sample

ﯘۣۦۡǔүҚҗҗқھǔǜҚҗﮟҗү۶

ﯜ۝ۛۜ۫Кǔﯚ۝۪۝ۧ۝ۣۢǔﭣǔﯠۡۙۧﮞǔﯢﯠǔھҗҗҚҗ

ﯠۤۤ۠۝ۗКۨ۝ۣۢǔКۢۘǔﯠۛۦۙۙۡۙۢۨǔۣۚۦǔЎۧۙǔۣۚ

ﯜ۝ۛۜ۫Кǔﯼ۝ۛۜۨǔۣۚǔﯤКǔۣۚۦǔЎۨ۝۠۝ۨ۝ۙۧǔﯠۣۣۗۗۡۡۘКۨ۝ۣۢ

ﯘﮓﯼǔﯚﯗﮔﯠﯼЌﯞﯗﯟЌǔЎﯽﯗǔﮓﯟﮐﯦ

ﮔۙۦۡ۝ۨǔﯟ۩ۡۖۙۦ

 

ﯜ۝ۛۜ۫Кǔﯟ۩ۡۖۙۦ

ﯙۣ۩ۢۨ

 

 

 

 

 

 

 

 

 

 

 

ﯚﮓЌǔﮔۦۣ۞ۙۗۨǔﯟ۩ۡۖۙۦ

 

 

 

 

ﯗۤ۝ۦКۨ۝ۣۢﮡﯙۣۡۤ۠ۙۨ۝ۣۢǔﯚКۨۙ

 

 

 

 

 

 

 

 

 

 

 

 

 

 

ﯠﮔﮔﮐﯢﯙﯠﯟЌǔǜﯢﯟﯚﯢЏﯢﯚЎﯠﮐǔﮓﯼǔﯙﮓﯞﮔﯠﯟﯦ۶

 

 

ǜﯠﯽﯽﯢﯽЌﯠﯟﯙﯗǔﯘﯼﮓﯞǔﯚﯗﮔﯠﯼЌﯞﯗﯟЌǔﯠЏﯠﯢﮐﯠﯡﮐﯗǔЎﮔﮓﯟǔﯼﯗﮕЎﯗﯽЌ۶

ﯘ۝ۦۧۨǔﯟКۡۙ

ﯞ۝ۘۘ۠ۙǔﯢۢ۝ۨ۝К۠

ﮐКۧۨǔﯟКۡۙ

 

 

ﮔۣۜۢۙǔﯟ۩ۡۖۙۦ

 

 

 

 

 

 

 

 

 

ﯙۣۡۤКۢǔﯟКۡۙ

 

 

 

 

 

 

ﮔۣۜۢۙǔﯟ۩ۡۖۙۦ

 

 

 

 

 

 

 

 

 

ﯽۨۦۙۙۨǔﯠۘۘۦۙۧۧ

 

 

 

ﯙ۝ۨﮡЌۣ۫ۢ

 

ﯽۨКۨۙ

 

ﯧ۝ۤǔﯙۣۘۙ

 

 

 

 

 

 

 

 

 

 

 

 

 

 

 

 

 

 

ﯢﯟﯽЌﯠﮐﮐﯠЌﯢﮓﯟǔЌﮓǔﯡﯗǔﯠﯙﯙﮓﯞﯞﮓﯚﯠЌﯗﯚ

ﯠۤۤۦۣ۪К۠ǔ۝ۧǔۜۙۦۙۖǔۦۙۥ۩ۙۧۨۙۘǔۣۨǔۙۢۨۙۦǔ۫۝ۨۜ۝ۢǔۨۜۙǔۧۨКۨۙǔۜ۝ۛۜ۫Кǔۦ۝ۛۜۨǔۣۚǔ۫КǔۣۚۦǔۨۜۙǔКۣۣۗۗۡۡۘКۨ۝ۣۢǔۣۚǔКǔ۩ۨ۝۠۝ۨ ۝ۢۧۨК۠۠Кۨ۝ۣۢǔКۧǔۘۙۨК۝۠ۙۘǔۣۢǔۨۜۙǔКۨۨКۗۜۡۙۢۨۧǔКۢۘǔۚ۩ۦۨۜۙۦǔۘۙۧۗۦ۝ۖۙۘǔКۧǔۣۣۚ۠۠۫ۧﮠ Ќۜۙǔ۝ۢۧۨК۠۠Кۨ۝ۣۢǔۧۜК۠۠ǔۣۗۢۧ۝ۧۨǔۣۚﮤ

КۢۘǔۧۜК۠۠ǔۖۙǔۣ۠ۗКۨۙۘǔКۧǔۣۧۜ۫ۢǔۣۢǔۨۜۙǔۘۙۨК۝۠ۙۘǔۤ۠КۢǔКۨۨКۗۜۙۘǔۜۙۦۣۙۨﮠ ǜﯽۙۙǔۗ۩ۦۦۙۢۨǔﯢۣ۫КǔﯚۙۤКۦۨۡۙۢۨǔۣۚǔЌۦКۣۢۧۤۦۨКۨ۝ۣۢ Ўۨ۝۠۝ۨǔﯠۣۣۗۗۡۡۘКۨ۝ۣۢǔﮔۣ۠۝ۗǔۣۚۦǔۧ۩ۖۡ۝ۨۨК۠ǔۣۚǔۘۙۨК۝۠ۙۘǔۤ۠Кۢǔۦۙۥ۩۝ۦۙۡۙۢۨۧﮠ۶

ﯤﮓﯼﮏǔﯽﯢЌﯗǔﮐﮓﯙﯠЌﯢﮓﯟ

 

 

 

 

 

 

 

 

 

 

 

 

 

 

 

 

 

 

 

 

 

Ќۜۙǔۤۦۣۣۤۧۙۘǔۣ۫ۦﭞǔКۧǔۘۙۧۗۦ۝ۖۙۘǔКۣ۪ۖۙǔ۝ۧǔۣ۠ۗКۨۙۘǔ۝ۢǔﯽۙۗۨ۝ۣۢ

 

 

 

 

 

 

ﮞǔЌ۫ۤﮠ

 

 

 

 

 

 

ﯼКۢۛۙ

 

 

 

ۣۢǔﯜ۝ۛۜ۫Кǔﯟۣﮠ

 

 

 

 

ۛۙۢۙۦК۠۠ǔۣ۠ۗКۨۙۘ

 

ǜۡ۝۠ۙۧ۶

 

 

 

 

 

 

 

 

 

 

 

 

 

 

 

 

 

 

 

 

 

 

ǜۘ۝ۦۙۗۨ۝ۣۢ۶ǔۚۦۣۡ

 

 

 

 

 

 

 

 

 

ǜۗ۝ۨﮞǔۣۗ۩ۢۨǔ۠۝ۢۙǔۣۦǔۣۨۜۙۦǔ۠Кۢۘǔ۠۝ۢۙ۶ﮠǔﯤۣۦﭞǔۤۦۣۣۤۧۙۘǔ۝ۧǔۣۡۦۙ

ۧۤۙۗ۝ۚ۝ۗК۠۠ǔۣ۠ۗКۨۙۘǔКۧǔۖۙ۝ۢۛǔۚۦۣۡ

 

 

 

ǜﯞ۝ۣ۠ۙۤۧۨǗ۶ǔКۢۘ

 

 

 

ǜﯜ۝ۛۜ۫КǔﯽۨКۨ۝ۣۢ۶

ۣۨ

ǜﯞ۝ۣ۠ۙۤۧۨǗ۶ǔКۢۘ

ǜﯜ۝ۛۜ۫КǔﯽۨКۨ۝ۣۢ۶ ۣۢǔۨۜۙ

 

 

 

ۧ۝ۘۙǔۣۚǔۜ۝ۛۜ۫Кﮠ

 

 

 

 

 

 

 

 

 

 

 

 

 

 

 

 

 

 

 

 

 

 

 

 

 

ﯠۤۤ۠۝ۗКۢۨǔﯽ۝ۛۢКۨ۩ۦۙǔКۢۘǔﯠۛۦۙۙۡۙۢۨ

ﯢǔۜК۪ۙǔۦۙКۘǔۨۜ۝ۧǔﯠۛۦۙۙۡۙۢۨﮞǔ۩ۢۘۙۦۧۨКۢۘǔ۝ۨۧǔۤۦۣ۪۝ۧ۝ۣۢۧﮞǔКۢۘǔКۛۦۙۙǔۣۨǔКۖ۝ۘۙǔۖǔ۝ۨǔКۢۘǔۨۜۙǔ۩ۨ۝۠۝ۨǔКۣۣۗۗۡۡۘКۨ۝ۣۢ ۣۤ۠۝ۗǔۣۚǔۨۜۙǔﯢۣ۫КǔﯚۙۤКۦۨۡۙۢۨǔۣۚǔЌۦКۣۢۧۤۦۨКۨ۝ۣۢﮠ

ﯟКۡۙǔۣۚǔﯠۛۙۢۨΝΧẽẴẹếΝẺẽΝỄẻẰΨ

ﯠۛۙۢۨﮡﮓ۫ۢۙۦ ΧẴẲẹẬếỀẽẰΨ

Ќ۝ۨ۠ۙ

ﯟКۡۙǔۣۚǔﮓ۫ۢۙۦ ΧẽẴẹếΝẺẽΝỄẻẰΨ

ﯚКۨۙ

ﯙﯢЌﯦǔﯠﯙЌﯢﮓﯟǔǜﯢﯘǔﮔﯼﮓﮔﮓﯽﯗﯚǔﯤﮓﯼﮏǔﯢﯽǔﯤﯢЌﯜﯢﯟǔﯠﯟǔﯢﯟﯙﮓﯼﮔﮓﯼﯠЌﯗﯚǔﯙﯢЌﯦﮞǔﯙﯢЌﯦǔﯠﯙЌﯢﮓﯟǔﯠﯙЌﯢﮓﯟǔﯢﯽǔﯼﯗﮕЎﯢﯼﯗﯚ۶

ǔǖЌۜۙǔ۩ۢۘۙۦۧ۝ۛۢۙۘǔۗ۝ۨǔ۞ۣ۝ۢۧǔ۝ۢǔۨۜۙǔۛۦКۢۨۧǔۣۙۡۖۘ۝ۙۘǔ۝ۢǔۨۜۙǔКۣ۪ۖۙǔۤۙۦۡ۝ۨǔۙۙۗ۩ۨۙۘǔۖǔۨۜۙǔﯢۣ۫КǔﯚۙۤКۦۨۡۙۢۨǔۣۚǔЌۦКۣۢۧۤۦۨКۨ۝ۣۢ ۣۢǔۣۗۢۘ۝ۨ۝ۣۢǔۨۜКۨǔК۠۠ǔۣۚǔۨۜۙǔۣ۪ۗۙۢКۢۨۧǔКۢۘǔ۩ۢۘۙۦۨКﭞ۝ۢۛۧǔۨۜۙۦۙ۝ۢǔۦ۩ۢۢ۝ۢۛǔۣۨǔۨۜۙǔﯢۣ۫КǔﯚۙۤКۦۨۡۙۢۨǔۣۚǔЌۦКۣۢۧۤۦۨКۨ۝ۣۢǔۧۜК۠۠ǔ۝ۢ۩ۦۙ ۣۨǔۨۜۙǔۖۙۢۙۚ۝ۨǔۣۚǔۨۜۙǔ۩ۢۘۙۦۧ۝ۛۢۙۘǔۗ۝ۨǔКۢۘǔۦۣۙۗۡۡۙۢۘۧǔКۗۨ۝ۣۢǔۣۢǔۧК۝ۘǔۤۙۦۡ۝ۨǔКۤۤ۠۝ۗКۨ۝ۣۢǔКۧǔۣۢۨۙۘǔۣۖۙ۠۫ǔۖǔۨۜۙǔۘۙ۠ۙۛКۨۙۘǔۗ۝ۨ ۣۚۚ۝ۗ۝К۠ǖﮠ

ﯼۣۙۗۡۡۙۢۘǔﯠۤۤۦۣ۪К۠

ﯚۣǔﯟۣۨǔﯼۣۙۗۡۡۙۢۘǔﯠۤۤۦۣ۪К۠

ﯟۣۢۙǔﯼۙۥ۩۝ۦۙۘ

 

 

 

ﯜКۢۘ۫ۦ۝ۨۨۙۢﯽ۝ۛۢКۨ۩ۦۙ

Ќ۝ۨ۠ۙ

ﯚКۨۙ

 

 

 

Ќۤۙǔۣۦǔﮔۦ۝ۢۨǔﯟКۡۙ

ﯠ۩ۣۨۜۦ۝ۙۘǔﮓۚۚ۝ۗ۝К۠ǔۣۚۦǔۨۜۙǔﯙ۝ۨǔۣۚ

ﯙﮓЎﯟЌﯦǔﯠﯙЌﯢﮓﯟǔǜﯢﯘǔﮔﯼﮓﮔﮓﯽﯗﯚǔﯤﮓﯼﮏǔﯙﯼﮓﯽﯽﯗﯽǔﯙﮓЎﯟЌﯦǔﯼﯢﯛﯜЌǔﮓﯘǔﯤﯠﯦﮞǔﯙﮓЎﯟЌﯦǔﯠﯙЌﯢﮓﯟǔﯢﯽǔﯼﯗﮕЎﯢﯼﯗﯚ۶

ǔǖЌۜۙǔ۩ۢۘۙۦۧ۝ۛۢۙۘǔۣۗ۩ۢۨǔ۞ۣ۝ۢۧǔ۝ۢǔۨۜۙǔۛۦКۢۨۧǔۣۙۡۖۘ۝ۙۘǔ۝ۢǔۨۜۙǔКۣ۪ۖۙǔۤۙۦۡ۝ۨǔۙۙۗ۩ۨۙۘǔۖǔۨۜۙǔﯢۣ۫КǔﯚۙۤКۦۨۡۙۢۨǔۣۚǔЌۦКۣۢۧۤۦۨКۨ۝ۣۢ ۣۢǔۣۗۢۘ۝ۨ۝ۣۢǔۨۜКۨǔК۠۠ǔۣۚǔۨۜۙǔۣ۪ۗۙۢКۢۨۧǔКۢۘǔ۩ۢۘۙۦۨКﭞ۝ۢۛۧǔۨۜۙۦۙ۝ۢǔۦ۩ۢۢ۝ۢۛǔۣۨǔۨۜۙǔﯢۣ۫КǔﯚۙۤКۦۨۡۙۢۨǔۣۚǔЌۦКۣۢۧۤۦۨКۨ۝ۣۢǔۧۜК۠۠ǔ۝ۢ۩ۦۙǔۣۨ ۨۜۙǔۖۙۢۙۚ۝ۨǔۣۚǔۨۜۙǔ۩ۢۘۙۦۧ۝ۛۢۙۘǔۣۗ۩ۢۨǔКۢۘǔۦۣۙۗۡۡۙۢۘۧǔКۗۨ۝ۣۢǔۣۢǔۧК۝ۘǔۤۙۦۡ۝ۨǔКۤۤ۠۝ۗКۨ۝ۣۢǔКۧǔۣۢۨۙۘǔۣۖۙ۠۫ǔۖǔۨۜۙǔۘۙ۠ۙۛКۨۙۘ ۣۗ۩ۢۨǔۣۚۚ۝ۗ۝К۠ǖﮠ

ﯼۣۙۗۡۡۙۢۘǔﯠۤۤۦۣ۪К۠

ﯚۣǔﯟۣۨǔﯼۣۙۗۡۡۙۢۘǔﯠۤۤۦۣ۪К۠

ﯟۣۢۙǔﯼۙۥ۩۝ۦۙۘ

 

 

 

 

ﯜКۢۘ۫ۦ۝ۨۨۙۢǔﯽ۝ۛۢКۨ۩ۦۙ

 

Ќ۝ۨ۠ۙ

ﯚКۨۙ

 

 

 

 

Ќۤۙǔۣۦǔﮔۦ۝ۢۨǔﯟКۡۙ

ﯠ۩ۣۨۜۦ۝ۙۘǔﮓۚۚ۝ۗ۝К۠ǔۣۚۦǔۨۜۙǔﯙۣ۩ۢۨǔۣۚ

Χ́ήόẢΝẴẲẹẬếỀẽẰẾΝẬẹắΝẲẽẰẰẸẰẹếẾΝẺẹΝẹẰểếΝẻẬẲẰΨ

ﮔКۛۙǔҚǔۣۚǔқ

ﯘﮓﯼǔﯚﯗﮔﯠﯼЌﯞﯗﯟЌǔЎﯽﯗǔﮓﯟﮐﯦ

ǔﯽۤۙۗ۝К۠ǔﯼۙۥ۩۝ۦۙۡۙۢۨۧﮤǔ۝ۢǔКۘۘ۝ۨ۝ۣۢǔۣۨǔۨۜۙǔۧۨ۝ۤ۩۠Кۨ۝ۣۢۧǔۣۖۙ۠۫ﮞǔۨۜۙǔۣۣۚ۠۠۫۝ۢۛǔۧۤۙۗ۝К۠ǔۦۙۥ۩۝ۦۙۡۙۢۨۧǔۧۜК۠۠ǔКۤۤ۠ǔۣۨǔۨۜ۝ۧǔۤۙۦۡ۝ۨﮤ

ﯘﯗﯚﯗﯼﯠﮐǔﯜﯢﯛﯜﯤﯠﯦǔﯠﯚﯞﯢﯟﯢﯽЌﯼﯠЌﯢﮓﯟǔﯠﯙЌﯢﮓﯟǔǜﯤﯜﯗﯟǔﯼﯗﮕЎﯢﯼﯗﯚ۶

 

 

 

 

ﯼۣۙۗۡۡۙۢۘǔﯠۤۤۦۣ۪К۠

ﯚۣǔﯟۣۨǔﯼۣۙۗۡۡۙۢۘǔﯠۤۤۦۣ۪К۠

 

 

ﯟۣۢۙǔﯼۙۥ۩۝ۦۙۘ

 

 

 

 

 

 

 

 

 

ﯠ۩ۣۨۜۦ۝ۙۘǔﯘﯜﯤﯠǔﯼۙۤۦۙۧۙۢۨКۨ۝۪ۙǔﯽ۝ۛۢКۨ۩ۦۙ

 

 

 

 

 

ﯚКۨۙ

 

 

 

 

 

 

 

 

 

 

 

 

 

 

 

 

 

 

ﯚﯗﮔﯠﯼЌﯞﯗﯟЌǔﮓﯘǔЌﯼﯠﯟﯽﮔﮓﯼЌﯠЌﯢﮓﯟǔﯘﯢﯟﯠﮐǔﯠﯙЌﯢﮓﯟ

 

 

 

 

 

 

 

ﯠۤۤ۠۝ۗКۨ۝ۣۢǔﯠۤۤۦۣ۪ۙۘ

ﯠۤۤ۠۝ۗКۨ۝ۣۢǔﯚۙۢ۝ۙۘ

ﮔۙۦۡ۝ۨǔﯟ۩ۡۖۙۦ

 

 

ﯠ۩ۣۨۜۦ۝ۙۘǔﯜ۝ۛۜ۫Кǔﯚ۝ۧۨۦ۝ۗۨǔﯼۙۤۦۙۧۙۢۨКۨ۝۪ۙ

 

ﯽ۝ۛۢКۨ۩ۦۙ

 

 

ﯚКۨۙ

ΧỄẻẰΝẺẽΝẽẴẹếΨ

 

 

 

 

 

 

 

 

 

 

 

 

 

 

 

 

 

ﯟۣۨ۝ۗۙǔۣۚǔ۝ۢۨۙۢۨ۝ۣۢǔۣۨǔۧۨКۦۨǔۣۗۢۧۨۦ۩ۗۨ۝ۣۢǔۣۦǔۡК۝ۢۨۙۢКۢۗۙǔКۗۨ۝۪۝ۨ۝ۙۧǔۣۢǔۨۜۙǔۜ۝ۛۜ۫Кǔۦ۝ۛۜۨǔۣۚǔ۫КǔۧۜК۠۠ǔۖۙǔۡКۘۙǔۣۨﮤ

 

 

ﮐۣۗК۠ǔﯚﮓЌǔﯙۣۢۨКۗۨǔﮔۙۦۣۧۢǔǜЌۤۙǔۣۚǔﮔۦ۝ۢۨǔﯟКۡۙ۶

 

 

 

 

 

ﮔۣۜۢۙǔﯟ۩ۡۖۙۦ

 

 

 

 

 

 

 

 

 

ﯽۨۦۙۙۨǔﯠۘۘۦۙۧۧ

 

 

ﯙ۝ۨﮡЌۣ۫ۢ

 

ﯽۨКۨۙ

 

ﯧﯢﮔǔﯙۣۘۙ

 

 

 

 

 

 

ﯢﯠ

 

ﯠﯛﯼﯗﯗﯞﯗﯟЌﯽ

Ќۜۙǔ۩ۨ۝۠۝ۨǔۣۗۡۤКۢﮞǔۣۗۦۣۤۦКۨ۝ۣۢﮞǔКۤۤ۠۝ۗКۢۨﮞǔۤۙۦۡ۝ۨǔۣۜ۠ۘۙۦǔۣۦǔ۠۝ۗۙۢۧۙۙﮞǔǜۜۙۦۙ۝ۢКۚۨۙۦǔۦۙۚۙۦۦۙۘǔۣۨǔКۧǔۨۜۙǔﮔۙۦۡ۝ۨǔﯜۣ۠ۘۙۦ۶ǔКۛۦۙۙۧ ۫۝ۨۜǔۨۜۙǔﯢۣ۫КǔﯚۙۤКۦۨۡۙۢۨǔǜۜۙۦۙКۚۨۙۦǔۦۙۚۙۦۦۙۘǔۣۨǔКۧǔﯚۙۤКۦۨۡۙۢۨ۶ǔۨۜКۨǔۨۜۙǔۣۣۚ۠۠۫۝ۢۛǔۧۨ۝ۤ۩۠Кۨ۝ۣۢۧǔКۢۘǔۣۨۜۧۙǔۧۤۙۗ۝К۠ǔۦۙۥ۩۝ۦۙۡۙۢۨۧ Кۧǔ۠۝ۧۨۙۘǔۣۢǔۨۜ۝ۧǔۤКۛۙǔۧۜК۠۠ǔۣ۪ۛۙۦۢǔ۩ۢۘۙۦǔۨۜ۝ۧǔۤۙۦۡ۝ۨﮠ ﯠﮠǔǔﯛۙۢۙۦК۠

ҚﮠǔǔЌۜۙǔ۝ۢۧۨК۠۠Кۨ۝ۣۢǔۧۜК۠۠ǔۡۙۙۨǔۨۜۙǔۦۙۥ۩۝ۦۙۡۙۢۨۧǔۣۚǔۣ۠ۗК۠ǔۡ۩ۢ۝ۗ۝ۤК۠ﮞǔۣۗ۩ۢۨﮞǔۧۨКۨۙﮞǔКۢۘǔۚۙۘۙۦК۠ǔﯢۣ۫КǔۚۦКۢۗۜ۝ۧۙǔۦ۩۠ۙۧǔКۢۘ ۦۙۛ۩۠Кۨ۝ۣۢۧﮞǔۦۙۛ۩۠Кۨ۝ۣۢۧǔКۢۘǔۘ۝ۦۙۗۨ۝۪ۙۧǔۣۚǔۨۜۙǔﯢۣ۫КǔﯽۨКۨۙǔﯙۣۡۡۙۦۗۙǔﯙۣۡۡ۝ۧۧ۝ۣۢﮥǔۨۜۙǔﯚۙۤКۦۨۡۙۢۨǔۣۚǔﯟКۨ۩ۦК۠ǔﯼۣۙۧ۩ۦۗۙۧﮞǔК۠۠ ۦ۩۠ۙۧǔКۢۘǔۦۙۛ۩۠Кۨ۝ۣۢۧǔۣۚǔۨۜۙǔﯚۙۤКۦۨۡۙۢۨǔКۢۘǔКۢǔۣۨۜۙۦǔ۠К۫ۧǔۣۦǔۦۙۛ۩۠Кۨ۝ۣۢۧǔКۤۤ۠۝ۗКۖ۠ۙﮠ қﮠǔǔЌۜۙǔﮔۙۦۡ۝ۨǔﯜۣ۠ۘۙۦǔۧۜК۠۠ǔۖۙǔۚ۩۠۠ǔۦۣۙۧۤۢۧ۝ۖ۠ۙǔۣۚۦǔКۢǔۚ۩ۨ۩ۦۙǔКۘ۞۩ۧۨۡۙۢۨۧǔۣۚǔۨۜۙǔۚКۗ۝۠۝ۨ۝ۙۧǔ۫۝ۨۜ۝ۢǔۨۜۙǔۙۧۨКۖ۠۝ۧۜۙۘǔۜ۝ۛۜ۫К ۦ۝ۛۜۨﮟۣۚﮟ۫КǔۗК۩ۧۙۘǔۖǔۜ۝ۛۜ۫Кǔۣۗۢۧۨۦ۩ۗۨ۝ۣۢǔۣۦǔۡК۝ۢۨۙۢКۢۗۙǔۣۤۙۦКۨ۝ۣۢۧﮠ Ҝﮠǔǔﯟۣۢﮟۣۗۡۤ۠۝Кۢۗۙǔ۫۝ۨۜǔКۢǔۣۚǔۨۜۙǔۨۙۦۡۧǔۣۚǔۨۜۙǔﯚۙۤКۦۨۡۙۢۨǛۧǔۣۤ۠۝ۗﮞǔۤۙۦۡ۝ۨǔۣۦǔКۛۦۙۙۡۙۢۨﮞǔۡКǔۖۙǔۣۗۢۧ۝ۘۙۦۙۘǔۗК۩ۧۙǔۣۚۦ ۧۜ۩ۨﮟۣۘ۫ۢǔۣۚǔ۩ۨ۝۠۝ۨǔۣۗۢۧۨۦ۩ۗۨ۝ۣۢǔۣۤۙۦКۨ۝ۣۢۧǔۣۦǔ۫۝ۣۨۜۜ۠ۘ۝ۢۛǔۣۚǔۦۣۙ۠ۗКۨ۝ۣۢǔۦۙ۝ۡۖ۩ۦۧۙۡۙۢۨǔ۩ۢۨ۝۠ǔۣۗۡۤ۠۝Кۢۗۙǔ۝ۧǔКۧۧ۩ۦۙۘﮞǔۣۦ ۦ۪ۣۙۗКۨ۝ۣۢǔۣۚǔۨۜۙǔۤۙۦۡ۝ۨﮠǔǔЌۜۙǔۣۗۧۨǔۣۚǔКۢǔۣ۫ۦﭞǔۗК۩ۧۙۘǔۣۨǔۖۙǔۤۙۦۣۚۦۡۙۘǔۖǔۨۜۙǔﯽۨКۨۙǔ۝ۢǔۦۣ۪ۙۡК۠ǔۣۚǔۣۢۢﮟۣۗۡۤ۠۝ۢۛǔۣۗۢۧۨۦ۩ۗۨ۝ۣۢ ۫۝۠۠ǔۖۙǔКۧۧۙۧۧۙۘǔКۛК۝ۢۧۨǔۨۜۙǔﮔۙۦۡ۝ۨǔﯜۣ۠ۘۙۦﮠ ڽﮠǔǔЌۜۙǔۣ۫ۦﭞǔۘۙۧۗۦ۝ۖۙۘǔ۝ۢǔۨۜ۝ۧǔۤۙۦۡ۝ۨǔۧۜК۠۠ǔۖۙǔۣۗۡۤ۠ۙۨۙۘǔКۧǔۤۦۣۣۤۧۙۘǔ۝ۢǔۣۗۡۤ۠۝Кۢۗۙǔ۫۝ۨۜǔۨۜۙǔۧۨ۝ۤ۩۠Кۨ۝ۣۢۧǔКۢۘǔۧۤۙۗ۝К۠ ۦۙۥ۩۝ۦۙۡۙۢۨۧǔ۫۝ۨۜ۝ۢǔۣۢۙǔۙКۦǔۚۦۣۡǔۨۜۙǔۘКۨۙǔﯚۙۤКۦۨۡۙۢۨǔКۤۤۦۣ۪К۠ǔ۝ۧǔۦۙۗۙ۝۪ۙۘǔۣۚۦǔۧК۝ۘǔۦۙۥ۩ۙۧۨﮠǔǔﯘК۝۠۩ۦۙǔۣۢǔۨۜۙǔۤКۦۨǔۣۚǔۨۜۙ ﮔۙۦۡ۝ۨǔﯜۣ۠ۘۙۦǔۣۨǔКۖ۝ۘۙǔۖǔۨۜۙǔۧۨ۝ۤ۩۠Кۨ۝ۣۢۧǔۣۦǔ۝ۢǔۣۗۢۧۨۦ۩ۗۨ۝ۢۛǔۨۜۙǔۣ۫ۦﭞǔۘۙۧۗۦ۝ۖۙۘǔКۧǔۧۨ۝ۤ۩۠КۨۙۘǔКۢۘǔ۫۝ۨۜ۝ۢǔۨۜۙǔۨ۝ۡۙǔۚۦКۡۙǔۧۨКۨۙۘ ۧۜК۠۠ǔۦۙۢۘۙۦǔۨۜ۝ۧǔКۛۦۙۙۡۙۢۨǔКۢۘǔۦۙۥ۩ۙۧۨǔۢ۩۠۠ǔКۢۘǔ۪ۣ۝ۘﮠǔǔЌۜۙǔﮔۙۦۡ۝ۨǔﯜۣ۠ۘۙۦǔКۣ۠ۧǔКۛۦۙۙۧǔۣۨǔۧК۪ۙǔۨۜۙǔﯽۨКۨۙǔۣۚǔﯢۣ۫КǔКۢۘǔۨۜۙ ﯚۙۤКۦۨۡۙۢۨǔۜКۦۡ۠ۙۧۧǔۣۚǔКۢǔۘКۡКۛۙۧǔۣۦǔۣ۠ۧۧۙۧǔۨۜКۨǔۡКǔۖۙǔۧ۩ۧۨК۝ۢۙۘǔۖǔКۢǔۤۙۦۣۧۢﮞǔۣۦǔۤۙۦۣۧۢۧﮞǔۣۢǔКۣۗۗ۩ۢۨǔۣۚǔۨۜۙ ۣۗۢۘ۝ۨ۝ۣۢۧǔКۢۘǔۦۙۥ۩۝ۦۙۡۙۢۨۧǔۣۚǔۨۜ۝ۧǔКۛۦۙۙۡۙۢۨﮠ ﯡﮠǔǔﯙۣۢۧۨۦ۩ۗۨ۝ۣۢǔКۢۘǔﯞК۝ۢۨۙۢКۢۗۙ

ҚﮠǔǔЌۜۙǔۣ۠ۗКۨ۝ۣۢﮞǔۣۗۢۧۨۦ۩ۗۨ۝ۣۢǔКۢۘǔۡК۝ۢۨۙۢКۢۗۙǔۣۚǔۨۜۙǔ۩ۨ۝۠۝ۨǔ۝ۢۧۨК۠۠Кۨ۝ۣۢǔۣ۪ۗۙۦۙۘǔۖǔۨۜ۝ۧǔКۤۤ۠۝ۗКۨ۝ۣۢǔۧۜК۠۠ǔۖۙǔ۝ۢǔКۣۗۗۦۘКۢۗۙǔ۫۝ۨۜ ۨۜۙǔۗ۩ۦۦۙۢۨǔﯚۙۤКۦۨۡۙۢۨǛۧǔЎۨ۝۠۝ۨǔﯠۣۣۗۗۡۡۘКۨ۝ۣۢǔﮔۣ۠۝ۗﮠ қﮠǔǔﯡۣۙۚۦۙǔۖۙۛ۝ۢۢ۝ۢۛǔКۢǔۣ۫ۦﭞǔ۝ۢǔۨۜۙǔۜ۝ۛۜ۫Кǔۦ۝ۛۜۨﮟۣۚﮟ۫Кﮞǔ۝ۨǔ۝ۧǔۨۜۙǔۦۣۙۧۤۢۧ۝ۖ۝۠۝ۨǔۣۚǔۨۜۙǔﮔۙۦۡ۝ۨǔﯜۣ۠ۘۙۦǔۣۨǔۣۖۨК۝ۢǔКۢǔۙКۧۙۡۙۢۨ ۚۦۣۡǔۨۜۙǔۘۦК۝ۢКۛۙǔۘ۝ۧۨۦ۝ۗۨǔ۝ۚǔۢۙۗۙۧۧКۦﮠǔǔЌۜۙǔﯚۙۤКۦۨۡۙۢۨǔКۧۧ۩ۡۙۧǔۣۢǔۦۣۙۧۤۢۧ۝ۖ۝۠۝ۨǔۣۚۦǔК۪ۘ۝ۧ۝ۢۛǔۨۜۙǔﮔۙۦۡ۝ۨǔﯜۣ۠ۘۙۦǔۣۚǔۙКۗۜ ۣ۠ۗКۨ۝ۣۢǔۣۚǔКǔۘۦК۝ۢКۛۙǔۘ۝ۧۨۦ۝ۗۨǔۗۦۣۧۧ۝ۢۛﮠǔǔﯢۨǔ۝ۧǔۨۜۙǔﮔۙۦۡ۝ۨǔﯜۣ۠ۘۙۦǛۧǔۦۣۙۧۤۢۧ۝ۖ۝۠۝ۨǔۣۨǔۣ۠ۗКۨۙǔۨۜۙۧۙǔۗۦۣۧۧ۝ۢۛۧǔКۢۘǔۣۖۨК۝ۢǔКۢ ۢۙۗۙۧۧКۦǔۙКۧۙۡۙۢۨۧǔۣۦǔۤۙۦۡ۝ۧۧ۝ۣۢǔۚۦۣۡǔۨۜۙǔۘۦК۝ۢКۛۙǔۘ۝ۧۨۦ۝ۗۨﮠǔǔﯽۙۙǔﯙۣۘۙǔۣۚǔﯢۣ۫КﮞǔﯙۜКۤۨۙۦǔڽңүǔۣۚۦǔКۘۘ۝ۨ۝ۣۢК۠ǔ۝ۣۢۚۦۡКۨ۝ۣۢﮠ ҜﮠǔǔﯠǔۣۗۤǔۣۚǔۨۜۙǔКۤۤۦۣ۪ۙۘǔۤۙۦۡ۝ۨǔۧۜК۠۠ǔۖۙǔК۪К۝۠Кۖ۠ۙǔۣۢǔۨۜۙǔ۞ۣۖǔۧ۝ۨۙǔКۨǔК۠۠ǔۨ۝ۡۙۧǔۣۚۦǔۙКۡ۝ۢКۨ۝ۣۢǔۖǔﯚۙۤКۦۨۡۙۢۨǔۣۚۚ۝ۗ۝К۠ۧﮠ ڽﮠǔǔﯠ۠۠ǔۨۦКۚۚ۝ۗǔۣۗۢۨۦۣ۠ǔ۝ۢۗ۠۩ۘ۝ۢۛǔۧ۝ۛۢǔۤ۠КۗۙۡۙۢۨǔКۢۘǔۚ۠Кۛۛ۝ۢۛǔКۦۙǔۨۜۙǔۦۣۙۧۤۢۧ۝ۖ۝۠۝ۨǔۣۚǔۨۜۙǔﮔۙۦۡ۝ۨǔﯜۣ۠ۘۙۦﮠǔǔЌۜۙǔۣۦ۝ۛ۝ۢК۠ǔۤ۠Кۗۙۡۙۢۨ ۣۚǔۧ۝ۛۢۧǔКۢۘǔۨۜۙ۝ۦǔۦۣ۪ۙۡК۠ǔ۩ۣۤۢǔۣۗۡۤ۠ۙۨ۝ۣۢǔۣۚǔۨۜۙǔۣ۫ۦﭞǔۧۜК۠۠ǔۖۙǔКۣۗۗۡۤ۠۝ۧۜۙۘǔۖǔۨۜۙǔﮔۙۦۡ۝ۨǔﯜۣ۠ۘۙۦﮠ ھﮠǔǔﮓۤۙۦКۨ۝ۣۢۧǔ۝ۢǔۨۜۙǔۣۗۢۧۨۦ۩ۗۨ۝ۣۢǔКۢۘǔۡК۝ۢۨۙۢКۢۗۙǔۣۚǔۧК۝ۘǔ۩ۨ۝۠۝ۨǔ۝ۢۧۨК۠۠Кۨ۝ۣۢǔۧۜК۠۠ǔۖۙǔۗКۦۦ۝ۙۘǔۣۢǔ۝ۢǔۧ۩ۗۜǔКǔۡКۢۢۙۦǔКۧǔۣۨǔۗК۩ۧۙ ۡ۝ۢ۝ۡ۩ۡǔ۝ۢۨۙۦۚۙۦۙۢۗۙǔۣۨǔۣۦǔۘ۝ۧۨۦКۗۨ۝ۣۢǔۣۚǔۨۦКۚۚ۝ۗǔۣۢǔۧК۝ۘǔۜ۝ۛۜ۫Кﮠ ңﮠǔǔﯠۚۨۙۦǔﯟۣ۪ۙۡۖۙۦǔқڽﮞǔқҗҗүﮞǔК۠۠ǔۤۙۦۣۧۢۢۙ۠ǔ۝ۢǔۨۜۙǔۜ۝ۛۜ۫Кǔۦ۝ۛۜۨﮟۣۚﮟ۫КǔۧۜК۠۠ǔ۫ۙКۦǔﯠﯟﯽﯢǔҚҗҮǔﯙ۠КۧۧǔқǔКۤۤКۦۙ۠ǔКۨǔК۠۠ǔۨ۝ۡۙۧǔ۫ۜۙۢ ۙۣۤۧۙۘǔۣۨǔۨۦКۚۚ۝ۗǔۣۦǔۣۗۢۧۨۦ۩ۗۨ۝ۣۢǔۙۥ۩۝ۤۡۙۢۨﮠ ﯙﮠǔǔﮐ۝Кۖ۝۠۝ۨ

ҚﮠǔǔЌۜۙǔﮔۙۦۡ۝ۨǔﯜۣ۠ۘۙۦǔۧۜК۠۠ǔ۝ۢۘۙۡۢ۝ۚǔКۢۘǔۧК۪ۙǔۜКۦۡ۠ۙۧۧǔۨۜۙǔﯽۨКۨۙǔۣۚǔﯢۣ۫Кﮞǔ۝ۨۧǔКۛۙۢۗ۝ۙۧǔКۢۘǔۣۙۡۤ۠ۙۙۧﮞǔۚۦۣۡǔКۢǔКۢۘǔК۠۠

ۗК۩ۧۙۧǔۣۚǔКۗۨ۝ۣۢﮞǔۧ۩۝ۨۧǔКۨǔ۠К۫ǔۣۦǔ۝ۢǔۙۥ۩۝ۨﮞǔۣۚۦǔۣ۠ۧۧۙۧﮞǔۘКۡКۛۙۧﮞǔۗ۠К۝ۡۧǔۣۦǔۘۙۡКۢۘۧﮞǔКۢۘǔۚۦۣۡǔКۢǔКۢۘǔК۠۠ǔ۠۝Кۖ۝۠۝ۨǔКۢۘǔۙۤۙۢۧۙ ۣۚǔ۫ۜКۣ۪ۨۧۙۙۦǔۢКۨ۩ۦۙﮞǔКۦ۝ۧ۝ۢۛǔۣ۩ۨǔۣۚǔۣۦǔ۝ۢǔۣۗۢۢۙۗۨ۝ۣۢǔ۫۝ۨۜǔۨۜۙǔﮔۙۦۡ۝ۨǔﯜۣ۠ۘۙۦǛۧǔ۩ۧۙǔۣۦǔۣۗۗ۩ۤКۢۗǔۣۚǔۨۜۙǔۤ۩ۖ۠۝ۗǔۜ۝ۛۜ۫Кﮠ қﮠǔǔЌۜۙǔۧۨКۨۙǔۣۚǔﯢۣ۫КǔКۢۘǔۨۜۙǔﯚۙۤКۦۨۡۙۢۨǔКۧۧ۩ۡۙǔۣۢǔۦۣۙۧۤۢۧ۝ۖ۝۠۝ۨǔۣۚۦǔۘКۡКۛۙۧǔۣۨǔۨۜۙǔﮔۙۦۡ۝ۨǔﯜۣ۠ۘۙۦǛۧǔۤۦۣۤۙۦۨǔۣۗۗКۧ۝ۣۢۙۘ ۖǔКۢǔۣۗۢۧۨۦ۩ۗۨ۝ۣۢǔۣۦǔۡК۝ۢۨۙۢКۢۗۙǔۣۤۙۦКۨ۝ۣۢۧǔۣۢǔۧК۝ۘǔۜ۝ۛۜ۫Кǔ۝ۚǔﮔۙۦۡ۝ۨǔﯜۣ۠ۘۙۦǔۜКۧǔۖۙۙۢǔۣۢۨ۝ۚ۝ۙۘǔ۝ۢǔКۣۗۗۦۘКۢۗۙǔ۫۝ۨۜ ۧۨ۝ۤ۩۠Кۨ۝ۣۢǔۢ۩ۡۖۙۦǔﯚﮠҜﮠǔۣۦǔ۝ۚǔۨۜۙǔۚКۗ۝۠۝ۨ۝ۙۧǔКۦۙǔۣۢۨǔۣ۠ۗКۨۙۘǔ۝ۢǔКۣۗۗۦۘКۢۗۙǔ۫۝ۨۜǔۨۜ۝ۧǔۤۙۦۡ۝ۨﮠ ҜﮠǔǔЌۜۙǔﯽۨКۨۙǔۣۚǔﯢۣ۫Кﮞǔ۝ۨۧǔКۛۙۢۗ۝ۙۧǔۣۦǔۣۙۡۤ۠ۙۙۧﮞǔ۫۝۠۠ǔۖۙǔ۠۝Кۖ۠ۙǔۣۚۦǔۙۤۙۢۧۙǔ۝ۢۗ۩ۦۦۙۘǔۖǔۨۜۙǔﮔۙۦۡ۝ۨǔﯜۣ۠ۘۙۦǔ۝ۢǔ۝ۨۧǔ۩ۧۙǔКۢۘ ۣۗۗ۩ۤКۢۗǔۣۚǔۨۜۙǔۜ۝ۛۜ۫Кǔۦ۝ۛۜۨﮟۣۚﮟ۫Кǔۣۢ۠ǔ۫ۜۙۢǔۢۙۛ۠۝ۛۙۢۗۙǔۣۚǔۨۜۙǔﯽۨКۨۙﮞǔ۝ۨۧǔКۛۙۢۗ۝ۙۧǔۣۦǔۣۙۡۤ۠ۙۙۧﮞǔ۝ۧǔۨۜۙǔۣۧ۠ۙǔۤۦۣ۝ۡКۨۙ ۗК۩ۧۙǔۣۚǔۧ۩ۗۜǔۙۤۙۢۧۙﮠǔǔﯤۜۙۨۜۙۦǔ۝ۢǔۣۗۢۨۦКۗۨﮞǔۣۨۦۨǔۣۦǔۣۨۜۙۦ۫۝ۧۙﮞǔۨۜۙǔ۠۝Кۖ۝۠۝ۨǔۣۚǔۨۜۙǔﯽۨКۨۙﮞǔ۝ۨۧǔКۛۙۢۗ۝ۙۧǔКۢۘǔۣۙۡۤ۠ۙۙۧﮞǔ۝ۧǔ۠۝ۡ۝ۨۙۘ ۣۨǔۨۜۙǔۦۙКۣۧۢКۖ۠ۙﮞǔۘ۝ۦۙۗۨǔۙۤۙۢۧۙǔۣۨǔۦۙۤК۝ۦǔۘКۡКۛۙۘǔ۩ۨ۝۠۝ۨ۝ۙۧﮞǔКۢۘǔ۝ۢǔۣۢǔ۪ۙۙۢۨǔ۫۝۠۠ǔۧ۩ۗۜǔ۠۝Кۖ۝۠۝ۨǔۙۨۙۢۘǔۣۨǔۣ۠ۧۧǔۣۚǔۤۦۣۚ۝ۨۧǔۣۦ ۖ۩ۧ۝ۢۙۧۧﮞǔ۝ۢۘ۝ۦۙۗۨﮞǔۧۤۙۗ۝К۠ﮞǔۣۗۢۧۙۥ۩ۙۢۨ۝К۠ǔۣۦǔ۝ۢۗ۝ۘۙۢۨК۠ǔۘКۡКۛۙۧﮠ ﯚﮠǔﯟۣۨ۝ۚ۝ۗКۨ۝ۣۢ

ҚﮠǔǔЌۜۙǔﮔۙۦۡ۝ۨǔﯜۣ۠ۘۙۦǔ۝ۧǔۦۣۙۧۤۢۧ۝ۖ۠ۙǔۣۚۦǔۣۗۢۨКۗۨ۝ۢۛǔﯢۣ۫КǔﮓۢۙﮟﯙК۠۠ǔǜҚﮟүҗҗﮟқҰқﮟүҰүҰ۶ǔКۢۘǔۦۙۥ۩ۙۧۨǔۨۜۙǔۣ۠ۗКۨ۝ۣۢǔۣۚǔКۢ ۩ۢۘۙۦۛۦۣ۩ۢۘǔ۩ۨ۝۠۝ۨ۝ۙۧǔۣۚۦۨﮟۙ۝ۛۜۨǔǜڽү۶ǔۣۜ۩ۦۧǔۣۖۙۚۦۙǔۙۗК۪Кۨ۝ۣۢﮠǔǔﯡۣۙۚۦۙǔۖۙۛ۝ۢۢ۝ۢۛǔۣ۫ۦﭞǔ۝ۢǔۨۜۙǔۜ۝ۛۜ۫Кǔۦ۝ۛۜۨﮟۣۚﮟ۫Кﮞǔۨۜۙǔﮔۙۦۡ۝ۨ ﯜۣ۠ۘۙۦǔۧۜК۠۠ǔКۣ۠ۧǔۣۗۢۨКۗۨǔКۢǔۣۨۜۙۦǔﭞۣۢ۫ۢǔ۩ۨ۝۠۝ۨǔۣ۠ۗКۨۙۘǔ۝ۢǔۨۜۙǔКۦۙКǔۣۚǔۨۜۙǔۤۦۣۣۤۧۙۘǔۣ۫ۦﭞﮠ қﮠǔǔЌۜۙǔﮔۙۦۡ۝ۨǔﯜۣ۠ۘۙۦǔКۛۦۙۙۧǔۣۨǔۛ۝۪ۙǔۨۜۙǔﯚۙۤКۦۨۡۙۢۨǔۣۚۦۨﮟۙ۝ۛۜۨǔۣۜ۩ۦۧǔۣۢۨ۝ۗۙǔۣۚǔ۝ۨۧǔ۝ۢۨۙۢۨ۝ۣۢǔۣۨǔۧۨКۦۨǔۣۗۢۧۨۦ۩ۗۨ۝ۣۢǔۣۦǔۣۨǔۤۙۦۣۚۦۡ ۦۣ۩ۨ۝ۢۙǔۡК۝ۢۨۙۢКۢۗۙǔۣۢǔۨۜۙǔۜ۝ۛۜ۫Кǔۦ۝ۛۜۨﮟۣۚﮟ۫КﮠǔǔﯽК۝ۘǔۣۢۨ۝ۗۙǔۧۜК۠۠ǔۖۙǔۡКۘۙǔۣۨǔۨۜۙǔۣۗۢۨКۗۨǔۤۙۦۣۧۢǔۣ۫ۜۧۙǔۢКۡۙǔ۝ۧǔۣۧۜ۫ۢǔۣۢ ۨۜ۝ۧǔۤКۛۙﮠ ҜﮠǔǔЌۜۙǔﯚۙۤКۦۨۡۙۢۨǔۧۜК۠۠ǔۛ۝۪ۙǔۨۜۙǔﮔۙۦۡ۝ۨǔﯜۣ۠ۘۙۦǔКۨǔ۠ۙКۧۨǔۣۚۦۨﮟۙ۝ۛۜۨǔۣۜ۩ۦۧǔۣۢۨ۝ۗۙǔۣۚǔКۢǔۤۦۣۣۤۧۙۘǔۣۗۢۧۨۦ۩ۗۨ۝ۣۢǔۣۦǔۡК۝ۢۨۙۢКۢۗۙ ۣ۫ۦﭞﮞǔۣۢǔۙ۝ۨۜۙۦǔۙ۝ۧۨ۝ۢۛǔۣۦǔۢۙ۫۠ǔКۗۥ۩۝ۦۙۘǔۦ۝ۛۜۨﮟۣۚﮟ۫Кǔ۫ۜۙۢǔۨۜۙǔۤۦۣۣۤۧۙۘǔۣ۫ۦﭞǔ۫۝۠۠ǔۖۙǔۨۙۢǔۚۙۙۨǔۣۚǔКǔ۩ۨ۝۠۝ۨǔۣ۠ۗКۨ۝ۣۢǔКۧ ۤۦ۪ۙ۝ۣ۩ۧ۠ǔКۤۤۦۣ۪ۙۘǔۖǔۨۜۙǔﯚۙۤКۦۨۡۙۢۨǔۖǔۤۙۦۡ۝ۨǔۣۦǔ۫ۦ۝ۨۨۙۢǔКۛۦۙۙۡۙۢۨﮠǔǔЌۜۙǔﮔۙۦۡ۝ۨǔﯜۣ۠ۘۙۦǔۧۜК۠۠ǔۖۙǔۦۣۙۧۤۢۧ۝ۖ۠ۙǔ۫۝ۨۜ۝ۢǔۨۜ۝ۧ ۨ۝ۡۙۚۦКۡۙǔۣۨǔКۦۦКۢۛۙǔۣۨǔۤۦۣۨۙۗۨǔ۝ۨۧǔۚКۗ۝۠۝ۨ۝ۙۧﮠ

ﯚ۝ۣۧۗ۠ۧ۩ۦۙǔﯽۨКۨۙۡۙۢۨﮤǔЌۜۙǔ۝ۣۢۚۦۡКۨ۝ۣۢǔۚ۩ۦۢ۝ۧۜۙۘǔۣۢǔۨۜ۝ۧǔۣۚۦۡǔ۫۝۠۠ǔۖۙǔ۩ۧۙۘǔۖǔۨۜۙǔﯚۙۤКۦۨۡۙۢۨǔۣۚǔЌۦКۣۢۧۤۦۨКۨ۝ۣۢǔۣۨǔۘۙۨۙۦۡ۝ۢۙǔКۤۤۦۣ۪К۠ǔۣۦ ۘۙۢ۝К۠ǔۣۚǔۨۜۙǔКۤۤ۠۝ۗКۨ۝ۣۢﮠǔǔﯘК۝۠۩ۦۙǔۣۨǔۤۦۣ۪۝ۘۙǔК۠۠ǔ۝ۣۢۚۦۡКۨ۝ۣۢǔ۫۝۠۠ǔۦۙۧ۩۠ۨǔ۝ۢǔۘۙۢ۝К۠ǔۣۚǔۨۜۙǔКۤۤ۠۝ۗКۨ۝ۣۢﮠǔǔﯢۣۢۚۦۡКۨ۝ۣۢǔۚ۩ۦۢ۝ۧۜۙۘǔ۝ۧǔۤ۩ۖ۠۝ۗǔ۝ۣۢۚۦۡКۨ۝ۣۢ Кۢۘǔۣۗۤ۝ۙۧǔۡКǔۖۙǔۤۦۣ۪۝ۘۙۘǔۣۨǔۨۜۙǔۤ۩ۖ۠۝ۗǔ۩ۣۤۢǔۦۙۥ۩ۙۧۨﮠ

ﮔКۛۙǔқǔۣۚǔқ

File Specifics

Fact Name Details
Form Number The 810025 Iowa form is designated for specific administrative purposes within the state of Iowa.
Governing Law This form is governed by Iowa state law, specifically under the Iowa Administrative Code.
Purpose It serves to collect information necessary for state agencies to process requests or applications.
Filing Method Individuals can submit the 810025 form electronically or via traditional mail, depending on the agency's requirements.
Deadline There are specific deadlines associated with the submission of this form, which vary by application type.
Required Information Applicants must provide personal identification details, including name, address, and other relevant information.
Contact Information For assistance, applicants can reach out to the Iowa Department of Administrative Services.

How to Use 810025 Iowa

Filling out the 810025 Iowa form requires careful attention to detail. This form is essential for specific administrative processes in Iowa, and it is crucial to ensure that all information is accurate and complete. After you have filled out the form, you will need to submit it to the appropriate office, along with any required documentation or fees.

  1. Obtain the Form: Access the 810025 Iowa form from the official Iowa government website or your local government office.
  2. Read the Instructions: Before you begin filling out the form, read all accompanying instructions carefully to understand what information is required.
  3. Provide Personal Information: Fill in your name, address, and contact information in the designated sections. Ensure that this information is current and correct.
  4. Detail the Purpose: Indicate the purpose of the form in the appropriate section. Be clear and concise in your explanation.
  5. Complete All Required Sections: Go through each section of the form and fill in all required fields. If a section does not apply to you, indicate that appropriately.
  6. Review for Accuracy: Double-check all entries for spelling, accuracy, and completeness. Errors can delay processing.
  7. Sign and Date: Sign and date the form in the designated area to certify that the information provided is true and accurate.
  8. Prepare for Submission: Gather any necessary supporting documents that may be required along with the form.
  9. Submit the Form: Send the completed form and any required documents to the appropriate office. Be mindful of submission deadlines.

Your Questions, Answered

What is the 810025 Iowa form?

The 810025 Iowa form is a specific document used for various purposes within the state of Iowa. It is important to understand the context in which this form is required, as it may pertain to tax filings, business registrations, or other legal matters. Always check the official Iowa Department of Revenue or relevant agency for the most accurate information regarding its use.

Who needs to fill out the 810025 Iowa form?

Individuals or businesses that meet certain criteria set forth by the state of Iowa may need to complete this form. Typically, it is required for those engaging in activities that require official reporting or registration. This could include new businesses, changes in business structure, or individuals claiming specific tax benefits. If you are unsure whether you need to fill out this form, consulting with a tax professional or legal advisor can provide clarity.

How do I obtain the 810025 Iowa form?

The 810025 Iowa form can be obtained directly from the Iowa Department of Revenue's website or the appropriate state agency. Many forms are available for download in PDF format, allowing you to print and complete them at your convenience. If you prefer, you can also request a physical copy by contacting the agency directly.

What information is required on the 810025 Iowa form?

While the specific details may vary depending on the purpose of the form, generally, you will need to provide personal or business information, including:

  1. Name and address
  2. Tax identification number or Social Security number
  3. Details related to the specific purpose of the form, such as income, expenses, or business structure

Always ensure that the information you provide is accurate and complete to avoid potential delays or issues with processing.

What happens if I submit the form late?

Submitting the 810025 Iowa form late may result in penalties or interest on any taxes owed. The specific consequences depend on the nature of the form and the regulations governing it. It's advisable to submit the form as soon as possible if you have missed the deadline. In some cases, you may be able to request a waiver of penalties if you can demonstrate a reasonable cause for the delay.

Can I file the 810025 Iowa form electronically?

Yes, many forms, including the 810025 Iowa form, can often be filed electronically through the Iowa Department of Revenue's online portal. This option can streamline the process and reduce the likelihood of errors. Always check the specific instructions for the form to determine if electronic filing is available and to ensure compliance with any requirements.

Where do I send the completed 810025 Iowa form?

Once you have completed the 810025 Iowa form, it should be sent to the address specified in the form's instructions. This may vary depending on the purpose of the form, so it is crucial to read all accompanying guidelines carefully. If you are filing electronically, follow the prompts provided by the online system to ensure proper submission.

Common mistakes

  1. Failing to provide accurate personal information. Ensure that your name, address, and contact details are correct. Mistakes here can lead to delays or rejections.

  2. Neglecting to sign and date the form. A signature is essential for the form to be valid. Without it, the form may not be processed.

  3. Not reading the instructions carefully. Each section of the form has specific requirements. Skipping this step can lead to incomplete submissions.

  4. Using incorrect or outdated versions of the form. Always check for the most recent version of the 810025 Iowa form. Using an old version can result in your application being invalid.

Documents used along the form

The 810025 Iowa form is often accompanied by several other important documents that help to provide context or additional information related to the matter at hand. Below is a list of six commonly used forms and documents that may be relevant when filing or processing the 810025 Iowa form. Each of these documents serves a specific purpose, ensuring that all necessary information is accurately captured and submitted.

  • Affidavit of Service: This document verifies that a party has been properly notified about a legal action. It includes details about how and when the notification was delivered, ensuring compliance with legal requirements.
  • Notice of Hearing: This form informs all relevant parties about the date and time of a scheduled hearing. It is crucial for ensuring that everyone involved has the opportunity to participate in the proceedings.
  • Petition or Complaint: This document outlines the claims or requests being made by the filing party. It serves as the foundation for the legal action and details the facts and legal basis for the case.
  • Response or Answer: When a party receives a petition or complaint, they may file a response or answer. This document addresses the claims made and can include defenses or counterclaims against the original petition.
  • Exhibits: These are supporting documents that provide evidence or additional context to the claims made in the petition or response. Exhibits can include contracts, photographs, or other relevant materials.
  • Certificate of Compliance: This form confirms that all procedural requirements have been met. It may include verification that documents were filed in a timely manner and that all parties were notified as required by law.

These documents play a vital role in the legal process, ensuring that all parties are informed and that the necessary information is presented to the court. Properly completing and submitting these forms alongside the 810025 Iowa form can significantly impact the outcome of the case.

Similar forms

The 810025 Iowa form is similar to the IRS Form 1040, which is the standard individual income tax return used by taxpayers in the United States. Both forms require detailed information about the taxpayer's income, deductions, and credits. The 1040 form is essential for reporting annual income and determining tax liability, just as the 810025 form serves to capture specific financial data relevant to Iowa state taxes. Each form has sections dedicated to personal information, income sources, and deductions, making them crucial for accurate tax reporting.

Another document comparable to the 810025 form is the IRS Form W-2, which reports an employee's annual wages and the taxes withheld from their paycheck. Both forms require the reporting of income information, but while the W-2 focuses on employment income, the 810025 may encompass various income sources relevant to state taxes. The W-2 is provided by employers to employees, whereas the 810025 is submitted directly by individuals to the state of Iowa.

The 810025 form also shares similarities with IRS Form 1099, which is used to report income received from sources other than employment, such as freelance work or interest income. Like the 810025, the 1099 requires detailed reporting of income types and amounts. Both forms aim to ensure that all income is accurately reported to the respective tax authorities, with the 1099 focusing on non-employment income, while the 810025 consolidates various income types for state tax purposes.

Additionally, the 810025 form is akin to the IRS Schedule A, which is used for itemizing deductions on an individual’s federal tax return. Both documents require taxpayers to provide detailed information about deductions they are claiming, whether they are for state or federal taxes. The itemization process on Schedule A can influence the overall tax liability, just as the deductions reported on the 810025 form can affect Iowa state tax obligations.

The 810025 form is also similar to the IRS Form 8862, which is used to claim the Earned Income Credit after it has been disallowed in a previous year. Both forms require taxpayers to provide specific information to substantiate their eligibility for credits or deductions. While the 8862 focuses on federal credits, the 810025 addresses state-level credits and deductions, making them both important for ensuring compliance and maximizing tax benefits.

Another related document is the IRS Form 8889, which is used to report Health Savings Account (HSA) contributions and distributions. Both forms require detailed financial reporting, although the 8889 is specific to health-related accounts. The information on the 8889 can impact federal tax liability, while the 810025 affects state tax obligations, emphasizing the importance of accurate reporting in both contexts.

The 810025 form also parallels the IRS Form 4562, which is used to claim depreciation on assets. Both forms require taxpayers to provide detailed information about assets, including their value and depreciation. While the 4562 focuses on federal tax implications of asset depreciation, the 810025 may address similar considerations for state taxes, ensuring that taxpayers accurately report the financial impact of their assets.

Lastly, the 810025 form can be compared to the IRS Form 8880, which is used to claim a credit for qualified retirement savings contributions. Both documents require taxpayers to provide information about their savings contributions and eligibility for credits. While the 8880 pertains to federal tax credits, the 810025 addresses state-level implications, highlighting the interconnectedness of state and federal tax systems and the importance of thorough reporting in both cases.

Dos and Don'ts

When filling out the 810025 Iowa form, there are several important things to keep in mind. Here’s a helpful list of dos and don’ts:

  • Do read the instructions carefully before starting.
  • Do ensure all required fields are filled out completely.
  • Do double-check your information for accuracy.
  • Do use black or blue ink if filling out a paper form.
  • Don't leave any sections blank unless instructed.
  • Don't submit the form without reviewing it first.
  • Don't forget to sign and date the form before submission.

Following these guidelines can help ensure that your form is processed smoothly and efficiently. Pay attention to details, and don’t hesitate to ask for assistance if needed.

Misconceptions

  • Misconception 1: The 810025 Iowa form is only for businesses.
  • This form is applicable to both individuals and businesses. Many people mistakenly believe it is exclusively for corporate entities, but it serves a broader audience.

  • Misconception 2: Submitting the form guarantees approval.
  • Completing and submitting the 810025 Iowa form does not guarantee that the application will be approved. Approval depends on meeting specific criteria and requirements set by the state.

  • Misconception 3: The form can be submitted anytime without deadlines.
  • There are specific deadlines for submitting the 810025 Iowa form. Failing to adhere to these deadlines may result in delays or denial of the application.

  • Misconception 4: All information on the form is optional.
  • Some individuals think that they can skip sections of the 810025 Iowa form. However, providing complete and accurate information is crucial for processing the application effectively.

  • Misconception 5: The form is the same every year.
  • The 810025 Iowa form may change from year to year. It is essential to use the most current version of the form to ensure compliance with any updated regulations or requirements.

Key takeaways

  • Understand the Purpose: The 810025 Iowa form is primarily used for specific administrative purposes. Knowing why you're filling it out can help ensure you provide the correct information.
  • Gather Required Information: Before starting, collect all necessary documents and information. This may include personal identification details and any relevant case numbers.
  • Follow Instructions Carefully: Each section of the form comes with instructions. Read these thoroughly to avoid mistakes that could delay processing.
  • Be Accurate: Accuracy is crucial when filling out the form. Double-check all entries for typos or incorrect data, as errors can lead to complications.
  • Sign and Date: Don’t forget to sign and date the form. An unsigned form may be considered invalid and could be returned for correction.
  • Submit on Time: Ensure you know the submission deadlines. Late submissions can result in penalties or denial of your request.
  • Keep Copies: After submission, make copies of the completed form and any accompanying documents. This can be useful for your records and future reference.
  • Seek Help if Needed: If you have questions or need assistance, consider reaching out to a legal professional or the appropriate administrative office. They can provide guidance tailored to your situation.