Blank 4 Point Inspection PDF Form

Blank 4 Point Inspection PDF Form

The 4-Point Inspection Form is a critical document used to assess the condition of four key systems in a property: the roof, electrical, HVAC, and plumbing. This form must be completed by a Florida-licensed inspector, who will provide essential details about the property's systems to help determine its insurability. Accurate information on this form is vital for homeowners seeking insurance coverage.

To ensure your property is properly evaluated, please fill out the form by clicking the button below.

The 4 Point Inspection form plays a crucial role in assessing the condition of key systems in a property, particularly for insurance purposes. This form focuses on four main areas: the electrical system, HVAC system, plumbing system, and the roof. Each section requires detailed information, including the age of the systems, any visible hazards, and the general condition. For instance, the electrical section asks about the presence of aluminum wiring and any potential safety issues, while the HVAC section evaluates the functionality of heating and cooling systems. The plumbing section checks for leaks and the overall condition of fixtures, and the roof section assesses its material, age, and any signs of damage. Additionally, the form mandates the inclusion of photographs to document the condition of each system. A Florida-licensed inspector must complete and sign the form, ensuring that the information provided is accurate and reliable. This comprehensive approach allows underwriters to make informed decisions about insurability, while also highlighting any areas that may require further attention.

Document Sample

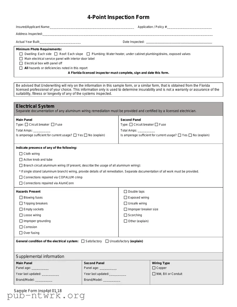
4-Point Inspection Form

Insured/Applicant Name:_________________________________________________ Application / Policy #:__________________________

Address Inspected:___________________________________________________________________________________________________

Actual Year Built:________________________

Date Inspected: ______________________________________________

 

 

Minimum Photo Requirements:

 

Dwelling: Each side

Roof: Each slope

Plumbing: Water heater, under cabinet plumbing/drains, exposed valves

Main electrical service panel with interior door label

Electrical box with panel off

All hazards or deficiencies noted in this report

A Florida-licensed inspector must complete, sign and date this form.

Be advised that Underwriting will rely on the information in this sample form, or a similar form, that is obtained from the Florida licensed professional of your choice. This information only is used to determine insurability and is not a warranty or assurance of the suitability, fitness or longevity of any of the systems inspected.

Electrical System

Separate documentation of any aluminum wiring remediation must be provided and certified by a licensed electrician.

Main Panel

 

 

Second Panel

 

Type:

Circuit breaker

Fuse

 

Type:

Circuit breaker Fuse

 

Total Amps: __________

 

 

Total Amps: __________

 

Is amperage sufficient for current usage?

Yes No (explain)

Is amperage sufficient for current usage?

Yes No (explain)

 

 

 

 

 

 

 

Indicate presence of any of the following:

Cloth wiring

Active knob and tube

Branch circuit aluminum wiring (If present, describe the usage of all aluminum wiring):

* If single strand (aluminum branch) wiring, provide details of all remediation. Separate documentation of all work must be provided.

Connections repaired via COPALUM crimp Connections repaired via AlumiConn

Hazards Present

 

 

Double taps

Blowing fuses

 

 

Exposed wiring

Tripping breakers

 

 

Unsafe wiring

Empty sockets

 

 

Improper breaker size

Loose wiring

 

 

Scorching

Improper grounding

 

 

Other (explain)

Corrosion

 

 

 

Over fusing

 

 

 

 

 

 

 

General condition of the electrical system:

Satisfactory

Unsatisfactory (explain)

Supplemental information

Main Panel

Second Panel

Wiring Type

Panel age: __________

Panel age: __________

Copper

Year last updated: __________

Year last updated:__________

NM, BX or Conduit

Brand/Model: __________

Brand/Model: __________

 

 

 

 

Sample Form Insp4pt 01 18

4-Point Inspection Form

HVAC System

Central AC:

Yes

No

Central heat:

Yes

No

If not central heat, indicate primary heat source and fuel type: _________________________________

Are the heating, ventilation and air conditioning systems in good working order?

Yes

No (explain)

Date of last HVAC servicing/inspection: ______________

 

 

 

 

 

 

 

 

 

 

 

 

Hazards Present

 

 

 

 

 

 

 

Wood-burning stove or central gas fireplace not professionally installed?

Yes

No

 

Space heater used as primary heat source?

Yes

No

 

 

 

Is the source portable?

Yes

No

 

 

 

 

 

Does the air handler/condensate line or drain pan show any signs of blockage or leakage, including water damage to the surrounding area?

Yes No

Supplemental Information

Age of system: _____________

Year last updated: _____________

(Please attach photo(s) of HVAC equipment, including dated manufacturer’s plate)

Plumbing System

Is there a temperature pressure relief valve on the water heater?

Yes

No

 

Is there any indication of an active leak?

Yes

No

 

 

 

Is there any indication of a prior leak?

Yes

No

 

 

 

Water heater location: _______________________________________________

 

 

 

 

General condition of the following plumbing fixtures and connections to appliances:

 

Satisfactory Unsatisfactory

N/A

 

Satisfactory Unsatisfactory

N/A

 

Dishwasher

 

 

 

Toilets

 

Refrigerator

 

 

 

Sinks

 

Washing machine

 

 

 

Sump pump

 

Water heater

 

 

 

Main shut off valve

 

Showers/Tubs

 

 

 

All other visible

 

 

 

 

 

 

 

If unsatisfactory, please provide comments/details (leaks, wet/soft spots, mold, corrosion, grout/caulk, etc.).

Supplemental Information

Age of Piping System:

 

Type of pipes (check all that apply)

 

_____

Original to home

 

Copper

 

 

 

 

 

_____

Completely re-piped

 

PVC/CPVC

 

 

 

 

 

_____

Partially re-piped

 

Galvanized

 

 

 

 

 

(Provide year and extent of renovation in the comments below)

 

PEX

 

 

 

 

 

 

 

 

Polybutylene

 

 

 

 

Other (specify)

 

 

 

 

 

 

Sample Form Insp4pt 01 18

4-Point Inspection Form

Roof (With photos of each roof slope, this section can take the place of the Roof Inspection Form.)

Predominant Roof

Covering material: __________

Roof age (years): __________

Remaining useful life (years): __________

Date of last roofing permit: __________

Date of last update: __________

If updated (check one):

Full replacement Partial replacement

%of replacement: __________

Overall condition:

Satisfactory

Unsatisfactory (explain below)

Any visible signs of damage / deterioration?

(check all that apply and explain below)

Cracking

Cupping/curling

Excessive granule loss

Exposed asphalt

Exposed felt

Missing/loose/cracked tabs or tiles

Soft spots in decking Visible hail damage

Any visible signs of leaks? Yes No

Attic/underside of decking Yes No

Interior ceilings Yes No

Secondary Roof

Covering material: __________

Roof age (years): __________

Remaining useful life (years): __________

Date of last roofing permit: __________

Date of last update: __________

If updated (check one):

Full replacement Partial replacement

%of replacement: __________

Overall condition:

Satisfactory

Unsatisfactory (explain below)

Any visible signs of damage / deterioration?

(check all that apply and explain below)

Cracking

Cupping/curling

Excessive granule loss

Exposed asphalt

Exposed felt

Missing/loose/cracked tabs or tiles

Soft spots in decking Visible hail damage

Any visible signs of leaks? Yes No

Attic/underside of decking Yes No

Interior ceilings Yes No

Additional Comments/Observations (use additional pages if needed):

All 4-Point Inspection Forms must be completed and signed by a verifiable Florida-licensed inspector. I certify that the above statements are true and correct.

Inspector Signature

 

Title

 

License Number

 

Date

 

 

 

 

 

 

 

Company Name

 

License Type

 

Work Phone

 

 

Sample Form Insp4pt 01 18

4-Point Inspection Form

Special Instructions: This sample 4-Point Inspection Form includes the minimum data needed for Underwriting to properly evaluate a property application. While this specific form is not required, any other inspection report submitted for consideration must include at least this level of detail to be acceptable.

Photo Requirements

Photos must accompany each 4-Point Inspection Form. The minimum photo requirements include:

Dwelling: Each side

Roof: Each slope

Plumbing: Water heater, under cabinet plumbing/drains, exposed valves

Open main electrical panel and interior door

Electrical box with the panel off

All hazards or deficiencies

Inspector Requirements

To be accepted, all inspection forms must be completed, signed and dated by a verifiable Florida-licensed professional. Examples include:

A general, residential, or building contractor

A building code inspector

A home inspector

Note: A trade-specific, licensed professional may sign off only on the inspection form section for their trade. (e.g., an electrician may sign off only on the electrical section of the form.)

Documenting the Condition of Each System

The Florida-licensed inspector is required to certify the condition of the roof, electrical, HVAC and plumbing systems. Acceptable Condition means that each system is working as intended and there are no visible hazards or deficiencies.

Additional Comments or Observations

This section of the 4-Point Inspection Form must be completed with full details/descriptions if any of the following are noted on the inspection:

Updates: Identify the types of updates, dates completed and by whom

Any visible hazards or deficiencies

Any system determined not to be in good working order

Note to All Agents

The writing agent must review each 4-Point Inspection Form before it is submitted with an application for coverage. It is the agent’s responsibility to ensure that all rules and requirements are met before the application is bound. Agents may not submit applications for properties with electrical, heating or plumbing systems not in good working order or with existing hazards/deficiencies.

Sample Form Insp4pt 01 18

File Specifics

Fact Name Details
Purpose of the Form The 4-Point Inspection Form is designed to assess the condition of four major systems in a home: electrical, plumbing, HVAC, and roof. This assessment helps insurance companies determine the insurability of a property.
State Requirements In Florida, a licensed inspector must complete the form. This is governed by state regulations ensuring that inspections are conducted by qualified professionals.
Photo Documentation Minimum photo requirements include images of each side of the dwelling, each slope of the roof, and critical plumbing and electrical components. This visual evidence supports the findings documented in the inspection.
Inspection Validity The information provided in the form is not a warranty of the systems' longevity or fitness but is used solely for underwriting purposes. Insurers rely on the accuracy of the details submitted by the inspector.
Hazards and Deficiencies Inspectors must note any hazards or deficiencies found during the inspection. This includes issues like exposed wiring, leaks, or inadequate amperage in electrical systems, which can significantly affect insurability.

How to Use 4 Point Inspection

Completing the 4 Point Inspection form is an essential step in the insurance application process. After filling out this form, the information will be used to evaluate the insurability of the property. Ensure that all sections are filled out accurately and that a Florida-licensed inspector reviews and signs the form.

  1. Begin by entering the Insured/Applicant Name at the top of the form.
  2. Fill in the Application / Policy # next to the name.
  3. Provide the Address Inspected in the designated space.
  4. Indicate the Actual Year Built of the property.
  5. Record the Date Inspected in the appropriate field.
  6. Gather and attach the required photographs for the dwelling, roof, plumbing, and electrical systems as specified in the photo requirements section.
  7. Complete the Electrical System section by noting the type of main panel, total amps, and any presence of hazards or deficiencies.
  8. Fill out the HVAC System section, indicating the status of central AC and heating, and provide any supplemental information required.
  9. In the Plumbing System section, answer questions regarding leaks and the condition of plumbing fixtures, and provide details about the age and type of pipes.
  10. Address the Roof section by noting the predominant roof covering material, age, remaining useful life, and any visible signs of damage or leaks.
  11. Use the Additional Comments/Observations section for any further details or observations that may be necessary.
  12. Ensure the form is signed and dated by a Florida-licensed inspector, who must also provide their title, license number, company name, license type, and work phone.

Your Questions, Answered

What is a 4 Point Inspection Form?

The 4 Point Inspection Form is a document used to evaluate the condition of four critical systems in a property: the roof, electrical system, HVAC (heating, ventilation, and air conditioning), and plumbing. It is essential for insurance underwriting purposes, especially in Florida. The form must be completed by a licensed inspector who will assess each system for safety and functionality.

Who is qualified to complete the 4 Point Inspection Form?

A Florida-licensed inspector is required to complete the 4 Point Inspection Form. Acceptable professionals include general contractors, residential contractors, building code inspectors, and home inspectors. Each inspector can only sign off on the sections relevant to their trade. For example, an electrician may only certify the electrical system.

What are the minimum photo requirements for the inspection?

The inspection must include specific photographs to ensure a thorough evaluation. The minimum photo requirements are:

  • Each side of the dwelling
  • Each slope of the roof
  • Water heater and under-cabinet plumbing/drains
  • Open main electrical panel with the interior door visible
  • Electrical box with the panel off
  • All noted hazards or deficiencies

These photos are critical for underwriting assessments and must accompany the completed form.

What happens if a system is found to be unsatisfactory?

If any of the four systems—roof, electrical, HVAC, or plumbing—are deemed unsatisfactory, the inspector must provide detailed comments regarding the issues. This could include visible hazards, the condition of components, or any repairs needed. Such findings may affect the insurability of the property, and the insurance agent must review these details before submitting the application.

Why is the 4 Point Inspection Form important for insurance applications?

The 4 Point Inspection Form plays a crucial role in determining the insurability of a property. Insurance underwriters use the information provided in the form to assess risks associated with insuring the property. A completed form helps to identify any existing hazards or deficiencies that could lead to future claims. Thus, it is vital for both the property owner and the insurance provider to ensure that the form is accurate and comprehensive.

Common mistakes

  1. Incomplete Information: Failing to fill in all required fields, such as the insured's name or address, can lead to delays or rejection of the form.

  2. Missing Signatures: Not having the inspector's signature, title, and license number can invalidate the inspection.

  3. Insufficient Photos: Not providing the minimum required photos for each section, including the roof and plumbing, can result in an incomplete submission.

  4. Incorrect Documentation: Submitting documentation that is not from a Florida-licensed inspector can lead to rejection.

  5. Neglecting Hazards: Failing to note visible hazards or deficiencies in any of the systems can misrepresent the property's condition.

  6. Omitting Supplemental Information: Not providing details about the condition of systems, such as age and updates, can create ambiguity.

  7. Inaccurate System Assessment: Misrepresenting the condition of electrical, plumbing, HVAC, or roofing systems can lead to serious consequences.

  8. Ignoring Agent Review: Not having the application reviewed by the writing agent can result in overlooked errors or omissions.

Documents used along the form

The 4-Point Inspection Form is a crucial document used in the evaluation of residential properties for insurance purposes. Alongside this form, several other documents are often required to provide a comprehensive assessment of a property's condition. Each of these documents serves a specific purpose, ensuring that all aspects of the property are adequately documented and evaluated.

  • Roof Inspection Form: This document provides a detailed assessment of the roof's condition, including materials used, age, and any visible signs of damage or leaks. It is essential for understanding the roof's integrity and potential issues.
  • HVAC Inspection Report: This report focuses on the heating, ventilation, and air conditioning systems. It details the system's age, maintenance history, and any operational issues, ensuring that these critical systems are functioning properly.
  • Plumbing Inspection Report: This document evaluates the plumbing systems in the home, including pipes, fixtures, and appliances. It identifies any leaks, corrosion, or other issues that may affect water supply and drainage.
  • Electrical Inspection Report: This report assesses the electrical systems, including wiring, panels, and safety features. It highlights any hazards, outdated components, or code violations that could pose risks.
  • Insurance Application: This form collects basic information about the property and the applicant. It is necessary for underwriting decisions and must be submitted along with the inspection forms.
  • Disclosure Statement: This document outlines any known issues with the property that the seller or current owner is aware of. It is crucial for transparency and helps insurers understand the property's history.
  • Photo Documentation: A collection of photographs that visually document the property's condition. These images should correspond to the findings in the 4-Point Inspection Form and other reports, providing visual evidence of any issues noted.

In summary, these documents work together to give a thorough overview of a property's condition. Insurers rely on this information to make informed decisions regarding coverage and risk assessment. It is essential for property owners and agents to ensure that all required forms are completed accurately and submitted together.

Similar forms

The Home Inspection Report shares similarities with the 4-Point Inspection Form, primarily in its comprehensive evaluation of a property's systems. Both documents assess the condition of essential components such as the roof, plumbing, electrical, and HVAC systems. A home inspection report typically provides a detailed overview of the home’s overall condition, including safety concerns and potential repairs. Just like the 4-Point Inspection, it requires a licensed inspector to conduct the evaluation and document findings. The home inspection report, however, may cover a broader range of issues, including structural integrity and pest inspections, making it a more extensive document.

The Roof Inspection Report is another document akin to the 4-Point Inspection Form, focusing specifically on the roof’s condition. This report details the materials used, age, and any visible damage or wear. Similar to the 4-Point Inspection, it often requires photographs of the roof and may specify repairs needed or the remaining useful life of the roofing system. Both reports aim to provide an accurate assessment to determine insurability, although the Roof Inspection Report dives deeper into roofing-specific concerns, such as drainage and ventilation issues.

The Electrical Inspection Report parallels the 4-Point Inspection Form in its assessment of the electrical systems within a property. Both documents evaluate the condition of wiring, panels, and potential hazards. They require a licensed electrician to inspect and certify the findings. While the 4-Point Inspection Form includes a section on electrical systems as part of a broader evaluation, the Electrical Inspection Report focuses solely on electrical safety and compliance with local codes, providing a more detailed analysis of any deficiencies or hazards present.

The HVAC Inspection Report is similar to the 4-Point Inspection Form in that it specifically evaluates heating, ventilation, and air conditioning systems. Both documents assess the functionality and condition of HVAC components, including age, maintenance history, and any visible issues. The HVAC Inspection Report may provide more in-depth technical information regarding system efficiency and compliance with industry standards. While the 4-Point Inspection Form includes HVAC as one of several systems inspected, the HVAC report is dedicated solely to this critical component of home comfort and safety.

The Plumbing Inspection Report shares common ground with the 4-Point Inspection Form, focusing on the plumbing systems within a property. Both documents evaluate the condition of pipes, fixtures, and potential leaks. They require a licensed plumber to conduct the inspection and document any issues found. The Plumbing Inspection Report often goes into greater detail about specific plumbing concerns, such as water pressure, drainage issues, and compliance with plumbing codes, while the 4-Point Inspection Form addresses plumbing as part of a more comprehensive property assessment.

The Property Condition Assessment (PCA) is another document similar to the 4-Point Inspection Form, providing a thorough evaluation of a property’s overall condition. Both documents aim to identify potential issues that could affect insurability and safety. A PCA typically includes assessments of the building’s structure, systems, and site conditions, often with a focus on commercial properties. While the 4-Point Inspection Form is more streamlined and specific to residential insurance requirements, the PCA offers a broader perspective, often addressing long-term maintenance needs and potential liabilities.

Dos and Don'ts

When filling out the 4 Point Inspection form, it is crucial to follow specific guidelines to ensure accuracy and compliance. Below is a list of things you should and shouldn't do during this process.

  • Do ensure that all required fields are completed, including the insured/applicant name and address inspected.
  • Do provide clear and detailed descriptions of any visible hazards or deficiencies noted during the inspection.
  • Do include photographs that meet the minimum photo requirements, such as each side of the dwelling and all slopes of the roof.
  • Do have the inspection form signed and dated by a Florida-licensed inspector to validate the report.
  • Do check for any specific requirements related to the electrical system, including documentation for aluminum wiring remediation.
  • Don't leave any sections blank; incomplete forms may lead to delays or rejection of the application.
  • Don't submit the form without verifying that all systems are in good working order, as this could result in application denial.
  • Don't use outdated photographs; all images should accurately represent the current state of the property.
  • Don't forget to include any supplemental information regarding the age and condition of systems, as this is critical for underwriting.

Misconceptions

Misconceptions about the 4 Point Inspection form can lead to confusion and misunderstandings. Here are ten common misconceptions, along with clarifications:

  1. All properties require a 4 Point Inspection. Not every property needs this inspection. It is typically required for homes older than 30 years or when certain conditions apply.
  2. The 4 Point Inspection guarantees the condition of the systems. This form does not provide a warranty. It only assesses the current state of the systems and identifies any visible hazards.
  3. Any inspector can complete the form. Only a Florida-licensed inspector can fill out and sign this form. Their qualifications ensure accuracy and reliability.
  4. The form covers all aspects of home inspection. The 4 Point Inspection focuses specifically on the roof, electrical, HVAC, and plumbing systems, not the entire property.
  5. Photos are optional. Photos are mandatory and must accompany the form to provide visual evidence of the inspection findings.
  6. It's only for insurance purposes. While primarily used for underwriting, the inspection can also help homeowners identify issues that need attention.
  7. Deficiencies must be fixed before submitting the form. The form can be submitted even if deficiencies are present, but they must be noted for underwriting consideration.
  8. All systems must be in perfect condition. Systems can be deemed acceptable even if they show some wear, as long as they are functioning properly without visible hazards.
  9. Only one photo per system is needed. Multiple photos are required for each system to ensure thorough documentation.
  10. The inspector's signature is the only requirement. The form must be fully completed, including all necessary details and comments, not just the inspector's signature.

Understanding these misconceptions can help streamline the inspection process and ensure that all parties are on the same page.

Key takeaways

When filling out and using the 4 Point Inspection form, it is essential to adhere to specific guidelines to ensure accuracy and compliance. Here are six key takeaways to consider:

  • Complete All Sections: Ensure that every section of the form is filled out completely. This includes details about the insured/applicant, the address inspected, and specifics about each system being evaluated.
  • Photo Documentation: Include the required photographs for each section. Photos must show each side of the dwelling, each slope of the roof, and key plumbing and electrical components. This visual evidence supports the inspection findings.
  • Use a Licensed Inspector: Only a Florida-licensed inspector can complete, sign, and date the form. Their certification is crucial for the underwriting process, as it confirms the inspection's validity.
  • Identify Hazards: Clearly note any hazards or deficiencies found during the inspection. This includes issues with electrical systems, plumbing, HVAC, and the roof. Transparency in this area is vital for insurability.
  • Provide Supplemental Information: If any systems are not in good working order, provide detailed explanations. This can include information about updates, repairs, or any visible issues that may affect the property’s insurability.
  • Agent Review Required: Agents must review the completed 4 Point Inspection Form before submission. It is their responsibility to ensure that all requirements are met and that the property is insurable based on the inspection results.

By following these takeaways, you can help ensure that the 4 Point Inspection process runs smoothly and meets the necessary requirements for insurance coverage.